Property
Account |
| Property ID: | 39934 | Abbreviated Legal Description: | PORT LUDLOW NO 1 AREA 1, LOT 59 |
| Parcel # / Geo ID: | 990400159 | Agent Code: | |
| Type: | Real | | |
| Tax Area: | 0213 - 1-49F1E1H2L1 | Land Use Code | 11 |
| Open Space: | N | DFL | N |
| Historic Property: | N | Remodel Property: | N |
| Multi-Family Redevelopment: | N | | |
| Township: | 28N | Section: | 9 |
| Range: | 1E |
Location |
| Address: | 41 PUGET LOOP RD PORT LUDLOW, WA 98365 | Mapsco: | 097/020 |
| Neighborhood: | PORT LUDLOW #1 AREAS 1 AND 5; PORT LUDLOW # 7 | Map ID: | |
| Neighborhood CD: | 3330 |
Owner |
| Name: | MARK H & SUSAN M JACKSON | Owner ID: | 108700 |
| Mailing Address: | 43220 SE 173RD PL NORTH BEND, WA 98045-9652 | % Ownership: | 100.0000000000% |
| | | Exemptions: | |
Pay Tax Due
Select the appropriate checkbox next to the year to be paid. Multiple years may be selected.
*Convenience Fee not included
Taxes and Assessment Details
Property Tax Information as of
03/11/2026
Click on "Statement Details" to expand or collapse a tax statement.
* Please enter a valid date ** Please enter a valid date *
Statement Details |
| 2026 | 29107 | STATE - STATE LEVY (SCHOOL) | $636.38 | $636.37 | $0.00 | $0.00 | $0.00 | $1272.75 |
| 2026 | 29107 | COUNTY - COUNTY LEVIES (CE, DD, VET, MH) | $254.44 | $254.41 | $0.00 | $0.00 | $0.00 | $508.85 |
| 2026 | 29107 | CONSERVE - CONSERVATION FUTURES | $7.63 | $7.63 | $0.00 | $0.00 | $0.00 | $15.26 |
| 2026 | 29107 | COROADS - COUNTY ROADS (ROADS, DIV TO CE) | $205.25 | $205.24 | $0.00 | $0.00 | $0.00 | $410.49 |
| 2026 | 29107 | PORTPT - PORT DISTRICT | $102.76 | $102.75 | $0.00 | $0.00 | $0.00 | $205.51 |
| 2026 | 29107 | PUD1 - PUD #1 | $16.55 | $16.55 | $0.00 | $0.00 | $0.00 | $33.10 |
| 2026 | 29107 | LIB1 - LIBRARY DIST #1 | $79.41 | $79.40 | $0.00 | $0.00 | $0.00 | $158.81 |
| 2026 | 29107 | HD2 - HOSP DIST #2 | $14.84 | $14.84 | $0.00 | $0.00 | $0.00 | $29.68 |
| 2026 | 29107 | SD49 - SCHOOL DIST #49 | $350.30 | $350.29 | $0.00 | $0.00 | $0.00 | $700.59 |
| 2026 | 29107 | FD1 - FIRE DISTRICT #1 | $336.91 | $336.91 | $0.00 | $0.00 | $0.00 | $673.82 |
| 2026 | 29107 | EMS1 - FIRE DIST #1 EMS | $129.54 | $129.54 | $0.00 | $0.00 | $0.00 | $259.08 |
| 2026 | 29107 | JCCD - JC Conservation District | $2.55 | $2.55 | $0.00 | $0.00 | $0.00 | $5.10 |
| 2026 | 29107 | LUD - PT Ludlow Drainage District | $34.05 | $34.05 | $0.00 | $0.00 | $0.00 | $68.10 |
| 2026 | 29107 | NWA - Noxious Weed Assessment | $2.98 | $2.97 | $0.00 | $0.00 | $0.00 | $5.95 |
| 2026 | 29107 | Drain - DRAINAGE DISTRICT FEE | $0.68 | $0.00 | $0.00 | $0.00 | $0.00 | $0.68 |
| 2026 | 29107 | TOTAL: | $2174.27 | $2173.50 | $0.00 | $0.00 | $0.00 | $4347.77 |
|
| 2026 | 29107 | $2174.27 | $2173.50 | $0.00 | $0.00 | $0.00 | $4347.77 |
Statement Details |
| 2025 | 29179 | STATE - STATE LEVY (SCHOOL) | $663.77 | $663.75 | $0.00 | $0.00 | $1327.52 | $0.00 |
| 2025 | 29179 | COUNTY - COUNTY LEVIES (CE, DD, VET, MH) | $261.03 | $261.00 | $0.00 | $0.00 | $522.03 | $0.00 |
| 2025 | 29179 | CONSERVE - CONSERVATION FUTURES | $7.83 | $7.82 | $0.00 | $0.00 | $15.65 | $0.00 |
| 2025 | 29179 | COROADS - COUNTY ROADS (ROADS, DIV TO CE) | $209.12 | $209.12 | $0.00 | $0.00 | $418.24 | $0.00 |
| 2025 | 29179 | PORTPT - PORT DISTRICT | $106.51 | $106.51 | $0.00 | $0.00 | $213.02 | $0.00 |
| 2025 | 29179 | PUD1 - PUD #1 | $17.08 | $17.08 | $0.00 | $0.00 | $34.16 | $0.00 |
| 2025 | 29179 | LIB1 - LIBRARY DIST #1 | $80.91 | $80.90 | $0.00 | $0.00 | $161.81 | $0.00 |
| 2025 | 29179 | HD2 - HOSP DIST #2 | $15.23 | $15.23 | $0.00 | $0.00 | $30.46 | $0.00 |
| 2025 | 29179 | SD49 - SCHOOL DIST #49 | $355.74 | $355.73 | $0.00 | $0.00 | $711.47 | $0.00 |
| 2025 | 29179 | FD1 - FIRE DISTRICT #1 | $344.45 | $344.44 | $0.00 | $0.00 | $688.89 | $0.00 |
| 2025 | 29179 | EMS1 - FIRE DIST #1 EMS | $132.48 | $132.48 | $0.00 | $0.00 | $264.96 | $0.00 |
| 2025 | 29179 | JCCD - JC Conservation District | $2.55 | $2.55 | $0.00 | $0.00 | $5.10 | $0.00 |
| 2025 | 29179 | LUD - PT Ludlow Drainage District | $27.31 | $27.31 | $0.00 | $0.00 | $54.62 | $0.00 |
| 2025 | 29179 | NWA - Noxious Weed Assessment | $2.15 | $2.15 | $0.00 | $0.00 | $4.30 | $0.00 |
| 2025 | 29179 | Drain - DRAINAGE DISTRICT FEE | $0.55 | $0.00 | $0.00 | $0.00 | $0.55 | $0.00 |
| 2025 | 29179 | TOTAL: | $2226.71 | $2226.07 | $0.00 | $0.00 | $4452.78 | $0.00 |
|
| 2025 | 29179 | $2226.71 | $2226.07 | $0.00 | $0.00 | $4452.78 | $0.00 |
Statement Details |
| 2024 | 29239 | STATE - STATE LEVY (SCHOOL) | $601.04 | $601.02 | $0.00 | $0.00 | $1202.06 | $0.00 |
| 2024 | 29239 | COUNTY - COUNTY LEVIES (CE, DD, VET, MH) | $257.18 | $257.18 | $0.00 | $0.00 | $514.36 | $0.00 |
| 2024 | 29239 | CONSERVE - CONSERVATION FUTURES | $7.71 | $7.71 | $0.00 | $0.00 | $15.42 | $0.00 |
| 2024 | 29239 | COROADS - COUNTY ROADS (ROADS, DIV TO CE) | $206.96 | $206.94 | $0.00 | $0.00 | $413.90 | $0.00 |
| 2024 | 29239 | PORTPT - PORT DISTRICT | $106.23 | $106.22 | $0.00 | $0.00 | $212.45 | $0.00 |
| 2024 | 29239 | PUD1 - PUD #1 | $16.90 | $16.89 | $0.00 | $0.00 | $33.79 | $0.00 |
| 2024 | 29239 | LIB1 - LIBRARY DIST #1 | $80.07 | $80.06 | $0.00 | $0.00 | $160.13 | $0.00 |
| 2024 | 29239 | HD2 - HOSP DIST #2 | $15.01 | $15.00 | $0.00 | $0.00 | $30.01 | $0.00 |
| 2024 | 29239 | SD49 - SCHOOL DIST #49 | $268.40 | $268.38 | $0.00 | $0.00 | $536.78 | $0.00 |
| 2024 | 29239 | FD1 - FIRE DISTRICT #1 | $340.06 | $340.06 | $0.00 | $0.00 | $680.12 | $0.00 |
| 2024 | 29239 | EMS1 - FIRE DIST #1 EMS | $129.89 | $129.89 | $0.00 | $0.00 | $259.78 | $0.00 |
| 2024 | 29239 | JCCD - JC Conservation District | $2.55 | $2.55 | $0.00 | $0.00 | $5.10 | $0.00 |
| 2024 | 29239 | LUD - PT Ludlow Drainage District | $23.99 | $23.99 | $0.00 | $0.00 | $47.98 | $0.00 |
| 2024 | 29239 | NWA - Noxious Weed Assessment | $2.15 | $2.15 | $0.00 | $0.00 | $4.30 | $0.00 |
| 2024 | 29239 | Drain - DRAINAGE DISTRICT FEE | $0.48 | $0.00 | $0.00 | $0.00 | $0.48 | $0.00 |
| 2024 | 29239 | TOTAL: | $2058.62 | $2058.04 | $0.00 | $0.00 | $4116.66 | $0.00 |
|
| 2024 | 29239 | $2058.62 | $2058.04 | $0.00 | $0.00 | $4116.66 | $0.00 |
Statement Details |
| 2023 | 29281 | STATE - STATE LEVY (SCHOOL) | $49.44 | $49.44 | $0.00 | $0.00 | $98.88 | $0.00 |
| 2023 | 29281 | COUNTY - COUNTY LEVIES (CE, DD, VET, MH) | $21.58 | $21.56 | $0.00 | $0.00 | $43.14 | $0.00 |
| 2023 | 29281 | CONSERVE - CONSERVATION FUTURES | $0.65 | $0.64 | $0.00 | $0.00 | $1.29 | $0.00 |
| 2023 | 29281 | COROADS - COUNTY ROADS (ROADS, DIV TO CE) | $17.46 | $17.45 | $0.00 | $0.00 | $34.91 | $0.00 |
| 2023 | 29281 | PORTPT - PORT DISTRICT | $9.10 | $9.08 | $0.00 | $0.00 | $18.18 | $0.00 |
| 2023 | 29281 | PUD1 - PUD #1 | $1.43 | $1.43 | $0.00 | $0.00 | $2.86 | $0.00 |
| 2023 | 29281 | LIB1 - LIBRARY DIST #1 | $6.76 | $6.75 | $0.00 | $0.00 | $13.51 | $0.00 |
| 2023 | 29281 | HD2 - HOSP DIST #2 | $1.27 | $1.25 | $0.00 | $0.00 | $2.52 | $0.00 |
| 2023 | 29281 | SD49 - SCHOOL DIST #49 | $23.12 | $23.10 | $0.00 | $0.00 | $46.22 | $0.00 |
| 2023 | 29281 | FD3 - FIRE DISTRICT #3 | $21.46 | $21.46 | $0.00 | $0.00 | $42.92 | $0.00 |
| 2023 | 29281 | EMS3 - FIRE DIST #3 EMS | $7.68 | $7.67 | $0.00 | $0.00 | $15.35 | $0.00 |
| 2023 | 29281 | JCCD - JC Conservation District | $2.53 | $2.53 | $0.00 | $0.00 | $5.06 | $0.00 |
| 2023 | 29281 | LUD - PT Ludlow Drainage District | $5.26 | $5.25 | $0.00 | $0.00 | $10.51 | $0.00 |
| 2023 | 29281 | NWA - Noxious Weed Assessment | $2.15 | $2.15 | $0.00 | $0.00 | $4.30 | $0.00 |
| 2023 | 29281 | WAT - Clean Water District | $12.00 | $12.00 | $0.00 | $0.00 | $24.00 | $0.00 |
| 2023 | 29281 | Drain - DRAINAGE DISTRICT FEE | $0.11 | $0.00 | $0.00 | $0.00 | $0.11 | $0.00 |
| 2023 | 29281 | TOTAL: | $182.00 | $181.76 | $0.00 | $0.00 | $363.76 | $0.00 |
|
| 2023 | 29281 | $182.00 | $181.76 | $0.00 | $0.00 | $363.76 | $0.00 |
Values
| (+) Improvement Homesite Value: | + | $0 | |
| (+) Improvement Non-Homesite Value: | + | $449,088 | |
| (+) Land Homesite Value: | + | $0 | |
| (+) Land Non-Homesite Value: | + | $104,500 | |
| (+) Curr Use (HS): | + | $0 | $0 |
| (+) Curr Use (NHS): | + | $0 | $0 |
| | | -------------------------- | |
| (=) Market Value: | = | $553,588 | |
| (–) Productivity Loss: | – | $0 | |
| | | -------------------------- | |
| (=) Subtotal: | = | $553,588 | |
| (+) Senior Appraised Value: | + | $0 | |
| (+) Non-Senior Appraised Value: | + | $553,588 | |
| | | -------------------------- | |
| (=) Total Appraised Value: | = | $553,588 | |
| (–) Senior Exemption Loss: | – | $0 | |
| (–) Exemption Loss: | – | $0 | |
| | | -------------------------- | |
| (=) Taxable Value: | = | $553,588 | |
Taxing Jurisdiction
| Owner: | MARK H & SUSAN M JACKSON | | |
| % Ownership: | 100.0000000000% | | |
| Total Value: | $553,588 | | |
| Tax Area: | 0213 - 1-49F1E1H2L1 |
| CE | COUNTY CURRENT EXPENSE | 0.9034619479 | $553,588 | $553,588 | $500.15 | | |
| CNTYDD | DEVELOPMENTAL DISABILITIES | 0.0052121823 | $553,588 | $553,588 | $2.89 | | |
| CNTYVET | VETERANS RELIEF | 0.0052777810 | $553,588 | $553,588 | $2.92 | | |
| MENTAL | MENTAL HEALTH | 0.0052121823 | $553,588 | $553,588 | $2.89 | | |
| ROADS | COUNTY ROADS | 0.7415066410 | $553,588 | $553,588 | $410.49 | | |
| ROADSCU | COUNTY ROADS TO CUR EXP | 0.0000000000 | $553,588 | $553,588 | $0.00 | | |
| HOSP2CASH | HOSP DIST #2 GENERAL | 0.0536075306 | $553,588 | $553,588 | $29.68 | | |
| SCH49CP | SCHOOL DIST #49 CAP PROJ | 0.6279093905 | $553,588 | $553,588 | $347.60 | | |
| SCH49MO | SCHOOL DIST #49 EP & O | 0.6376483602 | $553,588 | $553,588 | $352.99 | | |
| CONSERVE | CONSERVATION FUTURES | 0.0275621078 | $553,588 | $553,588 | $15.26 | | |
| EMS1 | FIRE DIST #1 EMS | 0.4679948282 | $553,588 | $553,588 | $259.08 | | |
| FD1 | FIRE DIST #1 GENERAL | 1.2171942929 | $553,588 | $553,588 | $673.82 | | |
| LIB1 | LIBRARY DIST #1 GENERAL | 0.2868827388 | $553,588 | $553,588 | $158.81 | | |
| PORTPT | PORT OF PT GENERAL | 0.1134941229 | $553,588 | $553,588 | $62.83 | | |
| PORTPTIDD | PORT OF PT IDD 2019 | 0.2577346692 | $553,588 | $553,588 | $142.68 | | |
| PUD1 | PUD #1 GENERAL | 0.0597888892 | $553,588 | $553,588 | $33.10 | | |
| STATE | STATE SCHOOL PART 1 | 1.4940692947 | $553,588 | $553,588 | $827.10 | | |
| STATE2 | STATE SCHOOL PART 2 | 0.8050170049 | $553,588 | $553,588 | $445.65 | | |
| | Total Tax Rate: | 7.7095739644 | | | | | |
| | | | | Taxes w/Current Exemptions: | $4,267.94 | | |
| | | | | Taxes w/o Exemptions: | $4,267.94 | | |
Improvement / Building
| Improvement #1: | Residential Bldg | State Code: | 11 | 1703.0 sqft | Value: | $449,088 |
| Bathrooms (#): | 2 (FULL) | Bedrooms (#): | 3 | | Exterior Wall: | SI/ST | Foundation: | CONPR | | Heating/Cooling: | ELBB | Roof Cover: | COMP |
|
| | Type | Description | Class CD | Sub Class CD | Year Built | Area |
| | MA | Main Area | 4+ | 1S | 2022 | 1703.0 |
| | GATT | House Attached Garage | 4 | 1S | 2022 | 479.0 |
| | HDECK | House Deck | 3 | 1S | 2022 | 195.0 |
Sketch
Property Image
Land
| 1 | 3330-1185L | | 0.0000 | 0.00 | 0.00 | 0.00 | 1.00 | $104,500 | $0 |
Roll Value History
| 2026 | N/A | N/A | N/A | N/A | N/A |
| 2025 | $449,088 | $104,500 | $0 | $553,588 | $553,588 |
| 2024 | $449,088 | $104,500 | $0 | $553,588 | $553,588 |
| 2023 | $429,562 | $90,000 | $0 | $519,562 | $519,562 |
| 2022 | $0 | $42,000 | $0 | $42,000 | $42,000 |
Deed and Sales History
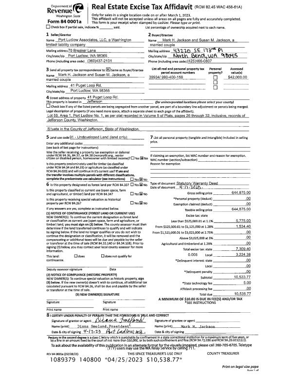
| 1 | 04/17/2023 | SWD | Statutory Warranty Deed | PORT LUDLOW ASSOCIATES LLC | MARK H & SUSAN M JACKSON | | | $644,875.00 | 140800 | |
| 2 | 07/02/2021 | SWD | Statutory Warranty Deed | JOAN L REITAN | PORT LUDLOW ASSOCIATES LLC | | | $37,000.00 | 137081 | |
| 3 | 03/28/2003 | SWD | Statutory Warranty Deed | SIZEMORE, DONNA M | REITAN, JOAN L | 0 | 0 | $23,000.00 | 97024 | 0 |
Payout Agreement
| No payout information available.. |