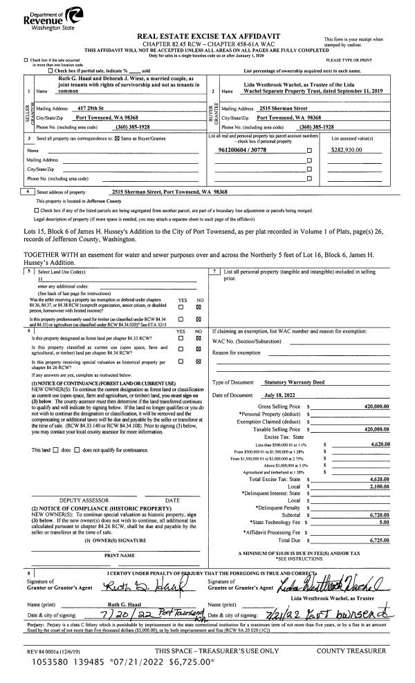
Property
Account |
| Property ID: | 39964 | Abbreviated Legal Description: | PORT LUDLOW NO 1 AREA 2 LOT 15 |
| Parcel # / Geo ID: | 990400215 | Agent Code: | |
| Type: | Real | | |
| Tax Area: | 0213 - 1-49F1E1H2L1 | Land Use Code | 11 |
| Open Space: | N | DFL | N |
| Historic Property: | N | Remodel Property: | N |
| Multi-Family Redevelopment: | N | | |
| Township: | 28N | Section: | 9 |
| Range: | 1E |
Location |
| Address: | 42 CONDON LN PORT LUDLOW, WA 98365 | Mapsco: | 098/015 |
| Neighborhood: | PORT LUDLOW #1 AREA 2; P L #2 AREA 1; P L #5 (ALL) | Map ID: | |
| Neighborhood CD: | 3331 |
Owner |
| Name: | HUMPHRIES FAMILY TRUST | Owner ID: | 100302 |
| Mailing Address: | DEBORAH F HUMPHRIES TRUSTEE ARTHUR T HUMPHRIES TRUSTEE 42 CONDON LN PORT LUDLOW, WA 98365-9604 | % Ownership: | 100.0000000000% |
| | | Exemptions: | |
Pay Tax Due
Select the appropriate checkbox next to the year to be paid. Multiple years may be selected.
*Convenience Fee not included
Taxes and Assessment Details
Property Tax Information as of
03/11/2026
Click on "Statement Details" to expand or collapse a tax statement.
* Please enter a valid date ** Please enter a valid date *
Statement Details |
| 2026 | 29137 | STATE - STATE LEVY (SCHOOL) | $1065.49 | $1065.47 | $0.00 | $0.00 | $0.00 | $2130.96 |
| 2026 | 29137 | COUNTY - COUNTY LEVIES (CE, DD, VET, MH) | $425.99 | $425.95 | $0.00 | $0.00 | $0.00 | $851.94 |
| 2026 | 29137 | CONSERVE - CONSERVATION FUTURES | $12.78 | $12.77 | $0.00 | $0.00 | $0.00 | $25.55 |
| 2026 | 29137 | COROADS - COUNTY ROADS (ROADS, DIV TO CE) | $343.64 | $343.64 | $0.00 | $0.00 | $0.00 | $687.28 |
| 2026 | 29137 | PORTPT - PORT DISTRICT | $172.05 | $172.03 | $0.00 | $0.00 | $0.00 | $344.08 |
| 2026 | 29137 | PUD1 - PUD #1 | $27.71 | $27.71 | $0.00 | $0.00 | $0.00 | $55.42 |
| 2026 | 29137 | LIB1 - LIBRARY DIST #1 | $132.95 | $132.95 | $0.00 | $0.00 | $0.00 | $265.90 |
| 2026 | 29137 | HD2 - HOSP DIST #2 | $24.85 | $24.84 | $0.00 | $0.00 | $0.00 | $49.69 |
| 2026 | 29137 | SD49 - SCHOOL DIST #49 | $586.51 | $586.50 | $0.00 | $0.00 | $0.00 | $1173.01 |
| 2026 | 29137 | FD1 - FIRE DISTRICT #1 | $564.09 | $564.09 | $0.00 | $0.00 | $0.00 | $1128.18 |
| 2026 | 29137 | EMS1 - FIRE DIST #1 EMS | $216.89 | $216.88 | $0.00 | $0.00 | $0.00 | $433.77 |
| 2026 | 29137 | JCCD - JC Conservation District | $2.55 | $2.55 | $0.00 | $0.00 | $0.00 | $5.10 |
| 2026 | 29137 | LUD - PT Ludlow Drainage District | $39.98 | $39.97 | $0.00 | $0.00 | $0.00 | $79.95 |
| 2026 | 29137 | NWA - Noxious Weed Assessment | $2.98 | $2.97 | $0.00 | $0.00 | $0.00 | $5.95 |
| 2026 | 29137 | Drain - DRAINAGE DISTRICT FEE | $0.80 | $0.00 | $0.00 | $0.00 | $0.00 | $0.80 |
| 2026 | 29137 | TOTAL: | $3619.26 | $3618.32 | $0.00 | $0.00 | $0.00 | $7237.58 |
|
| 2026 | 29137 | $3619.26 | $3618.32 | $0.00 | $0.00 | $0.00 | $7237.58 |
Statement Details |
| 2025 | 29209 | STATE - STATE LEVY (SCHOOL) | $1149.62 | $1149.61 | $0.00 | $0.00 | $2299.23 | $0.00 |
| 2025 | 29209 | COUNTY - COUNTY LEVIES (CE, DD, VET, MH) | $452.09 | $452.08 | $0.00 | $0.00 | $904.17 | $0.00 |
| 2025 | 29209 | CONSERVE - CONSERVATION FUTURES | $13.56 | $13.55 | $0.00 | $0.00 | $27.11 | $0.00 |
| 2025 | 29209 | COROADS - COUNTY ROADS (ROADS, DIV TO CE) | $362.20 | $362.18 | $0.00 | $0.00 | $724.38 | $0.00 |
| 2025 | 29209 | PORTPT - PORT DISTRICT | $184.48 | $184.47 | $0.00 | $0.00 | $368.95 | $0.00 |
| 2025 | 29209 | PUD1 - PUD #1 | $29.58 | $29.58 | $0.00 | $0.00 | $59.16 | $0.00 |
| 2025 | 29209 | LIB1 - LIBRARY DIST #1 | $140.13 | $140.12 | $0.00 | $0.00 | $280.25 | $0.00 |
| 2025 | 29209 | HD2 - HOSP DIST #2 | $26.38 | $26.37 | $0.00 | $0.00 | $52.75 | $0.00 |
| 2025 | 29209 | SD49 - SCHOOL DIST #49 | $616.13 | $616.12 | $0.00 | $0.00 | $1232.25 | $0.00 |
| 2025 | 29209 | FD1 - FIRE DISTRICT #1 | $596.57 | $596.57 | $0.00 | $0.00 | $1193.14 | $0.00 |
| 2025 | 29209 | EMS1 - FIRE DIST #1 EMS | $229.46 | $229.45 | $0.00 | $0.00 | $458.91 | $0.00 |
| 2025 | 29209 | JCCD - JC Conservation District | $2.55 | $2.55 | $0.00 | $0.00 | $5.10 | $0.00 |
| 2025 | 29209 | LUD - PT Ludlow Drainage District | $32.05 | $32.05 | $0.00 | $0.00 | $64.10 | $0.00 |
| 2025 | 29209 | NWA - Noxious Weed Assessment | $2.15 | $2.15 | $0.00 | $0.00 | $4.30 | $0.00 |
| 2025 | 29209 | Drain - DRAINAGE DISTRICT FEE | $0.64 | $0.00 | $0.00 | $0.00 | $0.64 | $0.00 |
| 2025 | 29209 | TOTAL: | $3837.59 | $3836.85 | $0.00 | $0.00 | $7674.44 | $0.00 |
|
| 2025 | 29209 | $3837.59 | $3836.85 | $0.00 | $0.00 | $7674.44 | $0.00 |
Statement Details |
| 2024 | 29269 | STATE - STATE LEVY (SCHOOL) | $1046.19 | $1046.17 | $0.00 | $0.00 | $2092.36 | $0.00 |
| 2024 | 29269 | COUNTY - COUNTY LEVIES (CE, DD, VET, MH) | $447.68 | $447.67 | $0.00 | $0.00 | $895.35 | $0.00 |
| 2024 | 29269 | CONSERVE - CONSERVATION FUTURES | $13.43 | $13.42 | $0.00 | $0.00 | $26.85 | $0.00 |
| 2024 | 29269 | COROADS - COUNTY ROADS (ROADS, DIV TO CE) | $360.23 | $360.22 | $0.00 | $0.00 | $720.45 | $0.00 |
| 2024 | 29269 | PORTPT - PORT DISTRICT | $184.91 | $184.90 | $0.00 | $0.00 | $369.81 | $0.00 |
| 2024 | 29269 | PUD1 - PUD #1 | $29.41 | $29.40 | $0.00 | $0.00 | $58.81 | $0.00 |
| 2024 | 29269 | LIB1 - LIBRARY DIST #1 | $139.37 | $139.37 | $0.00 | $0.00 | $278.74 | $0.00 |
| 2024 | 29269 | HD2 - HOSP DIST #2 | $26.12 | $26.12 | $0.00 | $0.00 | $52.24 | $0.00 |
| 2024 | 29269 | SD49 - SCHOOL DIST #49 | $467.18 | $467.16 | $0.00 | $0.00 | $934.34 | $0.00 |
| 2024 | 29269 | FD1 - FIRE DISTRICT #1 | $591.93 | $591.92 | $0.00 | $0.00 | $1183.85 | $0.00 |
| 2024 | 29269 | EMS1 - FIRE DIST #1 EMS | $226.10 | $226.09 | $0.00 | $0.00 | $452.19 | $0.00 |
| 2024 | 29269 | JCCD - JC Conservation District | $2.55 | $2.55 | $0.00 | $0.00 | $5.10 | $0.00 |
| 2024 | 29269 | LUD - PT Ludlow Drainage District | $28.14 | $28.14 | $0.00 | $0.00 | $56.28 | $0.00 |
| 2024 | 29269 | NWA - Noxious Weed Assessment | $2.15 | $2.15 | $0.00 | $0.00 | $4.30 | $0.00 |
| 2024 | 29269 | Drain - DRAINAGE DISTRICT FEE | $0.56 | $0.00 | $0.00 | $0.00 | $0.56 | $0.00 |
| 2024 | 29269 | TOTAL: | $3565.95 | $3565.28 | $0.00 | $0.00 | $7131.23 | $0.00 |
|
| 2024 | 29269 | $3565.95 | $3565.28 | $0.00 | $0.00 | $7131.23 | $0.00 |
Statement Details |
| 2023 | 29311 | STATE - STATE LEVY (SCHOOL) | $2042.10 | $0.00 | $0.00 | $0.00 | $2042.10 | $0.00 |
| 2023 | 29311 | COUNTY - COUNTY LEVIES (CE, DD, VET, MH) | $891.11 | $0.00 | $0.00 | $0.00 | $891.11 | $0.00 |
| 2023 | 29311 | CONSERVE - CONSERVATION FUTURES | $26.72 | $0.00 | $0.00 | $0.00 | $26.72 | $0.00 |
| 2023 | 29311 | COROADS - COUNTY ROADS (ROADS, DIV TO CE) | $720.97 | $0.00 | $0.00 | $0.00 | $720.97 | $0.00 |
| 2023 | 29311 | PORTPT - PORT DISTRICT | $375.38 | $0.00 | $0.00 | $0.00 | $375.38 | $0.00 |
| 2023 | 29311 | PUD1 - PUD #1 | $59.07 | $0.00 | $0.00 | $0.00 | $59.07 | $0.00 |
| 2023 | 29311 | LIB1 - LIBRARY DIST #1 | $278.94 | $0.00 | $0.00 | $0.00 | $278.94 | $0.00 |
| 2023 | 29311 | HD2 - HOSP DIST #2 | $52.00 | $0.00 | $0.00 | $0.00 | $52.00 | $0.00 |
| 2023 | 29311 | SD49 - SCHOOL DIST #49 | $954.57 | $0.00 | $0.00 | $0.00 | $954.57 | $0.00 |
| 2023 | 29311 | FD3 - FIRE DISTRICT #3 | $886.53 | $0.00 | $0.00 | $0.00 | $886.53 | $0.00 |
| 2023 | 29311 | EMS3 - FIRE DIST #3 EMS | $316.93 | $0.00 | $0.00 | $0.00 | $316.93 | $0.00 |
| 2023 | 29311 | JCCD - JC Conservation District | $5.10 | $0.00 | $0.00 | $0.00 | $5.10 | $0.00 |
| 2023 | 29311 | LUD - PT Ludlow Drainage District | $56.62 | $0.00 | $0.00 | $0.00 | $56.62 | $0.00 |
| 2023 | 29311 | NWA - Noxious Weed Assessment | $4.30 | $0.00 | $0.00 | $0.00 | $4.30 | $0.00 |
| 2023 | 29311 | Drain - DRAINAGE DISTRICT FEE | $0.57 | $0.00 | $0.00 | $0.00 | $0.57 | $0.00 |
| 2023 | 29311 | NSF - RETURNED CHECK | $30.00 | $0.00 | $0.00 | $0.00 | $30.00 | $0.00 |
| 2023 | 29311 | TOTAL: | $6700.91 | $0.00 | $0.00 | $0.00 | $6700.91 | $0.00 |
|
| 2023 | 29311 | $6700.91 | $0.00 | $0.00 | $0.00 | $6700.91 | $0.00 |
Values
| (+) Improvement Homesite Value: | + | $0 | |
| (+) Improvement Non-Homesite Value: | + | $734,372 | |
| (+) Land Homesite Value: | + | $0 | |
| (+) Land Non-Homesite Value: | + | $192,500 | |
| (+) Curr Use (HS): | + | $0 | $0 |
| (+) Curr Use (NHS): | + | $0 | $0 |
| | | -------------------------- | |
| (=) Market Value: | = | $926,872 | |
| (–) Productivity Loss: | – | $0 | |
| | | -------------------------- | |
| (=) Subtotal: | = | $926,872 | |
| (+) Senior Appraised Value: | + | $0 | |
| (+) Non-Senior Appraised Value: | + | $926,872 | |
| | | -------------------------- | |
| (=) Total Appraised Value: | = | $926,872 | |
| (–) Senior Exemption Loss: | – | $0 | |
| (–) Exemption Loss: | – | $0 | |
| | | -------------------------- | |
| (=) Taxable Value: | = | $926,872 | |
Taxing Jurisdiction
| Owner: | HUMPHRIES FAMILY TRUST | | |
| % Ownership: | 100.0000000000% | | |
| Total Value: | $926,872 | | |
| Tax Area: | 0213 - 1-49F1E1H2L1 |
| CE | COUNTY CURRENT EXPENSE | 0.9034619479 | $926,872 | $926,872 | $837.39 | | |
| CNTYDD | DEVELOPMENTAL DISABILITIES | 0.0052121823 | $926,872 | $926,872 | $4.83 | | |
| CNTYVET | VETERANS RELIEF | 0.0052777810 | $926,872 | $926,872 | $4.89 | | |
| MENTAL | MENTAL HEALTH | 0.0052121823 | $926,872 | $926,872 | $4.83 | | |
| ROADS | COUNTY ROADS | 0.7415066410 | $926,872 | $926,872 | $687.28 | | |
| ROADSCU | COUNTY ROADS TO CUR EXP | 0.0000000000 | $926,872 | $926,872 | $0.00 | | |
| HOSP2CASH | HOSP DIST #2 GENERAL | 0.0536075306 | $926,872 | $926,872 | $49.69 | | |
| SCH49CP | SCHOOL DIST #49 CAP PROJ | 0.6279093905 | $926,872 | $926,872 | $581.99 | | |
| SCH49MO | SCHOOL DIST #49 EP & O | 0.6376483602 | $926,872 | $926,872 | $591.02 | | |
| CONSERVE | CONSERVATION FUTURES | 0.0275621078 | $926,872 | $926,872 | $25.55 | | |
| EMS1 | FIRE DIST #1 EMS | 0.4679948282 | $926,872 | $926,872 | $433.77 | | |
| FD1 | FIRE DIST #1 GENERAL | 1.2171942929 | $926,872 | $926,872 | $1,128.18 | | |
| LIB1 | LIBRARY DIST #1 GENERAL | 0.2868827388 | $926,872 | $926,872 | $265.90 | | |
| PORTPT | PORT OF PT GENERAL | 0.1134941229 | $926,872 | $926,872 | $105.19 | | |
| PORTPTIDD | PORT OF PT IDD 2019 | 0.2577346692 | $926,872 | $926,872 | $238.89 | | |
| PUD1 | PUD #1 GENERAL | 0.0597888892 | $926,872 | $926,872 | $55.42 | | |
| STATE | STATE SCHOOL PART 1 | 1.4940692947 | $926,872 | $926,872 | $1,384.81 | | |
| STATE2 | STATE SCHOOL PART 2 | 0.8050170049 | $926,872 | $926,872 | $746.15 | | |
| | Total Tax Rate: | 7.7095739644 | | | | | |
| | | | | Taxes w/Current Exemptions: | $7,145.78 | | |
| | | | | Taxes w/o Exemptions: | $7,145.78 | | |
Improvement / Building
| Improvement #1: | Residential Bldg | State Code: | 11 | 1750.0 sqft | Value: | $734,372 |
| Bathrooms (#): | 2 (FULL) | Bathrooms (#): | 1 (HALF) | | Bedrooms (#): | 3 | Exterior Wall: | SI/ST | | Fireplace: | SIN 2-GOOD | Floor Construction: | FRAME | | Foundation: | CONPR | Heating/Cooling: | HPUMP | | Inside Verify: | YES-FIX | Roof Cover: | COMP |
|
| | Type | Description | Class CD | Sub Class CD | Year Built | Area |
| | MA | Main Area | 5+ | 1S | 1993 | 1750.0 |
| | PATIO | House Patio | 5 | * | 1993 | 550.0 |
| | HCPOR | House Concrete Porch | 5 | * | 1993 | 215.0 |
| | HDECK | House Deck | 5 | * | 1993 | 550.0 |
| | GDET | Detached Garage | 4 | 1S | 1993 | 670.0 |
| | BSMTF | House basement finished | 5 | * | 1993 | 1750.0 |
| | CONCD | Concrete Drive | 5 | * | 1993 | 1865.0 |
Sketch
Property Image
Land
| 1 | 3331-1145L | | 0.0000 | 0.00 | 0.00 | 0.00 | 1.00 | $192,500 | $0 |
Roll Value History
| 2026 | N/A | N/A | N/A | N/A | N/A |
| 2025 | $734,372 | $192,500 | $0 | $926,872 | $926,872 |
| 2024 | $766,301 | $192,500 | $0 | $958,801 | $958,801 |
| 2023 | $734,372 | $170,000 | $0 | $904,372 | $904,372 |
| 2022 | $702,442 | $165,000 | $0 | $867,442 | $867,442 |
Deed and Sales History
| 1 | 10/26/2018 | SWD | Statutory Warranty Deed | ARTHUR & DEBORAH HUMPHRIES | HUMPHRIES FAMILY TRUST | | | | 131520 | |
| 2 | 02/08/2016 | SWD | Statutory Warranty Deed | WILLIAM & BARBARA ADAMS FAMILY REV LIV TRUST | ARTHUR & DEBORAH HUMPHRIES | | | $560,000.00 | 124838 | |
| 3 | 08/27/2014 | SWD | Statutory Warranty Deed | WILLIAM P ADAMS | WILLIAM & BARBARA ADAMS FAMILY REV LIV TRUST | | | | 121821 | |
| 4 | 05/22/2001 | SWD | Statutory Warranty Deed | PETERSEN, WARREN T/ELEANO | ADAMS, WILLIAM P/BARBARA S | 0 | 0 | $397,000.00 | 92242 | 0 |
| 5 | 08/11/1997 | SWD | Statutory Warranty Deed | BIRD FAMILY TRUST | PETERSEN TRUST | 0 | 0 | $358,000.00 | 82576 | 0 |
| 6 | 07/12/1996 | QCD | Quit Claim Deed | BIRD, BEN A/LINDA D | BIRD FAMILY TRUST | 0 | 0 | $0.00 | 79926 | 0 |
Payout Agreement
| No payout information available.. |