Property
Account |
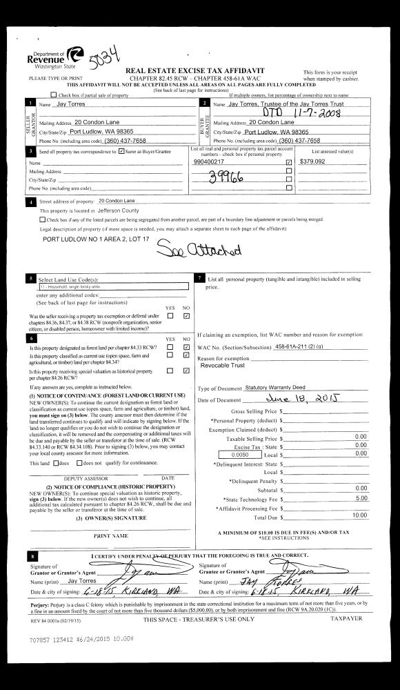
| Property ID: | 39966 | Abbreviated Legal Description: | PORT LUDLOW NO 1 AREA 2, LOT 17 |
| Parcel # / Geo ID: | 990400217 | Agent Code: | |
| Type: | Real | | |
| Tax Area: | 0213 - 1-49F1E1H2L1 | Land Use Code | 11 |
| Open Space: | N | DFL | N |
| Historic Property: | N | Remodel Property: | N |
| Multi-Family Redevelopment: | N | | |
| Township: | 28N | Section: | 9 |
| Range: | 1E |
Location |
| Address: | 20 CONDON LN PORT LUDLOW, WA 98365 | Mapsco: | 098/017 |
| Neighborhood: | PORT LUDLOW #1 AREA 2; P L #2 AREA 1; P L #5 (ALL) | Map ID: | |
| Neighborhood CD: | 3331 |
Owner |
| Name: | KEVIN E MANGAN | Owner ID: | 96348 |
| Mailing Address: | 20 CONDON LN PORT LUDLOW, WA 98365-9604 | % Ownership: | 100.0000000000% |
| | | Exemptions: | |
Pay Tax Due
Select the appropriate checkbox next to the year to be paid. Multiple years may be selected.
*Convenience Fee not included
Taxes and Assessment Details
Property Tax Information as of
03/12/2026
Click on "Statement Details" to expand or collapse a tax statement.
* Please enter a valid date ** Please enter a valid date *
Statement Details |
| 2026 | 29139 | STATE - STATE LEVY (SCHOOL) | $801.64 | $801.63 | $0.00 | $0.00 | $0.00 | $1603.27 |
| 2026 | 29139 | COUNTY - COUNTY LEVIES (CE, DD, VET, MH) | $320.50 | $320.47 | $0.00 | $0.00 | $0.00 | $640.97 |
| 2026 | 29139 | CONSERVE - CONSERVATION FUTURES | $9.61 | $9.61 | $0.00 | $0.00 | $0.00 | $19.22 |
| 2026 | 29139 | COROADS - COUNTY ROADS (ROADS, DIV TO CE) | $258.55 | $258.54 | $0.00 | $0.00 | $0.00 | $517.09 |
| 2026 | 29139 | PORTPT - PORT DISTRICT | $129.45 | $129.43 | $0.00 | $0.00 | $0.00 | $258.88 |
| 2026 | 29139 | PUD1 - PUD #1 | $20.85 | $20.84 | $0.00 | $0.00 | $0.00 | $41.69 |
| 2026 | 29139 | LIB1 - LIBRARY DIST #1 | $100.03 | $100.03 | $0.00 | $0.00 | $0.00 | $200.06 |
| 2026 | 29139 | HD2 - HOSP DIST #2 | $18.69 | $18.69 | $0.00 | $0.00 | $0.00 | $37.38 |
| 2026 | 29139 | SD49 - SCHOOL DIST #49 | $441.28 | $441.26 | $0.00 | $0.00 | $0.00 | $882.54 |
| 2026 | 29139 | FD1 - FIRE DISTRICT #1 | $424.41 | $424.40 | $0.00 | $0.00 | $0.00 | $848.81 |
| 2026 | 29139 | EMS1 - FIRE DIST #1 EMS | $163.18 | $163.18 | $0.00 | $0.00 | $0.00 | $326.36 |
| 2026 | 29139 | JCCD - JC Conservation District | $2.55 | $2.55 | $0.00 | $0.00 | $0.00 | $5.10 |
| 2026 | 29139 | LUD - PT Ludlow Drainage District | $39.19 | $39.18 | $0.00 | $0.00 | $0.00 | $78.37 |
| 2026 | 29139 | NWA - Noxious Weed Assessment | $2.98 | $2.97 | $0.00 | $0.00 | $0.00 | $5.95 |
| 2026 | 29139 | Drain - DRAINAGE DISTRICT FEE | $0.78 | $0.00 | $0.00 | $0.00 | $0.00 | $0.78 |
| 2026 | 29139 | TOTAL: | $2733.69 | $2732.78 | $0.00 | $0.00 | $0.00 | $5466.47 |
|
| 2026 | 29139 | $2733.69 | $2732.78 | $0.00 | $0.00 | $0.00 | $5466.47 |
Statement Details |
| 2025 | 29211 | STATE - STATE LEVY (SCHOOL) | $862.46 | $862.45 | $0.00 | $0.00 | $1724.91 | $0.00 |
| 2025 | 29211 | COUNTY - COUNTY LEVIES (CE, DD, VET, MH) | $339.17 | $339.15 | $0.00 | $0.00 | $678.32 | $0.00 |
| 2025 | 29211 | CONSERVE - CONSERVATION FUTURES | $10.17 | $10.17 | $0.00 | $0.00 | $20.34 | $0.00 |
| 2025 | 29211 | COROADS - COUNTY ROADS (ROADS, DIV TO CE) | $271.72 | $271.71 | $0.00 | $0.00 | $543.43 | $0.00 |
| 2025 | 29211 | PORTPT - PORT DISTRICT | $138.40 | $138.38 | $0.00 | $0.00 | $276.78 | $0.00 |
| 2025 | 29211 | PUD1 - PUD #1 | $22.19 | $22.19 | $0.00 | $0.00 | $44.38 | $0.00 |
| 2025 | 29211 | LIB1 - LIBRARY DIST #1 | $105.13 | $105.12 | $0.00 | $0.00 | $210.25 | $0.00 |
| 2025 | 29211 | HD2 - HOSP DIST #2 | $19.79 | $19.78 | $0.00 | $0.00 | $39.57 | $0.00 |
| 2025 | 29211 | SD49 - SCHOOL DIST #49 | $462.23 | $462.21 | $0.00 | $0.00 | $924.44 | $0.00 |
| 2025 | 29211 | FD1 - FIRE DISTRICT #1 | $447.55 | $447.55 | $0.00 | $0.00 | $895.10 | $0.00 |
| 2025 | 29211 | EMS1 - FIRE DIST #1 EMS | $172.14 | $172.14 | $0.00 | $0.00 | $344.28 | $0.00 |
| 2025 | 29211 | JCCD - JC Conservation District | $2.55 | $2.55 | $0.00 | $0.00 | $5.10 | $0.00 |
| 2025 | 29211 | LUD - PT Ludlow Drainage District | $31.42 | $31.42 | $0.00 | $0.00 | $62.84 | $0.00 |
| 2025 | 29211 | NWA - Noxious Weed Assessment | $2.15 | $2.15 | $0.00 | $0.00 | $4.30 | $0.00 |
| 2025 | 29211 | Drain - DRAINAGE DISTRICT FEE | $0.63 | $0.00 | $0.00 | $0.00 | $0.63 | $0.00 |
| 2025 | 29211 | TOTAL: | $2887.70 | $2886.97 | $0.00 | $0.00 | $5774.67 | $0.00 |
|
| 2025 | 29211 | $2887.70 | $2886.97 | $0.00 | $0.00 | $5774.67 | $0.00 |
Statement Details |
| 2024 | 29271 | STATE - STATE LEVY (SCHOOL) | $780.68 | $780.66 | $0.00 | $0.00 | $1561.34 | $0.00 |
| 2024 | 29271 | COUNTY - COUNTY LEVIES (CE, DD, VET, MH) | $334.07 | $334.04 | $0.00 | $0.00 | $668.11 | $0.00 |
| 2024 | 29271 | CONSERVE - CONSERVATION FUTURES | $10.02 | $10.01 | $0.00 | $0.00 | $20.03 | $0.00 |
| 2024 | 29271 | COROADS - COUNTY ROADS (ROADS, DIV TO CE) | $268.81 | $268.80 | $0.00 | $0.00 | $537.61 | $0.00 |
| 2024 | 29271 | PORTPT - PORT DISTRICT | $137.98 | $137.98 | $0.00 | $0.00 | $275.96 | $0.00 |
| 2024 | 29271 | PUD1 - PUD #1 | $21.94 | $21.94 | $0.00 | $0.00 | $43.88 | $0.00 |
| 2024 | 29271 | LIB1 - LIBRARY DIST #1 | $104.00 | $104.00 | $0.00 | $0.00 | $208.00 | $0.00 |
| 2024 | 29271 | HD2 - HOSP DIST #2 | $19.49 | $19.49 | $0.00 | $0.00 | $38.98 | $0.00 |
| 2024 | 29271 | SD49 - SCHOOL DIST #49 | $348.61 | $348.60 | $0.00 | $0.00 | $697.21 | $0.00 |
| 2024 | 29271 | FD1 - FIRE DISTRICT #1 | $441.70 | $441.70 | $0.00 | $0.00 | $883.40 | $0.00 |
| 2024 | 29271 | EMS1 - FIRE DIST #1 EMS | $168.72 | $168.71 | $0.00 | $0.00 | $337.43 | $0.00 |
| 2024 | 29271 | JCCD - JC Conservation District | $2.55 | $2.55 | $0.00 | $0.00 | $5.10 | $0.00 |
| 2024 | 29271 | LUD - PT Ludlow Drainage District | $27.59 | $27.58 | $0.00 | $0.00 | $55.17 | $0.00 |
| 2024 | 29271 | NWA - Noxious Weed Assessment | $2.15 | $2.15 | $0.00 | $0.00 | $4.30 | $0.00 |
| 2024 | 29271 | Drain - DRAINAGE DISTRICT FEE | $0.55 | $0.00 | $0.00 | $0.00 | $0.55 | $0.00 |
| 2024 | 29271 | TOTAL: | $2668.86 | $2668.21 | $0.00 | $0.00 | $5337.07 | $0.00 |
|
| 2024 | 29271 | $2668.86 | $2668.21 | $0.00 | $0.00 | $5337.07 | $0.00 |
Statement Details |
| 2023 | 29313 | STATE - STATE LEVY (SCHOOL) | $762.64 | $762.63 | $0.00 | $0.00 | $1525.27 | $0.00 |
| 2023 | 29313 | COUNTY - COUNTY LEVIES (CE, DD, VET, MH) | $332.80 | $332.78 | $0.00 | $0.00 | $665.58 | $0.00 |
| 2023 | 29313 | CONSERVE - CONSERVATION FUTURES | $9.98 | $9.98 | $0.00 | $0.00 | $19.96 | $0.00 |
| 2023 | 29313 | COROADS - COUNTY ROADS (ROADS, DIV TO CE) | $269.26 | $269.24 | $0.00 | $0.00 | $538.50 | $0.00 |
| 2023 | 29313 | PORTPT - PORT DISTRICT | $140.19 | $140.19 | $0.00 | $0.00 | $280.38 | $0.00 |
| 2023 | 29313 | PUD1 - PUD #1 | $22.06 | $22.06 | $0.00 | $0.00 | $44.12 | $0.00 |
| 2023 | 29313 | LIB1 - LIBRARY DIST #1 | $104.17 | $104.17 | $0.00 | $0.00 | $208.34 | $0.00 |
| 2023 | 29313 | HD2 - HOSP DIST #2 | $19.42 | $19.42 | $0.00 | $0.00 | $38.84 | $0.00 |
| 2023 | 29313 | SD49 - SCHOOL DIST #49 | $356.50 | $356.48 | $0.00 | $0.00 | $712.98 | $0.00 |
| 2023 | 29313 | FD3 - FIRE DISTRICT #3 | $331.08 | $331.08 | $0.00 | $0.00 | $662.16 | $0.00 |
| 2023 | 29313 | EMS3 - FIRE DIST #3 EMS | $118.36 | $118.36 | $0.00 | $0.00 | $236.72 | $0.00 |
| 2023 | 29313 | JCCD - JC Conservation District | $2.55 | $2.55 | $0.00 | $0.00 | $5.10 | $0.00 |
| 2023 | 29313 | LUD - PT Ludlow Drainage District | $27.76 | $27.75 | $0.00 | $0.00 | $55.51 | $0.00 |
| 2023 | 29313 | NWA - Noxious Weed Assessment | $2.15 | $2.15 | $0.00 | $0.00 | $4.30 | $0.00 |
| 2023 | 29313 | Drain - DRAINAGE DISTRICT FEE | $0.56 | $0.00 | $0.00 | $0.00 | $0.56 | $0.00 |
| 2023 | 29313 | TOTAL: | $2499.48 | $2498.84 | $0.00 | $0.00 | $4998.32 | $0.00 |
|
| 2023 | 29313 | $2499.48 | $2498.84 | $0.00 | $0.00 | $4998.32 | $0.00 |
Values
| (+) Improvement Homesite Value: | + | $0 | |
| (+) Improvement Non-Homesite Value: | + | $504,852 | |
| (+) Land Homesite Value: | + | $0 | |
| (+) Land Non-Homesite Value: | + | $192,500 | |
| (+) Curr Use (HS): | + | $0 | $0 |
| (+) Curr Use (NHS): | + | $0 | $0 |
| | | -------------------------- | |
| (=) Market Value: | = | $697,352 | |
| (–) Productivity Loss: | – | $0 | |
| | | -------------------------- | |
| (=) Subtotal: | = | $697,352 | |
| (+) Senior Appraised Value: | + | $0 | |
| (+) Non-Senior Appraised Value: | + | $697,352 | |
| | | -------------------------- | |
| (=) Total Appraised Value: | = | $697,352 | |
| (–) Senior Exemption Loss: | – | $0 | |
| (–) Exemption Loss: | – | $0 | |
| | | -------------------------- | |
| (=) Taxable Value: | = | $697,352 | |
Taxing Jurisdiction
| Owner: | KEVIN E MANGAN | | |
| % Ownership: | 100.0000000000% | | |
| Total Value: | $697,352 | | |
| Tax Area: | 0213 - 1-49F1E1H2L1 |
| CE | COUNTY CURRENT EXPENSE | 0.9034619479 | $697,352 | $697,352 | $630.03 | | |
| CNTYDD | DEVELOPMENTAL DISABILITIES | 0.0052121823 | $697,352 | $697,352 | $3.63 | | |
| CNTYVET | VETERANS RELIEF | 0.0052777810 | $697,352 | $697,352 | $3.68 | | |
| MENTAL | MENTAL HEALTH | 0.0052121823 | $697,352 | $697,352 | $3.63 | | |
| ROADS | COUNTY ROADS | 0.7415066410 | $697,352 | $697,352 | $517.09 | | |
| ROADSCU | COUNTY ROADS TO CUR EXP | 0.0000000000 | $697,352 | $697,352 | $0.00 | | |
| HOSP2CASH | HOSP DIST #2 GENERAL | 0.0536075306 | $697,352 | $697,352 | $37.38 | | |
| SCH49CP | SCHOOL DIST #49 CAP PROJ | 0.6279093905 | $697,352 | $697,352 | $437.87 | | |
| SCH49MO | SCHOOL DIST #49 EP & O | 0.6376483602 | $697,352 | $697,352 | $444.67 | | |
| CONSERVE | CONSERVATION FUTURES | 0.0275621078 | $697,352 | $697,352 | $19.22 | | |
| EMS1 | FIRE DIST #1 EMS | 0.4679948282 | $697,352 | $697,352 | $326.36 | | |
| FD1 | FIRE DIST #1 GENERAL | 1.2171942929 | $697,352 | $697,352 | $848.81 | | |
| LIB1 | LIBRARY DIST #1 GENERAL | 0.2868827388 | $697,352 | $697,352 | $200.06 | | |
| PORTPT | PORT OF PT GENERAL | 0.1134941229 | $697,352 | $697,352 | $79.15 | | |
| PORTPTIDD | PORT OF PT IDD 2019 | 0.2577346692 | $697,352 | $697,352 | $179.73 | | |
| PUD1 | PUD #1 GENERAL | 0.0597888892 | $697,352 | $697,352 | $41.69 | | |
| STATE | STATE SCHOOL PART 1 | 1.4940692947 | $697,352 | $697,352 | $1,041.89 | | |
| STATE2 | STATE SCHOOL PART 2 | 0.8050170049 | $697,352 | $697,352 | $561.38 | | |
| | Total Tax Rate: | 7.7095739644 | | | | | |
| | | | | Taxes w/Current Exemptions: | $5,376.27 | | |
| | | | | Taxes w/o Exemptions: | $5,376.27 | | |
Improvement / Building
| Improvement #1: | Residential Bldg | State Code: | 11 | 2383.0 sqft | Value: | $504,852 |
| Bathrooms (#): | 3 (FULL) | Bedrooms (#): | 5 | | Exterior Wall: | SI/ST | Fireplace: | DBL 2-GOOD | | Floor Construction: | FRAME | Foundation: | CONPR | | Heating/Cooling: | HPUMP | Inside Verify: | YES-FIX | | Roof Cover: | COMP |   |   |
|
| | Type | Description | Class CD | Sub Class CD | Year Built | Area |
| | MA | Main Area | 4 | 1S | 1977 | 2383.0 |
| | HDECK | House Deck | 3 | * | 1977 | 537.0 |
| | GBLTIN | Builtin Garage | 3 | 1S | 1977 | 768.0 |
| | OTHER | Other | * | * | 1977 | 0.0 |
| | ASPHD | Asphalt Drive | 2 | * | 1977 | 1520.0 |
| | CONCD | Concrete Drive | 3 | * | 1977 | 1000.0 |
| | BSMTF | House basement finished | 4 | * | 1977 | 903.0 |
Sketch
Property Image
Land
| 1 | 3331-1145L | | 0.0000 | 0.00 | 0.00 | 0.00 | 1.00 | $192,500 | $0 |
Roll Value History
| 2026 | N/A | N/A | N/A | N/A | N/A |
| 2025 | $504,852 | $192,500 | $0 | $697,352 | $697,352 |
| 2024 | $526,802 | $192,500 | $0 | $719,302 | $719,302 |
| 2023 | $504,852 | $170,000 | $0 | $674,852 | $674,852 |
| 2022 | $482,902 | $165,000 | $0 | $647,902 | $647,902 |
Deed and Sales History
| 1 | 11/01/2016 | TRED | Trustee Deed | JAY TORRES TRUST | KEVIN E MANGAN | | | | 126572 | |
| 2 | 06/18/2015 | SWD | Statutory Warranty Deed | JAY TORRES | JAY TORRES TRUST | | | | 123412 | |
| 3 | 11/05/2012 | SWD | Statutory Warranty Deed | NORWINE, GREGORY/JANICE | TORRES, JAY | | | $330,000.00 | 118334 | 0 |
| 4 | 03/17/2011 | QCD | Quit Claim Deed | NORWINE, JANICE M | NORWINE, JANICE M IRREVOCABLE | 0 | 0 | $0.00 | 115756 | 0 |
| 5 | 03/16/2011 | QCD | Quit Claim Deed | NORWINE, PHILIP C | NOTWINE, JANICE M | 0 | 0 | $0.00 | 115755 | 0 |
| 6 | 07/23/1996 | SWD | Statutory Warranty Deed | MOE, HAROLD E/MARIANNE | NORWINE, PHILIP C/JANICE M | 0 | 0 | $295,000.00 | 80059 | 0 |
Payout Agreement
| No payout information available.. |