Property
Account |
| Property ID: | 39971 | Abbreviated Legal Description: | PORT LUDLOW NO 1 AREA 2 LOT 22 |
| Parcel # / Geo ID: | 990400222 | Agent Code: | |
| Type: | Real | | |
| Tax Area: | 0213 - 1-49F1E1H2L1 | Land Use Code | 11 |
| Open Space: | N | DFL | N |
| Historic Property: | N | Remodel Property: | N |
| Multi-Family Redevelopment: | N | | |
| Township: | 28N | Section: | 9 |
| Range: | 1E |
Location |
| Address: | 25 CONDON LN PORT LUDLOW, WA 98365 | Mapsco: | 098/022 |
| Neighborhood: | PORT LUDLOW #1 AREA 2; P L #2 AREA 1; P L #5 (ALL) | Map ID: | |
| Neighborhood CD: | 3331 |
Owner |
| Name: | FRANZEL REVOCABLE LIVING TRUST | Owner ID: | 94906 |
| Mailing Address: | PHILLIP FRANZEL TRUSTEE SALLY E FRANZEL TRUSTEE 25 CONDON LN PORT LUDLOW, WA 98365 | % Ownership: | 100.0000000000% |
| | | Exemptions: | |
Pay Tax Due
Select the appropriate checkbox next to the year to be paid. Multiple years may be selected.
*Convenience Fee not included
Taxes and Assessment Details
Property Tax Information as of
03/11/2026
Click on "Statement Details" to expand or collapse a tax statement.
* Please enter a valid date ** Please enter a valid date *
Statement Details |
| 2026 | 29144 | STATE - STATE LEVY (SCHOOL) | $1331.41 | $1331.39 | $0.00 | $0.00 | $0.00 | $2662.80 |
| 2026 | 29144 | COUNTY - COUNTY LEVIES (CE, DD, VET, MH) | $532.30 | $532.28 | $0.00 | $0.00 | $0.00 | $1064.58 |
| 2026 | 29144 | CONSERVE - CONSERVATION FUTURES | $15.96 | $15.96 | $0.00 | $0.00 | $0.00 | $31.92 |
| 2026 | 29144 | COROADS - COUNTY ROADS (ROADS, DIV TO CE) | $429.41 | $429.40 | $0.00 | $0.00 | $0.00 | $858.81 |
| 2026 | 29144 | PORTPT - PORT DISTRICT | $214.99 | $214.97 | $0.00 | $0.00 | $0.00 | $429.96 |
| 2026 | 29144 | PUD1 - PUD #1 | $34.63 | $34.62 | $0.00 | $0.00 | $0.00 | $69.25 |
| 2026 | 29144 | LIB1 - LIBRARY DIST #1 | $166.14 | $166.13 | $0.00 | $0.00 | $0.00 | $332.27 |
| 2026 | 29144 | HD2 - HOSP DIST #2 | $31.05 | $31.04 | $0.00 | $0.00 | $0.00 | $62.09 |
| 2026 | 29144 | SD49 - SCHOOL DIST #49 | $732.88 | $732.88 | $0.00 | $0.00 | $0.00 | $1465.76 |
| 2026 | 29144 | FD1 - FIRE DISTRICT #1 | $704.88 | $704.87 | $0.00 | $0.00 | $0.00 | $1409.75 |
| 2026 | 29144 | EMS1 - FIRE DIST #1 EMS | $271.02 | $271.01 | $0.00 | $0.00 | $0.00 | $542.03 |
| 2026 | 29144 | JCCD - JC Conservation District | $2.55 | $2.55 | $0.00 | $0.00 | $0.00 | $5.10 |
| 2026 | 29144 | LUD - PT Ludlow Drainage District | $39.19 | $39.18 | $0.00 | $0.00 | $0.00 | $78.37 |
| 2026 | 29144 | NWA - Noxious Weed Assessment | $2.98 | $2.97 | $0.00 | $0.00 | $0.00 | $5.95 |
| 2026 | 29144 | Drain - DRAINAGE DISTRICT FEE | $0.78 | $0.00 | $0.00 | $0.00 | $0.00 | $0.78 |
| 2026 | 29144 | TOTAL: | $4510.17 | $4509.25 | $0.00 | $0.00 | $0.00 | $9019.42 |
|
| 2026 | 29144 | $4510.17 | $4509.25 | $0.00 | $0.00 | $0.00 | $9019.42 |
Statement Details |
| 2025 | 29216 | STATE - STATE LEVY (SCHOOL) | $1432.73 | $1432.72 | $0.00 | $0.00 | $2865.45 | $0.00 |
| 2025 | 29216 | COUNTY - COUNTY LEVIES (CE, DD, VET, MH) | $563.42 | $563.42 | $0.00 | $0.00 | $1126.84 | $0.00 |
| 2025 | 29216 | CONSERVE - CONSERVATION FUTURES | $16.90 | $16.89 | $0.00 | $0.00 | $33.79 | $0.00 |
| 2025 | 29216 | COROADS - COUNTY ROADS (ROADS, DIV TO CE) | $451.39 | $451.38 | $0.00 | $0.00 | $902.77 | $0.00 |
| 2025 | 29216 | PORTPT - PORT DISTRICT | $229.91 | $229.89 | $0.00 | $0.00 | $459.80 | $0.00 |
| 2025 | 29216 | PUD1 - PUD #1 | $36.87 | $36.86 | $0.00 | $0.00 | $73.73 | $0.00 |
| 2025 | 29216 | LIB1 - LIBRARY DIST #1 | $174.64 | $174.63 | $0.00 | $0.00 | $349.27 | $0.00 |
| 2025 | 29216 | HD2 - HOSP DIST #2 | $32.87 | $32.87 | $0.00 | $0.00 | $65.74 | $0.00 |
| 2025 | 29216 | SD49 - SCHOOL DIST #49 | $767.86 | $767.85 | $0.00 | $0.00 | $1535.71 | $0.00 |
| 2025 | 29216 | FD1 - FIRE DISTRICT #1 | $743.48 | $743.48 | $0.00 | $0.00 | $1486.96 | $0.00 |
| 2025 | 29216 | EMS1 - FIRE DIST #1 EMS | $285.97 | $285.96 | $0.00 | $0.00 | $571.93 | $0.00 |
| 2025 | 29216 | JCCD - JC Conservation District | $2.55 | $2.55 | $0.00 | $0.00 | $5.10 | $0.00 |
| 2025 | 29216 | LUD - PT Ludlow Drainage District | $31.42 | $31.42 | $0.00 | $0.00 | $62.84 | $0.00 |
| 2025 | 29216 | NWA - Noxious Weed Assessment | $2.15 | $2.15 | $0.00 | $0.00 | $4.30 | $0.00 |
| 2025 | 29216 | Drain - DRAINAGE DISTRICT FEE | $0.63 | $0.00 | $0.00 | $0.00 | $0.63 | $0.00 |
| 2025 | 29216 | TOTAL: | $4772.79 | $4772.07 | $0.00 | $0.00 | $9544.86 | $0.00 |
|
| 2025 | 29216 | $4772.79 | $4772.07 | $0.00 | $0.00 | $9544.86 | $0.00 |
Statement Details |
| 2024 | 29276 | STATE - STATE LEVY (SCHOOL) | $1301.05 | $1301.05 | $0.00 | $0.00 | $2602.10 | $0.00 |
| 2024 | 29276 | COUNTY - COUNTY LEVIES (CE, DD, VET, MH) | $556.75 | $556.72 | $0.00 | $0.00 | $1113.47 | $0.00 |
| 2024 | 29276 | CONSERVE - CONSERVATION FUTURES | $16.70 | $16.69 | $0.00 | $0.00 | $33.39 | $0.00 |
| 2024 | 29276 | COROADS - COUNTY ROADS (ROADS, DIV TO CE) | $447.99 | $447.97 | $0.00 | $0.00 | $895.96 | $0.00 |
| 2024 | 29276 | PORTPT - PORT DISTRICT | $229.95 | $229.95 | $0.00 | $0.00 | $459.90 | $0.00 |
| 2024 | 29276 | PUD1 - PUD #1 | $36.57 | $36.57 | $0.00 | $0.00 | $73.14 | $0.00 |
| 2024 | 29276 | LIB1 - LIBRARY DIST #1 | $173.32 | $173.32 | $0.00 | $0.00 | $346.64 | $0.00 |
| 2024 | 29276 | HD2 - HOSP DIST #2 | $32.49 | $32.48 | $0.00 | $0.00 | $64.97 | $0.00 |
| 2024 | 29276 | SD49 - SCHOOL DIST #49 | $580.99 | $580.97 | $0.00 | $0.00 | $1161.96 | $0.00 |
| 2024 | 29276 | FD1 - FIRE DISTRICT #1 | $736.13 | $736.13 | $0.00 | $0.00 | $1472.26 | $0.00 |
| 2024 | 29276 | EMS1 - FIRE DIST #1 EMS | $281.18 | $281.17 | $0.00 | $0.00 | $562.35 | $0.00 |
| 2024 | 29276 | JCCD - JC Conservation District | $2.55 | $2.55 | $0.00 | $0.00 | $5.10 | $0.00 |
| 2024 | 29276 | LUD - PT Ludlow Drainage District | $27.59 | $27.58 | $0.00 | $0.00 | $55.17 | $0.00 |
| 2024 | 29276 | NWA - Noxious Weed Assessment | $2.15 | $2.15 | $0.00 | $0.00 | $4.30 | $0.00 |
| 2024 | 29276 | Drain - DRAINAGE DISTRICT FEE | $0.55 | $0.00 | $0.00 | $0.00 | $0.55 | $0.00 |
| 2024 | 29276 | TOTAL: | $4425.96 | $4425.30 | $0.00 | $0.00 | $8851.26 | $0.00 |
|
| 2024 | 29276 | $4425.96 | $4425.30 | $0.00 | $0.00 | $8851.26 | $0.00 |
Statement Details |
| 2023 | 29318 | STATE - STATE LEVY (SCHOOL) | $1274.75 | $1274.73 | $0.00 | $0.00 | $2549.48 | $0.00 |
| 2023 | 29318 | COUNTY - COUNTY LEVIES (CE, DD, VET, MH) | $556.27 | $556.25 | $0.00 | $0.00 | $1112.52 | $0.00 |
| 2023 | 29318 | CONSERVE - CONSERVATION FUTURES | $16.68 | $16.68 | $0.00 | $0.00 | $33.36 | $0.00 |
| 2023 | 29318 | COROADS - COUNTY ROADS (ROADS, DIV TO CE) | $450.06 | $450.04 | $0.00 | $0.00 | $900.10 | $0.00 |
| 2023 | 29318 | PORTPT - PORT DISTRICT | $234.33 | $234.32 | $0.00 | $0.00 | $468.65 | $0.00 |
| 2023 | 29318 | PUD1 - PUD #1 | $36.87 | $36.87 | $0.00 | $0.00 | $73.74 | $0.00 |
| 2023 | 29318 | LIB1 - LIBRARY DIST #1 | $174.12 | $174.12 | $0.00 | $0.00 | $348.24 | $0.00 |
| 2023 | 29318 | HD2 - HOSP DIST #2 | $32.47 | $32.45 | $0.00 | $0.00 | $64.92 | $0.00 |
| 2023 | 29318 | SD49 - SCHOOL DIST #49 | $595.88 | $595.87 | $0.00 | $0.00 | $1191.75 | $0.00 |
| 2023 | 29318 | FD3 - FIRE DISTRICT #3 | $553.40 | $553.40 | $0.00 | $0.00 | $1106.80 | $0.00 |
| 2023 | 29318 | EMS3 - FIRE DIST #3 EMS | $197.84 | $197.84 | $0.00 | $0.00 | $395.68 | $0.00 |
| 2023 | 29318 | JCCD - JC Conservation District | $2.55 | $2.55 | $0.00 | $0.00 | $5.10 | $0.00 |
| 2023 | 29318 | LUD - PT Ludlow Drainage District | $27.76 | $27.75 | $0.00 | $0.00 | $55.51 | $0.00 |
| 2023 | 29318 | NWA - Noxious Weed Assessment | $2.15 | $2.15 | $0.00 | $0.00 | $4.30 | $0.00 |
| 2023 | 29318 | Drain - DRAINAGE DISTRICT FEE | $0.56 | $0.00 | $0.00 | $0.00 | $0.56 | $0.00 |
| 2023 | 29318 | TOTAL: | $4155.69 | $4155.02 | $0.00 | $0.00 | $8310.71 | $0.00 |
|
| 2023 | 29318 | $4155.69 | $4155.02 | $0.00 | $0.00 | $8310.71 | $0.00 |
Values
| (+) Improvement Homesite Value: | + | $0 | |
| (+) Improvement Non-Homesite Value: | + | $844,696 | |
| (+) Land Homesite Value: | + | $0 | |
| (+) Land Non-Homesite Value: | + | $313,500 | |
| (+) Curr Use (HS): | + | $0 | $0 |
| (+) Curr Use (NHS): | + | $0 | $0 |
| | | -------------------------- | |
| (=) Market Value: | = | $1,158,196 | |
| (–) Productivity Loss: | – | $0 | |
| | | -------------------------- | |
| (=) Subtotal: | = | $1,158,196 | |
| (+) Senior Appraised Value: | + | $0 | |
| (+) Non-Senior Appraised Value: | + | $1,158,196 | |
| | | -------------------------- | |
| (=) Total Appraised Value: | = | $1,158,196 | |
| (–) Senior Exemption Loss: | – | $0 | |
| (–) Exemption Loss: | – | $0 | |
| | | -------------------------- | |
| (=) Taxable Value: | = | $1,158,196 | |
Taxing Jurisdiction
| Owner: | FRANZEL REVOCABLE LIVING TRUST | | |
| % Ownership: | 100.0000000000% | | |
| Total Value: | $1,158,196 | | |
| Tax Area: | 0213 - 1-49F1E1H2L1 |
| CE | COUNTY CURRENT EXPENSE | 0.9034619479 | $1,158,196 | $1,158,196 | $1,046.39 | | |
| CNTYDD | DEVELOPMENTAL DISABILITIES | 0.0052121823 | $1,158,196 | $1,158,196 | $6.04 | | |
| CNTYVET | VETERANS RELIEF | 0.0052777810 | $1,158,196 | $1,158,196 | $6.11 | | |
| MENTAL | MENTAL HEALTH | 0.0052121823 | $1,158,196 | $1,158,196 | $6.04 | | |
| ROADS | COUNTY ROADS | 0.7415066410 | $1,158,196 | $1,158,196 | $858.81 | | |
| ROADSCU | COUNTY ROADS TO CUR EXP | 0.0000000000 | $1,158,196 | $1,158,196 | $0.00 | | |
| HOSP2CASH | HOSP DIST #2 GENERAL | 0.0536075306 | $1,158,196 | $1,158,196 | $62.09 | | |
| SCH49CP | SCHOOL DIST #49 CAP PROJ | 0.6279093905 | $1,158,196 | $1,158,196 | $727.24 | | |
| SCH49MO | SCHOOL DIST #49 EP & O | 0.6376483602 | $1,158,196 | $1,158,196 | $738.52 | | |
| CONSERVE | CONSERVATION FUTURES | 0.0275621078 | $1,158,196 | $1,158,196 | $31.92 | | |
| EMS1 | FIRE DIST #1 EMS | 0.4679948282 | $1,158,196 | $1,158,196 | $542.03 | | |
| FD1 | FIRE DIST #1 GENERAL | 1.2171942929 | $1,158,196 | $1,158,196 | $1,409.75 | | |
| LIB1 | LIBRARY DIST #1 GENERAL | 0.2868827388 | $1,158,196 | $1,158,196 | $332.27 | | |
| PORTPT | PORT OF PT GENERAL | 0.1134941229 | $1,158,196 | $1,158,196 | $131.45 | | |
| PORTPTIDD | PORT OF PT IDD 2019 | 0.2577346692 | $1,158,196 | $1,158,196 | $298.51 | | |
| PUD1 | PUD #1 GENERAL | 0.0597888892 | $1,158,196 | $1,158,196 | $69.25 | | |
| STATE | STATE SCHOOL PART 1 | 1.4940692947 | $1,158,196 | $1,158,196 | $1,730.43 | | |
| STATE2 | STATE SCHOOL PART 2 | 0.8050170049 | $1,158,196 | $1,158,196 | $932.37 | | |
| | Total Tax Rate: | 7.7095739644 | | | | | |
| | | | | Taxes w/Current Exemptions: | $8,929.22 | | |
| | | | | Taxes w/o Exemptions: | $8,929.22 | | |
Improvement / Building
| Improvement #1: | Residential Bldg | State Code: | 11 | 2147.0 sqft | Value: | $844,696 |
| Bathrooms (#): | 2 (FULL) | Bathrooms (#): | 1 (HALF) | | Bedrooms (#): | 2 | Exterior Wall: | SI/ST | | Floor Construction: | FRAME | Foundation: | CONPR | | Heating/Cooling: | HPUMP | Inside Verify: | NO | | Roof Cover: | COMP |   |   |
|
| | Type | Description | Class CD | Sub Class CD | Year Built | Area |
| | MA | Main Area | 5 | 1S | 2014 | 2147.0 |
| | BSMTF | House basement finished | 5 | 1S | 2014 | 972.0 |
| | BSMTU | House basement unfinished | 4 | 1S | 2014 | 463.0 |
| | GATT | House Attached Garage | 5 | 1S | 2014 | 891.0 |
| | HCPOR | House Concrete Porch | 4 | 1S | 2014 | 258.0 |
| | HWPOR | House Wood Porch | 4 | 1S | 2014 | 70.0 |
| | HDECK | House Deck | 4 | 1S | 2014 | 213.0 |
| | HDECK | House Deck | 4 | 1S | 2014 | 128.0 |
| | CONCD | Concrete Drive | 3 | * | 2014 | 700.0 |
Sketch
Property Image
Land
| 1 | 3331-1135L | | 0.0000 | 0.00 | 0.00 | 0.00 | 1.00 | $313,500 | $0 |
Roll Value History
| 2026 | N/A | N/A | N/A | N/A | N/A |
| 2025 | $844,696 | $313,500 | $0 | $1,158,196 | $1,158,196 |
| 2024 | $881,422 | $313,500 | $0 | $1,194,922 | $1,194,922 |
| 2023 | $844,696 | $280,000 | $0 | $1,124,696 | $1,124,696 |
| 2022 | $807,970 | $275,000 | $0 | $1,082,970 | $1,082,970 |
Deed and Sales History
| 1 | 01/19/2016 | QCD | Quit Claim Deed | SALLY E & PHILIP A FRANZEL | FRANZEL REVOCABLE LIVING TRUST | | | | 124786 | |
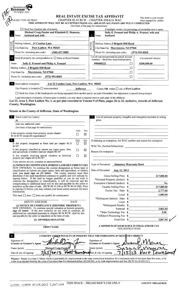
| 2 | 07/12/2013 | SWD | Statutory Warranty Deed | MICHAEL C FESSLER | SALLY E & PHILIP A FRANZEL | | | $217,000.00 | 119599 | |
| 3 | 09/28/2006 | QCD | Quit Claim Deed | FESSLER, MICHAEL CRAIG | FESSLER, MICHAEL/SHANNON, | 0 | 0 | $0.00 | 107756 | 0 |
| 4 | 09/22/2003 | QCD | Quit Claim Deed | MALINE, DAVID BRUCE/TRUST | FESSLER, MICHAEL CRAIG | 0 | 0 | $0.00 | 98333 | 0 |
| 5 | 06/27/1993 | SWD | Statutory Warranty Deed | DEPREE, P J/D J/P D/M T | DAVID BRUCE REVOC LIVING TRUST | 0 | 0 | $0.00 | 71702 | 0 |
Payout Agreement
| No payout information available.. |