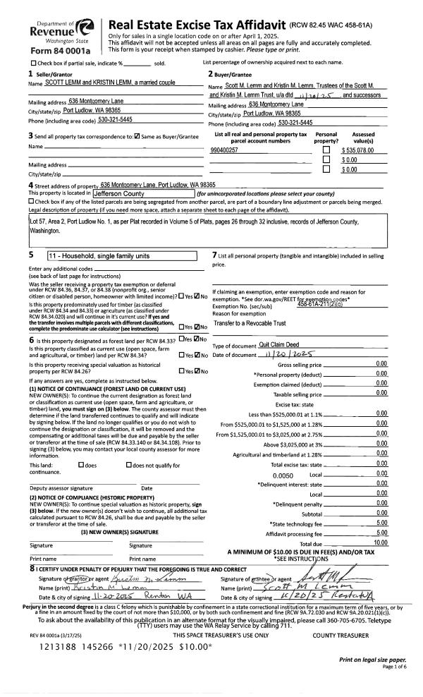
Property
Account |
| Property ID: | 40006 | Abbreviated Legal Description: | PORT LUDLOW NO 1 AREA 2 LOT 57 |
| Parcel # / Geo ID: | 990400257 | Agent Code: | |
| Type: | Real | | |
| Tax Area: | 0213 - 1-49F1E1H2L1 | Land Use Code | 11 |
| Open Space: | N | DFL | N |
| Historic Property: | N | Remodel Property: | N |
| Multi-Family Redevelopment: | N | | |
| Township: | 28N | Section: | 9 |
| Range: | 1E |
Location |
| Address: | 636 MONTGOMERY LN PORT LUDLOW, WA 98365 | Mapsco: | 099/028 |
| Neighborhood: | PORT LUDLOW #1 AREA 2; P L #2 AREA 1; P L #5 (ALL) | Map ID: | |
| Neighborhood CD: | 3331 |
Owner |
| Name: | SCOTT & KRISTIN LEMM TRUST | Owner ID: | 113673 |
| Mailing Address: | SCOTT M & KRISTIN M LEMM TTEES 636 MONTGOMERY LN PORT LUDLOW, WA 98365-9618 | % Ownership: | 100.0000000000% |
| | | Exemptions: | |
Pay Tax Due
Select the appropriate checkbox next to the year to be paid. Multiple years may be selected.
*Convenience Fee not included
Taxes and Assessment Details
Property Tax Information as of
03/12/2026
Click on "Statement Details" to expand or collapse a tax statement.
* Please enter a valid date ** Please enter a valid date *
Statement Details |
| 2026 | 29179 | STATE - STATE LEVY (SCHOOL) | $724.81 | $724.79 | $0.00 | $0.00 | $0.00 | $1449.60 |
| 2026 | 29179 | COUNTY - COUNTY LEVIES (CE, DD, VET, MH) | $289.79 | $289.76 | $0.00 | $0.00 | $0.00 | $579.55 |
| 2026 | 29179 | CONSERVE - CONSERVATION FUTURES | $8.69 | $8.69 | $0.00 | $0.00 | $0.00 | $17.38 |
| 2026 | 29179 | COROADS - COUNTY ROADS (ROADS, DIV TO CE) | $233.77 | $233.76 | $0.00 | $0.00 | $0.00 | $467.53 |
| 2026 | 29179 | PORTPT - PORT DISTRICT | $117.03 | $117.03 | $0.00 | $0.00 | $0.00 | $234.06 |
| 2026 | 29179 | PUD1 - PUD #1 | $18.85 | $18.85 | $0.00 | $0.00 | $0.00 | $37.70 |
| 2026 | 29179 | LIB1 - LIBRARY DIST #1 | $90.44 | $90.44 | $0.00 | $0.00 | $0.00 | $180.88 |
| 2026 | 29179 | HD2 - HOSP DIST #2 | $16.90 | $16.90 | $0.00 | $0.00 | $0.00 | $33.80 |
| 2026 | 29179 | SD49 - SCHOOL DIST #49 | $398.97 | $398.97 | $0.00 | $0.00 | $0.00 | $797.94 |
| 2026 | 29179 | FD1 - FIRE DISTRICT #1 | $383.73 | $383.72 | $0.00 | $0.00 | $0.00 | $767.45 |
| 2026 | 29179 | EMS1 - FIRE DIST #1 EMS | $147.54 | $147.54 | $0.00 | $0.00 | $0.00 | $295.08 |
| 2026 | 29179 | JCCD - JC Conservation District | $2.55 | $2.55 | $0.00 | $0.00 | $0.00 | $5.10 |
| 2026 | 29179 | LUD - PT Ludlow Drainage District | $38.40 | $38.39 | $0.00 | $0.00 | $0.00 | $76.79 |
| 2026 | 29179 | NWA - Noxious Weed Assessment | $2.98 | $2.97 | $0.00 | $0.00 | $0.00 | $5.95 |
| 2026 | 29179 | Drain - DRAINAGE DISTRICT FEE | $0.77 | $0.00 | $0.00 | $0.00 | $0.00 | $0.77 |
| 2026 | 29179 | TOTAL: | $2475.22 | $2474.36 | $0.00 | $0.00 | $0.00 | $4949.58 |
|
| 2026 | 29179 | $2475.22 | $2474.36 | $0.00 | $0.00 | $0.00 | $4949.58 |
Statement Details |
| 2025 | 29251 | STATE - STATE LEVY (SCHOOL) | $641.57 | $641.56 | $0.00 | $0.00 | $1283.13 | $0.00 |
| 2025 | 29251 | COUNTY - COUNTY LEVIES (CE, DD, VET, MH) | $252.30 | $252.27 | $0.00 | $0.00 | $504.57 | $0.00 |
| 2025 | 29251 | CONSERVE - CONSERVATION FUTURES | $7.57 | $7.56 | $0.00 | $0.00 | $15.13 | $0.00 |
| 2025 | 29251 | COROADS - COUNTY ROADS (ROADS, DIV TO CE) | $202.14 | $202.12 | $0.00 | $0.00 | $404.26 | $0.00 |
| 2025 | 29251 | PORTPT - PORT DISTRICT | $102.95 | $102.95 | $0.00 | $0.00 | $205.90 | $0.00 |
| 2025 | 29251 | PUD1 - PUD #1 | $16.51 | $16.51 | $0.00 | $0.00 | $33.02 | $0.00 |
| 2025 | 29251 | LIB1 - LIBRARY DIST #1 | $78.20 | $78.20 | $0.00 | $0.00 | $156.40 | $0.00 |
| 2025 | 29251 | HD2 - HOSP DIST #2 | $14.72 | $14.72 | $0.00 | $0.00 | $29.44 | $0.00 |
| 2025 | 29251 | SD49 - SCHOOL DIST #49 | $343.85 | $343.83 | $0.00 | $0.00 | $687.68 | $0.00 |
| 2025 | 29251 | FD1 - FIRE DISTRICT #1 | $332.93 | $332.92 | $0.00 | $0.00 | $665.85 | $0.00 |
| 2025 | 29251 | EMS1 - FIRE DIST #1 EMS | $128.05 | $128.05 | $0.00 | $0.00 | $256.10 | $0.00 |
| 2025 | 29251 | JCCD - JC Conservation District | $2.55 | $2.55 | $0.00 | $0.00 | $5.10 | $0.00 |
| 2025 | 29251 | LUD - PT Ludlow Drainage District | $30.79 | $30.78 | $0.00 | $0.00 | $61.57 | $0.00 |
| 2025 | 29251 | NWA - Noxious Weed Assessment | $2.15 | $2.15 | $0.00 | $0.00 | $4.30 | $0.00 |
| 2025 | 29251 | Drain - DRAINAGE DISTRICT FEE | $0.62 | $0.00 | $0.00 | $0.00 | $0.62 | $0.00 |
| 2025 | 29251 | TOTAL: | $2156.90 | $2156.17 | $0.00 | $0.00 | $4313.07 | $0.00 |
|
| 2025 | 29251 | $2156.90 | $2156.17 | $0.00 | $0.00 | $4313.07 | $0.00 |
Statement Details |
| 2024 | 29311 | STATE - STATE LEVY (SCHOOL) | $581.45 | $581.45 | $0.00 | $0.00 | $1162.90 | $0.00 |
| 2024 | 29311 | COUNTY - COUNTY LEVIES (CE, DD, VET, MH) | $248.82 | $248.79 | $0.00 | $0.00 | $497.61 | $0.00 |
| 2024 | 29311 | CONSERVE - CONSERVATION FUTURES | $7.46 | $7.46 | $0.00 | $0.00 | $14.92 | $0.00 |
| 2024 | 29311 | COROADS - COUNTY ROADS (ROADS, DIV TO CE) | $200.22 | $200.20 | $0.00 | $0.00 | $400.42 | $0.00 |
| 2024 | 29311 | PORTPT - PORT DISTRICT | $102.77 | $102.76 | $0.00 | $0.00 | $205.53 | $0.00 |
| 2024 | 29311 | PUD1 - PUD #1 | $16.35 | $16.34 | $0.00 | $0.00 | $32.69 | $0.00 |
| 2024 | 29311 | LIB1 - LIBRARY DIST #1 | $77.46 | $77.46 | $0.00 | $0.00 | $154.92 | $0.00 |
| 2024 | 29311 | HD2 - HOSP DIST #2 | $14.52 | $14.51 | $0.00 | $0.00 | $29.03 | $0.00 |
| 2024 | 29311 | SD49 - SCHOOL DIST #49 | $259.65 | $259.64 | $0.00 | $0.00 | $519.29 | $0.00 |
| 2024 | 29311 | FD1 - FIRE DISTRICT #1 | $328.99 | $328.98 | $0.00 | $0.00 | $657.97 | $0.00 |
| 2024 | 29311 | EMS1 - FIRE DIST #1 EMS | $125.66 | $125.66 | $0.00 | $0.00 | $251.32 | $0.00 |
| 2024 | 29311 | JCCD - JC Conservation District | $2.55 | $2.55 | $0.00 | $0.00 | $5.10 | $0.00 |
| 2024 | 29311 | LUD - PT Ludlow Drainage District | $27.03 | $27.03 | $0.00 | $0.00 | $54.06 | $0.00 |
| 2024 | 29311 | NWA - Noxious Weed Assessment | $2.15 | $2.15 | $0.00 | $0.00 | $4.30 | $0.00 |
| 2024 | 29311 | Drain - DRAINAGE DISTRICT FEE | $0.54 | $0.00 | $0.00 | $0.00 | $0.54 | $0.00 |
| 2024 | 29311 | TOTAL: | $1995.62 | $1994.98 | $0.00 | $0.00 | $3990.60 | $0.00 |
|
| 2024 | 29311 | $1995.62 | $1994.98 | $0.00 | $0.00 | $3990.60 | $0.00 |
Statement Details |
| 2023 | 29353 | STATE - STATE LEVY (SCHOOL) | $564.65 | $564.64 | $0.00 | $0.00 | $1129.29 | $0.00 |
| 2023 | 29353 | COUNTY - COUNTY LEVIES (CE, DD, VET, MH) | $246.40 | $246.39 | $0.00 | $0.00 | $492.79 | $0.00 |
| 2023 | 29353 | CONSERVE - CONSERVATION FUTURES | $7.39 | $7.39 | $0.00 | $0.00 | $14.78 | $0.00 |
| 2023 | 29353 | COROADS - COUNTY ROADS (ROADS, DIV TO CE) | $199.35 | $199.34 | $0.00 | $0.00 | $398.69 | $0.00 |
| 2023 | 29353 | PORTPT - PORT DISTRICT | $103.80 | $103.79 | $0.00 | $0.00 | $207.59 | $0.00 |
| 2023 | 29353 | PUD1 - PUD #1 | $16.34 | $16.33 | $0.00 | $0.00 | $32.67 | $0.00 |
| 2023 | 29353 | LIB1 - LIBRARY DIST #1 | $77.13 | $77.12 | $0.00 | $0.00 | $154.25 | $0.00 |
| 2023 | 29353 | HD2 - HOSP DIST #2 | $14.38 | $14.37 | $0.00 | $0.00 | $28.75 | $0.00 |
| 2023 | 29353 | SD49 - SCHOOL DIST #49 | $263.94 | $263.93 | $0.00 | $0.00 | $527.87 | $0.00 |
| 2023 | 29353 | FD3 - FIRE DISTRICT #3 | $245.13 | $245.12 | $0.00 | $0.00 | $490.25 | $0.00 |
| 2023 | 29353 | EMS3 - FIRE DIST #3 EMS | $87.64 | $87.63 | $0.00 | $0.00 | $175.27 | $0.00 |
| 2023 | 29353 | JCCD - JC Conservation District | $2.55 | $2.55 | $0.00 | $0.00 | $5.10 | $0.00 |
| 2023 | 29353 | LUD - PT Ludlow Drainage District | $27.21 | $27.20 | $0.00 | $0.00 | $54.41 | $0.00 |
| 2023 | 29353 | NWA - Noxious Weed Assessment | $2.15 | $2.15 | $0.00 | $0.00 | $4.30 | $0.00 |
| 2023 | 29353 | Drain - DRAINAGE DISTRICT FEE | $0.54 | $0.00 | $0.00 | $0.00 | $0.54 | $0.00 |
| 2023 | 29353 | TOTAL: | $1858.60 | $1857.95 | $0.00 | $0.00 | $3716.55 | $0.00 |
|
| 2023 | 29353 | $1858.60 | $1857.95 | $0.00 | $0.00 | $3716.55 | $0.00 |
Values
| (+) Improvement Homesite Value: | + | $0 | |
| (+) Improvement Non-Homesite Value: | + | $515,010 | |
| (+) Land Homesite Value: | + | $0 | |
| (+) Land Non-Homesite Value: | + | $115,500 | |
| (+) Curr Use (HS): | + | $0 | $0 |
| (+) Curr Use (NHS): | + | $0 | $0 |
| | | -------------------------- | |
| (=) Market Value: | = | $630,510 | |
| (–) Productivity Loss: | – | $0 | |
| | | -------------------------- | |
| (=) Subtotal: | = | $630,510 | |
| (+) Senior Appraised Value: | + | $0 | |
| (+) Non-Senior Appraised Value: | + | $630,510 | |
| | | -------------------------- | |
| (=) Total Appraised Value: | = | $630,510 | |
| (–) Senior Exemption Loss: | – | $0 | |
| (–) Exemption Loss: | – | $0 | |
| | | -------------------------- | |
| (=) Taxable Value: | = | $630,510 | |
Taxing Jurisdiction
| Owner: | SCOTT & KRISTIN LEMM TRUST | | |
| % Ownership: | 100.0000000000% | | |
| Total Value: | $630,510 | | |
| Tax Area: | 0213 - 1-49F1E1H2L1 |
| CE | COUNTY CURRENT EXPENSE | 0.9034619479 | $630,510 | $630,510 | $569.64 | | |
| CNTYDD | DEVELOPMENTAL DISABILITIES | 0.0052121823 | $630,510 | $630,510 | $3.29 | | |
| CNTYVET | VETERANS RELIEF | 0.0052777810 | $630,510 | $630,510 | $3.33 | | |
| MENTAL | MENTAL HEALTH | 0.0052121823 | $630,510 | $630,510 | $3.29 | | |
| ROADS | COUNTY ROADS | 0.7415066410 | $630,510 | $630,510 | $467.53 | | |
| ROADSCU | COUNTY ROADS TO CUR EXP | 0.0000000000 | $630,510 | $630,510 | $0.00 | | |
| HOSP2CASH | HOSP DIST #2 GENERAL | 0.0536075306 | $630,510 | $630,510 | $33.80 | | |
| SCH49CP | SCHOOL DIST #49 CAP PROJ | 0.6279093905 | $630,510 | $630,510 | $395.90 | | |
| SCH49MO | SCHOOL DIST #49 EP & O | 0.6376483602 | $630,510 | $630,510 | $402.04 | | |
| CONSERVE | CONSERVATION FUTURES | 0.0275621078 | $630,510 | $630,510 | $17.38 | | |
| EMS1 | FIRE DIST #1 EMS | 0.4679948282 | $630,510 | $630,510 | $295.08 | | |
| FD1 | FIRE DIST #1 GENERAL | 1.2171942929 | $630,510 | $630,510 | $767.45 | | |
| LIB1 | LIBRARY DIST #1 GENERAL | 0.2868827388 | $630,510 | $630,510 | $180.88 | | |
| PORTPT | PORT OF PT GENERAL | 0.1134941229 | $630,510 | $630,510 | $71.56 | | |
| PORTPTIDD | PORT OF PT IDD 2019 | 0.2577346692 | $630,510 | $630,510 | $162.50 | | |
| PUD1 | PUD #1 GENERAL | 0.0597888892 | $630,510 | $630,510 | $37.70 | | |
| STATE | STATE SCHOOL PART 1 | 1.4940692947 | $630,510 | $630,510 | $942.03 | | |
| STATE2 | STATE SCHOOL PART 2 | 0.8050170049 | $630,510 | $630,510 | $507.57 | | |
| | Total Tax Rate: | 7.7095739644 | | | | | |
| | | | | Taxes w/Current Exemptions: | $4,860.97 | | |
| | | | | Taxes w/o Exemptions: | $4,860.97 | | |
Improvement / Building
| Improvement #1: | Residential Bldg | State Code: | 11 | 2106.0 sqft | Value: | $515,010 |
| Bathrooms (#): | 2 (FULL) | Bathrooms (#): | 1 (HALF) | | Bedrooms (#): | 3 | Exterior Wall: | SI/ST | | Fireplace: | SIN 1-GOOD | Floor Construction: | FRAME | | Foundation: | CONPR | Heating/Cooling: | F/A | | Inside Verify: | YES-FIX | Roof Cover: | COMP |
|
| | Type | Description | Class CD | Sub Class CD | Year Built | Area |
| | MA | Main Area | 5 | 15SF | 1999 | 1497.0 |
| | MA2 | Second Floor Main Area | 5 | 15SF | 1999 | 609.0 |
| | HCPOR | House Concrete Porch | 5 | * | 1999 | 90.0 |
| | HDECK | House Deck | 5 | * | 1999 | 180.0 |
| | GBLTIN | Builtin Garage | 5 | 15SF | 1999 | 566.0 |
| | CONCD | Concrete Drive | 5 | * | 1999 | 1000.0 |
Sketch
Property Image
Land
| 1 | 3331-1173L | | 0.0000 | 0.00 | 0.00 | 0.00 | 1.00 | $115,500 | $0 |
Roll Value History
| 2026 | N/A | N/A | N/A | N/A | N/A |
| 2025 | $515,010 | $115,500 | $0 | $630,510 | $630,510 |
| 2024 | $430,578 | $104,500 | $0 | $535,078 | $535,078 |
| 2023 | $412,637 | $90,000 | $0 | $502,637 | $502,637 |
| 2022 | $394,697 | $85,000 | $0 | $479,697 | $479,697 |
Deed and Sales History
| 1 | 11/20/2025 | QCD | Quit Claim Deed | SCOTT & KRISTIN LEMM | SCOTT & KRISTIN LEMM TRUST | | | | 145266 | |
| 2 | 04/08/2025 | SWD | Statutory Warranty Deed | JUDITH HEFLIN | SCOTT & KRISTIN LEMM | | | $695,000.00 | 144103 | |
| 3 | 04/28/2016 | SPWD | Special Warranty Deed | FEDERAL NATIONAL MORTGAGE ASSOC | JUDITH HEFLIN | | | $269,900.00 | 125296 | |
| 4 | 04/22/2015 | TRED | Trustee Deed | JEANNE KERALLAH | FEDERAL NATIONAL MORTGAGE ASSOC | | | | 123058 | |
| 5 | 02/08/1999 | SWD | Statutory Warranty Deed | STAMEY, PAUL A C/DEBORAH | KERALLAH, JEANNE | 0 | 0 | $30,000.00 | 86425 | 0 |
Payout Agreement
| No payout information available.. |