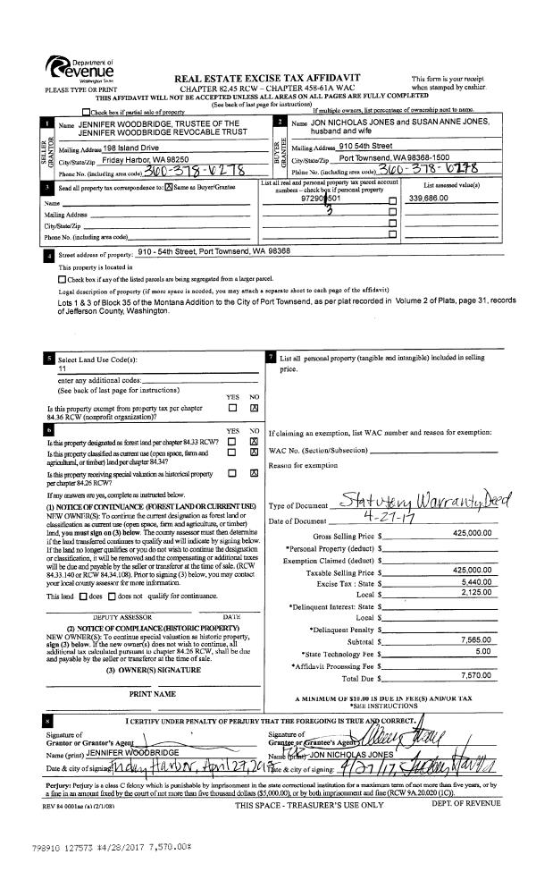
Property
Account |
| Property ID: | 40010 | Abbreviated Legal Description: | PORT LUDLOW NO 1 AREA 2 LOT 61 |
| Parcel # / Geo ID: | 990400261 | Agent Code: | |
| Type: | Real | | |
| Tax Area: | 0213 - 1-49F1E1H2L1 | Land Use Code | 11 |
| Open Space: | N | DFL | N |
| Historic Property: | N | Remodel Property: | N |
| Multi-Family Redevelopment: | N | | |
| Township: | 28N | Section: | 9 |
| Range: | 1E |
Location |
| Address: | 560 MONTGOMERY LN PORT LUDLOW, WA 98365 | Mapsco: | 099/032 |
| Neighborhood: | PORT LUDLOW #1 AREA 2; P L #2 AREA 1; P L #5 (ALL) | Map ID: | |
| Neighborhood CD: | 3331 |
Owner |
| Name: | MICHAEL J & ELIA A MCKEON | Owner ID: | 108144 |
| Mailing Address: | 560 MONTGOMERY LN PORT LUDLOW, WA 98365-9650 | % Ownership: | 100.0000000000% |
| | | Exemptions: | |
Pay Tax Due
Select the appropriate checkbox next to the year to be paid. Multiple years may be selected.
*Convenience Fee not included
Taxes and Assessment Details
Property Tax Information as of
03/11/2026
Click on "Statement Details" to expand or collapse a tax statement.
* Please enter a valid date ** Please enter a valid date *
Statement Details |
| 2026 | 29183 | STATE - STATE LEVY (SCHOOL) | $564.73 | $564.73 | $0.00 | $0.00 | $0.00 | $1129.46 |
| 2026 | 29183 | COUNTY - COUNTY LEVIES (CE, DD, VET, MH) | $225.78 | $225.77 | $0.00 | $0.00 | $0.00 | $451.55 |
| 2026 | 29183 | CONSERVE - CONSERVATION FUTURES | $6.77 | $6.77 | $0.00 | $0.00 | $0.00 | $13.54 |
| 2026 | 29183 | COROADS - COUNTY ROADS (ROADS, DIV TO CE) | $182.14 | $182.14 | $0.00 | $0.00 | $0.00 | $364.28 |
| 2026 | 29183 | PORTPT - PORT DISTRICT | $91.19 | $91.19 | $0.00 | $0.00 | $0.00 | $182.38 |
| 2026 | 29183 | PUD1 - PUD #1 | $14.69 | $14.68 | $0.00 | $0.00 | $0.00 | $29.37 |
| 2026 | 29183 | LIB1 - LIBRARY DIST #1 | $70.47 | $70.47 | $0.00 | $0.00 | $0.00 | $140.94 |
| 2026 | 29183 | HD2 - HOSP DIST #2 | $13.17 | $13.17 | $0.00 | $0.00 | $0.00 | $26.34 |
| 2026 | 29183 | SD49 - SCHOOL DIST #49 | $310.87 | $310.85 | $0.00 | $0.00 | $0.00 | $621.72 |
| 2026 | 29183 | FD1 - FIRE DISTRICT #1 | $298.98 | $298.98 | $0.00 | $0.00 | $0.00 | $597.96 |
| 2026 | 29183 | EMS1 - FIRE DIST #1 EMS | $114.96 | $114.95 | $0.00 | $0.00 | $0.00 | $229.91 |
| 2026 | 29183 | JCCD - JC Conservation District | $2.55 | $2.55 | $0.00 | $0.00 | $0.00 | $5.10 |
| 2026 | 29183 | LUD - PT Ludlow Drainage District | $42.74 | $42.74 | $0.00 | $0.00 | $0.00 | $85.48 |
| 2026 | 29183 | NWA - Noxious Weed Assessment | $2.98 | $2.97 | $0.00 | $0.00 | $0.00 | $5.95 |
| 2026 | 29183 | Drain - DRAINAGE DISTRICT FEE | $0.85 | $0.00 | $0.00 | $0.00 | $0.00 | $0.85 |
| 2026 | 29183 | TOTAL: | $1942.87 | $1941.96 | $0.00 | $0.00 | $0.00 | $3884.83 |
|
| 2026 | 29183 | $1942.87 | $1941.96 | $0.00 | $0.00 | $0.00 | $3884.83 |
Statement Details |
| 2025 | 29255 | STATE - STATE LEVY (SCHOOL) | $608.91 | $608.90 | $0.00 | $0.00 | $1217.81 | $0.00 |
| 2025 | 29255 | COUNTY - COUNTY LEVIES (CE, DD, VET, MH) | $239.46 | $239.44 | $0.00 | $0.00 | $478.90 | $0.00 |
| 2025 | 29255 | CONSERVE - CONSERVATION FUTURES | $7.18 | $7.18 | $0.00 | $0.00 | $14.36 | $0.00 |
| 2025 | 29255 | COROADS - COUNTY ROADS (ROADS, DIV TO CE) | $191.84 | $191.83 | $0.00 | $0.00 | $383.67 | $0.00 |
| 2025 | 29255 | PORTPT - PORT DISTRICT | $97.72 | $97.70 | $0.00 | $0.00 | $195.42 | $0.00 |
| 2025 | 29255 | PUD1 - PUD #1 | $15.67 | $15.67 | $0.00 | $0.00 | $31.34 | $0.00 |
| 2025 | 29255 | LIB1 - LIBRARY DIST #1 | $74.22 | $74.22 | $0.00 | $0.00 | $148.44 | $0.00 |
| 2025 | 29255 | HD2 - HOSP DIST #2 | $13.97 | $13.97 | $0.00 | $0.00 | $27.94 | $0.00 |
| 2025 | 29255 | SD49 - SCHOOL DIST #49 | $326.35 | $326.33 | $0.00 | $0.00 | $652.68 | $0.00 |
| 2025 | 29255 | FD1 - FIRE DISTRICT #1 | $315.98 | $315.98 | $0.00 | $0.00 | $631.96 | $0.00 |
| 2025 | 29255 | EMS1 - FIRE DIST #1 EMS | $121.54 | $121.53 | $0.00 | $0.00 | $243.07 | $0.00 |
| 2025 | 29255 | JCCD - JC Conservation District | $2.55 | $2.55 | $0.00 | $0.00 | $5.10 | $0.00 |
| 2025 | 29255 | LUD - PT Ludlow Drainage District | $34.27 | $34.26 | $0.00 | $0.00 | $68.53 | $0.00 |
| 2025 | 29255 | NWA - Noxious Weed Assessment | $2.15 | $2.15 | $0.00 | $0.00 | $4.30 | $0.00 |
| 2025 | 29255 | Drain - DRAINAGE DISTRICT FEE | $0.69 | $0.00 | $0.00 | $0.00 | $0.69 | $0.00 |
| 2025 | 29255 | TOTAL: | $2052.50 | $2051.71 | $0.00 | $0.00 | $4104.21 | $0.00 |
|
| 2025 | 29255 | $2052.50 | $2051.71 | $0.00 | $0.00 | $4104.21 | $0.00 |
Statement Details |
| 2024 | 29315 | STATE - STATE LEVY (SCHOOL) | $550.95 | $550.93 | $0.00 | $0.00 | $1101.88 | $0.00 |
| 2024 | 29315 | COUNTY - COUNTY LEVIES (CE, DD, VET, MH) | $235.76 | $235.75 | $0.00 | $0.00 | $471.51 | $0.00 |
| 2024 | 29315 | CONSERVE - CONSERVATION FUTURES | $7.07 | $7.07 | $0.00 | $0.00 | $14.14 | $0.00 |
| 2024 | 29315 | COROADS - COUNTY ROADS (ROADS, DIV TO CE) | $189.70 | $189.70 | $0.00 | $0.00 | $379.40 | $0.00 |
| 2024 | 29315 | PORTPT - PORT DISTRICT | $97.38 | $97.37 | $0.00 | $0.00 | $194.75 | $0.00 |
| 2024 | 29315 | PUD1 - PUD #1 | $15.49 | $15.48 | $0.00 | $0.00 | $30.97 | $0.00 |
| 2024 | 29315 | LIB1 - LIBRARY DIST #1 | $73.40 | $73.39 | $0.00 | $0.00 | $146.79 | $0.00 |
| 2024 | 29315 | HD2 - HOSP DIST #2 | $13.76 | $13.75 | $0.00 | $0.00 | $27.51 | $0.00 |
| 2024 | 29315 | SD49 - SCHOOL DIST #49 | $246.03 | $246.02 | $0.00 | $0.00 | $492.05 | $0.00 |
| 2024 | 29315 | FD1 - FIRE DISTRICT #1 | $311.72 | $311.72 | $0.00 | $0.00 | $623.44 | $0.00 |
| 2024 | 29315 | EMS1 - FIRE DIST #1 EMS | $119.07 | $119.06 | $0.00 | $0.00 | $238.13 | $0.00 |
| 2024 | 29315 | JCCD - JC Conservation District | $2.55 | $2.55 | $0.00 | $0.00 | $5.10 | $0.00 |
| 2024 | 29315 | LUD - PT Ludlow Drainage District | $30.08 | $30.07 | $0.00 | $0.00 | $60.15 | $0.00 |
| 2024 | 29315 | NWA - Noxious Weed Assessment | $2.15 | $2.15 | $0.00 | $0.00 | $4.30 | $0.00 |
| 2024 | 29315 | Drain - DRAINAGE DISTRICT FEE | $0.60 | $0.00 | $0.00 | $0.00 | $0.60 | $0.00 |
| 2024 | 29315 | TOTAL: | $1895.71 | $1895.01 | $0.00 | $0.00 | $3790.72 | $0.00 |
|
| 2024 | 29315 | $1895.71 | $1895.01 | $0.00 | $0.00 | $3790.72 | $0.00 |
Statement Details |
| 2023 | 29357 | STATE - STATE LEVY (SCHOOL) | $443.76 | $443.75 | $0.00 | $0.00 | $887.51 | $0.00 |
| 2023 | 29357 | COUNTY - COUNTY LEVIES (CE, DD, VET, MH) | $193.65 | $193.64 | $0.00 | $0.00 | $387.29 | $0.00 |
| 2023 | 29357 | CONSERVE - CONSERVATION FUTURES | $5.81 | $5.80 | $0.00 | $0.00 | $11.61 | $0.00 |
| 2023 | 29357 | COROADS - COUNTY ROADS (ROADS, DIV TO CE) | $156.68 | $156.66 | $0.00 | $0.00 | $313.34 | $0.00 |
| 2023 | 29357 | PORTPT - PORT DISTRICT | $81.57 | $81.57 | $0.00 | $0.00 | $163.14 | $0.00 |
| 2023 | 29357 | PUD1 - PUD #1 | $12.84 | $12.83 | $0.00 | $0.00 | $25.67 | $0.00 |
| 2023 | 29357 | LIB1 - LIBRARY DIST #1 | $60.62 | $60.61 | $0.00 | $0.00 | $121.23 | $0.00 |
| 2023 | 29357 | HD2 - HOSP DIST #2 | $11.30 | $11.30 | $0.00 | $0.00 | $22.60 | $0.00 |
| 2023 | 29357 | SD49 - SCHOOL DIST #49 | $207.43 | $207.43 | $0.00 | $0.00 | $414.86 | $0.00 |
| 2023 | 29357 | FD3 - FIRE DISTRICT #3 | $192.65 | $192.64 | $0.00 | $0.00 | $385.29 | $0.00 |
| 2023 | 29357 | EMS3 - FIRE DIST #3 EMS | $68.87 | $68.87 | $0.00 | $0.00 | $137.74 | $0.00 |
| 2023 | 29357 | JCCD - JC Conservation District | $2.55 | $2.55 | $0.00 | $0.00 | $5.10 | $0.00 |
| 2023 | 29357 | LUD - PT Ludlow Drainage District | $30.25 | $30.24 | $0.00 | $0.00 | $60.49 | $0.00 |
| 2023 | 29357 | NWA - Noxious Weed Assessment | $2.15 | $2.15 | $0.00 | $0.00 | $4.30 | $0.00 |
| 2023 | 29357 | Drain - DRAINAGE DISTRICT FEE | $0.60 | $0.00 | $0.00 | $0.00 | $0.60 | $0.00 |
| 2023 | 29357 | TOTAL: | $1470.73 | $1470.04 | $0.00 | $0.00 | $2940.77 | $0.00 |
|
| 2023 | 29357 | $1470.73 | $1470.04 | $0.00 | $0.00 | $2940.77 | $0.00 |
Values
| (+) Improvement Homesite Value: | + | $0 | |
| (+) Improvement Non-Homesite Value: | + | $381,264 | |
| (+) Land Homesite Value: | + | $0 | |
| (+) Land Non-Homesite Value: | + | $110,000 | |
| (+) Curr Use (HS): | + | $0 | $0 |
| (+) Curr Use (NHS): | + | $0 | $0 |
| | | -------------------------- | |
| (=) Market Value: | = | $491,264 | |
| (–) Productivity Loss: | – | $0 | |
| | | -------------------------- | |
| (=) Subtotal: | = | $491,264 | |
| (+) Senior Appraised Value: | + | $0 | |
| (+) Non-Senior Appraised Value: | + | $491,264 | |
| | | -------------------------- | |
| (=) Total Appraised Value: | = | $491,264 | |
| (–) Senior Exemption Loss: | – | $0 | |
| (–) Exemption Loss: | – | $0 | |
| | | -------------------------- | |
| (=) Taxable Value: | = | $491,264 | |
Taxing Jurisdiction
| Owner: | MICHAEL J & ELIA A MCKEON | | |
| % Ownership: | 100.0000000000% | | |
| Total Value: | $491,264 | | |
| Tax Area: | 0213 - 1-49F1E1H2L1 |
| CE | COUNTY CURRENT EXPENSE | 0.9034619479 | $491,264 | $491,264 | $443.84 | | |
| CNTYDD | DEVELOPMENTAL DISABILITIES | 0.0052121823 | $491,264 | $491,264 | $2.56 | | |
| CNTYVET | VETERANS RELIEF | 0.0052777810 | $491,264 | $491,264 | $2.59 | | |
| MENTAL | MENTAL HEALTH | 0.0052121823 | $491,264 | $491,264 | $2.56 | | |
| ROADS | COUNTY ROADS | 0.7415066410 | $491,264 | $491,264 | $364.28 | | |
| ROADSCU | COUNTY ROADS TO CUR EXP | 0.0000000000 | $491,264 | $491,264 | $0.00 | | |
| HOSP2CASH | HOSP DIST #2 GENERAL | 0.0536075306 | $491,264 | $491,264 | $26.34 | | |
| SCH49CP | SCHOOL DIST #49 CAP PROJ | 0.6279093905 | $491,264 | $491,264 | $308.47 | | |
| SCH49MO | SCHOOL DIST #49 EP & O | 0.6376483602 | $491,264 | $491,264 | $313.25 | | |
| CONSERVE | CONSERVATION FUTURES | 0.0275621078 | $491,264 | $491,264 | $13.54 | | |
| EMS1 | FIRE DIST #1 EMS | 0.4679948282 | $491,264 | $491,264 | $229.91 | | |
| FD1 | FIRE DIST #1 GENERAL | 1.2171942929 | $491,264 | $491,264 | $597.96 | | |
| LIB1 | LIBRARY DIST #1 GENERAL | 0.2868827388 | $491,264 | $491,264 | $140.94 | | |
| PORTPT | PORT OF PT GENERAL | 0.1134941229 | $491,264 | $491,264 | $55.76 | | |
| PORTPTIDD | PORT OF PT IDD 2019 | 0.2577346692 | $491,264 | $491,264 | $126.62 | | |
| PUD1 | PUD #1 GENERAL | 0.0597888892 | $491,264 | $491,264 | $29.37 | | |
| STATE | STATE SCHOOL PART 1 | 1.4940692947 | $491,264 | $491,264 | $733.98 | | |
| STATE2 | STATE SCHOOL PART 2 | 0.8050170049 | $491,264 | $491,264 | $395.48 | | |
| | Total Tax Rate: | 7.7095739644 | | | | | |
| | | | | Taxes w/Current Exemptions: | $3,787.45 | | |
| | | | | Taxes w/o Exemptions: | $3,787.45 | | |
Improvement / Building
| Improvement #1: | Residential Bldg | State Code: | 11 | 1498.0 sqft | Value: | $381,264 |
| Bathrooms (#): | 2 (FULL) | Bedrooms (#): | 3 | | Exterior Wall: | SI/ST | Foundation: | CONPR | | Heating/Cooling: | HPUMP | Roof Cover: | COMP |
|
| | Type | Description | Class CD | Sub Class CD | Year Built | Area |
| | MA | Main Area | 4 | 1S | 2022 | 1498.0 |
| | GATT | House Attached Garage | 4 | 1S | 2022 | 450.0 |
| | HCPOR | House Concrete Porch | 4 | 1S | 2022 | 255.0 |
Sketch
Property Image
Land
| 1 | 3331-1175L | | 0.0000 | 0.00 | 0.00 | 0.00 | 1.00 | $110,000 | $0 |
Roll Value History
| 2026 | N/A | N/A | N/A | N/A | N/A |
| 2025 | $381,264 | $110,000 | $0 | $491,264 | $491,264 |
| 2024 | $397,841 | $110,000 | $0 | $507,841 | $507,841 |
| 2023 | $381,264 | $95,000 | $0 | $476,264 | $476,264 |
| 2022 | $286,995 | $90,000 | $0 | $376,995 | $376,995 |
Deed and Sales History
| 1 | 12/09/2022 | SWD | Statutory Warranty Deed | FERGUSON & COLE INC | MICHAEL J & ELIA A MCKEON | | | $529,000.00 | 140307 | |
| 2 | 07/30/2021 | SWD | Statutory Warranty Deed | ALEXANDER M & LINDSEY R BURR | FERGUSON & COLE INC | | | $70,000.00 | 137315 | |
| 3 | 07/02/2020 | SWD | Statutory Warranty Deed | KEVIN W & KATIE J THOMPSON | ALEXANDER M & LINDSEY R BURR | | | $395,000.00 | 134624 | |
|   | |
| 4 | 03/21/2017 | SWD | Statutory Warranty Deed | JOAN BUHR | KEVIN W & KATIE J THOMPSON | | | $294,000.00 | 127372 | |
|   | |
Payout Agreement
| No payout information available.. |