Property
Account |
| Property ID: | 40011 | Abbreviated Legal Description: | PORT LUDLOW NO 1 AREA 2 LOT 62 |
| Parcel # / Geo ID: | 990400262 | Agent Code: | |
| Type: | Real | | |
| Tax Area: | 0213 - 1-49F1E1H2L1 | Land Use Code | 11 |
| Open Space: | N | DFL | N |
| Historic Property: | N | Remodel Property: | N |
| Multi-Family Redevelopment: | N | | |
| Township: | 28N | Section: | 9 |
| Range: | 1E |
Location |
| Address: | 540 MONTGOMERY LN PORT LUDLOW, WA 98365 | Mapsco: | 099/033 |
| Neighborhood: | PORT LUDLOW #1 AREA 2; P L #2 AREA 1; P L #5 (ALL) | Map ID: | |
| Neighborhood CD: | 3331 |
Owner |
| Name: | KARIN ERTL | Owner ID: | 105082 |
| Mailing Address: | 540 MONTGOMERY LN PORT LUDLOW, WA 98365-9650 | % Ownership: | 100.0000000000% |
| | | Exemptions: | |
Pay Tax Due
Select the appropriate checkbox next to the year to be paid. Multiple years may be selected.
*Convenience Fee not included
Taxes and Assessment Details
Property Tax Information as of
03/09/2026
Click on "Statement Details" to expand or collapse a tax statement.
* Please enter a valid date ** Please enter a valid date *
Statement Details |
| 2026 | 29184 | STATE - STATE LEVY (SCHOOL) | $554.97 | $554.97 | $0.00 | $0.00 | $0.00 | $1109.94 |
| 2026 | 29184 | COUNTY - COUNTY LEVIES (CE, DD, VET, MH) | $221.89 | $221.87 | $0.00 | $0.00 | $0.00 | $443.76 |
| 2026 | 29184 | CONSERVE - CONSERVATION FUTURES | $6.66 | $6.65 | $0.00 | $0.00 | $0.00 | $13.31 |
| 2026 | 29184 | COROADS - COUNTY ROADS (ROADS, DIV TO CE) | $178.99 | $178.99 | $0.00 | $0.00 | $0.00 | $357.98 |
| 2026 | 29184 | PORTPT - PORT DISTRICT | $89.62 | $89.60 | $0.00 | $0.00 | $0.00 | $179.22 |
| 2026 | 29184 | PUD1 - PUD #1 | $14.43 | $14.43 | $0.00 | $0.00 | $0.00 | $28.86 |
| 2026 | 29184 | LIB1 - LIBRARY DIST #1 | $69.25 | $69.25 | $0.00 | $0.00 | $0.00 | $138.50 |
| 2026 | 29184 | HD2 - HOSP DIST #2 | $12.94 | $12.94 | $0.00 | $0.00 | $0.00 | $25.88 |
| 2026 | 29184 | SD49 - SCHOOL DIST #49 | $305.49 | $305.49 | $0.00 | $0.00 | $0.00 | $610.98 |
| 2026 | 29184 | FD1 - FIRE DISTRICT #1 | $293.82 | $293.81 | $0.00 | $0.00 | $0.00 | $587.63 |
| 2026 | 29184 | EMS1 - FIRE DIST #1 EMS | $112.97 | $112.97 | $0.00 | $0.00 | $0.00 | $225.94 |
| 2026 | 29184 | JCCD - JC Conservation District | $2.55 | $2.55 | $0.00 | $0.00 | $0.00 | $5.10 |
| 2026 | 29184 | LUD - PT Ludlow Drainage District | $43.93 | $43.92 | $0.00 | $0.00 | $0.00 | $87.85 |
| 2026 | 29184 | NWA - Noxious Weed Assessment | $2.98 | $2.97 | $0.00 | $0.00 | $0.00 | $5.95 |
| 2026 | 29184 | Drain - DRAINAGE DISTRICT FEE | $0.88 | $0.00 | $0.00 | $0.00 | $0.00 | $0.88 |
| 2026 | 29184 | TOTAL: | $1911.37 | $1910.41 | $0.00 | $0.00 | $0.00 | $3821.78 |
|
| 2026 | 29184 | $1911.37 | $1910.41 | $0.00 | $0.00 | $0.00 | $3821.78 |
Statement Details |
| 2025 | 29256 | STATE - STATE LEVY (SCHOOL) | $598.58 | $598.56 | $0.00 | $0.00 | $1197.14 | $0.00 |
| 2025 | 29256 | COUNTY - COUNTY LEVIES (CE, DD, VET, MH) | $235.38 | $235.38 | $0.00 | $0.00 | $470.76 | $0.00 |
| 2025 | 29256 | CONSERVE - CONSERVATION FUTURES | $7.06 | $7.06 | $0.00 | $0.00 | $14.12 | $0.00 |
| 2025 | 29256 | COROADS - COUNTY ROADS (ROADS, DIV TO CE) | $188.59 | $188.57 | $0.00 | $0.00 | $377.16 | $0.00 |
| 2025 | 29256 | PORTPT - PORT DISTRICT | $96.06 | $96.04 | $0.00 | $0.00 | $192.10 | $0.00 |
| 2025 | 29256 | PUD1 - PUD #1 | $15.40 | $15.40 | $0.00 | $0.00 | $30.80 | $0.00 |
| 2025 | 29256 | LIB1 - LIBRARY DIST #1 | $72.96 | $72.96 | $0.00 | $0.00 | $145.92 | $0.00 |
| 2025 | 29256 | HD2 - HOSP DIST #2 | $13.74 | $13.73 | $0.00 | $0.00 | $27.47 | $0.00 |
| 2025 | 29256 | SD49 - SCHOOL DIST #49 | $320.81 | $320.79 | $0.00 | $0.00 | $641.60 | $0.00 |
| 2025 | 29256 | FD1 - FIRE DISTRICT #1 | $310.62 | $310.61 | $0.00 | $0.00 | $621.23 | $0.00 |
| 2025 | 29256 | EMS1 - FIRE DIST #1 EMS | $119.47 | $119.47 | $0.00 | $0.00 | $238.94 | $0.00 |
| 2025 | 29256 | JCCD - JC Conservation District | $2.55 | $2.55 | $0.00 | $0.00 | $5.10 | $0.00 |
| 2025 | 29256 | LUD - PT Ludlow Drainage District | $35.21 | $35.21 | $0.00 | $0.00 | $70.42 | $0.00 |
| 2025 | 29256 | NWA - Noxious Weed Assessment | $2.15 | $2.15 | $0.00 | $0.00 | $4.30 | $0.00 |
| 2025 | 29256 | Drain - DRAINAGE DISTRICT FEE | $0.70 | $0.00 | $0.00 | $0.00 | $0.70 | $0.00 |
| 2025 | 29256 | TOTAL: | $2019.28 | $2018.48 | $0.00 | $0.00 | $4037.76 | $0.00 |
|
| 2025 | 29256 | $2019.28 | $2018.48 | $0.00 | $0.00 | $4037.76 | $0.00 |
Statement Details |
| 2024 | 29316 | STATE - STATE LEVY (SCHOOL) | $541.70 | $541.70 | $0.00 | $0.00 | $1083.40 | $0.00 |
| 2024 | 29316 | COUNTY - COUNTY LEVIES (CE, DD, VET, MH) | $231.81 | $231.79 | $0.00 | $0.00 | $463.60 | $0.00 |
| 2024 | 29316 | CONSERVE - CONSERVATION FUTURES | $6.95 | $6.95 | $0.00 | $0.00 | $13.90 | $0.00 |
| 2024 | 29316 | COROADS - COUNTY ROADS (ROADS, DIV TO CE) | $186.53 | $186.51 | $0.00 | $0.00 | $373.04 | $0.00 |
| 2024 | 29316 | PORTPT - PORT DISTRICT | $95.74 | $95.74 | $0.00 | $0.00 | $191.48 | $0.00 |
| 2024 | 29316 | PUD1 - PUD #1 | $15.23 | $15.22 | $0.00 | $0.00 | $30.45 | $0.00 |
| 2024 | 29316 | LIB1 - LIBRARY DIST #1 | $72.17 | $72.16 | $0.00 | $0.00 | $144.33 | $0.00 |
| 2024 | 29316 | HD2 - HOSP DIST #2 | $13.53 | $13.52 | $0.00 | $0.00 | $27.05 | $0.00 |
| 2024 | 29316 | SD49 - SCHOOL DIST #49 | $241.90 | $241.88 | $0.00 | $0.00 | $483.78 | $0.00 |
| 2024 | 29316 | FD1 - FIRE DISTRICT #1 | $306.49 | $306.49 | $0.00 | $0.00 | $612.98 | $0.00 |
| 2024 | 29316 | EMS1 - FIRE DIST #1 EMS | $117.07 | $117.07 | $0.00 | $0.00 | $234.14 | $0.00 |
| 2024 | 29316 | JCCD - JC Conservation District | $2.55 | $2.55 | $0.00 | $0.00 | $5.10 | $0.00 |
| 2024 | 29316 | LUD - PT Ludlow Drainage District | $30.91 | $30.90 | $0.00 | $0.00 | $61.81 | $0.00 |
| 2024 | 29316 | NWA - Noxious Weed Assessment | $2.15 | $2.15 | $0.00 | $0.00 | $4.30 | $0.00 |
| 2024 | 29316 | Drain - DRAINAGE DISTRICT FEE | $0.62 | $0.00 | $0.00 | $0.00 | $0.62 | $0.00 |
| 2024 | 29316 | TOTAL: | $1865.35 | $1864.63 | $0.00 | $0.00 | $3729.98 | $0.00 |
|
| 2024 | 29316 | $1865.35 | $1864.63 | $0.00 | $0.00 | $3729.98 | $0.00 |
Statement Details |
| 2023 | 29358 | STATE - STATE LEVY (SCHOOL) | $525.96 | $525.94 | $0.00 | $0.00 | $1051.90 | $0.00 |
| 2023 | 29358 | COUNTY - COUNTY LEVIES (CE, DD, VET, MH) | $229.53 | $229.50 | $0.00 | $0.00 | $459.03 | $0.00 |
| 2023 | 29358 | CONSERVE - CONSERVATION FUTURES | $6.88 | $6.88 | $0.00 | $0.00 | $13.76 | $0.00 |
| 2023 | 29358 | COROADS - COUNTY ROADS (ROADS, DIV TO CE) | $185.69 | $185.69 | $0.00 | $0.00 | $371.38 | $0.00 |
| 2023 | 29358 | PORTPT - PORT DISTRICT | $96.69 | $96.68 | $0.00 | $0.00 | $193.37 | $0.00 |
| 2023 | 29358 | PUD1 - PUD #1 | $15.22 | $15.21 | $0.00 | $0.00 | $30.43 | $0.00 |
| 2023 | 29358 | LIB1 - LIBRARY DIST #1 | $71.84 | $71.84 | $0.00 | $0.00 | $143.68 | $0.00 |
| 2023 | 29358 | HD2 - HOSP DIST #2 | $13.40 | $13.38 | $0.00 | $0.00 | $26.78 | $0.00 |
| 2023 | 29358 | SD49 - SCHOOL DIST #49 | $245.86 | $245.85 | $0.00 | $0.00 | $491.71 | $0.00 |
| 2023 | 29358 | FD3 - FIRE DISTRICT #3 | $228.33 | $228.33 | $0.00 | $0.00 | $456.66 | $0.00 |
| 2023 | 29358 | EMS3 - FIRE DIST #3 EMS | $81.63 | $81.63 | $0.00 | $0.00 | $163.26 | $0.00 |
| 2023 | 29358 | JCCD - JC Conservation District | $2.55 | $2.55 | $0.00 | $0.00 | $5.10 | $0.00 |
| 2023 | 29358 | LUD - PT Ludlow Drainage District | $31.08 | $31.07 | $0.00 | $0.00 | $62.15 | $0.00 |
| 2023 | 29358 | NWA - Noxious Weed Assessment | $2.15 | $2.15 | $0.00 | $0.00 | $4.30 | $0.00 |
| 2023 | 29358 | Drain - DRAINAGE DISTRICT FEE | $0.62 | $0.00 | $0.00 | $0.00 | $0.62 | $0.00 |
| 2023 | 29358 | TOTAL: | $1737.43 | $1736.70 | $0.00 | $0.00 | $3474.13 | $0.00 |
|
| 2023 | 29358 | $1737.43 | $1736.70 | $0.00 | $0.00 | $3474.13 | $0.00 |
Values
| (+) Improvement Homesite Value: | + | $0 | |
| (+) Improvement Non-Homesite Value: | + | $378,273 | |
| (+) Land Homesite Value: | + | $0 | |
| (+) Land Non-Homesite Value: | + | $104,500 | |
| (+) Curr Use (HS): | + | $0 | $0 |
| (+) Curr Use (NHS): | + | $0 | $0 |
| | | -------------------------- | |
| (=) Market Value: | = | $482,773 | |
| (–) Productivity Loss: | – | $0 | |
| | | -------------------------- | |
| (=) Subtotal: | = | $482,773 | |
| (+) Senior Appraised Value: | + | $0 | |
| (+) Non-Senior Appraised Value: | + | $482,773 | |
| | | -------------------------- | |
| (=) Total Appraised Value: | = | $482,773 | |
| (–) Senior Exemption Loss: | – | $0 | |
| (–) Exemption Loss: | – | $0 | |
| | | -------------------------- | |
| (=) Taxable Value: | = | $482,773 | |
Taxing Jurisdiction
| Owner: | KARIN ERTL | | |
| % Ownership: | 100.0000000000% | | |
| Total Value: | $482,773 | | |
| Tax Area: | 0213 - 1-49F1E1H2L1 |
| CE | COUNTY CURRENT EXPENSE | 0.9034619479 | $482,773 | $482,773 | $436.17 | | |
| CNTYDD | DEVELOPMENTAL DISABILITIES | 0.0052121823 | $482,773 | $482,773 | $2.52 | | |
| CNTYVET | VETERANS RELIEF | 0.0052777810 | $482,773 | $482,773 | $2.55 | | |
| MENTAL | MENTAL HEALTH | 0.0052121823 | $482,773 | $482,773 | $2.52 | | |
| ROADS | COUNTY ROADS | 0.7415066410 | $482,773 | $482,773 | $357.98 | | |
| ROADSCU | COUNTY ROADS TO CUR EXP | 0.0000000000 | $482,773 | $482,773 | $0.00 | | |
| HOSP2CASH | HOSP DIST #2 GENERAL | 0.0536075306 | $482,773 | $482,773 | $25.88 | | |
| SCH49CP | SCHOOL DIST #49 CAP PROJ | 0.6279093905 | $482,773 | $482,773 | $303.14 | | |
| SCH49MO | SCHOOL DIST #49 EP & O | 0.6376483602 | $482,773 | $482,773 | $307.84 | | |
| CONSERVE | CONSERVATION FUTURES | 0.0275621078 | $482,773 | $482,773 | $13.31 | | |
| EMS1 | FIRE DIST #1 EMS | 0.4679948282 | $482,773 | $482,773 | $225.94 | | |
| FD1 | FIRE DIST #1 GENERAL | 1.2171942929 | $482,773 | $482,773 | $587.63 | | |
| LIB1 | LIBRARY DIST #1 GENERAL | 0.2868827388 | $482,773 | $482,773 | $138.50 | | |
| PORTPT | PORT OF PT GENERAL | 0.1134941229 | $482,773 | $482,773 | $54.79 | | |
| PORTPTIDD | PORT OF PT IDD 2019 | 0.2577346692 | $482,773 | $482,773 | $124.43 | | |
| PUD1 | PUD #1 GENERAL | 0.0597888892 | $482,773 | $482,773 | $28.86 | | |
| STATE | STATE SCHOOL PART 1 | 1.4940692947 | $482,773 | $482,773 | $721.30 | | |
| STATE2 | STATE SCHOOL PART 2 | 0.8050170049 | $482,773 | $482,773 | $388.64 | | |
| | Total Tax Rate: | 7.7095739644 | | | | | |
| | | | | Taxes w/Current Exemptions: | $3,722.00 | | |
| | | | | Taxes w/o Exemptions: | $3,722.00 | | |
Improvement / Building
| Improvement #1: | Residential Bldg | State Code: | 11 | 1582.0 sqft | Value: | $378,273 |
| Bathrooms (#): | 2 (FULL) | Bedrooms (#): | 2 | | Exterior Wall: | PL/T1 | Fireplace: | DBL 1-AVG | | Floor Construction: | FRAME | Foundation: | CONPR | | Heating/Cooling: | F/A | Inside Verify: | YES-FIX | | Roof Cover: | COMP |   |   |
|
| | Type | Description | Class CD | Sub Class CD | Year Built | Area |
| | MA | Main Area | 5- | 15SF | 1976 | 982.0 |
| | MA2 | Second Floor Main Area | 5- | 15SF | 1976 | 600.0 |
| | HDECK | House Deck | 4 | * | 1976 | 450.0 |
| | GDET | Detached Garage | 3 | 15SF | 1976 | 480.0 |
| | GARAG | Garage (Table Not Dep) | 4 | * | 1976 | 520.0 |
Sketch
Property Image
Land
| 1 | 3331-1185L | | 0.0000 | 0.00 | 0.00 | 0.00 | 1.00 | $104,500 | $0 |
Roll Value History
| 2026 | N/A | N/A | N/A | N/A | N/A |
| 2025 | $378,273 | $104,500 | $0 | $482,773 | $482,773 |
| 2024 | $394,720 | $104,500 | $0 | $499,220 | $499,220 |
| 2023 | $378,273 | $90,000 | $0 | $468,273 | $468,273 |
| 2022 | $361,826 | $85,000 | $0 | $446,826 | $446,826 |
Deed and Sales History
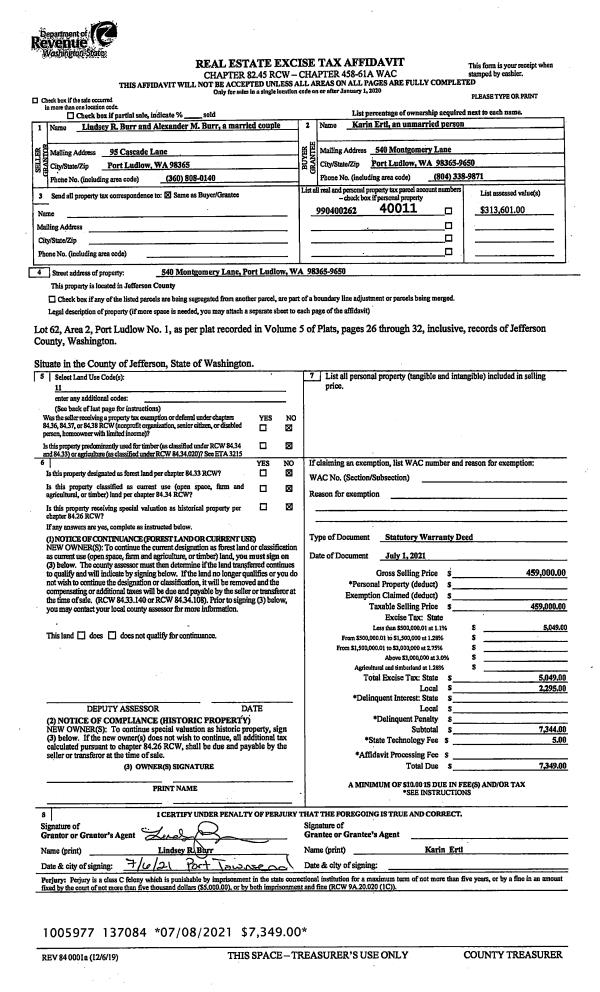
| 1 | 07/01/2021 | SWD | Statutory Warranty Deed | ALEXANDER M & LINDSEY R BURR | KARIN ERTL | | | $459,000.00 | 137084 | |
| 2 | 07/02/2020 | SWD | Statutory Warranty Deed | KEVIN W & KATIE J THOMPSON | ALEXANDER M & LINDSEY R BURR | | | $395,000.00 | 134624 | |
|   | |
| 3 | 03/21/2017 | SWD | Statutory Warranty Deed | JOAN BUHR | KEVIN W & KATIE J THOMPSON | | | $294,000.00 | 127372 | |
|   | |
Payout Agreement
| No payout information available.. |