Property
Account |
| Property ID: | 40030 | Abbreviated Legal Description: | PORT LUDLOW NO. 1 AREA 3 LOT 17 |
| Parcel # / Geo ID: | 990400317 | Agent Code: | |
| Type: | Real | | |
| Tax Area: | 0213 - 1-49F1E1H2L1 | Land Use Code | 11 |
| Open Space: | N | DFL | N |
| Historic Property: | N | Remodel Property: | N |
| Multi-Family Redevelopment: | N | | |
| Township: | 28N | Section: | 8 |
| Range: | 1E |
Location |
| Address: | 53 SAYWARD LN PORT LUDLOW, WA 98365 | Mapsco: | 100/017 |
| Neighborhood: | PORT LUDLOW #1 AREAS 3 & 4 | Map ID: | |
| Neighborhood CD: | 3332 |
Owner |
| Name: | JAMIESON & CHELSEA HODGSON | Owner ID: | 105620 |
| Mailing Address: | 53 SAYWARD LN PORT LUDLOW, WA 98365-9640 | % Ownership: | 100.0000000000% |
| | | Exemptions: | |
Pay Tax Due
Select the appropriate checkbox next to the year to be paid. Multiple years may be selected.
*Convenience Fee not included
Taxes and Assessment Details
Property Tax Information as of
03/11/2026
Click on "Statement Details" to expand or collapse a tax statement.
* Please enter a valid date ** Please enter a valid date *
Statement Details |
| 2026 | 29203 | STATE - STATE LEVY (SCHOOL) | $549.88 | $549.88 | $0.00 | $0.00 | $0.00 | $1099.76 |
| 2026 | 29203 | COUNTY - COUNTY LEVIES (CE, DD, VET, MH) | $219.85 | $219.82 | $0.00 | $0.00 | $0.00 | $439.67 |
| 2026 | 29203 | CONSERVE - CONSERVATION FUTURES | $6.59 | $6.59 | $0.00 | $0.00 | $0.00 | $13.18 |
| 2026 | 29203 | COROADS - COUNTY ROADS (ROADS, DIV TO CE) | $177.35 | $177.35 | $0.00 | $0.00 | $0.00 | $354.70 |
| 2026 | 29203 | PORTPT - PORT DISTRICT | $88.80 | $88.78 | $0.00 | $0.00 | $0.00 | $177.58 |
| 2026 | 29203 | PUD1 - PUD #1 | $14.30 | $14.30 | $0.00 | $0.00 | $0.00 | $28.60 |
| 2026 | 29203 | LIB1 - LIBRARY DIST #1 | $68.62 | $68.61 | $0.00 | $0.00 | $0.00 | $137.23 |
| 2026 | 29203 | HD2 - HOSP DIST #2 | $12.82 | $12.82 | $0.00 | $0.00 | $0.00 | $25.64 |
| 2026 | 29203 | SD49 - SCHOOL DIST #49 | $302.69 | $302.69 | $0.00 | $0.00 | $0.00 | $605.38 |
| 2026 | 29203 | FD1 - FIRE DISTRICT #1 | $291.12 | $291.12 | $0.00 | $0.00 | $0.00 | $582.24 |
| 2026 | 29203 | EMS1 - FIRE DIST #1 EMS | $111.93 | $111.93 | $0.00 | $0.00 | $0.00 | $223.86 |
| 2026 | 29203 | JCCD - JC Conservation District | $2.55 | $2.55 | $0.00 | $0.00 | $0.00 | $5.10 |
| 2026 | 29203 | LUD - PT Ludlow Drainage District | $37.21 | $37.21 | $0.00 | $0.00 | $0.00 | $74.42 |
| 2026 | 29203 | NWA - Noxious Weed Assessment | $2.98 | $2.97 | $0.00 | $0.00 | $0.00 | $5.95 |
| 2026 | 29203 | OSS - On Site Septic | $23.10 | $23.10 | $0.00 | $0.00 | $0.00 | $46.20 |
| 2026 | 29203 | WAT - Clean Water District | $13.00 | $13.00 | $0.00 | $0.00 | $0.00 | $26.00 |
| 2026 | 29203 | Drain - DRAINAGE DISTRICT FEE | $0.74 | $0.00 | $0.00 | $0.00 | $0.00 | $0.74 |
| 2026 | 29203 | TOTAL: | $1923.53 | $1922.72 | $0.00 | $0.00 | $0.00 | $3846.25 |
|
| 2026 | 29203 | $1923.53 | $1922.72 | $0.00 | $0.00 | $0.00 | $3846.25 |
Statement Details |
| 2025 | 29275 | STATE - STATE LEVY (SCHOOL) | $573.55 | $573.53 | $0.00 | $0.00 | $1147.08 | $0.00 |
| 2025 | 29275 | COUNTY - COUNTY LEVIES (CE, DD, VET, MH) | $225.55 | $225.53 | $0.00 | $0.00 | $451.08 | $0.00 |
| 2025 | 29275 | CONSERVE - CONSERVATION FUTURES | $6.77 | $6.76 | $0.00 | $0.00 | $13.53 | $0.00 |
| 2025 | 29275 | COROADS - COUNTY ROADS (ROADS, DIV TO CE) | $180.70 | $180.69 | $0.00 | $0.00 | $361.39 | $0.00 |
| 2025 | 29275 | PORTPT - PORT DISTRICT | $92.04 | $92.03 | $0.00 | $0.00 | $184.07 | $0.00 |
| 2025 | 29275 | PUD1 - PUD #1 | $14.76 | $14.76 | $0.00 | $0.00 | $29.52 | $0.00 |
| 2025 | 29275 | LIB1 - LIBRARY DIST #1 | $69.91 | $69.91 | $0.00 | $0.00 | $139.82 | $0.00 |
| 2025 | 29275 | HD2 - HOSP DIST #2 | $13.16 | $13.16 | $0.00 | $0.00 | $26.32 | $0.00 |
| 2025 | 29275 | SD49 - SCHOOL DIST #49 | $307.39 | $307.38 | $0.00 | $0.00 | $614.77 | $0.00 |
| 2025 | 29275 | FD1 - FIRE DISTRICT #1 | $297.63 | $297.63 | $0.00 | $0.00 | $595.26 | $0.00 |
| 2025 | 29275 | EMS1 - FIRE DIST #1 EMS | $114.48 | $114.47 | $0.00 | $0.00 | $228.95 | $0.00 |
| 2025 | 29275 | JCCD - JC Conservation District | $2.55 | $2.55 | $0.00 | $0.00 | $5.10 | $0.00 |
| 2025 | 29275 | LUD - PT Ludlow Drainage District | $29.84 | $29.84 | $0.00 | $0.00 | $59.68 | $0.00 |
| 2025 | 29275 | NWA - Noxious Weed Assessment | $2.15 | $2.15 | $0.00 | $0.00 | $4.30 | $0.00 |
| 2025 | 29275 | OSS - On Site Septic | $21.50 | $21.50 | $0.00 | $0.00 | $43.00 | $0.00 |
| 2025 | 29275 | WAT - Clean Water District | $13.00 | $13.00 | $0.00 | $0.00 | $26.00 | $0.00 |
| 2025 | 29275 | Drain - DRAINAGE DISTRICT FEE | $0.60 | $0.00 | $0.00 | $0.00 | $0.60 | $0.00 |
| 2025 | 29275 | TOTAL: | $1965.58 | $1964.89 | $0.00 | $0.00 | $3930.47 | $0.00 |
|
| 2025 | 29275 | $1965.58 | $1964.89 | $0.00 | $0.00 | $3930.47 | $0.00 |
Statement Details |
| 2024 | 29335 | STATE - STATE LEVY (SCHOOL) | $519.50 | $519.49 | $0.00 | $0.00 | $1038.99 | $0.00 |
| 2024 | 29335 | COUNTY - COUNTY LEVIES (CE, DD, VET, MH) | $222.31 | $222.28 | $0.00 | $0.00 | $444.59 | $0.00 |
| 2024 | 29335 | CONSERVE - CONSERVATION FUTURES | $6.67 | $6.66 | $0.00 | $0.00 | $13.33 | $0.00 |
| 2024 | 29335 | COROADS - COUNTY ROADS (ROADS, DIV TO CE) | $178.88 | $178.87 | $0.00 | $0.00 | $357.75 | $0.00 |
| 2024 | 29335 | PORTPT - PORT DISTRICT | $91.82 | $91.82 | $0.00 | $0.00 | $183.64 | $0.00 |
| 2024 | 29335 | PUD1 - PUD #1 | $14.60 | $14.60 | $0.00 | $0.00 | $29.20 | $0.00 |
| 2024 | 29335 | LIB1 - LIBRARY DIST #1 | $69.21 | $69.20 | $0.00 | $0.00 | $138.41 | $0.00 |
| 2024 | 29335 | HD2 - HOSP DIST #2 | $12.97 | $12.97 | $0.00 | $0.00 | $25.94 | $0.00 |
| 2024 | 29335 | SD49 - SCHOOL DIST #49 | $231.99 | $231.97 | $0.00 | $0.00 | $463.96 | $0.00 |
| 2024 | 29335 | FD1 - FIRE DISTRICT #1 | $293.93 | $293.93 | $0.00 | $0.00 | $587.86 | $0.00 |
| 2024 | 29335 | EMS1 - FIRE DIST #1 EMS | $112.27 | $112.27 | $0.00 | $0.00 | $224.54 | $0.00 |
| 2024 | 29335 | JCCD - JC Conservation District | $2.55 | $2.55 | $0.00 | $0.00 | $5.10 | $0.00 |
| 2024 | 29335 | LUD - PT Ludlow Drainage District | $26.20 | $26.20 | $0.00 | $0.00 | $52.40 | $0.00 |
| 2024 | 29335 | NWA - Noxious Weed Assessment | $2.15 | $2.15 | $0.00 | $0.00 | $4.30 | $0.00 |
| 2024 | 29335 | OSS - On Site Septic | $21.00 | $21.00 | $0.00 | $0.00 | $42.00 | $0.00 |
| 2024 | 29335 | WAT - Clean Water District | $12.50 | $12.50 | $0.00 | $0.00 | $25.00 | $0.00 |
| 2024 | 29335 | Drain - DRAINAGE DISTRICT FEE | $0.52 | $0.00 | $0.00 | $0.00 | $0.52 | $0.00 |
| 2024 | 29335 | TOTAL: | $1819.07 | $1818.46 | $0.00 | $0.00 | $3637.53 | $0.00 |
|
| 2024 | 29335 | $1819.07 | $1818.46 | $0.00 | $0.00 | $3637.53 | $0.00 |
Statement Details |
| 2023 | 29377 | STATE - STATE LEVY (SCHOOL) | $503.58 | $503.57 | $0.00 | $0.00 | $1007.15 | $0.00 |
| 2023 | 29377 | COUNTY - COUNTY LEVIES (CE, DD, VET, MH) | $219.76 | $219.72 | $0.00 | $0.00 | $439.48 | $0.00 |
| 2023 | 29377 | CONSERVE - CONSERVATION FUTURES | $6.59 | $6.59 | $0.00 | $0.00 | $13.18 | $0.00 |
| 2023 | 29377 | COROADS - COUNTY ROADS (ROADS, DIV TO CE) | $177.79 | $177.79 | $0.00 | $0.00 | $355.58 | $0.00 |
| 2023 | 29377 | PORTPT - PORT DISTRICT | $92.58 | $92.56 | $0.00 | $0.00 | $185.14 | $0.00 |
| 2023 | 29377 | PUD1 - PUD #1 | $14.57 | $14.56 | $0.00 | $0.00 | $29.13 | $0.00 |
| 2023 | 29377 | LIB1 - LIBRARY DIST #1 | $68.79 | $68.78 | $0.00 | $0.00 | $137.57 | $0.00 |
| 2023 | 29377 | HD2 - HOSP DIST #2 | $12.83 | $12.82 | $0.00 | $0.00 | $25.65 | $0.00 |
| 2023 | 29377 | SD49 - SCHOOL DIST #49 | $235.40 | $235.39 | $0.00 | $0.00 | $470.79 | $0.00 |
| 2023 | 29377 | FD3 - FIRE DISTRICT #3 | $218.62 | $218.61 | $0.00 | $0.00 | $437.23 | $0.00 |
| 2023 | 29377 | EMS3 - FIRE DIST #3 EMS | $78.16 | $78.15 | $0.00 | $0.00 | $156.31 | $0.00 |
| 2023 | 29377 | JCCD - JC Conservation District | $2.55 | $2.55 | $0.00 | $0.00 | $5.10 | $0.00 |
| 2023 | 29377 | LUD - PT Ludlow Drainage District | $26.38 | $26.37 | $0.00 | $0.00 | $52.75 | $0.00 |
| 2023 | 29377 | NWA - Noxious Weed Assessment | $2.15 | $2.15 | $0.00 | $0.00 | $4.30 | $0.00 |
| 2023 | 29377 | OSS - On Site Septic | $20.50 | $20.50 | $0.00 | $0.00 | $41.00 | $0.00 |
| 2023 | 29377 | WAT - Clean Water District | $12.00 | $12.00 | $0.00 | $0.00 | $24.00 | $0.00 |
| 2023 | 29377 | Drain - DRAINAGE DISTRICT FEE | $0.53 | $0.00 | $0.00 | $0.00 | $0.53 | $0.00 |
| 2023 | 29377 | TOTAL: | $1692.78 | $1692.11 | $0.00 | $0.00 | $3384.89 | $0.00 |
|
| 2023 | 29377 | $1692.78 | $1692.11 | $0.00 | $0.00 | $3384.89 | $0.00 |
Values
| (+) Improvement Homesite Value: | + | $0 | |
| (+) Improvement Non-Homesite Value: | + | $390,346 | |
| (+) Land Homesite Value: | + | $0 | |
| (+) Land Non-Homesite Value: | + | $88,000 | |
| (+) Curr Use (HS): | + | $0 | $0 |
| (+) Curr Use (NHS): | + | $0 | $0 |
| | | -------------------------- | |
| (=) Market Value: | = | $478,346 | |
| (–) Productivity Loss: | – | $0 | |
| | | -------------------------- | |
| (=) Subtotal: | = | $478,346 | |
| (+) Senior Appraised Value: | + | $0 | |
| (+) Non-Senior Appraised Value: | + | $478,346 | |
| | | -------------------------- | |
| (=) Total Appraised Value: | = | $478,346 | |
| (–) Senior Exemption Loss: | – | $0 | |
| (–) Exemption Loss: | – | $0 | |
| | | -------------------------- | |
| (=) Taxable Value: | = | $478,346 | |
Taxing Jurisdiction
| Owner: | JAMIESON & CHELSEA HODGSON | | |
| % Ownership: | 100.0000000000% | | |
| Total Value: | $478,346 | | |
| Tax Area: | 0213 - 1-49F1E1H2L1 |
| CE | COUNTY CURRENT EXPENSE | 0.9034619479 | $478,346 | $478,346 | $432.17 | | |
| CNTYDD | DEVELOPMENTAL DISABILITIES | 0.0052121823 | $478,346 | $478,346 | $2.49 | | |
| CNTYVET | VETERANS RELIEF | 0.0052777810 | $478,346 | $478,346 | $2.52 | | |
| MENTAL | MENTAL HEALTH | 0.0052121823 | $478,346 | $478,346 | $2.49 | | |
| ROADS | COUNTY ROADS | 0.7415066410 | $478,346 | $478,346 | $354.70 | | |
| ROADSCU | COUNTY ROADS TO CUR EXP | 0.0000000000 | $478,346 | $478,346 | $0.00 | | |
| HOSP2CASH | HOSP DIST #2 GENERAL | 0.0536075306 | $478,346 | $478,346 | $25.64 | | |
| SCH49CP | SCHOOL DIST #49 CAP PROJ | 0.6279093905 | $478,346 | $478,346 | $300.36 | | |
| SCH49MO | SCHOOL DIST #49 EP & O | 0.6376483602 | $478,346 | $478,346 | $305.02 | | |
| CONSERVE | CONSERVATION FUTURES | 0.0275621078 | $478,346 | $478,346 | $13.18 | | |
| EMS1 | FIRE DIST #1 EMS | 0.4679948282 | $478,346 | $478,346 | $223.86 | | |
| FD1 | FIRE DIST #1 GENERAL | 1.2171942929 | $478,346 | $478,346 | $582.24 | | |
| LIB1 | LIBRARY DIST #1 GENERAL | 0.2868827388 | $478,346 | $478,346 | $137.23 | | |
| PORTPT | PORT OF PT GENERAL | 0.1134941229 | $478,346 | $478,346 | $54.29 | | |
| PORTPTIDD | PORT OF PT IDD 2019 | 0.2577346692 | $478,346 | $478,346 | $123.29 | | |
| PUD1 | PUD #1 GENERAL | 0.0597888892 | $478,346 | $478,346 | $28.60 | | |
| STATE | STATE SCHOOL PART 1 | 1.4940692947 | $478,346 | $478,346 | $714.68 | | |
| STATE2 | STATE SCHOOL PART 2 | 0.8050170049 | $478,346 | $478,346 | $385.08 | | |
| | Total Tax Rate: | 7.7095739644 | | | | | |
| | | | | Taxes w/Current Exemptions: | $3,687.84 | | |
| | | | | Taxes w/o Exemptions: | $3,687.84 | | |
Improvement / Building
| Improvement #1: | Residential Bldg | State Code: | 11 | 1641.0 sqft | Value: | $390,346 |
| Bathrooms (#): | 2 (FULL) | Bathrooms (#): | 1 (HALF) | | Bedrooms (#): | 2 | Exterior Wall: | SI/ST | | Fireplace: | SIN 1-GOOD | Floor Construction: | CONCR | | Foundation: | CONPR | Heating/Cooling: | HPUMP | | Roof Cover: | COMP |   |   |
|
| | Type | Description | Class CD | Sub Class CD | Year Built | Area |
| | MA | Main Area | 4- | 1S | 2004 | 1641.0 |
| | HCPOR | House Concrete Porch | 3 | * | 2004 | 28.0 |
| | GATT | House Attached Garage | 4 | 1S | 2004 | 625.0 |
| | HRPO | House Roof Patio | 3 | * | 2004 | 168.0 |
| | CONCD | Concrete Drive | 3 | * | 2004 | 1000.0 |
Sketch
Property Image
Land
| 1 | 3332-1187L | | 0.0000 | 0.00 | 0.00 | 0.00 | 1.00 | $88,000 | $0 |
Roll Value History
| 2026 | N/A | N/A | N/A | N/A | N/A |
| 2025 | $390,346 | $88,000 | $0 | $478,346 | $478,346 |
| 2024 | $390,346 | $88,000 | $0 | $478,346 | $478,346 |
| 2023 | $374,081 | $75,000 | $0 | $449,081 | $449,081 |
| 2022 | $357,817 | $70,000 | $0 | $427,817 | $427,817 |
Deed and Sales History
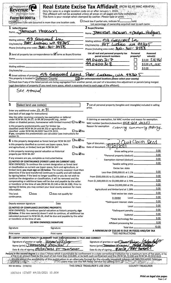
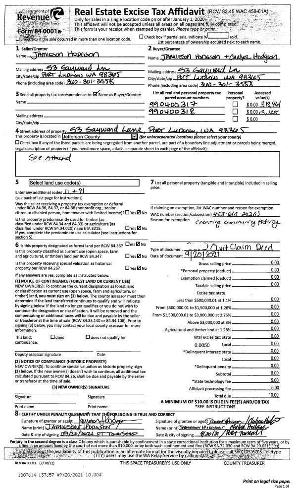
| 1 | 09/20/2021 | QCD | Quit Claim Deed | JAMIESON HODGSON | JAMIESON & CHELSEA HODGSON | | | | 137657 | |
| 2 | 08/09/2016 | SWD | Statutory Warranty Deed | JAMES A NICHOLS | JAMIESON HODGSON | | | $285,000.00 | 126056 | |
|   | |
| 3 | 06/06/2000 | SWD | Statutory Warranty Deed | SCOTT, ROBERT W/VIRGINIA | NICHOLS, JAMES ALAN | 0 | 0 | $7,000.00 | 89862 | 0 |
| 4 | 10/06/1999 | QCD | Quit Claim Deed | BANK OF AMERICA NA | SCOTT, ROBERT/VIRGINIA | 0 | 0 | $0.00 | 88085 | 0 |
Payout Agreement
| No payout information available.. |