Property
Account |
| Property ID: | 40034 | Abbreviated Legal Description: | PORT LUDLOW NO. 1 AREA 3 LOT 21 |
| Parcel # / Geo ID: | 990400321 | Agent Code: | |
| Type: | Real | | |
| Tax Area: | 0213 - 1-49F1E1H2L1 | Land Use Code | 11 |
| Open Space: | N | DFL | N |
| Historic Property: | N | Remodel Property: | N |
| Multi-Family Redevelopment: | N | | |
| Township: | 28N | Section: | 8 |
| Range: | 1E |
Location |
| Address: | 103 SAYWARD LN PORT LUDLOW, WA 98365 | Mapsco: | 100/021 |
| Neighborhood: | PORT LUDLOW #1 AREAS 3 & 4 | Map ID: | |
| Neighborhood CD: | 3332 |
Owner |
| Name: | BART D & SUSAN L STOTLER | Owner ID: | 107665 |
| Mailing Address: | 115 SCHOONER LN PORT LUDLOW, WA 98365-9228 | % Ownership: | 100.0000000000% |
| | | Exemptions: | |
Pay Tax Due
Select the appropriate checkbox next to the year to be paid. Multiple years may be selected.
*Convenience Fee not included
Taxes and Assessment Details
Property Tax Information as of
03/11/2026
Click on "Statement Details" to expand or collapse a tax statement.
* Please enter a valid date ** Please enter a valid date *
Statement Details |
| 2026 | 29207 | STATE - STATE LEVY (SCHOOL) | $450.37 | $450.36 | $0.00 | $0.00 | $0.00 | $900.73 |
| 2026 | 29207 | COUNTY - COUNTY LEVIES (CE, DD, VET, MH) | $180.06 | $180.05 | $0.00 | $0.00 | $0.00 | $360.11 |
| 2026 | 29207 | CONSERVE - CONSERVATION FUTURES | $5.40 | $5.40 | $0.00 | $0.00 | $0.00 | $10.80 |
| 2026 | 29207 | COROADS - COUNTY ROADS (ROADS, DIV TO CE) | $145.26 | $145.25 | $0.00 | $0.00 | $0.00 | $290.51 |
| 2026 | 29207 | PORTPT - PORT DISTRICT | $72.72 | $72.71 | $0.00 | $0.00 | $0.00 | $145.43 |
| 2026 | 29207 | PUD1 - PUD #1 | $11.71 | $11.71 | $0.00 | $0.00 | $0.00 | $23.42 |
| 2026 | 29207 | LIB1 - LIBRARY DIST #1 | $56.20 | $56.19 | $0.00 | $0.00 | $0.00 | $112.39 |
| 2026 | 29207 | HD2 - HOSP DIST #2 | $10.50 | $10.50 | $0.00 | $0.00 | $0.00 | $21.00 |
| 2026 | 29207 | SD49 - SCHOOL DIST #49 | $247.91 | $247.91 | $0.00 | $0.00 | $0.00 | $495.82 |
| 2026 | 29207 | FD1 - FIRE DISTRICT #1 | $238.44 | $238.43 | $0.00 | $0.00 | $0.00 | $476.87 |
| 2026 | 29207 | EMS1 - FIRE DIST #1 EMS | $91.68 | $91.67 | $0.00 | $0.00 | $0.00 | $183.35 |
| 2026 | 29207 | JCCD - JC Conservation District | $2.55 | $2.55 | $0.00 | $0.00 | $0.00 | $5.10 |
| 2026 | 29207 | LUD - PT Ludlow Drainage District | $40.37 | $40.37 | $0.00 | $0.00 | $0.00 | $80.74 |
| 2026 | 29207 | NWA - Noxious Weed Assessment | $2.98 | $2.97 | $0.00 | $0.00 | $0.00 | $5.95 |
| 2026 | 29207 | OSS - On Site Septic | $23.10 | $23.10 | $0.00 | $0.00 | $0.00 | $46.20 |
| 2026 | 29207 | WAT - Clean Water District | $13.00 | $13.00 | $0.00 | $0.00 | $0.00 | $26.00 |
| 2026 | 29207 | Drain - DRAINAGE DISTRICT FEE | $0.81 | $0.00 | $0.00 | $0.00 | $0.00 | $0.81 |
| 2026 | 29207 | TOTAL: | $1593.06 | $1592.17 | $0.00 | $0.00 | $0.00 | $3185.23 |
|
| 2026 | 29207 | $1593.06 | $1592.17 | $0.00 | $0.00 | $0.00 | $3185.23 |
Statement Details |
| 2025 | 29279 | STATE - STATE LEVY (SCHOOL) | $469.75 | $469.75 | $0.00 | $0.00 | $939.50 | $0.00 |
| 2025 | 29279 | COUNTY - COUNTY LEVIES (CE, DD, VET, MH) | $184.74 | $184.71 | $0.00 | $0.00 | $369.45 | $0.00 |
| 2025 | 29279 | CONSERVE - CONSERVATION FUTURES | $5.54 | $5.54 | $0.00 | $0.00 | $11.08 | $0.00 |
| 2025 | 29279 | COROADS - COUNTY ROADS (ROADS, DIV TO CE) | $148.00 | $147.99 | $0.00 | $0.00 | $295.99 | $0.00 |
| 2025 | 29279 | PORTPT - PORT DISTRICT | $75.38 | $75.38 | $0.00 | $0.00 | $150.76 | $0.00 |
| 2025 | 29279 | PUD1 - PUD #1 | $12.09 | $12.08 | $0.00 | $0.00 | $24.17 | $0.00 |
| 2025 | 29279 | LIB1 - LIBRARY DIST #1 | $57.26 | $57.26 | $0.00 | $0.00 | $114.52 | $0.00 |
| 2025 | 29279 | HD2 - HOSP DIST #2 | $10.78 | $10.77 | $0.00 | $0.00 | $21.55 | $0.00 |
| 2025 | 29279 | SD49 - SCHOOL DIST #49 | $251.76 | $251.75 | $0.00 | $0.00 | $503.51 | $0.00 |
| 2025 | 29279 | FD1 - FIRE DISTRICT #1 | $243.77 | $243.76 | $0.00 | $0.00 | $487.53 | $0.00 |
| 2025 | 29279 | EMS1 - FIRE DIST #1 EMS | $93.76 | $93.76 | $0.00 | $0.00 | $187.52 | $0.00 |
| 2025 | 29279 | JCCD - JC Conservation District | $2.55 | $2.55 | $0.00 | $0.00 | $5.10 | $0.00 |
| 2025 | 29279 | LUD - PT Ludlow Drainage District | $32.37 | $32.36 | $0.00 | $0.00 | $64.73 | $0.00 |
| 2025 | 29279 | NWA - Noxious Weed Assessment | $2.15 | $2.15 | $0.00 | $0.00 | $4.30 | $0.00 |
| 2025 | 29279 | OSS - On Site Septic | $21.50 | $21.50 | $0.00 | $0.00 | $43.00 | $0.00 |
| 2025 | 29279 | WAT - Clean Water District | $13.00 | $13.00 | $0.00 | $0.00 | $26.00 | $0.00 |
| 2025 | 29279 | Drain - DRAINAGE DISTRICT FEE | $0.65 | $0.00 | $0.00 | $0.00 | $0.65 | $0.00 |
| 2025 | 29279 | TOTAL: | $1625.05 | $1624.31 | $0.00 | $0.00 | $3249.36 | $0.00 |
|
| 2025 | 29279 | $1625.05 | $1624.31 | $0.00 | $0.00 | $3249.36 | $0.00 |
Statement Details |
| 2024 | 29339 | STATE - STATE LEVY (SCHOOL) | $285.02 | $285.02 | $0.00 | $0.00 | $570.04 | $0.00 |
| 2024 | 29339 | COUNTY - COUNTY LEVIES (CE, DD, VET, MH) | $121.97 | $121.96 | $0.00 | $0.00 | $243.93 | $0.00 |
| 2024 | 29339 | CONSERVE - CONSERVATION FUTURES | $3.66 | $3.65 | $0.00 | $0.00 | $7.31 | $0.00 |
| 2024 | 29339 | COROADS - COUNTY ROADS (ROADS, DIV TO CE) | $98.14 | $98.13 | $0.00 | $0.00 | $196.27 | $0.00 |
| 2024 | 29339 | PORTPT - PORT DISTRICT | $50.38 | $50.37 | $0.00 | $0.00 | $100.75 | $0.00 |
| 2024 | 29339 | PUD1 - PUD #1 | $8.01 | $8.01 | $0.00 | $0.00 | $16.02 | $0.00 |
| 2024 | 29339 | LIB1 - LIBRARY DIST #1 | $37.97 | $37.97 | $0.00 | $0.00 | $75.94 | $0.00 |
| 2024 | 29339 | HD2 - HOSP DIST #2 | $7.12 | $7.11 | $0.00 | $0.00 | $14.23 | $0.00 |
| 2024 | 29339 | SD49 - SCHOOL DIST #49 | $127.28 | $127.27 | $0.00 | $0.00 | $254.55 | $0.00 |
| 2024 | 29339 | FD1 - FIRE DISTRICT #1 | $161.27 | $161.26 | $0.00 | $0.00 | $322.53 | $0.00 |
| 2024 | 29339 | EMS1 - FIRE DIST #1 EMS | $61.60 | $61.59 | $0.00 | $0.00 | $123.19 | $0.00 |
| 2024 | 29339 | JCCD - JC Conservation District | $2.55 | $2.55 | $0.00 | $0.00 | $5.10 | $0.00 |
| 2024 | 29339 | LUD - PT Ludlow Drainage District | $28.42 | $28.41 | $0.00 | $0.00 | $56.83 | $0.00 |
| 2024 | 29339 | NWA - Noxious Weed Assessment | $2.15 | $2.15 | $0.00 | $0.00 | $4.30 | $0.00 |
| 2024 | 29339 | OSS - On Site Septic | $21.00 | $21.00 | $0.00 | $0.00 | $42.00 | $0.00 |
| 2024 | 29339 | WAT - Clean Water District | $12.50 | $12.50 | $0.00 | $0.00 | $25.00 | $0.00 |
| 2024 | 29339 | Drain - DRAINAGE DISTRICT FEE | $0.57 | $0.00 | $0.00 | $0.00 | $0.57 | $0.00 |
| 2024 | 29339 | TOTAL: | $1029.61 | $1028.95 | $0.00 | $0.00 | $2058.56 | $0.00 |
|
| 2024 | 29339 | $1029.61 | $1028.95 | $0.00 | $0.00 | $2058.56 | $0.00 |
Statement Details |
| 2023 | 29381 | STATE - STATE LEVY (SCHOOL) | $341.85 | $341.83 | $0.00 | $0.00 | $683.68 | $0.00 |
| 2023 | 29381 | COUNTY - COUNTY LEVIES (CE, DD, VET, MH) | $149.18 | $149.15 | $0.00 | $0.00 | $298.33 | $0.00 |
| 2023 | 29381 | CONSERVE - CONSERVATION FUTURES | $4.48 | $4.47 | $0.00 | $0.00 | $8.95 | $0.00 |
| 2023 | 29381 | COROADS - COUNTY ROADS (ROADS, DIV TO CE) | $120.69 | $120.69 | $0.00 | $0.00 | $241.38 | $0.00 |
| 2023 | 29381 | PORTPT - PORT DISTRICT | $62.84 | $62.84 | $0.00 | $0.00 | $125.68 | $0.00 |
| 2023 | 29381 | PUD1 - PUD #1 | $9.89 | $9.89 | $0.00 | $0.00 | $19.78 | $0.00 |
| 2023 | 29381 | LIB1 - LIBRARY DIST #1 | $46.70 | $46.69 | $0.00 | $0.00 | $93.39 | $0.00 |
| 2023 | 29381 | HD2 - HOSP DIST #2 | $8.71 | $8.70 | $0.00 | $0.00 | $17.41 | $0.00 |
| 2023 | 29381 | SD49 - SCHOOL DIST #49 | $159.80 | $159.79 | $0.00 | $0.00 | $319.59 | $0.00 |
| 2023 | 29381 | FD3 - FIRE DISTRICT #3 | $148.41 | $148.40 | $0.00 | $0.00 | $296.81 | $0.00 |
| 2023 | 29381 | EMS3 - FIRE DIST #3 EMS | $53.06 | $53.05 | $0.00 | $0.00 | $106.11 | $0.00 |
| 2023 | 29381 | JCCD - JC Conservation District | $2.55 | $2.55 | $0.00 | $0.00 | $5.10 | $0.00 |
| 2023 | 29381 | LUD - PT Ludlow Drainage District | $28.59 | $28.58 | $0.00 | $0.00 | $57.17 | $0.00 |
| 2023 | 29381 | NWA - Noxious Weed Assessment | $2.15 | $2.15 | $0.00 | $0.00 | $4.30 | $0.00 |
| 2023 | 29381 | OSS - On Site Septic | $20.50 | $20.50 | $0.00 | $0.00 | $41.00 | $0.00 |
| 2023 | 29381 | WAT - Clean Water District | $12.00 | $12.00 | $0.00 | $0.00 | $24.00 | $0.00 |
| 2023 | 29381 | Drain - DRAINAGE DISTRICT FEE | $0.57 | $0.00 | $0.00 | $0.00 | $0.57 | $0.00 |
| 2023 | 29381 | TOTAL: | $1171.97 | $1171.28 | $0.00 | $0.00 | $2343.25 | $0.00 |
|
| 2023 | 29381 | $1171.97 | $1171.28 | $0.00 | $0.00 | $2343.25 | $0.00 |
Values
| (+) Improvement Homesite Value: | + | $0 | |
| (+) Improvement Non-Homesite Value: | + | $281,778 | |
| (+) Land Homesite Value: | + | $0 | |
| (+) Land Non-Homesite Value: | + | $110,000 | |
| (+) Curr Use (HS): | + | $0 | $0 |
| (+) Curr Use (NHS): | + | $0 | $0 |
| | | -------------------------- | |
| (=) Market Value: | = | $391,778 | |
| (–) Productivity Loss: | – | $0 | |
| | | -------------------------- | |
| (=) Subtotal: | = | $391,778 | |
| (+) Senior Appraised Value: | + | $0 | |
| (+) Non-Senior Appraised Value: | + | $391,778 | |
| | | -------------------------- | |
| (=) Total Appraised Value: | = | $391,778 | |
| (–) Senior Exemption Loss: | – | $0 | |
| (–) Exemption Loss: | – | $0 | |
| | | -------------------------- | |
| (=) Taxable Value: | = | $391,778 | |
Taxing Jurisdiction
| Owner: | BART D & SUSAN L STOTLER | | |
| % Ownership: | 100.0000000000% | | |
| Total Value: | $391,778 | | |
| Tax Area: | 0213 - 1-49F1E1H2L1 |
| CE | COUNTY CURRENT EXPENSE | 0.9034619479 | $391,778 | $391,778 | $353.96 | | |
| CNTYDD | DEVELOPMENTAL DISABILITIES | 0.0052121823 | $391,778 | $391,778 | $2.04 | | |
| CNTYVET | VETERANS RELIEF | 0.0052777810 | $391,778 | $391,778 | $2.07 | | |
| MENTAL | MENTAL HEALTH | 0.0052121823 | $391,778 | $391,778 | $2.04 | | |
| ROADS | COUNTY ROADS | 0.7415066410 | $391,778 | $391,778 | $290.51 | | |
| ROADSCU | COUNTY ROADS TO CUR EXP | 0.0000000000 | $391,778 | $391,778 | $0.00 | | |
| HOSP2CASH | HOSP DIST #2 GENERAL | 0.0536075306 | $391,778 | $391,778 | $21.00 | | |
| SCH49CP | SCHOOL DIST #49 CAP PROJ | 0.6279093905 | $391,778 | $391,778 | $246.00 | | |
| SCH49MO | SCHOOL DIST #49 EP & O | 0.6376483602 | $391,778 | $391,778 | $249.82 | | |
| CONSERVE | CONSERVATION FUTURES | 0.0275621078 | $391,778 | $391,778 | $10.80 | | |
| EMS1 | FIRE DIST #1 EMS | 0.4679948282 | $391,778 | $391,778 | $183.35 | | |
| FD1 | FIRE DIST #1 GENERAL | 1.2171942929 | $391,778 | $391,778 | $476.87 | | |
| LIB1 | LIBRARY DIST #1 GENERAL | 0.2868827388 | $391,778 | $391,778 | $112.39 | | |
| PORTPT | PORT OF PT GENERAL | 0.1134941229 | $391,778 | $391,778 | $44.46 | | |
| PORTPTIDD | PORT OF PT IDD 2019 | 0.2577346692 | $391,778 | $391,778 | $100.97 | | |
| PUD1 | PUD #1 GENERAL | 0.0597888892 | $391,778 | $391,778 | $23.42 | | |
| STATE | STATE SCHOOL PART 1 | 1.4940692947 | $391,778 | $391,778 | $585.34 | | |
| STATE2 | STATE SCHOOL PART 2 | 0.8050170049 | $391,778 | $391,778 | $315.39 | | |
| | Total Tax Rate: | 7.7095739644 | | | | | |
| | | | | Taxes w/Current Exemptions: | $3,020.43 | | |
| | | | | Taxes w/o Exemptions: | $3,020.43 | | |
Improvement / Building
| Improvement #1: | Manufactured Home | State Code: | 11 | 1100.0 sqft | Value: | $281,778 |
| Exterior Wall: | SI/ST | Floor Construction: | FRAME | | Foundation: | PO&BL | Heating/Cooling: | F/A | | Roof Cover: | COMP |   |   |
|
| | Type | Description | Class CD | Sub Class CD | Year Built | Area |
| | MA | Main Area | 4+ | 1S | 1994 | 1100.0 |
| | HCPOR | House Concrete Porch | 4 | * | 1994 | 96.0 |
| | HDECK | House Deck | 4 | * | 1994 | 80.0 |
| | GATT | House Attached Garage | 4 | 1S | 1994 | 456.0 |
Sketch
Property Image
Land
| 1 | 3332-1173L | | 0.0000 | 0.00 | 0.00 | 0.00 | 1.00 | $110,000 | $0 |
Roll Value History
| 2026 | N/A | N/A | N/A | N/A | N/A |
| 2025 | $281,778 | $110,000 | $0 | $391,778 | $391,778 |
| 2024 | $281,778 | $110,000 | $0 | $391,778 | $391,778 |
| 2023 | $171,387 | $75,000 | $0 | $246,387 | $246,387 |
| 2022 | $220,416 | $70,000 | $0 | $290,416 | $290,416 |
Deed and Sales History
| 1 | 12/21/2023 | QCD | Quit Claim Deed | JOLINDA SAINDON | BART D & SUSAN L STOTLER | | | | 142127 | |
| 2 | 10/11/2023 | SWD | Statutory Warranty Deed | RABIYA PROPERTIES LLC | JOLINDA SAINDON | | | $445,000.00 | 141718 | |
| 3 | 07/17/2023 | SWD | Statutory Warranty Deed | BARRY HERNANDEZ | RABIYA PROPERTIES LLC | | | $220,000.00 | 141262 | |
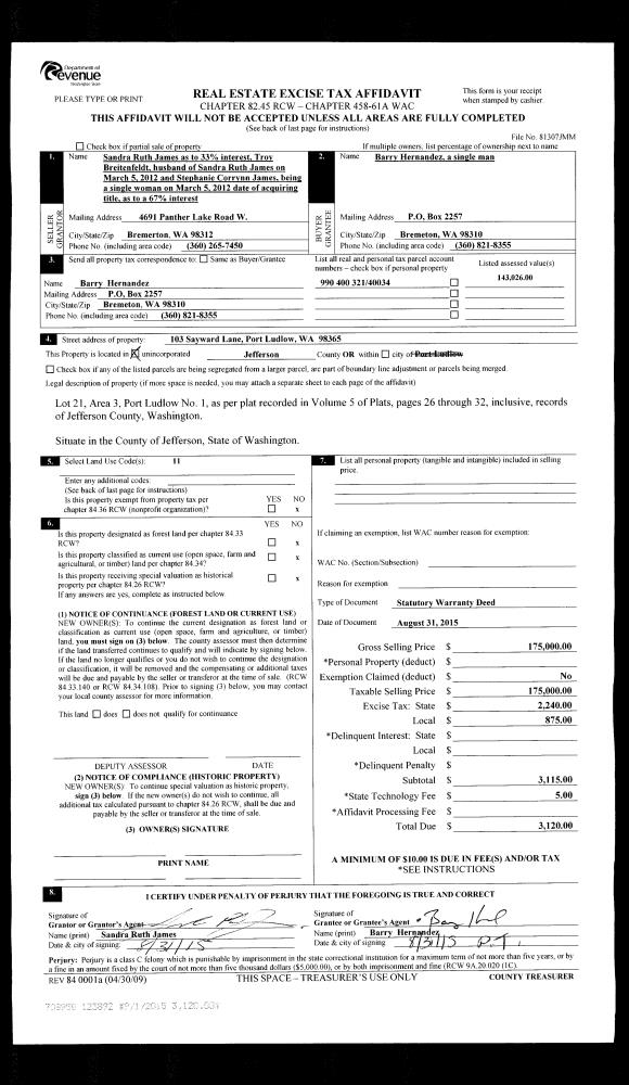
| 4 | 08/31/2015 | SWD | Statutory Warranty Deed | SANDRA R JAMES | BARRY HERNANDEZ | | | $175,000.00 | 123892 | |
| 5 | 08/31/2015 | QCD | Quit Claim Deed | | | | | | 123890 | |
| 6 | 03/05/2012 | QCD | Quit Claim Deed | SMEDLEY, MARLENE ANN | JAMES, SANDRA/JAMES, STEPHANIE | 0 | 0 | $0.00 | 117231 | 0 |
| 7 | 08/22/2000 | SWD | Statutory Warranty Deed | TAYLOR, TY W | SMEDLEY, MARLENE A | 0 | 0 | $113,500.00 | 90459 | 0 |
Payout Agreement
| No payout information available.. |