Property
Account |
| Property ID: | 40088 | Abbreviated Legal Description: | PORT LUDLOW NO 1 AREA 4 LOTS 18(ALL),19(LS TAX 20)&20(TAX 21) BND BY BLA#130529 |
| Parcel # / Geo ID: | 990400419 | Agent Code: | |
| Type: | Real | | |
| Tax Area: | 0213 - 1-49F1E1H2L1 | Land Use Code | 11 |
| Open Space: | N | DFL | N |
| Historic Property: | N | Remodel Property: | N |
| Multi-Family Redevelopment: | N | | |
| Township: | 28N | Section: | 9 |
| Range: | 1E |
Location |
| Address: | 61 CASCADE LN PORT LUDLOW, WA 98365 | Mapsco: | 101/019 |
| Neighborhood: | PORT LUDLOW #1 AREAS 3 & 4 | Map ID: | |
| Neighborhood CD: | 3332 |
Owner |
| Name: | KRISTIN L & IAN E CARVER | Owner ID: | 100034 |
| Mailing Address: | 61 CASCADE LN PORT LUDLOW, WA 98365-9535 | % Ownership: | 100.0000000000% |
| | | Exemptions: | |
Pay Tax Due
Select the appropriate checkbox next to the year to be paid. Multiple years may be selected.
*Convenience Fee not included
Taxes and Assessment Details
Property Tax Information as of
03/11/2026
Click on "Statement Details" to expand or collapse a tax statement.
* Please enter a valid date ** Please enter a valid date *
Statement Details |
| 2026 | 29260 | STATE - STATE LEVY (SCHOOL) | $734.98 | $734.97 | $0.00 | $0.00 | $0.00 | $1469.95 |
| 2026 | 29260 | COUNTY - COUNTY LEVIES (CE, DD, VET, MH) | $293.85 | $293.82 | $0.00 | $0.00 | $0.00 | $587.67 |
| 2026 | 29260 | CONSERVE - CONSERVATION FUTURES | $8.81 | $8.81 | $0.00 | $0.00 | $0.00 | $17.62 |
| 2026 | 29260 | COROADS - COUNTY ROADS (ROADS, DIV TO CE) | $237.05 | $237.04 | $0.00 | $0.00 | $0.00 | $474.09 |
| 2026 | 29260 | PORTPT - PORT DISTRICT | $118.68 | $118.67 | $0.00 | $0.00 | $0.00 | $237.35 |
| 2026 | 29260 | PUD1 - PUD #1 | $19.12 | $19.11 | $0.00 | $0.00 | $0.00 | $38.23 |
| 2026 | 29260 | LIB1 - LIBRARY DIST #1 | $91.71 | $91.71 | $0.00 | $0.00 | $0.00 | $183.42 |
| 2026 | 29260 | HD2 - HOSP DIST #2 | $17.14 | $17.13 | $0.00 | $0.00 | $0.00 | $34.27 |
| 2026 | 29260 | SD49 - SCHOOL DIST #49 | $404.58 | $404.57 | $0.00 | $0.00 | $0.00 | $809.15 |
| 2026 | 29260 | FD1 - FIRE DISTRICT #1 | $389.12 | $389.11 | $0.00 | $0.00 | $0.00 | $778.23 |
| 2026 | 29260 | EMS1 - FIRE DIST #1 EMS | $149.61 | $149.61 | $0.00 | $0.00 | $0.00 | $299.22 |
| 2026 | 29260 | FP - DNR Forest Fire Protection Assmt | $8.50 | $8.50 | $0.00 | $0.00 | $0.00 | $17.00 |
| 2026 | 29260 | FPLCA - DNR Landowner Contingency Assmt | $3.00 | $3.00 | $0.00 | $0.00 | $0.00 | $6.00 |
| 2026 | 29260 | JCCD - JC Conservation District | $2.55 | $2.55 | $0.00 | $0.00 | $0.00 | $5.10 |
| 2026 | 29260 | LUD - PT Ludlow Drainage District | $40.37 | $40.37 | $0.00 | $0.00 | $0.00 | $80.74 |
| 2026 | 29260 | NWA - Noxious Weed Assessment | $2.98 | $2.97 | $0.00 | $0.00 | $0.00 | $5.95 |
| 2026 | 29260 | Drain - DRAINAGE DISTRICT FEE | $0.81 | $0.00 | $0.00 | $0.00 | $0.00 | $0.81 |
| 2026 | 29260 | FP ADMIN - FP ADMIN | $0.50 | $0.00 | $0.00 | $0.00 | $0.00 | $0.50 |
| 2026 | 29260 | TOTAL: | $2523.36 | $2521.94 | $0.00 | $0.00 | $0.00 | $5045.30 |
|
| 2026 | 29260 | $2523.36 | $2521.94 | $0.00 | $0.00 | $0.00 | $5045.30 |
Statement Details |
| 2025 | 29332 | STATE - STATE LEVY (SCHOOL) | $766.60 | $766.60 | $0.00 | $0.00 | $1533.20 | $0.00 |
| 2025 | 29332 | COUNTY - COUNTY LEVIES (CE, DD, VET, MH) | $301.48 | $301.44 | $0.00 | $0.00 | $602.92 | $0.00 |
| 2025 | 29332 | CONSERVE - CONSERVATION FUTURES | $9.04 | $9.04 | $0.00 | $0.00 | $18.08 | $0.00 |
| 2025 | 29332 | COROADS - COUNTY ROADS (ROADS, DIV TO CE) | $241.53 | $241.51 | $0.00 | $0.00 | $483.04 | $0.00 |
| 2025 | 29332 | PORTPT - PORT DISTRICT | $123.02 | $123.01 | $0.00 | $0.00 | $246.03 | $0.00 |
| 2025 | 29332 | PUD1 - PUD #1 | $19.73 | $19.72 | $0.00 | $0.00 | $39.45 | $0.00 |
| 2025 | 29332 | LIB1 - LIBRARY DIST #1 | $93.44 | $93.44 | $0.00 | $0.00 | $186.88 | $0.00 |
| 2025 | 29332 | HD2 - HOSP DIST #2 | $17.59 | $17.59 | $0.00 | $0.00 | $35.18 | $0.00 |
| 2025 | 29332 | SD49 - SCHOOL DIST #49 | $410.85 | $410.85 | $0.00 | $0.00 | $821.70 | $0.00 |
| 2025 | 29332 | FD1 - FIRE DISTRICT #1 | $397.81 | $397.81 | $0.00 | $0.00 | $795.62 | $0.00 |
| 2025 | 29332 | EMS1 - FIRE DIST #1 EMS | $153.01 | $153.01 | $0.00 | $0.00 | $306.02 | $0.00 |
| 2025 | 29332 | FP - DNR Forest Fire Protection Assmt | $8.50 | $8.50 | $0.00 | $0.00 | $17.00 | $0.00 |
| 2025 | 29332 | FPLCA - DNR Landowner Contingency Assmt | $3.00 | $3.00 | $0.00 | $0.00 | $6.00 | $0.00 |
| 2025 | 29332 | JCCD - JC Conservation District | $2.55 | $2.55 | $0.00 | $0.00 | $5.10 | $0.00 |
| 2025 | 29332 | LUD - PT Ludlow Drainage District | $32.37 | $32.36 | $0.00 | $0.00 | $64.73 | $0.00 |
| 2025 | 29332 | NWA - Noxious Weed Assessment | $2.15 | $2.15 | $0.00 | $0.00 | $4.30 | $0.00 |
| 2025 | 29332 | Drain - DRAINAGE DISTRICT FEE | $0.65 | $0.00 | $0.00 | $0.00 | $0.65 | $0.00 |
| 2025 | 29332 | FP ADMIN - FP ADMIN | $0.50 | $0.00 | $0.00 | $0.00 | $0.50 | $0.00 |
| 2025 | 29332 | TOTAL: | $2583.82 | $2582.58 | $0.00 | $0.00 | $5166.40 | $0.00 |
|
| 2025 | 29332 | $2583.82 | $2582.58 | $0.00 | $0.00 | $5166.40 | $0.00 |
Statement Details |
| 2024 | 29392 | STATE - STATE LEVY (SCHOOL) | $693.30 | $693.30 | $0.00 | $0.00 | $1386.60 | $0.00 |
| 2024 | 29392 | COUNTY - COUNTY LEVIES (CE, DD, VET, MH) | $296.69 | $296.65 | $0.00 | $0.00 | $593.34 | $0.00 |
| 2024 | 29392 | CONSERVE - CONSERVATION FUTURES | $8.90 | $8.89 | $0.00 | $0.00 | $17.79 | $0.00 |
| 2024 | 29392 | COROADS - COUNTY ROADS (ROADS, DIV TO CE) | $238.72 | $238.72 | $0.00 | $0.00 | $477.44 | $0.00 |
| 2024 | 29392 | PORTPT - PORT DISTRICT | $122.54 | $122.53 | $0.00 | $0.00 | $245.07 | $0.00 |
| 2024 | 29392 | PUD1 - PUD #1 | $19.49 | $19.48 | $0.00 | $0.00 | $38.97 | $0.00 |
| 2024 | 29392 | LIB1 - LIBRARY DIST #1 | $92.36 | $92.36 | $0.00 | $0.00 | $184.72 | $0.00 |
| 2024 | 29392 | HD2 - HOSP DIST #2 | $17.31 | $17.31 | $0.00 | $0.00 | $34.62 | $0.00 |
| 2024 | 29392 | SD49 - SCHOOL DIST #49 | $309.60 | $309.58 | $0.00 | $0.00 | $619.18 | $0.00 |
| 2024 | 29392 | FD1 - FIRE DISTRICT #1 | $392.27 | $392.26 | $0.00 | $0.00 | $784.53 | $0.00 |
| 2024 | 29392 | EMS1 - FIRE DIST #1 EMS | $149.83 | $149.83 | $0.00 | $0.00 | $299.66 | $0.00 |
| 2024 | 29392 | JCCD - JC Conservation District | $2.55 | $2.55 | $0.00 | $0.00 | $5.10 | $0.00 |
| 2024 | 29392 | LUD - PT Ludlow Drainage District | $28.42 | $28.41 | $0.00 | $0.00 | $56.83 | $0.00 |
| 2024 | 29392 | NWA - Noxious Weed Assessment | $2.15 | $2.15 | $0.00 | $0.00 | $4.30 | $0.00 |
| 2024 | 29392 | Drain - DRAINAGE DISTRICT FEE | $0.57 | $0.00 | $0.00 | $0.00 | $0.57 | $0.00 |
| 2024 | 29392 | TOTAL: | $2374.70 | $2374.02 | $0.00 | $0.00 | $4748.72 | $0.00 |
|
| 2024 | 29392 | $2374.70 | $2374.02 | $0.00 | $0.00 | $4748.72 | $0.00 |
Statement Details |
| 2023 | 29434 | STATE - STATE LEVY (SCHOOL) | $676.58 | $676.56 | $0.00 | $0.00 | $1353.14 | $0.00 |
| 2023 | 29434 | COUNTY - COUNTY LEVIES (CE, DD, VET, MH) | $295.25 | $295.21 | $0.00 | $0.00 | $590.46 | $0.00 |
| 2023 | 29434 | CONSERVE - CONSERVATION FUTURES | $8.86 | $8.85 | $0.00 | $0.00 | $17.71 | $0.00 |
| 2023 | 29434 | COROADS - COUNTY ROADS (ROADS, DIV TO CE) | $238.87 | $238.86 | $0.00 | $0.00 | $477.73 | $0.00 |
| 2023 | 29434 | PORTPT - PORT DISTRICT | $124.38 | $124.36 | $0.00 | $0.00 | $248.74 | $0.00 |
| 2023 | 29434 | PUD1 - PUD #1 | $19.57 | $19.57 | $0.00 | $0.00 | $39.14 | $0.00 |
| 2023 | 29434 | LIB1 - LIBRARY DIST #1 | $92.42 | $92.41 | $0.00 | $0.00 | $184.83 | $0.00 |
| 2023 | 29434 | HD2 - HOSP DIST #2 | $17.24 | $17.22 | $0.00 | $0.00 | $34.46 | $0.00 |
| 2023 | 29434 | SD49 - SCHOOL DIST #49 | $316.26 | $316.26 | $0.00 | $0.00 | $632.52 | $0.00 |
| 2023 | 29434 | FD3 - FIRE DISTRICT #3 | $293.72 | $293.72 | $0.00 | $0.00 | $587.44 | $0.00 |
| 2023 | 29434 | EMS3 - FIRE DIST #3 EMS | $105.01 | $105.00 | $0.00 | $0.00 | $210.01 | $0.00 |
| 2023 | 29434 | JCCD - JC Conservation District | $2.55 | $2.55 | $0.00 | $0.00 | $5.10 | $0.00 |
| 2023 | 29434 | LUD - PT Ludlow Drainage District | $28.59 | $28.58 | $0.00 | $0.00 | $57.17 | $0.00 |
| 2023 | 29434 | NWA - Noxious Weed Assessment | $2.15 | $2.15 | $0.00 | $0.00 | $4.30 | $0.00 |
| 2023 | 29434 | Drain - DRAINAGE DISTRICT FEE | $0.57 | $0.00 | $0.00 | $0.00 | $0.57 | $0.00 |
| 2023 | 29434 | TOTAL: | $2222.02 | $2221.30 | $0.00 | $0.00 | $4443.32 | $0.00 |
|
| 2023 | 29434 | $2222.02 | $2221.30 | $0.00 | $0.00 | $4443.32 | $0.00 |
Values
| (+) Improvement Homesite Value: | + | $0 | |
| (+) Improvement Non-Homesite Value: | + | $468,860 | |
| (+) Land Homesite Value: | + | $0 | |
| (+) Land Non-Homesite Value: | + | $170,500 | |
| (+) Curr Use (HS): | + | $0 | $0 |
| (+) Curr Use (NHS): | + | $0 | $0 |
| | | -------------------------- | |
| (=) Market Value: | = | $639,360 | |
| (–) Productivity Loss: | – | $0 | |
| | | -------------------------- | |
| (=) Subtotal: | = | $639,360 | |
| (+) Senior Appraised Value: | + | $0 | |
| (+) Non-Senior Appraised Value: | + | $639,360 | |
| | | -------------------------- | |
| (=) Total Appraised Value: | = | $639,360 | |
| (–) Senior Exemption Loss: | – | $0 | |
| (–) Exemption Loss: | – | $0 | |
| | | -------------------------- | |
| (=) Taxable Value: | = | $639,360 | |
Taxing Jurisdiction
| Owner: | KRISTIN L & IAN E CARVER | | |
| % Ownership: | 100.0000000000% | | |
| Total Value: | $639,360 | | |
| Tax Area: | 0213 - 1-49F1E1H2L1 |
| CE | COUNTY CURRENT EXPENSE | 0.9034619479 | $639,360 | $639,360 | $577.64 | | |
| CNTYDD | DEVELOPMENTAL DISABILITIES | 0.0052121823 | $639,360 | $639,360 | $3.33 | | |
| CNTYVET | VETERANS RELIEF | 0.0052777810 | $639,360 | $639,360 | $3.37 | | |
| MENTAL | MENTAL HEALTH | 0.0052121823 | $639,360 | $639,360 | $3.33 | | |
| ROADS | COUNTY ROADS | 0.7415066410 | $639,360 | $639,360 | $474.09 | | |
| ROADSCU | COUNTY ROADS TO CUR EXP | 0.0000000000 | $639,360 | $639,360 | $0.00 | | |
| HOSP2CASH | HOSP DIST #2 GENERAL | 0.0536075306 | $639,360 | $639,360 | $34.27 | | |
| SCH49CP | SCHOOL DIST #49 CAP PROJ | 0.6279093905 | $639,360 | $639,360 | $401.46 | | |
| SCH49MO | SCHOOL DIST #49 EP & O | 0.6376483602 | $639,360 | $639,360 | $407.69 | | |
| CONSERVE | CONSERVATION FUTURES | 0.0275621078 | $639,360 | $639,360 | $17.62 | | |
| EMS1 | FIRE DIST #1 EMS | 0.4679948282 | $639,360 | $639,360 | $299.22 | | |
| FD1 | FIRE DIST #1 GENERAL | 1.2171942929 | $639,360 | $639,360 | $778.23 | | |
| LIB1 | LIBRARY DIST #1 GENERAL | 0.2868827388 | $639,360 | $639,360 | $183.42 | | |
| PORTPT | PORT OF PT GENERAL | 0.1134941229 | $639,360 | $639,360 | $72.56 | | |
| PORTPTIDD | PORT OF PT IDD 2019 | 0.2577346692 | $639,360 | $639,360 | $164.79 | | |
| PUD1 | PUD #1 GENERAL | 0.0597888892 | $639,360 | $639,360 | $38.23 | | |
| STATE | STATE SCHOOL PART 1 | 1.4940692947 | $639,360 | $639,360 | $955.25 | | |
| STATE2 | STATE SCHOOL PART 2 | 0.8050170049 | $639,360 | $639,360 | $514.70 | | |
| | Total Tax Rate: | 7.7095739644 | | | | | |
| | | | | Taxes w/Current Exemptions: | $4,929.20 | | |
| | | | | Taxes w/o Exemptions: | $4,929.20 | | |
Improvement / Building
| Improvement #1: | Residential Bldg | State Code: | 11 | 1663.0 sqft | Value: | $330,990 |
| Bathrooms (#): | 2 (FULL) | Bedrooms (#): | 3 | | Exterior Wall: | SI/ST | Fireplace: | WD ST-GOOD | | Floor Construction: | FRAME | Foundation: | CONPR | | Heating/Cooling: | HPUMP | Inside Verify: | NO | | Roof Cover: | TILE |   |   |
|
| | Type | Description | Class CD | Sub Class CD | Year Built | Area |
| | MA | Main Area | 4- | 1S | 1990 | 1663.0 |
| | PATIO | House Patio | 4 | * | 1990 | 360.0 |
| | HWPOR | House Wood Porch | 4 | * | 1990 | 50.0 |
| | HDECK | House Deck | 4 | * | 1990 | 192.0 |
| | HDECK | House Deck | 4 | * | 1990 | 192.0 |
| | GATT | House Attached Garage | 4 | * | 1990 | 480.0 |
| | CONCD | Concrete Drive | 4 | * | 1990 | 750.0 |
| | SHED | Shed (Table Not Dep) | * | * | 2021 | 100.0 |
| Improvement #2: | Residential Bldg | State Code: | 11 | 800.0 sqft | Value: | $137,870 |
| Bathrooms (#): | 1 (FULL) | Bedrooms (#): | 1 | | Exterior Wall: | SI/ST | Floor Construction: | FRAME | | Foundation: | CONPR | Heating/Cooling: | ELBB | | Inside Verify: | NO | Roof Cover: | TILE |
|
Sketch
Property Image
Land
| 1 | 3332-1185L | | 0.7176 | 31259.00 | 0.00 | 0.00 | 2.00 | $170,500 | $0 |
Roll Value History
| 2026 | N/A | N/A | N/A | N/A | N/A |
| 2025 | $468,860 | $170,500 | $0 | $639,360 | $639,360 |
| 2024 | $468,860 | $170,500 | $0 | $639,360 | $639,360 |
| 2023 | $449,325 | $150,000 | $0 | $599,325 | $599,325 |
| 2022 | $429,788 | $145,000 | $0 | $574,788 | $574,788 |
Deed and Sales History
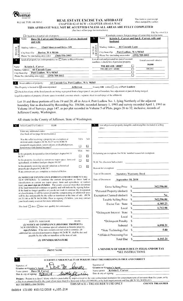
| 1 | 09/18/2018 | SWD | Statutory Warranty Deed | DAVE & MARGARET CARVER | KRISTIN L & IAN E CARVER | | | $342,596.00 | 131180 | |
| 2 | 07/17/2014 | SWD | Statutory Warranty Deed | JAMES H RABB | DAVE & MARGARET CARVER | | | $295,000.00 | 121590 | |
| 3 | 05/21/2001 | SWD | Statutory Warranty Deed | HALSTED, MATTHEW D/KRISTI | RABB, JAMES H/SHARILYN R | 0 | 0 | $235,000.00 | 92267 | 0 |
| 4 | 05/19/1998 | QCD | Quit Claim Deed | KALMBACH, MARYANN | HALSTED, MATTHEW D/KRISTEN M | 0 | 0 | $0.00 | 84555 | 0 |
| 5 | 03/19/1997 | SWD | Statutory Warranty Deed | PERILLO, MICHAEL J/CHRIST | HALSTED, MATTHEW D/ET AL | 0 | 0 | $160,000.00 | 81615 | 0 |
| 6 | 12/18/1992 | BLA | Boundary Line Adjustment | LACKEY, SHIRLEY/DANNY | PERILLO, CHRISTY/MICHAEL | 0 | 0 | $0.00 | 70132 | 0 |
Payout Agreement
| No payout information available.. |