Property
Account |
| Property ID: | 40104 | Abbreviated Legal Description: | PORT LUDLOW NO. 1 AREA 4, LOT 35 |
| Parcel # / Geo ID: | 990400435 | Agent Code: | |
| Type: | Real | | |
| Tax Area: | 0213 - 1-49F1E1H2L1 | Land Use Code | 11 |
| Open Space: | N | DFL | N |
| Historic Property: | N | Remodel Property: | N |
| Multi-Family Redevelopment: | N | | |
| Township: | 28N | Section: | 9 |
| Range: | 1E |
Location |
| Address: | | Mapsco: | 101/035 |
| Neighborhood: | PORT LUDLOW #1 AREAS 3 & 4 | Map ID: | |
| Neighborhood CD: | 3332 |
Owner |
| Name: | ROBERT C ENSTROM | Owner ID: | 109417 |
| Mailing Address: | 45 OLYMPIC LN PORT LUDLOW, WA 98365-9567 | % Ownership: | 100.0000000000% |
| | | Exemptions: | |
Pay Tax Due
Select the appropriate checkbox next to the year to be paid. Multiple years may be selected.
*Convenience Fee not included
Taxes and Assessment Details
Property Tax Information as of
03/12/2026
Click on "Statement Details" to expand or collapse a tax statement.
* Please enter a valid date ** Please enter a valid date *
Statement Details |
| 2026 | 29276 | STATE - STATE LEVY (SCHOOL) | $37.94 | $37.93 | $0.00 | $0.00 | $0.00 | $75.87 |
| 2026 | 29276 | COUNTY - COUNTY LEVIES (CE, DD, VET, MH) | $15.18 | $15.14 | $0.00 | $0.00 | $0.00 | $30.32 |
| 2026 | 29276 | CONSERVE - CONSERVATION FUTURES | $0.46 | $0.45 | $0.00 | $0.00 | $0.00 | $0.91 |
| 2026 | 29276 | COROADS - COUNTY ROADS (ROADS, DIV TO CE) | $12.24 | $12.23 | $0.00 | $0.00 | $0.00 | $24.47 |
| 2026 | 29276 | PORTPT - PORT DISTRICT | $6.14 | $6.12 | $0.00 | $0.00 | $0.00 | $12.26 |
| 2026 | 29276 | PUD1 - PUD #1 | $0.99 | $0.98 | $0.00 | $0.00 | $0.00 | $1.97 |
| 2026 | 29276 | LIB1 - LIBRARY DIST #1 | $4.74 | $4.73 | $0.00 | $0.00 | $0.00 | $9.47 |
| 2026 | 29276 | HD2 - HOSP DIST #2 | $0.89 | $0.88 | $0.00 | $0.00 | $0.00 | $1.77 |
| 2026 | 29276 | SD49 - SCHOOL DIST #49 | $20.88 | $20.88 | $0.00 | $0.00 | $0.00 | $41.76 |
| 2026 | 29276 | FD1 - FIRE DISTRICT #1 | $20.09 | $20.08 | $0.00 | $0.00 | $0.00 | $40.17 |
| 2026 | 29276 | EMS1 - FIRE DIST #1 EMS | $7.72 | $7.72 | $0.00 | $0.00 | $0.00 | $15.44 |
| 2026 | 29276 | JCCD - JC Conservation District | $2.55 | $2.55 | $0.00 | $0.00 | $0.00 | $5.10 |
| 2026 | 29276 | LUD - PT Ludlow Drainage District | $15.41 | $15.40 | $0.00 | $0.00 | $0.00 | $30.81 |
| 2026 | 29276 | NWA - Noxious Weed Assessment | $2.98 | $2.97 | $0.00 | $0.00 | $0.00 | $5.95 |
| 2026 | 29276 | WAT - Clean Water District | $13.00 | $13.00 | $0.00 | $0.00 | $0.00 | $26.00 |
| 2026 | 29276 | Drain - DRAINAGE DISTRICT FEE | $0.31 | $0.00 | $0.00 | $0.00 | $0.00 | $0.31 |
| 2026 | 29276 | TOTAL: | $161.52 | $161.06 | $0.00 | $0.00 | $0.00 | $322.58 |
|
| 2026 | 29276 | $161.52 | $161.06 | $0.00 | $0.00 | $0.00 | $322.58 |
Statement Details |
| 2025 | 29348 | STATE - STATE LEVY (SCHOOL) | $39.57 | $39.56 | $0.00 | $0.00 | $79.13 | $0.00 |
| 2025 | 29348 | COUNTY - COUNTY LEVIES (CE, DD, VET, MH) | $15.57 | $15.56 | $0.00 | $0.00 | $31.13 | $0.00 |
| 2025 | 29348 | CONSERVE - CONSERVATION FUTURES | $0.47 | $0.46 | $0.00 | $0.00 | $0.93 | $0.00 |
| 2025 | 29348 | COROADS - COUNTY ROADS (ROADS, DIV TO CE) | $12.47 | $12.46 | $0.00 | $0.00 | $24.93 | $0.00 |
| 2025 | 29348 | PORTPT - PORT DISTRICT | $6.35 | $6.35 | $0.00 | $0.00 | $12.70 | $0.00 |
| 2025 | 29348 | PUD1 - PUD #1 | $1.02 | $1.02 | $0.00 | $0.00 | $2.04 | $0.00 |
| 2025 | 29348 | LIB1 - LIBRARY DIST #1 | $4.83 | $4.82 | $0.00 | $0.00 | $9.65 | $0.00 |
| 2025 | 29348 | HD2 - HOSP DIST #2 | $0.91 | $0.91 | $0.00 | $0.00 | $1.82 | $0.00 |
| 2025 | 29348 | SD49 - SCHOOL DIST #49 | $21.21 | $21.20 | $0.00 | $0.00 | $42.41 | $0.00 |
| 2025 | 29348 | FD1 - FIRE DISTRICT #1 | $20.54 | $20.53 | $0.00 | $0.00 | $41.07 | $0.00 |
| 2025 | 29348 | EMS1 - FIRE DIST #1 EMS | $7.90 | $7.89 | $0.00 | $0.00 | $15.79 | $0.00 |
| 2025 | 29348 | JCCD - JC Conservation District | $2.55 | $2.55 | $0.00 | $0.00 | $5.10 | $0.00 |
| 2025 | 29348 | LUD - PT Ludlow Drainage District | $12.33 | $12.32 | $0.00 | $0.00 | $24.65 | $0.00 |
| 2025 | 29348 | NWA - Noxious Weed Assessment | $2.15 | $2.15 | $0.00 | $0.00 | $4.30 | $0.00 |
| 2025 | 29348 | WAT - Clean Water District | $13.00 | $13.00 | $0.00 | $0.00 | $26.00 | $0.00 |
| 2025 | 29348 | Drain - DRAINAGE DISTRICT FEE | $0.25 | $0.00 | $0.00 | $0.00 | $0.25 | $0.00 |
| 2025 | 29348 | TOTAL: | $161.12 | $160.78 | $0.00 | $0.00 | $321.90 | $0.00 |
|
| 2025 | 29348 | $161.12 | $160.78 | $0.00 | $0.00 | $321.90 | $0.00 |
Statement Details |
| 2024 | 29408 | STATE - STATE LEVY (SCHOOL) | $34.71 | $34.69 | $0.00 | $0.00 | $69.40 | $0.00 |
| 2024 | 29408 | COUNTY - COUNTY LEVIES (CE, DD, VET, MH) | $14.87 | $14.84 | $0.00 | $0.00 | $29.71 | $0.00 |
| 2024 | 29408 | CONSERVE - CONSERVATION FUTURES | $0.45 | $0.44 | $0.00 | $0.00 | $0.89 | $0.00 |
| 2024 | 29408 | COROADS - COUNTY ROADS (ROADS, DIV TO CE) | $11.95 | $11.94 | $0.00 | $0.00 | $23.89 | $0.00 |
| 2024 | 29408 | PORTPT - PORT DISTRICT | $6.14 | $6.13 | $0.00 | $0.00 | $12.27 | $0.00 |
| 2024 | 29408 | PUD1 - PUD #1 | $0.98 | $0.97 | $0.00 | $0.00 | $1.95 | $0.00 |
| 2024 | 29408 | LIB1 - LIBRARY DIST #1 | $4.63 | $4.62 | $0.00 | $0.00 | $9.25 | $0.00 |
| 2024 | 29408 | HD2 - HOSP DIST #2 | $0.87 | $0.86 | $0.00 | $0.00 | $1.73 | $0.00 |
| 2024 | 29408 | SD49 - SCHOOL DIST #49 | $15.51 | $15.49 | $0.00 | $0.00 | $31.00 | $0.00 |
| 2024 | 29408 | FD1 - FIRE DISTRICT #1 | $19.64 | $19.63 | $0.00 | $0.00 | $39.27 | $0.00 |
| 2024 | 29408 | EMS1 - FIRE DIST #1 EMS | $7.50 | $7.50 | $0.00 | $0.00 | $15.00 | $0.00 |
| 2024 | 29408 | JCCD - JC Conservation District | $2.55 | $2.55 | $0.00 | $0.00 | $5.10 | $0.00 |
| 2024 | 29408 | LUD - PT Ludlow Drainage District | $10.79 | $10.78 | $0.00 | $0.00 | $21.57 | $0.00 |
| 2024 | 29408 | NWA - Noxious Weed Assessment | $2.15 | $2.15 | $0.00 | $0.00 | $4.30 | $0.00 |
| 2024 | 29408 | WAT - Clean Water District | $12.50 | $12.50 | $0.00 | $0.00 | $25.00 | $0.00 |
| 2024 | 29408 | Drain - DRAINAGE DISTRICT FEE | $0.22 | $0.00 | $0.00 | $0.00 | $0.22 | $0.00 |
| 2024 | 29408 | TOTAL: | $145.46 | $145.09 | $0.00 | $0.00 | $290.55 | $0.00 |
|
| 2024 | 29408 | $145.46 | $145.09 | $0.00 | $0.00 | $290.55 | $0.00 |
Statement Details |
| 2023 | 29450 | STATE - STATE LEVY (SCHOOL) | $35.32 | $35.30 | $0.00 | $0.00 | $70.62 | $0.00 |
| 2023 | 29450 | COUNTY - COUNTY LEVIES (CE, DD, VET, MH) | $15.42 | $15.39 | $0.00 | $0.00 | $30.81 | $0.00 |
| 2023 | 29450 | CONSERVE - CONSERVATION FUTURES | $0.46 | $0.46 | $0.00 | $0.00 | $0.92 | $0.00 |
| 2023 | 29450 | COROADS - COUNTY ROADS (ROADS, DIV TO CE) | $12.47 | $12.46 | $0.00 | $0.00 | $24.93 | $0.00 |
| 2023 | 29450 | PORTPT - PORT DISTRICT | $6.50 | $6.49 | $0.00 | $0.00 | $12.99 | $0.00 |
| 2023 | 29450 | PUD1 - PUD #1 | $1.02 | $1.02 | $0.00 | $0.00 | $2.04 | $0.00 |
| 2023 | 29450 | LIB1 - LIBRARY DIST #1 | $4.83 | $4.82 | $0.00 | $0.00 | $9.65 | $0.00 |
| 2023 | 29450 | HD2 - HOSP DIST #2 | $0.90 | $0.90 | $0.00 | $0.00 | $1.80 | $0.00 |
| 2023 | 29450 | SD49 - SCHOOL DIST #49 | $16.52 | $16.50 | $0.00 | $0.00 | $33.02 | $0.00 |
| 2023 | 29450 | FD3 - FIRE DISTRICT #3 | $15.33 | $15.33 | $0.00 | $0.00 | $30.66 | $0.00 |
| 2023 | 29450 | EMS3 - FIRE DIST #3 EMS | $5.48 | $5.48 | $0.00 | $0.00 | $10.96 | $0.00 |
| 2023 | 29450 | JCCD - JC Conservation District | $2.53 | $2.53 | $0.00 | $0.00 | $5.06 | $0.00 |
| 2023 | 29450 | LUD - PT Ludlow Drainage District | $10.79 | $10.78 | $0.00 | $0.00 | $21.57 | $0.00 |
| 2023 | 29450 | NWA - Noxious Weed Assessment | $2.15 | $2.15 | $0.00 | $0.00 | $4.30 | $0.00 |
| 2023 | 29450 | WAT - Clean Water District | $12.00 | $12.00 | $0.00 | $0.00 | $24.00 | $0.00 |
| 2023 | 29450 | Drain - DRAINAGE DISTRICT FEE | $0.22 | $0.00 | $0.00 | $0.00 | $0.22 | $0.00 |
| 2023 | 29450 | TOTAL: | $141.94 | $141.61 | $0.00 | $0.00 | $283.55 | $0.00 |
|
| 2023 | 29450 | $141.94 | $141.61 | $0.00 | $0.00 | $283.55 | $0.00 |
Values
| (+) Improvement Homesite Value: | + | $0 | |
| (+) Improvement Non-Homesite Value: | + | $0 | |
| (+) Land Homesite Value: | + | $0 | |
| (+) Land Non-Homesite Value: | + | $33,000 | |
| (+) Curr Use (HS): | + | $0 | $0 |
| (+) Curr Use (NHS): | + | $0 | $0 |
| | | -------------------------- | |
| (=) Market Value: | = | $33,000 | |
| (–) Productivity Loss: | – | $0 | |
| | | -------------------------- | |
| (=) Subtotal: | = | $33,000 | |
| (+) Senior Appraised Value: | + | $0 | |
| (+) Non-Senior Appraised Value: | + | $33,000 | |
| | | -------------------------- | |
| (=) Total Appraised Value: | = | $33,000 | |
| (–) Senior Exemption Loss: | – | $0 | |
| (–) Exemption Loss: | – | $0 | |
| | | -------------------------- | |
| (=) Taxable Value: | = | $33,000 | |
Taxing Jurisdiction
| Owner: | ROBERT C ENSTROM | | |
| % Ownership: | 100.0000000000% | | |
| Total Value: | N/A | | |
| Tax Area: | 0213 - 1-49F1E1H2L1 |
| CE | COUNTY CURRENT EXPENSE | N/A | N/A | N/A | N/A | | |
| CNTYDD | DEVELOPMENTAL DISABILITIES | N/A | N/A | N/A | N/A | | |
| CNTYVET | VETERANS RELIEF | N/A | N/A | N/A | N/A | | |
| MENTAL | MENTAL HEALTH | N/A | N/A | N/A | N/A | | |
| ROADS | COUNTY ROADS | N/A | N/A | N/A | N/A | | |
| HOSP2CASH | HOSP DIST #2 GENERAL | N/A | N/A | N/A | N/A | | |
| SCH49CP | SCHOOL DIST #49 CAP PROJ | N/A | N/A | N/A | N/A | | |
| SCH49MO | SCHOOL DIST #49 EP & O | N/A | N/A | N/A | N/A | | |
| CONSERVE | CONSERVATION FUTURES | N/A | N/A | N/A | N/A | | |
| EMS1 | FIRE DIST #1 EMS | N/A | N/A | N/A | N/A | | |
| FD1 | FIRE DIST #1 GENERAL | N/A | N/A | N/A | N/A | | |
| LIB1 | LIBRARY DIST #1 GENERAL | N/A | N/A | N/A | N/A | | |
| PORTPT | PORT OF PT GENERAL | N/A | N/A | N/A | N/A | | |
| PORTPTIDD | PORT OF PT IDD 2019 | N/A | N/A | N/A | N/A | | |
| PUD1 | PUD #1 GENERAL | N/A | N/A | N/A | N/A | | |
| STATE | STATE SCHOOL PART 1 | N/A | N/A | N/A | N/A | | |
| STATE2 | STATE SCHOOL PART 2 | N/A | N/A | N/A | N/A | | |
| | Total Tax Rate: | N/A | | | | | |
| | | | | Taxes w/Current Exemptions: | N/A | | |
| | | | | Taxes w/o Exemptions: | N/A | | |
Improvement / Building
Sketch
| No sketches available for this property. |
Property Image
Land
| 1 | 3332-1185L | | 0.0000 | 0.00 | 0.00 | 0.00 | 1.00 | $33,000 | $0 |
Roll Value History
| 2026 | N/A | N/A | N/A | N/A | N/A |
| 2025 | $0 | $33,000 | $0 | $33,000 | $33,000 |
| 2024 | $0 | $33,000 | $0 | $33,000 | $33,000 |
| 2023 | $0 | $30,000 | $0 | $30,000 | $30,000 |
| 2022 | $0 | $30,000 | $0 | $30,000 | $30,000 |
Deed and Sales History
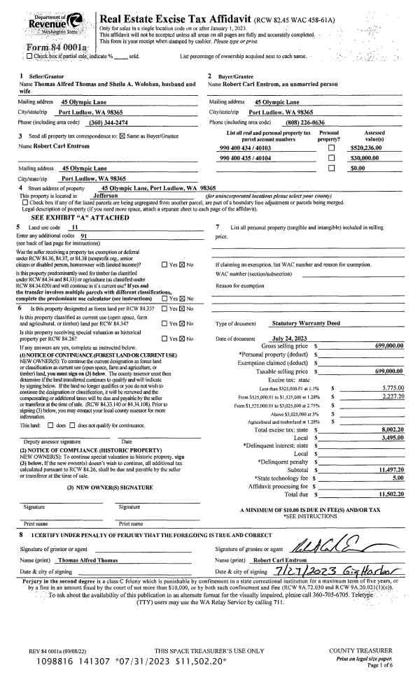
| 1 | 07/24/2023 | SWD | Statutory Warranty Deed | THOMAS A & SHEILA THOMAS | ROBERT C ENSTROM | | | $699,000.00 | 141307 | |
|   | |
| 2 | 01/04/2016 | SWD | Statutory Warranty Deed | GARY SCHROEDER | THOMAS A & SHEILA THOMAS | | | $334,000.00 | 124695 | |
|   | |
| 3 | 07/12/1999 | SWD | Statutory Warranty Deed | SODERBERG, DONALD G/WANDA | SCHROEDER, GARY R/VERONICA J | 0 | 0 | $10,000.00 | 87439 | 0 |
Payout Agreement
| No payout information available.. |