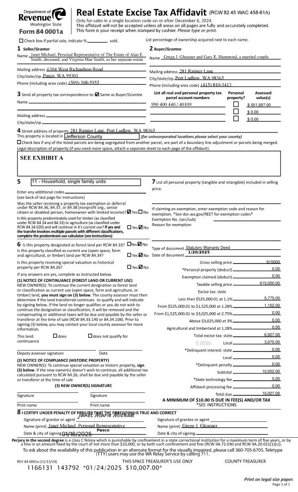
Property
Account |
| Property ID: | 40109 | Abbreviated Legal Description: | PORT LUDLOW NO. 1 AREA 4, LOT 40 |
| Parcel # / Geo ID: | 990400440 | Agent Code: | |
| Type: | Real | | |
| Tax Area: | 0213 - 1-49F1E1H2L1 | Land Use Code | 11 |
| Open Space: | N | DFL | N |
| Historic Property: | N | Remodel Property: | N |
| Multi-Family Redevelopment: | N | | |
| Township: | 28N | Section: | 8 |
| Range: | 1E |
Location |
| Address: | 281 RAINIER LN PORT LUDLOW, WA 98365 | Mapsco: | 101/040 |
| Neighborhood: | PORT LUDLOW #1 AREAS 3 & 4 | Map ID: | |
| Neighborhood CD: | 3332 |
Owner |
| Name: | GREGG J GLEASNER & | Owner ID: | 112059 |
| Mailing Address: | GARY E HAMMOND 281 RAINIER LN PORT LUDLOW, WA 98365-9652 | % Ownership: | 100.0000000000% |
| | | Exemptions: | |
Pay Tax Due
Select the appropriate checkbox next to the year to be paid. Multiple years may be selected.
*Convenience Fee not included
Taxes and Assessment Details
Property Tax Information as of
03/12/2026
Click on "Statement Details" to expand or collapse a tax statement.
* Please enter a valid date ** Please enter a valid date *
Statement Details |
| 2026 | 29281 | STATE - STATE LEVY (SCHOOL) | $673.82 | $673.81 | $0.00 | $0.00 | $0.00 | $1347.63 |
| 2026 | 29281 | COUNTY - COUNTY LEVIES (CE, DD, VET, MH) | $269.40 | $269.38 | $0.00 | $0.00 | $0.00 | $538.78 |
| 2026 | 29281 | CONSERVE - CONSERVATION FUTURES | $8.08 | $8.08 | $0.00 | $0.00 | $0.00 | $16.16 |
| 2026 | 29281 | COROADS - COUNTY ROADS (ROADS, DIV TO CE) | $217.32 | $217.32 | $0.00 | $0.00 | $0.00 | $434.64 |
| 2026 | 29281 | PORTPT - PORT DISTRICT | $108.81 | $108.79 | $0.00 | $0.00 | $0.00 | $217.60 |
| 2026 | 29281 | PUD1 - PUD #1 | $17.53 | $17.52 | $0.00 | $0.00 | $0.00 | $35.05 |
| 2026 | 29281 | LIB1 - LIBRARY DIST #1 | $84.08 | $84.08 | $0.00 | $0.00 | $0.00 | $168.16 |
| 2026 | 29281 | HD2 - HOSP DIST #2 | $15.71 | $15.71 | $0.00 | $0.00 | $0.00 | $31.42 |
| 2026 | 29281 | SD49 - SCHOOL DIST #49 | $370.91 | $370.90 | $0.00 | $0.00 | $0.00 | $741.81 |
| 2026 | 29281 | FD1 - FIRE DISTRICT #1 | $356.74 | $356.73 | $0.00 | $0.00 | $0.00 | $713.47 |
| 2026 | 29281 | EMS1 - FIRE DIST #1 EMS | $137.16 | $137.16 | $0.00 | $0.00 | $0.00 | $274.32 |
| 2026 | 29281 | JCCD - JC Conservation District | $2.55 | $2.55 | $0.00 | $0.00 | $0.00 | $5.10 |
| 2026 | 29281 | LUD - PT Ludlow Drainage District | $39.98 | $39.97 | $0.00 | $0.00 | $0.00 | $79.95 |
| 2026 | 29281 | NWA - Noxious Weed Assessment | $2.98 | $2.97 | $0.00 | $0.00 | $0.00 | $5.95 |
| 2026 | 29281 | Drain - DRAINAGE DISTRICT FEE | $0.80 | $0.00 | $0.00 | $0.00 | $0.00 | $0.80 |
| 2026 | 29281 | TOTAL: | $2305.87 | $2304.97 | $0.00 | $0.00 | $0.00 | $4610.84 |
|
| 2026 | 29281 | $2305.87 | $2304.97 | $0.00 | $0.00 | $0.00 | $4610.84 |
Statement Details |
| 2025 | 29353 | STATE - STATE LEVY (SCHOOL) | $662.05 | $662.04 | $0.00 | $0.00 | $1324.09 | $0.00 |
| 2025 | 29353 | COUNTY - COUNTY LEVIES (CE, DD, VET, MH) | $261.50 | $261.50 | $0.00 | $0.00 | $523.00 | $0.00 |
| 2025 | 29353 | CONSERVE - CONSERVATION FUTURES | $7.84 | $7.84 | $0.00 | $0.00 | $15.68 | $0.00 |
| 2025 | 29353 | COROADS - COUNTY ROADS (ROADS, DIV TO CE) | $209.51 | $209.49 | $0.00 | $0.00 | $419.00 | $0.00 |
| 2025 | 29353 | PORTPT - PORT DISTRICT | $106.71 | $106.70 | $0.00 | $0.00 | $213.41 | $0.00 |
| 2025 | 29353 | PUD1 - PUD #1 | $17.11 | $17.11 | $0.00 | $0.00 | $34.22 | $0.00 |
| 2025 | 29353 | LIB1 - LIBRARY DIST #1 | $81.06 | $81.05 | $0.00 | $0.00 | $162.11 | $0.00 |
| 2025 | 29353 | HD2 - HOSP DIST #2 | $15.26 | $15.25 | $0.00 | $0.00 | $30.51 | $0.00 |
| 2025 | 29353 | SD49 - SCHOOL DIST #49 | $351.90 | $351.89 | $0.00 | $0.00 | $703.79 | $0.00 |
| 2025 | 29353 | FD1 - FIRE DISTRICT #1 | $345.07 | $345.07 | $0.00 | $0.00 | $690.14 | $0.00 |
| 2025 | 29353 | EMS1 - FIRE DIST #1 EMS | $132.73 | $132.72 | $0.00 | $0.00 | $265.45 | $0.00 |
| 2025 | 29353 | LUD - PT Ludlow Drainage District | $32.05 | $32.05 | $0.00 | $0.00 | $64.10 | $0.00 |
| 2025 | 29353 | Drain - DRAINAGE DISTRICT FEE | $0.64 | $0.00 | $0.00 | $0.00 | $0.64 | $0.00 |
| 2025 | 29353 | TOTAL: | $2223.43 | $2222.71 | $0.00 | $0.00 | $4446.14 | $0.00 |
|
| 2025 | 29353 | $2223.43 | $2222.71 | $0.00 | $0.00 | $4446.14 | $0.00 |
Statement Details |
| 2024 | 29413 | STATE - STATE LEVY (SCHOOL) | $79.98 | $79.98 | $0.00 | $0.00 | $159.96 | $0.00 |
| 2024 | 29413 | COUNTY - COUNTY LEVIES (CE, DD, VET, MH) | $52.59 | $52.57 | $0.00 | $0.00 | $105.16 | $0.00 |
| 2024 | 29413 | CONSERVE - CONSERVATION FUTURES | $1.58 | $1.57 | $0.00 | $0.00 | $3.15 | $0.00 |
| 2024 | 29413 | COROADS - COUNTY ROADS (ROADS, DIV TO CE) | $42.31 | $42.31 | $0.00 | $0.00 | $84.62 | $0.00 |
| 2024 | 29413 | PORTPT - PORT DISTRICT | $21.73 | $21.71 | $0.00 | $0.00 | $43.44 | $0.00 |
| 2024 | 29413 | PUD1 - PUD #1 | $3.46 | $3.45 | $0.00 | $0.00 | $6.91 | $0.00 |
| 2024 | 29413 | LIB1 - LIBRARY DIST #1 | $16.37 | $16.37 | $0.00 | $0.00 | $32.74 | $0.00 |
| 2024 | 29413 | HD2 - HOSP DIST #2 | $3.07 | $3.07 | $0.00 | $0.00 | $6.14 | $0.00 |
| 2024 | 29413 | SD49 - SCHOOL DIST #49 | $0.00 | $0.00 | $0.00 | $0.00 | $0.00 | $0.00 |
| 2024 | 29413 | FD1 - FIRE DISTRICT #1 | $69.53 | $69.52 | $0.00 | $0.00 | $139.05 | $0.00 |
| 2024 | 29413 | EMS1 - FIRE DIST #1 EMS | $26.56 | $26.55 | $0.00 | $0.00 | $53.11 | $0.00 |
| 2024 | 29413 | LUD - PT Ludlow Drainage District | $28.14 | $28.14 | $0.00 | $0.00 | $56.28 | $0.00 |
| 2024 | 29413 | Drain - DRAINAGE DISTRICT FEE | $0.56 | $0.00 | $0.00 | $0.00 | $0.56 | $0.00 |
| 2024 | 29413 | TOTAL: | $345.88 | $345.24 | $0.00 | $0.00 | $691.12 | $0.00 |
|
| 2024 | 29413 | $345.88 | $345.24 | $0.00 | $0.00 | $691.12 | $0.00 |
Statement Details |
| 2023 | 29455 | STATE - STATE LEVY (SCHOOL) | $149.98 | $149.97 | $0.00 | $0.00 | $299.95 | $0.00 |
| 2023 | 29455 | COUNTY - COUNTY LEVIES (CE, DD, VET, MH) | $100.45 | $100.44 | $0.00 | $0.00 | $200.89 | $0.00 |
| 2023 | 29455 | CONSERVE - CONSERVATION FUTURES | $3.01 | $3.01 | $0.00 | $0.00 | $6.02 | $0.00 |
| 2023 | 29455 | COROADS - COUNTY ROADS (ROADS, DIV TO CE) | $81.27 | $81.27 | $0.00 | $0.00 | $162.54 | $0.00 |
| 2023 | 29455 | PORTPT - PORT DISTRICT | $42.32 | $42.31 | $0.00 | $0.00 | $84.63 | $0.00 |
| 2023 | 29455 | PUD1 - PUD #1 | $6.66 | $6.66 | $0.00 | $0.00 | $13.32 | $0.00 |
| 2023 | 29455 | LIB1 - LIBRARY DIST #1 | $31.45 | $31.44 | $0.00 | $0.00 | $62.89 | $0.00 |
| 2023 | 29455 | HD2 - HOSP DIST #2 | $5.87 | $5.86 | $0.00 | $0.00 | $11.73 | $0.00 |
| 2023 | 29455 | SD49 - SCHOOL DIST #49 | $0.00 | $0.00 | $0.00 | $0.00 | $0.00 | $0.00 |
| 2023 | 29455 | FD3 - FIRE DISTRICT #3 | $99.94 | $99.93 | $0.00 | $0.00 | $199.87 | $0.00 |
| 2023 | 29455 | EMS3 - FIRE DIST #3 EMS | $35.73 | $35.72 | $0.00 | $0.00 | $71.45 | $0.00 |
| 2023 | 29455 | LUD - PT Ludlow Drainage District | $28.31 | $28.31 | $0.00 | $0.00 | $56.62 | $0.00 |
| 2023 | 29455 | Drain - DRAINAGE DISTRICT FEE | $0.57 | $0.00 | $0.00 | $0.00 | $0.57 | $0.00 |
| 2023 | 29455 | TOTAL: | $585.56 | $584.92 | $0.00 | $0.00 | $1170.48 | $0.00 |
|
| 2023 | 29455 | $585.56 | $584.92 | $0.00 | $0.00 | $1170.48 | $0.00 |
Values
| (+) Improvement Homesite Value: | + | $481,656 | |
| (+) Improvement Non-Homesite Value: | + | $0 | |
| (+) Land Homesite Value: | + | $104,500 | |
| (+) Land Non-Homesite Value: | + | $0 | |
| (+) Curr Use (HS): | + | $0 | $0 |
| (+) Curr Use (NHS): | + | $0 | $0 |
| | | -------------------------- | |
| (=) Market Value: | = | $586,156 | |
| (–) Productivity Loss: | – | $0 | |
| | | -------------------------- | |
| (=) Subtotal: | = | $586,156 | |
| (+) Senior Appraised Value: | + | $0 | |
| (+) Non-Senior Appraised Value: | + | $586,156 | |
| | | -------------------------- | |
| (=) Total Appraised Value: | = | $586,156 | |
| (–) Senior Exemption Loss: | – | $0 | |
| (–) Exemption Loss: | – | $0 | |
| | | -------------------------- | |
| (=) Taxable Value: | = | $586,156 | |
Taxing Jurisdiction
| Owner: | GREGG J GLEASNER & | | |
| % Ownership: | 100.0000000000% | | |
| Total Value: | $586,156 | | |
| Tax Area: | 0213 - 1-49F1E1H2L1 |
| CE | COUNTY CURRENT EXPENSE | 0.9034619479 | $586,156 | $586,156 | $529.57 | | |
| CNTYDD | DEVELOPMENTAL DISABILITIES | 0.0052121823 | $586,156 | $586,156 | $3.06 | | |
| CNTYVET | VETERANS RELIEF | 0.0052777810 | $586,156 | $586,156 | $3.09 | | |
| MENTAL | MENTAL HEALTH | 0.0052121823 | $586,156 | $586,156 | $3.06 | | |
| ROADS | COUNTY ROADS | 0.7415066410 | $586,156 | $586,156 | $434.64 | | |
| ROADSCU | COUNTY ROADS TO CUR EXP | 0.0000000000 | $586,156 | $586,156 | $0.00 | | |
| HOSP2CASH | HOSP DIST #2 GENERAL | 0.0536075306 | $586,156 | $586,156 | $31.42 | | |
| SCH49CP | SCHOOL DIST #49 CAP PROJ | 0.6279093905 | $586,156 | $586,156 | $368.05 | | |
| SCH49MO | SCHOOL DIST #49 EP & O | 0.6376483602 | $586,156 | $586,156 | $373.76 | | |
| CONSERVE | CONSERVATION FUTURES | 0.0275621078 | $586,156 | $586,156 | $16.16 | | |
| EMS1 | FIRE DIST #1 EMS | 0.4679948282 | $586,156 | $586,156 | $274.32 | | |
| FD1 | FIRE DIST #1 GENERAL | 1.2171942929 | $586,156 | $586,156 | $713.47 | | |
| LIB1 | LIBRARY DIST #1 GENERAL | 0.2868827388 | $586,156 | $586,156 | $168.16 | | |
| PORTPT | PORT OF PT GENERAL | 0.1134941229 | $586,156 | $586,156 | $66.53 | | |
| PORTPTIDD | PORT OF PT IDD 2019 | 0.2577346692 | $586,156 | $586,156 | $151.07 | | |
| PUD1 | PUD #1 GENERAL | 0.0597888892 | $586,156 | $586,156 | $35.05 | | |
| STATE | STATE SCHOOL PART 1 | 1.4940692947 | $586,156 | $586,156 | $875.76 | | |
| STATE2 | STATE SCHOOL PART 2 | 0.8050170049 | $586,156 | $586,156 | $471.87 | | |
| | Total Tax Rate: | 7.7095739644 | | | | | |
| | | | | Taxes w/Current Exemptions: | $4,519.04 | | |
| | | | | Taxes w/o Exemptions: | $4,519.04 | | |
Improvement / Building
| Improvement #1: | Residential Bldg | State Code: | 11 | 2037.0 sqft | Value: | $481,656 |
| Bathrooms (#): | 2 (FULL) | Bathrooms (#): | 1 (HALF) | | Bedrooms (#): | 2 | Exterior Wall: | SI/ST | | Fireplace: | SIN 1-GOOD | Floor Construction: | FRAME | | Foundation: | CONPR | Heating/Cooling: | HPUMP | | Inside Verify: | YES-FIX | Roof Cover: | COMP |
|
| | Type | Description | Class CD | Sub Class CD | Year Built | Area |
| | MA | Main Area | 4+ | 1S | 2004 | 2037.0 |
| | PATIO | House Patio | 3 | * | 2004 | 106.0 |
| | HCPOR | House Concrete Porch | 3 | * | 2004 | 187.0 |
| | GATT | House Attached Garage | 3 | 1S | 2004 | 907.0 |
| | CONCD | Concrete Drive | 3 | * | 2004 | 1100.0 |
Sketch
Property Image
Land
| 1 | 3332-1185L | | 0.0000 | 0.00 | 0.00 | 0.00 | 1.00 | $104,500 | $0 |
Roll Value History
| 2026 | N/A | N/A | N/A | N/A | N/A |
| 2025 | $481,656 | $104,500 | $0 | $586,156 | $586,156 |
| 2024 | $481,656 | $104,500 | $0 | $586,156 | $106,226 |
| 2023 | $461,587 | $90,000 | $0 | $551,587 | $106,226 |
| 2022 | $441,518 | $85,000 | $0 | $526,518 | $195,565 |
Deed and Sales History
| 1 | 01/20/2025 | SWD | Statutory Warranty Deed | ALAN E SMITH | GREGG J GLEASNER & | | | $615,000.00 | 143792 | |
| 2 | 06/17/2003 | SWD | Statutory Warranty Deed | ROE, SUSAN ARLENE | SMITH, ALAN E/VIRGINIA MAE | 0 | 0 | $23,000.00 | 97601 | 0 |
| 3 | 10/30/1997 | QCD | Quit Claim Deed | STEINKE, HAROLD/EST | MUNGER, R S/STEINKE, B A & P J | 0 | 0 | $0.00 | 83326 | 0 |
Payout Agreement
| No payout information available.. |