Property
Account |
| Property ID: | 40135 | Abbreviated Legal Description: | PORT LUDLOW NO 1 AREA 4, LOT 70 |
| Parcel # / Geo ID: | 990400466 | Agent Code: | |
| Type: | Real | | |
| Tax Area: | 0213 - 1-49F1E1H2L1 | Land Use Code | 11 |
| Open Space: | N | DFL | N |
| Historic Property: | N | Remodel Property: | N |
| Multi-Family Redevelopment: | N | | |
| Township: | 28N | Section: | 8 |
| Range: | 1E |
Location |
| Address: | 395 RAINIER LN PORT LUDLOW, WA 98365 | Mapsco: | 102/021 |
| Neighborhood: | PORT LUDLOW #1 AREAS 3 & 4 | Map ID: | |
| Neighborhood CD: | 3332 |
Owner |
| Name: | LEE R & ROBERTA L KARLSON | Owner ID: | 110073 |
| Mailing Address: | 395 RAINIER LN PORT LUDLOW, WA 98365-9689 | % Ownership: | 100.0000000000% |
| | | Exemptions: | |
Pay Tax Due
Select the appropriate checkbox next to the year to be paid. Multiple years may be selected.
*Convenience Fee not included
Taxes and Assessment Details
Property Tax Information as of
03/10/2026
Click on "Statement Details" to expand or collapse a tax statement.
* Please enter a valid date ** Please enter a valid date *
Statement Details |
| 2026 | 29307 | STATE - STATE LEVY (SCHOOL) | $645.24 | $645.22 | $0.00 | $0.00 | $0.00 | $1290.46 |
| 2026 | 29307 | COUNTY - COUNTY LEVIES (CE, DD, VET, MH) | $257.97 | $257.95 | $0.00 | $0.00 | $0.00 | $515.92 |
| 2026 | 29307 | CONSERVE - CONSERVATION FUTURES | $7.74 | $7.73 | $0.00 | $0.00 | $0.00 | $15.47 |
| 2026 | 29307 | COROADS - COUNTY ROADS (ROADS, DIV TO CE) | $208.10 | $208.10 | $0.00 | $0.00 | $0.00 | $416.20 |
| 2026 | 29307 | PORTPT - PORT DISTRICT | $104.18 | $104.18 | $0.00 | $0.00 | $0.00 | $208.36 |
| 2026 | 29307 | PUD1 - PUD #1 | $16.78 | $16.78 | $0.00 | $0.00 | $0.00 | $33.56 |
| 2026 | 29307 | LIB1 - LIBRARY DIST #1 | $80.51 | $80.51 | $0.00 | $0.00 | $0.00 | $161.02 |
| 2026 | 29307 | HD2 - HOSP DIST #2 | $15.05 | $15.04 | $0.00 | $0.00 | $0.00 | $30.09 |
| 2026 | 29307 | SD49 - SCHOOL DIST #49 | $355.18 | $355.17 | $0.00 | $0.00 | $0.00 | $710.35 |
| 2026 | 29307 | FD1 - FIRE DISTRICT #1 | $341.60 | $341.60 | $0.00 | $0.00 | $0.00 | $683.20 |
| 2026 | 29307 | EMS1 - FIRE DIST #1 EMS | $131.34 | $131.34 | $0.00 | $0.00 | $0.00 | $262.68 |
| 2026 | 29307 | JCCD - JC Conservation District | $2.55 | $2.55 | $0.00 | $0.00 | $0.00 | $5.10 |
| 2026 | 29307 | LUD - PT Ludlow Drainage District | $41.16 | $41.16 | $0.00 | $0.00 | $0.00 | $82.32 |
| 2026 | 29307 | NWA - Noxious Weed Assessment | $2.98 | $2.97 | $0.00 | $0.00 | $0.00 | $5.95 |
| 2026 | 29307 | Drain - DRAINAGE DISTRICT FEE | $0.82 | $0.00 | $0.00 | $0.00 | $0.00 | $0.82 |
| 2026 | 29307 | TOTAL: | $2211.20 | $2210.30 | $0.00 | $0.00 | $0.00 | $4421.50 |
|
| 2026 | 29307 | $2211.20 | $2210.30 | $0.00 | $0.00 | $0.00 | $4421.50 |
Statement Details |
| 2025 | 29379 | STATE - STATE LEVY (SCHOOL) | $673.00 | $672.99 | $0.00 | $0.00 | $1345.99 | $0.00 |
| 2025 | 29379 | COUNTY - COUNTY LEVIES (CE, DD, VET, MH) | $264.66 | $264.63 | $0.00 | $0.00 | $529.29 | $0.00 |
| 2025 | 29379 | CONSERVE - CONSERVATION FUTURES | $7.94 | $7.93 | $0.00 | $0.00 | $15.87 | $0.00 |
| 2025 | 29379 | COROADS - COUNTY ROADS (ROADS, DIV TO CE) | $212.03 | $212.02 | $0.00 | $0.00 | $424.05 | $0.00 |
| 2025 | 29379 | PORTPT - PORT DISTRICT | $108.00 | $107.99 | $0.00 | $0.00 | $215.99 | $0.00 |
| 2025 | 29379 | PUD1 - PUD #1 | $17.32 | $17.31 | $0.00 | $0.00 | $34.63 | $0.00 |
| 2025 | 29379 | LIB1 - LIBRARY DIST #1 | $82.03 | $82.03 | $0.00 | $0.00 | $164.06 | $0.00 |
| 2025 | 29379 | HD2 - HOSP DIST #2 | $15.44 | $15.44 | $0.00 | $0.00 | $30.88 | $0.00 |
| 2025 | 29379 | SD49 - SCHOOL DIST #49 | $360.69 | $360.68 | $0.00 | $0.00 | $721.37 | $0.00 |
| 2025 | 29379 | FD1 - FIRE DISTRICT #1 | $349.24 | $349.23 | $0.00 | $0.00 | $698.47 | $0.00 |
| 2025 | 29379 | EMS1 - FIRE DIST #1 EMS | $134.33 | $134.32 | $0.00 | $0.00 | $268.65 | $0.00 |
| 2025 | 29379 | JCCD - JC Conservation District | $2.55 | $2.55 | $0.00 | $0.00 | $5.10 | $0.00 |
| 2025 | 29379 | LUD - PT Ludlow Drainage District | $33.00 | $33.00 | $0.00 | $0.00 | $66.00 | $0.00 |
| 2025 | 29379 | NWA - Noxious Weed Assessment | $2.15 | $2.15 | $0.00 | $0.00 | $4.30 | $0.00 |
| 2025 | 29379 | Drain - DRAINAGE DISTRICT FEE | $0.66 | $0.00 | $0.00 | $0.00 | $0.66 | $0.00 |
| 2025 | 29379 | TOTAL: | $2263.04 | $2262.27 | $0.00 | $0.00 | $4525.31 | $0.00 |
|
| 2025 | 29379 | $2263.04 | $2262.27 | $0.00 | $0.00 | $4525.31 | $0.00 |
Statement Details |
| 2024 | 29439 | STATE - STATE LEVY (SCHOOL) | $610.52 | $610.50 | $0.00 | $0.00 | $1221.02 | $0.00 |
| 2024 | 29439 | COUNTY - COUNTY LEVIES (CE, DD, VET, MH) | $261.26 | $261.23 | $0.00 | $0.00 | $522.49 | $0.00 |
| 2024 | 29439 | CONSERVE - CONSERVATION FUTURES | $7.84 | $7.83 | $0.00 | $0.00 | $15.67 | $0.00 |
| 2024 | 29439 | COROADS - COUNTY ROADS (ROADS, DIV TO CE) | $210.22 | $210.21 | $0.00 | $0.00 | $420.43 | $0.00 |
| 2024 | 29439 | PORTPT - PORT DISTRICT | $107.91 | $107.89 | $0.00 | $0.00 | $215.80 | $0.00 |
| 2024 | 29439 | PUD1 - PUD #1 | $17.16 | $17.16 | $0.00 | $0.00 | $34.32 | $0.00 |
| 2024 | 29439 | LIB1 - LIBRARY DIST #1 | $81.33 | $81.33 | $0.00 | $0.00 | $162.66 | $0.00 |
| 2024 | 29439 | HD2 - HOSP DIST #2 | $15.25 | $15.24 | $0.00 | $0.00 | $30.49 | $0.00 |
| 2024 | 29439 | SD49 - SCHOOL DIST #49 | $272.63 | $272.61 | $0.00 | $0.00 | $545.24 | $0.00 |
| 2024 | 29439 | FD1 - FIRE DISTRICT #1 | $345.43 | $345.42 | $0.00 | $0.00 | $690.85 | $0.00 |
| 2024 | 29439 | EMS1 - FIRE DIST #1 EMS | $131.94 | $131.94 | $0.00 | $0.00 | $263.88 | $0.00 |
| 2024 | 29439 | JCCD - JC Conservation District | $2.55 | $2.55 | $0.00 | $0.00 | $5.10 | $0.00 |
| 2024 | 29439 | LUD - PT Ludlow Drainage District | $28.97 | $28.96 | $0.00 | $0.00 | $57.93 | $0.00 |
| 2024 | 29439 | NWA - Noxious Weed Assessment | $2.15 | $2.15 | $0.00 | $0.00 | $4.30 | $0.00 |
| 2024 | 29439 | Drain - DRAINAGE DISTRICT FEE | $0.58 | $0.00 | $0.00 | $0.00 | $0.58 | $0.00 |
| 2024 | 29439 | TOTAL: | $2095.74 | $2095.02 | $0.00 | $0.00 | $4190.76 | $0.00 |
|
| 2024 | 29439 | $2095.74 | $2095.02 | $0.00 | $0.00 | $4190.76 | $0.00 |
Statement Details |
| 2023 | 29481 | STATE - STATE LEVY (SCHOOL) | $592.93 | $592.92 | $0.00 | $0.00 | $1185.85 | $0.00 |
| 2023 | 29481 | COUNTY - COUNTY LEVIES (CE, DD, VET, MH) | $258.74 | $258.73 | $0.00 | $0.00 | $517.47 | $0.00 |
| 2023 | 29481 | CONSERVE - CONSERVATION FUTURES | $7.76 | $7.76 | $0.00 | $0.00 | $15.52 | $0.00 |
| 2023 | 29481 | COROADS - COUNTY ROADS (ROADS, DIV TO CE) | $209.33 | $209.33 | $0.00 | $0.00 | $418.66 | $0.00 |
| 2023 | 29481 | PORTPT - PORT DISTRICT | $109.00 | $108.98 | $0.00 | $0.00 | $217.98 | $0.00 |
| 2023 | 29481 | PUD1 - PUD #1 | $17.15 | $17.15 | $0.00 | $0.00 | $34.30 | $0.00 |
| 2023 | 29481 | LIB1 - LIBRARY DIST #1 | $80.99 | $80.99 | $0.00 | $0.00 | $161.98 | $0.00 |
| 2023 | 29481 | HD2 - HOSP DIST #2 | $15.11 | $15.09 | $0.00 | $0.00 | $30.20 | $0.00 |
| 2023 | 29481 | SD49 - SCHOOL DIST #49 | $277.16 | $277.16 | $0.00 | $0.00 | $554.32 | $0.00 |
| 2023 | 29481 | FD3 - FIRE DISTRICT #3 | $257.41 | $257.40 | $0.00 | $0.00 | $514.81 | $0.00 |
| 2023 | 29481 | EMS3 - FIRE DIST #3 EMS | $92.02 | $92.02 | $0.00 | $0.00 | $184.04 | $0.00 |
| 2023 | 29481 | JCCD - JC Conservation District | $2.55 | $2.55 | $0.00 | $0.00 | $5.10 | $0.00 |
| 2023 | 29481 | LUD - PT Ludlow Drainage District | $29.14 | $29.14 | $0.00 | $0.00 | $58.28 | $0.00 |
| 2023 | 29481 | NWA - Noxious Weed Assessment | $2.15 | $2.15 | $0.00 | $0.00 | $4.30 | $0.00 |
| 2023 | 29481 | Drain - DRAINAGE DISTRICT FEE | $0.58 | $0.00 | $0.00 | $0.00 | $0.58 | $0.00 |
| 2023 | 29481 | TOTAL: | $1952.02 | $1951.37 | $0.00 | $0.00 | $3903.39 | $0.00 |
|
| 2023 | 29481 | $1952.02 | $1951.37 | $0.00 | $0.00 | $3903.39 | $0.00 |
Values
| (+) Improvement Homesite Value: | + | $0 | |
| (+) Improvement Non-Homesite Value: | + | $456,790 | |
| (+) Land Homesite Value: | + | $0 | |
| (+) Land Non-Homesite Value: | + | $104,500 | |
| (+) Curr Use (HS): | + | $0 | $0 |
| (+) Curr Use (NHS): | + | $0 | $0 |
| | | -------------------------- | |
| (=) Market Value: | = | $561,290 | |
| (–) Productivity Loss: | – | $0 | |
| | | -------------------------- | |
| (=) Subtotal: | = | $561,290 | |
| (+) Senior Appraised Value: | + | $0 | |
| (+) Non-Senior Appraised Value: | + | $561,290 | |
| | | -------------------------- | |
| (=) Total Appraised Value: | = | $561,290 | |
| (–) Senior Exemption Loss: | – | $0 | |
| (–) Exemption Loss: | – | $0 | |
| | | -------------------------- | |
| (=) Taxable Value: | = | $561,290 | |
Taxing Jurisdiction
| Owner: | LEE R & ROBERTA L KARLSON | | |
| % Ownership: | 100.0000000000% | | |
| Total Value: | $561,290 | | |
| Tax Area: | 0213 - 1-49F1E1H2L1 |
| CE | COUNTY CURRENT EXPENSE | 0.9034619479 | $561,290 | $561,290 | $507.10 | | |
| CNTYDD | DEVELOPMENTAL DISABILITIES | 0.0052121823 | $561,290 | $561,290 | $2.93 | | |
| CNTYVET | VETERANS RELIEF | 0.0052777810 | $561,290 | $561,290 | $2.96 | | |
| MENTAL | MENTAL HEALTH | 0.0052121823 | $561,290 | $561,290 | $2.93 | | |
| ROADS | COUNTY ROADS | 0.7415066410 | $561,290 | $561,290 | $416.20 | | |
| ROADSCU | COUNTY ROADS TO CUR EXP | 0.0000000000 | $561,290 | $561,290 | $0.00 | | |
| HOSP2CASH | HOSP DIST #2 GENERAL | 0.0536075306 | $561,290 | $561,290 | $30.09 | | |
| SCH49CP | SCHOOL DIST #49 CAP PROJ | 0.6279093905 | $561,290 | $561,290 | $352.44 | | |
| SCH49MO | SCHOOL DIST #49 EP & O | 0.6376483602 | $561,290 | $561,290 | $357.91 | | |
| CONSERVE | CONSERVATION FUTURES | 0.0275621078 | $561,290 | $561,290 | $15.47 | | |
| EMS1 | FIRE DIST #1 EMS | 0.4679948282 | $561,290 | $561,290 | $262.68 | | |
| FD1 | FIRE DIST #1 GENERAL | 1.2171942929 | $561,290 | $561,290 | $683.20 | | |
| LIB1 | LIBRARY DIST #1 GENERAL | 0.2868827388 | $561,290 | $561,290 | $161.02 | | |
| PORTPT | PORT OF PT GENERAL | 0.1134941229 | $561,290 | $561,290 | $63.70 | | |
| PORTPTIDD | PORT OF PT IDD 2019 | 0.2577346692 | $561,290 | $561,290 | $144.66 | | |
| PUD1 | PUD #1 GENERAL | 0.0597888892 | $561,290 | $561,290 | $33.56 | | |
| STATE | STATE SCHOOL PART 1 | 1.4940692947 | $561,290 | $561,290 | $838.61 | | |
| STATE2 | STATE SCHOOL PART 2 | 0.8050170049 | $561,290 | $561,290 | $451.85 | | |
| | Total Tax Rate: | 7.7095739644 | | | | | |
| | | | | Taxes w/Current Exemptions: | $4,327.31 | | |
| | | | | Taxes w/o Exemptions: | $4,327.31 | | |
Improvement / Building
| Improvement #1: | Residential Bldg | State Code: | 11 | 1674.0 sqft | Value: | $456,790 |
| Bathrooms (#): | 3 (FULL) | Bedrooms (#): | 2 | | Exterior Wall: | SI/ST | Fireplace: | PROPS-GOOD | | Floor Construction: | FRAME | Foundation: | CONPR | | Heating/Cooling: | HPUMP | Roof Cover: | COMP |
|
| | Type | Description | Class CD | Sub Class CD | Year Built | Area |
| | MA | Main Area | 4 | 1S | 2018 | 1674.0 |
| | GATT | House Attached Garage | 3 | 1S | 2018 | 576.0 |
| | HDECK | House Deck | 3 | * | 2018 | 594.0 |
| | HCPOR | House Concrete Porch | 3 | * | 2018 | 240.0 |
Sketch
Property Image
Land
| 1 | 3332-1185L | | 0.0000 | 0.00 | 0.00 | 0.00 | 1.00 | $104,500 | $0 |
Roll Value History
| 2026 | N/A | N/A | N/A | N/A | N/A |
| 2025 | $456,790 | $104,500 | $0 | $561,290 | $561,290 |
| 2024 | $456,790 | $104,500 | $0 | $561,290 | $561,290 |
| 2023 | $437,757 | $90,000 | $0 | $527,757 | $527,757 |
| 2022 | $418,724 | $85,000 | $0 | $503,724 | $503,724 |
Deed and Sales History
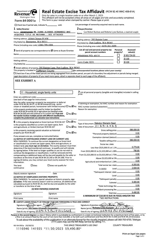
| 1 | 11/29/2023 | SWD | Statutory Warranty Deed | MAJUANA ALVARADO | LEE R & ROBERTA L KARLSON | | | $586,000.00 | 141935 | |
| 2 | 05/02/2017 | SWD | Statutory Warranty Deed | BETTY JANE WILLS TRUSTEE | MAJUANA ALVARADO | | | $30,000.00 | 127635 | |
| 3 | 06/02/1993 | SWD | Statutory Warranty Deed | MEYER, DOUGLAS L | WILLS, BETTY JANE TRUST | 0 | 0 | $8,500.00 | 71301 | 0 |
| 4 | 02/29/1984 | QCD | Quit Claim Deed | MEYER, JOHNELL K | MEYER, DOUGLAS L | 0 | 0 | $0.00 | 71300 | 0 |
Payout Agreement
| No payout information available.. |