Property
Account |
| Property ID: | 40160 | Abbreviated Legal Description: | PORT LUDLOW NO. 1 AREA 4, LOT 95 |
| Parcel # / Geo ID: | 990400491 | Agent Code: | |
| Type: | Real | | |
| Tax Area: | 0213 - 1-49F1E1H2L1 | Land Use Code | 11 |
| Open Space: | N | DFL | N |
| Historic Property: | N | Remodel Property: | N |
| Multi-Family Redevelopment: | N | | |
| Township: | 28N | Section: | 9 |
| Range: | 1E |
Location |
| Address: | 24 MACHIAS LOOP RD PORT LUDLOW, WA 98365 | Mapsco: | 102/046 |
| Neighborhood: | PORT LUDLOW #1 AREAS 3 & 4 | Map ID: | |
| Neighborhood CD: | 3332 |
Owner |
| Name: | MUI GEK CHAN | Owner ID: | 110068 |
| Mailing Address: | CHUNWAH STEPHEN YU 13902 SE 60TH ST BELLEVUE, WA 98006-4304 | % Ownership: | 100.0000000000% |
| | | Exemptions: | |
Pay Tax Due
Select the appropriate checkbox next to the year to be paid. Multiple years may be selected.
*Convenience Fee not included
Taxes and Assessment Details
Property Tax Information as of
03/11/2026
Click on "Statement Details" to expand or collapse a tax statement.
* Please enter a valid date ** Please enter a valid date *
Statement Details |
| 2026 | 29332 | STATE - STATE LEVY (SCHOOL) | $631.68 | $631.67 | $0.00 | $0.00 | $0.00 | $1263.35 |
| 2026 | 29332 | COUNTY - COUNTY LEVIES (CE, DD, VET, MH) | $252.54 | $252.53 | $0.00 | $0.00 | $0.00 | $505.07 |
| 2026 | 29332 | CONSERVE - CONSERVATION FUTURES | $7.58 | $7.57 | $0.00 | $0.00 | $0.00 | $15.15 |
| 2026 | 29332 | COROADS - COUNTY ROADS (ROADS, DIV TO CE) | $203.73 | $203.73 | $0.00 | $0.00 | $0.00 | $407.46 |
| 2026 | 29332 | PORTPT - PORT DISTRICT | $102.01 | $101.99 | $0.00 | $0.00 | $0.00 | $204.00 |
| 2026 | 29332 | PUD1 - PUD #1 | $16.43 | $16.42 | $0.00 | $0.00 | $0.00 | $32.85 |
| 2026 | 29332 | LIB1 - LIBRARY DIST #1 | $78.82 | $78.82 | $0.00 | $0.00 | $0.00 | $157.64 |
| 2026 | 29332 | HD2 - HOSP DIST #2 | $14.73 | $14.73 | $0.00 | $0.00 | $0.00 | $29.46 |
| 2026 | 29332 | SD49 - SCHOOL DIST #49 | $347.72 | $347.71 | $0.00 | $0.00 | $0.00 | $695.43 |
| 2026 | 29332 | FD1 - FIRE DISTRICT #1 | $334.43 | $334.42 | $0.00 | $0.00 | $0.00 | $668.85 |
| 2026 | 29332 | EMS1 - FIRE DIST #1 EMS | $128.58 | $128.58 | $0.00 | $0.00 | $0.00 | $257.16 |
| 2026 | 29332 | JCCD - JC Conservation District | $2.55 | $2.55 | $0.00 | $0.00 | $0.00 | $5.10 |
| 2026 | 29332 | LUD - PT Ludlow Drainage District | $39.19 | $39.18 | $0.00 | $0.00 | $0.00 | $78.37 |
| 2026 | 29332 | NWA - Noxious Weed Assessment | $2.98 | $2.97 | $0.00 | $0.00 | $0.00 | $5.95 |
| 2026 | 29332 | Drain - DRAINAGE DISTRICT FEE | $0.78 | $0.00 | $0.00 | $0.00 | $0.00 | $0.78 |
| 2026 | 29332 | TOTAL: | $2163.75 | $2162.87 | $0.00 | $0.00 | $0.00 | $4326.62 |
|
| 2026 | 29332 | $2163.75 | $2162.87 | $0.00 | $0.00 | $0.00 | $4326.62 |
Statement Details |
| 2025 | 29404 | STATE - STATE LEVY (SCHOOL) | $658.86 | $658.86 | $0.00 | $0.00 | $1317.72 | $0.00 |
| 2025 | 29404 | COUNTY - COUNTY LEVIES (CE, DD, VET, MH) | $259.11 | $259.07 | $0.00 | $0.00 | $518.18 | $0.00 |
| 2025 | 29404 | CONSERVE - CONSERVATION FUTURES | $7.77 | $7.77 | $0.00 | $0.00 | $15.54 | $0.00 |
| 2025 | 29404 | COROADS - COUNTY ROADS (ROADS, DIV TO CE) | $207.57 | $207.57 | $0.00 | $0.00 | $415.14 | $0.00 |
| 2025 | 29404 | PORTPT - PORT DISTRICT | $105.73 | $105.72 | $0.00 | $0.00 | $211.45 | $0.00 |
| 2025 | 29404 | PUD1 - PUD #1 | $16.96 | $16.95 | $0.00 | $0.00 | $33.91 | $0.00 |
| 2025 | 29404 | LIB1 - LIBRARY DIST #1 | $80.31 | $80.31 | $0.00 | $0.00 | $160.62 | $0.00 |
| 2025 | 29404 | HD2 - HOSP DIST #2 | $15.12 | $15.11 | $0.00 | $0.00 | $30.23 | $0.00 |
| 2025 | 29404 | SD49 - SCHOOL DIST #49 | $353.11 | $353.10 | $0.00 | $0.00 | $706.21 | $0.00 |
| 2025 | 29404 | FD1 - FIRE DISTRICT #1 | $341.90 | $341.90 | $0.00 | $0.00 | $683.80 | $0.00 |
| 2025 | 29404 | EMS1 - FIRE DIST #1 EMS | $131.51 | $131.50 | $0.00 | $0.00 | $263.01 | $0.00 |
| 2025 | 29404 | JCCD - JC Conservation District | $2.55 | $2.55 | $0.00 | $0.00 | $5.10 | $0.00 |
| 2025 | 29404 | LUD - PT Ludlow Drainage District | $31.42 | $31.42 | $0.00 | $0.00 | $62.84 | $0.00 |
| 2025 | 29404 | NWA - Noxious Weed Assessment | $2.15 | $2.15 | $0.00 | $0.00 | $4.30 | $0.00 |
| 2025 | 29404 | Drain - DRAINAGE DISTRICT FEE | $0.63 | $0.00 | $0.00 | $0.00 | $0.63 | $0.00 |
| 2025 | 29404 | TOTAL: | $2214.70 | $2213.98 | $0.00 | $0.00 | $4428.68 | $0.00 |
|
| 2025 | 29404 | $2214.70 | $2213.98 | $0.00 | $0.00 | $4428.68 | $0.00 |
Statement Details |
| 2024 | 29464 | STATE - STATE LEVY (SCHOOL) | $597.44 | $597.44 | $0.00 | $0.00 | $1194.88 | $0.00 |
| 2024 | 29464 | COUNTY - COUNTY LEVIES (CE, DD, VET, MH) | $255.66 | $255.64 | $0.00 | $0.00 | $511.30 | $0.00 |
| 2024 | 29464 | CONSERVE - CONSERVATION FUTURES | $7.67 | $7.66 | $0.00 | $0.00 | $15.33 | $0.00 |
| 2024 | 29464 | COROADS - COUNTY ROADS (ROADS, DIV TO CE) | $205.72 | $205.71 | $0.00 | $0.00 | $411.43 | $0.00 |
| 2024 | 29464 | PORTPT - PORT DISTRICT | $105.60 | $105.59 | $0.00 | $0.00 | $211.19 | $0.00 |
| 2024 | 29464 | PUD1 - PUD #1 | $16.79 | $16.79 | $0.00 | $0.00 | $33.58 | $0.00 |
| 2024 | 29464 | LIB1 - LIBRARY DIST #1 | $79.59 | $79.59 | $0.00 | $0.00 | $159.18 | $0.00 |
| 2024 | 29464 | HD2 - HOSP DIST #2 | $14.92 | $14.91 | $0.00 | $0.00 | $29.83 | $0.00 |
| 2024 | 29464 | SD49 - SCHOOL DIST #49 | $266.79 | $266.78 | $0.00 | $0.00 | $533.57 | $0.00 |
| 2024 | 29464 | FD1 - FIRE DISTRICT #1 | $338.03 | $338.03 | $0.00 | $0.00 | $676.06 | $0.00 |
| 2024 | 29464 | EMS1 - FIRE DIST #1 EMS | $129.12 | $129.11 | $0.00 | $0.00 | $258.23 | $0.00 |
| 2024 | 29464 | JCCD - JC Conservation District | $2.55 | $2.55 | $0.00 | $0.00 | $5.10 | $0.00 |
| 2024 | 29464 | LUD - PT Ludlow Drainage District | $27.59 | $27.58 | $0.00 | $0.00 | $55.17 | $0.00 |
| 2024 | 29464 | NWA - Noxious Weed Assessment | $2.15 | $2.15 | $0.00 | $0.00 | $4.30 | $0.00 |
| 2024 | 29464 | Drain - DRAINAGE DISTRICT FEE | $0.55 | $0.00 | $0.00 | $0.00 | $0.55 | $0.00 |
| 2024 | 29464 | TOTAL: | $2050.17 | $2049.53 | $0.00 | $0.00 | $4099.70 | $0.00 |
|
| 2024 | 29464 | $2050.17 | $2049.53 | $0.00 | $0.00 | $4099.70 | $0.00 |
Statement Details |
| 2023 | 29506 | STATE - STATE LEVY (SCHOOL) | $580.20 | $580.20 | $0.00 | $0.00 | $1160.40 | $0.00 |
| 2023 | 29506 | COUNTY - COUNTY LEVIES (CE, DD, VET, MH) | $253.20 | $253.16 | $0.00 | $0.00 | $506.36 | $0.00 |
| 2023 | 29506 | CONSERVE - CONSERVATION FUTURES | $7.59 | $7.59 | $0.00 | $0.00 | $15.18 | $0.00 |
| 2023 | 29506 | COROADS - COUNTY ROADS (ROADS, DIV TO CE) | $204.85 | $204.84 | $0.00 | $0.00 | $409.69 | $0.00 |
| 2023 | 29506 | PORTPT - PORT DISTRICT | $106.66 | $106.65 | $0.00 | $0.00 | $213.31 | $0.00 |
| 2023 | 29506 | PUD1 - PUD #1 | $16.79 | $16.78 | $0.00 | $0.00 | $33.57 | $0.00 |
| 2023 | 29506 | LIB1 - LIBRARY DIST #1 | $79.25 | $79.25 | $0.00 | $0.00 | $158.50 | $0.00 |
| 2023 | 29506 | HD2 - HOSP DIST #2 | $14.78 | $14.77 | $0.00 | $0.00 | $29.55 | $0.00 |
| 2023 | 29506 | SD49 - SCHOOL DIST #49 | $271.22 | $271.20 | $0.00 | $0.00 | $542.42 | $0.00 |
| 2023 | 29506 | FD3 - FIRE DISTRICT #3 | $251.88 | $251.88 | $0.00 | $0.00 | $503.76 | $0.00 |
| 2023 | 29506 | EMS3 - FIRE DIST #3 EMS | $90.05 | $90.05 | $0.00 | $0.00 | $180.10 | $0.00 |
| 2023 | 29506 | JCCD - JC Conservation District | $2.55 | $2.55 | $0.00 | $0.00 | $5.10 | $0.00 |
| 2023 | 29506 | LUD - PT Ludlow Drainage District | $27.76 | $27.75 | $0.00 | $0.00 | $55.51 | $0.00 |
| 2023 | 29506 | NWA - Noxious Weed Assessment | $2.15 | $2.15 | $0.00 | $0.00 | $4.30 | $0.00 |
| 2023 | 29506 | Drain - DRAINAGE DISTRICT FEE | $0.56 | $0.00 | $0.00 | $0.00 | $0.56 | $0.00 |
| 2023 | 29506 | TOTAL: | $1909.49 | $1908.82 | $0.00 | $0.00 | $3818.31 | $0.00 |
|
| 2023 | 29506 | $1909.49 | $1908.82 | $0.00 | $0.00 | $3818.31 | $0.00 |
Values
| (+) Improvement Homesite Value: | + | $0 | |
| (+) Improvement Non-Homesite Value: | + | $445,002 | |
| (+) Land Homesite Value: | + | $0 | |
| (+) Land Non-Homesite Value: | + | $104,500 | |
| (+) Curr Use (HS): | + | $0 | $0 |
| (+) Curr Use (NHS): | + | $0 | $0 |
| | | -------------------------- | |
| (=) Market Value: | = | $549,502 | |
| (–) Productivity Loss: | – | $0 | |
| | | -------------------------- | |
| (=) Subtotal: | = | $549,502 | |
| (+) Senior Appraised Value: | + | $0 | |
| (+) Non-Senior Appraised Value: | + | $549,502 | |
| | | -------------------------- | |
| (=) Total Appraised Value: | = | $549,502 | |
| (–) Senior Exemption Loss: | – | $0 | |
| (–) Exemption Loss: | – | $0 | |
| | | -------------------------- | |
| (=) Taxable Value: | = | $549,502 | |
Taxing Jurisdiction
| Owner: | MUI GEK CHAN | | |
| % Ownership: | 100.0000000000% | | |
| Total Value: | $549,502 | | |
| Tax Area: | 0213 - 1-49F1E1H2L1 |
| CE | COUNTY CURRENT EXPENSE | 0.9034619479 | $549,502 | $549,502 | $496.45 | | |
| CNTYDD | DEVELOPMENTAL DISABILITIES | 0.0052121823 | $549,502 | $549,502 | $2.86 | | |
| CNTYVET | VETERANS RELIEF | 0.0052777810 | $549,502 | $549,502 | $2.90 | | |
| MENTAL | MENTAL HEALTH | 0.0052121823 | $549,502 | $549,502 | $2.86 | | |
| ROADS | COUNTY ROADS | 0.7415066410 | $549,502 | $549,502 | $407.46 | | |
| ROADSCU | COUNTY ROADS TO CUR EXP | 0.0000000000 | $549,502 | $549,502 | $0.00 | | |
| HOSP2CASH | HOSP DIST #2 GENERAL | 0.0536075306 | $549,502 | $549,502 | $29.46 | | |
| SCH49CP | SCHOOL DIST #49 CAP PROJ | 0.6279093905 | $549,502 | $549,502 | $345.04 | | |
| SCH49MO | SCHOOL DIST #49 EP & O | 0.6376483602 | $549,502 | $549,502 | $350.39 | | |
| CONSERVE | CONSERVATION FUTURES | 0.0275621078 | $549,502 | $549,502 | $15.15 | | |
| EMS1 | FIRE DIST #1 EMS | 0.4679948282 | $549,502 | $549,502 | $257.16 | | |
| FD1 | FIRE DIST #1 GENERAL | 1.2171942929 | $549,502 | $549,502 | $668.85 | | |
| LIB1 | LIBRARY DIST #1 GENERAL | 0.2868827388 | $549,502 | $549,502 | $157.64 | | |
| PORTPT | PORT OF PT GENERAL | 0.1134941229 | $549,502 | $549,502 | $62.37 | | |
| PORTPTIDD | PORT OF PT IDD 2019 | 0.2577346692 | $549,502 | $549,502 | $141.63 | | |
| PUD1 | PUD #1 GENERAL | 0.0597888892 | $549,502 | $549,502 | $32.85 | | |
| STATE | STATE SCHOOL PART 1 | 1.4940692947 | $549,502 | $549,502 | $820.99 | | |
| STATE2 | STATE SCHOOL PART 2 | 0.8050170049 | $549,502 | $549,502 | $442.36 | | |
| | Total Tax Rate: | 7.7095739644 | | | | | |
| | | | | Taxes w/Current Exemptions: | $4,236.42 | | |
| | | | | Taxes w/o Exemptions: | $4,236.42 | | |
Improvement / Building
| Improvement #1: | Residential Bldg | State Code: | 11 | 2361.0 sqft | Value: | $445,002 |
| Bathrooms (#): | 2 (FULL) | Bedrooms (#): | 3 | | Exterior Wall: | SI/ST | Fireplace: | WD ST-GOOD | | Floor Construction: | FRAME | Foundation: | CONPR | | Heating/Cooling: | HPUMP | Inside Verify: | YES-FIX | | Roof Cover: | COMP |   |   |
|
| | Type | Description | Class CD | Sub Class CD | Year Built | Area |
| | MA | Main Area | 4 | 1S | 1994 | 2361.0 |
| | PATIO | House Patio | 3 | * | 1994 | 300.0 |
| | HCPOR | House Concrete Porch | 3 | * | 1994 | 36.0 |
| | GATT | House Attached Garage | 3 | 1S | 1994 | 528.0 |
| | CONCD | Concrete Drive | 3 | * | 1994 | 1800.0 |
Sketch
Property Image
Land
| 1 | 3332-1185L | | 0.0000 | 0.00 | 0.00 | 0.00 | 1.00 | $104,500 | $0 |
Roll Value History
| 2026 | N/A | N/A | N/A | N/A | N/A |
| 2025 | $445,002 | $104,500 | $0 | $549,502 | $549,502 |
| 2024 | $445,002 | $104,500 | $0 | $549,502 | $549,502 |
| 2023 | $426,460 | $90,000 | $0 | $516,460 | $516,460 |
| 2022 | $407,918 | $85,000 | $0 | $492,918 | $492,918 |
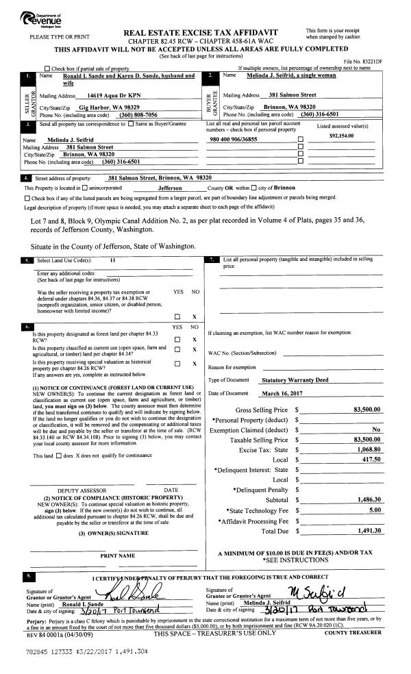
Deed and Sales History
| 1 | 11/22/2023 | SWD | Statutory Warranty Deed | FREDERICK & SUSAN CRUZAN | MUI GEK CHAN | | | $625,000.00 | 141931 | |
| 2 | 07/08/2016 | SWD | Statutory Warranty Deed | LYNDA MC CURRY TRSTEE | FREDERICK & SUSAN CRUZAN | | | $315,000.00 | 125819 | |
| 3 | 03/27/2007 | QCD | Quit Claim Deed | BULLARD, BARRY W, BULLARD | BULLARD & MCCURRY TRUST | | | $0.00 | 109152 | 0 |
| 4 | 08/21/2001 | QCD | Quit Claim Deed | BULLARD, BARRY | BULLARD, BARRY W, TRUSTEE OF H | 0 | 0 | $0.00 | 92912 | 0 |
| 5 | 06/20/2001 | SWD | Statutory Warranty Deed | WOODARD, EDMOND R/YOSHIKO | BULLARD, BARRY | 0 | 0 | $232,000.00 | 92474 | 0 |
Payout Agreement
| No payout information available.. |