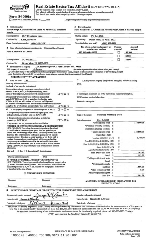
Property
Account |
| Property ID: | 40209 | Abbreviated Legal Description: | PORT LUDLOW #4 LOT 4 |
| Parcel # / Geo ID: | 990500004 | Agent Code: | |
| Type: | Real | | |
| Tax Area: | 0213 - 1-49F1E1H2L1 | Land Use Code | 11 |
| Open Space: | N | DFL | N |
| Historic Property: | N | Remodel Property: | N |
| Multi-Family Redevelopment: | N | | |
| Township: | 28N | Section: | 17 |
| Range: | 1E |
Location |
| Address: | 23 HUMMINGBIRD CT PORT LUDLOW, WA 98365 | Mapsco: | 115/004 |
| Neighborhood: | PORT LUDLOW #3 & #4 (ALL) (SEWER AVAILABLE TO ALL LOTS) | Map ID: | |
| Neighborhood CD: | 3335 |
Owner |
| Name: | KANDICE B D & RODNEY P CRUSAT | Owner ID: | 108772 |
| Mailing Address: | PO BOX 6932 OCEAN VIEW, HI 96737-6932 | % Ownership: | 100.0000000000% |
| | | Exemptions: | |
Pay Tax Due
Select the appropriate checkbox next to the year to be paid. Multiple years may be selected.
*Convenience Fee not included
Taxes and Assessment Details
Property Tax Information as of
03/11/2026
Click on "Statement Details" to expand or collapse a tax statement.
* Please enter a valid date ** Please enter a valid date *
Statement Details |
| 2026 | 29380 | STATE - STATE LEVY (SCHOOL) | $638.99 | $638.98 | $0.00 | $0.00 | $0.00 | $1277.97 |
| 2026 | 29380 | COUNTY - COUNTY LEVIES (CE, DD, VET, MH) | $255.47 | $255.46 | $0.00 | $0.00 | $0.00 | $510.93 |
| 2026 | 29380 | CONSERVE - CONSERVATION FUTURES | $7.66 | $7.66 | $0.00 | $0.00 | $0.00 | $15.32 |
| 2026 | 29380 | COROADS - COUNTY ROADS (ROADS, DIV TO CE) | $206.09 | $206.08 | $0.00 | $0.00 | $0.00 | $412.17 |
| 2026 | 29380 | PORTPT - PORT DISTRICT | $103.18 | $103.17 | $0.00 | $0.00 | $0.00 | $206.35 |
| 2026 | 29380 | PUD1 - PUD #1 | $16.62 | $16.61 | $0.00 | $0.00 | $0.00 | $33.23 |
| 2026 | 29380 | LIB1 - LIBRARY DIST #1 | $79.74 | $79.73 | $0.00 | $0.00 | $0.00 | $159.47 |
| 2026 | 29380 | HD2 - HOSP DIST #2 | $14.90 | $14.90 | $0.00 | $0.00 | $0.00 | $29.80 |
| 2026 | 29380 | SD49 - SCHOOL DIST #49 | $351.74 | $351.73 | $0.00 | $0.00 | $0.00 | $703.47 |
| 2026 | 29380 | FD1 - FIRE DISTRICT #1 | $338.30 | $338.29 | $0.00 | $0.00 | $0.00 | $676.59 |
| 2026 | 29380 | EMS1 - FIRE DIST #1 EMS | $130.07 | $130.07 | $0.00 | $0.00 | $0.00 | $260.14 |
| 2026 | 29380 | FP - DNR Forest Fire Protection Assmt | $8.50 | $8.50 | $0.00 | $0.00 | $0.00 | $17.00 |
| 2026 | 29380 | FPLCA - DNR Landowner Contingency Assmt | $3.00 | $3.00 | $0.00 | $0.00 | $0.00 | $6.00 |
| 2026 | 29380 | JCCD - JC Conservation District | $2.55 | $2.55 | $0.00 | $0.00 | $0.00 | $5.10 |
| 2026 | 29380 | LUD - PT Ludlow Drainage District | $50.25 | $50.24 | $0.00 | $0.00 | $0.00 | $100.49 |
| 2026 | 29380 | NWA - Noxious Weed Assessment | $2.98 | $2.97 | $0.00 | $0.00 | $0.00 | $5.95 |
| 2026 | 29380 | WAT - Clean Water District | $13.00 | $13.00 | $0.00 | $0.00 | $0.00 | $26.00 |
| 2026 | 29380 | Drain - DRAINAGE DISTRICT FEE | $1.00 | $0.00 | $0.00 | $0.00 | $0.00 | $1.00 |
| 2026 | 29380 | FP ADMIN - FP ADMIN | $0.50 | $0.00 | $0.00 | $0.00 | $0.00 | $0.50 |
| 2026 | 29380 | TOTAL: | $2224.54 | $2222.94 | $0.00 | $0.00 | $0.00 | $4447.48 |
|
| 2026 | 29380 | $2224.54 | $2222.94 | $0.00 | $0.00 | $0.00 | $4447.48 |
Statement Details |
| 2025 | 29452 | STATE - STATE LEVY (SCHOOL) | $376.87 | $376.86 | $0.00 | $0.00 | $753.73 | $0.00 |
| 2025 | 29452 | COUNTY - COUNTY LEVIES (CE, DD, VET, MH) | $148.21 | $148.20 | $0.00 | $0.00 | $296.41 | $0.00 |
| 2025 | 29452 | CONSERVE - CONSERVATION FUTURES | $4.45 | $4.44 | $0.00 | $0.00 | $8.89 | $0.00 |
| 2025 | 29452 | COROADS - COUNTY ROADS (ROADS, DIV TO CE) | $118.74 | $118.73 | $0.00 | $0.00 | $237.47 | $0.00 |
| 2025 | 29452 | PORTPT - PORT DISTRICT | $60.48 | $60.47 | $0.00 | $0.00 | $120.95 | $0.00 |
| 2025 | 29452 | PUD1 - PUD #1 | $9.70 | $9.69 | $0.00 | $0.00 | $19.39 | $0.00 |
| 2025 | 29452 | LIB1 - LIBRARY DIST #1 | $45.94 | $45.93 | $0.00 | $0.00 | $91.87 | $0.00 |
| 2025 | 29452 | HD2 - HOSP DIST #2 | $8.65 | $8.64 | $0.00 | $0.00 | $17.29 | $0.00 |
| 2025 | 29452 | SD49 - SCHOOL DIST #49 | $201.98 | $201.97 | $0.00 | $0.00 | $403.95 | $0.00 |
| 2025 | 29452 | FD1 - FIRE DISTRICT #1 | $195.57 | $195.56 | $0.00 | $0.00 | $391.13 | $0.00 |
| 2025 | 29452 | EMS1 - FIRE DIST #1 EMS | $75.22 | $75.22 | $0.00 | $0.00 | $150.44 | $0.00 |
| 2025 | 29452 | FP - DNR Forest Fire Protection Assmt | $8.50 | $8.50 | $0.00 | $0.00 | $17.00 | $0.00 |
| 2025 | 29452 | FPLCA - DNR Landowner Contingency Assmt | $3.00 | $3.00 | $0.00 | $0.00 | $6.00 | $0.00 |
| 2025 | 29452 | JCCD - JC Conservation District | $2.55 | $2.55 | $0.00 | $0.00 | $5.10 | $0.00 |
| 2025 | 29452 | LUD - PT Ludlow Drainage District | $40.27 | $40.26 | $0.00 | $0.00 | $80.53 | $0.00 |
| 2025 | 29452 | NWA - Noxious Weed Assessment | $2.15 | $2.15 | $0.00 | $0.00 | $4.30 | $0.00 |
| 2025 | 29452 | WAT - Clean Water District | $13.00 | $13.00 | $0.00 | $0.00 | $26.00 | $0.00 |
| 2025 | 29452 | Drain - DRAINAGE DISTRICT FEE | $0.81 | $0.00 | $0.00 | $0.00 | $0.81 | $0.00 |
| 2025 | 29452 | FP ADMIN - FP ADMIN | $0.50 | $0.00 | $0.00 | $0.00 | $0.50 | $0.00 |
| 2025 | 29452 | TOTAL: | $1316.59 | $1315.17 | $0.00 | $0.00 | $2631.76 | $0.00 |
|
| 2025 | 29452 | $1316.59 | $1315.17 | $0.00 | $0.00 | $2631.76 | $0.00 |
Statement Details |
| 2024 | 29512 | STATE - STATE LEVY (SCHOOL) | $101.22 | $101.22 | $0.00 | $0.00 | $202.44 | $0.00 |
| 2024 | 29512 | COUNTY - COUNTY LEVIES (CE, DD, VET, MH) | $43.33 | $43.30 | $0.00 | $0.00 | $86.63 | $0.00 |
| 2024 | 29512 | CONSERVE - CONSERVATION FUTURES | $1.30 | $1.30 | $0.00 | $0.00 | $2.60 | $0.00 |
| 2024 | 29512 | COROADS - COUNTY ROADS (ROADS, DIV TO CE) | $34.86 | $34.85 | $0.00 | $0.00 | $69.71 | $0.00 |
| 2024 | 29512 | PORTPT - PORT DISTRICT | $17.89 | $17.89 | $0.00 | $0.00 | $35.78 | $0.00 |
| 2024 | 29512 | PUD1 - PUD #1 | $2.85 | $2.84 | $0.00 | $0.00 | $5.69 | $0.00 |
| 2024 | 29512 | LIB1 - LIBRARY DIST #1 | $13.49 | $13.48 | $0.00 | $0.00 | $26.97 | $0.00 |
| 2024 | 29512 | HD2 - HOSP DIST #2 | $2.53 | $2.52 | $0.00 | $0.00 | $5.05 | $0.00 |
| 2024 | 29512 | SD49 - SCHOOL DIST #49 | $45.21 | $45.19 | $0.00 | $0.00 | $90.40 | $0.00 |
| 2024 | 29512 | FD1 - FIRE DISTRICT #1 | $57.27 | $57.27 | $0.00 | $0.00 | $114.54 | $0.00 |
| 2024 | 29512 | EMS1 - FIRE DIST #1 EMS | $21.88 | $21.87 | $0.00 | $0.00 | $43.75 | $0.00 |
| 2024 | 29512 | FP - DNR Forest Fire Protection Assmt | $8.50 | $8.50 | $0.00 | $0.00 | $17.00 | $0.00 |
| 2024 | 29512 | FPLCA - DNR Landowner Contingency Assmt | $3.00 | $3.00 | $0.00 | $0.00 | $6.00 | $0.00 |
| 2024 | 29512 | JCCD - JC Conservation District | $2.53 | $2.53 | $0.00 | $0.00 | $5.06 | $0.00 |
| 2024 | 29512 | LUD - PT Ludlow Drainage District | $16.59 | $16.59 | $0.00 | $0.00 | $33.18 | $0.00 |
| 2024 | 29512 | NWA - Noxious Weed Assessment | $2.15 | $2.15 | $0.00 | $0.00 | $4.30 | $0.00 |
| 2024 | 29512 | WAT - Clean Water District | $12.50 | $12.50 | $0.00 | $0.00 | $25.00 | $0.00 |
| 2024 | 29512 | Drain - DRAINAGE DISTRICT FEE | $0.33 | $0.00 | $0.00 | $0.00 | $0.33 | $0.00 |
| 2024 | 29512 | FP ADMIN - FP ADMIN | $0.50 | $0.00 | $0.00 | $0.00 | $0.50 | $0.00 |
| 2024 | 29512 | TOTAL: | $387.93 | $387.00 | $0.00 | $0.00 | $774.93 | $0.00 |
|
| 2024 | 29512 | $387.93 | $387.00 | $0.00 | $0.00 | $774.93 | $0.00 |
Statement Details |
| 2023 | 29554 | STATE - STATE LEVY (SCHOOL) | $94.76 | $94.75 | $0.00 | $0.00 | $189.51 | $0.00 |
| 2023 | 29554 | COUNTY - COUNTY LEVIES (CE, DD, VET, MH) | $41.36 | $41.34 | $0.00 | $0.00 | $82.70 | $0.00 |
| 2023 | 29554 | CONSERVE - CONSERVATION FUTURES | $1.24 | $1.24 | $0.00 | $0.00 | $2.48 | $0.00 |
| 2023 | 29554 | COROADS - COUNTY ROADS (ROADS, DIV TO CE) | $33.46 | $33.45 | $0.00 | $0.00 | $66.91 | $0.00 |
| 2023 | 29554 | PORTPT - PORT DISTRICT | $17.43 | $17.41 | $0.00 | $0.00 | $34.84 | $0.00 |
| 2023 | 29554 | PUD1 - PUD #1 | $2.74 | $2.74 | $0.00 | $0.00 | $5.48 | $0.00 |
| 2023 | 29554 | LIB1 - LIBRARY DIST #1 | $12.95 | $12.94 | $0.00 | $0.00 | $25.89 | $0.00 |
| 2023 | 29554 | HD2 - HOSP DIST #2 | $2.41 | $2.41 | $0.00 | $0.00 | $4.82 | $0.00 |
| 2023 | 29554 | SD49 - SCHOOL DIST #49 | $44.30 | $44.29 | $0.00 | $0.00 | $88.59 | $0.00 |
| 2023 | 29554 | FD3 - FIRE DISTRICT #3 | $41.14 | $41.13 | $0.00 | $0.00 | $82.27 | $0.00 |
| 2023 | 29554 | EMS3 - FIRE DIST #3 EMS | $14.71 | $14.70 | $0.00 | $0.00 | $29.41 | $0.00 |
| 2023 | 29554 | FP - DNR Forest Fire Protection Assmt | $8.50 | $8.50 | $0.00 | $0.00 | $17.00 | $0.00 |
| 2023 | 29554 | FPLCA - DNR Landowner Contingency Assmt | $3.00 | $3.00 | $0.00 | $0.00 | $6.00 | $0.00 |
| 2023 | 29554 | JCCD - JC Conservation District | $2.53 | $2.53 | $0.00 | $0.00 | $5.06 | $0.00 |
| 2023 | 29554 | LUD - PT Ludlow Drainage District | $16.59 | $16.59 | $0.00 | $0.00 | $33.18 | $0.00 |
| 2023 | 29554 | NWA - Noxious Weed Assessment | $2.15 | $2.15 | $0.00 | $0.00 | $4.30 | $0.00 |
| 2023 | 29554 | WAT - Clean Water District | $12.00 | $12.00 | $0.00 | $0.00 | $24.00 | $0.00 |
| 2023 | 29554 | Drain - DRAINAGE DISTRICT FEE | $0.33 | $0.00 | $0.00 | $0.00 | $0.33 | $0.00 |
| 2023 | 29554 | FP ADMIN - FP ADMIN | $0.50 | $0.00 | $0.00 | $0.00 | $0.50 | $0.00 |
| 2023 | 29554 | TOTAL: | $352.10 | $351.17 | $0.00 | $0.00 | $703.27 | $0.00 |
|
| 2023 | 29554 | $352.10 | $351.17 | $0.00 | $0.00 | $703.27 | $0.00 |
Values
| (+) Improvement Homesite Value: | + | $0 | |
| (+) Improvement Non-Homesite Value: | + | $421,108 | |
| (+) Land Homesite Value: | + | $0 | |
| (+) Land Non-Homesite Value: | + | $134,750 | |
| (+) Curr Use (HS): | + | $0 | $0 |
| (+) Curr Use (NHS): | + | $0 | $0 |
| | | -------------------------- | |
| (=) Market Value: | = | $555,858 | |
| (–) Productivity Loss: | – | $0 | |
| | | -------------------------- | |
| (=) Subtotal: | = | $555,858 | |
| (+) Senior Appraised Value: | + | $0 | |
| (+) Non-Senior Appraised Value: | + | $555,858 | |
| | | -------------------------- | |
| (=) Total Appraised Value: | = | $555,858 | |
| (–) Senior Exemption Loss: | – | $0 | |
| (–) Exemption Loss: | – | $0 | |
| | | -------------------------- | |
| (=) Taxable Value: | = | $555,858 | |
Taxing Jurisdiction
| Owner: | KANDICE B D & RODNEY P CRUSAT | | |
| % Ownership: | 100.0000000000% | | |
| Total Value: | $555,858 | | |
| Tax Area: | 0213 - 1-49F1E1H2L1 |
| CE | COUNTY CURRENT EXPENSE | 0.9034619479 | $555,858 | $555,858 | $502.20 | | |
| CNTYDD | DEVELOPMENTAL DISABILITIES | 0.0052121823 | $555,858 | $555,858 | $2.90 | | |
| CNTYVET | VETERANS RELIEF | 0.0052777810 | $555,858 | $555,858 | $2.93 | | |
| MENTAL | MENTAL HEALTH | 0.0052121823 | $555,858 | $555,858 | $2.90 | | |
| ROADS | COUNTY ROADS | 0.7415066410 | $555,858 | $555,858 | $412.17 | | |
| ROADSCU | COUNTY ROADS TO CUR EXP | 0.0000000000 | $555,858 | $555,858 | $0.00 | | |
| HOSP2CASH | HOSP DIST #2 GENERAL | 0.0536075306 | $555,858 | $555,858 | $29.80 | | |
| SCH49CP | SCHOOL DIST #49 CAP PROJ | 0.6279093905 | $555,858 | $555,858 | $349.03 | | |
| SCH49MO | SCHOOL DIST #49 EP & O | 0.6376483602 | $555,858 | $555,858 | $354.44 | | |
| CONSERVE | CONSERVATION FUTURES | 0.0275621078 | $555,858 | $555,858 | $15.32 | | |
| EMS1 | FIRE DIST #1 EMS | 0.4679948282 | $555,858 | $555,858 | $260.14 | | |
| FD1 | FIRE DIST #1 GENERAL | 1.2171942929 | $555,858 | $555,858 | $676.59 | | |
| LIB1 | LIBRARY DIST #1 GENERAL | 0.2868827388 | $555,858 | $555,858 | $159.47 | | |
| PORTPT | PORT OF PT GENERAL | 0.1134941229 | $555,858 | $555,858 | $63.09 | | |
| PORTPTIDD | PORT OF PT IDD 2019 | 0.2577346692 | $555,858 | $555,858 | $143.26 | | |
| PUD1 | PUD #1 GENERAL | 0.0597888892 | $555,858 | $555,858 | $33.23 | | |
| STATE | STATE SCHOOL PART 1 | 1.4940692947 | $555,858 | $555,858 | $830.49 | | |
| STATE2 | STATE SCHOOL PART 2 | 0.8050170049 | $555,858 | $555,858 | $447.48 | | |
| | Total Tax Rate: | 7.7095739644 | | | | | |
| | | | | Taxes w/Current Exemptions: | $4,285.44 | | |
| | | | | Taxes w/o Exemptions: | $4,285.44 | | |
Improvement / Building
| Improvement #1: | Residential Bldg | State Code: | 11 | 1790.0 sqft | Value: | $421,108 |
| Bathrooms (#): | 2 (FULL) | Bedrooms (#): | 3 | | Exterior Wall: | SI/ST | Foundation: | CONPR | | Roof Cover: | COMP |   |   |
|
| | Type | Description | Class CD | Sub Class CD | Year Built | Area |
| | MA | Main Area | 3+ | 1S | 2024 | 1790.0 |
| | GATT | House Attached Garage | 3 | 1S | 2024 | 810.0 |
| | HWPOR | House Wood Porch | 3 | * | 2024 | 303.0 |
Sketch
Property Image
Land
| 1 | 3335-1173L | | 0.0000 | 0.00 | 0.00 | 0.00 | 1.00 | $134,750 | $0 |
Roll Value History
| 2026 | N/A | N/A | N/A | N/A | N/A |
| 2025 | $421,108 | $134,750 | $0 | $555,858 | $555,858 |
| 2024 | $185,688 | $128,625 | $0 | $314,313 | $314,313 |
| 2023 | $0 | $87,500 | $0 | $87,500 | $87,500 |
| 2022 | $0 | $80,500 | $0 | $80,500 | $80,500 |
Deed and Sales History
| 1 | 05/01/2023 | SWD | Statutory Warranty Deed | GEORGE A & DIANE M MILAUSKAS | KANDICE B D & RODNEY P CRUSAT | | | $118,500.00 | 140863 | |
| 2 | 04/23/2021 | SWD | Statutory Warranty Deed | GARY L VAN TROJEN | GEORGE A & DIANE M MILAUSKAS | | | $96,500.00 | 136615 | |
Payout Agreement
| No payout information available.. |