Property
Account |
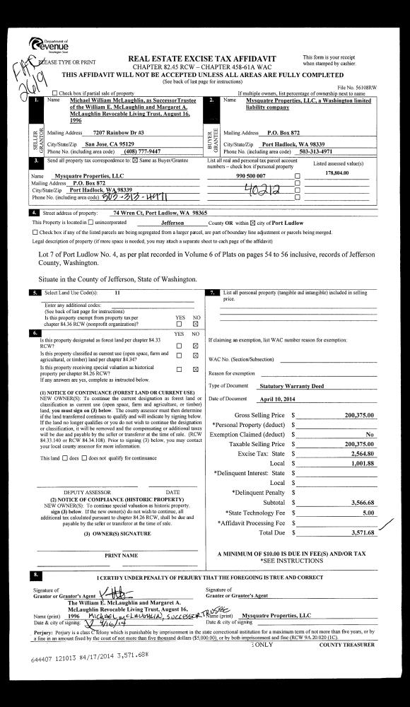
| Property ID: | 40212 | Abbreviated Legal Description: | PORT LUDLOW #4 LOT 7 |
| Parcel # / Geo ID: | 990500007 | Agent Code: | |
| Type: | Real | | |
| Tax Area: | 0213 - 1-49F1E1H2L1 | Land Use Code | 11 |
| Open Space: | N | DFL | N |
| Historic Property: | N | Remodel Property: | N |
| Multi-Family Redevelopment: | N | | |
| Township: | 28N | Section: | 17 |
| Range: | 1E |
Location |
| Address: | 74 WREN CT PORT LUDLOW, WA 98365 | Mapsco: | 115/007 |
| Neighborhood: | PORT LUDLOW #3 & #4 (ALL) (SEWER AVAILABLE TO ALL LOTS) | Map ID: | |
| Neighborhood CD: | 3335 |
Owner |
| Name: | MYSQUATRE PROPERTIES LLC | Owner ID: | 91645 |
| Mailing Address: | PO BOX 872 PORT HADLOCK, WA 98339-0872 | % Ownership: | 100.0000000000% |
| | | Exemptions: | |
Pay Tax Due
Select the appropriate checkbox next to the year to be paid. Multiple years may be selected.
*Convenience Fee not included
Taxes and Assessment Details
Property Tax Information as of
03/12/2026
Click on "Statement Details" to expand or collapse a tax statement.
* Please enter a valid date ** Please enter a valid date *
Statement Details |
| 2026 | 29383 | STATE - STATE LEVY (SCHOOL) | $498.43 | $498.42 | $0.00 | $0.00 | $0.00 | $996.85 |
| 2026 | 29383 | COUNTY - COUNTY LEVIES (CE, DD, VET, MH) | $199.28 | $199.26 | $0.00 | $0.00 | $0.00 | $398.54 |
| 2026 | 29383 | CONSERVE - CONSERVATION FUTURES | $5.98 | $5.97 | $0.00 | $0.00 | $0.00 | $11.95 |
| 2026 | 29383 | COROADS - COUNTY ROADS (ROADS, DIV TO CE) | $160.76 | $160.75 | $0.00 | $0.00 | $0.00 | $321.51 |
| 2026 | 29383 | PORTPT - PORT DISTRICT | $80.49 | $80.47 | $0.00 | $0.00 | $0.00 | $160.96 |
| 2026 | 29383 | PUD1 - PUD #1 | $12.96 | $12.96 | $0.00 | $0.00 | $0.00 | $25.92 |
| 2026 | 29383 | LIB1 - LIBRARY DIST #1 | $62.20 | $62.19 | $0.00 | $0.00 | $0.00 | $124.39 |
| 2026 | 29383 | HD2 - HOSP DIST #2 | $11.62 | $11.62 | $0.00 | $0.00 | $0.00 | $23.24 |
| 2026 | 29383 | SD49 - SCHOOL DIST #49 | $274.37 | $274.36 | $0.00 | $0.00 | $0.00 | $548.73 |
| 2026 | 29383 | FD1 - FIRE DISTRICT #1 | $263.88 | $263.88 | $0.00 | $0.00 | $0.00 | $527.76 |
| 2026 | 29383 | EMS1 - FIRE DIST #1 EMS | $101.46 | $101.46 | $0.00 | $0.00 | $0.00 | $202.92 |
| 2026 | 29383 | JCCD - JC Conservation District | $2.55 | $2.55 | $0.00 | $0.00 | $0.00 | $5.10 |
| 2026 | 29383 | LUD - PT Ludlow Drainage District | $38.40 | $38.39 | $0.00 | $0.00 | $0.00 | $76.79 |
| 2026 | 29383 | NWA - Noxious Weed Assessment | $2.98 | $2.97 | $0.00 | $0.00 | $0.00 | $5.95 |
| 2026 | 29383 | Drain - DRAINAGE DISTRICT FEE | $0.77 | $0.00 | $0.00 | $0.00 | $0.00 | $0.77 |
| 2026 | 29383 | TOTAL: | $1716.13 | $1715.25 | $0.00 | $0.00 | $0.00 | $3431.38 |
|
| 2026 | 29383 | $1716.13 | $1715.25 | $0.00 | $0.00 | $0.00 | $3431.38 |
Statement Details |
| 2025 | 29455 | STATE - STATE LEVY (SCHOOL) | $514.19 | $514.17 | $0.00 | $0.00 | $1028.36 | $0.00 |
| 2025 | 29455 | COUNTY - COUNTY LEVIES (CE, DD, VET, MH) | $202.21 | $202.19 | $0.00 | $0.00 | $404.40 | $0.00 |
| 2025 | 29455 | CONSERVE - CONSERVATION FUTURES | $6.07 | $6.06 | $0.00 | $0.00 | $12.13 | $0.00 |
| 2025 | 29455 | COROADS - COUNTY ROADS (ROADS, DIV TO CE) | $162.00 | $161.98 | $0.00 | $0.00 | $323.98 | $0.00 |
| 2025 | 29455 | PORTPT - PORT DISTRICT | $82.51 | $82.50 | $0.00 | $0.00 | $165.01 | $0.00 |
| 2025 | 29455 | PUD1 - PUD #1 | $13.23 | $13.23 | $0.00 | $0.00 | $26.46 | $0.00 |
| 2025 | 29455 | LIB1 - LIBRARY DIST #1 | $62.68 | $62.67 | $0.00 | $0.00 | $125.35 | $0.00 |
| 2025 | 29455 | HD2 - HOSP DIST #2 | $11.80 | $11.79 | $0.00 | $0.00 | $23.59 | $0.00 |
| 2025 | 29455 | SD49 - SCHOOL DIST #49 | $275.57 | $275.57 | $0.00 | $0.00 | $551.14 | $0.00 |
| 2025 | 29455 | FD1 - FIRE DISTRICT #1 | $266.82 | $266.82 | $0.00 | $0.00 | $533.64 | $0.00 |
| 2025 | 29455 | EMS1 - FIRE DIST #1 EMS | $102.63 | $102.62 | $0.00 | $0.00 | $205.25 | $0.00 |
| 2025 | 29455 | JCCD - JC Conservation District | $2.55 | $2.55 | $0.00 | $0.00 | $5.10 | $0.00 |
| 2025 | 29455 | LUD - PT Ludlow Drainage District | $30.79 | $30.78 | $0.00 | $0.00 | $61.57 | $0.00 |
| 2025 | 29455 | NWA - Noxious Weed Assessment | $2.15 | $2.15 | $0.00 | $0.00 | $4.30 | $0.00 |
| 2025 | 29455 | Drain - DRAINAGE DISTRICT FEE | $0.62 | $0.00 | $0.00 | $0.00 | $0.62 | $0.00 |
| 2025 | 29455 | TOTAL: | $1735.82 | $1735.08 | $0.00 | $0.00 | $3470.90 | $0.00 |
|
| 2025 | 29455 | $1735.82 | $1735.08 | $0.00 | $0.00 | $3470.90 | $0.00 |
Statement Details |
| 2024 | 29515 | STATE - STATE LEVY (SCHOOL) | $468.94 | $468.93 | $0.00 | $0.00 | $937.87 | $0.00 |
| 2024 | 29515 | COUNTY - COUNTY LEVIES (CE, DD, VET, MH) | $200.68 | $200.65 | $0.00 | $0.00 | $401.33 | $0.00 |
| 2024 | 29515 | CONSERVE - CONSERVATION FUTURES | $6.02 | $6.01 | $0.00 | $0.00 | $12.03 | $0.00 |
| 2024 | 29515 | COROADS - COUNTY ROADS (ROADS, DIV TO CE) | $161.47 | $161.46 | $0.00 | $0.00 | $322.93 | $0.00 |
| 2024 | 29515 | PORTPT - PORT DISTRICT | $82.89 | $82.87 | $0.00 | $0.00 | $165.76 | $0.00 |
| 2024 | 29515 | PUD1 - PUD #1 | $13.18 | $13.18 | $0.00 | $0.00 | $26.36 | $0.00 |
| 2024 | 29515 | LIB1 - LIBRARY DIST #1 | $62.47 | $62.47 | $0.00 | $0.00 | $124.94 | $0.00 |
| 2024 | 29515 | HD2 - HOSP DIST #2 | $11.71 | $11.71 | $0.00 | $0.00 | $23.42 | $0.00 |
| 2024 | 29515 | SD49 - SCHOOL DIST #49 | $209.40 | $209.40 | $0.00 | $0.00 | $418.80 | $0.00 |
| 2024 | 29515 | FD1 - FIRE DISTRICT #1 | $265.33 | $265.32 | $0.00 | $0.00 | $530.65 | $0.00 |
| 2024 | 29515 | EMS1 - FIRE DIST #1 EMS | $101.35 | $101.34 | $0.00 | $0.00 | $202.69 | $0.00 |
| 2024 | 29515 | JCCD - JC Conservation District | $2.55 | $2.55 | $0.00 | $0.00 | $5.10 | $0.00 |
| 2024 | 29515 | LUD - PT Ludlow Drainage District | $27.03 | $27.03 | $0.00 | $0.00 | $54.06 | $0.00 |
| 2024 | 29515 | NWA - Noxious Weed Assessment | $2.15 | $2.15 | $0.00 | $0.00 | $4.30 | $0.00 |
| 2024 | 29515 | Drain - DRAINAGE DISTRICT FEE | $0.54 | $0.00 | $0.00 | $0.00 | $0.54 | $0.00 |
| 2024 | 29515 | TOTAL: | $1615.71 | $1615.07 | $0.00 | $0.00 | $3230.78 | $0.00 |
|
| 2024 | 29515 | $1615.71 | $1615.07 | $0.00 | $0.00 | $3230.78 | $0.00 |
Statement Details |
| 2023 | 29557 | STATE - STATE LEVY (SCHOOL) | $455.14 | $455.12 | $0.00 | $0.00 | $910.26 | $0.00 |
| 2023 | 29557 | COUNTY - COUNTY LEVIES (CE, DD, VET, MH) | $198.61 | $198.59 | $0.00 | $0.00 | $397.20 | $0.00 |
| 2023 | 29557 | CONSERVE - CONSERVATION FUTURES | $5.96 | $5.95 | $0.00 | $0.00 | $11.91 | $0.00 |
| 2023 | 29557 | COROADS - COUNTY ROADS (ROADS, DIV TO CE) | $160.69 | $160.69 | $0.00 | $0.00 | $321.38 | $0.00 |
| 2023 | 29557 | PORTPT - PORT DISTRICT | $83.67 | $83.66 | $0.00 | $0.00 | $167.33 | $0.00 |
| 2023 | 29557 | PUD1 - PUD #1 | $13.17 | $13.16 | $0.00 | $0.00 | $26.33 | $0.00 |
| 2023 | 29557 | LIB1 - LIBRARY DIST #1 | $62.17 | $62.17 | $0.00 | $0.00 | $124.34 | $0.00 |
| 2023 | 29557 | HD2 - HOSP DIST #2 | $11.59 | $11.58 | $0.00 | $0.00 | $23.17 | $0.00 |
| 2023 | 29557 | SD49 - SCHOOL DIST #49 | $212.76 | $212.74 | $0.00 | $0.00 | $425.50 | $0.00 |
| 2023 | 29557 | FD3 - FIRE DISTRICT #3 | $197.59 | $197.58 | $0.00 | $0.00 | $395.17 | $0.00 |
| 2023 | 29557 | EMS3 - FIRE DIST #3 EMS | $70.64 | $70.63 | $0.00 | $0.00 | $141.27 | $0.00 |
| 2023 | 29557 | JCCD - JC Conservation District | $2.55 | $2.55 | $0.00 | $0.00 | $5.10 | $0.00 |
| 2023 | 29557 | LUD - PT Ludlow Drainage District | $27.21 | $27.20 | $0.00 | $0.00 | $54.41 | $0.00 |
| 2023 | 29557 | NWA - Noxious Weed Assessment | $2.15 | $2.15 | $0.00 | $0.00 | $4.30 | $0.00 |
| 2023 | 29557 | Drain - DRAINAGE DISTRICT FEE | $0.54 | $0.00 | $0.00 | $0.00 | $0.54 | $0.00 |
| 2023 | 29557 | TOTAL: | $1504.44 | $1503.77 | $0.00 | $0.00 | $3008.21 | $0.00 |
|
| 2023 | 29557 | $1504.44 | $1503.77 | $0.00 | $0.00 | $3008.21 | $0.00 |
Values
| (+) Improvement Homesite Value: | + | $0 | |
| (+) Improvement Non-Homesite Value: | + | $329,086 | |
| (+) Land Homesite Value: | + | $0 | |
| (+) Land Non-Homesite Value: | + | $104,500 | |
| (+) Curr Use (HS): | + | $0 | $0 |
| (+) Curr Use (NHS): | + | $0 | $0 |
| | | -------------------------- | |
| (=) Market Value: | = | $433,586 | |
| (–) Productivity Loss: | – | $0 | |
| | | -------------------------- | |
| (=) Subtotal: | = | $433,586 | |
| (+) Senior Appraised Value: | + | $0 | |
| (+) Non-Senior Appraised Value: | + | $433,586 | |
| | | -------------------------- | |
| (=) Total Appraised Value: | = | $433,586 | |
| (–) Senior Exemption Loss: | – | $0 | |
| (–) Exemption Loss: | – | $0 | |
| | | -------------------------- | |
| (=) Taxable Value: | = | $433,586 | |
Taxing Jurisdiction
| Owner: | MYSQUATRE PROPERTIES LLC | | |
| % Ownership: | 100.0000000000% | | |
| Total Value: | $433,586 | | |
| Tax Area: | 0213 - 1-49F1E1H2L1 |
| CE | COUNTY CURRENT EXPENSE | 0.9034619479 | $433,586 | $433,586 | $391.73 | | |
| CNTYDD | DEVELOPMENTAL DISABILITIES | 0.0052121823 | $433,586 | $433,586 | $2.26 | | |
| CNTYVET | VETERANS RELIEF | 0.0052777810 | $433,586 | $433,586 | $2.29 | | |
| MENTAL | MENTAL HEALTH | 0.0052121823 | $433,586 | $433,586 | $2.26 | | |
| ROADS | COUNTY ROADS | 0.7415066410 | $433,586 | $433,586 | $321.51 | | |
| ROADSCU | COUNTY ROADS TO CUR EXP | 0.0000000000 | $433,586 | $433,586 | $0.00 | | |
| HOSP2CASH | HOSP DIST #2 GENERAL | 0.0536075306 | $433,586 | $433,586 | $23.24 | | |
| SCH49CP | SCHOOL DIST #49 CAP PROJ | 0.6279093905 | $433,586 | $433,586 | $272.25 | | |
| SCH49MO | SCHOOL DIST #49 EP & O | 0.6376483602 | $433,586 | $433,586 | $276.48 | | |
| CONSERVE | CONSERVATION FUTURES | 0.0275621078 | $433,586 | $433,586 | $11.95 | | |
| EMS1 | FIRE DIST #1 EMS | 0.4679948282 | $433,586 | $433,586 | $202.92 | | |
| FD1 | FIRE DIST #1 GENERAL | 1.2171942929 | $433,586 | $433,586 | $527.76 | | |
| LIB1 | LIBRARY DIST #1 GENERAL | 0.2868827388 | $433,586 | $433,586 | $124.39 | | |
| PORTPT | PORT OF PT GENERAL | 0.1134941229 | $433,586 | $433,586 | $49.21 | | |
| PORTPTIDD | PORT OF PT IDD 2019 | 0.2577346692 | $433,586 | $433,586 | $111.75 | | |
| PUD1 | PUD #1 GENERAL | 0.0597888892 | $433,586 | $433,586 | $25.92 | | |
| STATE | STATE SCHOOL PART 1 | 1.4940692947 | $433,586 | $433,586 | $647.81 | | |
| STATE2 | STATE SCHOOL PART 2 | 0.8050170049 | $433,586 | $433,586 | $349.04 | | |
| | Total Tax Rate: | 7.7095739644 | | | | | |
| | | | | Taxes w/Current Exemptions: | $3,342.77 | | |
| | | | | Taxes w/o Exemptions: | $3,342.77 | | |
Improvement / Building
| Improvement #1: | Residential Bldg | State Code: | 11 | 1689.0 sqft | Value: | $329,086 |
| Exterior Wall: | SI/ST | Fireplace: | SIN 1-AVG | | Floor Construction: | FRAME | Foundation: | CONPR | | Heating/Cooling: | F/A | Inside Verify: | YES-FIX | | Roof Cover: | COMP |   |   |
|
| | Type | Description | Class CD | Sub Class CD | Year Built | Area |
| | MA | Main Area | 4- | 1S | 1995 | 1689.0 |
| | PATIO | House Patio | 3 | * | 1995 | 160.0 |
| | HCPOR | House Concrete Porch | 3 | * | 1995 | 106.0 |
| | HDECK | House Deck | 3 | * | 1995 | 200.0 |
| | GATT | House Attached Garage | 3 | 1S | 1995 | 513.0 |
| | CONCD | Concrete Drive | 4 | * | 1995 | 800.0 |
Sketch
Property Image
Land
| 1 | 3335-1185L | | 0.0000 | 0.00 | 0.00 | 0.00 | 1.00 | $104,500 | $0 |
Roll Value History
| 2026 | N/A | N/A | N/A | N/A | N/A |
| 2025 | $329,086 | $104,500 | $0 | $433,586 | $433,586 |
| 2024 | $329,086 | $99,750 | $0 | $428,836 | $428,836 |
| 2023 | $315,374 | $90,000 | $0 | $405,374 | $405,374 |
| 2022 | $301,662 | $85,000 | $0 | $386,662 | $386,662 |
Deed and Sales History
| 1 | 04/10/2014 | SWD | Statutory Warranty Deed | MC LAUGHLIN TRUSTEE WILLIAM E | MYSQUATRE PROPERTIES LLC | | | $200,375.00 | 121013 | |
| 2 | 08/16/1996 | QCD | Quit Claim Deed | MCLAUGHLIN, WILLIAM E/MAR | MCLAUGHLIN, W E & M A/TRUST | 0 | 0 | $0.00 | 80198 | 0 |
| 3 | 11/04/1994 | SWD | Statutory Warranty Deed | BRATTON FAMILY TRUST | MCLAUGHLIN, WILLIAM E/MARGARET | 0 | 0 | $27,500.00 | 75577 | 0 |
Payout Agreement
| No payout information available.. |