Property
Account |
| Property ID: | 40239 | Abbreviated Legal Description: | PORT LUDLOW NO. 4 LOT 34 |
| Parcel # / Geo ID: | 990500034 | Agent Code: | |
| Type: | Real | | |
| Tax Area: | 0213 - 1-49F1E1H2L1 | Land Use Code | 11 |
| Open Space: | N | DFL | N |
| Historic Property: | N | Remodel Property: | N |
| Multi-Family Redevelopment: | N | | |
| Township: | 28N | Section: | 17 |
| Range: | 1E |
Location |
| Address: | | Mapsco: | 115/034 |
| Neighborhood: | PORT LUDLOW #3 & #4 (ALL) (SEWER AVAILABLE TO ALL LOTS) | Map ID: | |
| Neighborhood CD: | 3335 |
Owner |
| Name: | PHILLIP MARK INGERSON | Owner ID: | 111586 |
| Mailing Address: | LORETTA RUTH LAPINSKY 6600 SUGARLOAF PARKWAY 400-111 DULUTH, GA 30097 | % Ownership: | 100.0000000000% |
| | | Exemptions: | |
Pay Tax Due
Select the appropriate checkbox next to the year to be paid. Multiple years may be selected.
*Convenience Fee not included
Taxes and Assessment Details
Property Tax Information as of
03/10/2026
Click on "Statement Details" to expand or collapse a tax statement.
* Please enter a valid date ** Please enter a valid date *
Statement Details |
| 2026 | 29410 | STATE - STATE LEVY (SCHOOL) | $56.91 | $56.90 | $0.00 | $0.00 | $0.00 | $113.81 |
| 2026 | 29410 | COUNTY - COUNTY LEVIES (CE, DD, VET, MH) | $22.75 | $22.75 | $0.00 | $0.00 | $0.00 | $45.50 |
| 2026 | 29410 | CONSERVE - CONSERVATION FUTURES | $0.68 | $0.68 | $0.00 | $0.00 | $0.00 | $1.36 |
| 2026 | 29410 | COROADS - COUNTY ROADS (ROADS, DIV TO CE) | $18.35 | $18.35 | $0.00 | $0.00 | $0.00 | $36.70 |
| 2026 | 29410 | PORTPT - PORT DISTRICT | $9.19 | $9.19 | $0.00 | $0.00 | $0.00 | $18.38 |
| 2026 | 29410 | PUD1 - PUD #1 | $1.48 | $1.48 | $0.00 | $0.00 | $0.00 | $2.96 |
| 2026 | 29410 | LIB1 - LIBRARY DIST #1 | $7.10 | $7.10 | $0.00 | $0.00 | $0.00 | $14.20 |
| 2026 | 29410 | HD2 - HOSP DIST #2 | $1.33 | $1.32 | $0.00 | $0.00 | $0.00 | $2.65 |
| 2026 | 29410 | SD49 - SCHOOL DIST #49 | $31.32 | $31.32 | $0.00 | $0.00 | $0.00 | $62.64 |
| 2026 | 29410 | FD1 - FIRE DISTRICT #1 | $30.13 | $30.12 | $0.00 | $0.00 | $0.00 | $60.25 |
| 2026 | 29410 | EMS1 - FIRE DIST #1 EMS | $11.59 | $11.58 | $0.00 | $0.00 | $0.00 | $23.17 |
| 2026 | 29410 | JCCD - JC Conservation District | $2.55 | $2.55 | $0.00 | $0.00 | $0.00 | $5.10 |
| 2026 | 29410 | LUD - PT Ludlow Drainage District | $11.85 | $11.85 | $0.00 | $0.00 | $0.00 | $23.70 |
| 2026 | 29410 | NWA - Noxious Weed Assessment | $2.98 | $2.97 | $0.00 | $0.00 | $0.00 | $5.95 |
| 2026 | 29410 | WAT - Clean Water District | $13.00 | $13.00 | $0.00 | $0.00 | $0.00 | $26.00 |
| 2026 | 29410 | Drain - DRAINAGE DISTRICT FEE | $0.24 | $0.00 | $0.00 | $0.00 | $0.00 | $0.24 |
| 2026 | 29410 | TOTAL: | $221.45 | $221.16 | $0.00 | $0.00 | $0.00 | $442.61 |
|
| 2026 | 29410 | $221.45 | $221.16 | $0.00 | $0.00 | $0.00 | $442.61 |
Statement Details |
| 2025 | 29482 | STATE - STATE LEVY (SCHOOL) | $56.66 | $56.65 | $0.00 | $9.35 | $0.00 | $122.66 |
| 2025 | 29482 | COUNTY - COUNTY LEVIES (CE, DD, VET, MH) | $22.29 | $22.27 | $0.00 | $3.67 | $0.00 | $48.23 |
| 2025 | 29482 | CONSERVE - CONSERVATION FUTURES | $0.67 | $0.67 | $0.00 | $0.11 | $0.00 | $1.45 |
| 2025 | 29482 | COROADS - COUNTY ROADS (ROADS, DIV TO CE) | $17.85 | $17.85 | $0.00 | $2.95 | $0.00 | $38.65 |
| 2025 | 29482 | PORTPT - PORT DISTRICT | $9.09 | $9.09 | $0.00 | $1.50 | $0.00 | $19.68 |
| 2025 | 29482 | PUD1 - PUD #1 | $1.46 | $1.46 | $0.00 | $0.24 | $0.00 | $3.16 |
| 2025 | 29482 | LIB1 - LIBRARY DIST #1 | $6.91 | $6.90 | $0.00 | $1.14 | $0.00 | $14.95 |
| 2025 | 29482 | HD2 - HOSP DIST #2 | $1.30 | $1.30 | $0.00 | $0.21 | $0.00 | $2.81 |
| 2025 | 29482 | SD49 - SCHOOL DIST #49 | $30.37 | $30.36 | $0.00 | $5.01 | $0.00 | $65.74 |
| 2025 | 29482 | FD1 - FIRE DISTRICT #1 | $29.40 | $29.40 | $0.00 | $4.85 | $0.00 | $63.65 |
| 2025 | 29482 | EMS1 - FIRE DIST #1 EMS | $11.31 | $11.31 | $0.00 | $1.87 | $0.00 | $24.49 |
| 2025 | 29482 | JCCD - JC Conservation District | $2.55 | $2.55 | $0.00 | $0.42 | $0.00 | $5.52 |
| 2025 | 29482 | LUD - PT Ludlow Drainage District | $9.48 | $9.48 | $0.00 | $1.56 | $0.00 | $20.52 |
| 2025 | 29482 | NWA - Noxious Weed Assessment | $2.15 | $2.15 | $0.00 | $0.35 | $0.00 | $4.65 |
| 2025 | 29482 | WAT - Clean Water District | $13.00 | $13.00 | $0.00 | $2.14 | $0.00 | $28.14 |
| 2025 | 29482 | Drain - DRAINAGE DISTRICT FEE | $0.19 | $0.00 | $0.00 | $0.00 | $0.00 | $0.19 |
| 2025 | 29482 | TOTAL: | $214.68 | $214.44 | $0.00 | $35.37 | $0.00 | $464.49 |
|
| 2025 | 29482 | $214.68 | $214.44 | $0.00 | $35.37 | $0.00 | $464.49 |
Statement Details |
| 2024 | 29542 | STATE - STATE LEVY (SCHOOL) | $52.06 | $52.05 | $0.00 | $0.00 | $104.11 | $0.00 |
| 2024 | 29542 | COUNTY - COUNTY LEVIES (CE, DD, VET, MH) | $22.29 | $22.25 | $0.00 | $0.00 | $44.54 | $0.00 |
| 2024 | 29542 | CONSERVE - CONSERVATION FUTURES | $0.67 | $0.67 | $0.00 | $0.00 | $1.34 | $0.00 |
| 2024 | 29542 | COROADS - COUNTY ROADS (ROADS, DIV TO CE) | $17.93 | $17.92 | $0.00 | $0.00 | $35.85 | $0.00 |
| 2024 | 29542 | PORTPT - PORT DISTRICT | $9.20 | $9.20 | $0.00 | $0.00 | $18.40 | $0.00 |
| 2024 | 29542 | PUD1 - PUD #1 | $1.47 | $1.46 | $0.00 | $0.00 | $2.93 | $0.00 |
| 2024 | 29542 | LIB1 - LIBRARY DIST #1 | $6.94 | $6.93 | $0.00 | $0.00 | $13.87 | $0.00 |
| 2024 | 29542 | HD2 - HOSP DIST #2 | $1.30 | $1.30 | $0.00 | $0.00 | $2.60 | $0.00 |
| 2024 | 29542 | SD49 - SCHOOL DIST #49 | $23.25 | $23.24 | $0.00 | $0.00 | $46.49 | $0.00 |
| 2024 | 29542 | FD1 - FIRE DISTRICT #1 | $29.46 | $29.45 | $0.00 | $0.00 | $58.91 | $0.00 |
| 2024 | 29542 | EMS1 - FIRE DIST #1 EMS | $11.25 | $11.25 | $0.00 | $0.00 | $22.50 | $0.00 |
| 2024 | 29542 | JCCD - JC Conservation District | $2.55 | $2.55 | $0.00 | $0.00 | $5.10 | $0.00 |
| 2024 | 29542 | LUD - PT Ludlow Drainage District | $8.30 | $8.29 | $0.00 | $0.00 | $16.59 | $0.00 |
| 2024 | 29542 | NWA - Noxious Weed Assessment | $2.15 | $2.15 | $0.00 | $0.00 | $4.30 | $0.00 |
| 2024 | 29542 | WAT - Clean Water District | $12.50 | $12.50 | $0.00 | $0.00 | $25.00 | $0.00 |
| 2024 | 29542 | Drain - DRAINAGE DISTRICT FEE | $0.17 | $0.00 | $0.00 | $0.00 | $0.17 | $0.00 |
| 2024 | 29542 | TOTAL: | $201.49 | $201.21 | $0.00 | $0.00 | $402.70 | $0.00 |
|
| 2024 | 29542 | $201.49 | $201.21 | $0.00 | $0.00 | $402.70 | $0.00 |
Statement Details |
| 2023 | 29584 | STATE - STATE LEVY (SCHOOL) | $52.97 | $52.97 | $0.00 | $0.00 | $105.94 | $0.00 |
| 2023 | 29584 | COUNTY - COUNTY LEVIES (CE, DD, VET, MH) | $23.12 | $23.11 | $0.00 | $0.00 | $46.23 | $0.00 |
| 2023 | 29584 | CONSERVE - CONSERVATION FUTURES | $0.70 | $0.69 | $0.00 | $0.00 | $1.39 | $0.00 |
| 2023 | 29584 | COROADS - COUNTY ROADS (ROADS, DIV TO CE) | $18.71 | $18.70 | $0.00 | $0.00 | $37.41 | $0.00 |
| 2023 | 29584 | PORTPT - PORT DISTRICT | $9.75 | $9.73 | $0.00 | $0.00 | $19.48 | $0.00 |
| 2023 | 29584 | PUD1 - PUD #1 | $1.53 | $1.53 | $0.00 | $0.00 | $3.06 | $0.00 |
| 2023 | 29584 | LIB1 - LIBRARY DIST #1 | $7.24 | $7.23 | $0.00 | $0.00 | $14.47 | $0.00 |
| 2023 | 29584 | HD2 - HOSP DIST #2 | $1.36 | $1.34 | $0.00 | $0.00 | $2.70 | $0.00 |
| 2023 | 29584 | SD49 - SCHOOL DIST #49 | $24.77 | $24.75 | $0.00 | $0.00 | $49.52 | $0.00 |
| 2023 | 29584 | FD3 - FIRE DISTRICT #3 | $23.00 | $22.99 | $0.00 | $0.00 | $45.99 | $0.00 |
| 2023 | 29584 | EMS3 - FIRE DIST #3 EMS | $8.22 | $8.22 | $0.00 | $0.00 | $16.44 | $0.00 |
| 2023 | 29584 | JCCD - JC Conservation District | $2.53 | $2.53 | $0.00 | $0.00 | $5.06 | $0.00 |
| 2023 | 29584 | LUD - PT Ludlow Drainage District | $8.30 | $8.29 | $0.00 | $0.00 | $16.59 | $0.00 |
| 2023 | 29584 | NWA - Noxious Weed Assessment | $2.15 | $2.15 | $0.00 | $0.00 | $4.30 | $0.00 |
| 2023 | 29584 | WAT - Clean Water District | $12.00 | $12.00 | $0.00 | $0.00 | $24.00 | $0.00 |
| 2023 | 29584 | Drain - DRAINAGE DISTRICT FEE | $0.17 | $0.00 | $0.00 | $0.00 | $0.17 | $0.00 |
| 2023 | 29584 | TOTAL: | $196.52 | $196.23 | $0.00 | $0.00 | $392.75 | $0.00 |
|
| 2023 | 29584 | $196.52 | $196.23 | $0.00 | $0.00 | $392.75 | $0.00 |
Values
| (+) Improvement Homesite Value: | + | $0 | |
| (+) Improvement Non-Homesite Value: | + | $0 | |
| (+) Land Homesite Value: | + | $0 | |
| (+) Land Non-Homesite Value: | + | $49,500 | |
| (+) Curr Use (HS): | + | $0 | $0 |
| (+) Curr Use (NHS): | + | $0 | $0 |
| | | -------------------------- | |
| (=) Market Value: | = | $49,500 | |
| (–) Productivity Loss: | – | $0 | |
| | | -------------------------- | |
| (=) Subtotal: | = | $49,500 | |
| (+) Senior Appraised Value: | + | $0 | |
| (+) Non-Senior Appraised Value: | + | $49,500 | |
| | | -------------------------- | |
| (=) Total Appraised Value: | = | $49,500 | |
| (–) Senior Exemption Loss: | – | $0 | |
| (–) Exemption Loss: | – | $0 | |
| | | -------------------------- | |
| (=) Taxable Value: | = | $49,500 | |
Taxing Jurisdiction
| Owner: | PHILLIP MARK INGERSON | | |
| % Ownership: | 100.0000000000% | | |
| Total Value: | $49,500 | | |
| Tax Area: | 0213 - 1-49F1E1H2L1 |
| CE | COUNTY CURRENT EXPENSE | 0.9034619479 | $49,500 | $49,500 | $44.72 | | |
| CNTYDD | DEVELOPMENTAL DISABILITIES | 0.0052121823 | $49,500 | $49,500 | $0.26 | | |
| CNTYVET | VETERANS RELIEF | 0.0052777810 | $49,500 | $49,500 | $0.26 | | |
| MENTAL | MENTAL HEALTH | 0.0052121823 | $49,500 | $49,500 | $0.26 | | |
| ROADS | COUNTY ROADS | 0.7415066410 | $49,500 | $49,500 | $36.70 | | |
| ROADSCU | COUNTY ROADS TO CUR EXP | 0.0000000000 | $49,500 | $49,500 | $0.00 | | |
| HOSP2CASH | HOSP DIST #2 GENERAL | 0.0536075306 | $49,500 | $49,500 | $2.65 | | |
| SCH49CP | SCHOOL DIST #49 CAP PROJ | 0.6279093905 | $49,500 | $49,500 | $31.08 | | |
| SCH49MO | SCHOOL DIST #49 EP & O | 0.6376483602 | $49,500 | $49,500 | $31.56 | | |
| CONSERVE | CONSERVATION FUTURES | 0.0275621078 | $49,500 | $49,500 | $1.36 | | |
| EMS1 | FIRE DIST #1 EMS | 0.4679948282 | $49,500 | $49,500 | $23.17 | | |
| FD1 | FIRE DIST #1 GENERAL | 1.2171942929 | $49,500 | $49,500 | $60.25 | | |
| LIB1 | LIBRARY DIST #1 GENERAL | 0.2868827388 | $49,500 | $49,500 | $14.20 | | |
| PORTPT | PORT OF PT GENERAL | 0.1134941229 | $49,500 | $49,500 | $5.62 | | |
| PORTPTIDD | PORT OF PT IDD 2019 | 0.2577346692 | $49,500 | $49,500 | $12.76 | | |
| PUD1 | PUD #1 GENERAL | 0.0597888892 | $49,500 | $49,500 | $2.96 | | |
| STATE | STATE SCHOOL PART 1 | 1.4940692947 | $49,500 | $49,500 | $73.96 | | |
| STATE2 | STATE SCHOOL PART 2 | 0.8050170049 | $49,500 | $49,500 | $39.85 | | |
| | Total Tax Rate: | 7.7095739644 | | | | | |
| | | | | Taxes w/Current Exemptions: | $381.62 | | |
| | | | | Taxes w/o Exemptions: | $381.62 | | |
Improvement / Building
Sketch
| No sketches available for this property. |
Property Image
Land
| 1 | 3335-1185L | | 0.0000 | 0.00 | 0.00 | 0.00 | 1.00 | $49,500 | $0 |
Roll Value History
| 2026 | N/A | N/A | N/A | N/A | N/A |
| 2025 | $0 | $49,500 | $0 | $49,500 | $49,500 |
| 2024 | $0 | $47,250 | $0 | $47,250 | $47,250 |
| 2023 | $0 | $45,000 | $0 | $45,000 | $45,000 |
| 2022 | $0 | $45,000 | $0 | $45,000 | $45,000 |
Deed and Sales History
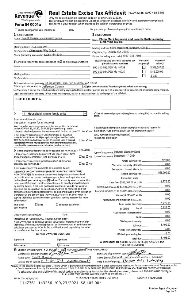
| 1 | 09/17/2024 | SWD | Statutory Warranty Deed | LANI B HOUSTON | PHILLIP MARK INGERSON | | | $525,000.00 | 143256 | |
|   | |
| 2 | 09/03/2021 | SWD | Statutory Warranty Deed | LESLIE G CARLSON | LANI B HOUSTON | | | $413,000.00 | 137532 | |
|   | |
| 3 | 05/26/2015 | QCD | Quit Claim Deed | | | | | | 123392 | |
| 4 | 06/20/2008 | SWD | Statutory Warranty Deed | NAT RESIDENTIAL NOMINEE | BENNETT, JEFFREY A/LESLIE | | | $265,000.00 | 111507 | 0 |
| 5 | 03/14/2008 | SWD | Statutory Warranty Deed | WOOLEY, JENNIFER L/JAMES | NAT RESIDENTIAL NOMINEE | | | $265,000.00 | 111506 | 0 |
| 6 | 01/18/2007 | QCD | Quit Claim Deed | WOOLEY, JAMES H | WOOLEY, JENNIFER | 0 | 0 | $0.00 | 110726 | 0 |
| 7 | 12/15/2006 | SWD | Statutory Warranty Deed | LARSON, GERALD H/YVONNE | WOOLEY, JAMES H/JENNIFER L | 0 | 0 | $260,000.00 | 108310 | 0 |
|   | |
Payout Agreement
| No payout information available.. |