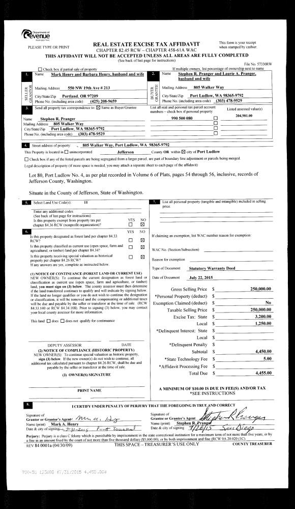
Property
Account |
| Property ID: | 40285 | Abbreviated Legal Description: | PORT LUDLOW NO. 4 LOT 80 |
| Parcel # / Geo ID: | 990500080 | Agent Code: | |
| Type: | Real | | |
| Tax Area: | 0213 - 1-49F1E1H2L1 | Land Use Code | 11 |
| Open Space: | N | DFL | N |
| Historic Property: | N | Remodel Property: | N |
| Multi-Family Redevelopment: | N | | |
| Township: | 28N | Section: | 8 |
| Range: | 1E |
Location |
| Address: | 805 WALKER WAY PORT LUDLOW, WA 98365 | Mapsco: | 116/040 |
| Neighborhood: | PORT LUDLOW #3 & #4 (ALL) (SEWER AVAILABLE TO ALL LOTS) | Map ID: | |
| Neighborhood CD: | 3335 |
Owner |
| Name: | STEPHEN R & LAURIE A PRANGER | Owner ID: | 94093 |
| Mailing Address: | 805 WALKER WAY PORT LUDLOW, WA 98365-9792 | % Ownership: | 100.0000000000% |
| | | Exemptions: | SNR/DSBL |
Pay Tax Due
There is currently No Amount Due on this property.
Taxes and Assessment Details
Property Tax Information as of
03/10/2026
Click on "Statement Details" to expand or collapse a tax statement.
* Please enter a valid date ** Please enter a valid date *
Statement Details |
| | TOTAL: | $0.00 | $0.00 | $0.00 | $0.00 | $0.00 | $0.00 |
|
| | $0.00 | $0.00 | $0.00 | $0.00 | $0.00 | $0.00 |
Values
| (+) Improvement Homesite Value: | + | $392,478 | |
| (+) Improvement Non-Homesite Value: | + | $0 | |
| (+) Land Homesite Value: | + | $104,500 | |
| (+) Land Non-Homesite Value: | + | $0 | |
| (+) Curr Use (HS): | + | $0 | $0 |
| (+) Curr Use (NHS): | + | $0 | $0 |
| | | -------------------------- | |
| (=) Market Value: | = | $496,978 | |
| (–) Productivity Loss: | – | $0 | |
| | | -------------------------- | |
| (=) Subtotal: | = | $496,978 | |
| (+) Senior Appraised Value: | + | $335,445 | |
| (+) Non-Senior Appraised Value: | + | $0 | |
| | | -------------------------- | |
| (=) Total Appraised Value: | = | $335,445 | |
| (–) Senior Exemption Loss: | – | $0 | |
| (–) Exemption Loss: | – | $0 | |
| | | -------------------------- | |
| (=) Taxable Value: | = | $335,445 | |
Taxing Jurisdiction
| Owner: | STEPHEN R & LAURIE A PRANGER | | |
| % Ownership: | 100.0000000000% | | |
| Total Value: | $496,978 | | |
| Tax Area: | 0213 - 1-49F1E1H2L1 |
| CE | COUNTY CURRENT EXPENSE | 0.9034619479 | $496,978 | $335,445 | $303.06 | | |
| CNTYDD | DEVELOPMENTAL DISABILITIES | 0.0052121823 | $496,978 | $335,445 | $1.75 | | |
| CNTYVET | VETERANS RELIEF | 0.0052777810 | $496,978 | $335,445 | $1.77 | | |
| MENTAL | MENTAL HEALTH | 0.0052121823 | $496,978 | $335,445 | $1.75 | | |
| ROADS | COUNTY ROADS | 0.7415066410 | $496,978 | $335,445 | $248.73 | | |
| ROADSCU | COUNTY ROADS TO CUR EXP | 0.0000000000 | $496,978 | $335,445 | $0.00 | | |
| HOSP2CASH | HOSP DIST #2 GENERAL | 0.0536075306 | $496,978 | $335,445 | $17.98 | | |
| SCH49CP | SCHOOL DIST #49 CAP PROJ | 0.0000000000 | $496,978 | $0 | $0.00 | | |
| SCH49MO | SCHOOL DIST #49 EP & O | 0.0000000000 | $496,978 | $0 | $0.00 | | |
| CONSERVE | CONSERVATION FUTURES | 0.0275621078 | $496,978 | $335,445 | $9.25 | | |
| EMS1 | FIRE DIST #1 EMS | 0.4679948282 | $496,978 | $335,445 | $156.99 | | |
| FD1 | FIRE DIST #1 GENERAL | 1.2171942929 | $496,978 | $335,445 | $408.30 | | |
| LIB1 | LIBRARY DIST #1 GENERAL | 0.2868827388 | $496,978 | $335,445 | $96.23 | | |
| PORTPT | PORT OF PT GENERAL | 0.1134941229 | $496,978 | $335,445 | $38.07 | | |
| PORTPTIDD | PORT OF PT IDD 2019 | 0.2577346692 | $496,978 | $335,445 | $86.46 | | |
| PUD1 | PUD #1 GENERAL | 0.0597888892 | $496,978 | $335,445 | $20.06 | | |
| STATE | STATE SCHOOL PART 1 | 1.4940692947 | $496,978 | $335,445 | $501.18 | | |
| STATE2 | STATE SCHOOL PART 2 | 0.0000000000 | $496,978 | $0 | $0.00 | | |
| | Total Tax Rate: | 5.6389992088 | | | | | |
| | | | | Taxes w/Current Exemptions: | $1,891.58 | | |
| | | | | Taxes w/o Exemptions: | $3,831.48 | | |
Improvement / Building
| Improvement #1: | Residential Bldg | State Code: | 11 | 1644.0 sqft | Value: | $392,478 |
| Bathrooms (#): | 2 (FULL) | Bedrooms (#): | 2 | | Exterior Wall: | SI/ST | Fireplace: | SIN 1-AVG | | Floor Construction: | FRAME | Foundation: | CONPR | | Heating/Cooling: | ELBB | Roof Cover: | COMP |
|
| | Type | Description | Class CD | Sub Class CD | Year Built | Area |
| | MA | Main Area | 4+ | 1S | 1994 | 1644.0 |
| | HCPOR | House Concrete Porch | 4 | * | 1994 | 60.0 |
| | HDECK | House Deck | 4 | * | 1994 | 260.0 |
| | GATT | House Attached Garage | 4 | 1S | 1994 | 528.0 |
| | CONCD | Concrete Drive | 4 | * | 1994 | 660.0 |
Sketch
| No sketches available for this property. |
Property Image
Land
| 1 | 3335-1185L | No View Lots | 0.0000 | 0.00 | 0.00 | 0.00 | 1.00 | $104,500 | $0 |
Roll Value History
| 2026 | N/A | N/A | N/A | N/A | N/A |
| 2025 | $392,478 | $104,500 | $0 | $496,978 | $335,445 |
| 2024 | $392,478 | $99,750 | $0 | $492,228 | $335,445 |
| 2023 | $376,125 | $90,000 | $0 | $466,125 | $265,445 |
| 2022 | $359,772 | $85,000 | $0 | $444,772 | $265,445 |
Deed and Sales History
| 1 | 07/22/2015 | SWD | Statutory Warranty Deed | MARK A & BARBARA D HENRY | STEPHEN R & LAURIE A PRANGER | | | $250,000.00 | 123680 | |
| 2 | 02/12/2014 | BSD | Bargain and Sale Deed | FEDERAL HOME LOAN MTG CORP | MARK A & BARBARA D HENRY | | | $195,000.00 | 120725 | |
| 3 | 07/30/2013 | TRED | Trustee Deed | NORTHWEST TRUSTEE SERVICES INC | FEDERAL HOME LOAN MTG CORP | | | | 119720 | |
| 4 | 07/09/2007 | SWD | Statutory Warranty Deed | LOFTIN, SUSAN | CIHAK, WAYNE J | | | $285,100.00 | 109596 | 0 |
| 5 | 12/16/2002 | SWD | Statutory Warranty Deed | SPROCH-WILKERSON, DIANE L | LOFTIN, LONNY & SUSAN | 0 | 0 | $175,000.00 | 96231 | 0 |
| 6 | 04/23/1998 | SWD | Statutory Warranty Deed | MEURICH, HEINZ/DONNA C | SPROCH, DIANE L | 0 | 0 | $146,400.00 | 84387 | 0 |
| 7 | 12/29/1994 | SWD | Statutory Warranty Deed | LANDER SIMPSON INC | MEURICH, HEINZ/DONNA C | 0 | 0 | $135,000.00 | 75968 | 0 |
| 8 | 01/31/1994 | REC | Real Estate Contract | POPE RESOURCES | LANDER SIMPSON INC | 0 | 0 | $18,000.00 | 73296 | 0 |
Payout Agreement
| No payout information available.. |