Property
Account |
| Property ID: | 40313 | Abbreviated Legal Description: | PORT LUDLOW NO. 2 AREA 1 26 |
| Parcel # / Geo ID: | 990600126 | Agent Code: | |
| Type: | Real | | |
| Tax Area: | 0213 - 1-49F1E1H2L1 | Land Use Code | 11 |
| Open Space: | N | DFL | N |
| Historic Property: | N | Remodel Property: | N |
| Multi-Family Redevelopment: | N | | |
| Township: | 28N | Section: | 9 |
| Range: | 1E |
Location |
| Address: | 130 BALDWIN LN PORT LUDLOW, WA 98368 | Mapsco: | 104/026 |
| Neighborhood: | PORT LUDLOW #1 AREA 2; P L #2 AREA 1; P L #5 (ALL) | Map ID: | |
| Neighborhood CD: | 3331 |
Owner |
| Name: | FERGUSON & COLE INC | Owner ID: | 15556 |
| Mailing Address: | 460 NE ANNA RD POULSBO, WA 98370-7032 | % Ownership: | 100.0000000000% |
| | | Exemptions: | |
Pay Tax Due
Select the appropriate checkbox next to the year to be paid. Multiple years may be selected.
*Convenience Fee not included
Taxes and Assessment Details
Property Tax Information as of
03/11/2026
Click on "Statement Details" to expand or collapse a tax statement.
* Please enter a valid date ** Please enter a valid date *
Statement Details |
| 2026 | 29483 | STATE - STATE LEVY (SCHOOL) | $305.48 | $305.47 | $0.00 | $0.00 | $0.00 | $610.95 |
| 2026 | 29483 | COUNTY - COUNTY LEVIES (CE, DD, VET, MH) | $122.15 | $122.12 | $0.00 | $0.00 | $0.00 | $244.27 |
| 2026 | 29483 | CONSERVE - CONSERVATION FUTURES | $3.66 | $3.66 | $0.00 | $0.00 | $0.00 | $7.32 |
| 2026 | 29483 | COROADS - COUNTY ROADS (ROADS, DIV TO CE) | $98.53 | $98.52 | $0.00 | $0.00 | $0.00 | $197.05 |
| 2026 | 29483 | PORTPT - PORT DISTRICT | $49.33 | $49.32 | $0.00 | $0.00 | $0.00 | $98.65 |
| 2026 | 29483 | PUD1 - PUD #1 | $7.95 | $7.94 | $0.00 | $0.00 | $0.00 | $15.89 |
| 2026 | 29483 | LIB1 - LIBRARY DIST #1 | $38.12 | $38.12 | $0.00 | $0.00 | $0.00 | $76.24 |
| 2026 | 29483 | HD2 - HOSP DIST #2 | $7.13 | $7.12 | $0.00 | $0.00 | $0.00 | $14.25 |
| 2026 | 29483 | SD49 - SCHOOL DIST #49 | $168.16 | $168.15 | $0.00 | $0.00 | $0.00 | $336.31 |
| 2026 | 29483 | FD1 - FIRE DISTRICT #1 | $161.73 | $161.73 | $0.00 | $0.00 | $0.00 | $323.46 |
| 2026 | 29483 | EMS1 - FIRE DIST #1 EMS | $62.18 | $62.18 | $0.00 | $0.00 | $0.00 | $124.36 |
| 2026 | 29483 | JCCD - JC Conservation District | $2.55 | $2.55 | $0.00 | $0.00 | $0.00 | $5.10 |
| 2026 | 29483 | LUD - PT Ludlow Drainage District | $37.21 | $37.21 | $0.00 | $0.00 | $0.00 | $74.42 |
| 2026 | 29483 | NWA - Noxious Weed Assessment | $2.98 | $2.97 | $0.00 | $0.00 | $0.00 | $5.95 |
| 2026 | 29483 | Drain - DRAINAGE DISTRICT FEE | $0.74 | $0.00 | $0.00 | $0.00 | $0.00 | $0.74 |
| 2026 | 29483 | TOTAL: | $1067.90 | $1067.06 | $0.00 | $0.00 | $0.00 | $2134.96 |
|
| 2026 | 29483 | $1067.90 | $1067.06 | $0.00 | $0.00 | $0.00 | $2134.96 |
Statement Details |
| 2025 | 29555 | STATE - STATE LEVY (SCHOOL) | $105.52 | $105.51 | $0.00 | $0.00 | $211.03 | $0.00 |
| 2025 | 29555 | COUNTY - COUNTY LEVIES (CE, DD, VET, MH) | $41.51 | $41.48 | $0.00 | $0.00 | $82.99 | $0.00 |
| 2025 | 29555 | CONSERVE - CONSERVATION FUTURES | $1.25 | $1.24 | $0.00 | $0.00 | $2.49 | $0.00 |
| 2025 | 29555 | COROADS - COUNTY ROADS (ROADS, DIV TO CE) | $33.24 | $33.24 | $0.00 | $0.00 | $66.48 | $0.00 |
| 2025 | 29555 | PORTPT - PORT DISTRICT | $16.94 | $16.93 | $0.00 | $0.00 | $33.87 | $0.00 |
| 2025 | 29555 | PUD1 - PUD #1 | $2.72 | $2.71 | $0.00 | $0.00 | $5.43 | $0.00 |
| 2025 | 29555 | LIB1 - LIBRARY DIST #1 | $12.86 | $12.86 | $0.00 | $0.00 | $25.72 | $0.00 |
| 2025 | 29555 | HD2 - HOSP DIST #2 | $2.42 | $2.42 | $0.00 | $0.00 | $4.84 | $0.00 |
| 2025 | 29555 | SD49 - SCHOOL DIST #49 | $56.55 | $56.55 | $0.00 | $0.00 | $113.10 | $0.00 |
| 2025 | 29555 | FD1 - FIRE DISTRICT #1 | $54.76 | $54.75 | $0.00 | $0.00 | $109.51 | $0.00 |
| 2025 | 29555 | EMS1 - FIRE DIST #1 EMS | $21.06 | $21.06 | $0.00 | $0.00 | $42.12 | $0.00 |
| 2025 | 29555 | JCCD - JC Conservation District | $2.53 | $2.53 | $0.00 | $0.00 | $5.06 | $0.00 |
| 2025 | 29555 | LUD - PT Ludlow Drainage District | $8.53 | $8.53 | $0.00 | $0.00 | $17.06 | $0.00 |
| 2025 | 29555 | NWA - Noxious Weed Assessment | $2.15 | $2.15 | $0.00 | $0.00 | $4.30 | $0.00 |
| 2025 | 29555 | WAT - Clean Water District | $13.00 | $13.00 | $0.00 | $0.00 | $26.00 | $0.00 |
| 2025 | 29555 | Drain - DRAINAGE DISTRICT FEE | $0.17 | $0.00 | $0.00 | $0.00 | $0.17 | $0.00 |
| 2025 | 29555 | TOTAL: | $375.21 | $374.96 | $0.00 | $0.00 | $750.17 | $0.00 |
|
| 2025 | 29555 | $375.21 | $374.96 | $0.00 | $0.00 | $750.17 | $0.00 |
Statement Details |
| 2024 | 29615 | STATE - STATE LEVY (SCHOOL) | $92.55 | $92.54 | $0.00 | $0.00 | $185.09 | $0.00 |
| 2024 | 29615 | COUNTY - COUNTY LEVIES (CE, DD, VET, MH) | $39.62 | $39.58 | $0.00 | $0.00 | $79.20 | $0.00 |
| 2024 | 29615 | CONSERVE - CONSERVATION FUTURES | $1.19 | $1.18 | $0.00 | $0.00 | $2.37 | $0.00 |
| 2024 | 29615 | COROADS - COUNTY ROADS (ROADS, DIV TO CE) | $31.87 | $31.86 | $0.00 | $0.00 | $63.73 | $0.00 |
| 2024 | 29615 | PORTPT - PORT DISTRICT | $16.36 | $16.35 | $0.00 | $0.00 | $32.71 | $0.00 |
| 2024 | 29615 | PUD1 - PUD #1 | $2.60 | $2.60 | $0.00 | $0.00 | $5.20 | $0.00 |
| 2024 | 29615 | LIB1 - LIBRARY DIST #1 | $12.33 | $12.33 | $0.00 | $0.00 | $24.66 | $0.00 |
| 2024 | 29615 | HD2 - HOSP DIST #2 | $2.31 | $2.31 | $0.00 | $0.00 | $4.62 | $0.00 |
| 2024 | 29615 | SD49 - SCHOOL DIST #49 | $41.33 | $41.32 | $0.00 | $0.00 | $82.65 | $0.00 |
| 2024 | 29615 | FD1 - FIRE DISTRICT #1 | $52.36 | $52.36 | $0.00 | $0.00 | $104.72 | $0.00 |
| 2024 | 29615 | EMS1 - FIRE DIST #1 EMS | $20.00 | $20.00 | $0.00 | $0.00 | $40.00 | $0.00 |
| 2024 | 29615 | JCCD - JC Conservation District | $2.53 | $2.53 | $0.00 | $0.00 | $5.06 | $0.00 |
| 2024 | 29615 | LUD - PT Ludlow Drainage District | $7.47 | $7.46 | $0.00 | $0.00 | $14.93 | $0.00 |
| 2024 | 29615 | NWA - Noxious Weed Assessment | $2.15 | $2.15 | $0.00 | $0.00 | $4.30 | $0.00 |
| 2024 | 29615 | WAT - Clean Water District | $12.50 | $12.50 | $0.00 | $0.00 | $25.00 | $0.00 |
| 2024 | 29615 | Drain - DRAINAGE DISTRICT FEE | $0.15 | $0.00 | $0.00 | $0.00 | $0.15 | $0.00 |
| 2024 | 29615 | TOTAL: | $337.32 | $337.07 | $0.00 | $0.00 | $674.39 | $0.00 |
|
| 2024 | 29615 | $337.32 | $337.07 | $0.00 | $0.00 | $674.39 | $0.00 |
Statement Details |
| 2023 | 29657 | STATE - STATE LEVY (SCHOOL) | $94.17 | $94.16 | $0.00 | $0.00 | $188.33 | $0.00 |
| 2023 | 29657 | COUNTY - COUNTY LEVIES (CE, DD, VET, MH) | $41.11 | $41.08 | $0.00 | $0.00 | $82.19 | $0.00 |
| 2023 | 29657 | CONSERVE - CONSERVATION FUTURES | $1.23 | $1.23 | $0.00 | $0.00 | $2.46 | $0.00 |
| 2023 | 29657 | COROADS - COUNTY ROADS (ROADS, DIV TO CE) | $33.25 | $33.24 | $0.00 | $0.00 | $66.49 | $0.00 |
| 2023 | 29657 | PORTPT - PORT DISTRICT | $17.32 | $17.30 | $0.00 | $0.00 | $34.62 | $0.00 |
| 2023 | 29657 | PUD1 - PUD #1 | $2.73 | $2.72 | $0.00 | $0.00 | $5.45 | $0.00 |
| 2023 | 29657 | LIB1 - LIBRARY DIST #1 | $12.87 | $12.86 | $0.00 | $0.00 | $25.73 | $0.00 |
| 2023 | 29657 | HD2 - HOSP DIST #2 | $2.40 | $2.39 | $0.00 | $0.00 | $4.79 | $0.00 |
| 2023 | 29657 | SD49 - SCHOOL DIST #49 | $44.03 | $44.01 | $0.00 | $0.00 | $88.04 | $0.00 |
| 2023 | 29657 | FD3 - FIRE DISTRICT #3 | $40.88 | $40.88 | $0.00 | $0.00 | $81.76 | $0.00 |
| 2023 | 29657 | EMS3 - FIRE DIST #3 EMS | $14.62 | $14.61 | $0.00 | $0.00 | $29.23 | $0.00 |
| 2023 | 29657 | JCCD - JC Conservation District | $2.53 | $2.53 | $0.00 | $0.00 | $5.06 | $0.00 |
| 2023 | 29657 | LUD - PT Ludlow Drainage District | $7.47 | $7.46 | $0.00 | $0.00 | $14.93 | $0.00 |
| 2023 | 29657 | NWA - Noxious Weed Assessment | $2.15 | $2.15 | $0.00 | $0.00 | $4.30 | $0.00 |
| 2023 | 29657 | WAT - Clean Water District | $12.00 | $12.00 | $0.00 | $0.00 | $24.00 | $0.00 |
| 2023 | 29657 | Drain - DRAINAGE DISTRICT FEE | $0.15 | $0.00 | $0.00 | $0.00 | $0.15 | $0.00 |
| 2023 | 29657 | TOTAL: | $328.91 | $328.62 | $0.00 | $0.00 | $657.53 | $0.00 |
|
| 2023 | 29657 | $328.91 | $328.62 | $0.00 | $0.00 | $657.53 | $0.00 |
Values
| (+) Improvement Homesite Value: | + | $0 | |
| (+) Improvement Non-Homesite Value: | + | $139,239 | |
| (+) Land Homesite Value: | + | $0 | |
| (+) Land Non-Homesite Value: | + | $126,500 | |
| (+) Curr Use (HS): | + | $0 | $0 |
| (+) Curr Use (NHS): | + | $0 | $0 |
| | | -------------------------- | |
| (=) Market Value: | = | $265,739 | |
| (–) Productivity Loss: | – | $0 | |
| | | -------------------------- | |
| (=) Subtotal: | = | $265,739 | |
| (+) Senior Appraised Value: | + | $0 | |
| (+) Non-Senior Appraised Value: | + | $265,739 | |
| | | -------------------------- | |
| (=) Total Appraised Value: | = | $265,739 | |
| (–) Senior Exemption Loss: | – | $0 | |
| (–) Exemption Loss: | – | $0 | |
| | | -------------------------- | |
| (=) Taxable Value: | = | $265,739 | |
Taxing Jurisdiction
| Owner: | FERGUSON & COLE INC | | |
| % Ownership: | 100.0000000000% | | |
| Total Value: | $265,739 | | |
| Tax Area: | 0213 - 1-49F1E1H2L1 |
| CE | COUNTY CURRENT EXPENSE | 0.9034619479 | $265,739 | $265,739 | $240.09 | | |
| CNTYDD | DEVELOPMENTAL DISABILITIES | 0.0052121823 | $265,739 | $265,739 | $1.39 | | |
| CNTYVET | VETERANS RELIEF | 0.0052777810 | $265,739 | $265,739 | $1.40 | | |
| MENTAL | MENTAL HEALTH | 0.0052121823 | $265,739 | $265,739 | $1.39 | | |
| ROADS | COUNTY ROADS | 0.7415066410 | $265,739 | $265,739 | $197.05 | | |
| ROADSCU | COUNTY ROADS TO CUR EXP | 0.0000000000 | $265,739 | $265,739 | $0.00 | | |
| HOSP2CASH | HOSP DIST #2 GENERAL | 0.0536075306 | $265,739 | $265,739 | $14.25 | | |
| SCH49CP | SCHOOL DIST #49 CAP PROJ | 0.6279093905 | $265,739 | $265,739 | $166.86 | | |
| SCH49MO | SCHOOL DIST #49 EP & O | 0.6376483602 | $265,739 | $265,739 | $169.45 | | |
| CONSERVE | CONSERVATION FUTURES | 0.0275621078 | $265,739 | $265,739 | $7.32 | | |
| EMS1 | FIRE DIST #1 EMS | 0.4679948282 | $265,739 | $265,739 | $124.36 | | |
| FD1 | FIRE DIST #1 GENERAL | 1.2171942929 | $265,739 | $265,739 | $323.46 | | |
| LIB1 | LIBRARY DIST #1 GENERAL | 0.2868827388 | $265,739 | $265,739 | $76.24 | | |
| PORTPT | PORT OF PT GENERAL | 0.1134941229 | $265,739 | $265,739 | $30.16 | | |
| PORTPTIDD | PORT OF PT IDD 2019 | 0.2577346692 | $265,739 | $265,739 | $68.49 | | |
| PUD1 | PUD #1 GENERAL | 0.0597888892 | $265,739 | $265,739 | $15.89 | | |
| STATE | STATE SCHOOL PART 1 | 1.4940692947 | $265,739 | $265,739 | $397.03 | | |
| STATE2 | STATE SCHOOL PART 2 | 0.8050170049 | $265,739 | $265,739 | $213.92 | | |
| | Total Tax Rate: | 7.7095739644 | | | | | |
| | | | | Taxes w/Current Exemptions: | $2,048.75 | | |
| | | | | Taxes w/o Exemptions: | $2,048.75 | | |
Improvement / Building
| Improvement #1: | Residential Bldg | State Code: | 11 | 1508.0 sqft | Value: | $139,239 |
| Bathrooms (#): | 2 (FULL) | Bedrooms (#): | 2 | | Exterior Wall: | SI/ST | Foundation: | CONPR |
|
| | Type | Description | Class CD | Sub Class CD | Year Built | Area |
| | MA | Main Area | 4+ | 1S | 2025 | 1508.0 |
| | GATT | House Attached Garage | 4 | 1S | 2025 | 710.0 |
| | HCPOR | House Concrete Porch | 4 | 1S | 2025 | 8.0 |
| | HWPOR | House Wood Porch | 4 | 1S | 2025 | 200.0 |
| | HDECK | House Deck | 4 | 1S | 2025 | 120.0 |
Sketch
Property Image
Land
| 1 | 3331-1167L | | 0.0000 | 0.00 | 0.00 | 0.00 | 1.00 | $126,500 | $0 |
Roll Value History
| 2026 | N/A | N/A | N/A | N/A | N/A |
| 2025 | $139,239 | $126,500 | $0 | $265,739 | $265,739 |
| 2024 | $0 | $88,000 | $0 | $88,000 | $88,000 |
| 2023 | $0 | $80,000 | $0 | $80,000 | $80,000 |
| 2022 | $0 | $80,000 | $0 | $80,000 | $80,000 |
Deed and Sales History
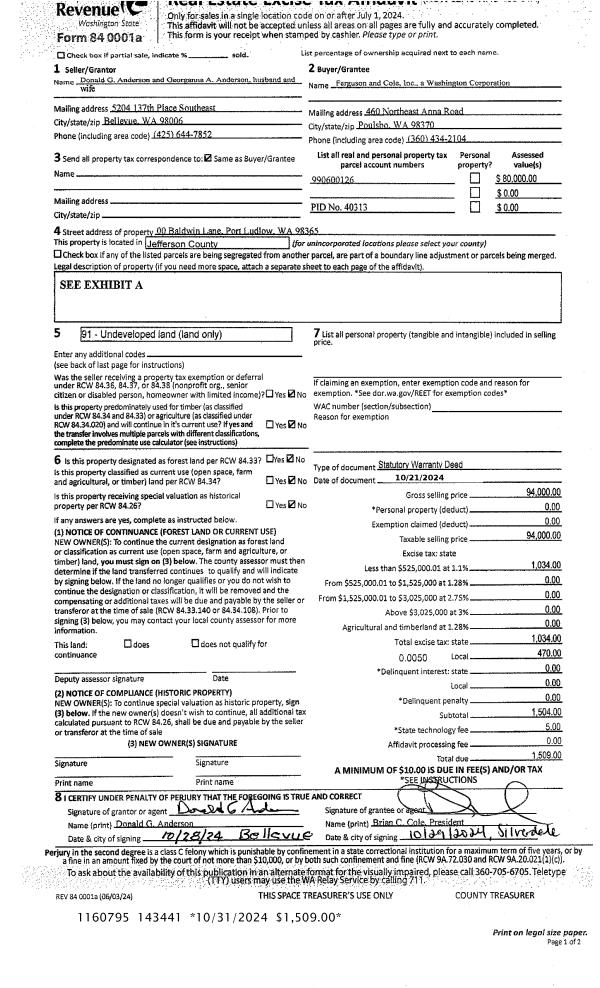
| 1 | 10/21/2024 | SWD | Statutory Warranty Deed | DONALD G ANDERSON | FERGUSON & COLE INC | | | $94,000.00 | 143441 | |
Payout Agreement
| No payout information available.. |