Property
Account |
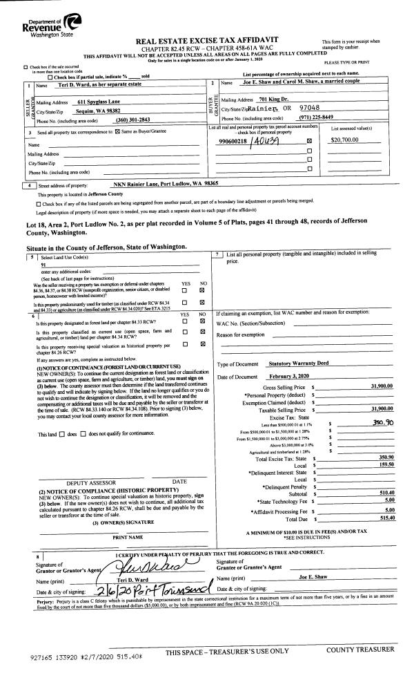
| Property ID: | 40369 | Abbreviated Legal Description: | PORT LUDLOW NO. 2 AREA 2 18 |
| Parcel # / Geo ID: | 990600218 | Agent Code: | |
| Type: | Real | | |
| Tax Area: | 0213 - 1-49F1E1H2L1 | Land Use Code | 11 |
| Open Space: | N | DFL | N |
| Historic Property: | N | Remodel Property: | N |
| Multi-Family Redevelopment: | N | | |
| Township: | 28N | Section: | 8 |
| Range: | 1E |
Location |
| Address: | 183 RAINIER LN PORT LUDLOW, WA 98365 | Mapsco: | 106/018 |
| Neighborhood: | PORT LUDLOW #2 AREA 2 | Map ID: | |
| Neighborhood CD: | 3333 |
Owner |
| Name: | JENNIFER R HUDSON | Owner ID: | 104218 |
| Mailing Address: | PO BOX 1507 STANWOOD, WA 98292-1507 | % Ownership: | 100.0000000000% |
| | | Exemptions: | |
Pay Tax Due
There is currently No Amount Due on this property.
Taxes and Assessment Details
Property Tax Information as of
03/12/2026
Click on "Statement Details" to expand or collapse a tax statement.
* Please enter a valid date ** Please enter a valid date *
Statement Details |
| | TOTAL: | $0.00 | $0.00 | $0.00 | $0.00 | $0.00 | $0.00 |
|
| | $0.00 | $0.00 | $0.00 | $0.00 | $0.00 | $0.00 |
Values
| (+) Improvement Homesite Value: | + | $0 | |
| (+) Improvement Non-Homesite Value: | + | $425,060 | |
| (+) Land Homesite Value: | + | $0 | |
| (+) Land Non-Homesite Value: | + | $130,900 | |
| (+) Curr Use (HS): | + | $0 | $0 |
| (+) Curr Use (NHS): | + | $0 | $0 |
| | | -------------------------- | |
| (=) Market Value: | = | $555,960 | |
| (–) Productivity Loss: | – | $0 | |
| | | -------------------------- | |
| (=) Subtotal: | = | $555,960 | |
| (+) Senior Appraised Value: | + | $0 | |
| (+) Non-Senior Appraised Value: | + | $555,960 | |
| | | -------------------------- | |
| (=) Total Appraised Value: | = | $555,960 | |
| (–) Senior Exemption Loss: | – | $0 | |
| (–) Exemption Loss: | – | $0 | |
| | | -------------------------- | |
| (=) Taxable Value: | = | $555,960 | |
Taxing Jurisdiction
| Owner: | JENNIFER R HUDSON | | |
| % Ownership: | 100.0000000000% | | |
| Total Value: | $555,960 | | |
| Tax Area: | 0213 - 1-49F1E1H2L1 |
| CE | COUNTY CURRENT EXPENSE | 0.9034619479 | $555,960 | $555,960 | $502.29 | | |
| CNTYDD | DEVELOPMENTAL DISABILITIES | 0.0052121823 | $555,960 | $555,960 | $2.90 | | |
| CNTYVET | VETERANS RELIEF | 0.0052777810 | $555,960 | $555,960 | $2.93 | | |
| MENTAL | MENTAL HEALTH | 0.0052121823 | $555,960 | $555,960 | $2.90 | | |
| ROADS | COUNTY ROADS | 0.7415066410 | $555,960 | $555,960 | $412.25 | | |
| ROADSCU | COUNTY ROADS TO CUR EXP | 0.0000000000 | $555,960 | $555,960 | $0.00 | | |
| HOSP2CASH | HOSP DIST #2 GENERAL | 0.0536075306 | $555,960 | $555,960 | $29.80 | | |
| SCH49CP | SCHOOL DIST #49 CAP PROJ | 0.6279093905 | $555,960 | $555,960 | $349.09 | | |
| SCH49MO | SCHOOL DIST #49 EP & O | 0.6376483602 | $555,960 | $555,960 | $354.51 | | |
| CONSERVE | CONSERVATION FUTURES | 0.0275621078 | $555,960 | $555,960 | $15.32 | | |
| EMS1 | FIRE DIST #1 EMS | 0.4679948282 | $555,960 | $555,960 | $260.19 | | |
| FD1 | FIRE DIST #1 GENERAL | 1.2171942929 | $555,960 | $555,960 | $676.71 | | |
| LIB1 | LIBRARY DIST #1 GENERAL | 0.2868827388 | $555,960 | $555,960 | $159.50 | | |
| PORTPT | PORT OF PT GENERAL | 0.1134941229 | $555,960 | $555,960 | $63.10 | | |
| PORTPTIDD | PORT OF PT IDD 2019 | 0.2577346692 | $555,960 | $555,960 | $143.29 | | |
| PUD1 | PUD #1 GENERAL | 0.0597888892 | $555,960 | $555,960 | $33.24 | | |
| STATE | STATE SCHOOL PART 1 | 1.4940692947 | $555,960 | $555,960 | $830.64 | | |
| STATE2 | STATE SCHOOL PART 2 | 0.8050170049 | $555,960 | $555,960 | $447.56 | | |
| | Total Tax Rate: | 7.7095739644 | | | | | |
| | | | | Taxes w/Current Exemptions: | $4,286.22 | | |
| | | | | Taxes w/o Exemptions: | $4,286.22 | | |
Improvement / Building
| Improvement #1: | Residential Bldg | State Code: | 11 | 1491.0 sqft | Value: | $425,060 |
| Bathrooms (#): | 2 (FULL) | Bedrooms (#): | 3 | | Exterior Wall: | SI/ST | Foundation: | CONPR | | Roof Cover: | COMP |   |   |
|
| | Type | Description | Class CD | Sub Class CD | Year Built | Area |
| | MA | Main Area | 4 | 1S | 2021 | 1491.0 |
| | GATT | House Attached Garage | 4 | 1S | 2021 | 484.0 |
| | HWPOR | House Wood Porch | 4 | 1S | 2021 | 200.0 |
| | OTHER | Other | 3 | 1S | 2021 | 0.0 |
| | CONCD | Concrete Drive | 3 | * | 2021 | 440.0 |
Sketch
Property Image
Land
| 1 | 3333-1185L | No View Lots | 0.0000 | 0.00 | 0.00 | 0.00 | 1.00 | $130,900 | $0 |
Roll Value History
| 2026 | N/A | N/A | N/A | N/A | N/A |
| 2025 | $425,060 | $130,900 | $0 | $555,960 | $555,960 |
| 2024 | $425,060 | $130,900 | $0 | $555,960 | $555,960 |
| 2023 | $407,350 | $114,000 | $0 | $521,350 | $521,350 |
| 2022 | $389,639 | $109,000 | $0 | $498,639 | $498,639 |
Deed and Sales History
| 1 | 02/16/2022 | SWD | Statutory Warranty Deed | JOE E & CAROL M SHAW | JENNIFER R HUDSON | | | $500,000.00 | 138598 | |
| 2 | 02/03/2020 | SWD | Statutory Warranty Deed | TERI D WARD | JOE E & CAROL M SHAW | | | $31,900.00 | 133920 | |
| 3 | 12/14/2016 | QCD | Quit Claim Deed | | | | | | 126852 | |
| 4 | 12/14/2016 | SWD | Statutory Warranty Deed | HAROLD MARCUS | TERI D WARD | | | $19,000.00 | 126851 | |
Payout Agreement
| No payout information available.. |