Property
Account |
| Property ID: | 40467 | Abbreviated Legal Description: | PORT LUDLOW NO. 2 AREA 3 LOT 19 |
| Parcel # / Geo ID: | 990600319 | Agent Code: | |
| Type: | Real | | |
| Tax Area: | 0213 - 1-49F1E1H2L1 | Land Use Code | 91 |
| Open Space: | N | DFL | N |
| Historic Property: | N | Remodel Property: | N |
| Multi-Family Redevelopment: | N | | |
| Township: | 28N | Section: | 9 |
| Range: | 1E |
Location |
| Address: | | Mapsco: | 108/019 |
| Neighborhood: | PORT LUDLOW #2 AREA 3 (SEWER AVAILABLE TO ALL LOTS) | Map ID: | |
| Neighborhood CD: | 3334 |
Owner |
| Name: | TODD SEMMES LIVING TRUST | Owner ID: | 113483 |
| Mailing Address: | KATHLEEN SEMMES LIVING TRUST TODD R & KATHLEEN W SEMMES TTEES PO BOX 9 PARKDALE, OR 97041-0009 | % Ownership: | 100.0000000000% |
| | | Exemptions: | |
Pay Tax Due
There is currently No Amount Due on this property.
Taxes and Assessment Details
Property Tax Information as of
03/11/2026
Click on "Statement Details" to expand or collapse a tax statement.
* Please enter a valid date ** Please enter a valid date *
Statement Details |
| 2026 | 29637 | STATE - STATE LEVY (SCHOOL) | $72.43 | $72.42 | $0.00 | $0.00 | $144.85 | $0.00 |
| 2026 | 29637 | COUNTY - COUNTY LEVIES (CE, DD, VET, MH) | $28.97 | $28.94 | $0.00 | $0.00 | $57.91 | $0.00 |
| 2026 | 29637 | CONSERVE - CONSERVATION FUTURES | $0.87 | $0.87 | $0.00 | $0.00 | $1.74 | $0.00 |
| 2026 | 29637 | COROADS - COUNTY ROADS (ROADS, DIV TO CE) | $23.36 | $23.35 | $0.00 | $0.00 | $46.71 | $0.00 |
| 2026 | 29637 | PORTPT - PORT DISTRICT | $11.70 | $11.69 | $0.00 | $0.00 | $23.39 | $0.00 |
| 2026 | 29637 | PUD1 - PUD #1 | $1.89 | $1.88 | $0.00 | $0.00 | $3.77 | $0.00 |
| 2026 | 29637 | LIB1 - LIBRARY DIST #1 | $9.04 | $9.03 | $0.00 | $0.00 | $18.07 | $0.00 |
| 2026 | 29637 | HD2 - HOSP DIST #2 | $1.69 | $1.69 | $0.00 | $0.00 | $3.38 | $0.00 |
| 2026 | 29637 | SD49 - SCHOOL DIST #49 | $39.87 | $39.86 | $0.00 | $0.00 | $79.73 | $0.00 |
| 2026 | 29637 | FD1 - FIRE DISTRICT #1 | $38.34 | $38.34 | $0.00 | $0.00 | $76.68 | $0.00 |
| 2026 | 29637 | EMS1 - FIRE DIST #1 EMS | $14.74 | $14.74 | $0.00 | $0.00 | $29.48 | $0.00 |
| 2026 | 29637 | JCCD - JC Conservation District | $2.53 | $2.53 | $0.00 | $0.00 | $5.06 | $0.00 |
| 2026 | 29637 | LUD - PT Ludlow Drainage District | $11.46 | $11.45 | $0.00 | $0.00 | $22.91 | $0.00 |
| 2026 | 29637 | NWA - Noxious Weed Assessment | $2.98 | $2.97 | $0.00 | $0.00 | $5.95 | $0.00 |
| 2026 | 29637 | WAT - Clean Water District | $13.00 | $13.00 | $0.00 | $0.00 | $26.00 | $0.00 |
| 2026 | 29637 | Drain - DRAINAGE DISTRICT FEE | $0.23 | $0.00 | $0.00 | $0.00 | $0.23 | $0.00 |
| 2026 | 29637 | TOTAL: | $273.10 | $272.76 | $0.00 | $0.00 | $545.86 | $0.00 |
|
| 2026 | 29637 | $273.10 | $272.76 | $0.00 | $0.00 | $545.86 | $0.00 |
Statement Details |
| 2025 | 29709 | STATE - STATE LEVY (SCHOOL) | $75.54 | $75.53 | $0.00 | $0.00 | $151.07 | $0.00 |
| 2025 | 29709 | COUNTY - COUNTY LEVIES (CE, DD, VET, MH) | $29.71 | $29.71 | $0.00 | $0.00 | $59.42 | $0.00 |
| 2025 | 29709 | CONSERVE - CONSERVATION FUTURES | $0.89 | $0.89 | $0.00 | $0.00 | $1.78 | $0.00 |
| 2025 | 29709 | COROADS - COUNTY ROADS (ROADS, DIV TO CE) | $23.80 | $23.80 | $0.00 | $0.00 | $47.60 | $0.00 |
| 2025 | 29709 | PORTPT - PORT DISTRICT | $12.13 | $12.12 | $0.00 | $0.00 | $24.25 | $0.00 |
| 2025 | 29709 | PUD1 - PUD #1 | $1.95 | $1.94 | $0.00 | $0.00 | $3.89 | $0.00 |
| 2025 | 29709 | LIB1 - LIBRARY DIST #1 | $9.21 | $9.20 | $0.00 | $0.00 | $18.41 | $0.00 |
| 2025 | 29709 | HD2 - HOSP DIST #2 | $1.74 | $1.73 | $0.00 | $0.00 | $3.47 | $0.00 |
| 2025 | 29709 | SD49 - SCHOOL DIST #49 | $40.49 | $40.48 | $0.00 | $0.00 | $80.97 | $0.00 |
| 2025 | 29709 | FD1 - FIRE DISTRICT #1 | $39.20 | $39.20 | $0.00 | $0.00 | $78.40 | $0.00 |
| 2025 | 29709 | EMS1 - FIRE DIST #1 EMS | $15.08 | $15.07 | $0.00 | $0.00 | $30.15 | $0.00 |
| 2025 | 29709 | JCCD - JC Conservation District | $2.53 | $2.53 | $0.00 | $0.00 | $5.06 | $0.00 |
| 2025 | 29709 | LUD - PT Ludlow Drainage District | $9.17 | $9.16 | $0.00 | $0.00 | $18.33 | $0.00 |
| 2025 | 29709 | NWA - Noxious Weed Assessment | $2.15 | $2.15 | $0.00 | $0.00 | $4.30 | $0.00 |
| 2025 | 29709 | WAT - Clean Water District | $13.00 | $13.00 | $0.00 | $0.00 | $26.00 | $0.00 |
| 2025 | 29709 | Drain - DRAINAGE DISTRICT FEE | $0.18 | $0.00 | $0.00 | $0.00 | $0.18 | $0.00 |
| 2025 | 29709 | TOTAL: | $276.77 | $276.51 | $0.00 | $0.00 | $553.28 | $0.00 |
|
| 2025 | 29709 | $276.77 | $276.51 | $0.00 | $0.00 | $553.28 | $0.00 |
Statement Details |
| 2024 | 29769 | STATE - STATE LEVY (SCHOOL) | $69.42 | $69.40 | $0.00 | $0.00 | $138.82 | $0.00 |
| 2024 | 29769 | COUNTY - COUNTY LEVIES (CE, DD, VET, MH) | $29.71 | $29.70 | $0.00 | $0.00 | $59.41 | $0.00 |
| 2024 | 29769 | CONSERVE - CONSERVATION FUTURES | $0.89 | $0.89 | $0.00 | $0.00 | $1.78 | $0.00 |
| 2024 | 29769 | COROADS - COUNTY ROADS (ROADS, DIV TO CE) | $23.91 | $23.89 | $0.00 | $0.00 | $47.80 | $0.00 |
| 2024 | 29769 | PORTPT - PORT DISTRICT | $12.27 | $12.26 | $0.00 | $0.00 | $24.53 | $0.00 |
| 2024 | 29769 | PUD1 - PUD #1 | $1.95 | $1.95 | $0.00 | $0.00 | $3.90 | $0.00 |
| 2024 | 29769 | LIB1 - LIBRARY DIST #1 | $9.25 | $9.24 | $0.00 | $0.00 | $18.49 | $0.00 |
| 2024 | 29769 | HD2 - HOSP DIST #2 | $1.74 | $1.73 | $0.00 | $0.00 | $3.47 | $0.00 |
| 2024 | 29769 | SD49 - SCHOOL DIST #49 | $31.00 | $30.99 | $0.00 | $0.00 | $61.99 | $0.00 |
| 2024 | 29769 | FD1 - FIRE DISTRICT #1 | $39.27 | $39.27 | $0.00 | $0.00 | $78.54 | $0.00 |
| 2024 | 29769 | EMS1 - FIRE DIST #1 EMS | $15.00 | $15.00 | $0.00 | $0.00 | $30.00 | $0.00 |
| 2024 | 29769 | JCCD - JC Conservation District | $2.53 | $2.53 | $0.00 | $0.00 | $5.06 | $0.00 |
| 2024 | 29769 | LUD - PT Ludlow Drainage District | $8.02 | $8.02 | $0.00 | $0.00 | $16.04 | $0.00 |
| 2024 | 29769 | NWA - Noxious Weed Assessment | $2.15 | $2.15 | $0.00 | $0.00 | $4.30 | $0.00 |
| 2024 | 29769 | WAT - Clean Water District | $12.50 | $12.50 | $0.00 | $0.00 | $25.00 | $0.00 |
| 2024 | 29769 | Drain - DRAINAGE DISTRICT FEE | $0.16 | $0.00 | $0.00 | $0.00 | $0.16 | $0.00 |
| 2024 | 29769 | TOTAL: | $259.77 | $259.52 | $0.00 | $0.00 | $519.29 | $0.00 |
|
| 2024 | 29769 | $259.77 | $259.52 | $0.00 | $0.00 | $519.29 | $0.00 |
Statement Details |
| 2023 | 29811 | STATE - STATE LEVY (SCHOOL) | $70.63 | $70.62 | $0.00 | $0.00 | $141.25 | $0.00 |
| 2023 | 29811 | COUNTY - COUNTY LEVIES (CE, DD, VET, MH) | $30.83 | $30.80 | $0.00 | $0.00 | $61.63 | $0.00 |
| 2023 | 29811 | CONSERVE - CONSERVATION FUTURES | $0.93 | $0.92 | $0.00 | $0.00 | $1.85 | $0.00 |
| 2023 | 29811 | COROADS - COUNTY ROADS (ROADS, DIV TO CE) | $24.94 | $24.93 | $0.00 | $0.00 | $49.87 | $0.00 |
| 2023 | 29811 | PORTPT - PORT DISTRICT | $12.99 | $12.97 | $0.00 | $0.00 | $25.96 | $0.00 |
| 2023 | 29811 | PUD1 - PUD #1 | $2.05 | $2.04 | $0.00 | $0.00 | $4.09 | $0.00 |
| 2023 | 29811 | LIB1 - LIBRARY DIST #1 | $9.65 | $9.64 | $0.00 | $0.00 | $19.29 | $0.00 |
| 2023 | 29811 | HD2 - HOSP DIST #2 | $1.80 | $1.79 | $0.00 | $0.00 | $3.59 | $0.00 |
| 2023 | 29811 | SD49 - SCHOOL DIST #49 | $33.02 | $33.01 | $0.00 | $0.00 | $66.03 | $0.00 |
| 2023 | 29811 | FD3 - FIRE DISTRICT #3 | $30.66 | $30.66 | $0.00 | $0.00 | $61.32 | $0.00 |
| 2023 | 29811 | EMS3 - FIRE DIST #3 EMS | $10.96 | $10.96 | $0.00 | $0.00 | $21.92 | $0.00 |
| 2023 | 29811 | JCCD - JC Conservation District | $2.53 | $2.53 | $0.00 | $0.00 | $5.06 | $0.00 |
| 2023 | 29811 | LUD - PT Ludlow Drainage District | $8.02 | $8.02 | $0.00 | $0.00 | $16.04 | $0.00 |
| 2023 | 29811 | NWA - Noxious Weed Assessment | $2.15 | $2.15 | $0.00 | $0.00 | $4.30 | $0.00 |
| 2023 | 29811 | WAT - Clean Water District | $12.00 | $12.00 | $0.00 | $0.00 | $24.00 | $0.00 |
| 2023 | 29811 | Drain - DRAINAGE DISTRICT FEE | $0.16 | $0.00 | $0.00 | $0.00 | $0.16 | $0.00 |
| 2023 | 29811 | TOTAL: | $253.32 | $253.04 | $0.00 | $0.00 | $506.36 | $0.00 |
|
| 2023 | 29811 | $253.32 | $253.04 | $0.00 | $0.00 | $506.36 | $0.00 |
Values
| (+) Improvement Homesite Value: | + | $0 | |
| (+) Improvement Non-Homesite Value: | + | $0 | |
| (+) Land Homesite Value: | + | $0 | |
| (+) Land Non-Homesite Value: | + | $63,000 | |
| (+) Curr Use (HS): | + | $0 | $0 |
| (+) Curr Use (NHS): | + | $0 | $0 |
| | | -------------------------- | |
| (=) Market Value: | = | $63,000 | |
| (–) Productivity Loss: | – | $0 | |
| | | -------------------------- | |
| (=) Subtotal: | = | $63,000 | |
| (+) Senior Appraised Value: | + | $0 | |
| (+) Non-Senior Appraised Value: | + | $63,000 | |
| | | -------------------------- | |
| (=) Total Appraised Value: | = | $63,000 | |
| (–) Senior Exemption Loss: | – | $0 | |
| (–) Exemption Loss: | – | $0 | |
| | | -------------------------- | |
| (=) Taxable Value: | = | $63,000 | |
Taxing Jurisdiction
| Owner: | TODD SEMMES LIVING TRUST | | |
| % Ownership: | 100.0000000000% | | |
| Total Value: | $63,000 | | |
| Tax Area: | 0213 - 1-49F1E1H2L1 |
| CE | COUNTY CURRENT EXPENSE | 0.9034619479 | $63,000 | $63,000 | $56.92 | | |
| CNTYDD | DEVELOPMENTAL DISABILITIES | 0.0052121823 | $63,000 | $63,000 | $0.33 | | |
| CNTYVET | VETERANS RELIEF | 0.0052777810 | $63,000 | $63,000 | $0.33 | | |
| MENTAL | MENTAL HEALTH | 0.0052121823 | $63,000 | $63,000 | $0.33 | | |
| ROADS | COUNTY ROADS | 0.7415066410 | $63,000 | $63,000 | $46.71 | | |
| ROADSCU | COUNTY ROADS TO CUR EXP | 0.0000000000 | $63,000 | $63,000 | $0.00 | | |
| HOSP2CASH | HOSP DIST #2 GENERAL | 0.0536075306 | $63,000 | $63,000 | $3.38 | | |
| SCH49CP | SCHOOL DIST #49 CAP PROJ | 0.6279093905 | $63,000 | $63,000 | $39.56 | | |
| SCH49MO | SCHOOL DIST #49 EP & O | 0.6376483602 | $63,000 | $63,000 | $40.17 | | |
| CONSERVE | CONSERVATION FUTURES | 0.0275621078 | $63,000 | $63,000 | $1.74 | | |
| EMS1 | FIRE DIST #1 EMS | 0.4679948282 | $63,000 | $63,000 | $29.48 | | |
| FD1 | FIRE DIST #1 GENERAL | 1.2171942929 | $63,000 | $63,000 | $76.68 | | |
| LIB1 | LIBRARY DIST #1 GENERAL | 0.2868827388 | $63,000 | $63,000 | $18.07 | | |
| PORTPT | PORT OF PT GENERAL | 0.1134941229 | $63,000 | $63,000 | $7.15 | | |
| PORTPTIDD | PORT OF PT IDD 2019 | 0.2577346692 | $63,000 | $63,000 | $16.24 | | |
| PUD1 | PUD #1 GENERAL | 0.0597888892 | $63,000 | $63,000 | $3.77 | | |
| STATE | STATE SCHOOL PART 1 | 1.4940692947 | $63,000 | $63,000 | $94.13 | | |
| STATE2 | STATE SCHOOL PART 2 | 0.8050170049 | $63,000 | $63,000 | $50.72 | | |
| | Total Tax Rate: | 7.7095739644 | | | | | |
| | | | | Taxes w/Current Exemptions: | $485.71 | | |
| | | | | Taxes w/o Exemptions: | $485.71 | | |
Improvement / Building
Sketch
| No sketches available for this property. |
Property Image
Land
| 1 | 3334-1185L | | 0.0000 | 0.00 | 0.00 | 0.00 | 1.00 | $63,000 | $0 |
Roll Value History
| 2026 | N/A | N/A | N/A | N/A | N/A |
| 2025 | $0 | $63,000 | $0 | $63,000 | $63,000 |
| 2024 | $0 | $63,000 | $0 | $63,000 | $63,000 |
| 2023 | $0 | $60,000 | $0 | $60,000 | $60,000 |
| 2022 | $0 | $60,000 | $0 | $60,000 | $60,000 |
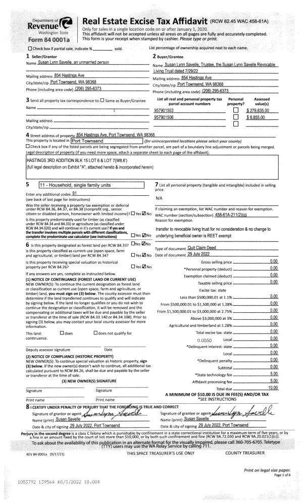
Deed and Sales History
| 1 | 10/10/2025 | WD | Warranty Deed | TODD R & KATHLEEN W SEMMES | TODD SEMMES LIVING TRUST | | | | 145071 | |
| 2 | 08/09/2022 | SWD | Statutory Warranty Deed | JANET E KNUDSEN | TODD R & KATHLEEN W SEMMES | | | $55,500.00 | 139630 | |
| 3 | 08/03/2022 | QCD | Quit Claim Deed | CURTIS HUMPHREY | JANET E KNUDSEN | | | | 139589 | |
| 4 | 12/02/2008 | QCD | Quit Claim Deed | HUMPHREY, CURT | KNUDSEN, JANET | 0 | 0 | $17,500.00 | 112386 | 0 |
| 5 | 12/02/2004 | QCD | Quit Claim Deed | HUMPHREY, ROBERT/ELSIE | KNUDSEN, JANEL/HUMPHREY, CURT | 0 | 0 | $0.00 | 102341 | 0 |
| 6 | 05/20/1994 | WD | Warranty Deed | HUMPHREY, ROBERT C & ELSI | HUMPHREY, ELSIE A/TRUST | 0 | 0 | $0.00 | 74218 | 0 |
Payout Agreement
| No payout information available.. |