Property
Account |
| Property ID: | 40497 | Abbreviated Legal Description: | PORT LUDLOW NO. 2 AREA 3, LOT 49 |
| Parcel # / Geo ID: | 990600349 | Agent Code: | |
| Type: | Real | | |
| Tax Area: | 0213 - 1-49F1E1H2L1 | Land Use Code | 11 |
| Open Space: | N | DFL | N |
| Historic Property: | N | Remodel Property: | N |
| Multi-Family Redevelopment: | N | | |
| Township: | 28N | Section: | 9 |
| Range: | 1E |
Location |
| Address: | 71 JACKSON LN PORT LUDLOW, WA 98365 | Mapsco: | 109/005 |
| Neighborhood: | PORT LUDLOW #2 AREA 3 (SEWER AVAILABLE TO ALL LOTS) | Map ID: | |
| Neighborhood CD: | 3334 |
Owner |
| Name: | JOHN & DENISE SAMPLE | Owner ID: | 99045 |
| Mailing Address: | 71 JACKSON LN PORT LUDLOW, WA 98365-9668 | % Ownership: | 100.0000000000% |
| | | Exemptions: | |
Pay Tax Due
Select the appropriate checkbox next to the year to be paid. Multiple years may be selected.
*Convenience Fee not included
Taxes and Assessment Details
Property Tax Information as of
03/13/2026
Click on "Statement Details" to expand or collapse a tax statement.
* Please enter a valid date ** Please enter a valid date *
Statement Details |
| 2026 | 29667 | STATE - STATE LEVY (SCHOOL) | $786.95 | $786.93 | $0.00 | $0.00 | $0.00 | $1573.88 |
| 2026 | 29667 | COUNTY - COUNTY LEVIES (CE, DD, VET, MH) | $314.63 | $314.60 | $0.00 | $0.00 | $0.00 | $629.23 |
| 2026 | 29667 | CONSERVE - CONSERVATION FUTURES | $9.44 | $9.43 | $0.00 | $0.00 | $0.00 | $18.87 |
| 2026 | 29667 | COROADS - COUNTY ROADS (ROADS, DIV TO CE) | $253.81 | $253.80 | $0.00 | $0.00 | $0.00 | $507.61 |
| 2026 | 29667 | PORTPT - PORT DISTRICT | $127.07 | $127.06 | $0.00 | $0.00 | $0.00 | $254.13 |
| 2026 | 29667 | PUD1 - PUD #1 | $20.47 | $20.46 | $0.00 | $0.00 | $0.00 | $40.93 |
| 2026 | 29667 | LIB1 - LIBRARY DIST #1 | $98.20 | $98.19 | $0.00 | $0.00 | $0.00 | $196.39 |
| 2026 | 29667 | HD2 - HOSP DIST #2 | $18.35 | $18.35 | $0.00 | $0.00 | $0.00 | $36.70 |
| 2026 | 29667 | SD49 - SCHOOL DIST #49 | $433.18 | $433.17 | $0.00 | $0.00 | $0.00 | $866.35 |
| 2026 | 29667 | FD1 - FIRE DISTRICT #1 | $416.63 | $416.62 | $0.00 | $0.00 | $0.00 | $833.25 |
| 2026 | 29667 | EMS1 - FIRE DIST #1 EMS | $160.19 | $160.18 | $0.00 | $0.00 | $0.00 | $320.37 |
| 2026 | 29667 | JCCD - JC Conservation District | $2.55 | $2.55 | $0.00 | $0.00 | $0.00 | $5.10 |
| 2026 | 29667 | LUD - PT Ludlow Drainage District | $38.40 | $38.39 | $0.00 | $0.00 | $0.00 | $76.79 |
| 2026 | 29667 | NWA - Noxious Weed Assessment | $2.98 | $2.97 | $0.00 | $0.00 | $0.00 | $5.95 |
| 2026 | 29667 | Drain - DRAINAGE DISTRICT FEE | $0.77 | $0.00 | $0.00 | $0.00 | $0.00 | $0.77 |
| 2026 | 29667 | TOTAL: | $2683.62 | $2682.70 | $0.00 | $0.00 | $0.00 | $5366.32 |
|
| 2026 | 29667 | $2683.62 | $2682.70 | $0.00 | $0.00 | $0.00 | $5366.32 |
Statement Details |
| 2025 | 29739 | STATE - STATE LEVY (SCHOOL) | $820.81 | $820.79 | $0.00 | $0.00 | $1641.60 | $0.00 |
| 2025 | 29739 | COUNTY - COUNTY LEVIES (CE, DD, VET, MH) | $322.79 | $322.76 | $0.00 | $0.00 | $645.55 | $0.00 |
| 2025 | 29739 | CONSERVE - CONSERVATION FUTURES | $9.68 | $9.68 | $0.00 | $0.00 | $19.36 | $0.00 |
| 2025 | 29739 | COROADS - COUNTY ROADS (ROADS, DIV TO CE) | $258.60 | $258.58 | $0.00 | $0.00 | $517.18 | $0.00 |
| 2025 | 29739 | PORTPT - PORT DISTRICT | $131.72 | $131.70 | $0.00 | $0.00 | $263.42 | $0.00 |
| 2025 | 29739 | PUD1 - PUD #1 | $21.12 | $21.12 | $0.00 | $0.00 | $42.24 | $0.00 |
| 2025 | 29739 | LIB1 - LIBRARY DIST #1 | $100.05 | $100.05 | $0.00 | $0.00 | $200.10 | $0.00 |
| 2025 | 29739 | HD2 - HOSP DIST #2 | $18.83 | $18.83 | $0.00 | $0.00 | $37.66 | $0.00 |
| 2025 | 29739 | SD49 - SCHOOL DIST #49 | $439.90 | $439.90 | $0.00 | $0.00 | $879.80 | $0.00 |
| 2025 | 29739 | FD1 - FIRE DISTRICT #1 | $425.94 | $425.93 | $0.00 | $0.00 | $851.87 | $0.00 |
| 2025 | 29739 | EMS1 - FIRE DIST #1 EMS | $163.83 | $163.82 | $0.00 | $0.00 | $327.65 | $0.00 |
| 2025 | 29739 | JCCD - JC Conservation District | $2.55 | $2.55 | $0.00 | $0.00 | $5.10 | $0.00 |
| 2025 | 29739 | LUD - PT Ludlow Drainage District | $30.79 | $30.78 | $0.00 | $0.00 | $61.57 | $0.00 |
| 2025 | 29739 | NWA - Noxious Weed Assessment | $2.15 | $2.15 | $0.00 | $0.00 | $4.30 | $0.00 |
| 2025 | 29739 | Drain - DRAINAGE DISTRICT FEE | $0.62 | $0.00 | $0.00 | $0.00 | $0.62 | $0.00 |
| 2025 | 29739 | TOTAL: | $2749.38 | $2748.64 | $0.00 | $0.00 | $5498.02 | $0.00 |
|
| 2025 | 29739 | $2749.38 | $2748.64 | $0.00 | $0.00 | $5498.02 | $0.00 |
Statement Details |
| 2024 | 29799 | STATE - STATE LEVY (SCHOOL) | $751.87 | $751.85 | $0.00 | $0.00 | $1503.72 | $0.00 |
| 2024 | 29799 | COUNTY - COUNTY LEVIES (CE, DD, VET, MH) | $321.74 | $321.71 | $0.00 | $0.00 | $643.45 | $0.00 |
| 2024 | 29799 | CONSERVE - CONSERVATION FUTURES | $9.65 | $9.64 | $0.00 | $0.00 | $19.29 | $0.00 |
| 2024 | 29799 | COROADS - COUNTY ROADS (ROADS, DIV TO CE) | $258.89 | $258.88 | $0.00 | $0.00 | $517.77 | $0.00 |
| 2024 | 29799 | PORTPT - PORT DISTRICT | $132.89 | $132.88 | $0.00 | $0.00 | $265.77 | $0.00 |
| 2024 | 29799 | PUD1 - PUD #1 | $21.13 | $21.13 | $0.00 | $0.00 | $42.26 | $0.00 |
| 2024 | 29799 | LIB1 - LIBRARY DIST #1 | $100.16 | $100.16 | $0.00 | $0.00 | $200.32 | $0.00 |
| 2024 | 29799 | HD2 - HOSP DIST #2 | $18.77 | $18.77 | $0.00 | $0.00 | $37.54 | $0.00 |
| 2024 | 29799 | SD49 - SCHOOL DIST #49 | $335.74 | $335.74 | $0.00 | $0.00 | $671.48 | $0.00 |
| 2024 | 29799 | FD1 - FIRE DISTRICT #1 | $425.40 | $425.40 | $0.00 | $0.00 | $850.80 | $0.00 |
| 2024 | 29799 | EMS1 - FIRE DIST #1 EMS | $162.49 | $162.48 | $0.00 | $0.00 | $324.97 | $0.00 |
| 2024 | 29799 | JCCD - JC Conservation District | $2.55 | $2.55 | $0.00 | $0.00 | $5.10 | $0.00 |
| 2024 | 29799 | LUD - PT Ludlow Drainage District | $27.03 | $27.03 | $0.00 | $0.00 | $54.06 | $0.00 |
| 2024 | 29799 | NWA - Noxious Weed Assessment | $2.15 | $2.15 | $0.00 | $0.00 | $4.30 | $0.00 |
| 2024 | 29799 | Drain - DRAINAGE DISTRICT FEE | $0.54 | $0.00 | $0.00 | $0.00 | $0.54 | $0.00 |
| 2024 | 29799 | TOTAL: | $2571.00 | $2570.37 | $0.00 | $0.00 | $5141.37 | $0.00 |
|
| 2024 | 29799 | $2571.00 | $2570.37 | $0.00 | $0.00 | $5141.37 | $0.00 |
Statement Details |
| 2023 | 29841 | STATE - STATE LEVY (SCHOOL) | $734.60 | $734.59 | $0.00 | $0.00 | $1469.19 | $0.00 |
| 2023 | 29841 | COUNTY - COUNTY LEVIES (CE, DD, VET, MH) | $320.56 | $320.55 | $0.00 | $0.00 | $641.11 | $0.00 |
| 2023 | 29841 | CONSERVE - CONSERVATION FUTURES | $9.61 | $9.61 | $0.00 | $0.00 | $19.22 | $0.00 |
| 2023 | 29841 | COROADS - COUNTY ROADS (ROADS, DIV TO CE) | $259.36 | $259.34 | $0.00 | $0.00 | $518.70 | $0.00 |
| 2023 | 29841 | PORTPT - PORT DISTRICT | $135.04 | $135.03 | $0.00 | $0.00 | $270.07 | $0.00 |
| 2023 | 29841 | PUD1 - PUD #1 | $21.25 | $21.25 | $0.00 | $0.00 | $42.50 | $0.00 |
| 2023 | 29841 | LIB1 - LIBRARY DIST #1 | $100.34 | $100.34 | $0.00 | $0.00 | $200.68 | $0.00 |
| 2023 | 29841 | HD2 - HOSP DIST #2 | $18.71 | $18.70 | $0.00 | $0.00 | $37.41 | $0.00 |
| 2023 | 29841 | SD49 - SCHOOL DIST #49 | $343.39 | $343.37 | $0.00 | $0.00 | $686.76 | $0.00 |
| 2023 | 29841 | FD3 - FIRE DISTRICT #3 | $318.91 | $318.90 | $0.00 | $0.00 | $637.81 | $0.00 |
| 2023 | 29841 | EMS3 - FIRE DIST #3 EMS | $114.01 | $114.01 | $0.00 | $0.00 | $228.02 | $0.00 |
| 2023 | 29841 | JCCD - JC Conservation District | $2.55 | $2.55 | $0.00 | $0.00 | $5.10 | $0.00 |
| 2023 | 29841 | LUD - PT Ludlow Drainage District | $27.21 | $27.20 | $0.00 | $0.00 | $54.41 | $0.00 |
| 2023 | 29841 | NWA - Noxious Weed Assessment | $2.15 | $2.15 | $0.00 | $0.00 | $4.30 | $0.00 |
| 2023 | 29841 | Drain - DRAINAGE DISTRICT FEE | $0.54 | $0.00 | $0.00 | $0.00 | $0.54 | $0.00 |
| 2023 | 29841 | TOTAL: | $2408.23 | $2407.59 | $0.00 | $0.00 | $4815.82 | $0.00 |
|
| 2023 | 29841 | $2408.23 | $2407.59 | $0.00 | $0.00 | $4815.82 | $0.00 |
Values
| (+) Improvement Homesite Value: | + | $0 | |
| (+) Improvement Non-Homesite Value: | + | $500,814 | |
| (+) Land Homesite Value: | + | $0 | |
| (+) Land Non-Homesite Value: | + | $183,750 | |
| (+) Curr Use (HS): | + | $0 | $0 |
| (+) Curr Use (NHS): | + | $0 | $0 |
| | | -------------------------- | |
| (=) Market Value: | = | $684,564 | |
| (–) Productivity Loss: | – | $0 | |
| | | -------------------------- | |
| (=) Subtotal: | = | $684,564 | |
| (+) Senior Appraised Value: | + | $0 | |
| (+) Non-Senior Appraised Value: | + | $684,564 | |
| | | -------------------------- | |
| (=) Total Appraised Value: | = | $684,564 | |
| (–) Senior Exemption Loss: | – | $0 | |
| (–) Exemption Loss: | – | $0 | |
| | | -------------------------- | |
| (=) Taxable Value: | = | $684,564 | |
Taxing Jurisdiction
| Owner: | JOHN & DENISE SAMPLE | | |
| % Ownership: | 100.0000000000% | | |
| Total Value: | $684,564 | | |
| Tax Area: | 0213 - 1-49F1E1H2L1 |
| CE | COUNTY CURRENT EXPENSE | 0.9034619479 | $684,564 | $684,564 | $618.48 | | |
| CNTYDD | DEVELOPMENTAL DISABILITIES | 0.0052121823 | $684,564 | $684,564 | $3.57 | | |
| CNTYVET | VETERANS RELIEF | 0.0052777810 | $684,564 | $684,564 | $3.61 | | |
| MENTAL | MENTAL HEALTH | 0.0052121823 | $684,564 | $684,564 | $3.57 | | |
| ROADS | COUNTY ROADS | 0.7415066410 | $684,564 | $684,564 | $507.61 | | |
| ROADSCU | COUNTY ROADS TO CUR EXP | 0.0000000000 | $684,564 | $684,564 | $0.00 | | |
| HOSP2CASH | HOSP DIST #2 GENERAL | 0.0536075306 | $684,564 | $684,564 | $36.70 | | |
| SCH49CP | SCHOOL DIST #49 CAP PROJ | 0.6279093905 | $684,564 | $684,564 | $429.84 | | |
| SCH49MO | SCHOOL DIST #49 EP & O | 0.6376483602 | $684,564 | $684,564 | $436.51 | | |
| CONSERVE | CONSERVATION FUTURES | 0.0275621078 | $684,564 | $684,564 | $18.87 | | |
| EMS1 | FIRE DIST #1 EMS | 0.4679948282 | $684,564 | $684,564 | $320.37 | | |
| FD1 | FIRE DIST #1 GENERAL | 1.2171942929 | $684,564 | $684,564 | $833.25 | | |
| LIB1 | LIBRARY DIST #1 GENERAL | 0.2868827388 | $684,564 | $684,564 | $196.39 | | |
| PORTPT | PORT OF PT GENERAL | 0.1134941229 | $684,564 | $684,564 | $77.69 | | |
| PORTPTIDD | PORT OF PT IDD 2019 | 0.2577346692 | $684,564 | $684,564 | $176.44 | | |
| PUD1 | PUD #1 GENERAL | 0.0597888892 | $684,564 | $684,564 | $40.93 | | |
| STATE | STATE SCHOOL PART 1 | 1.4940692947 | $684,564 | $684,564 | $1,022.79 | | |
| STATE2 | STATE SCHOOL PART 2 | 0.8050170049 | $684,564 | $684,564 | $551.09 | | |
| | Total Tax Rate: | 7.7095739644 | | | | | |
| | | | | Taxes w/Current Exemptions: | $5,277.71 | | |
| | | | | Taxes w/o Exemptions: | $5,277.71 | | |
Improvement / Building
| Improvement #1: | Residential Bldg | State Code: | 11 | 1392.0 sqft | Value: | $500,814 |
| Bathrooms (#): | 2 (FULL) | Bathrooms (#): | 1 (HALF) | | Bedrooms (#): | 2 | Exterior Wall: | PL/T1 | | Fireplace: | SIN 1-AVG | Fireplace: | WD ST-AVG | | Floor Construction: | FRAME | Foundation: | CONPR | | Heating/Cooling: | HPUMP | Inside Verify: | YES-FIX | | Roof Cover: | COMP |   |   |
|
| | Type | Description | Class CD | Sub Class CD | Year Built | Area |
| | MA | Main Area | 4+ | 1S | 1986 | 1392.0 |
| | HWPOR | House Wood Porch | 4 | * | 1986 | 270.0 |
| | HDECK | House Deck | 4 | * | 1986 | 208.0 |
| | GATT | House Attached Garage | 4 | 1S | 1986 | 700.0 |
| | CARPTF | Carport W/Floor | 4 | * | 1986 | 468.0 |
| | BSMTF | House basement finished | 4 | * | 1986 | 724.0 |
Sketch
Property Image
Land
| 1 | 3334-1145L | | 0.0000 | 0.00 | 0.00 | 0.00 | 1.00 | $183,750 | $0 |
Roll Value History
| 2026 | N/A | N/A | N/A | N/A | N/A |
| 2025 | $500,814 | $183,750 | $0 | $684,564 | $684,564 |
| 2024 | $500,814 | $183,750 | $0 | $684,564 | $684,564 |
| 2023 | $479,947 | $170,000 | $0 | $649,947 | $649,947 |
| 2022 | $459,079 | $165,000 | $0 | $624,079 | $624,079 |
Deed and Sales History
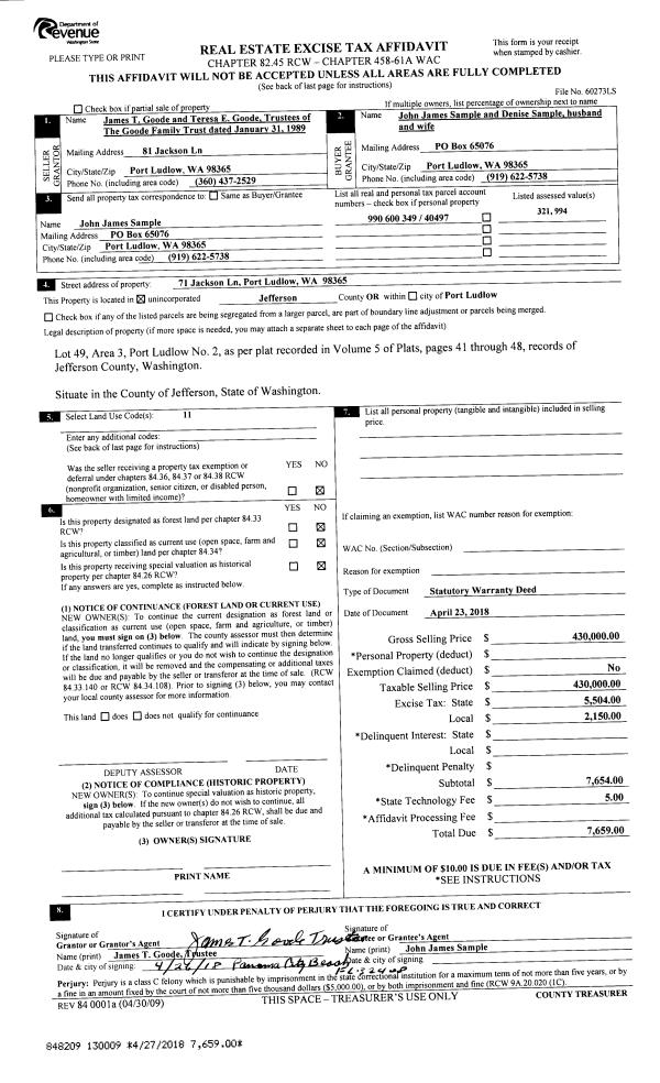
| 1 | 04/23/2018 | SWD | Statutory Warranty Deed | GOODE FAMILY TRUST | JOHN & DENISE SAMPLE | | | $430,000.00 | 130009 | |
| 2 | 02/13/2017 | QCD | Quit Claim Deed | GOODE FAMILY TRUST | GOODE FAMILY TRUST | | | | 127159 | |
| 3 | 07/19/2013 | SPWD | Special Warranty Deed | FEDERAL NATIONAL MORTGAGE ASSOC | GOODE FAMILY TRUST | | | $235,000.00 | 119668 | |
| 4 | 06/03/2013 | SWD | Statutory Warranty Deed | WILLIAM E SINGER | FEDERAL NATIONAL MORTGAGE ASSOC | | | | 119369 | |
Payout Agreement
| No payout information available.. |