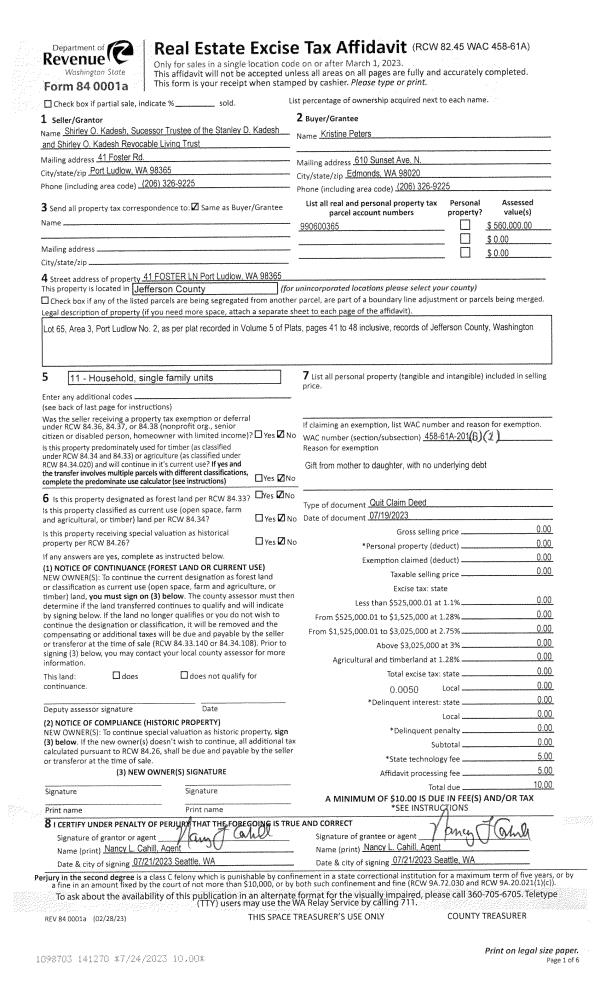
Property
Account |
| Property ID: | 40512 | Abbreviated Legal Description: | PORT LUDLOW NO. 2 AREA 3, LOT 65 |
| Parcel # / Geo ID: | 990600365 | Agent Code: | |
| Type: | Real | | |
| Tax Area: | 0213 - 1-49F1E1H2L1 | Land Use Code | 11 |
| Open Space: | N | DFL | N |
| Historic Property: | N | Remodel Property: | N |
| Multi-Family Redevelopment: | N | | |
| Township: | 28N | Section: | 9 |
| Range: | 1E |
Location |
| Address: | 41 FOSTER LN PORT LUDLOW, WA 98365 | Mapsco: | 109/020 |
| Neighborhood: | PORT LUDLOW #2 AREA 3 (SEWER AVAILABLE TO ALL LOTS) | Map ID: | |
| Neighborhood CD: | 3334 |
Owner |
| Name: | KRISTINE PETERS | Owner ID: | 109348 |
| Mailing Address: | 612 SUNSET AVE N EDMONDS, WA 98020-3144 | % Ownership: | 100.0000000000% |
| | | Exemptions: | |
Pay Tax Due
Select the appropriate checkbox next to the year to be paid. Multiple years may be selected.
*Convenience Fee not included
Taxes and Assessment Details
Property Tax Information as of
03/12/2026
Click on "Statement Details" to expand or collapse a tax statement.
* Please enter a valid date ** Please enter a valid date *
Statement Details |
| 2026 | 29682 | STATE - STATE LEVY (SCHOOL) | $533.97 | $533.96 | $0.00 | $0.00 | $0.00 | $1067.93 |
| 2026 | 29682 | COUNTY - COUNTY LEVIES (CE, DD, VET, MH) | $213.48 | $213.47 | $0.00 | $0.00 | $0.00 | $426.95 |
| 2026 | 29682 | CONSERVE - CONSERVATION FUTURES | $6.40 | $6.40 | $0.00 | $0.00 | $0.00 | $12.80 |
| 2026 | 29682 | COROADS - COUNTY ROADS (ROADS, DIV TO CE) | $172.22 | $172.21 | $0.00 | $0.00 | $0.00 | $344.43 |
| 2026 | 29682 | PORTPT - PORT DISTRICT | $86.22 | $86.22 | $0.00 | $0.00 | $0.00 | $172.44 |
| 2026 | 29682 | PUD1 - PUD #1 | $13.89 | $13.88 | $0.00 | $0.00 | $0.00 | $27.77 |
| 2026 | 29682 | LIB1 - LIBRARY DIST #1 | $66.63 | $66.63 | $0.00 | $0.00 | $0.00 | $133.26 |
| 2026 | 29682 | HD2 - HOSP DIST #2 | $12.45 | $12.45 | $0.00 | $0.00 | $0.00 | $24.90 |
| 2026 | 29682 | SD49 - SCHOOL DIST #49 | $293.94 | $293.92 | $0.00 | $0.00 | $0.00 | $587.86 |
| 2026 | 29682 | FD1 - FIRE DISTRICT #1 | $282.70 | $282.69 | $0.00 | $0.00 | $0.00 | $565.39 |
| 2026 | 29682 | EMS1 - FIRE DIST #1 EMS | $108.69 | $108.69 | $0.00 | $0.00 | $0.00 | $217.38 |
| 2026 | 29682 | JCCD - JC Conservation District | $2.55 | $2.55 | $0.00 | $0.00 | $0.00 | $5.10 |
| 2026 | 29682 | LUD - PT Ludlow Drainage District | $39.19 | $39.18 | $0.00 | $0.00 | $0.00 | $78.37 |
| 2026 | 29682 | NWA - Noxious Weed Assessment | $2.98 | $2.97 | $0.00 | $0.00 | $0.00 | $5.95 |
| 2026 | 29682 | Drain - DRAINAGE DISTRICT FEE | $0.78 | $0.00 | $0.00 | $0.00 | $0.00 | $0.78 |
| 2026 | 29682 | TOTAL: | $1836.09 | $1835.22 | $0.00 | $0.00 | $0.00 | $3671.31 |
|
| 2026 | 29682 | $1836.09 | $1835.22 | $0.00 | $0.00 | $0.00 | $3671.31 |
Statement Details |
| 2025 | 29754 | STATE - STATE LEVY (SCHOOL) | $556.95 | $556.94 | $0.00 | $0.00 | $1113.89 | $0.00 |
| 2025 | 29754 | COUNTY - COUNTY LEVIES (CE, DD, VET, MH) | $219.02 | $219.01 | $0.00 | $0.00 | $438.03 | $0.00 |
| 2025 | 29754 | CONSERVE - CONSERVATION FUTURES | $6.57 | $6.56 | $0.00 | $0.00 | $13.13 | $0.00 |
| 2025 | 29754 | COROADS - COUNTY ROADS (ROADS, DIV TO CE) | $175.47 | $175.46 | $0.00 | $0.00 | $350.93 | $0.00 |
| 2025 | 29754 | PORTPT - PORT DISTRICT | $89.38 | $89.37 | $0.00 | $0.00 | $178.75 | $0.00 |
| 2025 | 29754 | PUD1 - PUD #1 | $14.33 | $14.33 | $0.00 | $0.00 | $28.66 | $0.00 |
| 2025 | 29754 | LIB1 - LIBRARY DIST #1 | $67.89 | $67.88 | $0.00 | $0.00 | $135.77 | $0.00 |
| 2025 | 29754 | HD2 - HOSP DIST #2 | $12.78 | $12.78 | $0.00 | $0.00 | $25.56 | $0.00 |
| 2025 | 29754 | SD49 - SCHOOL DIST #49 | $298.49 | $298.48 | $0.00 | $0.00 | $596.97 | $0.00 |
| 2025 | 29754 | FD1 - FIRE DISTRICT #1 | $289.02 | $289.01 | $0.00 | $0.00 | $578.03 | $0.00 |
| 2025 | 29754 | EMS1 - FIRE DIST #1 EMS | $111.17 | $111.16 | $0.00 | $0.00 | $222.33 | $0.00 |
| 2025 | 29754 | JCCD - JC Conservation District | $2.55 | $2.55 | $0.00 | $0.00 | $5.10 | $0.00 |
| 2025 | 29754 | LUD - PT Ludlow Drainage District | $31.42 | $31.42 | $0.00 | $0.00 | $62.84 | $0.00 |
| 2025 | 29754 | NWA - Noxious Weed Assessment | $2.15 | $2.15 | $0.00 | $0.00 | $4.30 | $0.00 |
| 2025 | 29754 | Drain - DRAINAGE DISTRICT FEE | $0.63 | $0.00 | $0.00 | $0.00 | $0.63 | $0.00 |
| 2025 | 29754 | TOTAL: | $1877.82 | $1877.10 | $0.00 | $0.00 | $3754.92 | $0.00 |
|
| 2025 | 29754 | $1877.82 | $1877.10 | $0.00 | $0.00 | $3754.92 | $0.00 |
Statement Details |
| 2024 | 29814 | STATE - STATE LEVY (SCHOOL) | $508.45 | $508.44 | $0.00 | $0.00 | $1016.89 | $0.00 |
| 2024 | 29814 | COUNTY - COUNTY LEVIES (CE, DD, VET, MH) | $217.58 | $217.57 | $0.00 | $0.00 | $435.15 | $0.00 |
| 2024 | 29814 | CONSERVE - CONSERVATION FUTURES | $6.53 | $6.52 | $0.00 | $0.00 | $13.05 | $0.00 |
| 2024 | 29814 | COROADS - COUNTY ROADS (ROADS, DIV TO CE) | $175.08 | $175.07 | $0.00 | $0.00 | $350.15 | $0.00 |
| 2024 | 29814 | PORTPT - PORT DISTRICT | $89.87 | $89.86 | $0.00 | $0.00 | $179.73 | $0.00 |
| 2024 | 29814 | PUD1 - PUD #1 | $14.29 | $14.29 | $0.00 | $0.00 | $28.58 | $0.00 |
| 2024 | 29814 | LIB1 - LIBRARY DIST #1 | $67.74 | $67.73 | $0.00 | $0.00 | $135.47 | $0.00 |
| 2024 | 29814 | HD2 - HOSP DIST #2 | $12.70 | $12.69 | $0.00 | $0.00 | $25.39 | $0.00 |
| 2024 | 29814 | SD49 - SCHOOL DIST #49 | $227.05 | $227.05 | $0.00 | $0.00 | $454.10 | $0.00 |
| 2024 | 29814 | FD1 - FIRE DISTRICT #1 | $287.68 | $287.68 | $0.00 | $0.00 | $575.36 | $0.00 |
| 2024 | 29814 | EMS1 - FIRE DIST #1 EMS | $109.88 | $109.88 | $0.00 | $0.00 | $219.76 | $0.00 |
| 2024 | 29814 | JCCD - JC Conservation District | $2.55 | $2.55 | $0.00 | $0.00 | $5.10 | $0.00 |
| 2024 | 29814 | LUD - PT Ludlow Drainage District | $27.59 | $27.58 | $0.00 | $0.00 | $55.17 | $0.00 |
| 2024 | 29814 | NWA - Noxious Weed Assessment | $2.15 | $2.15 | $0.00 | $0.00 | $4.30 | $0.00 |
| 2024 | 29814 | Drain - DRAINAGE DISTRICT FEE | $0.55 | $0.00 | $0.00 | $0.00 | $0.55 | $0.00 |
| 2024 | 29814 | TOTAL: | $1749.69 | $1749.06 | $0.00 | $0.00 | $3498.75 | $0.00 |
|
| 2024 | 29814 | $1749.69 | $1749.06 | $0.00 | $0.00 | $3498.75 | $0.00 |
Statement Details |
| 2023 | 29856 | STATE - STATE LEVY (SCHOOL) | $493.80 | $493.79 | $0.00 | $0.00 | $987.59 | $0.00 |
| 2023 | 29856 | COUNTY - COUNTY LEVIES (CE, DD, VET, MH) | $215.49 | $215.47 | $0.00 | $0.00 | $430.96 | $0.00 |
| 2023 | 29856 | CONSERVE - CONSERVATION FUTURES | $6.46 | $6.46 | $0.00 | $0.00 | $12.92 | $0.00 |
| 2023 | 29856 | COROADS - COUNTY ROADS (ROADS, DIV TO CE) | $174.34 | $174.33 | $0.00 | $0.00 | $348.67 | $0.00 |
| 2023 | 29856 | PORTPT - PORT DISTRICT | $90.78 | $90.76 | $0.00 | $0.00 | $181.54 | $0.00 |
| 2023 | 29856 | PUD1 - PUD #1 | $14.29 | $14.28 | $0.00 | $0.00 | $28.57 | $0.00 |
| 2023 | 29856 | LIB1 - LIBRARY DIST #1 | $67.45 | $67.45 | $0.00 | $0.00 | $134.90 | $0.00 |
| 2023 | 29856 | HD2 - HOSP DIST #2 | $12.58 | $12.57 | $0.00 | $0.00 | $25.15 | $0.00 |
| 2023 | 29856 | SD49 - SCHOOL DIST #49 | $230.82 | $230.82 | $0.00 | $0.00 | $461.64 | $0.00 |
| 2023 | 29856 | FD3 - FIRE DISTRICT #3 | $214.37 | $214.37 | $0.00 | $0.00 | $428.74 | $0.00 |
| 2023 | 29856 | EMS3 - FIRE DIST #3 EMS | $76.64 | $76.63 | $0.00 | $0.00 | $153.27 | $0.00 |
| 2023 | 29856 | JCCD - JC Conservation District | $2.55 | $2.55 | $0.00 | $0.00 | $5.10 | $0.00 |
| 2023 | 29856 | LUD - PT Ludlow Drainage District | $27.76 | $27.75 | $0.00 | $0.00 | $55.51 | $0.00 |
| 2023 | 29856 | NWA - Noxious Weed Assessment | $2.15 | $2.15 | $0.00 | $0.00 | $4.30 | $0.00 |
| 2023 | 29856 | Drain - DRAINAGE DISTRICT FEE | $0.56 | $0.00 | $0.00 | $0.00 | $0.56 | $0.00 |
| 2023 | 29856 | TOTAL: | $1630.04 | $1629.38 | $0.00 | $0.00 | $3259.42 | $0.00 |
|
| 2023 | 29856 | $1630.04 | $1629.38 | $0.00 | $0.00 | $3259.42 | $0.00 |
Values
| (+) Improvement Homesite Value: | + | $0 | |
| (+) Improvement Non-Homesite Value: | + | $360,552 | |
| (+) Land Homesite Value: | + | $0 | |
| (+) Land Non-Homesite Value: | + | $103,950 | |
| (+) Curr Use (HS): | + | $0 | $0 |
| (+) Curr Use (NHS): | + | $0 | $0 |
| | | -------------------------- | |
| (=) Market Value: | = | $464,502 | |
| (–) Productivity Loss: | – | $0 | |
| | | -------------------------- | |
| (=) Subtotal: | = | $464,502 | |
| (+) Senior Appraised Value: | + | $0 | |
| (+) Non-Senior Appraised Value: | + | $464,502 | |
| | | -------------------------- | |
| (=) Total Appraised Value: | = | $464,502 | |
| (–) Senior Exemption Loss: | – | $0 | |
| (–) Exemption Loss: | – | $0 | |
| | | -------------------------- | |
| (=) Taxable Value: | = | $464,502 | |
Taxing Jurisdiction
| Owner: | KRISTINE PETERS | | |
| % Ownership: | 100.0000000000% | | |
| Total Value: | $464,502 | | |
| Tax Area: | 0213 - 1-49F1E1H2L1 |
| CE | COUNTY CURRENT EXPENSE | 0.9034619479 | $464,502 | $464,502 | $419.66 | | |
| CNTYDD | DEVELOPMENTAL DISABILITIES | 0.0052121823 | $464,502 | $464,502 | $2.42 | | |
| CNTYVET | VETERANS RELIEF | 0.0052777810 | $464,502 | $464,502 | $2.45 | | |
| MENTAL | MENTAL HEALTH | 0.0052121823 | $464,502 | $464,502 | $2.42 | | |
| ROADS | COUNTY ROADS | 0.7415066410 | $464,502 | $464,502 | $344.43 | | |
| ROADSCU | COUNTY ROADS TO CUR EXP | 0.0000000000 | $464,502 | $464,502 | $0.00 | | |
| HOSP2CASH | HOSP DIST #2 GENERAL | 0.0536075306 | $464,502 | $464,502 | $24.90 | | |
| SCH49CP | SCHOOL DIST #49 CAP PROJ | 0.6279093905 | $464,502 | $464,502 | $291.67 | | |
| SCH49MO | SCHOOL DIST #49 EP & O | 0.6376483602 | $464,502 | $464,502 | $296.19 | | |
| CONSERVE | CONSERVATION FUTURES | 0.0275621078 | $464,502 | $464,502 | $12.80 | | |
| EMS1 | FIRE DIST #1 EMS | 0.4679948282 | $464,502 | $464,502 | $217.38 | | |
| FD1 | FIRE DIST #1 GENERAL | 1.2171942929 | $464,502 | $464,502 | $565.39 | | |
| LIB1 | LIBRARY DIST #1 GENERAL | 0.2868827388 | $464,502 | $464,502 | $133.26 | | |
| PORTPT | PORT OF PT GENERAL | 0.1134941229 | $464,502 | $464,502 | $52.72 | | |
| PORTPTIDD | PORT OF PT IDD 2019 | 0.2577346692 | $464,502 | $464,502 | $119.72 | | |
| PUD1 | PUD #1 GENERAL | 0.0597888892 | $464,502 | $464,502 | $27.77 | | |
| STATE | STATE SCHOOL PART 1 | 1.4940692947 | $464,502 | $464,502 | $694.00 | | |
| STATE2 | STATE SCHOOL PART 2 | 0.8050170049 | $464,502 | $464,502 | $373.93 | | |
| | Total Tax Rate: | 7.7095739644 | | | | | |
| | | | | Taxes w/Current Exemptions: | $3,581.11 | | |
| | | | | Taxes w/o Exemptions: | $3,581.11 | | |
Improvement / Building
| Improvement #1: | Residential Bldg | State Code: | 11 | 1464.0 sqft | Value: | $360,552 |
| Bathrooms (#): | 3 (FULL) | Bedrooms (#): | 3 | | Exterior Wall: | PL/T1 | Fireplace: | DBL 2-GOOD | | Floor Construction: | FRAME | Foundation: | CONPR | | Heating/Cooling: | HPUMP | Inside Verify: | YES-FIX | | Roof Cover: | SHAKE |   |   |
|
| | Type | Description | Class CD | Sub Class CD | Year Built | Area |
| | MA | Main Area | 4+ | 1S | 1973 | 1464.0 |
| | PATIO | House Patio | 4 | * | 1973 | 160.0 |
| | HDECK | House Deck | 4 | * | 1973 | 588.0 |
| | CARPTN | Carport W/O Floor | 4 | * | 1973 | 360.0 |
| | BSMTF | House basement finished | 4 | * | 1973 | 616.0 |
| | BSMTU | House basement unfinished | 4 | * | 1973 | 616.0 |
Sketch
Property Image
Land
| 1 | 3334-1167L | | 0.0000 | 0.00 | 0.00 | 0.00 | 1.00 | $103,950 | $0 |
Roll Value History
| 2026 | N/A | N/A | N/A | N/A | N/A |
| 2025 | $360,552 | $103,950 | $0 | $464,502 | $464,502 |
| 2024 | $360,552 | $103,950 | $0 | $464,502 | $464,502 |
| 2023 | $345,529 | $94,000 | $0 | $439,529 | $439,529 |
| 2022 | $330,506 | $89,000 | $0 | $419,506 | $419,506 |
Deed and Sales History
| 1 | 07/19/2023 | QCD | Quit Claim Deed | SHIRLEY & STANLEY KADESH REV LIVING TRUST | KRISTINE PETERS | | | | 141270 | |
| 2 | 03/07/2023 | QCD | Quit Claim Deed | SHIRLEY KADESH | KRISTINE PETERS | | | | 141109 | |
| 3 | 03/21/2022 | QCD | Quit Claim Deed | STANLEY D KADESH TRUSTEE | SHIRLEY & STANLEY KADESH REV LIVING TRUST | | | | 138765 | |
| 4 | 09/12/1996 | QCD | Quit Claim Deed | KADESH, STANLEY D/SHIRLEY | KADESH, STANLEY & SHIRLEY/TR | 0 | 0 | $0.00 | 82027 | 0 |
Payout Agreement
| No payout information available.. |