Property
Account |
| Property ID: | 40564 | Abbreviated Legal Description: | PORT LUDLOW NO. 2 AREA 3 LOT 112 |
| Parcel # / Geo ID: | 990603112 | Agent Code: | |
| Type: | Real | | |
| Tax Area: | 0213 - 1-49F1E1H2L1 | Land Use Code | 11 |
| Open Space: | N | DFL | N |
| Historic Property: | N | Remodel Property: | N |
| Multi-Family Redevelopment: | N | | |
| Township: | 28N | Section: | 9 |
| Range: | 1E |
Location |
| Address: | 90 PIONEER DR PORT LUDLOW, WA 98365 | Mapsco: | 110/018 |
| Neighborhood: | PORT LUDLOW #2 AREA 3 (SEWER AVAILABLE TO ALL LOTS) | Map ID: | |
| Neighborhood CD: | 3334 |
Owner |
| Name: | WILLIAM & KATHERINE AUDYCKI | Owner ID: | 110505 |
| Mailing Address: | 90 PIONEER DR PORT LUDLOW, WA 98365 | % Ownership: | 100.0000000000% |
| | | Exemptions: | |
Pay Tax Due
Select the appropriate checkbox next to the year to be paid. Multiple years may be selected.
*Convenience Fee not included
Taxes and Assessment Details
Property Tax Information as of
03/11/2026
Click on "Statement Details" to expand or collapse a tax statement.
* Please enter a valid date ** Please enter a valid date *
Statement Details |
| 2026 | 29734 | STATE - STATE LEVY (SCHOOL) | $851.32 | $851.30 | $0.00 | $0.00 | $0.00 | $1702.62 |
| 2026 | 29734 | COUNTY - COUNTY LEVIES (CE, DD, VET, MH) | $340.36 | $340.34 | $0.00 | $0.00 | $0.00 | $680.70 |
| 2026 | 29734 | CONSERVE - CONSERVATION FUTURES | $10.21 | $10.20 | $0.00 | $0.00 | $0.00 | $20.41 |
| 2026 | 29734 | COROADS - COUNTY ROADS (ROADS, DIV TO CE) | $274.57 | $274.56 | $0.00 | $0.00 | $0.00 | $549.13 |
| 2026 | 29734 | PORTPT - PORT DISTRICT | $137.47 | $137.45 | $0.00 | $0.00 | $0.00 | $274.92 |
| 2026 | 29734 | PUD1 - PUD #1 | $22.14 | $22.14 | $0.00 | $0.00 | $0.00 | $44.28 |
| 2026 | 29734 | LIB1 - LIBRARY DIST #1 | $106.23 | $106.23 | $0.00 | $0.00 | $0.00 | $212.46 |
| 2026 | 29734 | HD2 - HOSP DIST #2 | $19.85 | $19.85 | $0.00 | $0.00 | $0.00 | $39.70 |
| 2026 | 29734 | SD49 - SCHOOL DIST #49 | $468.62 | $468.61 | $0.00 | $0.00 | $0.00 | $937.23 |
| 2026 | 29734 | FD1 - FIRE DISTRICT #1 | $450.71 | $450.70 | $0.00 | $0.00 | $0.00 | $901.41 |
| 2026 | 29734 | EMS1 - FIRE DIST #1 EMS | $173.29 | $173.29 | $0.00 | $0.00 | $0.00 | $346.58 |
| 2026 | 29734 | JCCD - JC Conservation District | $2.55 | $2.55 | $0.00 | $0.00 | $0.00 | $5.10 |
| 2026 | 29734 | LUD - PT Ludlow Drainage District | $40.37 | $40.37 | $0.00 | $0.00 | $0.00 | $80.74 |
| 2026 | 29734 | NWA - Noxious Weed Assessment | $2.98 | $2.97 | $0.00 | $0.00 | $0.00 | $5.95 |
| 2026 | 29734 | Drain - DRAINAGE DISTRICT FEE | $0.81 | $0.00 | $0.00 | $0.00 | $0.00 | $0.81 |
| 2026 | 29734 | TOTAL: | $2901.48 | $2900.56 | $0.00 | $0.00 | $0.00 | $5802.04 |
|
| 2026 | 29734 | $2901.48 | $2900.56 | $0.00 | $0.00 | $0.00 | $5802.04 |
Statement Details |
| 2025 | 29806 | STATE - STATE LEVY (SCHOOL) | $887.95 | $887.94 | $0.00 | $0.00 | $1775.89 | $0.00 |
| 2025 | 29806 | COUNTY - COUNTY LEVIES (CE, DD, VET, MH) | $349.19 | $349.16 | $0.00 | $0.00 | $698.35 | $0.00 |
| 2025 | 29806 | CONSERVE - CONSERVATION FUTURES | $10.47 | $10.47 | $0.00 | $0.00 | $20.94 | $0.00 |
| 2025 | 29806 | COROADS - COUNTY ROADS (ROADS, DIV TO CE) | $279.75 | $279.74 | $0.00 | $0.00 | $559.49 | $0.00 |
| 2025 | 29806 | PORTPT - PORT DISTRICT | $142.49 | $142.48 | $0.00 | $0.00 | $284.97 | $0.00 |
| 2025 | 29806 | PUD1 - PUD #1 | $22.85 | $22.85 | $0.00 | $0.00 | $45.70 | $0.00 |
| 2025 | 29806 | LIB1 - LIBRARY DIST #1 | $108.23 | $108.23 | $0.00 | $0.00 | $216.46 | $0.00 |
| 2025 | 29806 | HD2 - HOSP DIST #2 | $20.37 | $20.37 | $0.00 | $0.00 | $40.74 | $0.00 |
| 2025 | 29806 | SD49 - SCHOOL DIST #49 | $475.89 | $475.88 | $0.00 | $0.00 | $951.77 | $0.00 |
| 2025 | 29806 | FD1 - FIRE DISTRICT #1 | $460.78 | $460.78 | $0.00 | $0.00 | $921.56 | $0.00 |
| 2025 | 29806 | EMS1 - FIRE DIST #1 EMS | $177.23 | $177.23 | $0.00 | $0.00 | $354.46 | $0.00 |
| 2025 | 29806 | JCCD - JC Conservation District | $2.55 | $2.55 | $0.00 | $0.00 | $5.10 | $0.00 |
| 2025 | 29806 | LUD - PT Ludlow Drainage District | $32.37 | $32.36 | $0.00 | $0.00 | $64.73 | $0.00 |
| 2025 | 29806 | NWA - Noxious Weed Assessment | $2.15 | $2.15 | $0.00 | $0.00 | $4.30 | $0.00 |
| 2025 | 29806 | Drain - DRAINAGE DISTRICT FEE | $0.65 | $0.00 | $0.00 | $0.00 | $0.65 | $0.00 |
| 2025 | 29806 | TOTAL: | $2972.92 | $2972.19 | $0.00 | $0.00 | $5945.11 | $0.00 |
|
| 2025 | 29806 | $2972.92 | $2972.19 | $0.00 | $0.00 | $5945.11 | $0.00 |
Statement Details |
| 2024 | 29866 | STATE - STATE LEVY (SCHOOL) | $814.27 | $814.26 | $0.00 | $0.00 | $1628.53 | $0.00 |
| 2024 | 29866 | COUNTY - COUNTY LEVIES (CE, DD, VET, MH) | $348.44 | $348.41 | $0.00 | $0.00 | $696.85 | $0.00 |
| 2024 | 29866 | CONSERVE - CONSERVATION FUTURES | $10.45 | $10.45 | $0.00 | $0.00 | $20.90 | $0.00 |
| 2024 | 29866 | COROADS - COUNTY ROADS (ROADS, DIV TO CE) | $280.38 | $280.37 | $0.00 | $0.00 | $560.75 | $0.00 |
| 2024 | 29866 | PORTPT - PORT DISTRICT | $143.93 | $143.91 | $0.00 | $0.00 | $287.84 | $0.00 |
| 2024 | 29866 | PUD1 - PUD #1 | $22.89 | $22.88 | $0.00 | $0.00 | $45.77 | $0.00 |
| 2024 | 29866 | LIB1 - LIBRARY DIST #1 | $108.48 | $108.47 | $0.00 | $0.00 | $216.95 | $0.00 |
| 2024 | 29866 | HD2 - HOSP DIST #2 | $20.33 | $20.33 | $0.00 | $0.00 | $40.66 | $0.00 |
| 2024 | 29866 | SD49 - SCHOOL DIST #49 | $363.61 | $363.60 | $0.00 | $0.00 | $727.21 | $0.00 |
| 2024 | 29866 | FD1 - FIRE DISTRICT #1 | $460.71 | $460.71 | $0.00 | $0.00 | $921.42 | $0.00 |
| 2024 | 29866 | EMS1 - FIRE DIST #1 EMS | $175.98 | $175.97 | $0.00 | $0.00 | $351.95 | $0.00 |
| 2024 | 29866 | JCCD - JC Conservation District | $2.55 | $2.55 | $0.00 | $0.00 | $5.10 | $0.00 |
| 2024 | 29866 | LUD - PT Ludlow Drainage District | $28.42 | $28.41 | $0.00 | $0.00 | $56.83 | $0.00 |
| 2024 | 29866 | NWA - Noxious Weed Assessment | $2.15 | $2.15 | $0.00 | $0.00 | $4.30 | $0.00 |
| 2024 | 29866 | Drain - DRAINAGE DISTRICT FEE | $0.57 | $0.00 | $0.00 | $0.00 | $0.57 | $0.00 |
| 2024 | 29866 | TOTAL: | $2783.16 | $2782.47 | $0.00 | $0.00 | $5565.63 | $0.00 |
|
| 2024 | 29866 | $2783.16 | $2782.47 | $0.00 | $0.00 | $5565.63 | $0.00 |
Statement Details |
| 2023 | 29908 | STATE - STATE LEVY (SCHOOL) | $793.03 | $793.03 | $0.00 | $0.00 | $1586.06 | $0.00 |
| 2023 | 29908 | COUNTY - COUNTY LEVIES (CE, DD, VET, MH) | $346.07 | $346.04 | $0.00 | $0.00 | $692.11 | $0.00 |
| 2023 | 29908 | CONSERVE - CONSERVATION FUTURES | $10.38 | $10.37 | $0.00 | $0.00 | $20.75 | $0.00 |
| 2023 | 29908 | COROADS - COUNTY ROADS (ROADS, DIV TO CE) | $279.98 | $279.98 | $0.00 | $0.00 | $559.96 | $0.00 |
| 2023 | 29908 | PORTPT - PORT DISTRICT | $145.78 | $145.78 | $0.00 | $0.00 | $291.56 | $0.00 |
| 2023 | 29908 | PUD1 - PUD #1 | $22.94 | $22.94 | $0.00 | $0.00 | $45.88 | $0.00 |
| 2023 | 29908 | LIB1 - LIBRARY DIST #1 | $108.33 | $108.32 | $0.00 | $0.00 | $216.65 | $0.00 |
| 2023 | 29908 | HD2 - HOSP DIST #2 | $20.20 | $20.19 | $0.00 | $0.00 | $40.39 | $0.00 |
| 2023 | 29908 | SD49 - SCHOOL DIST #49 | $370.70 | $370.69 | $0.00 | $0.00 | $741.39 | $0.00 |
| 2023 | 29908 | FD3 - FIRE DISTRICT #3 | $344.28 | $344.27 | $0.00 | $0.00 | $688.55 | $0.00 |
| 2023 | 29908 | EMS3 - FIRE DIST #3 EMS | $123.08 | $123.08 | $0.00 | $0.00 | $246.16 | $0.00 |
| 2023 | 29908 | JCCD - JC Conservation District | $2.55 | $2.55 | $0.00 | $0.00 | $5.10 | $0.00 |
| 2023 | 29908 | LUD - PT Ludlow Drainage District | $28.59 | $28.58 | $0.00 | $0.00 | $57.17 | $0.00 |
| 2023 | 29908 | NWA - Noxious Weed Assessment | $2.15 | $2.15 | $0.00 | $0.00 | $4.30 | $0.00 |
| 2023 | 29908 | Drain - DRAINAGE DISTRICT FEE | $0.57 | $0.00 | $0.00 | $0.00 | $0.57 | $0.00 |
| 2023 | 29908 | TOTAL: | $2598.63 | $2597.97 | $0.00 | $0.00 | $5196.60 | $0.00 |
|
| 2023 | 29908 | $2598.63 | $2597.97 | $0.00 | $0.00 | $5196.60 | $0.00 |
Values
| (+) Improvement Homesite Value: | + | $0 | |
| (+) Improvement Non-Homesite Value: | + | $604,064 | |
| (+) Land Homesite Value: | + | $0 | |
| (+) Land Non-Homesite Value: | + | $136,500 | |
| (+) Curr Use (HS): | + | $0 | $0 |
| (+) Curr Use (NHS): | + | $0 | $0 |
| | | -------------------------- | |
| (=) Market Value: | = | $740,564 | |
| (–) Productivity Loss: | – | $0 | |
| | | -------------------------- | |
| (=) Subtotal: | = | $740,564 | |
| (+) Senior Appraised Value: | + | $0 | |
| (+) Non-Senior Appraised Value: | + | $740,564 | |
| | | -------------------------- | |
| (=) Total Appraised Value: | = | $740,564 | |
| (–) Senior Exemption Loss: | – | $0 | |
| (–) Exemption Loss: | – | $0 | |
| | | -------------------------- | |
| (=) Taxable Value: | = | $740,564 | |
Taxing Jurisdiction
| Owner: | WILLIAM & KATHERINE AUDYCKI | | |
| % Ownership: | 100.0000000000% | | |
| Total Value: | $740,564 | | |
| Tax Area: | 0213 - 1-49F1E1H2L1 |
| CE | COUNTY CURRENT EXPENSE | 0.9034619479 | $740,564 | $740,564 | $669.07 | | |
| CNTYDD | DEVELOPMENTAL DISABILITIES | 0.0052121823 | $740,564 | $740,564 | $3.86 | | |
| CNTYVET | VETERANS RELIEF | 0.0052777810 | $740,564 | $740,564 | $3.91 | | |
| MENTAL | MENTAL HEALTH | 0.0052121823 | $740,564 | $740,564 | $3.86 | | |
| ROADS | COUNTY ROADS | 0.7415066410 | $740,564 | $740,564 | $549.13 | | |
| ROADSCU | COUNTY ROADS TO CUR EXP | 0.0000000000 | $740,564 | $740,564 | $0.00 | | |
| HOSP2CASH | HOSP DIST #2 GENERAL | 0.0536075306 | $740,564 | $740,564 | $39.70 | | |
| SCH49CP | SCHOOL DIST #49 CAP PROJ | 0.6279093905 | $740,564 | $740,564 | $465.01 | | |
| SCH49MO | SCHOOL DIST #49 EP & O | 0.6376483602 | $740,564 | $740,564 | $472.22 | | |
| CONSERVE | CONSERVATION FUTURES | 0.0275621078 | $740,564 | $740,564 | $20.41 | | |
| EMS1 | FIRE DIST #1 EMS | 0.4679948282 | $740,564 | $740,564 | $346.58 | | |
| FD1 | FIRE DIST #1 GENERAL | 1.2171942929 | $740,564 | $740,564 | $901.41 | | |
| LIB1 | LIBRARY DIST #1 GENERAL | 0.2868827388 | $740,564 | $740,564 | $212.46 | | |
| PORTPT | PORT OF PT GENERAL | 0.1134941229 | $740,564 | $740,564 | $84.05 | | |
| PORTPTIDD | PORT OF PT IDD 2019 | 0.2577346692 | $740,564 | $740,564 | $190.87 | | |
| PUD1 | PUD #1 GENERAL | 0.0597888892 | $740,564 | $740,564 | $44.28 | | |
| STATE | STATE SCHOOL PART 1 | 1.4940692947 | $740,564 | $740,564 | $1,106.45 | | |
| STATE2 | STATE SCHOOL PART 2 | 0.8050170049 | $740,564 | $740,564 | $596.17 | | |
| | Total Tax Rate: | 7.7095739644 | | | | | |
| | | | | Taxes w/Current Exemptions: | $5,709.44 | | |
| | | | | Taxes w/o Exemptions: | $5,709.44 | | |
Improvement / Building
| Improvement #1: | Residential Bldg | State Code: | 11 | 1995.0 sqft | Value: | $604,064 |
| Bathrooms (#): | 2 (FULL) | Bedrooms (#): | 3 | | Exterior Wall: | SI/ST | Foundation: | CONPR | | Heating/Cooling: | F/A | Roof Cover: | COMP |
|
| | Type | Description | Class CD | Sub Class CD | Year Built | Area |
| | MA | Main Area | 5 | 1S | 2021 | 1995.0 |
| | GATT | House Attached Garage | 5 | 1S | 2021 | 616.0 |
| | HWPOR | House Wood Porch | 4 | * | 2021 | 180.0 |
| | HCPOR | House Concrete Porch | 4 | * | 2021 | 56.0 |
| | CONCD | Concrete Drive | 4 | * | 2021 | 1500.0 |
Sketch
Property Image
Land
| 1 | 3334-1165L | | 0.0000 | 0.00 | 0.00 | 0.00 | 1.00 | $136,500 | $0 |
Roll Value History
| 2026 | N/A | N/A | N/A | N/A | N/A |
| 2025 | $604,064 | $136,500 | $0 | $740,564 | $740,564 |
| 2024 | $604,064 | $136,500 | $0 | $740,564 | $740,564 |
| 2023 | $578,895 | $125,000 | $0 | $703,895 | $703,895 |
| 2022 | $553,726 | $120,000 | $0 | $673,726 | $673,726 |
Deed and Sales History
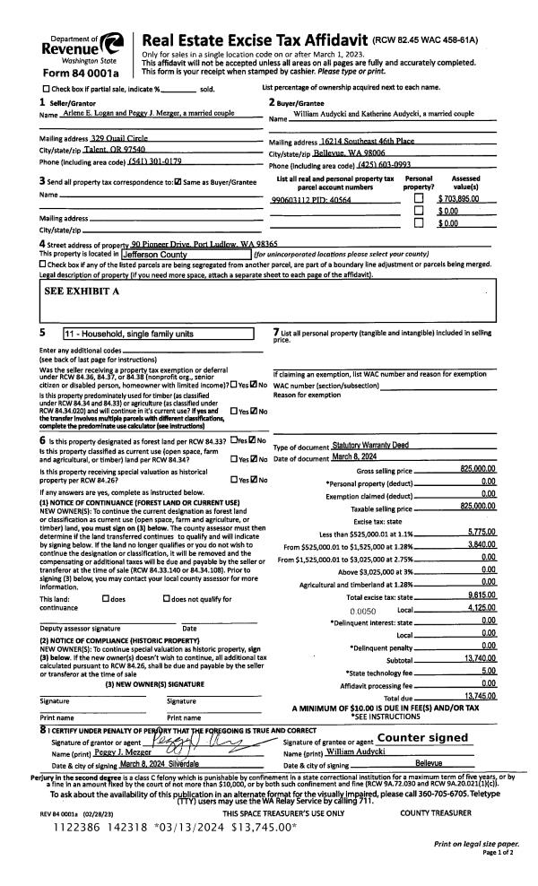
| 1 | 03/08/2024 | SWD | Statutory Warranty Deed | PEGGY J MEZGER & ARLENE E LOGAN | WILLIAM & KATHERINE AUDYCKI | | | $825,000.00 | 142318 | |
| 2 | 12/15/2021 | SWD | Statutory Warranty Deed | FERGUSON & COLE INC | PEGGY J MEZGER & ARLENE E LOGAN | | | $769,000.00 | 138295 | |
| 3 | 07/16/2020 | SWD | Statutory Warranty Deed | DAVID E DANIELS | FERGUSON & COLE INC | | | $91,000.00 | 134699 | |
| 4 | 07/18/2020 | QCD | Quit Claim Deed | | | | | | 134698 | |
Payout Agreement
| No payout information available.. |