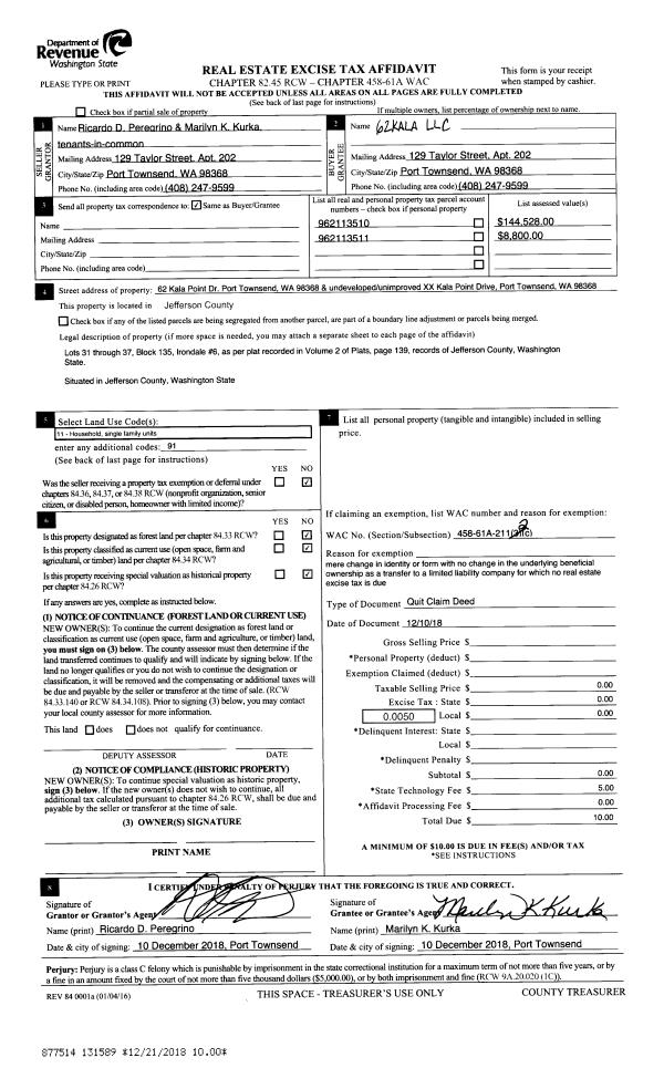
Property
Account |
| Property ID: | 40569 | Abbreviated Legal Description: | PORT LUDLOW NO. 2 AREA 3 LOT 117 |
| Parcel # / Geo ID: | 990603117 | Agent Code: | |
| Type: | Real | | |
| Tax Area: | 0213 - 1-49F1E1H2L1 | Land Use Code | 11 |
| Open Space: | N | DFL | N |
| Historic Property: | N | Remodel Property: | N |
| Multi-Family Redevelopment: | N | | |
| Township: | 28N | Section: | 9 |
| Range: | 1E |
Location |
| Address: | 170 PIONEER DR PORT LUDLOW, WA 98365 | Mapsco: | 110/023 |
| Neighborhood: | PORT LUDLOW #2 AREA 3 (SEWER AVAILABLE TO ALL LOTS) | Map ID: | |
| Neighborhood CD: | 3334 |
Owner |
| Name: | GEOFFREY S & CINDY L CHARLTON | Owner ID: | 103776 |
| Mailing Address: | 170 PIONEER DR PORT LUDLOW, WA 98365 | % Ownership: | 100.0000000000% |
| | | Exemptions: | |
Pay Tax Due
Select the appropriate checkbox next to the year to be paid. Multiple years may be selected.
*Convenience Fee not included
Taxes and Assessment Details
Property Tax Information as of
03/10/2026
Click on "Statement Details" to expand or collapse a tax statement.
* Please enter a valid date ** Please enter a valid date *
Statement Details |
| 2026 | 29739 | STATE - STATE LEVY (SCHOOL) | $771.18 | $771.17 | $0.00 | $0.00 | $0.00 | $1542.35 |
| 2026 | 29739 | COUNTY - COUNTY LEVIES (CE, DD, VET, MH) | $308.32 | $308.31 | $0.00 | $0.00 | $0.00 | $616.63 |
| 2026 | 29739 | CONSERVE - CONSERVATION FUTURES | $9.25 | $9.24 | $0.00 | $0.00 | $0.00 | $18.49 |
| 2026 | 29739 | COROADS - COUNTY ROADS (ROADS, DIV TO CE) | $248.72 | $248.72 | $0.00 | $0.00 | $0.00 | $497.44 |
| 2026 | 29739 | PORTPT - PORT DISTRICT | $124.52 | $124.52 | $0.00 | $0.00 | $0.00 | $249.04 |
| 2026 | 29739 | PUD1 - PUD #1 | $20.06 | $20.05 | $0.00 | $0.00 | $0.00 | $40.11 |
| 2026 | 29739 | LIB1 - LIBRARY DIST #1 | $96.23 | $96.23 | $0.00 | $0.00 | $0.00 | $192.46 |
| 2026 | 29739 | HD2 - HOSP DIST #2 | $17.98 | $17.98 | $0.00 | $0.00 | $0.00 | $35.96 |
| 2026 | 29739 | SD49 - SCHOOL DIST #49 | $424.51 | $424.49 | $0.00 | $0.00 | $0.00 | $849.00 |
| 2026 | 29739 | FD1 - FIRE DISTRICT #1 | $408.28 | $408.28 | $0.00 | $0.00 | $0.00 | $816.56 |
| 2026 | 29739 | EMS1 - FIRE DIST #1 EMS | $156.98 | $156.98 | $0.00 | $0.00 | $0.00 | $313.96 |
| 2026 | 29739 | JCCD - JC Conservation District | $2.55 | $2.55 | $0.00 | $0.00 | $0.00 | $5.10 |
| 2026 | 29739 | LUD - PT Ludlow Drainage District | $37.61 | $37.60 | $0.00 | $0.00 | $0.00 | $75.21 |
| 2026 | 29739 | NWA - Noxious Weed Assessment | $2.98 | $2.97 | $0.00 | $0.00 | $0.00 | $5.95 |
| 2026 | 29739 | Drain - DRAINAGE DISTRICT FEE | $0.75 | $0.00 | $0.00 | $0.00 | $0.00 | $0.75 |
| 2026 | 29739 | TOTAL: | $2629.92 | $2629.09 | $0.00 | $0.00 | $0.00 | $5259.01 |
|
| 2026 | 29739 | $2629.92 | $2629.09 | $0.00 | $0.00 | $0.00 | $5259.01 |
Statement Details |
| 2025 | 29811 | STATE - STATE LEVY (SCHOOL) | $804.36 | $804.36 | $0.00 | $0.00 | $1608.72 | $0.00 |
| 2025 | 29811 | COUNTY - COUNTY LEVIES (CE, DD, VET, MH) | $316.31 | $316.31 | $0.00 | $0.00 | $632.62 | $0.00 |
| 2025 | 29811 | CONSERVE - CONSERVATION FUTURES | $9.49 | $9.48 | $0.00 | $0.00 | $18.97 | $0.00 |
| 2025 | 29811 | COROADS - COUNTY ROADS (ROADS, DIV TO CE) | $253.42 | $253.41 | $0.00 | $0.00 | $506.83 | $0.00 |
| 2025 | 29811 | PORTPT - PORT DISTRICT | $129.08 | $129.06 | $0.00 | $0.00 | $258.14 | $0.00 |
| 2025 | 29811 | PUD1 - PUD #1 | $20.70 | $20.69 | $0.00 | $0.00 | $41.39 | $0.00 |
| 2025 | 29811 | LIB1 - LIBRARY DIST #1 | $98.05 | $98.04 | $0.00 | $0.00 | $196.09 | $0.00 |
| 2025 | 29811 | HD2 - HOSP DIST #2 | $18.46 | $18.45 | $0.00 | $0.00 | $36.91 | $0.00 |
| 2025 | 29811 | SD49 - SCHOOL DIST #49 | $431.09 | $431.09 | $0.00 | $0.00 | $862.18 | $0.00 |
| 2025 | 29811 | FD1 - FIRE DISTRICT #1 | $417.41 | $417.40 | $0.00 | $0.00 | $834.81 | $0.00 |
| 2025 | 29811 | EMS1 - FIRE DIST #1 EMS | $160.55 | $160.54 | $0.00 | $0.00 | $321.09 | $0.00 |
| 2025 | 29811 | JCCD - JC Conservation District | $2.55 | $2.55 | $0.00 | $0.00 | $5.10 | $0.00 |
| 2025 | 29811 | LUD - PT Ludlow Drainage District | $30.16 | $30.15 | $0.00 | $0.00 | $60.31 | $0.00 |
| 2025 | 29811 | NWA - Noxious Weed Assessment | $2.15 | $2.15 | $0.00 | $0.00 | $4.30 | $0.00 |
| 2025 | 29811 | Drain - DRAINAGE DISTRICT FEE | $0.60 | $0.00 | $0.00 | $0.00 | $0.60 | $0.00 |
| 2025 | 29811 | TOTAL: | $2694.38 | $2693.68 | $0.00 | $0.00 | $5388.06 | $0.00 |
|
| 2025 | 29811 | $2694.38 | $2693.68 | $0.00 | $0.00 | $5388.06 | $0.00 |
Statement Details |
| 2024 | 29871 | STATE - STATE LEVY (SCHOOL) | $737.20 | $737.19 | $0.00 | $0.00 | $1474.39 | $0.00 |
| 2024 | 29871 | COUNTY - COUNTY LEVIES (CE, DD, VET, MH) | $315.46 | $315.45 | $0.00 | $0.00 | $630.91 | $0.00 |
| 2024 | 29871 | CONSERVE - CONSERVATION FUTURES | $9.46 | $9.46 | $0.00 | $0.00 | $18.92 | $0.00 |
| 2024 | 29871 | COROADS - COUNTY ROADS (ROADS, DIV TO CE) | $253.85 | $253.83 | $0.00 | $0.00 | $507.68 | $0.00 |
| 2024 | 29871 | PORTPT - PORT DISTRICT | $130.30 | $130.29 | $0.00 | $0.00 | $260.59 | $0.00 |
| 2024 | 29871 | PUD1 - PUD #1 | $20.72 | $20.72 | $0.00 | $0.00 | $41.44 | $0.00 |
| 2024 | 29871 | LIB1 - LIBRARY DIST #1 | $98.21 | $98.20 | $0.00 | $0.00 | $196.41 | $0.00 |
| 2024 | 29871 | HD2 - HOSP DIST #2 | $18.41 | $18.40 | $0.00 | $0.00 | $36.81 | $0.00 |
| 2024 | 29871 | SD49 - SCHOOL DIST #49 | $329.20 | $329.19 | $0.00 | $0.00 | $658.39 | $0.00 |
| 2024 | 29871 | FD1 - FIRE DISTRICT #1 | $417.11 | $417.10 | $0.00 | $0.00 | $834.21 | $0.00 |
| 2024 | 29871 | EMS1 - FIRE DIST #1 EMS | $159.32 | $159.32 | $0.00 | $0.00 | $318.64 | $0.00 |
| 2024 | 29871 | JCCD - JC Conservation District | $2.55 | $2.55 | $0.00 | $0.00 | $5.10 | $0.00 |
| 2024 | 29871 | LUD - PT Ludlow Drainage District | $26.48 | $26.48 | $0.00 | $0.00 | $52.96 | $0.00 |
| 2024 | 29871 | NWA - Noxious Weed Assessment | $2.15 | $2.15 | $0.00 | $0.00 | $4.30 | $0.00 |
| 2024 | 29871 | Drain - DRAINAGE DISTRICT FEE | $0.53 | $0.00 | $0.00 | $0.00 | $0.53 | $0.00 |
| 2024 | 29871 | TOTAL: | $2520.95 | $2520.33 | $0.00 | $0.00 | $5041.28 | $0.00 |
|
| 2024 | 29871 | $2520.95 | $2520.33 | $0.00 | $0.00 | $5041.28 | $0.00 |
Statement Details |
| 2023 | 29913 | STATE - STATE LEVY (SCHOOL) | $716.49 | $716.48 | $0.00 | $0.00 | $1432.97 | $0.00 |
| 2023 | 29913 | COUNTY - COUNTY LEVIES (CE, DD, VET, MH) | $312.67 | $312.63 | $0.00 | $0.00 | $625.30 | $0.00 |
| 2023 | 29913 | CONSERVE - CONSERVATION FUTURES | $9.38 | $9.37 | $0.00 | $0.00 | $18.75 | $0.00 |
| 2023 | 29913 | COROADS - COUNTY ROADS (ROADS, DIV TO CE) | $252.96 | $252.95 | $0.00 | $0.00 | $505.91 | $0.00 |
| 2023 | 29913 | PORTPT - PORT DISTRICT | $131.71 | $131.70 | $0.00 | $0.00 | $263.41 | $0.00 |
| 2023 | 29913 | PUD1 - PUD #1 | $20.73 | $20.72 | $0.00 | $0.00 | $41.45 | $0.00 |
| 2023 | 29913 | LIB1 - LIBRARY DIST #1 | $97.87 | $97.86 | $0.00 | $0.00 | $195.73 | $0.00 |
| 2023 | 29913 | HD2 - HOSP DIST #2 | $18.25 | $18.24 | $0.00 | $0.00 | $36.49 | $0.00 |
| 2023 | 29913 | SD49 - SCHOOL DIST #49 | $334.92 | $334.91 | $0.00 | $0.00 | $669.83 | $0.00 |
| 2023 | 29913 | FD3 - FIRE DISTRICT #3 | $311.05 | $311.04 | $0.00 | $0.00 | $622.09 | $0.00 |
| 2023 | 29913 | EMS3 - FIRE DIST #3 EMS | $111.20 | $111.20 | $0.00 | $0.00 | $222.40 | $0.00 |
| 2023 | 29913 | JCCD - JC Conservation District | $2.55 | $2.55 | $0.00 | $0.00 | $5.10 | $0.00 |
| 2023 | 29913 | LUD - PT Ludlow Drainage District | $26.65 | $26.65 | $0.00 | $0.00 | $53.30 | $0.00 |
| 2023 | 29913 | NWA - Noxious Weed Assessment | $2.15 | $2.15 | $0.00 | $0.00 | $4.30 | $0.00 |
| 2023 | 29913 | Drain - DRAINAGE DISTRICT FEE | $0.53 | $0.00 | $0.00 | $0.00 | $0.53 | $0.00 |
| 2023 | 29913 | TOTAL: | $2349.11 | $2348.45 | $0.00 | $0.00 | $4697.56 | $0.00 |
|
| 2023 | 29913 | $2349.11 | $2348.45 | $0.00 | $0.00 | $4697.56 | $0.00 |
Values
| (+) Improvement Homesite Value: | + | $0 | |
| (+) Improvement Non-Homesite Value: | + | $565,852 | |
| (+) Land Homesite Value: | + | $0 | |
| (+) Land Non-Homesite Value: | + | $105,000 | |
| (+) Curr Use (HS): | + | $0 | $0 |
| (+) Curr Use (NHS): | + | $0 | $0 |
| | | -------------------------- | |
| (=) Market Value: | = | $670,852 | |
| (–) Productivity Loss: | – | $0 | |
| | | -------------------------- | |
| (=) Subtotal: | = | $670,852 | |
| (+) Senior Appraised Value: | + | $0 | |
| (+) Non-Senior Appraised Value: | + | $670,852 | |
| | | -------------------------- | |
| (=) Total Appraised Value: | = | $670,852 | |
| (–) Senior Exemption Loss: | – | $0 | |
| (–) Exemption Loss: | – | $0 | |
| | | -------------------------- | |
| (=) Taxable Value: | = | $670,852 | |
Taxing Jurisdiction
| Owner: | GEOFFREY S & CINDY L CHARLTON | | |
| % Ownership: | 100.0000000000% | | |
| Total Value: | $670,852 | | |
| Tax Area: | 0213 - 1-49F1E1H2L1 |
| CE | COUNTY CURRENT EXPENSE | 0.9034619479 | $670,852 | $670,852 | $606.09 | | |
| CNTYDD | DEVELOPMENTAL DISABILITIES | 0.0052121823 | $670,852 | $670,852 | $3.50 | | |
| CNTYVET | VETERANS RELIEF | 0.0052777810 | $670,852 | $670,852 | $3.54 | | |
| MENTAL | MENTAL HEALTH | 0.0052121823 | $670,852 | $670,852 | $3.50 | | |
| ROADS | COUNTY ROADS | 0.7415066410 | $670,852 | $670,852 | $497.44 | | |
| ROADSCU | COUNTY ROADS TO CUR EXP | 0.0000000000 | $670,852 | $670,852 | $0.00 | | |
| HOSP2CASH | HOSP DIST #2 GENERAL | 0.0536075306 | $670,852 | $670,852 | $35.96 | | |
| SCH49CP | SCHOOL DIST #49 CAP PROJ | 0.6279093905 | $670,852 | $670,852 | $421.23 | | |
| SCH49MO | SCHOOL DIST #49 EP & O | 0.6376483602 | $670,852 | $670,852 | $427.77 | | |
| CONSERVE | CONSERVATION FUTURES | 0.0275621078 | $670,852 | $670,852 | $18.49 | | |
| EMS1 | FIRE DIST #1 EMS | 0.4679948282 | $670,852 | $670,852 | $313.96 | | |
| FD1 | FIRE DIST #1 GENERAL | 1.2171942929 | $670,852 | $670,852 | $816.56 | | |
| LIB1 | LIBRARY DIST #1 GENERAL | 0.2868827388 | $670,852 | $670,852 | $192.46 | | |
| PORTPT | PORT OF PT GENERAL | 0.1134941229 | $670,852 | $670,852 | $76.14 | | |
| PORTPTIDD | PORT OF PT IDD 2019 | 0.2577346692 | $670,852 | $670,852 | $172.90 | | |
| PUD1 | PUD #1 GENERAL | 0.0597888892 | $670,852 | $670,852 | $40.11 | | |
| STATE | STATE SCHOOL PART 1 | 1.4940692947 | $670,852 | $670,852 | $1,002.30 | | |
| STATE2 | STATE SCHOOL PART 2 | 0.8050170049 | $670,852 | $670,852 | $540.05 | | |
| | Total Tax Rate: | 7.7095739644 | | | | | |
| | | | | Taxes w/Current Exemptions: | $5,172.00 | | |
| | | | | Taxes w/o Exemptions: | $5,172.00 | | |
Improvement / Building
| Improvement #1: | Residential Bldg | State Code: | 11 | 1781.0 sqft | Value: | $565,852 |
| Bathrooms (#): | 2 (FULL) | Bedrooms (#): | 2 | | Exterior Wall: | SI/ST | Foundation: | CONPR | | Heating/Cooling: | HPUMP | Roof Cover: | COMP |
|
| | Type | Description | Class CD | Sub Class CD | Year Built | Area |
| | MA | Main Area | 4 | 1S | 2017 | 1781.0 |
| | BSMTF | House basement finished | 4 | 1S | 2017 | 781.0 |
| | GATT | House Attached Garage | 3 | 1S | 2017 | 521.0 |
| | HDECK | House Deck | 3 | 1S | 2017 | 324.0 |
| | CONCD | Concrete Drive | 3 | * | 2017 | 600.0 |
Sketch
Property Image
Land
| 1 | 3334-1175L | | 0.0000 | 0.00 | 0.00 | 0.00 | 1.00 | $105,000 | $0 |
Roll Value History
| 2026 | N/A | N/A | N/A | N/A | N/A |
| 2025 | $565,852 | $105,000 | $0 | $670,852 | $670,852 |
| 2024 | $565,852 | $105,000 | $0 | $670,852 | $670,852 |
| 2023 | $542,274 | $95,000 | $0 | $637,274 | $637,274 |
| 2022 | $518,697 | $90,000 | $0 | $608,697 | $608,697 |
Deed and Sales History
| 1 | 11/18/2020 | SWD | Statutory Warranty Deed | DANA CONNOR | GEOFFREY S & CINDY L CHARLTON | | | $586,950.00 | 135651 | |
| 2 | 08/25/2020 | QCD | Quit Claim Deed | | | | | | 134984 | |
| 3 | 08/25/2020 | SWD | Statutory Warranty Deed | KURT R STEIN & VICKI K HOLLENBECK | DANA CONNOR | | | $547,000.00 | 134983 | |
| 4 | 09/07/2018 | SWD | Statutory Warranty Deed | TREAT LIVING TRUST | KURT R STEIN & VICKI K HOLLENBECK | | | $425,000.00 | 131021 | |
| 5 | 08/05/2014 | QCD | Quit Claim Deed | DAVID TREAT | TREAT LIVING TRUST | | | | 121699 | |
| 6 | 07/07/2005 | SWD | Statutory Warranty Deed | GOUDY ESTATE, ROBERT E | TREAT, DAVID | | | $62,500.00 | 104193 | 0 |
Payout Agreement
| No payout information available.. |