Property
Account |
| Property ID: | 40630 | Abbreviated Legal Description: | PORT LUDLOW NO 2 AREA 3 LOT 179 |
| Parcel # / Geo ID: | 990603179 | Agent Code: | |
| Type: | Real | | |
| Tax Area: | 0213 - 1-49F1E1H2L1 | Land Use Code | 11 |
| Open Space: | N | DFL | N |
| Historic Property: | N | Remodel Property: | N |
| Multi-Family Redevelopment: | N | | |
| Township: | 28N | Section: | 9 |
| Range: | 1E |
Location |
| Address: | 23 TRADER LN PORT LUDLOW, WA 98365 | Mapsco: | 111/039 |
| Neighborhood: | PORT LUDLOW #2 AREA 3 (SEWER AVAILABLE TO ALL LOTS) | Map ID: | |
| Neighborhood CD: | 3334 |
Owner |
| Name: | MARGARET JEUTHER TRUST | Owner ID: | 99019 |
| Mailing Address: | DARIA LEDER TRUSTEE 23 TRADER LN PORT LUDLOW, WA 98365-9638 | % Ownership: | 100.0000000000% |
| | | Exemptions: | |
Pay Tax Due
Select the appropriate checkbox next to the year to be paid. Multiple years may be selected.
*Convenience Fee not included
Taxes and Assessment Details
Property Tax Information as of
03/11/2026
Click on "Statement Details" to expand or collapse a tax statement.
* Please enter a valid date ** Please enter a valid date *
Statement Details |
| 2026 | 29800 | STATE - STATE LEVY (SCHOOL) | $640.45 | $640.45 | $0.00 | $0.00 | $0.00 | $1280.90 |
| 2026 | 29800 | COUNTY - COUNTY LEVIES (CE, DD, VET, MH) | $256.05 | $256.04 | $0.00 | $0.00 | $0.00 | $512.09 |
| 2026 | 29800 | CONSERVE - CONSERVATION FUTURES | $7.68 | $7.68 | $0.00 | $0.00 | $0.00 | $15.36 |
| 2026 | 29800 | COROADS - COUNTY ROADS (ROADS, DIV TO CE) | $206.56 | $206.56 | $0.00 | $0.00 | $0.00 | $413.12 |
| 2026 | 29800 | PORTPT - PORT DISTRICT | $103.42 | $103.40 | $0.00 | $0.00 | $0.00 | $206.82 |
| 2026 | 29800 | PUD1 - PUD #1 | $16.66 | $16.65 | $0.00 | $0.00 | $0.00 | $33.31 |
| 2026 | 29800 | LIB1 - LIBRARY DIST #1 | $79.92 | $79.91 | $0.00 | $0.00 | $0.00 | $159.83 |
| 2026 | 29800 | HD2 - HOSP DIST #2 | $14.94 | $14.93 | $0.00 | $0.00 | $0.00 | $29.87 |
| 2026 | 29800 | SD49 - SCHOOL DIST #49 | $352.55 | $352.54 | $0.00 | $0.00 | $0.00 | $705.09 |
| 2026 | 29800 | FD1 - FIRE DISTRICT #1 | $339.07 | $339.07 | $0.00 | $0.00 | $0.00 | $678.14 |
| 2026 | 29800 | EMS1 - FIRE DIST #1 EMS | $130.37 | $130.37 | $0.00 | $0.00 | $0.00 | $260.74 |
| 2026 | 29800 | JCCD - JC Conservation District | $2.55 | $2.55 | $0.00 | $0.00 | $0.00 | $5.10 |
| 2026 | 29800 | LUD - PT Ludlow Drainage District | $37.61 | $37.60 | $0.00 | $0.00 | $0.00 | $75.21 |
| 2026 | 29800 | NWA - Noxious Weed Assessment | $2.98 | $2.97 | $0.00 | $0.00 | $0.00 | $5.95 |
| 2026 | 29800 | Drain - DRAINAGE DISTRICT FEE | $0.75 | $0.00 | $0.00 | $0.00 | $0.00 | $0.75 |
| 2026 | 29800 | TOTAL: | $2191.56 | $2190.72 | $0.00 | $0.00 | $0.00 | $4382.28 |
|
| 2026 | 29800 | $2191.56 | $2190.72 | $0.00 | $0.00 | $0.00 | $4382.28 |
Statement Details |
| 2025 | 29872 | STATE - STATE LEVY (SCHOOL) | $668.02 | $668.01 | $0.00 | $0.00 | $1336.03 | $0.00 |
| 2025 | 29872 | COUNTY - COUNTY LEVIES (CE, DD, VET, MH) | $262.71 | $262.67 | $0.00 | $0.00 | $525.38 | $0.00 |
| 2025 | 29872 | CONSERVE - CONSERVATION FUTURES | $7.88 | $7.87 | $0.00 | $0.00 | $15.75 | $0.00 |
| 2025 | 29872 | COROADS - COUNTY ROADS (ROADS, DIV TO CE) | $210.47 | $210.45 | $0.00 | $0.00 | $420.92 | $0.00 |
| 2025 | 29872 | PORTPT - PORT DISTRICT | $107.20 | $107.18 | $0.00 | $0.00 | $214.38 | $0.00 |
| 2025 | 29872 | PUD1 - PUD #1 | $17.19 | $17.19 | $0.00 | $0.00 | $34.38 | $0.00 |
| 2025 | 29872 | LIB1 - LIBRARY DIST #1 | $81.43 | $81.42 | $0.00 | $0.00 | $162.85 | $0.00 |
| 2025 | 29872 | HD2 - HOSP DIST #2 | $15.33 | $15.32 | $0.00 | $0.00 | $30.65 | $0.00 |
| 2025 | 29872 | SD49 - SCHOOL DIST #49 | $358.02 | $358.01 | $0.00 | $0.00 | $716.03 | $0.00 |
| 2025 | 29872 | FD1 - FIRE DISTRICT #1 | $346.65 | $346.65 | $0.00 | $0.00 | $693.30 | $0.00 |
| 2025 | 29872 | EMS1 - FIRE DIST #1 EMS | $133.33 | $133.33 | $0.00 | $0.00 | $266.66 | $0.00 |
| 2025 | 29872 | JCCD - JC Conservation District | $2.55 | $2.55 | $0.00 | $0.00 | $5.10 | $0.00 |
| 2025 | 29872 | LUD - PT Ludlow Drainage District | $30.16 | $30.15 | $0.00 | $0.00 | $60.31 | $0.00 |
| 2025 | 29872 | NWA - Noxious Weed Assessment | $2.15 | $2.15 | $0.00 | $0.00 | $4.30 | $0.00 |
| 2025 | 29872 | Drain - DRAINAGE DISTRICT FEE | $0.60 | $0.00 | $0.00 | $0.00 | $0.60 | $0.00 |
| 2025 | 29872 | TOTAL: | $2243.69 | $2242.95 | $0.00 | $0.00 | $4486.64 | $0.00 |
|
| 2025 | 29872 | $2243.69 | $2242.95 | $0.00 | $0.00 | $4486.64 | $0.00 |
Statement Details |
| 2024 | 29932 | STATE - STATE LEVY (SCHOOL) | $611.03 | $611.02 | $0.00 | $0.00 | $1222.05 | $0.00 |
| 2024 | 29932 | COUNTY - COUNTY LEVIES (CE, DD, VET, MH) | $261.48 | $261.44 | $0.00 | $0.00 | $522.92 | $0.00 |
| 2024 | 29932 | CONSERVE - CONSERVATION FUTURES | $7.84 | $7.84 | $0.00 | $0.00 | $15.68 | $0.00 |
| 2024 | 29932 | COROADS - COUNTY ROADS (ROADS, DIV TO CE) | $210.40 | $210.38 | $0.00 | $0.00 | $420.78 | $0.00 |
| 2024 | 29932 | PORTPT - PORT DISTRICT | $108.00 | $107.99 | $0.00 | $0.00 | $215.99 | $0.00 |
| 2024 | 29932 | PUD1 - PUD #1 | $17.18 | $17.17 | $0.00 | $0.00 | $34.35 | $0.00 |
| 2024 | 29932 | LIB1 - LIBRARY DIST #1 | $81.40 | $81.40 | $0.00 | $0.00 | $162.80 | $0.00 |
| 2024 | 29932 | HD2 - HOSP DIST #2 | $15.26 | $15.25 | $0.00 | $0.00 | $30.51 | $0.00 |
| 2024 | 29932 | SD49 - SCHOOL DIST #49 | $272.85 | $272.85 | $0.00 | $0.00 | $545.70 | $0.00 |
| 2024 | 29932 | FD1 - FIRE DISTRICT #1 | $345.72 | $345.71 | $0.00 | $0.00 | $691.43 | $0.00 |
| 2024 | 29932 | EMS1 - FIRE DIST #1 EMS | $132.05 | $132.05 | $0.00 | $0.00 | $264.10 | $0.00 |
| 2024 | 29932 | JCCD - JC Conservation District | $2.55 | $2.55 | $0.00 | $0.00 | $5.10 | $0.00 |
| 2024 | 29932 | LUD - PT Ludlow Drainage District | $26.48 | $26.48 | $0.00 | $0.00 | $52.96 | $0.00 |
| 2024 | 29932 | NWA - Noxious Weed Assessment | $2.15 | $2.15 | $0.00 | $0.00 | $4.30 | $0.00 |
| 2024 | 29932 | Drain - DRAINAGE DISTRICT FEE | $0.53 | $0.00 | $0.00 | $0.00 | $0.53 | $0.00 |
| 2024 | 29932 | TOTAL: | $2094.92 | $2094.28 | $0.00 | $0.00 | $4189.20 | $0.00 |
|
| 2024 | 29932 | $2094.92 | $2094.28 | $0.00 | $0.00 | $4189.20 | $0.00 |
Statement Details |
| 2023 | 29974 | STATE - STATE LEVY (SCHOOL) | $594.46 | $594.44 | $0.00 | $0.00 | $1188.90 | $0.00 |
| 2023 | 29974 | COUNTY - COUNTY LEVIES (CE, DD, VET, MH) | $259.41 | $259.39 | $0.00 | $0.00 | $518.80 | $0.00 |
| 2023 | 29974 | CONSERVE - CONSERVATION FUTURES | $7.78 | $7.78 | $0.00 | $0.00 | $15.56 | $0.00 |
| 2023 | 29974 | COROADS - COUNTY ROADS (ROADS, DIV TO CE) | $209.88 | $209.87 | $0.00 | $0.00 | $419.75 | $0.00 |
| 2023 | 29974 | PORTPT - PORT DISTRICT | $109.28 | $109.27 | $0.00 | $0.00 | $218.55 | $0.00 |
| 2023 | 29974 | PUD1 - PUD #1 | $17.20 | $17.19 | $0.00 | $0.00 | $34.39 | $0.00 |
| 2023 | 29974 | LIB1 - LIBRARY DIST #1 | $81.20 | $81.20 | $0.00 | $0.00 | $162.40 | $0.00 |
| 2023 | 29974 | HD2 - HOSP DIST #2 | $15.14 | $15.13 | $0.00 | $0.00 | $30.27 | $0.00 |
| 2023 | 29974 | SD49 - SCHOOL DIST #49 | $277.87 | $277.87 | $0.00 | $0.00 | $555.74 | $0.00 |
| 2023 | 29974 | FD3 - FIRE DISTRICT #3 | $258.07 | $258.06 | $0.00 | $0.00 | $516.13 | $0.00 |
| 2023 | 29974 | EMS3 - FIRE DIST #3 EMS | $92.26 | $92.26 | $0.00 | $0.00 | $184.52 | $0.00 |
| 2023 | 29974 | JCCD - JC Conservation District | $2.55 | $2.55 | $0.00 | $0.00 | $5.10 | $0.00 |
| 2023 | 29974 | LUD - PT Ludlow Drainage District | $26.65 | $26.65 | $0.00 | $0.00 | $53.30 | $0.00 |
| 2023 | 29974 | NWA - Noxious Weed Assessment | $2.15 | $2.15 | $0.00 | $0.00 | $4.30 | $0.00 |
| 2023 | 29974 | Drain - DRAINAGE DISTRICT FEE | $0.53 | $0.00 | $0.00 | $0.00 | $0.53 | $0.00 |
| 2023 | 29974 | TOTAL: | $1954.43 | $1953.81 | $0.00 | $0.00 | $3908.24 | $0.00 |
|
| 2023 | 29974 | $1954.43 | $1953.81 | $0.00 | $0.00 | $3908.24 | $0.00 |
Values
| (+) Improvement Homesite Value: | + | $0 | |
| (+) Improvement Non-Homesite Value: | + | $436,386 | |
| (+) Land Homesite Value: | + | $0 | |
| (+) Land Non-Homesite Value: | + | $120,750 | |
| (+) Curr Use (HS): | + | $0 | $0 |
| (+) Curr Use (NHS): | + | $0 | $0 |
| | | -------------------------- | |
| (=) Market Value: | = | $557,136 | |
| (–) Productivity Loss: | – | $0 | |
| | | -------------------------- | |
| (=) Subtotal: | = | $557,136 | |
| (+) Senior Appraised Value: | + | $0 | |
| (+) Non-Senior Appraised Value: | + | $557,136 | |
| | | -------------------------- | |
| (=) Total Appraised Value: | = | $557,136 | |
| (–) Senior Exemption Loss: | – | $0 | |
| (–) Exemption Loss: | – | $0 | |
| | | -------------------------- | |
| (=) Taxable Value: | = | $557,136 | |
Taxing Jurisdiction
| Owner: | MARGARET JEUTHER TRUST | | |
| % Ownership: | 100.0000000000% | | |
| Total Value: | $557,136 | | |
| Tax Area: | 0213 - 1-49F1E1H2L1 |
| CE | COUNTY CURRENT EXPENSE | 0.9034619479 | $557,136 | $557,136 | $503.35 | | |
| CNTYDD | DEVELOPMENTAL DISABILITIES | 0.0052121823 | $557,136 | $557,136 | $2.90 | | |
| CNTYVET | VETERANS RELIEF | 0.0052777810 | $557,136 | $557,136 | $2.94 | | |
| MENTAL | MENTAL HEALTH | 0.0052121823 | $557,136 | $557,136 | $2.90 | | |
| ROADS | COUNTY ROADS | 0.7415066410 | $557,136 | $557,136 | $413.12 | | |
| ROADSCU | COUNTY ROADS TO CUR EXP | 0.0000000000 | $557,136 | $557,136 | $0.00 | | |
| HOSP2CASH | HOSP DIST #2 GENERAL | 0.0536075306 | $557,136 | $557,136 | $29.87 | | |
| SCH49CP | SCHOOL DIST #49 CAP PROJ | 0.6279093905 | $557,136 | $557,136 | $349.83 | | |
| SCH49MO | SCHOOL DIST #49 EP & O | 0.6376483602 | $557,136 | $557,136 | $355.26 | | |
| CONSERVE | CONSERVATION FUTURES | 0.0275621078 | $557,136 | $557,136 | $15.36 | | |
| EMS1 | FIRE DIST #1 EMS | 0.4679948282 | $557,136 | $557,136 | $260.74 | | |
| FD1 | FIRE DIST #1 GENERAL | 1.2171942929 | $557,136 | $557,136 | $678.14 | | |
| LIB1 | LIBRARY DIST #1 GENERAL | 0.2868827388 | $557,136 | $557,136 | $159.83 | | |
| PORTPT | PORT OF PT GENERAL | 0.1134941229 | $557,136 | $557,136 | $63.23 | | |
| PORTPTIDD | PORT OF PT IDD 2019 | 0.2577346692 | $557,136 | $557,136 | $143.59 | | |
| PUD1 | PUD #1 GENERAL | 0.0597888892 | $557,136 | $557,136 | $33.31 | | |
| STATE | STATE SCHOOL PART 1 | 1.4940692947 | $557,136 | $557,136 | $832.40 | | |
| STATE2 | STATE SCHOOL PART 2 | 0.8050170049 | $557,136 | $557,136 | $448.50 | | |
| | Total Tax Rate: | 7.7095739644 | | | | | |
| | | | | Taxes w/Current Exemptions: | $4,295.27 | | |
| | | | | Taxes w/o Exemptions: | $4,295.27 | | |
Improvement / Building
| Improvement #1: | Residential Bldg | State Code: | 11 | 2034.0 sqft | Value: | $436,386 |
| Bathrooms (#): | 2 (FULL) | Bedrooms (#): | 3 | | Exterior Wall: | SI/ST | Fireplace: | PROPS-AVG | | Fireplace: | WD ST-AVG | Floor Construction: | FRAME | | Foundation: | CONPR | Heating/Cooling: | HPUMP | | Inside Verify: | YES-FIX | Roof Cover: | TILE |
|
| | Type | Description | Class CD | Sub Class CD | Year Built | Area |
| | MA | Main Area | 4 | 1S | 1995 | 2034.0 |
| | PATIO | House Patio | 3 | * | 1995 | 860.0 |
| | HWPOR | House Wood Porch | 3 | * | 1995 | 168.0 |
| | HCPOR | House Concrete Porch | 3 | * | 1995 | 72.0 |
| | HDECK | House Deck | 3 | * | 1995 | 238.0 |
| | GATT | House Attached Garage | 3 | 1S | 1995 | 720.0 |
| | CONCD | Concrete Drive | 3 | * | 1995 | 1200.0 |
Sketch
Property Image
Land
| 1 | 3334-1167L | | 0.0000 | 0.00 | 0.00 | 0.00 | 1.00 | $120,750 | $0 |
Roll Value History
| 2026 | N/A | N/A | N/A | N/A | N/A |
| 2025 | $436,386 | $120,750 | $0 | $557,136 | $557,136 |
| 2024 | $436,386 | $120,750 | $0 | $557,136 | $557,136 |
| 2023 | $418,203 | $110,000 | $0 | $528,203 | $528,203 |
| 2022 | $400,020 | $105,000 | $0 | $505,020 | $505,020 |
Deed and Sales History
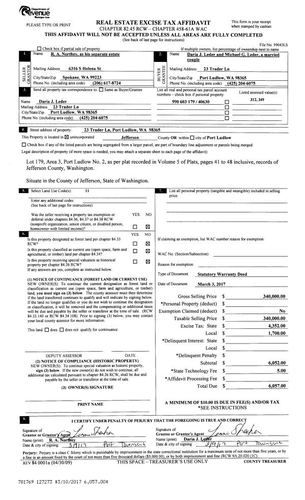
| 1 | 03/20/2018 | QCD | Quit Claim Deed | DARIA J & MICHAEL G LEDER | MARGARET JEUTHER TRUST | | | | 129960 | |
| 2 | 03/03/2017 | SWD | Statutory Warranty Deed | R A NORTHEY | DARIA J & MICHAEL G LEDER | | | $340,000.00 | 127273 | |
| 3 | 03/16/1994 | SWD | Statutory Warranty Deed | RABAL, JOHN M/MARY E | NORTHEY, R A/V J | 0 | 0 | $47,500.00 | 73627 | 0 |
Payout Agreement
| No payout information available.. |