Property
Account |
| Property ID: | 40645 | Abbreviated Legal Description: | PORT LUDLOW NO 2 AREA 3 LOT 194 |
| Parcel # / Geo ID: | 990603194 | Agent Code: | |
| Type: | Real | | |
| Tax Area: | 0213 - 1-49F1E1H2L1 | Land Use Code | 11 |
| Open Space: | N | DFL | N |
| Historic Property: | N | Remodel Property: | N |
| Multi-Family Redevelopment: | N | | |
| Township: | 28N | Section: | 9 |
| Range: | 1E |
Location |
| Address: | 90 PATHFINDER LN PORT LUDLOW, WA 98365 | Mapsco: | 112/010 |
| Neighborhood: | PORT LUDLOW #2 AREA 3 (SEWER AVAILABLE TO ALL LOTS) | Map ID: | |
| Neighborhood CD: | 3334 |
Owner |
| Name: | DANIEL J & KATHLEEN H MCNULTY | Owner ID: | 102846 |
| Mailing Address: | 302 ALVERSON BLVD EVERETT, WA 98201-1006 | % Ownership: | 100.0000000000% |
| | | Exemptions: | |
Pay Tax Due
Select the appropriate checkbox next to the year to be paid. Multiple years may be selected.
*Convenience Fee not included
Taxes and Assessment Details
Property Tax Information as of
03/13/2026
Click on "Statement Details" to expand or collapse a tax statement.
* Please enter a valid date ** Please enter a valid date *
Statement Details |
| 2026 | 29815 | STATE - STATE LEVY (SCHOOL) | $733.84 | $733.83 | $0.00 | $0.00 | $0.00 | $1467.67 |
| 2026 | 29815 | COUNTY - COUNTY LEVIES (CE, DD, VET, MH) | $293.40 | $293.37 | $0.00 | $0.00 | $0.00 | $586.77 |
| 2026 | 29815 | CONSERVE - CONSERVATION FUTURES | $8.80 | $8.79 | $0.00 | $0.00 | $0.00 | $17.59 |
| 2026 | 29815 | COROADS - COUNTY ROADS (ROADS, DIV TO CE) | $236.68 | $236.68 | $0.00 | $0.00 | $0.00 | $473.36 |
| 2026 | 29815 | PORTPT - PORT DISTRICT | $118.50 | $118.48 | $0.00 | $0.00 | $0.00 | $236.98 |
| 2026 | 29815 | PUD1 - PUD #1 | $19.09 | $19.08 | $0.00 | $0.00 | $0.00 | $38.17 |
| 2026 | 29815 | LIB1 - LIBRARY DIST #1 | $91.57 | $91.57 | $0.00 | $0.00 | $0.00 | $183.14 |
| 2026 | 29815 | HD2 - HOSP DIST #2 | $17.11 | $17.11 | $0.00 | $0.00 | $0.00 | $34.22 |
| 2026 | 29815 | SD49 - SCHOOL DIST #49 | $403.95 | $403.95 | $0.00 | $0.00 | $0.00 | $807.90 |
| 2026 | 29815 | FD1 - FIRE DISTRICT #1 | $388.51 | $388.51 | $0.00 | $0.00 | $0.00 | $777.02 |
| 2026 | 29815 | EMS1 - FIRE DIST #1 EMS | $149.38 | $149.37 | $0.00 | $0.00 | $0.00 | $298.75 |
| 2026 | 29815 | JCCD - JC Conservation District | $2.55 | $2.55 | $0.00 | $0.00 | $0.00 | $5.10 |
| 2026 | 29815 | LUD - PT Ludlow Drainage District | $37.61 | $37.60 | $0.00 | $0.00 | $0.00 | $75.21 |
| 2026 | 29815 | NWA - Noxious Weed Assessment | $2.98 | $2.97 | $0.00 | $0.00 | $0.00 | $5.95 |
| 2026 | 29815 | Drain - DRAINAGE DISTRICT FEE | $0.75 | $0.00 | $0.00 | $0.00 | $0.00 | $0.75 |
| 2026 | 29815 | TOTAL: | $2504.72 | $2503.86 | $0.00 | $0.00 | $0.00 | $5008.58 |
|
| 2026 | 29815 | $2504.72 | $2503.86 | $0.00 | $0.00 | $0.00 | $5008.58 |
Statement Details |
| 2025 | 29887 | STATE - STATE LEVY (SCHOOL) | $765.42 | $765.41 | $0.00 | $0.00 | $1530.83 | $0.00 |
| 2025 | 29887 | COUNTY - COUNTY LEVIES (CE, DD, VET, MH) | $301.02 | $300.98 | $0.00 | $0.00 | $602.00 | $0.00 |
| 2025 | 29887 | CONSERVE - CONSERVATION FUTURES | $9.03 | $9.02 | $0.00 | $0.00 | $18.05 | $0.00 |
| 2025 | 29887 | COROADS - COUNTY ROADS (ROADS, DIV TO CE) | $241.15 | $241.13 | $0.00 | $0.00 | $482.28 | $0.00 |
| 2025 | 29887 | PORTPT - PORT DISTRICT | $122.83 | $122.82 | $0.00 | $0.00 | $245.65 | $0.00 |
| 2025 | 29887 | PUD1 - PUD #1 | $19.70 | $19.69 | $0.00 | $0.00 | $39.39 | $0.00 |
| 2025 | 29887 | LIB1 - LIBRARY DIST #1 | $93.30 | $93.29 | $0.00 | $0.00 | $186.59 | $0.00 |
| 2025 | 29887 | HD2 - HOSP DIST #2 | $17.56 | $17.56 | $0.00 | $0.00 | $35.12 | $0.00 |
| 2025 | 29887 | SD49 - SCHOOL DIST #49 | $410.22 | $410.21 | $0.00 | $0.00 | $820.43 | $0.00 |
| 2025 | 29887 | FD1 - FIRE DISTRICT #1 | $397.20 | $397.19 | $0.00 | $0.00 | $794.39 | $0.00 |
| 2025 | 29887 | EMS1 - FIRE DIST #1 EMS | $152.77 | $152.77 | $0.00 | $0.00 | $305.54 | $0.00 |
| 2025 | 29887 | JCCD - JC Conservation District | $2.55 | $2.55 | $0.00 | $0.00 | $5.10 | $0.00 |
| 2025 | 29887 | LUD - PT Ludlow Drainage District | $30.16 | $30.15 | $0.00 | $0.00 | $60.31 | $0.00 |
| 2025 | 29887 | NWA - Noxious Weed Assessment | $2.15 | $2.15 | $0.00 | $0.00 | $4.30 | $0.00 |
| 2025 | 29887 | Drain - DRAINAGE DISTRICT FEE | $0.60 | $0.00 | $0.00 | $0.00 | $0.60 | $0.00 |
| 2025 | 29887 | TOTAL: | $2565.66 | $2564.92 | $0.00 | $0.00 | $5130.58 | $0.00 |
|
| 2025 | 29887 | $2565.66 | $2564.92 | $0.00 | $0.00 | $5130.58 | $0.00 |
Statement Details |
| 2024 | 29947 | STATE - STATE LEVY (SCHOOL) | $700.66 | $700.64 | $0.00 | $0.00 | $1401.30 | $0.00 |
| 2024 | 29947 | COUNTY - COUNTY LEVIES (CE, DD, VET, MH) | $299.84 | $299.80 | $0.00 | $0.00 | $599.64 | $0.00 |
| 2024 | 29947 | CONSERVE - CONSERVATION FUTURES | $8.99 | $8.99 | $0.00 | $0.00 | $17.98 | $0.00 |
| 2024 | 29947 | COROADS - COUNTY ROADS (ROADS, DIV TO CE) | $241.25 | $241.25 | $0.00 | $0.00 | $482.50 | $0.00 |
| 2024 | 29947 | PORTPT - PORT DISTRICT | $123.84 | $123.83 | $0.00 | $0.00 | $247.67 | $0.00 |
| 2024 | 29947 | PUD1 - PUD #1 | $19.70 | $19.69 | $0.00 | $0.00 | $39.39 | $0.00 |
| 2024 | 29947 | LIB1 - LIBRARY DIST #1 | $93.34 | $93.34 | $0.00 | $0.00 | $186.68 | $0.00 |
| 2024 | 29947 | HD2 - HOSP DIST #2 | $17.50 | $17.49 | $0.00 | $0.00 | $34.99 | $0.00 |
| 2024 | 29947 | SD49 - SCHOOL DIST #49 | $312.88 | $312.86 | $0.00 | $0.00 | $625.74 | $0.00 |
| 2024 | 29947 | FD1 - FIRE DISTRICT #1 | $396.43 | $396.42 | $0.00 | $0.00 | $792.85 | $0.00 |
| 2024 | 29947 | EMS1 - FIRE DIST #1 EMS | $151.42 | $151.42 | $0.00 | $0.00 | $302.84 | $0.00 |
| 2024 | 29947 | JCCD - JC Conservation District | $2.55 | $2.55 | $0.00 | $0.00 | $5.10 | $0.00 |
| 2024 | 29947 | LUD - PT Ludlow Drainage District | $26.48 | $26.48 | $0.00 | $0.00 | $52.96 | $0.00 |
| 2024 | 29947 | NWA - Noxious Weed Assessment | $2.15 | $2.15 | $0.00 | $0.00 | $4.30 | $0.00 |
| 2024 | 29947 | Drain - DRAINAGE DISTRICT FEE | $0.53 | $0.00 | $0.00 | $0.00 | $0.53 | $0.00 |
| 2024 | 29947 | TOTAL: | $2397.56 | $2396.91 | $0.00 | $0.00 | $4794.47 | $0.00 |
|
| 2024 | 29947 | $2397.56 | $2396.91 | $0.00 | $0.00 | $4794.47 | $0.00 |
Statement Details |
| 2023 | 29989 | STATE - STATE LEVY (SCHOOL) | $684.76 | $684.74 | $0.00 | $0.00 | $1369.50 | $0.00 |
| 2023 | 29989 | COUNTY - COUNTY LEVIES (CE, DD, VET, MH) | $298.82 | $298.79 | $0.00 | $0.00 | $597.61 | $0.00 |
| 2023 | 29989 | CONSERVE - CONSERVATION FUTURES | $8.96 | $8.96 | $0.00 | $0.00 | $17.92 | $0.00 |
| 2023 | 29989 | COROADS - COUNTY ROADS (ROADS, DIV TO CE) | $241.76 | $241.75 | $0.00 | $0.00 | $483.51 | $0.00 |
| 2023 | 29989 | PORTPT - PORT DISTRICT | $125.88 | $125.86 | $0.00 | $0.00 | $251.74 | $0.00 |
| 2023 | 29989 | PUD1 - PUD #1 | $19.81 | $19.80 | $0.00 | $0.00 | $39.61 | $0.00 |
| 2023 | 29989 | LIB1 - LIBRARY DIST #1 | $93.53 | $93.53 | $0.00 | $0.00 | $187.06 | $0.00 |
| 2023 | 29989 | HD2 - HOSP DIST #2 | $17.45 | $17.43 | $0.00 | $0.00 | $34.88 | $0.00 |
| 2023 | 29989 | SD49 - SCHOOL DIST #49 | $320.09 | $320.07 | $0.00 | $0.00 | $640.16 | $0.00 |
| 2023 | 29989 | FD3 - FIRE DISTRICT #3 | $297.27 | $297.27 | $0.00 | $0.00 | $594.54 | $0.00 |
| 2023 | 29989 | EMS3 - FIRE DIST #3 EMS | $106.28 | $106.27 | $0.00 | $0.00 | $212.55 | $0.00 |
| 2023 | 29989 | JCCD - JC Conservation District | $2.55 | $2.55 | $0.00 | $0.00 | $5.10 | $0.00 |
| 2023 | 29989 | LUD - PT Ludlow Drainage District | $26.65 | $26.65 | $0.00 | $0.00 | $53.30 | $0.00 |
| 2023 | 29989 | NWA - Noxious Weed Assessment | $2.15 | $2.15 | $0.00 | $0.00 | $4.30 | $0.00 |
| 2023 | 29989 | Drain - DRAINAGE DISTRICT FEE | $0.53 | $0.00 | $0.00 | $0.00 | $0.53 | $0.00 |
| 2023 | 29989 | TOTAL: | $2246.49 | $2245.82 | $0.00 | $0.00 | $4492.31 | $0.00 |
|
| 2023 | 29989 | $2246.49 | $2245.82 | $0.00 | $0.00 | $4492.31 | $0.00 |
Values
| (+) Improvement Homesite Value: | + | $0 | |
| (+) Improvement Non-Homesite Value: | + | $454,620 | |
| (+) Land Homesite Value: | + | $0 | |
| (+) Land Non-Homesite Value: | + | $183,750 | |
| (+) Curr Use (HS): | + | $0 | $0 |
| (+) Curr Use (NHS): | + | $0 | $0 |
| | | -------------------------- | |
| (=) Market Value: | = | $638,370 | |
| (–) Productivity Loss: | – | $0 | |
| | | -------------------------- | |
| (=) Subtotal: | = | $638,370 | |
| (+) Senior Appraised Value: | + | $0 | |
| (+) Non-Senior Appraised Value: | + | $638,370 | |
| | | -------------------------- | |
| (=) Total Appraised Value: | = | $638,370 | |
| (–) Senior Exemption Loss: | – | $0 | |
| (–) Exemption Loss: | – | $0 | |
| | | -------------------------- | |
| (=) Taxable Value: | = | $638,370 | |
Taxing Jurisdiction
| Owner: | DANIEL J & KATHLEEN H MCNULTY | | |
| % Ownership: | 100.0000000000% | | |
| Total Value: | $638,370 | | |
| Tax Area: | 0213 - 1-49F1E1H2L1 |
| CE | COUNTY CURRENT EXPENSE | 0.9034619479 | $638,370 | $638,370 | $576.74 | | |
| CNTYDD | DEVELOPMENTAL DISABILITIES | 0.0052121823 | $638,370 | $638,370 | $3.33 | | |
| CNTYVET | VETERANS RELIEF | 0.0052777810 | $638,370 | $638,370 | $3.37 | | |
| MENTAL | MENTAL HEALTH | 0.0052121823 | $638,370 | $638,370 | $3.33 | | |
| ROADS | COUNTY ROADS | 0.7415066410 | $638,370 | $638,370 | $473.36 | | |
| ROADSCU | COUNTY ROADS TO CUR EXP | 0.0000000000 | $638,370 | $638,370 | $0.00 | | |
| HOSP2CASH | HOSP DIST #2 GENERAL | 0.0536075306 | $638,370 | $638,370 | $34.22 | | |
| SCH49CP | SCHOOL DIST #49 CAP PROJ | 0.6279093905 | $638,370 | $638,370 | $400.84 | | |
| SCH49MO | SCHOOL DIST #49 EP & O | 0.6376483602 | $638,370 | $638,370 | $407.06 | | |
| CONSERVE | CONSERVATION FUTURES | 0.0275621078 | $638,370 | $638,370 | $17.59 | | |
| EMS1 | FIRE DIST #1 EMS | 0.4679948282 | $638,370 | $638,370 | $298.75 | | |
| FD1 | FIRE DIST #1 GENERAL | 1.2171942929 | $638,370 | $638,370 | $777.02 | | |
| LIB1 | LIBRARY DIST #1 GENERAL | 0.2868827388 | $638,370 | $638,370 | $183.14 | | |
| PORTPT | PORT OF PT GENERAL | 0.1134941229 | $638,370 | $638,370 | $72.45 | | |
| PORTPTIDD | PORT OF PT IDD 2019 | 0.2577346692 | $638,370 | $638,370 | $164.53 | | |
| PUD1 | PUD #1 GENERAL | 0.0597888892 | $638,370 | $638,370 | $38.17 | | |
| STATE | STATE SCHOOL PART 1 | 1.4940692947 | $638,370 | $638,370 | $953.77 | | |
| STATE2 | STATE SCHOOL PART 2 | 0.8050170049 | $638,370 | $638,370 | $513.90 | | |
| | Total Tax Rate: | 7.7095739644 | | | | | |
| | | | | Taxes w/Current Exemptions: | $4,921.57 | | |
| | | | | Taxes w/o Exemptions: | $4,921.57 | | |
Improvement / Building
| Improvement #1: | Residential Bldg | State Code: | 11 | 1257.0 sqft | Value: | $454,620 |
| Bathrooms (#): | 1 (FULL) | Bedrooms (#): | 2 | | Exterior Wall: | SI/ST | Fireplace: | WD ST-AVG | | Floor Construction: | FRAME | Foundation: | CONPR | | Heating/Cooling: | F/A | Inside Verify: | YES-FIX | | Roof Cover: | COMP |   |   |
|
| | Type | Description | Class CD | Sub Class CD | Year Built | Area |
| | MA | Main Area | 4+ | 1S | 1979 | 1257.0 |
| | HDECK | House Deck | 5 | * | 1979 | 240.0 |
| | GATT | House Attached Garage | 4 | 1S | 1979 | 550.0 |
| | BSMTF | House basement finished | 4 | * | 1979 | 752.0 |
| | CONCD | Concrete Drive | 4 | * | 1979 | 500.0 |
| | BSMTU | House basement unfinished | 4 | * | 1979 | 250.0 |
Sketch
Property Image
Land
| 1 | 3334-1145L | | 0.0000 | 0.00 | 0.00 | 0.00 | 1.00 | $183,750 | $0 |
Roll Value History
| 2026 | N/A | N/A | N/A | N/A | N/A |
| 2025 | $454,620 | $183,750 | $0 | $638,370 | $638,370 |
| 2024 | $454,620 | $183,750 | $0 | $638,370 | $638,370 |
| 2023 | $435,678 | $170,000 | $0 | $605,678 | $605,678 |
| 2022 | $416,735 | $165,000 | $0 | $581,735 | $581,735 |
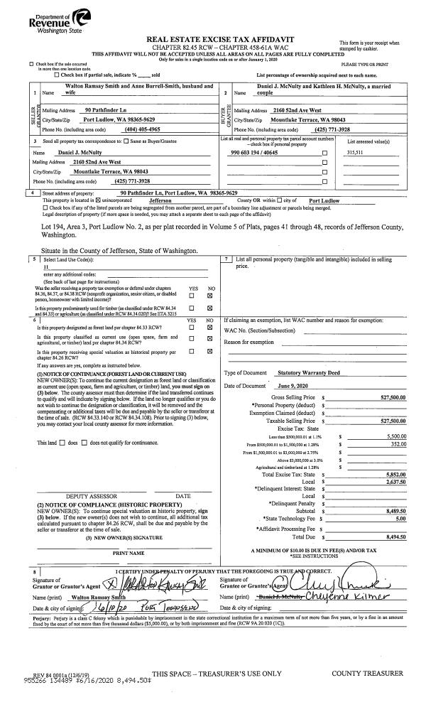
Deed and Sales History
| 1 | 06/09/2020 | SWD | Statutory Warranty Deed | WALTON R SMITH | DANIEL J & KATHLEEN H MCNULTY | | | $527,500.00 | 134489 | |
| 2 | 05/03/2012 | SWD | Statutory Warranty Deed | JACKLING, RICHARD/SANDRA | SMITH, WALTON RAMSAY/ANNE | 0 | 0 | $289,000.00 | 117567 | 0 |
Payout Agreement
| No payout information available.. |