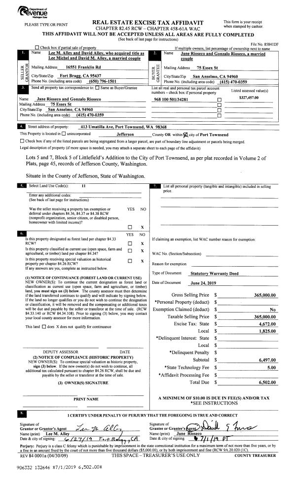
Property
Account |
| Property ID: | 40679 | Abbreviated Legal Description: | PORT LUDLOW NO 2 AREA 3 LOT 228 |
| Parcel # / Geo ID: | 990603228 | Agent Code: | |
| Type: | Real | | |
| Tax Area: | 0213 - 1-49F1E1H2L1 | Land Use Code | 11 |
| Open Space: | N | DFL | N |
| Historic Property: | N | Remodel Property: | N |
| Multi-Family Redevelopment: | N | | |
| Township: | 28N | Section: | 9 |
| Range: | 1E |
Location |
| Address: | 710 PIONEER DR PORT LUDLOW, WA 98365 | Mapsco: | 112/044 |
| Neighborhood: | PORT LUDLOW #2 AREA 3 (SEWER AVAILABLE TO ALL LOTS) | Map ID: | |
| Neighborhood CD: | 3334 |
Owner |
| Name: | JEFFREY & DEBRA STEGIN | Owner ID: | 110338 |
| Mailing Address: | 710 PIONEER DR PORT LUDLOW, WA 98365-9622 | % Ownership: | 100.0000000000% |
| | | Exemptions: | |
Pay Tax Due
Select the appropriate checkbox next to the year to be paid. Multiple years may be selected.
*Convenience Fee not included
Taxes and Assessment Details
Property Tax Information as of
03/10/2026
Click on "Statement Details" to expand or collapse a tax statement.
* Please enter a valid date ** Please enter a valid date *
Statement Details |
| 2026 | 29849 | STATE - STATE LEVY (SCHOOL) | $713.69 | $713.68 | $0.00 | $0.00 | $0.00 | $1427.37 |
| 2026 | 29849 | COUNTY - COUNTY LEVIES (CE, DD, VET, MH) | $285.34 | $285.33 | $0.00 | $0.00 | $0.00 | $570.67 |
| 2026 | 29849 | CONSERVE - CONSERVATION FUTURES | $8.56 | $8.55 | $0.00 | $0.00 | $0.00 | $17.11 |
| 2026 | 29849 | COROADS - COUNTY ROADS (ROADS, DIV TO CE) | $230.18 | $230.18 | $0.00 | $0.00 | $0.00 | $460.36 |
| 2026 | 29849 | PORTPT - PORT DISTRICT | $115.24 | $115.23 | $0.00 | $0.00 | $0.00 | $230.47 |
| 2026 | 29849 | PUD1 - PUD #1 | $18.56 | $18.56 | $0.00 | $0.00 | $0.00 | $37.12 |
| 2026 | 29849 | LIB1 - LIBRARY DIST #1 | $89.06 | $89.05 | $0.00 | $0.00 | $0.00 | $178.11 |
| 2026 | 29849 | HD2 - HOSP DIST #2 | $16.64 | $16.64 | $0.00 | $0.00 | $0.00 | $33.28 |
| 2026 | 29849 | SD49 - SCHOOL DIST #49 | $392.86 | $392.85 | $0.00 | $0.00 | $0.00 | $785.71 |
| 2026 | 29849 | FD1 - FIRE DISTRICT #1 | $377.85 | $377.84 | $0.00 | $0.00 | $0.00 | $755.69 |
| 2026 | 29849 | EMS1 - FIRE DIST #1 EMS | $145.28 | $145.27 | $0.00 | $0.00 | $0.00 | $290.55 |
| 2026 | 29849 | JCCD - JC Conservation District | $2.55 | $2.55 | $0.00 | $0.00 | $0.00 | $5.10 |
| 2026 | 29849 | LUD - PT Ludlow Drainage District | $37.61 | $37.60 | $0.00 | $0.00 | $0.00 | $75.21 |
| 2026 | 29849 | NWA - Noxious Weed Assessment | $2.98 | $2.97 | $0.00 | $0.00 | $0.00 | $5.95 |
| 2026 | 29849 | Drain - DRAINAGE DISTRICT FEE | $0.75 | $0.00 | $0.00 | $0.00 | $0.00 | $0.75 |
| 2026 | 29849 | TOTAL: | $2437.15 | $2436.30 | $0.00 | $0.00 | $0.00 | $4873.45 |
|
| 2026 | 29849 | $2437.15 | $2436.30 | $0.00 | $0.00 | $0.00 | $4873.45 |
Statement Details |
| 2025 | 29921 | STATE - STATE LEVY (SCHOOL) | $744.40 | $744.40 | $0.00 | $0.00 | $1488.80 | $0.00 |
| 2025 | 29921 | COUNTY - COUNTY LEVIES (CE, DD, VET, MH) | $292.74 | $292.71 | $0.00 | $0.00 | $585.45 | $0.00 |
| 2025 | 29921 | CONSERVE - CONSERVATION FUTURES | $8.78 | $8.78 | $0.00 | $0.00 | $17.56 | $0.00 |
| 2025 | 29921 | COROADS - COUNTY ROADS (ROADS, DIV TO CE) | $234.53 | $234.52 | $0.00 | $0.00 | $469.05 | $0.00 |
| 2025 | 29921 | PORTPT - PORT DISTRICT | $119.46 | $119.44 | $0.00 | $0.00 | $238.90 | $0.00 |
| 2025 | 29921 | PUD1 - PUD #1 | $19.16 | $19.15 | $0.00 | $0.00 | $38.31 | $0.00 |
| 2025 | 29921 | LIB1 - LIBRARY DIST #1 | $90.74 | $90.73 | $0.00 | $0.00 | $181.47 | $0.00 |
| 2025 | 29921 | HD2 - HOSP DIST #2 | $17.08 | $17.08 | $0.00 | $0.00 | $34.16 | $0.00 |
| 2025 | 29921 | SD49 - SCHOOL DIST #49 | $398.96 | $398.94 | $0.00 | $0.00 | $797.90 | $0.00 |
| 2025 | 29921 | FD1 - FIRE DISTRICT #1 | $386.29 | $386.29 | $0.00 | $0.00 | $772.58 | $0.00 |
| 2025 | 29921 | EMS1 - FIRE DIST #1 EMS | $148.58 | $148.57 | $0.00 | $0.00 | $297.15 | $0.00 |
| 2025 | 29921 | JCCD - JC Conservation District | $2.55 | $2.55 | $0.00 | $0.00 | $5.10 | $0.00 |
| 2025 | 29921 | LUD - PT Ludlow Drainage District | $30.16 | $30.15 | $0.00 | $0.00 | $60.31 | $0.00 |
| 2025 | 29921 | NWA - Noxious Weed Assessment | $2.15 | $2.15 | $0.00 | $0.00 | $4.30 | $0.00 |
| 2025 | 29921 | Drain - DRAINAGE DISTRICT FEE | $0.60 | $0.00 | $0.00 | $0.00 | $0.60 | $0.00 |
| 2025 | 29921 | TOTAL: | $2496.18 | $2495.46 | $0.00 | $0.00 | $4991.64 | $0.00 |
|
| 2025 | 29921 | $2496.18 | $2495.46 | $0.00 | $0.00 | $4991.64 | $0.00 |
Statement Details |
| 2024 | 29981 | STATE - STATE LEVY (SCHOOL) | $503.54 | $503.53 | $0.00 | $0.00 | $1007.07 | $0.00 |
| 2024 | 29981 | COUNTY - COUNTY LEVIES (CE, DD, VET, MH) | $215.47 | $215.45 | $0.00 | $0.00 | $430.92 | $0.00 |
| 2024 | 29981 | CONSERVE - CONSERVATION FUTURES | $6.46 | $6.46 | $0.00 | $0.00 | $12.92 | $0.00 |
| 2024 | 29981 | COROADS - COUNTY ROADS (ROADS, DIV TO CE) | $173.38 | $173.37 | $0.00 | $0.00 | $346.75 | $0.00 |
| 2024 | 29981 | PORTPT - PORT DISTRICT | $89.00 | $88.99 | $0.00 | $0.00 | $177.99 | $0.00 |
| 2024 | 29981 | PUD1 - PUD #1 | $14.16 | $14.15 | $0.00 | $0.00 | $28.31 | $0.00 |
| 2024 | 29981 | LIB1 - LIBRARY DIST #1 | $67.08 | $67.08 | $0.00 | $0.00 | $134.16 | $0.00 |
| 2024 | 29981 | HD2 - HOSP DIST #2 | $12.57 | $12.57 | $0.00 | $0.00 | $25.14 | $0.00 |
| 2024 | 29981 | SD49 - SCHOOL DIST #49 | $224.86 | $224.85 | $0.00 | $0.00 | $449.71 | $0.00 |
| 2024 | 29981 | FD1 - FIRE DISTRICT #1 | $284.90 | $284.89 | $0.00 | $0.00 | $569.79 | $0.00 |
| 2024 | 29981 | EMS1 - FIRE DIST #1 EMS | $108.82 | $108.82 | $0.00 | $0.00 | $217.64 | $0.00 |
| 2024 | 29981 | JCCD - JC Conservation District | $2.55 | $2.55 | $0.00 | $0.00 | $5.10 | $0.00 |
| 2024 | 29981 | LUD - PT Ludlow Drainage District | $26.48 | $26.48 | $0.00 | $0.00 | $52.96 | $0.00 |
| 2024 | 29981 | NWA - Noxious Weed Assessment | $2.15 | $2.15 | $0.00 | $0.00 | $4.30 | $0.00 |
| 2024 | 29981 | Drain - DRAINAGE DISTRICT FEE | $0.53 | $0.00 | $0.00 | $0.00 | $0.53 | $0.00 |
| 2024 | 29981 | TOTAL: | $1731.95 | $1731.34 | $0.00 | $0.00 | $3463.29 | $0.00 |
|
| 2024 | 29981 | $1731.95 | $1731.34 | $0.00 | $0.00 | $3463.29 | $0.00 |
Statement Details |
| 2023 | 30023 | STATE - STATE LEVY (SCHOOL) | $489.06 | $489.06 | $0.00 | $0.00 | $978.12 | $0.00 |
| 2023 | 30023 | COUNTY - COUNTY LEVIES (CE, DD, VET, MH) | $213.41 | $213.40 | $0.00 | $0.00 | $426.81 | $0.00 |
| 2023 | 30023 | CONSERVE - CONSERVATION FUTURES | $6.40 | $6.40 | $0.00 | $0.00 | $12.80 | $0.00 |
| 2023 | 30023 | COROADS - COUNTY ROADS (ROADS, DIV TO CE) | $172.67 | $172.66 | $0.00 | $0.00 | $345.33 | $0.00 |
| 2023 | 30023 | PORTPT - PORT DISTRICT | $89.90 | $89.90 | $0.00 | $0.00 | $179.80 | $0.00 |
| 2023 | 30023 | PUD1 - PUD #1 | $14.15 | $14.14 | $0.00 | $0.00 | $28.29 | $0.00 |
| 2023 | 30023 | LIB1 - LIBRARY DIST #1 | $66.80 | $66.80 | $0.00 | $0.00 | $133.60 | $0.00 |
| 2023 | 30023 | HD2 - HOSP DIST #2 | $12.46 | $12.45 | $0.00 | $0.00 | $24.91 | $0.00 |
| 2023 | 30023 | SD49 - SCHOOL DIST #49 | $228.61 | $228.61 | $0.00 | $0.00 | $457.22 | $0.00 |
| 2023 | 30023 | FD3 - FIRE DISTRICT #3 | $212.32 | $212.31 | $0.00 | $0.00 | $424.63 | $0.00 |
| 2023 | 30023 | EMS3 - FIRE DIST #3 EMS | $75.91 | $75.90 | $0.00 | $0.00 | $151.81 | $0.00 |
| 2023 | 30023 | JCCD - JC Conservation District | $2.55 | $2.55 | $0.00 | $0.00 | $5.10 | $0.00 |
| 2023 | 30023 | LUD - PT Ludlow Drainage District | $26.65 | $26.65 | $0.00 | $0.00 | $53.30 | $0.00 |
| 2023 | 30023 | NWA - Noxious Weed Assessment | $2.15 | $2.15 | $0.00 | $0.00 | $4.30 | $0.00 |
| 2023 | 30023 | Drain - DRAINAGE DISTRICT FEE | $0.53 | $0.00 | $0.00 | $0.00 | $0.53 | $0.00 |
| 2023 | 30023 | TOTAL: | $1613.57 | $1612.98 | $0.00 | $0.00 | $3226.55 | $0.00 |
|
| 2023 | 30023 | $1613.57 | $1612.98 | $0.00 | $0.00 | $3226.55 | $0.00 |
Values
| (+) Improvement Homesite Value: | + | $500,093 | |
| (+) Improvement Non-Homesite Value: | + | $0 | |
| (+) Land Homesite Value: | + | $120,750 | |
| (+) Land Non-Homesite Value: | + | $0 | |
| (+) Curr Use (HS): | + | $0 | $0 |
| (+) Curr Use (NHS): | + | $0 | $0 |
| | | -------------------------- | |
| (=) Market Value: | = | $620,843 | |
| (–) Productivity Loss: | – | $0 | |
| | | -------------------------- | |
| (=) Subtotal: | = | $620,843 | |
| (+) Senior Appraised Value: | + | $0 | |
| (+) Non-Senior Appraised Value: | + | $620,843 | |
| | | -------------------------- | |
| (=) Total Appraised Value: | = | $620,843 | |
| (–) Senior Exemption Loss: | – | $0 | |
| (–) Exemption Loss: | – | $0 | |
| | | -------------------------- | |
| (=) Taxable Value: | = | $620,843 | |
Taxing Jurisdiction
| Owner: | JEFFREY & DEBRA STEGIN | | |
| % Ownership: | 100.0000000000% | | |
| Total Value: | $620,843 | | |
| Tax Area: | 0213 - 1-49F1E1H2L1 |
| CE | COUNTY CURRENT EXPENSE | 0.9034619479 | $620,843 | $620,843 | $560.91 | | |
| CNTYDD | DEVELOPMENTAL DISABILITIES | 0.0052121823 | $620,843 | $620,843 | $3.24 | | |
| CNTYVET | VETERANS RELIEF | 0.0052777810 | $620,843 | $620,843 | $3.28 | | |
| MENTAL | MENTAL HEALTH | 0.0052121823 | $620,843 | $620,843 | $3.24 | | |
| ROADS | COUNTY ROADS | 0.7415066410 | $620,843 | $620,843 | $460.36 | | |
| ROADSCU | COUNTY ROADS TO CUR EXP | 0.0000000000 | $620,843 | $620,843 | $0.00 | | |
| HOSP2CASH | HOSP DIST #2 GENERAL | 0.0536075306 | $620,843 | $620,843 | $33.28 | | |
| SCH49CP | SCHOOL DIST #49 CAP PROJ | 0.6279093905 | $620,843 | $620,843 | $389.83 | | |
| SCH49MO | SCHOOL DIST #49 EP & O | 0.6376483602 | $620,843 | $620,843 | $395.88 | | |
| CONSERVE | CONSERVATION FUTURES | 0.0275621078 | $620,843 | $620,843 | $17.11 | | |
| EMS1 | FIRE DIST #1 EMS | 0.4679948282 | $620,843 | $620,843 | $290.55 | | |
| FD1 | FIRE DIST #1 GENERAL | 1.2171942929 | $620,843 | $620,843 | $755.69 | | |
| LIB1 | LIBRARY DIST #1 GENERAL | 0.2868827388 | $620,843 | $620,843 | $178.11 | | |
| PORTPT | PORT OF PT GENERAL | 0.1134941229 | $620,843 | $620,843 | $70.46 | | |
| PORTPTIDD | PORT OF PT IDD 2019 | 0.2577346692 | $620,843 | $620,843 | $160.01 | | |
| PUD1 | PUD #1 GENERAL | 0.0597888892 | $620,843 | $620,843 | $37.12 | | |
| STATE | STATE SCHOOL PART 1 | 1.4940692947 | $620,843 | $620,843 | $927.58 | | |
| STATE2 | STATE SCHOOL PART 2 | 0.8050170049 | $620,843 | $620,843 | $499.79 | | |
| | Total Tax Rate: | 7.7095739644 | | | | | |
| | | | | Taxes w/Current Exemptions: | $4,786.44 | | |
| | | | | Taxes w/o Exemptions: | $4,786.44 | | |
Improvement / Building
| Improvement #1: | Residential Bldg | State Code: | 11 | 1816.0 sqft | Value: | $500,093 |
| Bathrooms (#): | 2 (FULL) | Bedrooms (#): | 2 | | Exterior Wall: | SI/ST | Fireplace: | WD ST-GOOD | | Floor Construction: | FRAME | Foundation: | CONPR | | Heating/Cooling: | HPUMP | Inside Verify: | YES-FIX | | Roof Cover: | COMP |   |   |
|
| | Type | Description | Class CD | Sub Class CD | Year Built | Area |
| | MA | Main Area | 5- | 1S | 1991 | 1816.0 |
| | HCPOR | House Concrete Porch | 4 | * | 1991 | 54.0 |
| | HDECK | House Deck | 4 | * | 1991 | 400.0 |
| | GATT | House Attached Garage | 4 | 1S | 1991 | 594.0 |
Sketch
Property Image
Land
| 1 | 3334-1167L | | 0.0000 | 0.00 | 0.00 | 0.00 | 1.00 | $120,750 | $0 |
Roll Value History
| 2026 | N/A | N/A | N/A | N/A | N/A |
| 2025 | $500,093 | $120,750 | $0 | $620,843 | $620,843 |
| 2024 | $500,093 | $120,750 | $0 | $620,843 | $620,843 |
| 2023 | $340,280 | $95,000 | $0 | $435,280 | $435,280 |
| 2022 | $325,486 | $90,000 | $0 | $415,486 | $415,486 |
Deed and Sales History
| 1 | 01/30/2024 | SWD | Statutory Warranty Deed | DANNY L & MOIRA G HEDDY | JEFFREY & DEBRA STEGIN | | | $756,000.00 | 142185 | |
| 2 | 04/10/2019 | SWD | Statutory Warranty Deed | ROBERT M CARTA | DANNY L & MOIRA G HEDDY | | | $289,750.00 | 132182 | |
| 3 | 09/19/2001 | SWD | Statutory Warranty Deed | HITES, H.J./BETTY M | CARTA, ROBERT M/MARGARET L | 0 | 0 | $206,000.00 | 93114 | 0 |
| 4 | 01/11/2000 | SWD | Statutory Warranty Deed | GARD, KENLEY E | HITES, H J/BETTY M | 0 | 0 | $212,500.00 | 88828 | 0 |
Payout Agreement
| No payout information available.. |