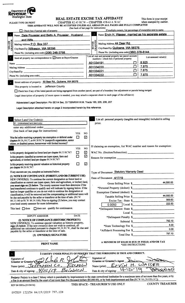
Property
Account |
| Property ID: | 40697 | Abbreviated Legal Description: | PORT LUDLOW NO. 3 LOT 10 |
| Parcel # / Geo ID: | 990700010 | Agent Code: | |
| Type: | Real | | |
| Tax Area: | 0213 - 1-49F1E1H2L1 | Land Use Code | 11 |
| Open Space: | N | DFL | N |
| Historic Property: | N | Remodel Property: | N |
| Multi-Family Redevelopment: | N | | |
| Township: | 28N | Section: | 8 |
| Range: | 1E |
Location |
| Address: | 36 SCHOONER LN PORT LUDLOW, WA 98365 | Mapsco: | 113/010 |
| Neighborhood: | PORT LUDLOW #3 & #4 (ALL) (SEWER AVAILABLE TO ALL LOTS) | Map ID: | |
| Neighborhood CD: | 3335 |
Owner |
| Name: | KIMBERLY A & THIERRY G KOLPIN | Owner ID: | 108149 |
| Mailing Address: | 36 SCHOONER LN PORT LUDLOW, WA 98365-9710 | % Ownership: | 100.0000000000% |
| | | Exemptions: | |
Pay Tax Due
Select the appropriate checkbox next to the year to be paid. Multiple years may be selected.
*Convenience Fee not included
Taxes and Assessment Details
Property Tax Information as of
03/10/2026
Click on "Statement Details" to expand or collapse a tax statement.
* Please enter a valid date ** Please enter a valid date *
Statement Details |
| 2026 | 29867 | STATE - STATE LEVY (SCHOOL) | $746.91 | $746.90 | $0.00 | $0.00 | $0.00 | $1493.81 |
| 2026 | 29867 | COUNTY - COUNTY LEVIES (CE, DD, VET, MH) | $298.63 | $298.60 | $0.00 | $0.00 | $0.00 | $597.23 |
| 2026 | 29867 | CONSERVE - CONSERVATION FUTURES | $8.96 | $8.95 | $0.00 | $0.00 | $0.00 | $17.91 |
| 2026 | 29867 | COROADS - COUNTY ROADS (ROADS, DIV TO CE) | $240.90 | $240.89 | $0.00 | $0.00 | $0.00 | $481.79 |
| 2026 | 29867 | PORTPT - PORT DISTRICT | $120.60 | $120.60 | $0.00 | $0.00 | $0.00 | $241.20 |
| 2026 | 29867 | PUD1 - PUD #1 | $19.43 | $19.42 | $0.00 | $0.00 | $0.00 | $38.85 |
| 2026 | 29867 | LIB1 - LIBRARY DIST #1 | $93.20 | $93.20 | $0.00 | $0.00 | $0.00 | $186.40 |
| 2026 | 29867 | HD2 - HOSP DIST #2 | $17.42 | $17.41 | $0.00 | $0.00 | $0.00 | $34.83 |
| 2026 | 29867 | SD49 - SCHOOL DIST #49 | $411.15 | $411.14 | $0.00 | $0.00 | $0.00 | $822.29 |
| 2026 | 29867 | FD1 - FIRE DISTRICT #1 | $395.43 | $395.43 | $0.00 | $0.00 | $0.00 | $790.86 |
| 2026 | 29867 | EMS1 - FIRE DIST #1 EMS | $152.04 | $152.04 | $0.00 | $0.00 | $0.00 | $304.08 |
| 2026 | 29867 | JCCD - JC Conservation District | $2.55 | $2.55 | $0.00 | $0.00 | $0.00 | $5.10 |
| 2026 | 29867 | LUD - PT Ludlow Drainage District | $37.61 | $37.60 | $0.00 | $0.00 | $0.00 | $75.21 |
| 2026 | 29867 | NWA - Noxious Weed Assessment | $2.98 | $2.97 | $0.00 | $0.00 | $0.00 | $5.95 |
| 2026 | 29867 | Drain - DRAINAGE DISTRICT FEE | $0.75 | $0.00 | $0.00 | $0.00 | $0.00 | $0.75 |
| 2026 | 29867 | TOTAL: | $2548.56 | $2547.70 | $0.00 | $0.00 | $0.00 | $5096.26 |
|
| 2026 | 29867 | $2548.56 | $2547.70 | $0.00 | $0.00 | $0.00 | $5096.26 |
Statement Details |
| 2025 | 29939 | STATE - STATE LEVY (SCHOOL) | $773.36 | $773.35 | $0.00 | $0.00 | $1546.71 | $0.00 |
| 2025 | 29939 | COUNTY - COUNTY LEVIES (CE, DD, VET, MH) | $304.12 | $304.11 | $0.00 | $0.00 | $608.23 | $0.00 |
| 2025 | 29939 | CONSERVE - CONSERVATION FUTURES | $9.12 | $9.12 | $0.00 | $0.00 | $18.24 | $0.00 |
| 2025 | 29939 | COROADS - COUNTY ROADS (ROADS, DIV TO CE) | $243.65 | $243.64 | $0.00 | $0.00 | $487.29 | $0.00 |
| 2025 | 29939 | PORTPT - PORT DISTRICT | $124.10 | $124.09 | $0.00 | $0.00 | $248.19 | $0.00 |
| 2025 | 29939 | PUD1 - PUD #1 | $19.90 | $19.90 | $0.00 | $0.00 | $39.80 | $0.00 |
| 2025 | 29939 | LIB1 - LIBRARY DIST #1 | $94.27 | $94.26 | $0.00 | $0.00 | $188.53 | $0.00 |
| 2025 | 29939 | HD2 - HOSP DIST #2 | $17.75 | $17.74 | $0.00 | $0.00 | $35.49 | $0.00 |
| 2025 | 29939 | SD49 - SCHOOL DIST #49 | $414.47 | $414.47 | $0.00 | $0.00 | $828.94 | $0.00 |
| 2025 | 29939 | FD1 - FIRE DISTRICT #1 | $401.32 | $401.31 | $0.00 | $0.00 | $802.63 | $0.00 |
| 2025 | 29939 | EMS1 - FIRE DIST #1 EMS | $154.36 | $154.35 | $0.00 | $0.00 | $308.71 | $0.00 |
| 2025 | 29939 | JCCD - JC Conservation District | $2.55 | $2.55 | $0.00 | $0.00 | $5.10 | $0.00 |
| 2025 | 29939 | LUD - PT Ludlow Drainage District | $30.16 | $30.15 | $0.00 | $0.00 | $60.31 | $0.00 |
| 2025 | 29939 | NWA - Noxious Weed Assessment | $2.15 | $2.15 | $0.00 | $0.00 | $4.30 | $0.00 |
| 2025 | 29939 | Drain - DRAINAGE DISTRICT FEE | $0.60 | $0.00 | $0.00 | $0.00 | $0.60 | $0.00 |
| 2025 | 29939 | TOTAL: | $2591.88 | $2591.19 | $0.00 | $0.00 | $5183.07 | $0.00 |
|
| 2025 | 29939 | $2591.88 | $2591.19 | $0.00 | $0.00 | $5183.07 | $0.00 |
Statement Details |
| 2024 | 29999 | STATE - STATE LEVY (SCHOOL) | $708.57 | $708.56 | $0.00 | $0.00 | $1417.13 | $0.00 |
| 2024 | 29999 | COUNTY - COUNTY LEVIES (CE, DD, VET, MH) | $303.21 | $303.19 | $0.00 | $0.00 | $606.40 | $0.00 |
| 2024 | 29999 | CONSERVE - CONSERVATION FUTURES | $9.09 | $9.09 | $0.00 | $0.00 | $18.18 | $0.00 |
| 2024 | 29999 | COROADS - COUNTY ROADS (ROADS, DIV TO CE) | $243.98 | $243.97 | $0.00 | $0.00 | $487.95 | $0.00 |
| 2024 | 29999 | PORTPT - PORT DISTRICT | $125.24 | $125.23 | $0.00 | $0.00 | $250.47 | $0.00 |
| 2024 | 29999 | PUD1 - PUD #1 | $19.92 | $19.91 | $0.00 | $0.00 | $39.83 | $0.00 |
| 2024 | 29999 | LIB1 - LIBRARY DIST #1 | $94.40 | $94.39 | $0.00 | $0.00 | $188.79 | $0.00 |
| 2024 | 29999 | HD2 - HOSP DIST #2 | $17.69 | $17.69 | $0.00 | $0.00 | $35.38 | $0.00 |
| 2024 | 29999 | SD49 - SCHOOL DIST #49 | $316.42 | $316.40 | $0.00 | $0.00 | $632.82 | $0.00 |
| 2024 | 29999 | FD1 - FIRE DISTRICT #1 | $400.91 | $400.90 | $0.00 | $0.00 | $801.81 | $0.00 |
| 2024 | 29999 | EMS1 - FIRE DIST #1 EMS | $153.13 | $153.13 | $0.00 | $0.00 | $306.26 | $0.00 |
| 2024 | 29999 | JCCD - JC Conservation District | $2.55 | $2.55 | $0.00 | $0.00 | $5.10 | $0.00 |
| 2024 | 29999 | LUD - PT Ludlow Drainage District | $26.48 | $26.48 | $0.00 | $0.00 | $52.96 | $0.00 |
| 2024 | 29999 | NWA - Noxious Weed Assessment | $2.15 | $2.15 | $0.00 | $0.00 | $4.30 | $0.00 |
| 2024 | 29999 | Drain - DRAINAGE DISTRICT FEE | $0.53 | $0.00 | $0.00 | $0.00 | $0.53 | $0.00 |
| 2024 | 29999 | TOTAL: | $2424.27 | $2423.64 | $0.00 | $0.00 | $4847.91 | $0.00 |
|
| 2024 | 29999 | $2424.27 | $2423.64 | $0.00 | $0.00 | $4847.91 | $0.00 |
Statement Details |
| 2023 | 30041 | STATE - STATE LEVY (SCHOOL) | $688.37 | $688.36 | $0.00 | $0.00 | $1376.73 | $0.00 |
| 2023 | 30041 | COUNTY - COUNTY LEVIES (CE, DD, VET, MH) | $300.40 | $300.36 | $0.00 | $0.00 | $600.76 | $0.00 |
| 2023 | 30041 | CONSERVE - CONSERVATION FUTURES | $9.01 | $9.00 | $0.00 | $0.00 | $18.01 | $0.00 |
| 2023 | 30041 | COROADS - COUNTY ROADS (ROADS, DIV TO CE) | $243.04 | $243.02 | $0.00 | $0.00 | $486.06 | $0.00 |
| 2023 | 30041 | PORTPT - PORT DISTRICT | $126.54 | $126.53 | $0.00 | $0.00 | $253.07 | $0.00 |
| 2023 | 30041 | PUD1 - PUD #1 | $19.91 | $19.91 | $0.00 | $0.00 | $39.82 | $0.00 |
| 2023 | 30041 | LIB1 - LIBRARY DIST #1 | $94.03 | $94.02 | $0.00 | $0.00 | $188.05 | $0.00 |
| 2023 | 30041 | HD2 - HOSP DIST #2 | $17.54 | $17.52 | $0.00 | $0.00 | $35.06 | $0.00 |
| 2023 | 30041 | SD49 - SCHOOL DIST #49 | $321.78 | $321.77 | $0.00 | $0.00 | $643.55 | $0.00 |
| 2023 | 30041 | FD3 - FIRE DISTRICT #3 | $298.84 | $298.83 | $0.00 | $0.00 | $597.67 | $0.00 |
| 2023 | 30041 | EMS3 - FIRE DIST #3 EMS | $106.84 | $106.83 | $0.00 | $0.00 | $213.67 | $0.00 |
| 2023 | 30041 | JCCD - JC Conservation District | $2.55 | $2.55 | $0.00 | $0.00 | $5.10 | $0.00 |
| 2023 | 30041 | LUD - PT Ludlow Drainage District | $26.65 | $26.65 | $0.00 | $0.00 | $53.30 | $0.00 |
| 2023 | 30041 | NWA - Noxious Weed Assessment | $2.15 | $2.15 | $0.00 | $0.00 | $4.30 | $0.00 |
| 2023 | 30041 | Drain - DRAINAGE DISTRICT FEE | $0.53 | $0.00 | $0.00 | $0.00 | $0.53 | $0.00 |
| 2023 | 30041 | TOTAL: | $2258.18 | $2257.50 | $0.00 | $0.00 | $4515.68 | $0.00 |
|
| 2023 | 30041 | $2258.18 | $2257.50 | $0.00 | $0.00 | $4515.68 | $0.00 |
Values
| (+) Improvement Homesite Value: | + | $0 | |
| (+) Improvement Non-Homesite Value: | + | $545,243 | |
| (+) Land Homesite Value: | + | $0 | |
| (+) Land Non-Homesite Value: | + | $104,500 | |
| (+) Curr Use (HS): | + | $0 | $0 |
| (+) Curr Use (NHS): | + | $0 | $0 |
| | | -------------------------- | |
| (=) Market Value: | = | $649,743 | |
| (–) Productivity Loss: | – | $0 | |
| | | -------------------------- | |
| (=) Subtotal: | = | $649,743 | |
| (+) Senior Appraised Value: | + | $0 | |
| (+) Non-Senior Appraised Value: | + | $649,743 | |
| | | -------------------------- | |
| (=) Total Appraised Value: | = | $649,743 | |
| (–) Senior Exemption Loss: | – | $0 | |
| (–) Exemption Loss: | – | $0 | |
| | | -------------------------- | |
| (=) Taxable Value: | = | $649,743 | |
Taxing Jurisdiction
| Owner: | KIMBERLY A & THIERRY G KOLPIN | | |
| % Ownership: | 100.0000000000% | | |
| Total Value: | $649,743 | | |
| Tax Area: | 0213 - 1-49F1E1H2L1 |
| CE | COUNTY CURRENT EXPENSE | 0.9034619479 | $649,743 | $649,743 | $587.02 | | |
| CNTYDD | DEVELOPMENTAL DISABILITIES | 0.0052121823 | $649,743 | $649,743 | $3.39 | | |
| CNTYVET | VETERANS RELIEF | 0.0052777810 | $649,743 | $649,743 | $3.43 | | |
| MENTAL | MENTAL HEALTH | 0.0052121823 | $649,743 | $649,743 | $3.39 | | |
| ROADS | COUNTY ROADS | 0.7415066410 | $649,743 | $649,743 | $481.79 | | |
| ROADSCU | COUNTY ROADS TO CUR EXP | 0.0000000000 | $649,743 | $649,743 | $0.00 | | |
| HOSP2CASH | HOSP DIST #2 GENERAL | 0.0536075306 | $649,743 | $649,743 | $34.83 | | |
| SCH49CP | SCHOOL DIST #49 CAP PROJ | 0.6279093905 | $649,743 | $649,743 | $407.98 | | |
| SCH49MO | SCHOOL DIST #49 EP & O | 0.6376483602 | $649,743 | $649,743 | $414.31 | | |
| CONSERVE | CONSERVATION FUTURES | 0.0275621078 | $649,743 | $649,743 | $17.91 | | |
| EMS1 | FIRE DIST #1 EMS | 0.4679948282 | $649,743 | $649,743 | $304.08 | | |
| FD1 | FIRE DIST #1 GENERAL | 1.2171942929 | $649,743 | $649,743 | $790.86 | | |
| LIB1 | LIBRARY DIST #1 GENERAL | 0.2868827388 | $649,743 | $649,743 | $186.40 | | |
| PORTPT | PORT OF PT GENERAL | 0.1134941229 | $649,743 | $649,743 | $73.74 | | |
| PORTPTIDD | PORT OF PT IDD 2019 | 0.2577346692 | $649,743 | $649,743 | $167.46 | | |
| PUD1 | PUD #1 GENERAL | 0.0597888892 | $649,743 | $649,743 | $38.85 | | |
| STATE | STATE SCHOOL PART 1 | 1.4940692947 | $649,743 | $649,743 | $970.76 | | |
| STATE2 | STATE SCHOOL PART 2 | 0.8050170049 | $649,743 | $649,743 | $523.05 | | |
| | Total Tax Rate: | 7.7095739644 | | | | | |
| | | | | Taxes w/Current Exemptions: | $5,009.25 | | |
| | | | | Taxes w/o Exemptions: | $5,009.25 | | |
Improvement / Building
| Improvement #1: | Residential Bldg | State Code: | 11 | 2136.0 sqft | Value: | $545,243 |
| Bathrooms (#): | 2 (FULL) | Bedrooms (#): | 3 | | Exterior Wall: | SI/ST | Fireplace: | SIN 1-GOOD | | Foundation: | CONPR | Heating/Cooling: | HPUMP | | Roof Cover: | COMP |   |   |
|
| | Type | Description | Class CD | Sub Class CD | Year Built | Area |
| | MA | Main Area | 4 | 1S | 2016 | 2136.0 |
| | GATT | House Attached Garage | 4 | 1S | 2016 | 558.0 |
| | HWPOR | House Wood Porch | 3 | 1S | 2016 | 233.0 |
Sketch
Property Image
Land
| 1 | 3335-1185L | | 0.0000 | 0.00 | 0.00 | 0.00 | 1.00 | $104,500 | $0 |
Roll Value History
| 2026 | N/A | N/A | N/A | N/A | N/A |
| 2025 | $545,243 | $104,500 | $0 | $649,743 | $649,743 |
| 2024 | $545,243 | $99,750 | $0 | $644,993 | $644,993 |
| 2023 | $522,524 | $90,000 | $0 | $612,524 | $612,524 |
| 2022 | $499,806 | $85,000 | $0 | $584,806 | $584,806 |
Deed and Sales History
| 1 | 12/07/2022 | SWD | Statutory Warranty Deed | BAHRUM MEHR | KIMBERLY A & THIERRY G KOLPIN | | | $695,000.00 | 140306 | |
| 2 | 02/11/2020 | SWD | Statutory Warranty Deed | TRAVIS J MCELFRESH | BAHRUM MEHR | | | $495,000.00 | 134084 | |
| 3 | 03/18/2019 | SWD | Statutory Warranty Deed | CASSANDRA & SHAUN JOHNSON | TRAVIS J MCELFRESH | | | $468,000.00 | 131990 | |
| 4 | 12/03/2015 | SWD | Statutory Warranty Deed | RAYMOND F AMMETER | CASSANDRA & SHAUN JOHNSON | | | $18,000.00 | 124497 | |
| 5 | 11/04/2010 | SWD | Statutory Warranty Deed | AMMETER, ROBERT R | AMMETER, RAYMOND/REBECCA | 0 | 0 | $45,000.00 | 115146 | 0 |
| 6 | 12/15/2005 | SWD | Statutory Warranty Deed | C & M DEVELOPMENT INC | AMMETER, ROBERT R | 0 | 0 | $61,500.00 | 105626 | 0 |
| 7 | 09/23/2005 | SWD | Statutory Warranty Deed | GRIGGS, STEVEN & ROBYN | C & M DEVELOPMENT | 0 | 0 | $25,000.00 | 104959 | 0 |
| 8 | 09/05/2001 | QCD | Quit Claim Deed | GRIGGS, STEVEN T, GRIGGS- | GRIGGS, STEVEN T, GRIGGS-ORBAN | 0 | 0 | $0.00 | 93249 | 0 |
Payout Agreement
| No payout information available.. |