Property
Account |
| Property ID: | 40750 | Abbreviated Legal Description: | PORT LUDLOW NO. 3 LOT 63 |
| Parcel # / Geo ID: | 990700063 | Agent Code: | |
| Type: | Real | | |
| Tax Area: | 0213 - 1-49F1E1H2L1 | Land Use Code | 11 |
| Open Space: | N | DFL | N |
| Historic Property: | N | Remodel Property: | N |
| Multi-Family Redevelopment: | N | | |
| Township: | 28N | Section: | 17 |
| Range: | 1E |
Location |
| Address: | 672 RAINIER LN PORT LUDLOW, WA 98365 | Mapsco: | 114/019 |
| Neighborhood: | PORT LUDLOW #3 & #4 (ALL) (SEWER AVAILABLE TO ALL LOTS) | Map ID: | |
| Neighborhood CD: | 3335 |
Owner |
| Name: | VERNON & JANICE ROSBACH | Owner ID: | 103631 |
| Mailing Address: | 672 RAINIER LN PORT LUDLOW, WA 98365-9775 | % Ownership: | 100.0000000000% |
| | | Exemptions: | |
Pay Tax Due
Select the appropriate checkbox next to the year to be paid. Multiple years may be selected.
*Convenience Fee not included
Taxes and Assessment Details
Property Tax Information as of
03/12/2026
Click on "Statement Details" to expand or collapse a tax statement.
* Please enter a valid date ** Please enter a valid date *
Statement Details |
| 2026 | 29920 | STATE - STATE LEVY (SCHOOL) | $865.78 | $865.78 | $0.00 | $0.00 | $0.00 | $1731.56 |
| 2026 | 29920 | COUNTY - COUNTY LEVIES (CE, DD, VET, MH) | $346.15 | $346.12 | $0.00 | $0.00 | $0.00 | $692.27 |
| 2026 | 29920 | CONSERVE - CONSERVATION FUTURES | $10.38 | $10.38 | $0.00 | $0.00 | $0.00 | $20.76 |
| 2026 | 29920 | COROADS - COUNTY ROADS (ROADS, DIV TO CE) | $279.24 | $279.23 | $0.00 | $0.00 | $0.00 | $558.47 |
| 2026 | 29920 | PORTPT - PORT DISTRICT | $139.80 | $139.79 | $0.00 | $0.00 | $0.00 | $279.59 |
| 2026 | 29920 | PUD1 - PUD #1 | $22.52 | $22.51 | $0.00 | $0.00 | $0.00 | $45.03 |
| 2026 | 29920 | LIB1 - LIBRARY DIST #1 | $108.04 | $108.03 | $0.00 | $0.00 | $0.00 | $216.07 |
| 2026 | 29920 | HD2 - HOSP DIST #2 | $20.19 | $20.18 | $0.00 | $0.00 | $0.00 | $40.37 |
| 2026 | 29920 | SD49 - SCHOOL DIST #49 | $476.59 | $476.57 | $0.00 | $0.00 | $0.00 | $953.16 |
| 2026 | 29920 | FD1 - FIRE DISTRICT #1 | $458.37 | $458.36 | $0.00 | $0.00 | $0.00 | $916.73 |
| 2026 | 29920 | EMS1 - FIRE DIST #1 EMS | $176.24 | $176.23 | $0.00 | $0.00 | $0.00 | $352.47 |
| 2026 | 29920 | JCCD - JC Conservation District | $2.55 | $2.55 | $0.00 | $0.00 | $0.00 | $5.10 |
| 2026 | 29920 | LUD - PT Ludlow Drainage District | $39.19 | $39.18 | $0.00 | $0.00 | $0.00 | $78.37 |
| 2026 | 29920 | NWA - Noxious Weed Assessment | $2.98 | $2.97 | $0.00 | $0.00 | $0.00 | $5.95 |
| 2026 | 29920 | Drain - DRAINAGE DISTRICT FEE | $0.78 | $0.00 | $0.00 | $0.00 | $0.00 | $0.78 |
| 2026 | 29920 | TOTAL: | $2948.80 | $2947.88 | $0.00 | $0.00 | $0.00 | $5896.68 |
|
| 2026 | 29920 | $2948.80 | $2947.88 | $0.00 | $0.00 | $0.00 | $5896.68 |
Statement Details |
| 2025 | 29992 | STATE - STATE LEVY (SCHOOL) | $896.15 | $896.13 | $0.00 | $0.00 | $1792.28 | $0.00 |
| 2025 | 29992 | COUNTY - COUNTY LEVIES (CE, DD, VET, MH) | $352.42 | $352.39 | $0.00 | $0.00 | $704.81 | $0.00 |
| 2025 | 29992 | CONSERVE - CONSERVATION FUTURES | $10.57 | $10.56 | $0.00 | $0.00 | $21.13 | $0.00 |
| 2025 | 29992 | COROADS - COUNTY ROADS (ROADS, DIV TO CE) | $282.33 | $282.33 | $0.00 | $0.00 | $564.66 | $0.00 |
| 2025 | 29992 | PORTPT - PORT DISTRICT | $143.81 | $143.80 | $0.00 | $0.00 | $287.61 | $0.00 |
| 2025 | 29992 | PUD1 - PUD #1 | $23.06 | $23.06 | $0.00 | $0.00 | $46.12 | $0.00 |
| 2025 | 29992 | LIB1 - LIBRARY DIST #1 | $109.23 | $109.23 | $0.00 | $0.00 | $218.46 | $0.00 |
| 2025 | 29992 | HD2 - HOSP DIST #2 | $20.56 | $20.56 | $0.00 | $0.00 | $41.12 | $0.00 |
| 2025 | 29992 | SD49 - SCHOOL DIST #49 | $480.29 | $480.27 | $0.00 | $0.00 | $960.56 | $0.00 |
| 2025 | 29992 | FD1 - FIRE DISTRICT #1 | $465.04 | $465.03 | $0.00 | $0.00 | $930.07 | $0.00 |
| 2025 | 29992 | EMS1 - FIRE DIST #1 EMS | $178.87 | $178.86 | $0.00 | $0.00 | $357.73 | $0.00 |
| 2025 | 29992 | JCCD - JC Conservation District | $2.55 | $2.55 | $0.00 | $0.00 | $5.10 | $0.00 |
| 2025 | 29992 | LUD - PT Ludlow Drainage District | $31.42 | $31.42 | $0.00 | $0.00 | $62.84 | $0.00 |
| 2025 | 29992 | NWA - Noxious Weed Assessment | $2.15 | $2.15 | $0.00 | $0.00 | $4.30 | $0.00 |
| 2025 | 29992 | Drain - DRAINAGE DISTRICT FEE | $0.63 | $0.00 | $0.00 | $0.00 | $0.63 | $0.00 |
| 2025 | 29992 | TOTAL: | $2999.08 | $2998.34 | $0.00 | $0.00 | $5997.42 | $0.00 |
|
| 2025 | 29992 | $2999.08 | $2998.34 | $0.00 | $0.00 | $5997.42 | $0.00 |
Statement Details |
| 2024 | 30052 | STATE - STATE LEVY (SCHOOL) | $821.96 | $821.94 | $0.00 | $0.00 | $1643.90 | $0.00 |
| 2024 | 30052 | COUNTY - COUNTY LEVIES (CE, DD, VET, MH) | $351.73 | $351.71 | $0.00 | $0.00 | $703.44 | $0.00 |
| 2024 | 30052 | CONSERVE - CONSERVATION FUTURES | $10.55 | $10.54 | $0.00 | $0.00 | $21.09 | $0.00 |
| 2024 | 30052 | COROADS - COUNTY ROADS (ROADS, DIV TO CE) | $283.02 | $283.01 | $0.00 | $0.00 | $566.03 | $0.00 |
| 2024 | 30052 | PORTPT - PORT DISTRICT | $145.28 | $145.27 | $0.00 | $0.00 | $290.55 | $0.00 |
| 2024 | 30052 | PUD1 - PUD #1 | $23.10 | $23.10 | $0.00 | $0.00 | $46.20 | $0.00 |
| 2024 | 30052 | LIB1 - LIBRARY DIST #1 | $109.50 | $109.49 | $0.00 | $0.00 | $218.99 | $0.00 |
| 2024 | 30052 | HD2 - HOSP DIST #2 | $20.52 | $20.52 | $0.00 | $0.00 | $41.04 | $0.00 |
| 2024 | 30052 | SD49 - SCHOOL DIST #49 | $367.05 | $367.03 | $0.00 | $0.00 | $734.08 | $0.00 |
| 2024 | 30052 | FD1 - FIRE DISTRICT #1 | $465.06 | $465.06 | $0.00 | $0.00 | $930.12 | $0.00 |
| 2024 | 30052 | EMS1 - FIRE DIST #1 EMS | $177.64 | $177.63 | $0.00 | $0.00 | $355.27 | $0.00 |
| 2024 | 30052 | JCCD - JC Conservation District | $2.55 | $2.55 | $0.00 | $0.00 | $5.10 | $0.00 |
| 2024 | 30052 | LUD - PT Ludlow Drainage District | $27.59 | $27.58 | $0.00 | $0.00 | $55.17 | $0.00 |
| 2024 | 30052 | NWA - Noxious Weed Assessment | $2.15 | $2.15 | $0.00 | $0.00 | $4.30 | $0.00 |
| 2024 | 30052 | Drain - DRAINAGE DISTRICT FEE | $0.55 | $0.00 | $0.00 | $0.00 | $0.55 | $0.00 |
| 2024 | 30052 | TOTAL: | $2808.25 | $2807.58 | $0.00 | $0.00 | $5615.83 | $0.00 |
|
| 2024 | 30052 | $2808.25 | $2807.58 | $0.00 | $0.00 | $5615.83 | $0.00 |
Statement Details |
| 2023 | 30094 | STATE - STATE LEVY (SCHOOL) | $799.75 | $799.73 | $0.00 | $0.00 | $1599.48 | $0.00 |
| 2023 | 30094 | COUNTY - COUNTY LEVIES (CE, DD, VET, MH) | $348.99 | $348.97 | $0.00 | $0.00 | $697.96 | $0.00 |
| 2023 | 30094 | CONSERVE - CONSERVATION FUTURES | $10.47 | $10.46 | $0.00 | $0.00 | $20.93 | $0.00 |
| 2023 | 30094 | COROADS - COUNTY ROADS (ROADS, DIV TO CE) | $282.36 | $282.35 | $0.00 | $0.00 | $564.71 | $0.00 |
| 2023 | 30094 | PORTPT - PORT DISTRICT | $147.01 | $147.01 | $0.00 | $0.00 | $294.02 | $0.00 |
| 2023 | 30094 | PUD1 - PUD #1 | $23.14 | $23.13 | $0.00 | $0.00 | $46.27 | $0.00 |
| 2023 | 30094 | LIB1 - LIBRARY DIST #1 | $109.24 | $109.24 | $0.00 | $0.00 | $218.48 | $0.00 |
| 2023 | 30094 | HD2 - HOSP DIST #2 | $20.37 | $20.36 | $0.00 | $0.00 | $40.73 | $0.00 |
| 2023 | 30094 | SD49 - SCHOOL DIST #49 | $373.84 | $373.83 | $0.00 | $0.00 | $747.67 | $0.00 |
| 2023 | 30094 | FD3 - FIRE DISTRICT #3 | $347.19 | $347.19 | $0.00 | $0.00 | $694.38 | $0.00 |
| 2023 | 30094 | EMS3 - FIRE DIST #3 EMS | $124.12 | $124.12 | $0.00 | $0.00 | $248.24 | $0.00 |
| 2023 | 30094 | JCCD - JC Conservation District | $2.55 | $2.55 | $0.00 | $0.00 | $5.10 | $0.00 |
| 2023 | 30094 | LUD - PT Ludlow Drainage District | $27.76 | $27.75 | $0.00 | $0.00 | $55.51 | $0.00 |
| 2023 | 30094 | NWA - Noxious Weed Assessment | $2.15 | $2.15 | $0.00 | $0.00 | $4.30 | $0.00 |
| 2023 | 30094 | Drain - DRAINAGE DISTRICT FEE | $0.56 | $0.00 | $0.00 | $0.00 | $0.56 | $0.00 |
| 2023 | 30094 | TOTAL: | $2619.50 | $2618.84 | $0.00 | $0.00 | $5238.34 | $0.00 |
|
| 2023 | 30094 | $2619.50 | $2618.84 | $0.00 | $0.00 | $5238.34 | $0.00 |
Values
| (+) Improvement Homesite Value: | + | $0 | |
| (+) Improvement Non-Homesite Value: | + | $626,651 | |
| (+) Land Homesite Value: | + | $0 | |
| (+) Land Non-Homesite Value: | + | $126,500 | |
| (+) Curr Use (HS): | + | $0 | $0 |
| (+) Curr Use (NHS): | + | $0 | $0 |
| | | -------------------------- | |
| (=) Market Value: | = | $753,151 | |
| (–) Productivity Loss: | – | $0 | |
| | | -------------------------- | |
| (=) Subtotal: | = | $753,151 | |
| (+) Senior Appraised Value: | + | $0 | |
| (+) Non-Senior Appraised Value: | + | $753,151 | |
| | | -------------------------- | |
| (=) Total Appraised Value: | = | $753,151 | |
| (–) Senior Exemption Loss: | – | $0 | |
| (–) Exemption Loss: | – | $0 | |
| | | -------------------------- | |
| (=) Taxable Value: | = | $753,151 | |
Taxing Jurisdiction
| Owner: | VERNON & JANICE ROSBACH | | |
| % Ownership: | 100.0000000000% | | |
| Total Value: | $753,151 | | |
| Tax Area: | 0213 - 1-49F1E1H2L1 |
| CE | COUNTY CURRENT EXPENSE | 0.9034619479 | $753,151 | $753,151 | $680.44 | | |
| CNTYDD | DEVELOPMENTAL DISABILITIES | 0.0052121823 | $753,151 | $753,151 | $3.93 | | |
| CNTYVET | VETERANS RELIEF | 0.0052777810 | $753,151 | $753,151 | $3.97 | | |
| MENTAL | MENTAL HEALTH | 0.0052121823 | $753,151 | $753,151 | $3.93 | | |
| ROADS | COUNTY ROADS | 0.7415066410 | $753,151 | $753,151 | $558.47 | | |
| ROADSCU | COUNTY ROADS TO CUR EXP | 0.0000000000 | $753,151 | $753,151 | $0.00 | | |
| HOSP2CASH | HOSP DIST #2 GENERAL | 0.0536075306 | $753,151 | $753,151 | $40.37 | | |
| SCH49CP | SCHOOL DIST #49 CAP PROJ | 0.6279093905 | $753,151 | $753,151 | $472.91 | | |
| SCH49MO | SCHOOL DIST #49 EP & O | 0.6376483602 | $753,151 | $753,151 | $480.25 | | |
| CONSERVE | CONSERVATION FUTURES | 0.0275621078 | $753,151 | $753,151 | $20.76 | | |
| EMS1 | FIRE DIST #1 EMS | 0.4679948282 | $753,151 | $753,151 | $352.47 | | |
| FD1 | FIRE DIST #1 GENERAL | 1.2171942929 | $753,151 | $753,151 | $916.73 | | |
| LIB1 | LIBRARY DIST #1 GENERAL | 0.2868827388 | $753,151 | $753,151 | $216.07 | | |
| PORTPT | PORT OF PT GENERAL | 0.1134941229 | $753,151 | $753,151 | $85.48 | | |
| PORTPTIDD | PORT OF PT IDD 2019 | 0.2577346692 | $753,151 | $753,151 | $194.11 | | |
| PUD1 | PUD #1 GENERAL | 0.0597888892 | $753,151 | $753,151 | $45.03 | | |
| STATE | STATE SCHOOL PART 1 | 1.4940692947 | $753,151 | $753,151 | $1,125.26 | | |
| STATE2 | STATE SCHOOL PART 2 | 0.8050170049 | $753,151 | $753,151 | $606.30 | | |
| | Total Tax Rate: | 7.7095739644 | | | | | |
| | | | | Taxes w/Current Exemptions: | $5,806.48 | | |
| | | | | Taxes w/o Exemptions: | $5,806.48 | | |
Improvement / Building
| Improvement #1: | Residential Bldg | State Code: | 11 | 2474.0 sqft | Value: | $626,651 |
| Bathrooms (#): | 3 (FULL) | Bedrooms (#): | 3 | | Exterior Wall: | SI/ST | Fireplace: | SIN 1-GOOD | | Floor Construction: | FRAME | Foundation: | CONPR | | Heating/Cooling: | HPUMP | Inside Verify: | YES-FIX | | Roof Cover: | COMP |   |   |
|
| | Type | Description | Class CD | Sub Class CD | Year Built | Area |
| | MA | Main Area | 5- | 2S | 2005 | 1290.0 |
| | MA2 | Second Floor Main Area | 5- | 2S | 2005 | 1184.0 |
| | PATIO | House Patio | 4 | * | 2005 | 110.0 |
| | HWPOR | House Wood Porch | 4 | * | 2005 | 24.0 |
| | GATT | House Attached Garage | 4 | 2S | 2005 | 697.0 |
| | CONCD | Concrete Drive | 4 | * | 2005 | 1134.0 |
Sketch
Property Image
Land
| 1 | 3335-1167L | | 0.0000 | 0.00 | 0.00 | 0.00 | 1.00 | $126,500 | $0 |
Roll Value History
| 2026 | N/A | N/A | N/A | N/A | N/A |
| 2025 | $626,651 | $126,500 | $0 | $753,151 | $753,151 |
| 2024 | $626,651 | $120,750 | $0 | $747,401 | $747,401 |
| 2023 | $600,540 | $110,000 | $0 | $710,540 | $710,540 |
| 2022 | $574,430 | $105,000 | $0 | $679,430 | $679,430 |
Deed and Sales History
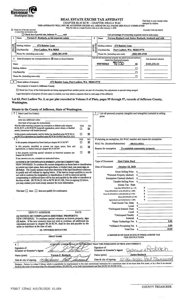
| 1 | 10/23/2020 | QCD | Quit Claim Deed | VERNON F ROSBACH | VERNON & JANICE ROSBACH | | | | 135462 | |
| 2 | 03/01/2011 | SWD | Statutory Warranty Deed | RODEN, CHARLES/NELSON, JA | ROSBACH, VERNON F | 0 | 0 | $363,000.00 | 115689 | 0 |
| 3 | 10/11/2004 | SWD | Statutory Warranty Deed | MOHR, ALLEN W/SHIZUYO I | RODEN, CHARLES | 0 | 0 | $45,000.00 | 101706 | 0 |
| 4 | 01/11/1994 | SWD | Statutory Warranty Deed | CARTER, ROBERT/URSULA | MOHR, ALLEN W/SHIZUYO I | 0 | 0 | $55,000.00 | 73248 | 0 |
Payout Agreement
| No payout information available.. |