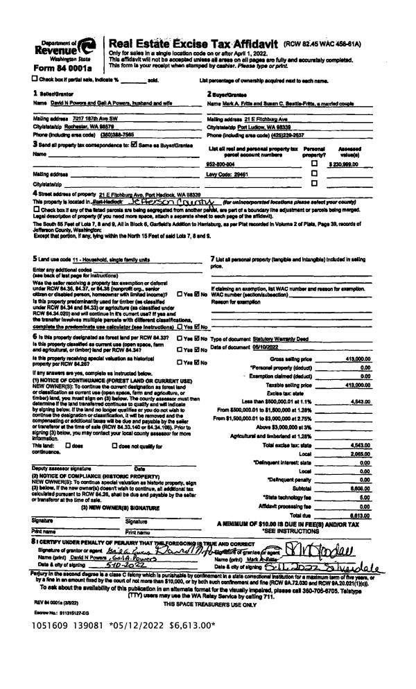
Property
Account |
| Property ID: | 40770 | Abbreviated Legal Description: | PORT LUDLOW NO. 3 LOT 83 |
| Parcel # / Geo ID: | 990700083 | Agent Code: | |
| Type: | Real | | |
| Tax Area: | 0213 - 1-49F1E1H2L1 | Land Use Code | 11 |
| Open Space: | N | DFL | N |
| Historic Property: | N | Remodel Property: | N |
| Multi-Family Redevelopment: | N | | |
| Township: | 28N | Section: | 8 |
| Range: | 1E |
Location |
| Address: | 13 YAWL LN PORT LUDLOW, WA 98365 | Mapsco: | 114/039 |
| Neighborhood: | PORT LUDLOW #3 & #4 (ALL) (SEWER AVAILABLE TO ALL LOTS) | Map ID: | |
| Neighborhood CD: | 3335 |
Owner |
| Name: | LABELLE TRUST | Owner ID: | 20293 |
| Mailing Address: | KATHLEEN LABELLE TRUSTEE 13 YAWL LN PORT LUDLOW, WA 98365-9712 | % Ownership: | 100.0000000000% |
| | | Exemptions: | SNR/DSBL |
Pay Tax Due
Select the appropriate checkbox next to the year to be paid. Multiple years may be selected.
*Convenience Fee not included
Taxes and Assessment Details
Property Tax Information as of
03/11/2026
Click on "Statement Details" to expand or collapse a tax statement.
* Please enter a valid date ** Please enter a valid date *
Statement Details |
| 2026 | 29940 | STATE - STATE LEVY (SCHOOL) | $198.42 | $198.42 | $0.00 | $0.00 | $0.00 | $396.84 |
| 2026 | 29940 | COUNTY - COUNTY LEVIES (CE, DD, VET, MH) | $122.07 | $122.06 | $0.00 | $0.00 | $0.00 | $244.13 |
| 2026 | 29940 | CONSERVE - CONSERVATION FUTURES | $3.66 | $3.66 | $0.00 | $0.00 | $0.00 | $7.32 |
| 2026 | 29940 | COROADS - COUNTY ROADS (ROADS, DIV TO CE) | $98.48 | $98.47 | $0.00 | $0.00 | $0.00 | $196.95 |
| 2026 | 29940 | PORTPT - PORT DISTRICT | $49.30 | $49.30 | $0.00 | $0.00 | $0.00 | $98.60 |
| 2026 | 29940 | PUD1 - PUD #1 | $7.94 | $7.94 | $0.00 | $0.00 | $0.00 | $15.88 |
| 2026 | 29940 | LIB1 - LIBRARY DIST #1 | $38.10 | $38.10 | $0.00 | $0.00 | $0.00 | $76.20 |
| 2026 | 29940 | HD2 - HOSP DIST #2 | $7.12 | $7.12 | $0.00 | $0.00 | $0.00 | $14.24 |
| 2026 | 29940 | SD49 - SCHOOL DIST #49 | $0.00 | $0.00 | $0.00 | $0.00 | $0.00 | $0.00 |
| 2026 | 29940 | FD1 - FIRE DISTRICT #1 | $161.65 | $161.65 | $0.00 | $0.00 | $0.00 | $323.30 |
| 2026 | 29940 | EMS1 - FIRE DIST #1 EMS | $62.15 | $62.15 | $0.00 | $0.00 | $0.00 | $124.30 |
| 2026 | 29940 | LUD - PT Ludlow Drainage District | $40.37 | $40.37 | $0.00 | $0.00 | $0.00 | $80.74 |
| 2026 | 29940 | Drain - DRAINAGE DISTRICT FEE | $0.81 | $0.00 | $0.00 | $0.00 | $0.00 | $0.81 |
| 2026 | 29940 | TOTAL: | $790.07 | $789.24 | $0.00 | $0.00 | $0.00 | $1579.31 |
|
| 2026 | 29940 | $790.07 | $789.24 | $0.00 | $0.00 | $0.00 | $1579.31 |
Statement Details |
| 2025 | 30012 | STATE - STATE LEVY (SCHOOL) | $207.04 | $207.03 | $0.00 | $0.00 | $414.07 | $0.00 |
| 2025 | 30012 | COUNTY - COUNTY LEVIES (CE, DD, VET, MH) | $125.24 | $125.23 | $0.00 | $0.00 | $250.47 | $0.00 |
| 2025 | 30012 | CONSERVE - CONSERVATION FUTURES | $3.76 | $3.75 | $0.00 | $0.00 | $7.51 | $0.00 |
| 2025 | 30012 | COROADS - COUNTY ROADS (ROADS, DIV TO CE) | $100.34 | $100.33 | $0.00 | $0.00 | $200.67 | $0.00 |
| 2025 | 30012 | PORTPT - PORT DISTRICT | $51.11 | $51.10 | $0.00 | $0.00 | $102.21 | $0.00 |
| 2025 | 30012 | PUD1 - PUD #1 | $8.20 | $8.19 | $0.00 | $0.00 | $16.39 | $0.00 |
| 2025 | 30012 | LIB1 - LIBRARY DIST #1 | $38.82 | $38.82 | $0.00 | $0.00 | $77.64 | $0.00 |
| 2025 | 30012 | HD2 - HOSP DIST #2 | $7.31 | $7.30 | $0.00 | $0.00 | $14.61 | $0.00 |
| 2025 | 30012 | SD49 - SCHOOL DIST #49 | $0.00 | $0.00 | $0.00 | $0.00 | $0.00 | $0.00 |
| 2025 | 30012 | FD1 - FIRE DISTRICT #1 | $165.26 | $165.26 | $0.00 | $0.00 | $330.52 | $0.00 |
| 2025 | 30012 | EMS1 - FIRE DIST #1 EMS | $63.57 | $63.56 | $0.00 | $0.00 | $127.13 | $0.00 |
| 2025 | 30012 | LUD - PT Ludlow Drainage District | $32.37 | $32.36 | $0.00 | $0.00 | $64.73 | $0.00 |
| 2025 | 30012 | Drain - DRAINAGE DISTRICT FEE | $0.65 | $0.00 | $0.00 | $0.00 | $0.65 | $0.00 |
| 2025 | 30012 | TOTAL: | $803.67 | $802.93 | $0.00 | $0.00 | $1606.60 | $0.00 |
|
| 2025 | 30012 | $803.67 | $802.93 | $0.00 | $0.00 | $1606.60 | $0.00 |
Statement Details |
| 2024 | 30072 | STATE - STATE LEVY (SCHOOL) | $199.98 | $199.98 | $0.00 | $0.00 | $399.96 | $0.00 |
| 2024 | 30072 | COUNTY - COUNTY LEVIES (CE, DD, VET, MH) | $131.47 | $131.47 | $0.00 | $0.00 | $262.94 | $0.00 |
| 2024 | 30072 | CONSERVE - CONSERVATION FUTURES | $3.95 | $3.94 | $0.00 | $0.00 | $7.89 | $0.00 |
| 2024 | 30072 | COROADS - COUNTY ROADS (ROADS, DIV TO CE) | $105.80 | $105.79 | $0.00 | $0.00 | $211.59 | $0.00 |
| 2024 | 30072 | PORTPT - PORT DISTRICT | $54.31 | $54.30 | $0.00 | $0.00 | $108.61 | $0.00 |
| 2024 | 30072 | PUD1 - PUD #1 | $8.64 | $8.63 | $0.00 | $0.00 | $17.27 | $0.00 |
| 2024 | 30072 | LIB1 - LIBRARY DIST #1 | $40.93 | $40.93 | $0.00 | $0.00 | $81.86 | $0.00 |
| 2024 | 30072 | HD2 - HOSP DIST #2 | $7.67 | $7.67 | $0.00 | $0.00 | $15.34 | $0.00 |
| 2024 | 30072 | SD49 - SCHOOL DIST #49 | $0.00 | $0.00 | $0.00 | $0.00 | $0.00 | $0.00 |
| 2024 | 30072 | FD1 - FIRE DISTRICT #1 | $173.85 | $173.84 | $0.00 | $0.00 | $347.69 | $0.00 |
| 2024 | 30072 | EMS1 - FIRE DIST #1 EMS | $66.40 | $66.40 | $0.00 | $0.00 | $132.80 | $0.00 |
| 2024 | 30072 | LUD - PT Ludlow Drainage District | $28.42 | $28.41 | $0.00 | $0.00 | $56.83 | $0.00 |
| 2024 | 30072 | Drain - DRAINAGE DISTRICT FEE | $0.57 | $0.00 | $0.00 | $0.00 | $0.57 | $0.00 |
| 2024 | 30072 | TOTAL: | $821.99 | $821.36 | $0.00 | $0.00 | $1643.35 | $0.00 |
|
| 2024 | 30072 | $821.99 | $821.36 | $0.00 | $0.00 | $1643.35 | $0.00 |
Statement Details |
| 2023 | 30114 | STATE - STATE LEVY (SCHOOL) | $203.69 | $203.69 | $0.00 | $0.00 | $407.38 | $0.00 |
| 2023 | 30114 | COUNTY - COUNTY LEVIES (CE, DD, VET, MH) | $136.45 | $136.41 | $0.00 | $0.00 | $272.86 | $0.00 |
| 2023 | 30114 | CONSERVE - CONSERVATION FUTURES | $4.09 | $4.09 | $0.00 | $0.00 | $8.18 | $0.00 |
| 2023 | 30114 | COROADS - COUNTY ROADS (ROADS, DIV TO CE) | $110.39 | $110.37 | $0.00 | $0.00 | $220.76 | $0.00 |
| 2023 | 30114 | PORTPT - PORT DISTRICT | $57.48 | $57.46 | $0.00 | $0.00 | $114.94 | $0.00 |
| 2023 | 30114 | PUD1 - PUD #1 | $9.05 | $9.04 | $0.00 | $0.00 | $18.09 | $0.00 |
| 2023 | 30114 | LIB1 - LIBRARY DIST #1 | $42.71 | $42.70 | $0.00 | $0.00 | $85.41 | $0.00 |
| 2023 | 30114 | HD2 - HOSP DIST #2 | $7.96 | $7.96 | $0.00 | $0.00 | $15.92 | $0.00 |
| 2023 | 30114 | SD49 - SCHOOL DIST #49 | $0.00 | $0.00 | $0.00 | $0.00 | $0.00 | $0.00 |
| 2023 | 30114 | FD3 - FIRE DISTRICT #3 | $135.73 | $135.72 | $0.00 | $0.00 | $271.45 | $0.00 |
| 2023 | 30114 | EMS3 - FIRE DIST #3 EMS | $48.52 | $48.52 | $0.00 | $0.00 | $97.04 | $0.00 |
| 2023 | 30114 | LUD - PT Ludlow Drainage District | $28.59 | $28.58 | $0.00 | $0.00 | $57.17 | $0.00 |
| 2023 | 30114 | Drain - DRAINAGE DISTRICT FEE | $0.57 | $0.00 | $0.00 | $0.00 | $0.57 | $0.00 |
| 2023 | 30114 | TOTAL: | $785.23 | $784.54 | $0.00 | $0.00 | $1569.77 | $0.00 |
|
| 2023 | 30114 | $785.23 | $784.54 | $0.00 | $0.00 | $1569.77 | $0.00 |
Values
| (+) Improvement Homesite Value: | + | $279,851 | |
| (+) Improvement Non-Homesite Value: | + | $0 | |
| (+) Land Homesite Value: | + | $104,500 | |
| (+) Land Non-Homesite Value: | + | $0 | |
| (+) Curr Use (HS): | + | $0 | $0 |
| (+) Curr Use (NHS): | + | $0 | $0 |
| | | -------------------------- | |
| (=) Market Value: | = | $384,351 | |
| (–) Productivity Loss: | – | $0 | |
| | | -------------------------- | |
| (=) Subtotal: | = | $384,351 | |
| (+) Senior Appraised Value: | + | $335,608 | |
| (+) Non-Senior Appraised Value: | + | $0 | |
| | | -------------------------- | |
| (=) Total Appraised Value: | = | $335,608 | |
| (–) Senior Exemption Loss: | – | $70,000 | |
| (–) Exemption Loss: | – | $0 | |
| | | -------------------------- | |
| (=) Taxable Value: | = | $265,608 | |
Taxing Jurisdiction
| Owner: | LABELLE TRUST | | |
| % Ownership: | 100.0000000000% | | |
| Total Value: | $384,351 | | |
| Tax Area: | 0213 - 1-49F1E1H2L1 |
| CE | COUNTY CURRENT EXPENSE | 0.9034619479 | $384,351 | $265,608 | $239.97 | | |
| CNTYDD | DEVELOPMENTAL DISABILITIES | 0.0052121823 | $384,351 | $265,608 | $1.38 | | |
| CNTYVET | VETERANS RELIEF | 0.0052777810 | $384,351 | $265,608 | $1.40 | | |
| MENTAL | MENTAL HEALTH | 0.0052121823 | $384,351 | $265,608 | $1.38 | | |
| ROADS | COUNTY ROADS | 0.7415066410 | $384,351 | $265,608 | $196.95 | | |
| ROADSCU | COUNTY ROADS TO CUR EXP | 0.0000000000 | $384,351 | $265,608 | $0.00 | | |
| HOSP2CASH | HOSP DIST #2 GENERAL | 0.0536075306 | $384,351 | $265,608 | $14.24 | | |
| SCH49CP | SCHOOL DIST #49 CAP PROJ | 0.0000000000 | $384,351 | $0 | $0.00 | | |
| SCH49MO | SCHOOL DIST #49 EP & O | 0.0000000000 | $384,351 | $0 | $0.00 | | |
| CONSERVE | CONSERVATION FUTURES | 0.0275621078 | $384,351 | $265,608 | $7.32 | | |
| EMS1 | FIRE DIST #1 EMS | 0.4679948282 | $384,351 | $265,608 | $124.30 | | |
| FD1 | FIRE DIST #1 GENERAL | 1.2171942929 | $384,351 | $265,608 | $323.30 | | |
| LIB1 | LIBRARY DIST #1 GENERAL | 0.2868827388 | $384,351 | $265,608 | $76.20 | | |
| PORTPT | PORT OF PT GENERAL | 0.1134941229 | $384,351 | $265,608 | $30.14 | | |
| PORTPTIDD | PORT OF PT IDD 2019 | 0.2577346692 | $384,351 | $265,608 | $68.46 | | |
| PUD1 | PUD #1 GENERAL | 0.0597888892 | $384,351 | $265,608 | $15.88 | | |
| STATE | STATE SCHOOL PART 1 | 1.4940692947 | $384,351 | $265,608 | $396.84 | | |
| STATE2 | STATE SCHOOL PART 2 | 0.0000000000 | $384,351 | $0 | $0.00 | | |
| | Total Tax Rate: | 5.6389992088 | | | | | |
| | | | | Taxes w/Current Exemptions: | $1,497.76 | | |
| | | | | Taxes w/o Exemptions: | $2,963.17 | | |
Improvement / Building
| Improvement #1: | Residential Bldg | State Code: | 11 | 1259.0 sqft | Value: | $279,851 |
| Bathrooms (#): | 2 (FULL) | Bedrooms (#): | 3 | | Exterior Wall: | SI/ST | Fireplace: | WD ST-GOOD | | Floor Construction: | FRAME | Foundation: | CONPR | | Heating/Cooling: | HPUMP | Inside Verify: | YES-FIX | | Roof Cover: | COMP |   |   |
|
| | Type | Description | Class CD | Sub Class CD | Year Built | Area |
| | MA | Main Area | 4 | 1S | 1994 | 1259.0 |
| | PATIO | House Patio | 4 | * | 1994 | 264.0 |
| | HCPOR | House Concrete Porch | 4 | * | 1994 | 15.0 |
| | GATT | House Attached Garage | 3 | 1S | 1994 | 460.0 |
| | CONCD | Concrete Drive | 4 | * | 1994 | 900.0 |
Sketch
Property Image
Land
| 1 | 3335-1185L | | 0.0000 | 0.00 | 0.00 | 0.00 | 1.00 | $104,500 | $0 |
Roll Value History
| 2026 | N/A | N/A | N/A | N/A | N/A |
| 2025 | $279,851 | $104,500 | $0 | $384,351 | $265,608 |
| 2024 | $279,851 | $99,750 | $0 | $379,601 | $265,608 |
| 2023 | $268,190 | $90,000 | $0 | $358,190 | $265,608 |
| 2022 | $256,530 | $85,000 | $0 | $341,530 | $265,608 |
Deed and Sales History
| 1 | 09/03/2020 | QCD | Quit Claim Deed | | | | | | 135105 | |
| 2 | 07/20/2012 | SWD | Statutory Warranty Deed | VELLA, JEFFREY | LA BELLE, KATHLEEN TRUSTEE OF | 0 | 0 | $170,000.00 | 117821 | 0 |
| 3 | 09/15/2004 | SWD | Statutory Warranty Deed | PERRY, STEPHEN M | VELLA, JEFFREY | 0 | 0 | $180,000.00 | 101464 | 0 |
| 4 | 09/11/2004 | QCD | Quit Claim Deed | VELLA, SYLVIA | VELLA, JEFFREY | 0 | 0 | $0.00 | 101465 | 0 |
| 5 | 05/28/2002 | SWD | Statutory Warranty Deed | GEORGE T VRABLE | STEPHEN M PERRY | 0 | 0 | $127,900.00 | 94753 | 0 |
| 6 | 05/28/2002 | QCD | Quit Claim Deed | THERESA A PERRY | STEPHEN M PERRY | 0 | 0 | $0.00 | 94754 | 0 |
| 7 | 10/06/1993 | SWD | Statutory Warranty Deed | CRANE CREEK LAND COMPANY | VRABLE, GEORGE T/MARY THERESA | 0 | 0 | $20,000.00 | 72364 | 0 |
| 8 | 04/09/1993 | SWD | Statutory Warranty Deed | FREEMAN, ROBERT F/BARBARA | CRANE CREEK LAND COMPANY INC | 0 | 0 | $17,650.00 | 70944 | 0 |
Payout Agreement
| No payout information available.. |