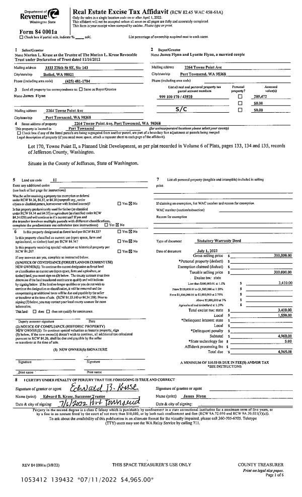
Property
Account |
| Property ID: | 40774 | Abbreviated Legal Description: | PORT LUDLOW NO. 3 LOT 87 |
| Parcel # / Geo ID: | 990700087 | Agent Code: | |
| Type: | Real | | |
| Tax Area: | 0213 - 1-49F1E1H2L1 | Land Use Code | 11 |
| Open Space: | N | DFL | N |
| Historic Property: | N | Remodel Property: | N |
| Multi-Family Redevelopment: | N | | |
| Township: | 28N | Section: | 8 |
| Range: | 1E |
Location |
| Address: | 12 YAWL LN PORT LUDLOW, WA 98365 | Mapsco: | 114/043 |
| Neighborhood: | PORT LUDLOW #3 & #4 (ALL) (SEWER AVAILABLE TO ALL LOTS) | Map ID: | |
| Neighborhood CD: | 3335 |
Owner |
| Name: | ELISABETH R MCKELVY | Owner ID: | 108614 |
| Mailing Address: | PO BOX 1241 WINTHROP, WA 98862-1219 | % Ownership: | 100.0000000000% |
| | | Exemptions: | |
Pay Tax Due
Select the appropriate checkbox next to the year to be paid. Multiple years may be selected.
*Convenience Fee not included
Taxes and Assessment Details
Property Tax Information as of
03/10/2026
Click on "Statement Details" to expand or collapse a tax statement.
* Please enter a valid date ** Please enter a valid date *
Statement Details |
| 2026 | 29944 | STATE - STATE LEVY (SCHOOL) | $500.05 | $500.03 | $0.00 | $0.00 | $0.00 | $1000.08 |
| 2026 | 29944 | COUNTY - COUNTY LEVIES (CE, DD, VET, MH) | $199.93 | $199.91 | $0.00 | $0.00 | $0.00 | $399.84 |
| 2026 | 29944 | CONSERVE - CONSERVATION FUTURES | $6.00 | $5.99 | $0.00 | $0.00 | $0.00 | $11.99 |
| 2026 | 29944 | COROADS - COUNTY ROADS (ROADS, DIV TO CE) | $161.28 | $161.27 | $0.00 | $0.00 | $0.00 | $322.55 |
| 2026 | 29944 | PORTPT - PORT DISTRICT | $80.75 | $80.73 | $0.00 | $0.00 | $0.00 | $161.48 |
| 2026 | 29944 | PUD1 - PUD #1 | $13.01 | $13.00 | $0.00 | $0.00 | $0.00 | $26.01 |
| 2026 | 29944 | LIB1 - LIBRARY DIST #1 | $62.40 | $62.39 | $0.00 | $0.00 | $0.00 | $124.79 |
| 2026 | 29944 | HD2 - HOSP DIST #2 | $11.66 | $11.66 | $0.00 | $0.00 | $0.00 | $23.32 |
| 2026 | 29944 | SD49 - SCHOOL DIST #49 | $275.26 | $275.24 | $0.00 | $0.00 | $0.00 | $550.50 |
| 2026 | 29944 | FD1 - FIRE DISTRICT #1 | $264.74 | $264.73 | $0.00 | $0.00 | $0.00 | $529.47 |
| 2026 | 29944 | EMS1 - FIRE DIST #1 EMS | $101.79 | $101.78 | $0.00 | $0.00 | $0.00 | $203.57 |
| 2026 | 29944 | JCCD - JC Conservation District | $2.55 | $2.55 | $0.00 | $0.00 | $0.00 | $5.10 |
| 2026 | 29944 | LUD - PT Ludlow Drainage District | $38.00 | $38.00 | $0.00 | $0.00 | $0.00 | $76.00 |
| 2026 | 29944 | NWA - Noxious Weed Assessment | $2.98 | $2.97 | $0.00 | $0.00 | $0.00 | $5.95 |
| 2026 | 29944 | Drain - DRAINAGE DISTRICT FEE | $0.76 | $0.00 | $0.00 | $0.00 | $0.00 | $0.76 |
| 2026 | 29944 | TOTAL: | $1721.16 | $1720.25 | $0.00 | $0.00 | $0.00 | $3441.41 |
|
| 2026 | 29944 | $1721.16 | $1720.25 | $0.00 | $0.00 | $0.00 | $3441.41 |
Statement Details |
| 2025 | 30016 | STATE - STATE LEVY (SCHOOL) | $515.87 | $515.86 | $0.00 | $0.00 | $1031.73 | $0.00 |
| 2025 | 30016 | COUNTY - COUNTY LEVIES (CE, DD, VET, MH) | $202.86 | $202.86 | $0.00 | $0.00 | $405.72 | $0.00 |
| 2025 | 30016 | CONSERVE - CONSERVATION FUTURES | $6.09 | $6.08 | $0.00 | $0.00 | $12.17 | $0.00 |
| 2025 | 30016 | COROADS - COUNTY ROADS (ROADS, DIV TO CE) | $162.53 | $162.52 | $0.00 | $0.00 | $325.05 | $0.00 |
| 2025 | 30016 | PORTPT - PORT DISTRICT | $82.78 | $82.78 | $0.00 | $0.00 | $165.56 | $0.00 |
| 2025 | 30016 | PUD1 - PUD #1 | $13.28 | $13.27 | $0.00 | $0.00 | $26.55 | $0.00 |
| 2025 | 30016 | LIB1 - LIBRARY DIST #1 | $62.88 | $62.88 | $0.00 | $0.00 | $125.76 | $0.00 |
| 2025 | 30016 | HD2 - HOSP DIST #2 | $11.84 | $11.83 | $0.00 | $0.00 | $23.67 | $0.00 |
| 2025 | 30016 | SD49 - SCHOOL DIST #49 | $276.48 | $276.46 | $0.00 | $0.00 | $552.94 | $0.00 |
| 2025 | 30016 | FD1 - FIRE DISTRICT #1 | $267.70 | $267.69 | $0.00 | $0.00 | $535.39 | $0.00 |
| 2025 | 30016 | EMS1 - FIRE DIST #1 EMS | $102.97 | $102.96 | $0.00 | $0.00 | $205.93 | $0.00 |
| 2025 | 30016 | JCCD - JC Conservation District | $2.55 | $2.55 | $0.00 | $0.00 | $5.10 | $0.00 |
| 2025 | 30016 | LUD - PT Ludlow Drainage District | $30.47 | $30.47 | $0.00 | $0.00 | $60.94 | $0.00 |
| 2025 | 30016 | NWA - Noxious Weed Assessment | $2.15 | $2.15 | $0.00 | $0.00 | $4.30 | $0.00 |
| 2025 | 30016 | Drain - DRAINAGE DISTRICT FEE | $0.61 | $0.00 | $0.00 | $0.00 | $0.61 | $0.00 |
| 2025 | 30016 | TOTAL: | $1741.06 | $1740.36 | $0.00 | $0.00 | $3481.42 | $0.00 |
|
| 2025 | 30016 | $1741.06 | $1740.36 | $0.00 | $0.00 | $3481.42 | $0.00 |
Statement Details |
| 2024 | 30076 | STATE - STATE LEVY (SCHOOL) | $470.50 | $470.49 | $0.00 | $0.00 | $940.99 | $0.00 |
| 2024 | 30076 | COUNTY - COUNTY LEVIES (CE, DD, VET, MH) | $201.34 | $201.31 | $0.00 | $0.00 | $402.65 | $0.00 |
| 2024 | 30076 | CONSERVE - CONSERVATION FUTURES | $6.04 | $6.03 | $0.00 | $0.00 | $12.07 | $0.00 |
| 2024 | 30076 | COROADS - COUNTY ROADS (ROADS, DIV TO CE) | $162.01 | $162.00 | $0.00 | $0.00 | $324.01 | $0.00 |
| 2024 | 30076 | PORTPT - PORT DISTRICT | $83.16 | $83.16 | $0.00 | $0.00 | $166.32 | $0.00 |
| 2024 | 30076 | PUD1 - PUD #1 | $13.23 | $13.22 | $0.00 | $0.00 | $26.45 | $0.00 |
| 2024 | 30076 | LIB1 - LIBRARY DIST #1 | $62.68 | $62.67 | $0.00 | $0.00 | $125.35 | $0.00 |
| 2024 | 30076 | HD2 - HOSP DIST #2 | $11.75 | $11.74 | $0.00 | $0.00 | $23.49 | $0.00 |
| 2024 | 30076 | SD49 - SCHOOL DIST #49 | $210.11 | $210.09 | $0.00 | $0.00 | $420.20 | $0.00 |
| 2024 | 30076 | FD1 - FIRE DISTRICT #1 | $266.21 | $266.20 | $0.00 | $0.00 | $532.41 | $0.00 |
| 2024 | 30076 | EMS1 - FIRE DIST #1 EMS | $101.68 | $101.68 | $0.00 | $0.00 | $203.36 | $0.00 |
| 2024 | 30076 | JCCD - JC Conservation District | $2.55 | $2.55 | $0.00 | $0.00 | $5.10 | $0.00 |
| 2024 | 30076 | LUD - PT Ludlow Drainage District | $26.76 | $26.75 | $0.00 | $0.00 | $53.51 | $0.00 |
| 2024 | 30076 | NWA - Noxious Weed Assessment | $2.15 | $2.15 | $0.00 | $0.00 | $4.30 | $0.00 |
| 2024 | 30076 | Drain - DRAINAGE DISTRICT FEE | $0.54 | $0.00 | $0.00 | $0.00 | $0.54 | $0.00 |
| 2024 | 30076 | TOTAL: | $1620.71 | $1620.04 | $0.00 | $0.00 | $3240.75 | $0.00 |
|
| 2024 | 30076 | $1620.71 | $1620.04 | $0.00 | $0.00 | $3240.75 | $0.00 |
Statement Details |
| 2023 | 30118 | STATE - STATE LEVY (SCHOOL) | $456.66 | $456.64 | $0.00 | $0.00 | $913.30 | $0.00 |
| 2023 | 30118 | COUNTY - COUNTY LEVIES (CE, DD, VET, MH) | $199.27 | $199.26 | $0.00 | $0.00 | $398.53 | $0.00 |
| 2023 | 30118 | CONSERVE - CONSERVATION FUTURES | $5.98 | $5.97 | $0.00 | $0.00 | $11.95 | $0.00 |
| 2023 | 30118 | COROADS - COUNTY ROADS (ROADS, DIV TO CE) | $161.23 | $161.21 | $0.00 | $0.00 | $322.44 | $0.00 |
| 2023 | 30118 | PORTPT - PORT DISTRICT | $83.95 | $83.94 | $0.00 | $0.00 | $167.89 | $0.00 |
| 2023 | 30118 | PUD1 - PUD #1 | $13.21 | $13.21 | $0.00 | $0.00 | $26.42 | $0.00 |
| 2023 | 30118 | LIB1 - LIBRARY DIST #1 | $62.38 | $62.37 | $0.00 | $0.00 | $124.75 | $0.00 |
| 2023 | 30118 | HD2 - HOSP DIST #2 | $11.64 | $11.62 | $0.00 | $0.00 | $23.26 | $0.00 |
| 2023 | 30118 | SD49 - SCHOOL DIST #49 | $213.47 | $213.45 | $0.00 | $0.00 | $426.92 | $0.00 |
| 2023 | 30118 | FD3 - FIRE DISTRICT #3 | $198.25 | $198.24 | $0.00 | $0.00 | $396.49 | $0.00 |
| 2023 | 30118 | EMS3 - FIRE DIST #3 EMS | $70.87 | $70.87 | $0.00 | $0.00 | $141.74 | $0.00 |
| 2023 | 30118 | JCCD - JC Conservation District | $2.55 | $2.55 | $0.00 | $0.00 | $5.10 | $0.00 |
| 2023 | 30118 | LUD - PT Ludlow Drainage District | $26.93 | $26.92 | $0.00 | $0.00 | $53.85 | $0.00 |
| 2023 | 30118 | NWA - Noxious Weed Assessment | $2.15 | $2.15 | $0.00 | $0.00 | $4.30 | $0.00 |
| 2023 | 30118 | Drain - DRAINAGE DISTRICT FEE | $0.54 | $0.00 | $0.00 | $0.00 | $0.54 | $0.00 |
| 2023 | 30118 | TOTAL: | $1509.08 | $1508.40 | $0.00 | $0.00 | $3017.48 | $0.00 |
|
| 2023 | 30118 | $1509.08 | $1508.40 | $0.00 | $0.00 | $3017.48 | $0.00 |
Values
| (+) Improvement Homesite Value: | + | $0 | |
| (+) Improvement Non-Homesite Value: | + | $330,490 | |
| (+) Land Homesite Value: | + | $0 | |
| (+) Land Non-Homesite Value: | + | $104,500 | |
| (+) Curr Use (HS): | + | $0 | $0 |
| (+) Curr Use (NHS): | + | $0 | $0 |
| | | -------------------------- | |
| (=) Market Value: | = | $434,990 | |
| (–) Productivity Loss: | – | $0 | |
| | | -------------------------- | |
| (=) Subtotal: | = | $434,990 | |
| (+) Senior Appraised Value: | + | $0 | |
| (+) Non-Senior Appraised Value: | + | $434,990 | |
| | | -------------------------- | |
| (=) Total Appraised Value: | = | $434,990 | |
| (–) Senior Exemption Loss: | – | $0 | |
| (–) Exemption Loss: | – | $0 | |
| | | -------------------------- | |
| (=) Taxable Value: | = | $434,990 | |
Taxing Jurisdiction
| Owner: | ELISABETH R MCKELVY | | |
| % Ownership: | 100.0000000000% | | |
| Total Value: | $434,990 | | |
| Tax Area: | 0213 - 1-49F1E1H2L1 |
| CE | COUNTY CURRENT EXPENSE | 0.9034619479 | $434,990 | $434,990 | $393.00 | | |
| CNTYDD | DEVELOPMENTAL DISABILITIES | 0.0052121823 | $434,990 | $434,990 | $2.27 | | |
| CNTYVET | VETERANS RELIEF | 0.0052777810 | $434,990 | $434,990 | $2.30 | | |
| MENTAL | MENTAL HEALTH | 0.0052121823 | $434,990 | $434,990 | $2.27 | | |
| ROADS | COUNTY ROADS | 0.7415066410 | $434,990 | $434,990 | $322.55 | | |
| ROADSCU | COUNTY ROADS TO CUR EXP | 0.0000000000 | $434,990 | $434,990 | $0.00 | | |
| HOSP2CASH | HOSP DIST #2 GENERAL | 0.0536075306 | $434,990 | $434,990 | $23.32 | | |
| SCH49CP | SCHOOL DIST #49 CAP PROJ | 0.6279093905 | $434,990 | $434,990 | $273.13 | | |
| SCH49MO | SCHOOL DIST #49 EP & O | 0.6376483602 | $434,990 | $434,990 | $277.37 | | |
| CONSERVE | CONSERVATION FUTURES | 0.0275621078 | $434,990 | $434,990 | $11.99 | | |
| EMS1 | FIRE DIST #1 EMS | 0.4679948282 | $434,990 | $434,990 | $203.57 | | |
| FD1 | FIRE DIST #1 GENERAL | 1.2171942929 | $434,990 | $434,990 | $529.47 | | |
| LIB1 | LIBRARY DIST #1 GENERAL | 0.2868827388 | $434,990 | $434,990 | $124.79 | | |
| PORTPT | PORT OF PT GENERAL | 0.1134941229 | $434,990 | $434,990 | $49.37 | | |
| PORTPTIDD | PORT OF PT IDD 2019 | 0.2577346692 | $434,990 | $434,990 | $112.11 | | |
| PUD1 | PUD #1 GENERAL | 0.0597888892 | $434,990 | $434,990 | $26.01 | | |
| STATE | STATE SCHOOL PART 1 | 1.4940692947 | $434,990 | $434,990 | $649.91 | | |
| STATE2 | STATE SCHOOL PART 2 | 0.8050170049 | $434,990 | $434,990 | $350.17 | | |
| | Total Tax Rate: | 7.7095739644 | | | | | |
| | | | | Taxes w/Current Exemptions: | $3,353.60 | | |
| | | | | Taxes w/o Exemptions: | $3,353.60 | | |
Improvement / Building
| Improvement #1: | Residential Bldg | State Code: | 11 | 1467.0 sqft | Value: | $330,490 |
| Bathrooms (#): | 2 (FULL) | Bedrooms (#): | 3 | | Exterior Wall: | SI/ST | Fireplace: | PROPS-GOOD | | Floor Construction: | FRAME | Foundation: | CONPR | | Heating/Cooling: | F/A | Inside Verify: | YES-FIX | | Roof Cover: | COMP |   |   |
|
| | Type | Description | Class CD | Sub Class CD | Year Built | Area |
| | MA | Main Area | 4- | 1S | 2005 | 1467.0 |
| | HWPOR | House Wood Porch | 3 | * | 2005 | 146.0 |
| | HDECK | House Deck | 3 | * | 2005 | 192.0 |
| | GATT | House Attached Garage | 3 | 1S | 2005 | 624.0 |
| | CONCD | Concrete Drive | 3 | * | 2005 | 697.0 |
Sketch
Property Image
Land
| 1 | 3335-1185L | | 0.0000 | 0.00 | 0.00 | 0.00 | 1.00 | $104,500 | $0 |
Roll Value History
| 2026 | N/A | N/A | N/A | N/A | N/A |
| 2025 | $330,490 | $104,500 | $0 | $434,990 | $434,990 |
| 2024 | $330,490 | $99,750 | $0 | $430,240 | $430,240 |
| 2023 | $316,719 | $90,000 | $0 | $406,719 | $406,719 |
| 2022 | $302,949 | $85,000 | $0 | $387,949 | $387,949 |
Deed and Sales History
| 1 | 04/03/2023 | SWD | Statutory Warranty Deed | ANNE M FANGMAN | ELISABETH R MCKELVY | | | $499,000.00 | 140709 | |
| 2 | 05/18/2005 | SWD | Statutory Warranty Deed | HAROLD MOE CONSTRUCTION | FANGMAN, ANNE M | | | $217,500.00 | 103582 | 0 |
| 3 | 08/16/2004 | SWD | Statutory Warranty Deed | SHAFFER, BLAINE P/RAMONA | HAROLD MOE CONSTRUCTION | 0 | 0 | $14,500.00 | 101193 | 0 |
| 4 | 05/07/2001 | SWD | Statutory Warranty Deed | MILLER, AGNES ELOISE TRUS | SHAFFER, BLAINE P/RAMONA D | 0 | 0 | $14,000.00 | 92150 | 0 |
| 5 | 03/31/1993 | QCD | Quit Claim Deed | MILLER, RICHARD G/A ELOIS | MILLER, RICHARD/A ELOISE TRUST | 0 | 0 | $0.00 | 70776 | 0 |
Payout Agreement
| No payout information available.. |