Property
Account |
| Property ID: | 41620 | Abbreviated Legal Description: | PORT LUDLOW #5 LOT 9 |
| Parcel # / Geo ID: | 990900009 | Agent Code: | |
| Type: | Real | | |
| Tax Area: | 0213 - 1-49F1E1H2L1 | Land Use Code | 91 |
| Open Space: | N | DFL | N |
| Historic Property: | N | Remodel Property: | N |
| Multi-Family Redevelopment: | N | | |
| Township: | 28N | Section: | 9 |
| Range: | 1E |
Location |
| Address: | | Mapsco: | 117/009 |
| Neighborhood: | PORT LUDLOW #1 AREA 2; P L #2 AREA 1; P L #5 (ALL) | Map ID: | |
| Neighborhood CD: | 3331 |
Owner |
| Name: | VALERIE SCOTT LIVING TRUST | Owner ID: | 98061 |
| Mailing Address: | VALERIE SCOTT TRUSTEE 201 MONTGOMERY CT PORT LUDLOW, WA 98365-9665 | % Ownership: | 100.0000000000% |
| | | Exemptions: | |
Pay Tax Due
There is currently No Amount Due on this property.
Taxes and Assessment Details
Property Tax Information as of
03/12/2026
Click on "Statement Details" to expand or collapse a tax statement.
* Please enter a valid date ** Please enter a valid date *
Statement Details |
| | TOTAL: | $0.00 | $0.00 | $0.00 | $0.00 | $0.00 | $0.00 |
|
| | $0.00 | $0.00 | $0.00 | $0.00 | $0.00 | $0.00 |
Values
| (+) Improvement Homesite Value: | + | $0 | |
| (+) Improvement Non-Homesite Value: | + | $0 | |
| (+) Land Homesite Value: | + | $0 | |
| (+) Land Non-Homesite Value: | + | $44,000 | |
| (+) Curr Use (HS): | + | $0 | $0 |
| (+) Curr Use (NHS): | + | $0 | $0 |
| | | -------------------------- | |
| (=) Market Value: | = | $44,000 | |
| (–) Productivity Loss: | – | $0 | |
| | | -------------------------- | |
| (=) Subtotal: | = | $44,000 | |
| (+) Senior Appraised Value: | + | $0 | |
| (+) Non-Senior Appraised Value: | + | $44,000 | |
| | | -------------------------- | |
| (=) Total Appraised Value: | = | $44,000 | |
| (–) Senior Exemption Loss: | – | $0 | |
| (–) Exemption Loss: | – | $0 | |
| | | -------------------------- | |
| (=) Taxable Value: | = | $44,000 | |
Taxing Jurisdiction
| Owner: | VALERIE SCOTT LIVING TRUST | | |
| % Ownership: | 100.0000000000% | | |
| Total Value: | $44,000 | | |
| Tax Area: | 0213 - 1-49F1E1H2L1 |
| CE | COUNTY CURRENT EXPENSE | 0.9034619479 | $44,000 | $44,000 | $39.75 | | |
| CNTYDD | DEVELOPMENTAL DISABILITIES | 0.0052121823 | $44,000 | $44,000 | $0.23 | | |
| CNTYVET | VETERANS RELIEF | 0.0052777810 | $44,000 | $44,000 | $0.23 | | |
| MENTAL | MENTAL HEALTH | 0.0052121823 | $44,000 | $44,000 | $0.23 | | |
| ROADS | COUNTY ROADS | 0.7415066410 | $44,000 | $44,000 | $32.63 | | |
| ROADSCU | COUNTY ROADS TO CUR EXP | 0.0000000000 | $44,000 | $44,000 | $0.00 | | |
| HOSP2CASH | HOSP DIST #2 GENERAL | 0.0536075306 | $44,000 | $44,000 | $2.36 | | |
| SCH49CP | SCHOOL DIST #49 CAP PROJ | 0.6279093905 | $44,000 | $44,000 | $27.63 | | |
| SCH49MO | SCHOOL DIST #49 EP & O | 0.6376483602 | $44,000 | $44,000 | $28.06 | | |
| CONSERVE | CONSERVATION FUTURES | 0.0275621078 | $44,000 | $44,000 | $1.21 | | |
| EMS1 | FIRE DIST #1 EMS | 0.4679948282 | $44,000 | $44,000 | $20.59 | | |
| FD1 | FIRE DIST #1 GENERAL | 1.2171942929 | $44,000 | $44,000 | $53.56 | | |
| LIB1 | LIBRARY DIST #1 GENERAL | 0.2868827388 | $44,000 | $44,000 | $12.62 | | |
| PORTPT | PORT OF PT GENERAL | 0.1134941229 | $44,000 | $44,000 | $4.99 | | |
| PORTPTIDD | PORT OF PT IDD 2019 | 0.2577346692 | $44,000 | $44,000 | $11.34 | | |
| PUD1 | PUD #1 GENERAL | 0.0597888892 | $44,000 | $44,000 | $2.63 | | |
| STATE | STATE SCHOOL PART 1 | 1.4940692947 | $44,000 | $44,000 | $65.74 | | |
| STATE2 | STATE SCHOOL PART 2 | 0.8050170049 | $44,000 | $44,000 | $35.42 | | |
| | Total Tax Rate: | 7.7095739644 | | | | | |
| | | | | Taxes w/Current Exemptions: | $339.22 | | |
| | | | | Taxes w/o Exemptions: | $339.22 | | |
Improvement / Building
Sketch
| No sketches available for this property. |
Property Image
Land
| 1 | 3331-1167L | Filtered or Potential Water View Lots | 0.0000 | 0.00 | 0.00 | 0.00 | 1.00 | $44,000 | $0 |
Roll Value History
| 2026 | N/A | N/A | N/A | N/A | N/A |
| 2025 | $0 | $44,000 | $0 | $44,000 | $44,000 |
| 2024 | $0 | $44,000 | $0 | $44,000 | $44,000 |
| 2023 | $0 | $40,000 | $0 | $40,000 | $40,000 |
| 2022 | $0 | $40,000 | $0 | $40,000 | $40,000 |
Deed and Sales History
| 1 | 09/22/2017 | SWD | Statutory Warranty Deed | MICHAEL T & VICKI L BARKER | VALERIE SCOTT LIVING TRUST | | | $410,000.00 | 128759 | |
|   | |
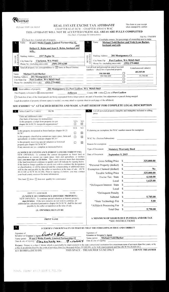
| 2 | 09/09/2015 | SWD | Statutory Warranty Deed | DELBERT E & JEAN E ROHN | MICHAEL T & VICKI L BARKER | | | $325,000.00 | 123987 | |
|   | |
| 3 | 12/14/2012 | SWD | Statutory Warranty Deed | MELINDA J MORGAN TRSTEE | DELBERT E & JEAN E ROHN | | | $23,000.00 | 118506 | |
| 4 | 04/19/2006 | QCD | Quit Claim Deed | MORGAN, MELINDA J | MORGAN, MELINDA JOANN TRUSTEE | | | $0.00 | 106424 | 0 |
| 5 | 02/08/2005 | SWD | Statutory Warranty Deed | TRAMEL JR, PERCY WOODROW/ | MORGAN, MELINDA J | 0 | 0 | $63,900.00 | 102728 | 0 |
Payout Agreement
| No payout information available.. |