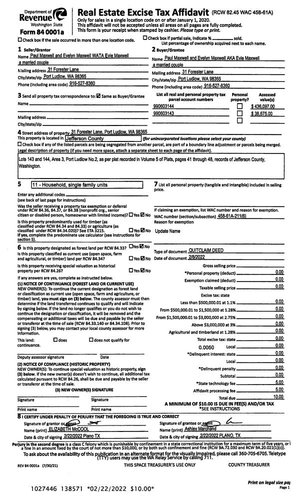
Property
Account |
| Property ID: | 41640 | Abbreviated Legal Description: | ROSEWIND - PLANNED UNIT DEVLPMNT PARCEL 1 |
| Parcel # / Geo ID: | 991100001 | Agent Code: | |
| Type: | Real | | |
| Tax Area: | 0110 - C-50F1E1H2 | Land Use Code | 11 |
| Open Space: | N | DFL | N |
| Historic Property: | N | Remodel Property: | N |
| Multi-Family Redevelopment: | N | | |
| Township: | 30N | Section: | 3 |
| Range: | 1W |
Location |
| Address: | 341 35TH ST PORT TOWNSEND, WA 98368 | Mapsco: | 128/042 |
| Neighborhood: | LITTLEFIELD,MOORES,PT ECO,ROSEWIND,TIBBALS 2ND,WAYSONS+SP AC | Map ID: | |
| Neighborhood CD: | 6090 |
Owner |
| Name: | CAROLYN P ALLEN | Owner ID: | 31756 |
| Mailing Address: | 341 35TH ST PORT TOWNSEND, WA 98368-5009 | % Ownership: | 100.0000000000% |
| | | Exemptions: | |
Pay Tax Due
Select the appropriate checkbox next to the year to be paid. Multiple years may be selected.
*Convenience Fee not included
Taxes and Assessment Details
Property Tax Information as of
03/11/2026
Click on "Statement Details" to expand or collapse a tax statement.
* Please enter a valid date ** Please enter a valid date *
Statement Details |
| 2026 | 30810 | STATE - STATE LEVY (SCHOOL) | $443.69 | $443.68 | $0.00 | $0.00 | $0.00 | $887.37 |
| 2026 | 30810 | COUNTY - COUNTY LEVIES (CE, DD, VET, MH) | $177.40 | $177.37 | $0.00 | $0.00 | $0.00 | $354.77 |
| 2026 | 30810 | CONSERVE - CONSERVATION FUTURES | $5.32 | $5.32 | $0.00 | $0.00 | $0.00 | $10.64 |
| 2026 | 30810 | CITYPT - CITY OF PT | $251.79 | $251.78 | $0.00 | $0.00 | $0.00 | $503.57 |
| 2026 | 30810 | PORTPT - PORT DISTRICT | $71.65 | $71.64 | $0.00 | $0.00 | $0.00 | $143.29 |
| 2026 | 30810 | PUD1 - PUD #1 | $11.54 | $11.54 | $0.00 | $0.00 | $0.00 | $23.08 |
| 2026 | 30810 | HD2 - HOSP DIST #2 | $10.35 | $10.34 | $0.00 | $0.00 | $0.00 | $20.69 |
| 2026 | 30810 | SD50 - SCHOOL DIST #50 | $351.50 | $351.49 | $0.00 | $0.00 | $0.00 | $702.99 |
| 2026 | 30810 | FD1 - FIRE DISTRICT #1 | $234.90 | $234.90 | $0.00 | $0.00 | $0.00 | $469.80 |
| 2026 | 30810 | EMS1 - FIRE DIST #1 EMS | $90.32 | $90.31 | $0.00 | $0.00 | $0.00 | $180.63 |
| 2026 | 30810 | JCCD - JC Conservation District | $2.55 | $2.55 | $0.00 | $0.00 | $0.00 | $5.10 |
| 2026 | 30810 | NWA - Noxious Weed Assessment | $2.98 | $2.97 | $0.00 | $0.00 | $0.00 | $5.95 |
| 2026 | 30810 | TOTAL: | $1653.99 | $1653.89 | $0.00 | $0.00 | $0.00 | $3307.88 |
|
| 2026 | 30810 | $1653.99 | $1653.89 | $0.00 | $0.00 | $0.00 | $3307.88 |
Statement Details |
| 2025 | 30882 | STATE - STATE LEVY (SCHOOL) | $443.88 | $443.86 | $0.00 | $0.00 | $887.74 | $0.00 |
| 2025 | 30882 | COUNTY - COUNTY LEVIES (CE, DD, VET, MH) | $174.56 | $174.55 | $0.00 | $0.00 | $349.11 | $0.00 |
| 2025 | 30882 | CONSERVE - CONSERVATION FUTURES | $5.24 | $5.23 | $0.00 | $0.00 | $10.47 | $0.00 |
| 2025 | 30882 | CITYPT - CITY OF PT | $251.72 | $251.71 | $0.00 | $0.00 | $503.43 | $0.00 |
| 2025 | 30882 | PORTPT - PORT DISTRICT | $71.23 | $71.22 | $0.00 | $0.00 | $142.45 | $0.00 |
| 2025 | 30882 | PUD1 - PUD #1 | $11.42 | $11.42 | $0.00 | $0.00 | $22.84 | $0.00 |
| 2025 | 30882 | HD2 - HOSP DIST #2 | $10.19 | $10.18 | $0.00 | $0.00 | $20.37 | $0.00 |
| 2025 | 30882 | SD50 - SCHOOL DIST #50 | $324.40 | $324.39 | $0.00 | $0.00 | $648.79 | $0.00 |
| 2025 | 30882 | FD1 - FIRE DISTRICT #1 | $230.34 | $230.33 | $0.00 | $0.00 | $460.67 | $0.00 |
| 2025 | 30882 | EMS1 - FIRE DIST #1 EMS | $88.60 | $88.59 | $0.00 | $0.00 | $177.19 | $0.00 |
| 2025 | 30882 | TOTAL: | $1611.58 | $1611.48 | $0.00 | $0.00 | $3223.06 | $0.00 |
|
| 2025 | 30882 | $1611.58 | $1611.48 | $0.00 | $0.00 | $3223.06 | $0.00 |
Statement Details |
| 2024 | 30942 | STATE - STATE LEVY (SCHOOL) | $502.72 | $0.00 | $0.00 | $0.00 | $502.72 | $0.00 |
| 2024 | 30942 | COUNTY - COUNTY LEVIES (CE, DD, VET, MH) | $330.52 | $0.00 | $0.00 | $0.00 | $330.52 | $0.00 |
| 2024 | 30942 | CONSERVE - CONSERVATION FUTURES | $9.91 | $0.00 | $0.00 | $0.00 | $9.91 | $0.00 |
| 2024 | 30942 | CITYPT - CITY OF PT | $454.13 | $0.00 | $0.00 | $0.00 | $454.13 | $0.00 |
| 2024 | 30942 | PORTPT - PORT DISTRICT | $136.52 | $0.00 | $0.00 | $0.00 | $136.52 | $0.00 |
| 2024 | 30942 | PUD1 - PUD #1 | $21.71 | $0.00 | $0.00 | $0.00 | $21.71 | $0.00 |
| 2024 | 30942 | HD2 - HOSP DIST #2 | $19.28 | $0.00 | $0.00 | $0.00 | $19.28 | $0.00 |
| 2024 | 30942 | SD50 - SCHOOL DIST #50 | $0.00 | $0.00 | $0.00 | $0.00 | $0.00 | $0.00 |
| 2024 | 30942 | FD1 - FIRE DISTRICT #1 | $437.02 | $0.00 | $0.00 | $0.00 | $437.02 | $0.00 |
| 2024 | 30942 | EMS1 - FIRE DIST #1 EMS | $166.92 | $0.00 | $0.00 | $0.00 | $166.92 | $0.00 |
| 2024 | 30942 | TOTAL: | $2078.73 | $0.00 | $0.00 | $0.00 | $2078.73 | $0.00 |
|
| 2024 | 30942 | $2078.73 | $0.00 | $0.00 | $0.00 | $2078.73 | $0.00 |
Statement Details |
| 2023 | 30984 | STATE - STATE LEVY (SCHOOL) | $256.03 | $256.02 | $0.00 | $0.00 | $512.05 | $0.00 |
| 2023 | 30984 | COUNTY - COUNTY LEVIES (CE, DD, VET, MH) | $171.50 | $171.46 | $0.00 | $0.00 | $342.96 | $0.00 |
| 2023 | 30984 | CONSERVE - CONSERVATION FUTURES | $5.14 | $5.14 | $0.00 | $0.00 | $10.28 | $0.00 |
| 2023 | 30984 | CITYPT - CITY OF PT | $232.80 | $232.78 | $0.00 | $0.00 | $465.58 | $0.00 |
| 2023 | 30984 | PORTPT - PORT DISTRICT | $72.25 | $72.23 | $0.00 | $0.00 | $144.48 | $0.00 |
| 2023 | 30984 | PUD1 - PUD #1 | $11.37 | $11.36 | $0.00 | $0.00 | $22.73 | $0.00 |
| 2023 | 30984 | HD2 - HOSP DIST #2 | $10.02 | $10.00 | $0.00 | $0.00 | $20.02 | $0.00 |
| 2023 | 30984 | SD50 - SCHOOL DIST #50 | $0.00 | $0.00 | $0.00 | $0.00 | $0.00 | $0.00 |
| 2023 | 30984 | FD1 - FIRE DISTRICT #1 | $141.27 | $141.26 | $0.00 | $0.00 | $282.53 | $0.00 |
| 2023 | 30984 | EMS1 - FIRE DIST #1 EMS | $60.09 | $60.09 | $0.00 | $0.00 | $120.18 | $0.00 |
| 2023 | 30984 | JCCD - JC Conservation District | $2.55 | $2.55 | $0.00 | $0.00 | $5.10 | $0.00 |
| 2023 | 30984 | NWA - Noxious Weed Assessment | $2.15 | $2.15 | $0.00 | $0.00 | $4.30 | $0.00 |
| 2023 | 30984 | TOTAL: | $965.17 | $965.04 | $0.00 | $0.00 | $1930.21 | $0.00 |
|
| 2023 | 30984 | $965.17 | $965.04 | $0.00 | $0.00 | $1930.21 | $0.00 |
Values
| (+) Improvement Homesite Value: | + | $260,969 | |
| (+) Improvement Non-Homesite Value: | + | $0 | |
| (+) Land Homesite Value: | + | $125,000 | |
| (+) Land Non-Homesite Value: | + | $0 | |
| (+) Curr Use (HS): | + | $0 | $0 |
| (+) Curr Use (NHS): | + | $0 | $0 |
| | | -------------------------- | |
| (=) Market Value: | = | $385,969 | |
| (–) Productivity Loss: | – | $0 | |
| | | -------------------------- | |
| (=) Subtotal: | = | $385,969 | |
| (+) Senior Appraised Value: | + | $0 | |
| (+) Non-Senior Appraised Value: | + | $385,969 | |
| | | -------------------------- | |
| (=) Total Appraised Value: | = | $385,969 | |
| (–) Senior Exemption Loss: | – | $0 | |
| (–) Exemption Loss: | – | $0 | |
| | | -------------------------- | |
| (=) Taxable Value: | = | $385,969 | |
Taxing Jurisdiction
| Owner: | CAROLYN P ALLEN | | |
| % Ownership: | 100.0000000000% | | |
| Total Value: | $385,969 | | |
| Tax Area: | 0110 - C-50F1E1H2 |
| CE | COUNTY CURRENT EXPENSE | 0.9034619479 | $385,969 | $385,969 | $348.71 | | |
| CNTYDD | DEVELOPMENTAL DISABILITIES | 0.0052121823 | $385,969 | $385,969 | $2.01 | | |
| CNTYVET | VETERANS RELIEF | 0.0052777810 | $385,969 | $385,969 | $2.04 | | |
| MENTAL | MENTAL HEALTH | 0.0052121823 | $385,969 | $385,969 | $2.01 | | |
| PTGEN | CITY OF PT GENERAL | 0.8551967795 | $385,969 | $385,969 | $330.08 | | |
| PTLLL | CITY OF PT - LIBRARY LID LIFT | 0.4010114288 | $385,969 | $385,969 | $154.78 | | |
| PTMVBOND | CITY OF PT MV BOND | 0.0484717981 | $385,969 | $385,969 | $18.71 | | |
| HOSP2CASH | HOSP DIST #2 GENERAL | 0.0536075306 | $385,969 | $385,969 | $20.69 | | |
| SCH50BOND | SCHOOL DIST #50 BOND 2016 | 0.5377451389 | $385,969 | $385,969 | $207.55 | | |
| SCH50CP | SCHOOL DIST #50 CAP PROJ | 0.4573475088 | $385,969 | $385,969 | $176.52 | | |
| SCH50MO | SCHOOL DIST #50 EP & O | 0.8262822886 | $385,969 | $385,969 | $318.92 | | |
| CONSERVE | CONSERVATION FUTURES | 0.0275621078 | $385,969 | $385,969 | $10.64 | | |
| EMS1 | FIRE DIST #1 EMS | 0.4679948282 | $385,969 | $385,969 | $180.63 | | |
| FD1 | FIRE DIST #1 GENERAL | 1.2171942929 | $385,969 | $385,969 | $469.80 | | |
| PORTPT | PORT OF PT GENERAL | 0.1134941229 | $385,969 | $385,969 | $43.81 | | |
| PORTPTIDD | PORT OF PT IDD 2019 | 0.2577346692 | $385,969 | $385,969 | $99.48 | | |
| PUD1 | PUD #1 GENERAL | 0.0597888892 | $385,969 | $385,969 | $23.08 | | |
| STATE | STATE SCHOOL PART 1 | 1.4940692947 | $385,969 | $385,969 | $576.66 | | |
| STATE2 | STATE SCHOOL PART 2 | 0.8050170049 | $385,969 | $385,969 | $310.71 | | |
| | Total Tax Rate: | 8.5416817766 | | | | | |
| | | | | Taxes w/Current Exemptions: | $3,296.83 | | |
| | | | | Taxes w/o Exemptions: | $3,296.83 | | |
Improvement / Building
| Improvement #1: | Residential Bldg | State Code: | 11 | 836.0 sqft | Value: | $260,969 |
| Bathrooms (#): | 1 (FULL) | Bedrooms (#): | 1 | | Exterior Wall: | PL/T1 | Fireplace: | PROPS-GOOD | | Floor Construction: | FRAME | Foundation: | CONPR | | Heating/Cooling: | F/A | Roof Cover: | COMP |
|
| | Type | Description | Class CD | Sub Class CD | Year Built | Area |
| | MA | Main Area | 4+ | 1S | 1998 | 836.0 |
| | HWPOR | House Wood Porch | 4 | * | 1998 | 24.0 |
| | HDECK | House Deck | 4 | * | 1998 | 194.2 |
| | GATT | House Attached Garage | 4 | * | 1998 | 313.0 |
Sketch
Property Image
Land
| 1 | 6090-1173L | | 0.0000 | 0.00 | 0.00 | 0.00 | 1.00 | $125,000 | $0 |
Roll Value History
| 2026 | N/A | N/A | N/A | N/A | N/A |
| 2025 | $260,969 | $125,000 | $0 | $385,969 | $385,969 |
| 2024 | $244,196 | $126,000 | $0 | $370,196 | $370,196 |
| 2023 | $223,847 | $115,000 | $0 | $338,847 | $333,847 |
| 2022 | $223,847 | $110,000 | $0 | $333,847 | $333,847 |
Deed and Sales History
| 1 | 10/13/2021 | SWD | Statutory Warranty Deed | TIMOTHY HEADLEY | CAROLYN P ALLEN | | | $320,000.00 | 137916 | |
| 2 | 09/02/2011 | SWD | Statutory Warranty Deed | DAVIDSON TRUSTE, NORMA J | HEADLEY, TIMOTHY | 0 | 0 | $185,000.00 | 116490 | 0 |
| 3 | 12/14/1998 | QCD | Quit Claim Deed | DAVIDSON, NORMA J | DAVIDSON, NORMA J/TRUST | 0 | 0 | $0.00 | 86108 | 0 |
| 4 | 11/25/1996 | SWD | Statutory Warranty Deed | ROSEWIND INC | DAVIDSON, NORMA J | 0 | 0 | $26,000.00 | 80893 | 0 |
Payout Agreement
| No payout information available.. |