Property
Account |
| Property ID: | 41691 | Abbreviated Legal Description: | QUILCENE BLK 4 LOTS 16 THRU 20 W/PTN VAC FREMONT ST ADJ #57-00 |
| Parcel # / Geo ID: | 991200407 | Agent Code: | |
| Type: | Real | | |
| Tax Area: | 0320 - 1-48F2E2H2C2L1Z2 | Land Use Code | 01 |
| Open Space: | N | DFL | N |
| Historic Property: | N | Remodel Property: | N |
| Multi-Family Redevelopment: | N | | |
| Township: | 27N | Section: | 24 |
| Range: | 2W |
Location |
| Address: | | Mapsco: | 107/007 |
| Neighborhood: | QUILCENE AND QUILCENE SUPPLEMENTAL LONG PLATS | Map ID: | |
| Neighborhood CD: | 2557 |
Owner |
| Name: | JEFFERSON COUNTY | Owner ID: | 18998 |
| Mailing Address: | PO BOX 1220 PORT TOWNSEND, WA 98368-0920 | % Ownership: | 100.0000000000% |
| | | Exemptions: | EX |
Pay Tax Due
There is currently No Amount Due on this property.
Taxes and Assessment Details
Property Tax Information as of
03/11/2026
Click on "Statement Details" to expand or collapse a tax statement.
* Please enter a valid date ** Please enter a valid date *
Statement Details |
| 2026 | 30860 | STATE - STATE LEVY (SCHOOL) | $0.00 | $0.00 | $0.00 | $0.00 | $0.00 | $0.00 |
| 2026 | 30860 | COUNTY - COUNTY LEVIES (CE, DD, VET, MH) | $0.00 | $0.00 | $0.00 | $0.00 | $0.00 | $0.00 |
| 2026 | 30860 | CONSERVE - CONSERVATION FUTURES | $0.00 | $0.00 | $0.00 | $0.00 | $0.00 | $0.00 |
| 2026 | 30860 | COROADS - COUNTY ROADS (ROADS, DIV TO CE) | $0.00 | $0.00 | $0.00 | $0.00 | $0.00 | $0.00 |
| 2026 | 30860 | PORTPT - PORT DISTRICT | $0.00 | $0.00 | $0.00 | $0.00 | $0.00 | $0.00 |
| 2026 | 30860 | PUD1 - PUD #1 | $0.00 | $0.00 | $0.00 | $0.00 | $0.00 | $0.00 |
| 2026 | 30860 | LIB1 - LIBRARY DIST #1 | $0.00 | $0.00 | $0.00 | $0.00 | $0.00 | $0.00 |
| 2026 | 30860 | HD2 - HOSP DIST #2 | $0.00 | $0.00 | $0.00 | $0.00 | $0.00 | $0.00 |
| 2026 | 30860 | SD48 - SCHOOL DIST #48 | $0.00 | $0.00 | $0.00 | $0.00 | $0.00 | $0.00 |
| 2026 | 30860 | FD2 - FIRE DISTRICT #2 | $0.00 | $0.00 | $0.00 | $0.00 | $0.00 | $0.00 |
| 2026 | 30860 | EMS2 - FIRE DIST #2 EMS | $0.00 | $0.00 | $0.00 | $0.00 | $0.00 | $0.00 |
| 2026 | 30860 | CEM2 - CEMETERY DIST #2 | $0.00 | $0.00 | $0.00 | $0.00 | $0.00 | $0.00 |
| 2026 | 30860 | FPLCA - DNR Landowner Contingency Assmt | $6.00 | $0.00 | $0.00 | $0.00 | $6.00 | $0.00 |
| 2026 | 30860 | TOTAL: | $6.00 | $0.00 | $0.00 | $0.00 | $6.00 | $0.00 |
|
| 2026 | 30860 | $6.00 | $0.00 | $0.00 | $0.00 | $6.00 | $0.00 |
Statement Details |
| 2025 | 30932 | STATE - STATE LEVY (SCHOOL) | $0.00 | $0.00 | $0.00 | $0.00 | $0.00 | $0.00 |
| 2025 | 30932 | COUNTY - COUNTY LEVIES (CE, DD, VET, MH) | $0.00 | $0.00 | $0.00 | $0.00 | $0.00 | $0.00 |
| 2025 | 30932 | CONSERVE - CONSERVATION FUTURES | $0.00 | $0.00 | $0.00 | $0.00 | $0.00 | $0.00 |
| 2025 | 30932 | COROADS - COUNTY ROADS (ROADS, DIV TO CE) | $0.00 | $0.00 | $0.00 | $0.00 | $0.00 | $0.00 |
| 2025 | 30932 | PORTPT - PORT DISTRICT | $0.00 | $0.00 | $0.00 | $0.00 | $0.00 | $0.00 |
| 2025 | 30932 | PUD1 - PUD #1 | $0.00 | $0.00 | $0.00 | $0.00 | $0.00 | $0.00 |
| 2025 | 30932 | LIB1 - LIBRARY DIST #1 | $0.00 | $0.00 | $0.00 | $0.00 | $0.00 | $0.00 |
| 2025 | 30932 | HD2 - HOSP DIST #2 | $0.00 | $0.00 | $0.00 | $0.00 | $0.00 | $0.00 |
| 2025 | 30932 | SD48 - SCHOOL DIST #48 | $0.00 | $0.00 | $0.00 | $0.00 | $0.00 | $0.00 |
| 2025 | 30932 | FD2 - FIRE DISTRICT #2 | $0.00 | $0.00 | $0.00 | $0.00 | $0.00 | $0.00 |
| 2025 | 30932 | EMS2 - FIRE DIST #2 EMS | $0.00 | $0.00 | $0.00 | $0.00 | $0.00 | $0.00 |
| 2025 | 30932 | CEM2 - CEMETERY DIST #2 | $0.00 | $0.00 | $0.00 | $0.00 | $0.00 | $0.00 |
| 2025 | 30932 | FPLCA - DNR Landowner Contingency Assmt | $6.00 | $0.00 | $0.00 | $0.00 | $6.00 | $0.00 |
| 2025 | 30932 | OSS - On Site Septic | $43.00 | $0.00 | $0.00 | $0.00 | $43.00 | $0.00 |
| 2025 | 30932 | TOTAL: | $49.00 | $0.00 | $0.00 | $0.00 | $49.00 | $0.00 |
|
| 2025 | 30932 | $49.00 | $0.00 | $0.00 | $0.00 | $49.00 | $0.00 |
Statement Details |
| 2024 | 30992 | STATE - STATE LEVY (SCHOOL) | $0.00 | $0.00 | $0.00 | $0.00 | $0.00 | $0.00 |
| 2024 | 30992 | COUNTY - COUNTY LEVIES (CE, DD, VET, MH) | $0.00 | $0.00 | $0.00 | $0.00 | $0.00 | $0.00 |
| 2024 | 30992 | CONSERVE - CONSERVATION FUTURES | $0.00 | $0.00 | $0.00 | $0.00 | $0.00 | $0.00 |
| 2024 | 30992 | COROADS - COUNTY ROADS (ROADS, DIV TO CE) | $0.00 | $0.00 | $0.00 | $0.00 | $0.00 | $0.00 |
| 2024 | 30992 | PORTPT - PORT DISTRICT | $0.00 | $0.00 | $0.00 | $0.00 | $0.00 | $0.00 |
| 2024 | 30992 | PUD1 - PUD #1 | $0.00 | $0.00 | $0.00 | $0.00 | $0.00 | $0.00 |
| 2024 | 30992 | LIB1 - LIBRARY DIST #1 | $0.00 | $0.00 | $0.00 | $0.00 | $0.00 | $0.00 |
| 2024 | 30992 | HD2 - HOSP DIST #2 | $0.00 | $0.00 | $0.00 | $0.00 | $0.00 | $0.00 |
| 2024 | 30992 | SD48 - SCHOOL DIST #48 | $0.00 | $0.00 | $0.00 | $0.00 | $0.00 | $0.00 |
| 2024 | 30992 | FD2 - FIRE DISTRICT #2 | $0.00 | $0.00 | $0.00 | $0.00 | $0.00 | $0.00 |
| 2024 | 30992 | EMS2 - FIRE DIST #2 EMS | $0.00 | $0.00 | $0.00 | $0.00 | $0.00 | $0.00 |
| 2024 | 30992 | CEM2 - CEMETERY DIST #2 | $0.00 | $0.00 | $0.00 | $0.00 | $0.00 | $0.00 |
| 2024 | 30992 | OSS - On Site Septic | $42.00 | $0.00 | $0.00 | $0.00 | $42.00 | $0.00 |
| 2024 | 30992 | TOTAL: | $42.00 | $0.00 | $0.00 | $0.00 | $42.00 | $0.00 |
|
| 2024 | 30992 | $42.00 | $0.00 | $0.00 | $0.00 | $42.00 | $0.00 |
Statement Details |
| 2023 | 31034 | STATE - STATE LEVY (SCHOOL) | $0.00 | $0.00 | $0.00 | $0.00 | $0.00 | $0.00 |
| 2023 | 31034 | COUNTY - COUNTY LEVIES (CE, DD, VET, MH) | $0.00 | $0.00 | $0.00 | $0.00 | $0.00 | $0.00 |
| 2023 | 31034 | CONSERVE - CONSERVATION FUTURES | $0.00 | $0.00 | $0.00 | $0.00 | $0.00 | $0.00 |
| 2023 | 31034 | COROADS - COUNTY ROADS (ROADS, DIV TO CE) | $0.00 | $0.00 | $0.00 | $0.00 | $0.00 | $0.00 |
| 2023 | 31034 | PORTPT - PORT DISTRICT | $0.00 | $0.00 | $0.00 | $0.00 | $0.00 | $0.00 |
| 2023 | 31034 | PUD1 - PUD #1 | $0.00 | $0.00 | $0.00 | $0.00 | $0.00 | $0.00 |
| 2023 | 31034 | LIB1 - LIBRARY DIST #1 | $0.00 | $0.00 | $0.00 | $0.00 | $0.00 | $0.00 |
| 2023 | 31034 | HD2 - HOSP DIST #2 | $0.00 | $0.00 | $0.00 | $0.00 | $0.00 | $0.00 |
| 2023 | 31034 | SD48 - SCHOOL DIST #48 | $0.00 | $0.00 | $0.00 | $0.00 | $0.00 | $0.00 |
| 2023 | 31034 | FD2 - FIRE DISTRICT #2 | $0.00 | $0.00 | $0.00 | $0.00 | $0.00 | $0.00 |
| 2023 | 31034 | EMS2 - FIRE DIST #2 EMS | $0.00 | $0.00 | $0.00 | $0.00 | $0.00 | $0.00 |
| 2023 | 31034 | CEM2 - CEMETERY DIST #2 | $0.00 | $0.00 | $0.00 | $0.00 | $0.00 | $0.00 |
| 2023 | 31034 | OSS - On Site Septic | $41.00 | $0.00 | $0.00 | $0.00 | $41.00 | $0.00 |
| 2023 | 31034 | TOTAL: | $41.00 | $0.00 | $0.00 | $0.00 | $41.00 | $0.00 |
|
| 2023 | 31034 | $41.00 | $0.00 | $0.00 | $0.00 | $41.00 | $0.00 |
Values
| (+) Improvement Homesite Value: | + | $0 | |
| (+) Improvement Non-Homesite Value: | + | $0 | |
| (+) Land Homesite Value: | + | $0 | |
| (+) Land Non-Homesite Value: | + | $57,500 | |
| (+) Curr Use (HS): | + | $0 | $0 |
| (+) Curr Use (NHS): | + | $0 | $0 |
| | | -------------------------- | |
| (=) Market Value: | = | $57,500 | |
| (–) Productivity Loss: | – | $0 | |
| | | -------------------------- | |
| (=) Subtotal: | = | $57,500 | |
| (+) Senior Appraised Value: | + | $0 | |
| (+) Non-Senior Appraised Value: | + | $57,500 | |
| | | -------------------------- | |
| (=) Total Appraised Value: | = | $57,500 | |
| (–) Senior Exemption Loss: | – | $0 | |
| (–) Exemption Loss: | – | $57,500 | |
| | | -------------------------- | |
| (=) Taxable Value: | = | $0 | |
Taxing Jurisdiction
| Owner: | JEFFERSON COUNTY | | |
| % Ownership: | 100.0000000000% | | |
| Total Value: | $57,500 | | |
| Tax Area: | 0320 - 1-48F2E2H2C2L1Z2 |
| CE | COUNTY CURRENT EXPENSE | 0.9034619479 | $57,500 | $0 | $0.00 | | |
| CNTYDD | DEVELOPMENTAL DISABILITIES | 0.0052121823 | $57,500 | $0 | $0.00 | | |
| CNTYVET | VETERANS RELIEF | 0.0052777810 | $57,500 | $0 | $0.00 | | |
| MENTAL | MENTAL HEALTH | 0.0052121823 | $57,500 | $0 | $0.00 | | |
| ROADS | COUNTY ROADS | 0.7415066410 | $57,500 | $0 | $0.00 | | |
| ROADSCU | COUNTY ROADS TO CUR EXP | 0.0000000000 | $57,500 | $0 | $0.00 | | |
| HOSP2CASH | HOSP DIST #2 GENERAL | 0.0536075306 | $57,500 | $0 | $0.00 | | |
| SCH48MO | SCHOOL DIST #48 EP & O | 1.4120478917 | $57,500 | $0 | $0.00 | | |
| CEM2 | CEMETERY DIST #2 GENERAL | 0.0241266154 | $57,500 | $0 | $0.00 | | |
| CONSERVE | CONSERVATION FUTURES | 0.0275621078 | $57,500 | $0 | $0.00 | | |
| FD2 | FIRE DIST #2 GENERAL | 0.7549976873 | $57,500 | $0 | $0.00 | | |
| LIB1 | LIBRARY DIST #1 GENERAL | 0.2868827388 | $57,500 | $0 | $0.00 | | |
| PORTPT | PORT OF PT GENERAL | 0.1134941229 | $57,500 | $0 | $0.00 | | |
| PORTPTIDD | PORT OF PT IDD 2019 | 0.2577346692 | $57,500 | $0 | $0.00 | | |
| PUD1 | PUD #1 GENERAL | 0.0597888892 | $57,500 | $0 | $0.00 | | |
| STATE | STATE SCHOOL PART 1 | 1.4940692947 | $57,500 | $0 | $0.00 | | |
| STATE2 | STATE SCHOOL PART 2 | 0.8050170049 | $57,500 | $0 | $0.00 | | |
| EMS2 | FIRE DIST #2 EMS | 0.4251727858 | $57,500 | $0 | $0.00 | | |
| | Total Tax Rate: | 7.3751720728 | | | | | |
| | | | | Taxes w/Current Exemptions: | $0.00 | | |
| | | | | Taxes w/o Exemptions: | $424.08 | | |
Improvement / Building
Sketch
| No sketches available for this property. |
Property Image
Land
| 1 | 2557-1174L | | 0.0000 | 0.00 | 0.00 | 0.00 | 2.00 | $18,400 | $0 |
| 2 | 2557-1173L | | 0.0000 | 0.00 | 0.00 | 0.00 | 2.00 | $32,200 | $0 |
| 3 | 2557-1175L | | 0.0000 | 0.00 | 0.00 | 0.00 | 2.00 | $6,900 | $0 |
Roll Value History
| 2026 | N/A | N/A | N/A | N/A | N/A |
| 2025 | $0 | $57,500 | $0 | $57,500 | $0 |
| 2024 | $0 | $55,000 | $0 | $55,000 | $0 |
| 2023 | $0 | $52,500 | $0 | $52,500 | $0 |
| 2022 | $0 | $50,000 | $0 | $50,000 | $0 |
Deed and Sales History
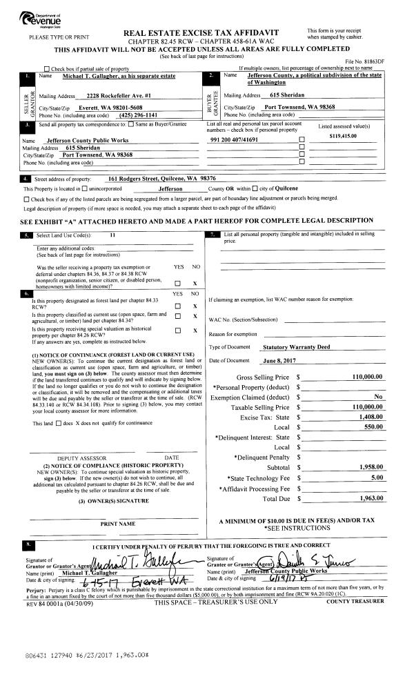
| 1 | 06/08/2017 | SWD | Statutory Warranty Deed | MICHAEL T GALLAGHER | JEFFERSON COUNTY | | | $110,000.00 | 127940 | |
| 2 | 09/03/1998 | SWD | Statutory Warranty Deed | SHEA, RONALD P/TEMPLIN, C | GALLAGHER, MICHAEL T | 0 | 0 | $52,000.00 | 85466 | 0 |
Payout Agreement
| No payout information available.. |