Property
Account |
| Property ID: | 41720 | Abbreviated Legal Description: | QUILCENE BLK 8 LOTS 9 & 10 |
| Parcel # / Geo ID: | 991200805 | Agent Code: | |
| Type: | Real | | |
| Tax Area: | 0320 - 1-48F2E2H2C2L1Z2 | Land Use Code | 11 |
| Open Space: | N | DFL | N |
| Historic Property: | N | Remodel Property: | N |
| Multi-Family Redevelopment: | N | | |
| Township: | 27N | Section: | 24 |
| Range: | 2W |
Location |
| Address: | 180 MUNCIE AVE QUILCENE, WA 98376 | Mapsco: | 107/036 |
| Neighborhood: | QUILCENE AND QUILCENE SUPPLEMENTAL LONG PLATS | Map ID: | |
| Neighborhood CD: | 2557 |
Owner |
| Name: | BRENT & VANESA LEMKE | Owner ID: | 98372 |
| Mailing Address: | 180 MUNCIE AVE QUILCENE, WA 98376 | % Ownership: | 100.0000000000% |
| | | Exemptions: | |
Pay Tax Due
Select the appropriate checkbox next to the year to be paid. Multiple years may be selected.
*Convenience Fee not included
Taxes and Assessment Details
Property Tax Information as of
03/10/2026
Click on "Statement Details" to expand or collapse a tax statement.
* Please enter a valid date ** Please enter a valid date *
Statement Details |
| 2026 | 30885 | STATE - STATE LEVY (SCHOOL) | $223.90 | $223.88 | $0.00 | $0.00 | $0.00 | $447.78 |
| 2026 | 30885 | COUNTY - COUNTY LEVIES (CE, DD, VET, MH) | $89.52 | $89.51 | $0.00 | $0.00 | $0.00 | $179.03 |
| 2026 | 30885 | CONSERVE - CONSERVATION FUTURES | $2.69 | $2.68 | $0.00 | $0.00 | $0.00 | $5.37 |
| 2026 | 30885 | COROADS - COUNTY ROADS (ROADS, DIV TO CE) | $72.21 | $72.21 | $0.00 | $0.00 | $0.00 | $144.42 |
| 2026 | 30885 | PORTPT - PORT DISTRICT | $36.15 | $36.15 | $0.00 | $0.00 | $0.00 | $72.30 |
| 2026 | 30885 | PUD1 - PUD #1 | $5.82 | $5.82 | $0.00 | $0.00 | $0.00 | $11.64 |
| 2026 | 30885 | LIB1 - LIBRARY DIST #1 | $27.94 | $27.93 | $0.00 | $0.00 | $0.00 | $55.87 |
| 2026 | 30885 | HD2 - HOSP DIST #2 | $5.22 | $5.22 | $0.00 | $0.00 | $0.00 | $10.44 |
| 2026 | 30885 | SD48 - SCHOOL DIST #48 | $137.51 | $137.51 | $0.00 | $0.00 | $0.00 | $275.02 |
| 2026 | 30885 | FD2 - FIRE DISTRICT #2 | $73.53 | $73.52 | $0.00 | $0.00 | $0.00 | $147.05 |
| 2026 | 30885 | EMS2 - FIRE DIST #2 EMS | $41.41 | $41.40 | $0.00 | $0.00 | $0.00 | $82.81 |
| 2026 | 30885 | CEM2 - CEMETERY DIST #2 | $2.35 | $2.35 | $0.00 | $0.00 | $0.00 | $4.70 |
| 2026 | 30885 | JCCD - JC Conservation District | $2.55 | $2.55 | $0.00 | $0.00 | $0.00 | $5.10 |
| 2026 | 30885 | NWA - Noxious Weed Assessment | $2.98 | $2.97 | $0.00 | $0.00 | $0.00 | $5.95 |
| 2026 | 30885 | OSS - On Site Septic | $23.10 | $23.10 | $0.00 | $0.00 | $0.00 | $46.20 |
| 2026 | 30885 | WAT - Clean Water District | $13.00 | $13.00 | $0.00 | $0.00 | $0.00 | $26.00 |
| 2026 | 30885 | TOTAL: | $759.88 | $759.80 | $0.00 | $0.00 | $0.00 | $1519.68 |
|
| 2026 | 30885 | $759.88 | $759.80 | $0.00 | $0.00 | $0.00 | $1519.68 |
Statement Details |
| 2025 | 30957 | STATE - STATE LEVY (SCHOOL) | $223.69 | $223.67 | $0.00 | $0.00 | $447.36 | $0.00 |
| 2025 | 30957 | COUNTY - COUNTY LEVIES (CE, DD, VET, MH) | $87.97 | $87.96 | $0.00 | $0.00 | $175.93 | $0.00 |
| 2025 | 30957 | CONSERVE - CONSERVATION FUTURES | $2.64 | $2.64 | $0.00 | $0.00 | $5.28 | $0.00 |
| 2025 | 30957 | COROADS - COUNTY ROADS (ROADS, DIV TO CE) | $70.48 | $70.46 | $0.00 | $0.00 | $140.94 | $0.00 |
| 2025 | 30957 | PORTPT - PORT DISTRICT | $35.89 | $35.89 | $0.00 | $0.00 | $71.78 | $0.00 |
| 2025 | 30957 | PUD1 - PUD #1 | $5.76 | $5.75 | $0.00 | $0.00 | $11.51 | $0.00 |
| 2025 | 30957 | LIB1 - LIBRARY DIST #1 | $27.27 | $27.26 | $0.00 | $0.00 | $54.53 | $0.00 |
| 2025 | 30957 | HD2 - HOSP DIST #2 | $5.13 | $5.13 | $0.00 | $0.00 | $10.26 | $0.00 |
| 2025 | 30957 | SD48 - SCHOOL DIST #48 | $131.72 | $131.72 | $0.00 | $0.00 | $263.44 | $0.00 |
| 2025 | 30957 | FD2 - FIRE DISTRICT #2 | $72.73 | $72.72 | $0.00 | $0.00 | $145.45 | $0.00 |
| 2025 | 30957 | EMS2 - FIRE DIST #2 EMS | $40.95 | $40.95 | $0.00 | $0.00 | $81.90 | $0.00 |
| 2025 | 30957 | CEM2 - CEMETERY DIST #2 | $2.32 | $2.32 | $0.00 | $0.00 | $4.64 | $0.00 |
| 2025 | 30957 | JCCD - JC Conservation District | $2.55 | $2.55 | $0.00 | $0.00 | $5.10 | $0.00 |
| 2025 | 30957 | NWA - Noxious Weed Assessment | $2.15 | $2.15 | $0.00 | $0.00 | $4.30 | $0.00 |
| 2025 | 30957 | OSS - On Site Septic | $21.50 | $21.50 | $0.00 | $0.00 | $43.00 | $0.00 |
| 2025 | 30957 | WAT - Clean Water District | $13.00 | $13.00 | $0.00 | $0.00 | $26.00 | $0.00 |
| 2025 | 30957 | TOTAL: | $745.75 | $745.67 | $0.00 | $0.00 | $1491.42 | $0.00 |
|
| 2025 | 30957 | $745.75 | $745.67 | $0.00 | $0.00 | $1491.42 | $0.00 |
Statement Details |
| 2024 | 31017 | STATE - STATE LEVY (SCHOOL) | $200.24 | $200.23 | $0.00 | $0.00 | $400.47 | $0.00 |
| 2024 | 31017 | COUNTY - COUNTY LEVIES (CE, DD, VET, MH) | $85.70 | $85.67 | $0.00 | $0.00 | $171.37 | $0.00 |
| 2024 | 31017 | CONSERVE - CONSERVATION FUTURES | $2.57 | $2.57 | $0.00 | $0.00 | $5.14 | $0.00 |
| 2024 | 31017 | COROADS - COUNTY ROADS (ROADS, DIV TO CE) | $68.95 | $68.94 | $0.00 | $0.00 | $137.89 | $0.00 |
| 2024 | 31017 | PORTPT - PORT DISTRICT | $35.39 | $35.39 | $0.00 | $0.00 | $70.78 | $0.00 |
| 2024 | 31017 | PUD1 - PUD #1 | $5.63 | $5.63 | $0.00 | $0.00 | $11.26 | $0.00 |
| 2024 | 31017 | LIB1 - LIBRARY DIST #1 | $26.68 | $26.67 | $0.00 | $0.00 | $53.35 | $0.00 |
| 2024 | 31017 | HD2 - HOSP DIST #2 | $5.00 | $5.00 | $0.00 | $0.00 | $10.00 | $0.00 |
| 2024 | 31017 | SD48 - SCHOOL DIST #48 | $89.68 | $89.68 | $0.00 | $0.00 | $179.36 | $0.00 |
| 2024 | 31017 | FD2 - FIRE DISTRICT #2 | $71.23 | $71.23 | $0.00 | $0.00 | $142.46 | $0.00 |
| 2024 | 31017 | EMS2 - FIRE DIST #2 EMS | $40.10 | $40.10 | $0.00 | $0.00 | $80.20 | $0.00 |
| 2024 | 31017 | CEM2 - CEMETERY DIST #2 | $2.28 | $2.28 | $0.00 | $0.00 | $4.56 | $0.00 |
| 2024 | 31017 | JCCD - JC Conservation District | $2.55 | $2.55 | $0.00 | $0.00 | $5.10 | $0.00 |
| 2024 | 31017 | NWA - Noxious Weed Assessment | $2.15 | $2.15 | $0.00 | $0.00 | $4.30 | $0.00 |
| 2024 | 31017 | OSS - On Site Septic | $21.00 | $21.00 | $0.00 | $0.00 | $42.00 | $0.00 |
| 2024 | 31017 | WAT - Clean Water District | $12.50 | $12.50 | $0.00 | $0.00 | $25.00 | $0.00 |
| 2024 | 31017 | TOTAL: | $671.65 | $671.59 | $0.00 | $0.00 | $1343.24 | $0.00 |
|
| 2024 | 31017 | $671.65 | $671.59 | $0.00 | $0.00 | $1343.24 | $0.00 |
Statement Details |
| 2023 | 31059 | STATE - STATE LEVY (SCHOOL) | $181.53 | $181.53 | $0.00 | $0.00 | $363.06 | $0.00 |
| 2023 | 31059 | COUNTY - COUNTY LEVIES (CE, DD, VET, MH) | $79.22 | $79.21 | $0.00 | $0.00 | $158.43 | $0.00 |
| 2023 | 31059 | CONSERVE - CONSERVATION FUTURES | $2.38 | $2.37 | $0.00 | $0.00 | $4.75 | $0.00 |
| 2023 | 31059 | COROADS - COUNTY ROADS (ROADS, DIV TO CE) | $64.09 | $64.09 | $0.00 | $0.00 | $128.18 | $0.00 |
| 2023 | 31059 | PORTPT - PORT DISTRICT | $33.37 | $33.37 | $0.00 | $0.00 | $66.74 | $0.00 |
| 2023 | 31059 | PUD1 - PUD #1 | $5.25 | $5.25 | $0.00 | $0.00 | $10.50 | $0.00 |
| 2023 | 31059 | LIB1 - LIBRARY DIST #1 | $24.80 | $24.79 | $0.00 | $0.00 | $49.59 | $0.00 |
| 2023 | 31059 | HD2 - HOSP DIST #2 | $4.63 | $4.61 | $0.00 | $0.00 | $9.24 | $0.00 |
| 2023 | 31059 | SD48 - SCHOOL DIST #48 | $87.67 | $87.66 | $0.00 | $0.00 | $175.33 | $0.00 |
| 2023 | 31059 | FD2 - FIRE DISTRICT #2 | $68.76 | $68.76 | $0.00 | $0.00 | $137.52 | $0.00 |
| 2023 | 31059 | EMS2 - FIRE DIST #2 EMS | $38.56 | $38.55 | $0.00 | $0.00 | $77.11 | $0.00 |
| 2023 | 31059 | CEM2 - CEMETERY DIST #2 | $2.19 | $2.19 | $0.00 | $0.00 | $4.38 | $0.00 |
| 2023 | 31059 | JCCD - JC Conservation District | $2.55 | $2.55 | $0.00 | $0.00 | $5.10 | $0.00 |
| 2023 | 31059 | NWA - Noxious Weed Assessment | $2.15 | $2.15 | $0.00 | $0.00 | $4.30 | $0.00 |
| 2023 | 31059 | OSS - On Site Septic | $20.50 | $20.50 | $0.00 | $0.00 | $41.00 | $0.00 |
| 2023 | 31059 | WAT - Clean Water District | $12.00 | $12.00 | $0.00 | $0.00 | $24.00 | $0.00 |
| 2023 | 31059 | TOTAL: | $629.65 | $629.58 | $0.00 | $0.00 | $1259.23 | $0.00 |
|
| 2023 | 31059 | $629.65 | $629.58 | $0.00 | $0.00 | $1259.23 | $0.00 |
Values
| (+) Improvement Homesite Value: | + | $0 | |
| (+) Improvement Non-Homesite Value: | + | $141,865 | |
| (+) Land Homesite Value: | + | $0 | |
| (+) Land Non-Homesite Value: | + | $52,900 | |
| (+) Curr Use (HS): | + | $0 | $0 |
| (+) Curr Use (NHS): | + | $0 | $0 |
| | | -------------------------- | |
| (=) Market Value: | = | $194,765 | |
| (–) Productivity Loss: | – | $0 | |
| | | -------------------------- | |
| (=) Subtotal: | = | $194,765 | |
| (+) Senior Appraised Value: | + | $0 | |
| (+) Non-Senior Appraised Value: | + | $194,765 | |
| | | -------------------------- | |
| (=) Total Appraised Value: | = | $194,765 | |
| (–) Senior Exemption Loss: | – | $0 | |
| (–) Exemption Loss: | – | $0 | |
| | | -------------------------- | |
| (=) Taxable Value: | = | $194,765 | |
Taxing Jurisdiction
| Owner: | BRENT & VANESA LEMKE | | |
| % Ownership: | 100.0000000000% | | |
| Total Value: | $194,765 | | |
| Tax Area: | 0320 - 1-48F2E2H2C2L1Z2 |
| CE | COUNTY CURRENT EXPENSE | 0.9034619479 | $194,765 | $194,765 | $175.96 | | |
| CNTYDD | DEVELOPMENTAL DISABILITIES | 0.0052121823 | $194,765 | $194,765 | $1.02 | | |
| CNTYVET | VETERANS RELIEF | 0.0052777810 | $194,765 | $194,765 | $1.03 | | |
| MENTAL | MENTAL HEALTH | 0.0052121823 | $194,765 | $194,765 | $1.02 | | |
| ROADS | COUNTY ROADS | 0.7415066410 | $194,765 | $194,765 | $144.42 | | |
| ROADSCU | COUNTY ROADS TO CUR EXP | 0.0000000000 | $194,765 | $194,765 | $0.00 | | |
| HOSP2CASH | HOSP DIST #2 GENERAL | 0.0536075306 | $194,765 | $194,765 | $10.44 | | |
| SCH48MO | SCHOOL DIST #48 EP & O | 1.4120478917 | $194,765 | $194,765 | $275.02 | | |
| CEM2 | CEMETERY DIST #2 GENERAL | 0.0241266154 | $194,765 | $194,765 | $4.70 | | |
| CONSERVE | CONSERVATION FUTURES | 0.0275621078 | $194,765 | $194,765 | $5.37 | | |
| FD2 | FIRE DIST #2 GENERAL | 0.7549976873 | $194,765 | $194,765 | $147.05 | | |
| LIB1 | LIBRARY DIST #1 GENERAL | 0.2868827388 | $194,765 | $194,765 | $55.87 | | |
| PORTPT | PORT OF PT GENERAL | 0.1134941229 | $194,765 | $194,765 | $22.10 | | |
| PORTPTIDD | PORT OF PT IDD 2019 | 0.2577346692 | $194,765 | $194,765 | $50.20 | | |
| PUD1 | PUD #1 GENERAL | 0.0597888892 | $194,765 | $194,765 | $11.64 | | |
| STATE | STATE SCHOOL PART 1 | 1.4940692947 | $194,765 | $194,765 | $290.99 | | |
| STATE2 | STATE SCHOOL PART 2 | 0.8050170049 | $194,765 | $194,765 | $156.79 | | |
| EMS2 | FIRE DIST #2 EMS | 0.4251727858 | $194,765 | $194,765 | $82.81 | | |
| | Total Tax Rate: | 7.3751720728 | | | | | |
| | | | | Taxes w/Current Exemptions: | $1,436.43 | | |
| | | | | Taxes w/o Exemptions: | $1,436.43 | | |
Improvement / Building
| Improvement #1: | Manufactured Home | State Code: | 11M | 792.0 sqft | Value: | $141,865 |
| Bathrooms (#): | 1 (FULL) | Bedrooms (#): | 2 | | Exterior Wall: | PL/T1 | Floor Construction: | FRAME | | Foundation: | PO&BL | Heating/Cooling: | HPUMP | | Inside Verify: | YES | Roof Cover: | COMP |
|
| | Type | Description | Class CD | Sub Class CD | Year Built | Area |
| | MA | Main Area | 3 | MPARK | 2019 | 480.0 |
| | MA2 | Second Floor Main Area | 3 | MPARK | 2019 | 312.0 |
| | MRPO | MH Roof Porch | 4 | * | 2019 | 160.0 |
| | CARPTN | Carport W/O Floor | 2 | * | 2019 | 640.0 |
Sketch
Property Image
Land
| 1 | 2557-1174L | | 0.0000 | 0.00 | 0.00 | 0.00 | 2.00 | $52,900 | $0 |
Roll Value History
| 2026 | N/A | N/A | N/A | N/A | N/A |
| 2025 | $141,865 | $52,900 | $0 | $194,765 | $194,765 |
| 2024 | $135,954 | $50,600 | $0 | $186,554 | $186,554 |
| 2023 | $130,043 | $43,050 | $0 | $173,093 | $173,093 |
| 2022 | $118,221 | $36,000 | $0 | $154,221 | $154,221 |
Deed and Sales History
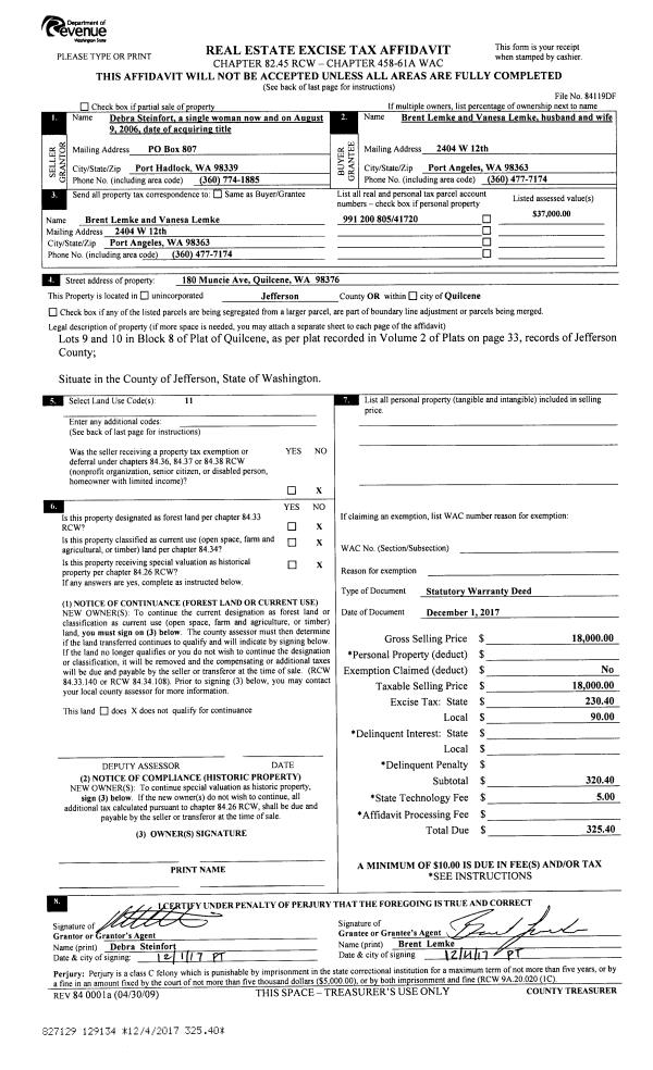
| 1 | 12/01/2017 | SWD | Statutory Warranty Deed | DEBRA J STEINFORT | BRENT & VANESA LEMKE | | | $18,000.00 | 129134 | |
| 2 | 05/30/2006 | QCD | Quit Claim Deed | STEGEMAN, MICHAEL E/PATRI | STEINFORT, DEBRA | 0 | 0 | $10,000.00 | 107297 | 0 |
| 3 | 09/05/1995 | QCD | Quit Claim Deed | HAGGARD, NORRIS & ADA | STEGEMAN, MICHAEL E & PATRICIA | 0 | 0 | $0.00 | 77909 | 0 |
| 4 | 08/15/1994 | REC | Real Estate Contract | STEGEMAN, MICHAEL E/PATRI | HAGGARD, NORRIS LEE/ADA L | 0 | 0 | $28,000.00 | 74955 | 0 |
Payout Agreement
| No payout information available.. |