Property
Account |
| Property ID: | 41723 | Abbreviated Legal Description: | QUILCENE BLK 8 LOTS 15 & 16(LESS R/W) |
| Parcel # / Geo ID: | 991200808 | Agent Code: | |
| Type: | Real | | |
| Tax Area: | 0320 - 1-48F2E2H2C2L1Z2 | Land Use Code | 18 |
| Open Space: | N | DFL | N |
| Historic Property: | N | Remodel Property: | N |
| Multi-Family Redevelopment: | N | | |
| Township: | 27N | Section: | 24 |
| Range: | 2W |
Location |
| Address: | | Mapsco: | 107/039 |
| Neighborhood: | QUILCENE AND QUILCENE SUPPLEMENTAL LONG PLATS | Map ID: | |
| Neighborhood CD: | 2557 |
Owner |
| Name: | THOMAS N EARLY | Owner ID: | 93444 |
| Mailing Address: | 140 MUNCIE AVE QUILCENE, WA 98376-9690 | % Ownership: | 100.0000000000% |
| | | Exemptions: | |
Pay Tax Due
Select the appropriate checkbox next to the year to be paid. Multiple years may be selected.
*Convenience Fee not included
Taxes and Assessment Details
Property Tax Information as of
03/12/2026
Click on "Statement Details" to expand or collapse a tax statement.
* Please enter a valid date ** Please enter a valid date *
Statement Details |
| 2026 | 30888 | STATE - STATE LEVY (SCHOOL) | $31.07 | $31.05 | $0.00 | $0.00 | $0.00 | $62.12 |
| 2026 | 30888 | COUNTY - COUNTY LEVIES (CE, DD, VET, MH) | $12.42 | $12.41 | $0.00 | $0.00 | $0.00 | $24.83 |
| 2026 | 30888 | CONSERVE - CONSERVATION FUTURES | $0.37 | $0.37 | $0.00 | $0.00 | $0.00 | $0.74 |
| 2026 | 30888 | COROADS - COUNTY ROADS (ROADS, DIV TO CE) | $10.02 | $10.01 | $0.00 | $0.00 | $0.00 | $20.03 |
| 2026 | 30888 | PORTPT - PORT DISTRICT | $5.02 | $5.01 | $0.00 | $0.00 | $0.00 | $10.03 |
| 2026 | 30888 | PUD1 - PUD #1 | $0.81 | $0.81 | $0.00 | $0.00 | $0.00 | $1.62 |
| 2026 | 30888 | LIB1 - LIBRARY DIST #1 | $3.88 | $3.87 | $0.00 | $0.00 | $0.00 | $7.75 |
| 2026 | 30888 | HD2 - HOSP DIST #2 | $0.73 | $0.72 | $0.00 | $0.00 | $0.00 | $1.45 |
| 2026 | 30888 | SD48 - SCHOOL DIST #48 | $19.08 | $19.07 | $0.00 | $0.00 | $0.00 | $38.15 |
| 2026 | 30888 | FD2 - FIRE DISTRICT #2 | $10.20 | $10.20 | $0.00 | $0.00 | $0.00 | $20.40 |
| 2026 | 30888 | EMS2 - FIRE DIST #2 EMS | $5.75 | $5.74 | $0.00 | $0.00 | $0.00 | $11.49 |
| 2026 | 30888 | CEM2 - CEMETERY DIST #2 | $0.33 | $0.32 | $0.00 | $0.00 | $0.00 | $0.65 |
| 2026 | 30888 | JCCD - JC Conservation District | $2.53 | $2.53 | $0.00 | $0.00 | $0.00 | $5.06 |
| 2026 | 30888 | NWA - Noxious Weed Assessment | $2.98 | $2.97 | $0.00 | $0.00 | $0.00 | $5.95 |
| 2026 | 30888 | WAT - Clean Water District | $13.00 | $13.00 | $0.00 | $0.00 | $0.00 | $26.00 |
| 2026 | 30888 | TOTAL: | $118.19 | $118.08 | $0.00 | $0.00 | $0.00 | $236.27 |
|
| 2026 | 30888 | $118.19 | $118.08 | $0.00 | $0.00 | $0.00 | $236.27 |
Statement Details |
| 2025 | 30960 | STATE - STATE LEVY (SCHOOL) | $31.00 | $30.99 | $0.00 | $0.00 | $61.99 | $0.00 |
| 2025 | 30960 | COUNTY - COUNTY LEVIES (CE, DD, VET, MH) | $12.19 | $12.19 | $0.00 | $0.00 | $24.38 | $0.00 |
| 2025 | 30960 | CONSERVE - CONSERVATION FUTURES | $0.37 | $0.36 | $0.00 | $0.00 | $0.73 | $0.00 |
| 2025 | 30960 | COROADS - COUNTY ROADS (ROADS, DIV TO CE) | $9.77 | $9.76 | $0.00 | $0.00 | $19.53 | $0.00 |
| 2025 | 30960 | PORTPT - PORT DISTRICT | $4.98 | $4.97 | $0.00 | $0.00 | $9.95 | $0.00 |
| 2025 | 30960 | PUD1 - PUD #1 | $0.80 | $0.80 | $0.00 | $0.00 | $1.60 | $0.00 |
| 2025 | 30960 | LIB1 - LIBRARY DIST #1 | $3.78 | $3.78 | $0.00 | $0.00 | $7.56 | $0.00 |
| 2025 | 30960 | HD2 - HOSP DIST #2 | $0.71 | $0.71 | $0.00 | $0.00 | $1.42 | $0.00 |
| 2025 | 30960 | SD48 - SCHOOL DIST #48 | $18.25 | $18.25 | $0.00 | $0.00 | $36.50 | $0.00 |
| 2025 | 30960 | FD2 - FIRE DISTRICT #2 | $10.08 | $10.07 | $0.00 | $0.00 | $20.15 | $0.00 |
| 2025 | 30960 | EMS2 - FIRE DIST #2 EMS | $5.68 | $5.67 | $0.00 | $0.00 | $11.35 | $0.00 |
| 2025 | 30960 | CEM2 - CEMETERY DIST #2 | $0.32 | $0.32 | $0.00 | $0.00 | $0.64 | $0.00 |
| 2025 | 30960 | JCCD - JC Conservation District | $2.55 | $2.55 | $0.00 | $0.00 | $5.10 | $0.00 |
| 2025 | 30960 | NWA - Noxious Weed Assessment | $2.15 | $2.15 | $0.00 | $0.00 | $4.30 | $0.00 |
| 2025 | 30960 | WAT - Clean Water District | $13.00 | $13.00 | $0.00 | $0.00 | $26.00 | $0.00 |
| 2025 | 30960 | TOTAL: | $115.63 | $115.57 | $0.00 | $0.00 | $231.20 | $0.00 |
|
| 2025 | 30960 | $115.63 | $115.57 | $0.00 | $0.00 | $231.20 | $0.00 |
Statement Details |
| 2024 | 31020 | STATE - STATE LEVY (SCHOOL) | $28.55 | $28.55 | $0.00 | $0.00 | $57.10 | $0.00 |
| 2024 | 31020 | COUNTY - COUNTY LEVIES (CE, DD, VET, MH) | $12.22 | $12.22 | $0.00 | $0.00 | $24.44 | $0.00 |
| 2024 | 31020 | CONSERVE - CONSERVATION FUTURES | $0.37 | $0.36 | $0.00 | $0.00 | $0.73 | $0.00 |
| 2024 | 31020 | COROADS - COUNTY ROADS (ROADS, DIV TO CE) | $9.83 | $9.83 | $0.00 | $0.00 | $19.66 | $0.00 |
| 2024 | 31020 | PORTPT - PORT DISTRICT | $5.05 | $5.05 | $0.00 | $0.00 | $10.10 | $0.00 |
| 2024 | 31020 | PUD1 - PUD #1 | $0.80 | $0.80 | $0.00 | $0.00 | $1.60 | $0.00 |
| 2024 | 31020 | LIB1 - LIBRARY DIST #1 | $3.81 | $3.80 | $0.00 | $0.00 | $7.61 | $0.00 |
| 2024 | 31020 | HD2 - HOSP DIST #2 | $0.72 | $0.71 | $0.00 | $0.00 | $1.43 | $0.00 |
| 2024 | 31020 | SD48 - SCHOOL DIST #48 | $12.79 | $12.78 | $0.00 | $0.00 | $25.57 | $0.00 |
| 2024 | 31020 | FD2 - FIRE DISTRICT #2 | $10.16 | $10.15 | $0.00 | $0.00 | $20.31 | $0.00 |
| 2024 | 31020 | EMS2 - FIRE DIST #2 EMS | $5.72 | $5.71 | $0.00 | $0.00 | $11.43 | $0.00 |
| 2024 | 31020 | CEM2 - CEMETERY DIST #2 | $0.33 | $0.32 | $0.00 | $0.00 | $0.65 | $0.00 |
| 2024 | 31020 | JCCD - JC Conservation District | $2.55 | $2.55 | $0.00 | $0.00 | $5.10 | $0.00 |
| 2024 | 31020 | NWA - Noxious Weed Assessment | $2.15 | $2.15 | $0.00 | $0.00 | $4.30 | $0.00 |
| 2024 | 31020 | WAT - Clean Water District | $12.50 | $12.50 | $0.00 | $0.00 | $25.00 | $0.00 |
| 2024 | 31020 | TOTAL: | $107.55 | $107.48 | $0.00 | $0.00 | $215.03 | $0.00 |
|
| 2024 | 31020 | $107.55 | $107.48 | $0.00 | $0.00 | $215.03 | $0.00 |
Statement Details |
| 2023 | 31062 | STATE - STATE LEVY (SCHOOL) | $27.54 | $27.53 | $0.00 | $0.00 | $55.07 | $0.00 |
| 2023 | 31062 | COUNTY - COUNTY LEVIES (CE, DD, VET, MH) | $12.02 | $12.02 | $0.00 | $0.00 | $24.04 | $0.00 |
| 2023 | 31062 | CONSERVE - CONSERVATION FUTURES | $0.36 | $0.36 | $0.00 | $0.00 | $0.72 | $0.00 |
| 2023 | 31062 | COROADS - COUNTY ROADS (ROADS, DIV TO CE) | $9.73 | $9.72 | $0.00 | $0.00 | $19.45 | $0.00 |
| 2023 | 31062 | PORTPT - PORT DISTRICT | $5.07 | $5.06 | $0.00 | $0.00 | $10.13 | $0.00 |
| 2023 | 31062 | PUD1 - PUD #1 | $0.80 | $0.79 | $0.00 | $0.00 | $1.59 | $0.00 |
| 2023 | 31062 | LIB1 - LIBRARY DIST #1 | $3.76 | $3.76 | $0.00 | $0.00 | $7.52 | $0.00 |
| 2023 | 31062 | HD2 - HOSP DIST #2 | $0.71 | $0.70 | $0.00 | $0.00 | $1.41 | $0.00 |
| 2023 | 31062 | SD48 - SCHOOL DIST #48 | $13.30 | $13.29 | $0.00 | $0.00 | $26.59 | $0.00 |
| 2023 | 31062 | FD2 - FIRE DISTRICT #2 | $10.43 | $10.43 | $0.00 | $0.00 | $20.86 | $0.00 |
| 2023 | 31062 | EMS2 - FIRE DIST #2 EMS | $5.85 | $5.85 | $0.00 | $0.00 | $11.70 | $0.00 |
| 2023 | 31062 | CEM2 - CEMETERY DIST #2 | $0.33 | $0.33 | $0.00 | $0.00 | $0.66 | $0.00 |
| 2023 | 31062 | JCCD - JC Conservation District | $2.55 | $2.55 | $0.00 | $0.00 | $5.10 | $0.00 |
| 2023 | 31062 | NWA - Noxious Weed Assessment | $2.15 | $2.15 | $0.00 | $0.00 | $4.30 | $0.00 |
| 2023 | 31062 | WAT - Clean Water District | $12.00 | $12.00 | $0.00 | $0.00 | $24.00 | $0.00 |
| 2023 | 31062 | TOTAL: | $106.60 | $106.54 | $0.00 | $0.00 | $213.14 | $0.00 |
|
| 2023 | 31062 | $106.60 | $106.54 | $0.00 | $0.00 | $213.14 | $0.00 |
Values
| (+) Improvement Homesite Value: | + | $0 | |
| (+) Improvement Non-Homesite Value: | + | $2,869 | |
| (+) Land Homesite Value: | + | $0 | |
| (+) Land Non-Homesite Value: | + | $24,150 | |
| (+) Curr Use (HS): | + | $0 | $0 |
| (+) Curr Use (NHS): | + | $0 | $0 |
| | | -------------------------- | |
| (=) Market Value: | = | $27,019 | |
| (–) Productivity Loss: | – | $0 | |
| | | -------------------------- | |
| (=) Subtotal: | = | $27,019 | |
| (+) Senior Appraised Value: | + | $0 | |
| (+) Non-Senior Appraised Value: | + | $27,019 | |
| | | -------------------------- | |
| (=) Total Appraised Value: | = | $27,019 | |
| (–) Senior Exemption Loss: | – | $0 | |
| (–) Exemption Loss: | – | $0 | |
| | | -------------------------- | |
| (=) Taxable Value: | = | $27,019 | |
Taxing Jurisdiction
| Owner: | THOMAS N EARLY | | |
| % Ownership: | 100.0000000000% | | |
| Total Value: | N/A | | |
| Tax Area: | 0320 - 1-48F2E2H2C2L1Z2 |
| CE | COUNTY CURRENT EXPENSE | N/A | N/A | N/A | N/A | | |
| CNTYDD | DEVELOPMENTAL DISABILITIES | N/A | N/A | N/A | N/A | | |
| CNTYVET | VETERANS RELIEF | N/A | N/A | N/A | N/A | | |
| MENTAL | MENTAL HEALTH | N/A | N/A | N/A | N/A | | |
| ROADS | COUNTY ROADS | N/A | N/A | N/A | N/A | | |
| HOSP2CASH | HOSP DIST #2 GENERAL | N/A | N/A | N/A | N/A | | |
| SCH48MO | SCHOOL DIST #48 EP & O | N/A | N/A | N/A | N/A | | |
| CEM2 | CEMETERY DIST #2 GENERAL | N/A | N/A | N/A | N/A | | |
| CONSERVE | CONSERVATION FUTURES | N/A | N/A | N/A | N/A | | |
| FD2 | FIRE DIST #2 GENERAL | N/A | N/A | N/A | N/A | | |
| LIB1 | LIBRARY DIST #1 GENERAL | N/A | N/A | N/A | N/A | | |
| PORTPT | PORT OF PT GENERAL | N/A | N/A | N/A | N/A | | |
| PORTPTIDD | PORT OF PT IDD 2019 | N/A | N/A | N/A | N/A | | |
| PUD1 | PUD #1 GENERAL | N/A | N/A | N/A | N/A | | |
| STATE | STATE SCHOOL PART 1 | N/A | N/A | N/A | N/A | | |
| STATE2 | STATE SCHOOL PART 2 | N/A | N/A | N/A | N/A | | |
| EMS2 | FIRE DIST #2 EMS | N/A | N/A | N/A | N/A | | |
| | Total Tax Rate: | N/A | | | | | |
| | | | | Taxes w/Current Exemptions: | N/A | | |
| | | | | Taxes w/o Exemptions: | N/A | | |
Improvement / Building
| Improvement #1: | Residential Bldg | State Code: | 18 | 0.0 sqft | Value: | $2,869 |
Sketch
Property Image
Land
| 1 | 2557-1173L | | 0.0000 | 0.00 | 0.00 | 0.00 | 1.00 | $24,150 | $0 |
Roll Value History
| 2026 | N/A | N/A | N/A | N/A | N/A |
| 2025 | $2,869 | $24,150 | $0 | $27,019 | $27,019 |
| 2024 | $2,750 | $23,100 | $0 | $25,850 | $25,850 |
| 2023 | $2,630 | $22,050 | $0 | $24,680 | $24,680 |
| 2022 | $2,391 | $21,000 | $0 | $23,391 | $23,391 |
Deed and Sales History
| 1 | 04/10/2015 | QCD | Quit Claim Deed | DUTCH INVESTORS LLC | THOMAS N EARLY | | | $7,000.00 | 123002 | |
| 2 | 03/25/2014 | QCD | Quit Claim Deed | ROBERTUS M & JACOBA VANDEWEGHE | VANDEWEGHE FAMILY TRUST | | | | 120970 | |
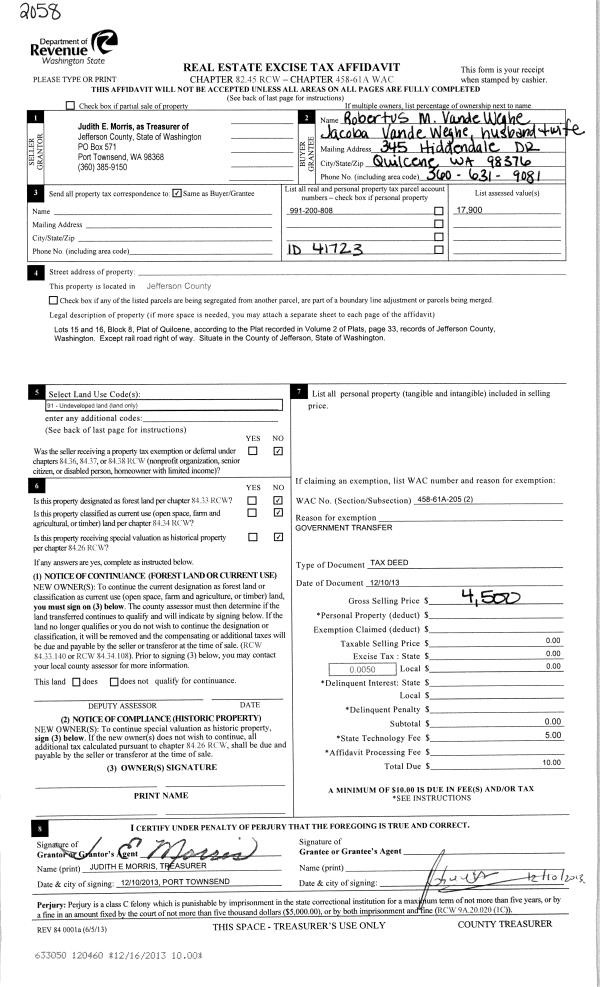
| 3 | 12/10/2013 | TXD | Tax Deed | JEFFERSON COUNTY | ROBERTUS M & JACOBA VANDEWEGHE | | | $4,500.00 | 120460 | |
| 4 | 11/18/2005 | WD | Warranty Deed | AMERICAN RESIDENTIAL EQUI | LANGE, KRISTOFOR J | 0 | 0 | $0.00 | 105498 | 0 |
| 5 | 10/27/2005 | QCD | Quit Claim Deed | FIRST INDIANA BANK | AMERICAN RESIDENTIAL EQUITIES | 0 | 0 | $99,518.00 | 105496 | 0 |
|   | |
| 6 | 04/30/2004 | TRED | Trustee Deed | NORTHWEST TRUSTEE SERVICE | FIRST INDIANA BANK | 0 | 0 | $0.00 | 100138 | 0 |
Payout Agreement
| No payout information available.. |