Property
Account |
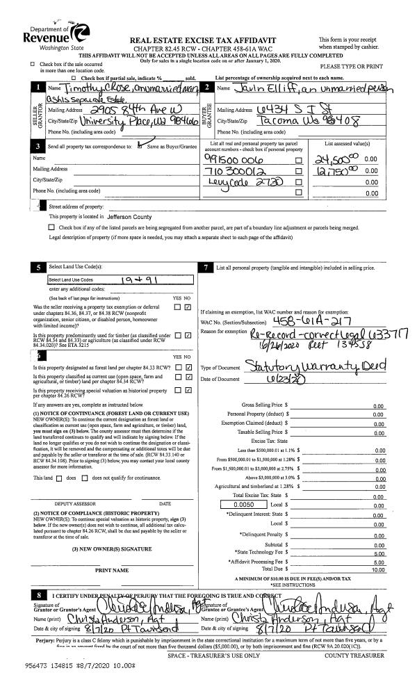
| Property ID: | 41815 | Abbreviated Legal Description: | RAIN FOREST #1 LOT 6 |
| Parcel # / Geo ID: | 991500006 | Agent Code: | |
| Type: | Real | | |
| Tax Area: | 0601 - 1-402H1L1 | Land Use Code | 19 |
| Open Space: | N | DFL | N |
| Historic Property: | N | Remodel Property: | N |
| Multi-Family Redevelopment: | N | | |
| Township: | 27N | Section: | 30 |
| Range: | 10W |
Location |
| Address: | 2780 RAINFOREST RD FORKS, WA 98331 | Mapsco: | 900/055 |
| Neighborhood: | ALL SECTIONS T27N R10W (UPPER HOH,BRANDEBERRY EST, RAIN FOR) | Map ID: | |
| Neighborhood CD: | 1730 |
Owner |
| Name: | JAVIN ELLIFF | Owner ID: | 92122 |
| Mailing Address: | 6434 S I ST TACOMA, WA 98408-4522 | % Ownership: | 100.0000000000% |
| | | Exemptions: | |
Pay Tax Due
Select the appropriate checkbox next to the year to be paid. Multiple years may be selected.
*Convenience Fee not included
Taxes and Assessment Details
Property Tax Information as of
03/10/2026
Click on "Statement Details" to expand or collapse a tax statement.
* Please enter a valid date ** Please enter a valid date *
Statement Details |
| 2026 | 30980 | STATE - STATE LEVY (SCHOOL) | $113.72 | $113.72 | $0.00 | $0.00 | $0.00 | $227.44 |
| 2026 | 30980 | COUNTY - COUNTY LEVIES (CE, DD, VET, MH) | $45.47 | $45.46 | $0.00 | $0.00 | $0.00 | $90.93 |
| 2026 | 30980 | CONSERVE - CONSERVATION FUTURES | $1.37 | $1.36 | $0.00 | $0.00 | $0.00 | $2.73 |
| 2026 | 30980 | COROADS - COUNTY ROADS (ROADS, DIV TO CE) | $36.68 | $36.67 | $0.00 | $0.00 | $0.00 | $73.35 |
| 2026 | 30980 | PORTPT - PORT DISTRICT | $18.37 | $18.36 | $0.00 | $0.00 | $0.00 | $36.73 |
| 2026 | 30980 | PUD1 - PUD #1 | $2.96 | $2.95 | $0.00 | $0.00 | $0.00 | $5.91 |
| 2026 | 30980 | LIB1 - LIBRARY DIST #1 | $14.19 | $14.19 | $0.00 | $0.00 | $0.00 | $28.38 |
| 2026 | 30980 | HD1 - HOSP DIST #1 | $27.23 | $27.22 | $0.00 | $0.00 | $0.00 | $54.45 |
| 2026 | 30980 | SD402 - SCHOOL DIST #402 | $141.24 | $141.23 | $0.00 | $0.00 | $0.00 | $282.47 |
| 2026 | 30980 | FPLCA - DNR Landowner Contingency Assmt | $3.00 | $3.00 | $0.00 | $0.00 | $0.00 | $6.00 |
| 2026 | 30980 | JCCD - JC Conservation District | $2.60 | $2.60 | $0.00 | $0.00 | $0.00 | $5.20 |
| 2026 | 30980 | NWA - Noxious Weed Assessment | $3.20 | $3.20 | $0.00 | $0.00 | $0.00 | $6.40 |
| 2026 | 30980 | TOTAL: | $410.03 | $409.96 | $0.00 | $0.00 | $0.00 | $819.99 |
|
| 2026 | 30980 | $410.03 | $409.96 | $0.00 | $0.00 | $0.00 | $819.99 |
Statement Details |
| 2025 | 31052 | STATE - STATE LEVY (SCHOOL) | $118.62 | $118.61 | $0.00 | $0.00 | $237.23 | $0.00 |
| 2025 | 31052 | COUNTY - COUNTY LEVIES (CE, DD, VET, MH) | $46.66 | $46.63 | $0.00 | $0.00 | $93.29 | $0.00 |
| 2025 | 31052 | CONSERVE - CONSERVATION FUTURES | $1.40 | $1.40 | $0.00 | $0.00 | $2.80 | $0.00 |
| 2025 | 31052 | COROADS - COUNTY ROADS (ROADS, DIV TO CE) | $37.37 | $37.37 | $0.00 | $0.00 | $74.74 | $0.00 |
| 2025 | 31052 | PORTPT - PORT DISTRICT | $19.04 | $19.03 | $0.00 | $0.00 | $38.07 | $0.00 |
| 2025 | 31052 | PUD1 - PUD #1 | $3.05 | $3.05 | $0.00 | $0.00 | $6.10 | $0.00 |
| 2025 | 31052 | LIB1 - LIBRARY DIST #1 | $14.46 | $14.46 | $0.00 | $0.00 | $28.92 | $0.00 |
| 2025 | 31052 | HD1 - HOSP DIST #1 | $27.92 | $27.92 | $0.00 | $0.00 | $55.84 | $0.00 |
| 2025 | 31052 | SD402 - SCHOOL DIST #402 | $107.77 | $107.76 | $0.00 | $0.00 | $215.53 | $0.00 |
| 2025 | 31052 | FPLCA - DNR Landowner Contingency Assmt | $3.00 | $3.00 | $0.00 | $0.00 | $6.00 | $0.00 |
| 2025 | 31052 | JCCD - JC Conservation District | $2.60 | $2.60 | $0.00 | $0.00 | $5.20 | $0.00 |
| 2025 | 31052 | NWA - Noxious Weed Assessment | $2.30 | $2.30 | $0.00 | $0.00 | $4.60 | $0.00 |
| 2025 | 31052 | TOTAL: | $384.19 | $384.13 | $0.00 | $0.00 | $768.32 | $0.00 |
|
| 2025 | 31052 | $384.19 | $384.13 | $0.00 | $0.00 | $768.32 | $0.00 |
Statement Details |
| 2024 | 31112 | STATE - STATE LEVY (SCHOOL) | $106.34 | $106.33 | $0.00 | $0.00 | $212.67 | $0.00 |
| 2024 | 31112 | COUNTY - COUNTY LEVIES (CE, DD, VET, MH) | $45.51 | $45.49 | $0.00 | $0.00 | $91.00 | $0.00 |
| 2024 | 31112 | CONSERVE - CONSERVATION FUTURES | $1.37 | $1.36 | $0.00 | $0.00 | $2.73 | $0.00 |
| 2024 | 31112 | COROADS - COUNTY ROADS (ROADS, DIV TO CE) | $36.62 | $36.61 | $0.00 | $0.00 | $73.23 | $0.00 |
| 2024 | 31112 | PORTPT - PORT DISTRICT | $18.80 | $18.79 | $0.00 | $0.00 | $37.59 | $0.00 |
| 2024 | 31112 | PUD1 - PUD #1 | $2.99 | $2.99 | $0.00 | $0.00 | $5.98 | $0.00 |
| 2024 | 31112 | LIB1 - LIBRARY DIST #1 | $14.17 | $14.16 | $0.00 | $0.00 | $28.33 | $0.00 |
| 2024 | 31112 | HD1 - HOSP DIST #1 | $27.04 | $27.03 | $0.00 | $0.00 | $54.07 | $0.00 |
| 2024 | 31112 | SD402 - SCHOOL DIST #402 | $94.45 | $94.43 | $0.00 | $0.00 | $188.88 | $0.00 |
| 2024 | 31112 | FPLCA - DNR Landowner Contingency Assmt | $3.00 | $3.00 | $0.00 | $0.00 | $6.00 | $0.00 |
| 2024 | 31112 | JCCD - JC Conservation District | $2.60 | $2.60 | $0.00 | $0.00 | $5.20 | $0.00 |
| 2024 | 31112 | NWA - Noxious Weed Assessment | $2.30 | $2.30 | $0.00 | $0.00 | $4.60 | $0.00 |
| 2024 | 31112 | TOTAL: | $355.19 | $355.09 | $0.00 | $0.00 | $710.28 | $0.00 |
|
| 2024 | 31112 | $355.19 | $355.09 | $0.00 | $0.00 | $710.28 | $0.00 |
Statement Details |
| 2023 | 31154 | STATE - STATE LEVY (SCHOOL) | $108.21 | $108.19 | $0.00 | $0.00 | $216.40 | $0.00 |
| 2023 | 31154 | COUNTY - COUNTY LEVIES (CE, DD, VET, MH) | $47.22 | $47.22 | $0.00 | $0.00 | $94.44 | $0.00 |
| 2023 | 31154 | CONSERVE - CONSERVATION FUTURES | $1.42 | $1.41 | $0.00 | $0.00 | $2.83 | $0.00 |
| 2023 | 31154 | COROADS - COUNTY ROADS (ROADS, DIV TO CE) | $38.21 | $38.19 | $0.00 | $0.00 | $76.40 | $0.00 |
| 2023 | 31154 | PORTPT - PORT DISTRICT | $19.89 | $19.89 | $0.00 | $0.00 | $39.78 | $0.00 |
| 2023 | 31154 | PUD1 - PUD #1 | $3.13 | $3.13 | $0.00 | $0.00 | $6.26 | $0.00 |
| 2023 | 31154 | LIB1 - LIBRARY DIST #1 | $14.78 | $14.78 | $0.00 | $0.00 | $29.56 | $0.00 |
| 2023 | 31154 | HD1 - HOSP DIST #1 | $27.26 | $27.26 | $0.00 | $0.00 | $54.52 | $0.00 |
| 2023 | 31154 | SD402 - SCHOOL DIST #402 | $106.18 | $106.18 | $0.00 | $0.00 | $212.36 | $0.00 |
| 2023 | 31154 | FPLCA - DNR Landowner Contingency Assmt | $3.00 | $3.00 | $0.00 | $0.00 | $6.00 | $0.00 |
| 2023 | 31154 | JCCD - JC Conservation District | $2.60 | $2.60 | $0.00 | $0.00 | $5.20 | $0.00 |
| 2023 | 31154 | NWA - Noxious Weed Assessment | $2.30 | $2.30 | $0.00 | $0.00 | $4.60 | $0.00 |
| 2023 | 31154 | TOTAL: | $374.20 | $374.15 | $0.00 | $0.00 | $748.35 | $0.00 |
|
| 2023 | 31154 | $374.20 | $374.15 | $0.00 | $0.00 | $748.35 | $0.00 |
Values
| (+) Improvement Homesite Value: | + | $0 | |
| (+) Improvement Non-Homesite Value: | + | $74,925 | |
| (+) Land Homesite Value: | + | $0 | |
| (+) Land Non-Homesite Value: | + | $24,000 | |
| (+) Curr Use (HS): | + | $0 | $0 |
| (+) Curr Use (NHS): | + | $0 | $0 |
| | | -------------------------- | |
| (=) Market Value: | = | $98,925 | |
| (–) Productivity Loss: | – | $0 | |
| | | -------------------------- | |
| (=) Subtotal: | = | $98,925 | |
| (+) Senior Appraised Value: | + | $0 | |
| (+) Non-Senior Appraised Value: | + | $98,925 | |
| | | -------------------------- | |
| (=) Total Appraised Value: | = | $98,925 | |
| (–) Senior Exemption Loss: | – | $0 | |
| (–) Exemption Loss: | – | $0 | |
| | | -------------------------- | |
| (=) Taxable Value: | = | $98,925 | |
Taxing Jurisdiction
| Owner: | JAVIN ELLIFF | | |
| % Ownership: | 100.0000000000% | | |
| Total Value: | $98,925 | | |
| Tax Area: | 0601 - 1-402H1L1 |
| CE | COUNTY CURRENT EXPENSE | 0.9034619479 | $98,925 | $98,925 | $89.37 | | |
| CNTYDD | DEVELOPMENTAL DISABILITIES | 0.0052121823 | $98,925 | $98,925 | $0.52 | | |
| CNTYVET | VETERANS RELIEF | 0.0052777810 | $98,925 | $98,925 | $0.52 | | |
| MENTAL | MENTAL HEALTH | 0.0052121823 | $98,925 | $98,925 | $0.52 | | |
| ROADS | COUNTY ROADS | 0.7415066410 | $98,925 | $98,925 | $73.35 | | |
| ROADSCU | COUNTY ROADS TO CUR EXP | 0.0000000000 | $98,925 | $98,925 | $0.00 | | |
| HOS1GEN | HOSP DIST #1 GENERAL | 0.5503668747 | $98,925 | $98,925 | $54.45 | | |
| SCH402BOND | SCHOOL DIST #402 BOND | 1.2974778650 | $98,925 | $98,925 | $128.35 | | |
| SCH402MO | SCHOOL DIST #402 EP & O | 1.5579855743 | $98,925 | $98,925 | $154.12 | | |
| CONSERVE | CONSERVATION FUTURES | 0.0275621078 | $98,925 | $98,925 | $2.73 | | |
| LIB1 | LIBRARY DIST #1 GENERAL | 0.2868827388 | $98,925 | $98,925 | $28.38 | | |
| PORTPT | PORT OF PT GENERAL | 0.1134941229 | $98,925 | $98,925 | $11.23 | | |
| PORTPTIDD | PORT OF PT IDD 2019 | 0.2577346692 | $98,925 | $98,925 | $25.50 | | |
| PUD1 | PUD #1 GENERAL | 0.0597888892 | $98,925 | $98,925 | $5.91 | | |
| STATE | STATE SCHOOL PART 1 | 1.4940692947 | $98,925 | $98,925 | $147.80 | | |
| STATE2 | STATE SCHOOL PART 2 | 0.8050170049 | $98,925 | $98,925 | $79.64 | | |
| | Total Tax Rate: | 8.1110498760 | | | | | |
| | | | | Taxes w/Current Exemptions: | $802.39 | | |
| | | | | Taxes w/o Exemptions: | $802.39 | | |
Improvement / Building
| Improvement #1: | Residential Bldg | State Code: | 19 | 672.0 sqft | Value: | $74,925 |
| Exterior Wall: | PL/T1 | Floor Construction: | FRAME | | Foundation: | PO&BL | Heating/Cooling: | OTHER | | Inside Verify: | NO | Interior Finish: | FIN | | Roof Cover: | METAL |   |   |
|
| | Type | Description | Class CD | Sub Class CD | Year Built | Area |
| | MA | Main Area | 4 | 15SF | 1992 | 672.0 |
| | CLOFT | Cabin Loft | 4 | 15SF | 1992 | 192.0 |
| | CWPOR | Cabin Wood Porch | 4 | * | 1992 | 112.0 |
| | CARPT | Carport (Table Not Dep) | 4 | * | 1992 | 160.0 |
| | SHED | Shed (Table Not Dep) | 4 | * | 1992 | 144.0 |
Sketch
Property Image
Land
| 1 | WEST-1385S | | 1.0000 | 43560.00 | 0.00 | 0.00 | 1.00 | $24,000 | $0 |
Roll Value History
| 2026 | N/A | N/A | N/A | N/A | N/A |
| 2025 | $74,925 | $24,000 | $0 | $98,925 | $98,925 |
| 2024 | $74,925 | $24,000 | $0 | $98,925 | $98,925 |
| 2023 | $74,925 | $17,000 | $0 | $91,925 | $91,925 |
| 2022 | $74,925 | $17,000 | $0 | $91,925 | $91,925 |
Deed and Sales History
| 1 | 06/23/2020 | SWD | Statutory Warranty Deed | | | | | | 134815 | |
| 2 | 06/23/2020 | SWD | Statutory Warranty Deed | TIMOTHY C ROSE | JAVIN ELLIFF | | | $140,000.00 | 134558 | |
|   | |
| 3 | 09/17/1991 | QCD | Quit Claim Deed | MCCABE, PATRICIA ELLEA | ROSE, TIMOTHY C | 0 | 0 | $0.00 | 67765 | 0 |
Payout Agreement
| No payout information available.. |