Property
Account |
| Property ID: | 41856 | Abbreviated Legal Description: | RONDELAY MEADOWS LOT 11 |
| Parcel # / Geo ID: | 991900011 | Agent Code: | |
| Type: | Real | | |
| Tax Area: | 0781 - 1-323F8E8H2C3L1 | Land Use Code | 11 |
| Open Space: | N | DFL | N |
| Historic Property: | N | Remodel Property: | N |
| Multi-Family Redevelopment: | N | | |
| Township: | 30N | Section: | 28 |
| Range: | 2W |
Location |
| Address: | 390 SUNSHINE DR SEQUIM, WA 98382 | Mapsco: | 064/020 |
| Neighborhood: | S27 & 28 T30 R2W, RONDELAY MEADOWS | Map ID: | |
| Neighborhood CD: | 2670 |
Owner |
| Name: | DOUGLAS A & WENDY J CARTER | Owner ID: | 100762 |
| Mailing Address: | 390 SUNSHINE DR SEQUIM, WA 98382-8713 | % Ownership: | 100.0000000000% |
| | | Exemptions: | |
Pay Tax Due
There is currently No Amount Due on this property.
Taxes and Assessment Details
Property Tax Information as of
03/12/2026
Click on "Statement Details" to expand or collapse a tax statement.
* Please enter a valid date ** Please enter a valid date *
Statement Details |
| | TOTAL: | $0.00 | $0.00 | $0.00 | $0.00 | $0.00 | $0.00 |
|
| | $0.00 | $0.00 | $0.00 | $0.00 | $0.00 | $0.00 |
Values
| (+) Improvement Homesite Value: | + | $0 | |
| (+) Improvement Non-Homesite Value: | + | $110,837 | |
| (+) Land Homesite Value: | + | $0 | |
| (+) Land Non-Homesite Value: | + | $154,761 | |
| (+) Curr Use (HS): | + | $0 | $0 |
| (+) Curr Use (NHS): | + | $0 | $0 |
| | | -------------------------- | |
| (=) Market Value: | = | $265,598 | |
| (–) Productivity Loss: | – | $0 | |
| | | -------------------------- | |
| (=) Subtotal: | = | $265,598 | |
| (+) Senior Appraised Value: | + | $0 | |
| (+) Non-Senior Appraised Value: | + | $265,598 | |
| | | -------------------------- | |
| (=) Total Appraised Value: | = | $265,598 | |
| (–) Senior Exemption Loss: | – | $0 | |
| (–) Exemption Loss: | – | $0 | |
| | | -------------------------- | |
| (=) Taxable Value: | = | $265,598 | |
Taxing Jurisdiction
| Owner: | DOUGLAS A & WENDY J CARTER | | |
| % Ownership: | 100.0000000000% | | |
| Total Value: | $265,598 | | |
| Tax Area: | 0781 - 1-323F8E8H2C3L1 |
| CE | COUNTY CURRENT EXPENSE | 0.9034619479 | $265,598 | $265,598 | $239.96 | | |
| CNTYDD | DEVELOPMENTAL DISABILITIES | 0.0052121823 | $265,598 | $265,598 | $1.38 | | |
| CNTYVET | VETERANS RELIEF | 0.0052777810 | $265,598 | $265,598 | $1.40 | | |
| MENTAL | MENTAL HEALTH | 0.0052121823 | $265,598 | $265,598 | $1.38 | | |
| ROADS | COUNTY ROADS | 0.7415066410 | $265,598 | $265,598 | $196.94 | | |
| ROADSCU | COUNTY ROADS TO CUR EXP | 0.0000000000 | $265,598 | $265,598 | $0.00 | | |
| HOSP2CASH | HOSP DIST #2 GENERAL | 0.0536075306 | $265,598 | $265,598 | $14.24 | | |
| SCH323BOND | SCHOOL DIST #323 BOND | 0.9080943643 | $265,598 | $265,598 | $241.19 | | |
| SCH323CP | SCHOOL DIST #323 CAP PROJ | 0.0000000000 | $265,598 | $265,598 | $0.00 | | |
| SCH323MO | SCHOOL DIST #323 EP & O | 0.9372055494 | $265,598 | $265,598 | $248.92 | | |
| CEM3 | CEMETERY DIST #3 GENERAL | 0.0249992283 | $265,598 | $265,598 | $6.64 | | |
| CONSERVE | CONSERVATION FUTURES | 0.0275621078 | $265,598 | $265,598 | $7.32 | | |
| EMS8 | FIRE DIST #8 EMS | 0.3434101125 | $265,598 | $265,598 | $91.21 | | |
| FD8 | FIRE DIST #8 GENERAL | 1.5000000000 | $265,598 | $265,598 | $398.40 | | |
| LIB1 | LIBRARY DIST #1 GENERAL | 0.2868827388 | $265,598 | $265,598 | $76.20 | | |
| PORTPT | PORT OF PT GENERAL | 0.1134941229 | $265,598 | $265,598 | $30.14 | | |
| PORTPTIDD | PORT OF PT IDD 2019 | 0.2577346692 | $265,598 | $265,598 | $68.45 | | |
| PUD1 | PUD #1 GENERAL | 0.0597888892 | $265,598 | $265,598 | $15.88 | | |
| STATE | STATE SCHOOL PART 1 | 1.4940692947 | $265,598 | $265,598 | $396.82 | | |
| STATE2 | STATE SCHOOL PART 2 | 0.8050170049 | $265,598 | $265,598 | $213.81 | | |
| | Total Tax Rate: | 8.4725363471 | | | | | |
| | | | | Taxes w/Current Exemptions: | $2,250.28 | | |
| | | | | Taxes w/o Exemptions: | $2,250.28 | | |
Improvement / Building
| Improvement #1: | Manufactured Home | State Code: | 11 | 936.0 sqft | Value: | $110,837 |
| Bathrooms (#): | 2 (FULL) | Bedrooms (#): | 2 | | Exterior Wall: | SI/ST | Fireplace: | WD ST-AVG | | Foundation: | PO&BL | Heating/Cooling: | F/A | | Roof Cover: | METAL |   |   |
|
| | Type | Description | Class CD | Sub Class CD | Year Built | Area |
| | MA | Main Area | 4 | MSG | 1977 | 936.0 |
| | MDECK | MH Deck | 4 | * | 1977 | 112.0 |
| | MENCL | MH Enclosure | 4 | * | 1977 | 120.0 |
| | MSKIRT_MTL | MH Skirting - Metal/Vinyl | 4 | * | 1977 | 148.0 |
| | GARAG | Garage (Table Not Dep) | 3 | * | 1977 | 480.0 |
Sketch
Property Image
Land
| 1 | 2670-1372S | V Good Terr View Sites 1+ Acre | 1.0000 | 43560.00 | 0.00 | 0.00 | 1.00 | $138,000 | $0 |
| 2 | 1572A | Terr/Mtn/No View <6 Acres | 1.0600 | 46173.60 | 0.00 | 0.00 | 0.00 | $16,761 | $0 |
Roll Value History
| 2026 | N/A | N/A | N/A | N/A | N/A |
| 2025 | $110,837 | $154,761 | $0 | $265,598 | $265,598 |
| 2024 | $106,219 | $148,033 | $0 | $254,252 | $254,252 |
| 2023 | $111,005 | $135,219 | $0 | $246,224 | $246,224 |
| 2022 | $100,914 | $120,600 | $0 | $221,514 | $221,514 |
Deed and Sales History
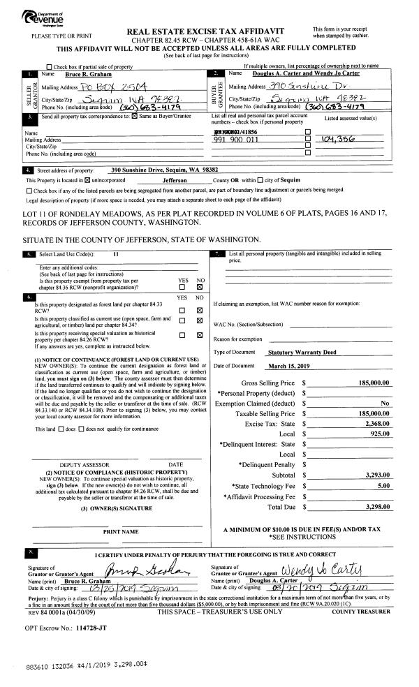
| 1 | 03/15/2019 | SWD | Statutory Warranty Deed | BRUCE R GRAHAM | DOUGLAS A & WENDY J CARTER | | | $185,000.00 | 132036 | |
| 2 | 04/19/2018 | QCD | Quit Claim Deed | | | | | | 130384 | |
| 3 | 12/01/2009 | SWD | Statutory Warranty Deed | OTTE, MARJORIE E AKA CLIN | GRAHAM, BRUCE/MCADAM, MICHELE | 0 | 0 | $125,000.00 | 113797 | 0 |
Payout Agreement
| No payout information available.. |