Property
Account |
| Property ID: | 41903 | Abbreviated Legal Description: | SAN JUAN ESTATES LOT 22 |
| Parcel # / Geo ID: | 992300022 | Agent Code: | |
| Type: | Real | | |
| Tax Area: | 0110 - C-50F1E1H2 | Land Use Code | 11 |
| Open Space: | N | DFL | N |
| Historic Property: | N | Remodel Property: | N |
| Multi-Family Redevelopment: | N | | |
| Township: | 31N | Section: | 35 |
| Range: | 1W |
Location |
| Address: | 1449 LOPEZ AVE PORT TOWNSEND, WA 98368 | Mapsco: | 130/020 |
| Neighborhood: | SAN JUAN ESTATES LP LOVAN AND NORTHVIEW SP | Map ID: | |
| Neighborhood CD: | 6400 |
Owner |
| Name: | TERA MITTON | Owner ID: | 110939 |
| Mailing Address: | AARON TAYLOR 1449 LOPEZ AVE PORT TOWNSEND, WA 98368-2702 | % Ownership: | 100.0000000000% |
| | | Exemptions: | |
Pay Tax Due
Select the appropriate checkbox next to the year to be paid. Multiple years may be selected.
*Convenience Fee not included
Taxes and Assessment Details
Property Tax Information as of
03/10/2026
Click on "Statement Details" to expand or collapse a tax statement.
* Please enter a valid date ** Please enter a valid date *
Statement Details |
| 2026 | 31068 | STATE - STATE LEVY (SCHOOL) | $600.18 | $600.18 | $0.00 | $0.00 | $0.00 | $1200.36 |
| 2026 | 31068 | COUNTY - COUNTY LEVIES (CE, DD, VET, MH) | $239.95 | $239.95 | $0.00 | $0.00 | $0.00 | $479.90 |
| 2026 | 31068 | CONSERVE - CONSERVATION FUTURES | $7.20 | $7.19 | $0.00 | $0.00 | $0.00 | $14.39 |
| 2026 | 31068 | CITYPT - CITY OF PT | $340.60 | $340.58 | $0.00 | $0.00 | $0.00 | $681.18 |
| 2026 | 31068 | PORTPT - PORT DISTRICT | $96.91 | $96.91 | $0.00 | $0.00 | $0.00 | $193.82 |
| 2026 | 31068 | PUD1 - PUD #1 | $15.61 | $15.61 | $0.00 | $0.00 | $0.00 | $31.22 |
| 2026 | 31068 | HD2 - HOSP DIST #2 | $14.00 | $13.99 | $0.00 | $0.00 | $0.00 | $27.99 |
| 2026 | 31068 | SD50 - SCHOOL DIST #50 | $475.47 | $475.47 | $0.00 | $0.00 | $0.00 | $950.94 |
| 2026 | 31068 | FD1 - FIRE DISTRICT #1 | $317.75 | $317.75 | $0.00 | $0.00 | $0.00 | $635.50 |
| 2026 | 31068 | EMS1 - FIRE DIST #1 EMS | $122.17 | $122.17 | $0.00 | $0.00 | $0.00 | $244.34 |
| 2026 | 31068 | JCCD - JC Conservation District | $2.55 | $2.55 | $0.00 | $0.00 | $0.00 | $5.10 |
| 2026 | 31068 | NWA - Noxious Weed Assessment | $2.98 | $2.97 | $0.00 | $0.00 | $0.00 | $5.95 |
| 2026 | 31068 | TOTAL: | $2235.37 | $2235.32 | $0.00 | $0.00 | $0.00 | $4470.69 |
|
| 2026 | 31068 | $2235.37 | $2235.32 | $0.00 | $0.00 | $0.00 | $4470.69 |
Statement Details |
| 2025 | 31140 | STATE - STATE LEVY (SCHOOL) | $614.30 | $614.28 | $0.00 | $0.00 | $1228.58 | $0.00 |
| 2025 | 31140 | COUNTY - COUNTY LEVIES (CE, DD, VET, MH) | $241.58 | $241.55 | $0.00 | $0.00 | $483.13 | $0.00 |
| 2025 | 31140 | CONSERVE - CONSERVATION FUTURES | $7.25 | $7.24 | $0.00 | $0.00 | $14.49 | $0.00 |
| 2025 | 31140 | CITYPT - CITY OF PT | $348.37 | $348.36 | $0.00 | $0.00 | $696.73 | $0.00 |
| 2025 | 31140 | PORTPT - PORT DISTRICT | $98.58 | $98.56 | $0.00 | $0.00 | $197.14 | $0.00 |
| 2025 | 31140 | PUD1 - PUD #1 | $15.81 | $15.80 | $0.00 | $0.00 | $31.61 | $0.00 |
| 2025 | 31140 | HD2 - HOSP DIST #2 | $14.10 | $14.09 | $0.00 | $0.00 | $28.19 | $0.00 |
| 2025 | 31140 | SD50 - SCHOOL DIST #50 | $448.95 | $448.94 | $0.00 | $0.00 | $897.89 | $0.00 |
| 2025 | 31140 | FD1 - FIRE DISTRICT #1 | $318.78 | $318.77 | $0.00 | $0.00 | $637.55 | $0.00 |
| 2025 | 31140 | EMS1 - FIRE DIST #1 EMS | $122.61 | $122.61 | $0.00 | $0.00 | $245.22 | $0.00 |
| 2025 | 31140 | JCCD - JC Conservation District | $2.55 | $2.55 | $0.00 | $0.00 | $5.10 | $0.00 |
| 2025 | 31140 | NWA - Noxious Weed Assessment | $2.15 | $2.15 | $0.00 | $0.00 | $4.30 | $0.00 |
| 2025 | 31140 | TOTAL: | $2235.03 | $2234.90 | $0.00 | $0.00 | $4469.93 | $0.00 |
|
| 2025 | 31140 | $2235.03 | $2234.90 | $0.00 | $0.00 | $4469.93 | $0.00 |
Statement Details |
| 2024 | 31199 | STATE - STATE LEVY (SCHOOL) | $515.46 | $515.44 | $0.00 | $0.00 | $1030.90 | $0.00 |
| 2024 | 31199 | COUNTY - COUNTY LEVIES (CE, DD, VET, MH) | $220.58 | $220.55 | $0.00 | $0.00 | $441.13 | $0.00 |
| 2024 | 31199 | CONSERVE - CONSERVATION FUTURES | $6.62 | $6.61 | $0.00 | $0.00 | $13.23 | $0.00 |
| 2024 | 31199 | CITYPT - CITY OF PT | $315.16 | $315.15 | $0.00 | $0.00 | $630.31 | $0.00 |
| 2024 | 31199 | PORTPT - PORT DISTRICT | $91.11 | $91.10 | $0.00 | $0.00 | $182.21 | $0.00 |
| 2024 | 31199 | PUD1 - PUD #1 | $14.49 | $14.49 | $0.00 | $0.00 | $28.98 | $0.00 |
| 2024 | 31199 | HD2 - HOSP DIST #2 | $12.87 | $12.87 | $0.00 | $0.00 | $25.74 | $0.00 |
| 2024 | 31199 | SD50 - SCHOOL DIST #50 | $417.04 | $417.01 | $0.00 | $0.00 | $834.05 | $0.00 |
| 2024 | 31199 | FD1 - FIRE DISTRICT #1 | $291.64 | $291.64 | $0.00 | $0.00 | $583.28 | $0.00 |
| 2024 | 31199 | EMS1 - FIRE DIST #1 EMS | $111.40 | $111.39 | $0.00 | $0.00 | $222.79 | $0.00 |
| 2024 | 31199 | JCCD - JC Conservation District | $2.55 | $2.55 | $0.00 | $0.00 | $5.10 | $0.00 |
| 2024 | 31199 | NWA - Noxious Weed Assessment | $2.15 | $2.15 | $0.00 | $0.00 | $4.30 | $0.00 |
| 2024 | 31199 | TOTAL: | $2001.07 | $2000.95 | $0.00 | $0.00 | $4002.02 | $0.00 |
|
| 2024 | 31199 | $2001.07 | $2000.95 | $0.00 | $0.00 | $4002.02 | $0.00 |
Statement Details |
| 2023 | 31241 | STATE - STATE LEVY (SCHOOL) | $518.61 | $518.60 | $0.00 | $0.00 | $1037.21 | $0.00 |
| 2023 | 31241 | COUNTY - COUNTY LEVIES (CE, DD, VET, MH) | $226.31 | $226.29 | $0.00 | $0.00 | $452.60 | $0.00 |
| 2023 | 31241 | CONSERVE - CONSERVATION FUTURES | $6.79 | $6.78 | $0.00 | $0.00 | $13.57 | $0.00 |
| 2023 | 31241 | CITYPT - CITY OF PT | $319.85 | $319.83 | $0.00 | $0.00 | $639.68 | $0.00 |
| 2023 | 31241 | PORTPT - PORT DISTRICT | $95.34 | $95.33 | $0.00 | $0.00 | $190.67 | $0.00 |
| 2023 | 31241 | PUD1 - PUD #1 | $15.00 | $15.00 | $0.00 | $0.00 | $30.00 | $0.00 |
| 2023 | 31241 | HD2 - HOSP DIST #2 | $13.21 | $13.20 | $0.00 | $0.00 | $26.41 | $0.00 |
| 2023 | 31241 | SD50 - SCHOOL DIST #50 | $411.53 | $411.50 | $0.00 | $0.00 | $823.03 | $0.00 |
| 2023 | 31241 | FD1 - FIRE DISTRICT #1 | $186.43 | $186.43 | $0.00 | $0.00 | $372.86 | $0.00 |
| 2023 | 31241 | EMS1 - FIRE DIST #1 EMS | $79.31 | $79.30 | $0.00 | $0.00 | $158.61 | $0.00 |
| 2023 | 31241 | JCCD - JC Conservation District | $2.55 | $2.55 | $0.00 | $0.00 | $5.10 | $0.00 |
| 2023 | 31241 | NWA - Noxious Weed Assessment | $2.15 | $2.15 | $0.00 | $0.00 | $4.30 | $0.00 |
| 2023 | 31241 | TOTAL: | $1877.08 | $1876.96 | $0.00 | $0.00 | $3754.04 | $0.00 |
|
| 2023 | 31241 | $1877.08 | $1876.96 | $0.00 | $0.00 | $3754.04 | $0.00 |
Values
| (+) Improvement Homesite Value: | + | $0 | |
| (+) Improvement Non-Homesite Value: | + | $312,101 | |
| (+) Land Homesite Value: | + | $0 | |
| (+) Land Non-Homesite Value: | + | $210,000 | |
| (+) Curr Use (HS): | + | $0 | $0 |
| (+) Curr Use (NHS): | + | $0 | $0 |
| | | -------------------------- | |
| (=) Market Value: | = | $522,101 | |
| (–) Productivity Loss: | – | $0 | |
| | | -------------------------- | |
| (=) Subtotal: | = | $522,101 | |
| (+) Senior Appraised Value: | + | $0 | |
| (+) Non-Senior Appraised Value: | + | $522,101 | |
| | | -------------------------- | |
| (=) Total Appraised Value: | = | $522,101 | |
| (–) Senior Exemption Loss: | – | $0 | |
| (–) Exemption Loss: | – | $0 | |
| | | -------------------------- | |
| (=) Taxable Value: | = | $522,101 | |
Taxing Jurisdiction
| Owner: | TERA MITTON | | |
| % Ownership: | 100.0000000000% | | |
| Total Value: | $522,101 | | |
| Tax Area: | 0110 - C-50F1E1H2 |
| CE | COUNTY CURRENT EXPENSE | 0.9034619479 | $522,101 | $522,101 | $471.70 | | |
| CNTYDD | DEVELOPMENTAL DISABILITIES | 0.0052121823 | $522,101 | $522,101 | $2.72 | | |
| CNTYVET | VETERANS RELIEF | 0.0052777810 | $522,101 | $522,101 | $2.76 | | |
| MENTAL | MENTAL HEALTH | 0.0052121823 | $522,101 | $522,101 | $2.72 | | |
| PTGEN | CITY OF PT GENERAL | 0.8551967795 | $522,101 | $522,101 | $446.50 | | |
| PTLLL | CITY OF PT - LIBRARY LID LIFT | 0.4010114288 | $522,101 | $522,101 | $209.37 | | |
| PTMVBOND | CITY OF PT MV BOND | 0.0484717981 | $522,101 | $522,101 | $25.31 | | |
| HOSP2CASH | HOSP DIST #2 GENERAL | 0.0536075306 | $522,101 | $522,101 | $27.99 | | |
| SCH50BOND | SCHOOL DIST #50 BOND 2016 | 0.5377451389 | $522,101 | $522,101 | $280.76 | | |
| SCH50CP | SCHOOL DIST #50 CAP PROJ | 0.4573475088 | $522,101 | $522,101 | $238.78 | | |
| SCH50MO | SCHOOL DIST #50 EP & O | 0.8262822886 | $522,101 | $522,101 | $431.40 | | |
| CONSERVE | CONSERVATION FUTURES | 0.0275621078 | $522,101 | $522,101 | $14.39 | | |
| EMS1 | FIRE DIST #1 EMS | 0.4679948282 | $522,101 | $522,101 | $244.34 | | |
| FD1 | FIRE DIST #1 GENERAL | 1.2171942929 | $522,101 | $522,101 | $635.50 | | |
| PORTPT | PORT OF PT GENERAL | 0.1134941229 | $522,101 | $522,101 | $59.26 | | |
| PORTPTIDD | PORT OF PT IDD 2019 | 0.2577346692 | $522,101 | $522,101 | $134.56 | | |
| PUD1 | PUD #1 GENERAL | 0.0597888892 | $522,101 | $522,101 | $31.22 | | |
| STATE | STATE SCHOOL PART 1 | 1.4940692947 | $522,101 | $522,101 | $780.06 | | |
| STATE2 | STATE SCHOOL PART 2 | 0.8050170049 | $522,101 | $522,101 | $420.30 | | |
| | Total Tax Rate: | 8.5416817766 | | | | | |
| | | | | Taxes w/Current Exemptions: | $4,459.64 | | |
| | | | | Taxes w/o Exemptions: | $4,459.64 | | |
Improvement / Building
| Improvement #1: | Residential Bldg | State Code: | 11 | 1144.0 sqft | Value: | $312,101 |
| Bathrooms (#): | 1 (FULL) | Bathrooms (#): | 1 (HALF) | | Bedrooms (#): | 3 | Exterior Wall: | PL/T1 | | Fireplace: | DBL 2-AVG | Floor Construction: | FRAME | | Foundation: | CONPR | Heating/Cooling: | ELBB | | Inside Verify: | YES-FIX | Roof Cover: | COMP |
|
| | Type | Description | Class CD | Sub Class CD | Year Built | Area |
| | MA | Main Area | 3+ | 1S | 1979 | 1144.0 |
| | HWPOR | House Wood Porch | 3 | * | 1979 | 60.0 |
| | HDECK | House Deck | 3 | * | 1979 | 96.0 |
| | GBSMT | Basement Garage | 4 | 1S | 1979 | 528.0 |
| | BSMTF | House basement finished | 4 | * | 1979 | 528.0 |
| | ASPHD | Asphalt Drive | 3 | * | 1979 | 400.0 |
Sketch
Property Image
Land
| 1 | 6400-1175L | | 0.0000 | 0.00 | 0.00 | 0.00 | 1.00 | $210,000 | $0 |
Roll Value History
| 2026 | N/A | N/A | N/A | N/A | N/A |
| 2025 | $312,101 | $210,000 | $0 | $522,101 | $522,101 |
| 2024 | $303,331 | $209,000 | $0 | $512,331 | $512,331 |
| 2023 | $260,585 | $185,000 | $0 | $445,585 | $445,585 |
| 2022 | $260,584 | $180,000 | $0 | $440,584 | $440,584 |
Deed and Sales History
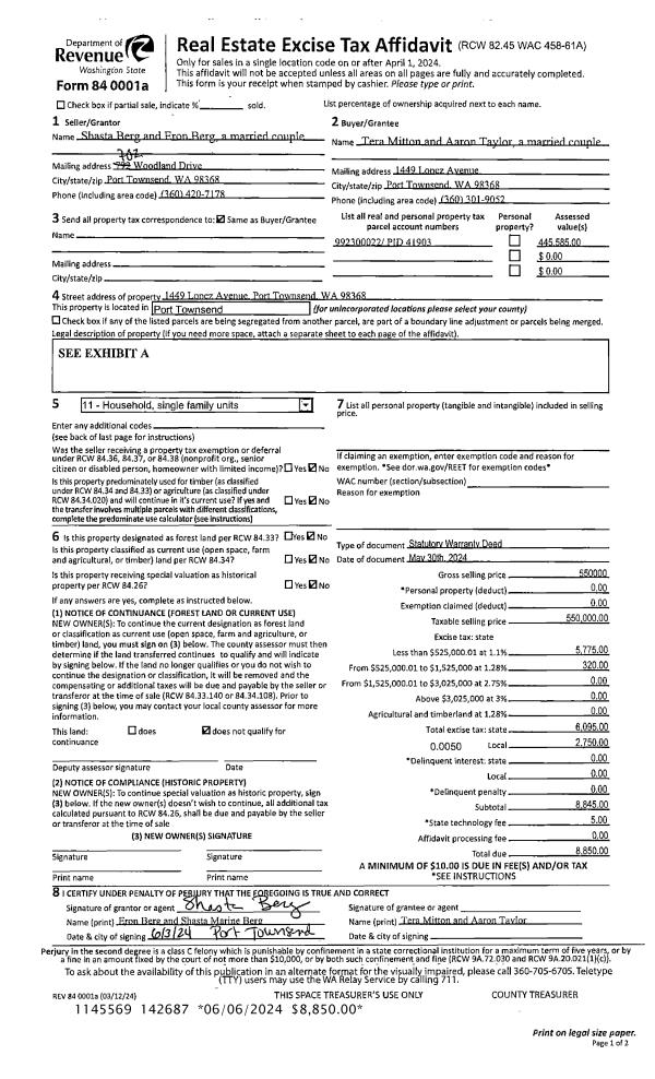
| 1 | 05/30/2024 | SWD | Statutory Warranty Deed | ERON & SHASTA BERG | TERA MITTON | | | $550,000.00 | 142687 | |
| 2 | 04/10/2024 | SWD | Statutory Warranty Deed | SNOQUALMIE PARTNERS LLC | ERON & SHASTA BERG | | | | 142452 | |
| 3 | 01/25/2021 | SWD | Statutory Warranty Deed | PATRICIA A TIURA | SNOQUALMIE PARTNERS LLC | | | $400,000.00 | 136038 | |
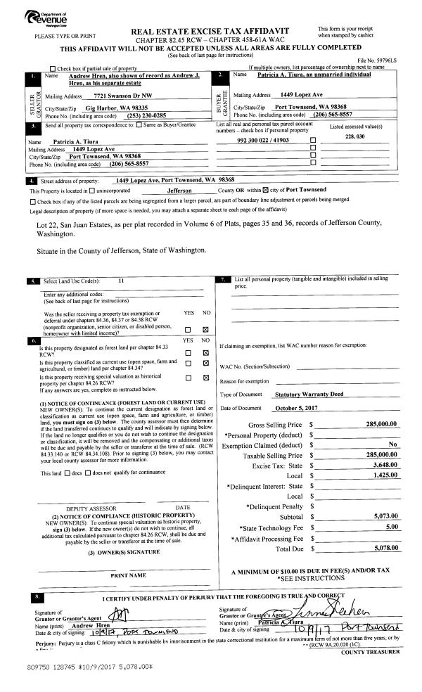
| 4 | 10/05/2017 | SWD | Statutory Warranty Deed | ANDREW HREN | PATRICIA A TIURA | | | $285,000.00 | 128745 | |
| 5 | 07/02/2013 | SWD | Statutory Warranty Deed | BYRON W PAINTER | ANDREW HREN | | | $197,000.00 | 119699 | |
Payout Agreement
| No payout information available.. |