Property
Account |
| Property ID: | 41911 | Abbreviated Legal Description: | SAN JUAN ESTATES LOT 30 |
| Parcel # / Geo ID: | 992300030 | Agent Code: | |
| Type: | Real | | |
| Tax Area: | 0110 - C-50F1E1H2 | Land Use Code | 11 |
| Open Space: | N | DFL | N |
| Historic Property: | N | Remodel Property: | N |
| Multi-Family Redevelopment: | N | | |
| Township: | 31N | Section: | 35 |
| Range: | 1W |
Location |
| Address: | 4405 LOPEZ AVE PORT TOWNSEND, WA 98368 | Mapsco: | 130/028 |
| Neighborhood: | SAN JUAN ESTATES LP LOVAN AND NORTHVIEW SP | Map ID: | |
| Neighborhood CD: | 6400 |
Owner |
| Name: | WIMER FAMILY LIVING TRUST | Owner ID: | 109164 |
| Mailing Address: | TED L WIMER TRUSTEE 1476 U ST PORT TOWNSEND, WA 98368-2724 | % Ownership: | 100.0000000000% |
| | | Exemptions: | |
Pay Tax Due
Select the appropriate checkbox next to the year to be paid. Multiple years may be selected.
*Convenience Fee not included
Taxes and Assessment Details
Property Tax Information as of
03/12/2026
Click on "Statement Details" to expand or collapse a tax statement.
* Please enter a valid date ** Please enter a valid date *
Statement Details |
| 2026 | 31076 | STATE - STATE LEVY (SCHOOL) | $620.11 | $620.09 | $0.00 | $0.00 | $0.00 | $1240.20 |
| 2026 | 31076 | COUNTY - COUNTY LEVIES (CE, DD, VET, MH) | $247.93 | $247.89 | $0.00 | $0.00 | $0.00 | $495.82 |
| 2026 | 31076 | CONSERVE - CONSERVATION FUTURES | $7.44 | $7.43 | $0.00 | $0.00 | $0.00 | $14.87 |
| 2026 | 31076 | CITYPT - CITY OF PT | $351.90 | $351.89 | $0.00 | $0.00 | $0.00 | $703.79 |
| 2026 | 31076 | PORTPT - PORT DISTRICT | $100.13 | $100.12 | $0.00 | $0.00 | $0.00 | $200.25 |
| 2026 | 31076 | PUD1 - PUD #1 | $16.13 | $16.12 | $0.00 | $0.00 | $0.00 | $32.25 |
| 2026 | 31076 | HD2 - HOSP DIST #2 | $14.46 | $14.46 | $0.00 | $0.00 | $0.00 | $28.92 |
| 2026 | 31076 | SD50 - SCHOOL DIST #50 | $491.26 | $491.25 | $0.00 | $0.00 | $0.00 | $982.51 |
| 2026 | 31076 | FD1 - FIRE DISTRICT #1 | $328.30 | $328.29 | $0.00 | $0.00 | $0.00 | $656.59 |
| 2026 | 31076 | EMS1 - FIRE DIST #1 EMS | $126.23 | $126.22 | $0.00 | $0.00 | $0.00 | $252.45 |
| 2026 | 31076 | JCCD - JC Conservation District | $2.55 | $2.55 | $0.00 | $0.00 | $0.00 | $5.10 |
| 2026 | 31076 | NWA - Noxious Weed Assessment | $2.98 | $2.97 | $0.00 | $0.00 | $0.00 | $5.95 |
| 2026 | 31076 | TOTAL: | $2309.42 | $2309.28 | $0.00 | $0.00 | $0.00 | $4618.70 |
|
| 2026 | 31076 | $2309.42 | $2309.28 | $0.00 | $0.00 | $0.00 | $4618.70 |
Statement Details |
| 2025 | 31148 | STATE - STATE LEVY (SCHOOL) | $625.59 | $625.59 | $0.00 | $0.00 | $1251.18 | $0.00 |
| 2025 | 31148 | COUNTY - COUNTY LEVIES (CE, DD, VET, MH) | $246.01 | $246.00 | $0.00 | $0.00 | $492.01 | $0.00 |
| 2025 | 31148 | CONSERVE - CONSERVATION FUTURES | $7.38 | $7.37 | $0.00 | $0.00 | $14.75 | $0.00 |
| 2025 | 31148 | CITYPT - CITY OF PT | $354.77 | $354.77 | $0.00 | $0.00 | $709.54 | $0.00 |
| 2025 | 31148 | PORTPT - PORT DISTRICT | $100.39 | $100.38 | $0.00 | $0.00 | $200.77 | $0.00 |
| 2025 | 31148 | PUD1 - PUD #1 | $16.10 | $16.09 | $0.00 | $0.00 | $32.19 | $0.00 |
| 2025 | 31148 | HD2 - HOSP DIST #2 | $14.36 | $14.35 | $0.00 | $0.00 | $28.71 | $0.00 |
| 2025 | 31148 | SD50 - SCHOOL DIST #50 | $457.20 | $457.19 | $0.00 | $0.00 | $914.39 | $0.00 |
| 2025 | 31148 | FD1 - FIRE DISTRICT #1 | $324.64 | $324.63 | $0.00 | $0.00 | $649.27 | $0.00 |
| 2025 | 31148 | EMS1 - FIRE DIST #1 EMS | $124.87 | $124.86 | $0.00 | $0.00 | $249.73 | $0.00 |
| 2025 | 31148 | JCCD - JC Conservation District | $2.55 | $2.55 | $0.00 | $0.00 | $5.10 | $0.00 |
| 2025 | 31148 | NWA - Noxious Weed Assessment | $2.15 | $2.15 | $0.00 | $0.00 | $4.30 | $0.00 |
| 2025 | 31148 | TOTAL: | $2276.01 | $2275.93 | $0.00 | $0.00 | $4551.94 | $0.00 |
|
| 2025 | 31148 | $2276.01 | $2275.93 | $0.00 | $0.00 | $4551.94 | $0.00 |
Statement Details |
| 2024 | 31207 | STATE - STATE LEVY (SCHOOL) | $545.65 | $545.65 | $0.00 | $0.00 | $1091.30 | $0.00 |
| 2024 | 31207 | COUNTY - COUNTY LEVIES (CE, DD, VET, MH) | $233.50 | $233.49 | $0.00 | $0.00 | $466.99 | $0.00 |
| 2024 | 31207 | CONSERVE - CONSERVATION FUTURES | $7.00 | $7.00 | $0.00 | $0.00 | $14.00 | $0.00 |
| 2024 | 31207 | CITYPT - CITY OF PT | $333.63 | $333.61 | $0.00 | $0.00 | $667.24 | $0.00 |
| 2024 | 31207 | PORTPT - PORT DISTRICT | $96.44 | $96.44 | $0.00 | $0.00 | $192.88 | $0.00 |
| 2024 | 31207 | PUD1 - PUD #1 | $15.34 | $15.33 | $0.00 | $0.00 | $30.67 | $0.00 |
| 2024 | 31207 | HD2 - HOSP DIST #2 | $13.63 | $13.62 | $0.00 | $0.00 | $27.25 | $0.00 |
| 2024 | 31207 | SD50 - SCHOOL DIST #50 | $441.46 | $441.45 | $0.00 | $0.00 | $882.91 | $0.00 |
| 2024 | 31207 | FD1 - FIRE DISTRICT #1 | $308.73 | $308.73 | $0.00 | $0.00 | $617.46 | $0.00 |
| 2024 | 31207 | EMS1 - FIRE DIST #1 EMS | $117.93 | $117.92 | $0.00 | $0.00 | $235.85 | $0.00 |
| 2024 | 31207 | JCCD - JC Conservation District | $2.55 | $2.55 | $0.00 | $0.00 | $5.10 | $0.00 |
| 2024 | 31207 | NWA - Noxious Weed Assessment | $2.15 | $2.15 | $0.00 | $0.00 | $4.30 | $0.00 |
| 2024 | 31207 | TOTAL: | $2118.01 | $2117.94 | $0.00 | $0.00 | $4235.95 | $0.00 |
|
| 2024 | 31207 | $2118.01 | $2117.94 | $0.00 | $0.00 | $4235.95 | $0.00 |
Statement Details |
| 2023 | 31249 | STATE - STATE LEVY (SCHOOL) | $549.34 | $549.33 | $0.00 | $0.00 | $1098.67 | $0.00 |
| 2023 | 31249 | COUNTY - COUNTY LEVIES (CE, DD, VET, MH) | $239.71 | $239.71 | $0.00 | $0.00 | $479.42 | $0.00 |
| 2023 | 31249 | CONSERVE - CONSERVATION FUTURES | $7.19 | $7.19 | $0.00 | $0.00 | $14.38 | $0.00 |
| 2023 | 31249 | CITYPT - CITY OF PT | $338.80 | $338.79 | $0.00 | $0.00 | $677.59 | $0.00 |
| 2023 | 31249 | PORTPT - PORT DISTRICT | $100.98 | $100.98 | $0.00 | $0.00 | $201.96 | $0.00 |
| 2023 | 31249 | PUD1 - PUD #1 | $15.89 | $15.89 | $0.00 | $0.00 | $31.78 | $0.00 |
| 2023 | 31249 | HD2 - HOSP DIST #2 | $14.00 | $13.98 | $0.00 | $0.00 | $27.98 | $0.00 |
| 2023 | 31249 | SD50 - SCHOOL DIST #50 | $435.91 | $435.90 | $0.00 | $0.00 | $871.81 | $0.00 |
| 2023 | 31249 | FD1 - FIRE DISTRICT #1 | $197.48 | $197.47 | $0.00 | $0.00 | $394.95 | $0.00 |
| 2023 | 31249 | EMS1 - FIRE DIST #1 EMS | $84.00 | $84.00 | $0.00 | $0.00 | $168.00 | $0.00 |
| 2023 | 31249 | JCCD - JC Conservation District | $2.55 | $2.55 | $0.00 | $0.00 | $5.10 | $0.00 |
| 2023 | 31249 | NWA - Noxious Weed Assessment | $2.15 | $2.15 | $0.00 | $0.00 | $4.30 | $0.00 |
| 2023 | 31249 | TOTAL: | $1988.00 | $1987.94 | $0.00 | $0.00 | $3975.94 | $0.00 |
|
| 2023 | 31249 | $1988.00 | $1987.94 | $0.00 | $0.00 | $3975.94 | $0.00 |
Values
| (+) Improvement Homesite Value: | + | $329,430 | |
| (+) Improvement Non-Homesite Value: | + | $0 | |
| (+) Land Homesite Value: | + | $210,000 | |
| (+) Land Non-Homesite Value: | + | $0 | |
| (+) Curr Use (HS): | + | $0 | $0 |
| (+) Curr Use (NHS): | + | $0 | $0 |
| | | -------------------------- | |
| (=) Market Value: | = | $539,430 | |
| (–) Productivity Loss: | – | $0 | |
| | | -------------------------- | |
| (=) Subtotal: | = | $539,430 | |
| (+) Senior Appraised Value: | + | $0 | |
| (+) Non-Senior Appraised Value: | + | $539,430 | |
| | | -------------------------- | |
| (=) Total Appraised Value: | = | $539,430 | |
| (–) Senior Exemption Loss: | – | $0 | |
| (–) Exemption Loss: | – | $0 | |
| | | -------------------------- | |
| (=) Taxable Value: | = | $539,430 | |
Taxing Jurisdiction
| Owner: | WIMER FAMILY LIVING TRUST | | |
| % Ownership: | 100.0000000000% | | |
| Total Value: | $539,430 | | |
| Tax Area: | 0110 - C-50F1E1H2 |
| CE | COUNTY CURRENT EXPENSE | 0.9034619479 | $539,430 | $539,430 | $487.35 | | |
| CNTYDD | DEVELOPMENTAL DISABILITIES | 0.0052121823 | $539,430 | $539,430 | $2.81 | | |
| CNTYVET | VETERANS RELIEF | 0.0052777810 | $539,430 | $539,430 | $2.85 | | |
| MENTAL | MENTAL HEALTH | 0.0052121823 | $539,430 | $539,430 | $2.81 | | |
| PTGEN | CITY OF PT GENERAL | 0.8551967795 | $539,430 | $539,430 | $461.32 | | |
| PTLLL | CITY OF PT - LIBRARY LID LIFT | 0.4010114288 | $539,430 | $539,430 | $216.32 | | |
| PTMVBOND | CITY OF PT MV BOND | 0.0484717981 | $539,430 | $539,430 | $26.15 | | |
| HOSP2CASH | HOSP DIST #2 GENERAL | 0.0536075306 | $539,430 | $539,430 | $28.92 | | |
| SCH50BOND | SCHOOL DIST #50 BOND 2016 | 0.5377451389 | $539,430 | $539,430 | $290.08 | | |
| SCH50CP | SCHOOL DIST #50 CAP PROJ | 0.4573475088 | $539,430 | $539,430 | $246.71 | | |
| SCH50MO | SCHOOL DIST #50 EP & O | 0.8262822886 | $539,430 | $539,430 | $445.72 | | |
| CONSERVE | CONSERVATION FUTURES | 0.0275621078 | $539,430 | $539,430 | $14.87 | | |
| EMS1 | FIRE DIST #1 EMS | 0.4679948282 | $539,430 | $539,430 | $252.45 | | |
| FD1 | FIRE DIST #1 GENERAL | 1.2171942929 | $539,430 | $539,430 | $656.59 | | |
| PORTPT | PORT OF PT GENERAL | 0.1134941229 | $539,430 | $539,430 | $61.22 | | |
| PORTPTIDD | PORT OF PT IDD 2019 | 0.2577346692 | $539,430 | $539,430 | $139.03 | | |
| PUD1 | PUD #1 GENERAL | 0.0597888892 | $539,430 | $539,430 | $32.25 | | |
| STATE | STATE SCHOOL PART 1 | 1.4940692947 | $539,430 | $539,430 | $805.95 | | |
| STATE2 | STATE SCHOOL PART 2 | 0.8050170049 | $539,430 | $539,430 | $434.25 | | |
| | Total Tax Rate: | 8.5416817766 | | | | | |
| | | | | Taxes w/Current Exemptions: | $4,607.65 | | |
| | | | | Taxes w/o Exemptions: | $4,607.65 | | |
Improvement / Building
| Improvement #1: | Residential Bldg | State Code: | 11 | 1184.0 sqft | Value: | $329,430 |
| Bathrooms (#): | 2 (FULL) | Bedrooms (#): | 3 | | Exterior Wall: | SI/ST | Fireplace: | SIN 1-AVG | | Floor Construction: | FRAME | Foundation: | CONPR | | Heating/Cooling: | ELBB | Inside Verify: | YES-FIX | | Roof Cover: | COMP |   |   |
|
| | Type | Description | Class CD | Sub Class CD | Year Built | Area |
| | MA | Main Area | 4 | 1S | 1979 | 1184.0 |
| | HCPOR | House Concrete Porch | 4 | * | 1979 | 28.0 |
| | HDECK | House Deck | 4 | * | 1979 | 144.0 |
| | GATT | House Attached Garage | 4 | 1S | 1979 | 552.0 |
| | ASPHD | Asphalt Drive | 4 | * | 1979 | 500.0 |
Sketch
Property Image
Land
| 1 | 6400-1175L | | 0.0000 | 0.00 | 0.00 | 0.00 | 1.00 | $210,000 | $0 |
Roll Value History
| 2026 | N/A | N/A | N/A | N/A | N/A |
| 2025 | $329,430 | $210,000 | $0 | $539,430 | $539,430 |
| 2024 | $312,752 | $209,000 | $0 | $521,752 | $521,752 |
| 2023 | $286,690 | $185,000 | $0 | $471,690 | $471,690 |
| 2022 | $286,690 | $180,000 | $0 | $466,690 | $466,690 |
Deed and Sales History
| 1 | 05/12/2023 | SWD | Statutory Warranty Deed | TED & SHARON L WIMER | WIMER FAMILY LIVING TRUST | | | | 141123 | |
| 2 | 06/14/2022 | SWD | Statutory Warranty Deed | EDWARD F FETTIG REVOCABLE LIVING TRUST | TED & SHARON L WIMER | | | $500,000.00 | 139319 | |
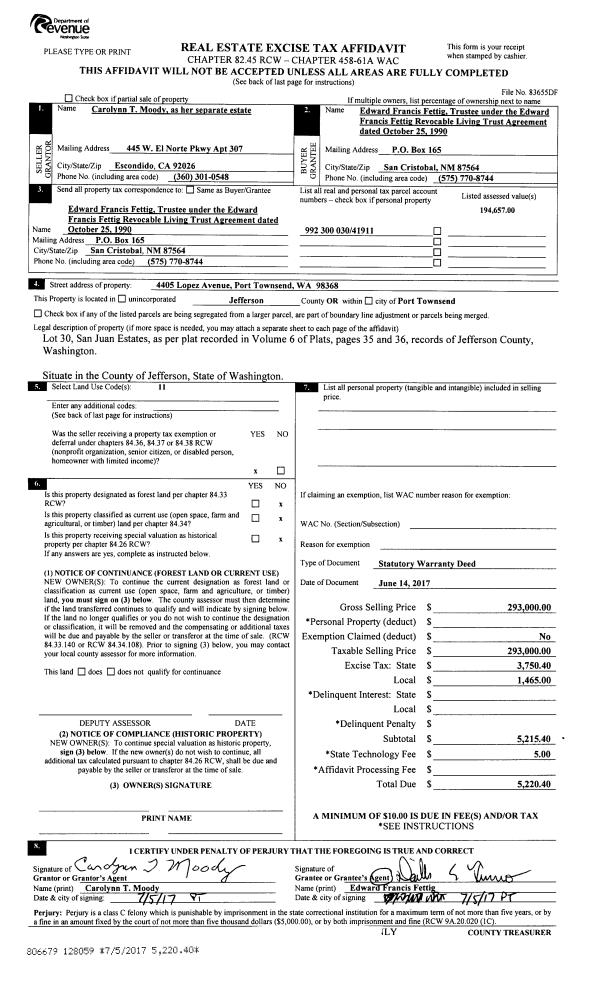
| 3 | 06/14/2017 | SWD | Statutory Warranty Deed | CAROLYNN T MOODY | EDWARD F FETTIG REVOCABLE LIVING TRUST | | | $293,000.00 | 128059 | |
| 4 | 09/04/2009 | QCD | Quit Claim Deed | PROFFITT, MARJORIE E ESTA | MOODY, CAROLYNN T | 0 | 0 | $0.00 | 113383 | 0 |
| 5 | 08/17/2009 | QCD | Quit Claim Deed | PROFFITT, RAYMOND ESTATE | PROFFITT, MARJORIE E | 0 | 0 | $0.00 | 113646 | 0 |
Payout Agreement
| No payout information available.. |