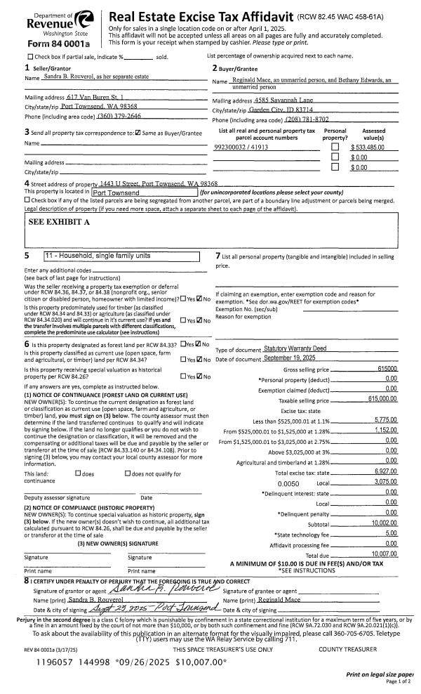
Property
Account |
| Property ID: | 41913 | Abbreviated Legal Description: | SAN JUAN ESTATES LOT 32 |
| Parcel # / Geo ID: | 992300032 | Agent Code: | |
| Type: | Real | | |
| Tax Area: | 0110 - C-50F1E1H2 | Land Use Code | 11 |
| Open Space: | N | DFL | N |
| Historic Property: | N | Remodel Property: | N |
| Multi-Family Redevelopment: | N | | |
| Township: | 31N | Section: | 35 |
| Range: | 1W |
Location |
| Address: | 1443 U ST PORT TOWNSEND, WA 98368 | Mapsco: | 130/030 |
| Neighborhood: | SAN JUAN ESTATES LP LOVAN AND NORTHVIEW SP | Map ID: | |
| Neighborhood CD: | 6400 |
Owner |
| Name: | REGINALD MACE | Owner ID: | 113408 |
| Mailing Address: | BETHANY EDWARDS 4585 SAVANNAH LN GARDEN CITY, ID 83714 | % Ownership: | 100.0000000000% |
| | | Exemptions: | |
Pay Tax Due
Select the appropriate checkbox next to the year to be paid. Multiple years may be selected.
*Convenience Fee not included
Taxes and Assessment Details
Property Tax Information as of
03/13/2026
Click on "Statement Details" to expand or collapse a tax statement.
* Please enter a valid date ** Please enter a valid date *
Statement Details |
| 2026 | 31078 | STATE - STATE LEVY (SCHOOL) | $651.42 | $651.41 | $0.00 | $0.00 | $0.00 | $1302.83 |
| 2026 | 31078 | COUNTY - COUNTY LEVIES (CE, DD, VET, MH) | $260.45 | $260.41 | $0.00 | $0.00 | $0.00 | $520.86 |
| 2026 | 31078 | CONSERVE - CONSERVATION FUTURES | $7.81 | $7.81 | $0.00 | $0.00 | $0.00 | $15.62 |
| 2026 | 31078 | CITYPT - CITY OF PT | $369.67 | $369.66 | $0.00 | $0.00 | $0.00 | $739.33 |
| 2026 | 31078 | PORTPT - PORT DISTRICT | $105.19 | $105.17 | $0.00 | $0.00 | $0.00 | $210.36 |
| 2026 | 31078 | PUD1 - PUD #1 | $16.94 | $16.94 | $0.00 | $0.00 | $0.00 | $33.88 |
| 2026 | 31078 | HD2 - HOSP DIST #2 | $15.19 | $15.19 | $0.00 | $0.00 | $0.00 | $30.38 |
| 2026 | 31078 | SD50 - SCHOOL DIST #50 | $516.08 | $516.06 | $0.00 | $0.00 | $0.00 | $1032.14 |
| 2026 | 31078 | FD1 - FIRE DISTRICT #1 | $344.88 | $344.88 | $0.00 | $0.00 | $0.00 | $689.76 |
| 2026 | 31078 | EMS1 - FIRE DIST #1 EMS | $132.60 | $132.60 | $0.00 | $0.00 | $0.00 | $265.20 |
| 2026 | 31078 | JCCD - JC Conservation District | $2.55 | $2.55 | $0.00 | $0.00 | $0.00 | $5.10 |
| 2026 | 31078 | NWA - Noxious Weed Assessment | $2.98 | $2.97 | $0.00 | $0.00 | $0.00 | $5.95 |
| 2026 | 31078 | TOTAL: | $2425.76 | $2425.65 | $0.00 | $0.00 | $0.00 | $4851.41 |
|
| 2026 | 31078 | $2425.76 | $2425.65 | $0.00 | $0.00 | $0.00 | $4851.41 |
Statement Details |
| 2025 | 31150 | STATE - STATE LEVY (SCHOOL) | $383.79 | $383.77 | $0.00 | $0.00 | $767.56 | $0.00 |
| 2025 | 31150 | COUNTY - COUNTY LEVIES (CE, DD, VET, MH) | $157.60 | $157.58 | $0.00 | $0.00 | $315.18 | $0.00 |
| 2025 | 31150 | CONSERVE - CONSERVATION FUTURES | $4.73 | $4.72 | $0.00 | $0.00 | $9.45 | $0.00 |
| 2025 | 31150 | CITYPT - CITY OF PT | $226.24 | $226.23 | $0.00 | $0.00 | $452.47 | $0.00 |
| 2025 | 31150 | PORTPT - PORT DISTRICT | $64.31 | $64.31 | $0.00 | $0.00 | $128.62 | $0.00 |
| 2025 | 31150 | PUD1 - PUD #1 | $10.31 | $10.31 | $0.00 | $0.00 | $20.62 | $0.00 |
| 2025 | 31150 | HD2 - HOSP DIST #2 | $9.20 | $9.19 | $0.00 | $0.00 | $18.39 | $0.00 |
| 2025 | 31150 | SD50 - SCHOOL DIST #50 | $257.44 | $257.43 | $0.00 | $0.00 | $514.87 | $0.00 |
| 2025 | 31150 | FD1 - FIRE DISTRICT #1 | $207.96 | $207.96 | $0.00 | $0.00 | $415.92 | $0.00 |
| 2025 | 31150 | EMS1 - FIRE DIST #1 EMS | $79.99 | $79.99 | $0.00 | $0.00 | $159.98 | $0.00 |
| 2025 | 31150 | TOTAL: | $1401.57 | $1401.49 | $0.00 | $0.00 | $2803.06 | $0.00 |
|
| 2025 | 31150 | $1401.57 | $1401.49 | $0.00 | $0.00 | $2803.06 | $0.00 |
Statement Details |
| 2024 | 31209 | STATE - STATE LEVY (SCHOOL) | $67.79 | $67.79 | $0.00 | $0.00 | $135.58 | $0.00 |
| 2024 | 31209 | COUNTY - COUNTY LEVIES (CE, DD, VET, MH) | $44.57 | $44.56 | $0.00 | $0.00 | $89.13 | $0.00 |
| 2024 | 31209 | CONSERVE - CONSERVATION FUTURES | $1.34 | $1.33 | $0.00 | $0.00 | $2.67 | $0.00 |
| 2024 | 31209 | CITYPT - CITY OF PT | $61.24 | $61.23 | $0.00 | $0.00 | $122.47 | $0.00 |
| 2024 | 31209 | PORTPT - PORT DISTRICT | $18.42 | $18.40 | $0.00 | $0.00 | $36.82 | $0.00 |
| 2024 | 31209 | PUD1 - PUD #1 | $2.93 | $2.92 | $0.00 | $0.00 | $5.85 | $0.00 |
| 2024 | 31209 | HD2 - HOSP DIST #2 | $2.60 | $2.60 | $0.00 | $0.00 | $5.20 | $0.00 |
| 2024 | 31209 | SD50 - SCHOOL DIST #50 | $0.00 | $0.00 | $0.00 | $0.00 | $0.00 | $0.00 |
| 2024 | 31209 | FD1 - FIRE DISTRICT #1 | $58.93 | $58.93 | $0.00 | $0.00 | $117.86 | $0.00 |
| 2024 | 31209 | EMS1 - FIRE DIST #1 EMS | $22.51 | $22.51 | $0.00 | $0.00 | $45.02 | $0.00 |
| 2024 | 31209 | TOTAL: | $280.33 | $280.27 | $0.00 | $0.00 | $560.60 | $0.00 |
|
| 2024 | 31209 | $280.33 | $280.27 | $0.00 | $0.00 | $560.60 | $0.00 |
Statement Details |
| 2023 | 31251 | STATE - STATE LEVY (SCHOOL) | $69.05 | $69.04 | $0.00 | $0.00 | $138.09 | $0.00 |
| 2023 | 31251 | COUNTY - COUNTY LEVIES (CE, DD, VET, MH) | $46.27 | $46.23 | $0.00 | $0.00 | $92.50 | $0.00 |
| 2023 | 31251 | CONSERVE - CONSERVATION FUTURES | $1.39 | $1.38 | $0.00 | $0.00 | $2.77 | $0.00 |
| 2023 | 31251 | CITYPT - CITY OF PT | $62.79 | $62.77 | $0.00 | $0.00 | $125.56 | $0.00 |
| 2023 | 31251 | PORTPT - PORT DISTRICT | $19.48 | $19.48 | $0.00 | $0.00 | $38.96 | $0.00 |
| 2023 | 31251 | PUD1 - PUD #1 | $3.07 | $3.06 | $0.00 | $0.00 | $6.13 | $0.00 |
| 2023 | 31251 | HD2 - HOSP DIST #2 | $2.71 | $2.69 | $0.00 | $0.00 | $5.40 | $0.00 |
| 2023 | 31251 | SD50 - SCHOOL DIST #50 | $0.00 | $0.00 | $0.00 | $0.00 | $0.00 | $0.00 |
| 2023 | 31251 | FD1 - FIRE DISTRICT #1 | $38.10 | $38.09 | $0.00 | $0.00 | $76.19 | $0.00 |
| 2023 | 31251 | EMS1 - FIRE DIST #1 EMS | $16.21 | $16.20 | $0.00 | $0.00 | $32.41 | $0.00 |
| 2023 | 31251 | TOTAL: | $259.07 | $258.94 | $0.00 | $0.00 | $518.01 | $0.00 |
|
| 2023 | 31251 | $259.07 | $258.94 | $0.00 | $0.00 | $518.01 | $0.00 |
Values
| (+) Improvement Homesite Value: | + | $356,677 | |
| (+) Improvement Non-Homesite Value: | + | $0 | |
| (+) Land Homesite Value: | + | $210,000 | |
| (+) Land Non-Homesite Value: | + | $0 | |
| (+) Curr Use (HS): | + | $0 | $0 |
| (+) Curr Use (NHS): | + | $0 | $0 |
| | | -------------------------- | |
| (=) Market Value: | = | $566,677 | |
| (–) Productivity Loss: | – | $0 | |
| | | -------------------------- | |
| (=) Subtotal: | = | $566,677 | |
| (+) Senior Appraised Value: | + | $0 | |
| (+) Non-Senior Appraised Value: | + | $566,677 | |
| | | -------------------------- | |
| (=) Total Appraised Value: | = | $566,677 | |
| (–) Senior Exemption Loss: | – | $0 | |
| (–) Exemption Loss: | – | $0 | |
| | | -------------------------- | |
| (=) Taxable Value: | = | $566,677 | |
Taxing Jurisdiction
| Owner: | REGINALD MACE | | |
| % Ownership: | 100.0000000000% | | |
| Total Value: | $566,677 | | |
| Tax Area: | 0110 - C-50F1E1H2 |
| CE | COUNTY CURRENT EXPENSE | 0.9034619479 | $566,677 | $566,677 | $511.97 | | |
| CNTYDD | DEVELOPMENTAL DISABILITIES | 0.0052121823 | $566,677 | $566,677 | $2.95 | | |
| CNTYVET | VETERANS RELIEF | 0.0052777810 | $566,677 | $566,677 | $2.99 | | |
| MENTAL | MENTAL HEALTH | 0.0052121823 | $566,677 | $566,677 | $2.95 | | |
| PTGEN | CITY OF PT GENERAL | 0.8551967795 | $566,677 | $566,677 | $484.62 | | |
| PTLLL | CITY OF PT - LIBRARY LID LIFT | 0.4010114288 | $566,677 | $566,677 | $227.24 | | |
| PTMVBOND | CITY OF PT MV BOND | 0.0484717981 | $566,677 | $566,677 | $27.47 | | |
| HOSP2CASH | HOSP DIST #2 GENERAL | 0.0536075306 | $566,677 | $566,677 | $30.38 | | |
| SCH50BOND | SCHOOL DIST #50 BOND 2016 | 0.5377451389 | $566,677 | $566,677 | $304.73 | | |
| SCH50CP | SCHOOL DIST #50 CAP PROJ | 0.4573475088 | $566,677 | $566,677 | $259.17 | | |
| SCH50MO | SCHOOL DIST #50 EP & O | 0.8262822886 | $566,677 | $566,677 | $468.24 | | |
| CONSERVE | CONSERVATION FUTURES | 0.0275621078 | $566,677 | $566,677 | $15.62 | | |
| EMS1 | FIRE DIST #1 EMS | 0.4679948282 | $566,677 | $566,677 | $265.20 | | |
| FD1 | FIRE DIST #1 GENERAL | 1.2171942929 | $566,677 | $566,677 | $689.76 | | |
| PORTPT | PORT OF PT GENERAL | 0.1134941229 | $566,677 | $566,677 | $64.31 | | |
| PORTPTIDD | PORT OF PT IDD 2019 | 0.2577346692 | $566,677 | $566,677 | $146.05 | | |
| PUD1 | PUD #1 GENERAL | 0.0597888892 | $566,677 | $566,677 | $33.88 | | |
| STATE | STATE SCHOOL PART 1 | 1.4940692947 | $566,677 | $566,677 | $846.65 | | |
| STATE2 | STATE SCHOOL PART 2 | 0.8050170049 | $566,677 | $566,677 | $456.18 | | |
| | Total Tax Rate: | 8.5416817766 | | | | | |
| | | | | Taxes w/Current Exemptions: | $4,840.36 | | |
| | | | | Taxes w/o Exemptions: | $4,840.36 | | |
Improvement / Building
| Improvement #1: | Residential Bldg | State Code: | 11 | 1612.9 sqft | Value: | $356,677 |
| Bathrooms (#): | 2 (FULL) | Bedrooms (#): | 3 | | Exterior Wall: | SI/ST | Fireplace: | WD ST-GOOD | | Floor Construction: | FRAME | Foundation: | CONPR | | Heating/Cooling: | HPUMP | Inside Verify: | YES-FIX | | Roof Cover: | COMP |   |   |
|
| | Type | Description | Class CD | Sub Class CD | Year Built | Area |
| | MA | Main Area | 3+ | 1S | 1985 | 1612.9 |
| | HCPOR | House Concrete Porch | 3 | * | 1985 | 60.0 |
| | HDECK | House Deck | 3 | * | 1985 | 350.0 |
| | GATT | House Attached Garage | 4 | 1S | 1985 | 585.0 |
| | SHED | Shed (Table Not Dep) | 3 | * | 1985 | 96.0 |
| | CONCD | Concrete Drive | 3 | * | 1985 | 1000.0 |
Sketch
Property Image
Land
| 1 | 6400-1175L | | 0.0000 | 0.00 | 0.00 | 0.00 | 1.00 | $210,000 | $0 |
Roll Value History
| 2026 | N/A | N/A | N/A | N/A | N/A |
| 2025 | $356,677 | $210,000 | $0 | $566,677 | $566,677 |
| 2024 | $324,485 | $209,000 | $0 | $533,485 | $90,034 |
| 2023 | $297,444 | $185,000 | $0 | $482,444 | $90,034 |
| 2022 | $297,444 | $180,000 | $0 | $477,444 | $90,034 |
Deed and Sales History
| 1 | 09/19/2025 | SWD | Statutory Warranty Deed | SANDRA B ROUVEROL | REGINALD MACE | | | $615,000.00 | 144998 | |
| 2 | 11/19/2002 | SWD | Statutory Warranty Deed | SHEILAN | ROUVEROL, SANDRA B | 0 | 0 | $192,000.00 | 96003 | 0 |
| 3 | 09/27/2000 | SWD | Statutory Warranty Deed | HILLMAN, MYRON W/MARGARET | SHEILAN | 0 | 0 | $152,000.00 | 90690 | 0 |
Payout Agreement
| No payout information available.. |