Property
Account |
| Property ID: | 41925 | Abbreviated Legal Description: | SAN JUAN ESTATES LOT 44 |
| Parcel # / Geo ID: | 992300044 | Agent Code: | |
| Type: | Real | | |
| Tax Area: | 0110 - C-50F1E1H2 | Land Use Code | 91 |
| Open Space: | N | DFL | N |
| Historic Property: | N | Remodel Property: | N |
| Multi-Family Redevelopment: | N | | |
| Township: | 31N | Section: | 35 |
| Range: | 1W |
Location |
| Address: | 0 SAN JUAN AVE PORT TOWNSEND, WA 98368 | Mapsco: | 130/042 |
| Neighborhood: | SAN JUAN ESTATES LP LOVAN AND NORTHVIEW SP | Map ID: | |
| Neighborhood CD: | 6400 |
Owner |
| Name: | WIMER FAMILY LIVING TRUST | Owner ID: | 109164 |
| Mailing Address: | TED L WIMER TRUSTEE 1476 U ST PORT TOWNSEND, WA 98368-2724 | % Ownership: | 100.0000000000% |
| | | Exemptions: | |
Pay Tax Due
Select the appropriate checkbox next to the year to be paid. Multiple years may be selected.
*Convenience Fee not included
Taxes and Assessment Details
Property Tax Information as of
03/10/2026
Click on "Statement Details" to expand or collapse a tax statement.
* Please enter a valid date ** Please enter a valid date *
Statement Details |
| 2026 | 31090 | STATE - STATE LEVY (SCHOOL) | $206.92 | $206.91 | $0.00 | $0.00 | $0.00 | $413.83 |
| 2026 | 31090 | COUNTY - COUNTY LEVIES (CE, DD, VET, MH) | $82.73 | $82.72 | $0.00 | $0.00 | $0.00 | $165.45 |
| 2026 | 31090 | CONSERVE - CONSERVATION FUTURES | $2.48 | $2.48 | $0.00 | $0.00 | $0.00 | $4.96 |
| 2026 | 31090 | CITYPT - CITY OF PT | $117.42 | $117.42 | $0.00 | $0.00 | $0.00 | $234.84 |
| 2026 | 31090 | PORTPT - PORT DISTRICT | $33.42 | $33.40 | $0.00 | $0.00 | $0.00 | $66.82 |
| 2026 | 31090 | PUD1 - PUD #1 | $5.38 | $5.38 | $0.00 | $0.00 | $0.00 | $10.76 |
| 2026 | 31090 | HD2 - HOSP DIST #2 | $4.83 | $4.82 | $0.00 | $0.00 | $0.00 | $9.65 |
| 2026 | 31090 | SD50 - SCHOOL DIST #50 | $163.93 | $163.91 | $0.00 | $0.00 | $0.00 | $327.84 |
| 2026 | 31090 | FD1 - FIRE DISTRICT #1 | $109.55 | $109.54 | $0.00 | $0.00 | $0.00 | $219.09 |
| 2026 | 31090 | EMS1 - FIRE DIST #1 EMS | $42.12 | $42.12 | $0.00 | $0.00 | $0.00 | $84.24 |
| 2026 | 31090 | JCCD - JC Conservation District | $2.53 | $2.53 | $0.00 | $0.00 | $0.00 | $5.06 |
| 2026 | 31090 | NWA - Noxious Weed Assessment | $2.98 | $2.97 | $0.00 | $0.00 | $0.00 | $5.95 |
| 2026 | 31090 | WAT - Clean Water District | $13.00 | $13.00 | $0.00 | $0.00 | $0.00 | $26.00 |
| 2026 | 31090 | TOTAL: | $787.29 | $787.20 | $0.00 | $0.00 | $0.00 | $1574.49 |
|
| 2026 | 31090 | $787.29 | $787.20 | $0.00 | $0.00 | $0.00 | $1574.49 |
Statement Details |
| 2025 | 31162 | STATE - STATE LEVY (SCHOOL) | $211.03 | $211.02 | $0.00 | $0.00 | $422.05 | $0.00 |
| 2025 | 31162 | COUNTY - COUNTY LEVIES (CE, DD, VET, MH) | $82.99 | $82.98 | $0.00 | $0.00 | $165.97 | $0.00 |
| 2025 | 31162 | CONSERVE - CONSERVATION FUTURES | $2.49 | $2.49 | $0.00 | $0.00 | $4.98 | $0.00 |
| 2025 | 31162 | CITYPT - CITY OF PT | $119.68 | $119.66 | $0.00 | $0.00 | $239.34 | $0.00 |
| 2025 | 31162 | PORTPT - PORT DISTRICT | $33.87 | $33.85 | $0.00 | $0.00 | $67.72 | $0.00 |
| 2025 | 31162 | PUD1 - PUD #1 | $5.43 | $5.43 | $0.00 | $0.00 | $10.86 | $0.00 |
| 2025 | 31162 | HD2 - HOSP DIST #2 | $4.84 | $4.84 | $0.00 | $0.00 | $9.68 | $0.00 |
| 2025 | 31162 | SD50 - SCHOOL DIST #50 | $154.23 | $154.22 | $0.00 | $0.00 | $308.45 | $0.00 |
| 2025 | 31162 | FD1 - FIRE DISTRICT #1 | $109.51 | $109.50 | $0.00 | $0.00 | $219.01 | $0.00 |
| 2025 | 31162 | EMS1 - FIRE DIST #1 EMS | $42.12 | $42.12 | $0.00 | $0.00 | $84.24 | $0.00 |
| 2025 | 31162 | JCCD - JC Conservation District | $2.53 | $2.53 | $0.00 | $0.00 | $5.06 | $0.00 |
| 2025 | 31162 | NWA - Noxious Weed Assessment | $2.15 | $2.15 | $0.00 | $0.00 | $4.30 | $0.00 |
| 2025 | 31162 | WAT - Clean Water District | $13.00 | $13.00 | $0.00 | $0.00 | $26.00 | $0.00 |
| 2025 | 31162 | TOTAL: | $783.87 | $783.79 | $0.00 | $0.00 | $1567.66 | $0.00 |
|
| 2025 | 31162 | $783.87 | $783.79 | $0.00 | $0.00 | $1567.66 | $0.00 |
Statement Details |
| 2024 | 31221 | STATE - STATE LEVY (SCHOOL) | $185.09 | $185.08 | $0.00 | $0.00 | $370.17 | $0.00 |
| 2024 | 31221 | COUNTY - COUNTY LEVIES (CE, DD, VET, MH) | $79.22 | $79.18 | $0.00 | $0.00 | $158.40 | $0.00 |
| 2024 | 31221 | CONSERVE - CONSERVATION FUTURES | $2.38 | $2.37 | $0.00 | $0.00 | $4.75 | $0.00 |
| 2024 | 31221 | CITYPT - CITY OF PT | $113.17 | $113.16 | $0.00 | $0.00 | $226.33 | $0.00 |
| 2024 | 31221 | PORTPT - PORT DISTRICT | $32.72 | $32.71 | $0.00 | $0.00 | $65.43 | $0.00 |
| 2024 | 31221 | PUD1 - PUD #1 | $5.20 | $5.20 | $0.00 | $0.00 | $10.40 | $0.00 |
| 2024 | 31221 | HD2 - HOSP DIST #2 | $4.62 | $4.62 | $0.00 | $0.00 | $9.24 | $0.00 |
| 2024 | 31221 | SD50 - SCHOOL DIST #50 | $149.76 | $149.73 | $0.00 | $0.00 | $299.49 | $0.00 |
| 2024 | 31221 | FD1 - FIRE DISTRICT #1 | $104.72 | $104.72 | $0.00 | $0.00 | $209.44 | $0.00 |
| 2024 | 31221 | EMS1 - FIRE DIST #1 EMS | $40.00 | $40.00 | $0.00 | $0.00 | $80.00 | $0.00 |
| 2024 | 31221 | JCCD - JC Conservation District | $2.53 | $2.53 | $0.00 | $0.00 | $5.06 | $0.00 |
| 2024 | 31221 | NWA - Noxious Weed Assessment | $2.15 | $2.15 | $0.00 | $0.00 | $4.30 | $0.00 |
| 2024 | 31221 | WAT - Clean Water District | $12.50 | $12.50 | $0.00 | $0.00 | $25.00 | $0.00 |
| 2024 | 31221 | TOTAL: | $734.06 | $733.95 | $0.00 | $0.00 | $1468.01 | $0.00 |
|
| 2024 | 31221 | $734.06 | $733.95 | $0.00 | $0.00 | $1468.01 | $0.00 |
Statement Details |
| 2023 | 31263 | STATE - STATE LEVY (SCHOOL) | $188.33 | $188.33 | $0.00 | $0.00 | $376.66 | $0.00 |
| 2023 | 31263 | COUNTY - COUNTY LEVIES (CE, DD, VET, MH) | $82.19 | $82.16 | $0.00 | $0.00 | $164.35 | $0.00 |
| 2023 | 31263 | CONSERVE - CONSERVATION FUTURES | $2.47 | $2.46 | $0.00 | $0.00 | $4.93 | $0.00 |
| 2023 | 31263 | CITYPT - CITY OF PT | $116.16 | $116.14 | $0.00 | $0.00 | $232.30 | $0.00 |
| 2023 | 31263 | PORTPT - PORT DISTRICT | $34.62 | $34.62 | $0.00 | $0.00 | $69.24 | $0.00 |
| 2023 | 31263 | PUD1 - PUD #1 | $5.45 | $5.45 | $0.00 | $0.00 | $10.90 | $0.00 |
| 2023 | 31263 | HD2 - HOSP DIST #2 | $4.80 | $4.79 | $0.00 | $0.00 | $9.59 | $0.00 |
| 2023 | 31263 | SD50 - SCHOOL DIST #50 | $149.46 | $149.43 | $0.00 | $0.00 | $298.89 | $0.00 |
| 2023 | 31263 | FD1 - FIRE DISTRICT #1 | $67.70 | $67.70 | $0.00 | $0.00 | $135.40 | $0.00 |
| 2023 | 31263 | EMS1 - FIRE DIST #1 EMS | $28.80 | $28.80 | $0.00 | $0.00 | $57.60 | $0.00 |
| 2023 | 31263 | JCCD - JC Conservation District | $2.53 | $2.53 | $0.00 | $0.00 | $5.06 | $0.00 |
| 2023 | 31263 | NWA - Noxious Weed Assessment | $2.15 | $2.15 | $0.00 | $0.00 | $4.30 | $0.00 |
| 2023 | 31263 | WAT - Clean Water District | $12.00 | $12.00 | $0.00 | $0.00 | $24.00 | $0.00 |
| 2023 | 31263 | TOTAL: | $696.66 | $696.56 | $0.00 | $0.00 | $1393.22 | $0.00 |
|
| 2023 | 31263 | $696.66 | $696.56 | $0.00 | $0.00 | $1393.22 | $0.00 |
Values
| (+) Improvement Homesite Value: | + | $0 | |
| (+) Improvement Non-Homesite Value: | + | $0 | |
| (+) Land Homesite Value: | + | $0 | |
| (+) Land Non-Homesite Value: | + | $180,000 | |
| (+) Curr Use (HS): | + | $0 | $0 |
| (+) Curr Use (NHS): | + | $0 | $0 |
| | | -------------------------- | |
| (=) Market Value: | = | $180,000 | |
| (–) Productivity Loss: | – | $0 | |
| | | -------------------------- | |
| (=) Subtotal: | = | $180,000 | |
| (+) Senior Appraised Value: | + | $0 | |
| (+) Non-Senior Appraised Value: | + | $180,000 | |
| | | -------------------------- | |
| (=) Total Appraised Value: | = | $180,000 | |
| (–) Senior Exemption Loss: | – | $0 | |
| (–) Exemption Loss: | – | $0 | |
| | | -------------------------- | |
| (=) Taxable Value: | = | $180,000 | |
Taxing Jurisdiction
| Owner: | WIMER FAMILY LIVING TRUST | | |
| % Ownership: | 100.0000000000% | | |
| Total Value: | $180,000 | | |
| Tax Area: | 0110 - C-50F1E1H2 |
| CE | COUNTY CURRENT EXPENSE | 0.9034619479 | $180,000 | $180,000 | $162.62 | | |
| CNTYDD | DEVELOPMENTAL DISABILITIES | 0.0052121823 | $180,000 | $180,000 | $0.94 | | |
| CNTYVET | VETERANS RELIEF | 0.0052777810 | $180,000 | $180,000 | $0.95 | | |
| MENTAL | MENTAL HEALTH | 0.0052121823 | $180,000 | $180,000 | $0.94 | | |
| PTGEN | CITY OF PT GENERAL | 0.8551967795 | $180,000 | $180,000 | $153.94 | | |
| PTLLL | CITY OF PT - LIBRARY LID LIFT | 0.4010114288 | $180,000 | $180,000 | $72.18 | | |
| PTMVBOND | CITY OF PT MV BOND | 0.0484717981 | $180,000 | $180,000 | $8.72 | | |
| HOSP2CASH | HOSP DIST #2 GENERAL | 0.0536075306 | $180,000 | $180,000 | $9.65 | | |
| SCH50BOND | SCHOOL DIST #50 BOND 2016 | 0.5377451389 | $180,000 | $180,000 | $96.79 | | |
| SCH50CP | SCHOOL DIST #50 CAP PROJ | 0.4573475088 | $180,000 | $180,000 | $82.32 | | |
| SCH50MO | SCHOOL DIST #50 EP & O | 0.8262822886 | $180,000 | $180,000 | $148.73 | | |
| CONSERVE | CONSERVATION FUTURES | 0.0275621078 | $180,000 | $180,000 | $4.96 | | |
| EMS1 | FIRE DIST #1 EMS | 0.4679948282 | $180,000 | $180,000 | $84.24 | | |
| FD1 | FIRE DIST #1 GENERAL | 1.2171942929 | $180,000 | $180,000 | $219.09 | | |
| PORTPT | PORT OF PT GENERAL | 0.1134941229 | $180,000 | $180,000 | $20.43 | | |
| PORTPTIDD | PORT OF PT IDD 2019 | 0.2577346692 | $180,000 | $180,000 | $46.39 | | |
| PUD1 | PUD #1 GENERAL | 0.0597888892 | $180,000 | $180,000 | $10.76 | | |
| STATE | STATE SCHOOL PART 1 | 1.4940692947 | $180,000 | $180,000 | $268.93 | | |
| STATE2 | STATE SCHOOL PART 2 | 0.8050170049 | $180,000 | $180,000 | $144.90 | | |
| | Total Tax Rate: | 8.5416817766 | | | | | |
| | | | | Taxes w/Current Exemptions: | $1,537.48 | | |
| | | | | Taxes w/o Exemptions: | $1,537.48 | | |
Improvement / Building
Sketch
| No sketches available for this property. |
Property Image
Land
| 1 | 6400-1175L | | 0.0000 | 0.00 | 0.00 | 0.00 | 1.00 | $180,000 | $0 |
Roll Value History
| 2026 | N/A | N/A | N/A | N/A | N/A |
| 2025 | $0 | $180,000 | $0 | $180,000 | $180,000 |
| 2024 | $0 | $176,000 | $0 | $176,000 | $176,000 |
| 2023 | $0 | $160,000 | $0 | $160,000 | $160,000 |
| 2022 | $0 | $160,000 | $0 | $160,000 | $160,000 |
Deed and Sales History
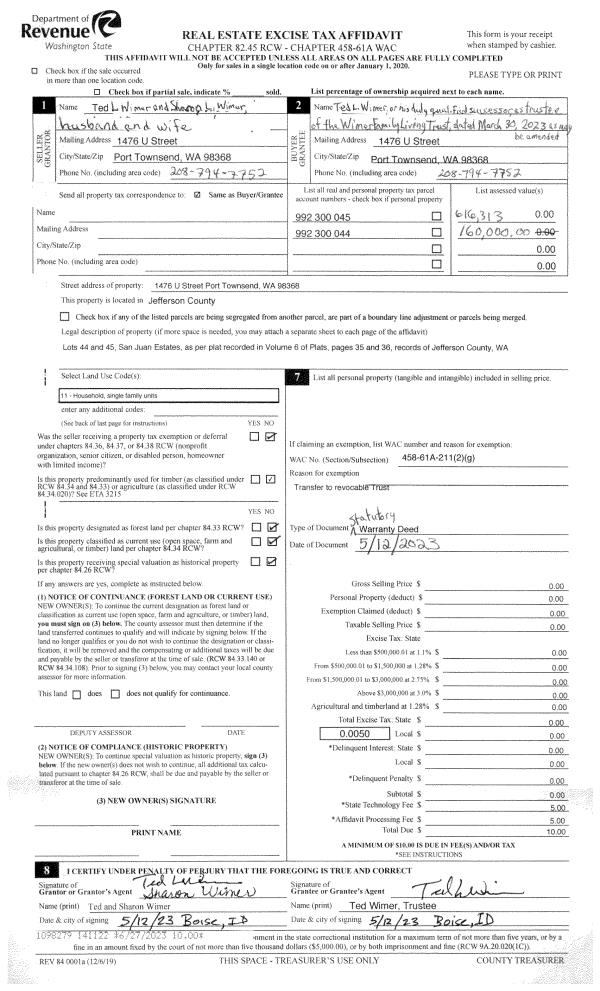
| 1 | 05/12/2023 | SWD | Statutory Warranty Deed | TED & SHARON L WIMER | WIMER FAMILY LIVING TRUST | | | | 141122 | |
| 2 | 11/03/2021 | SWD | Statutory Warranty Deed | DIANE E GALE | TED & SHARON L WIMER | | | $845,000.00 | 138003 | |
|   | |
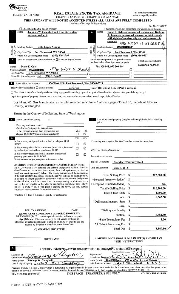
| 3 | 06/07/2013 | SWD | Statutory Warranty Deed | JENNINGS W CAMPBELL | DIANE E GALE | | | $312,500.00 | 119385 | |
|   | |
| 4 | 02/12/1998 | SWD | Statutory Warranty Deed | MARBLE, EDWARD & RUTHANNE | CAMPBELL, JENNINGS & IRENE | 0 | 0 | $0.00 | 83837 | 0 |
Payout Agreement
| No payout information available.. |