Property
Account |
| Property ID: | 42060 | Abbreviated Legal Description: | SEAMOUNT ESTATES DIV 1 LOT 18 |
| Parcel # / Geo ID: | 993000018 | Agent Code: | |
| Type: | Real | | |
| Tax Area: | 0441 - 1-46F4E4H2C1L1P2 | Land Use Code | 11 |
| Open Space: | N | DFL | N |
| Historic Property: | N | Remodel Property: | N |
| Multi-Family Redevelopment: | N | | |
| Township: | 25N | Section: | 32 |
| Range: | 2W |
Location |
| Address: | 220 SEAMOUNT DR BRINNON, WA 98320 | Mapsco: | 028/017 |
| Neighborhood: | SEAMOUNT ESTATES DIVISIONS 1 - 4 & DUPPENTHALER SHORT PLAT | Map ID: | |
| Neighborhood CD: | 1285 |
Owner |
| Name: | SARAH R PETERSON | Owner ID: | 112517 |
| Mailing Address: | JEREMIAH J WREN 220 SEAMOUNT DR BRINNON, WA 98320-9672 | % Ownership: | 100.0000000000% |
| | | Exemptions: | |
Pay Tax Due
There is currently No Amount Due on this property.
Taxes and Assessment Details
Property Tax Information as of
03/13/2026
Click on "Statement Details" to expand or collapse a tax statement.
* Please enter a valid date ** Please enter a valid date *
Statement Details |
| | TOTAL: | $0.00 | $0.00 | $0.00 | $0.00 | $0.00 | $0.00 |
|
| | $0.00 | $0.00 | $0.00 | $0.00 | $0.00 | $0.00 |
Values
| (+) Improvement Homesite Value: | + | $0 | |
| (+) Improvement Non-Homesite Value: | + | $403,435 | |
| (+) Land Homesite Value: | + | $0 | |
| (+) Land Non-Homesite Value: | + | $115,000 | |
| (+) Curr Use (HS): | + | $0 | $0 |
| (+) Curr Use (NHS): | + | $0 | $0 |
| | | -------------------------- | |
| (=) Market Value: | = | $518,435 | |
| (–) Productivity Loss: | – | $0 | |
| | | -------------------------- | |
| (=) Subtotal: | = | $518,435 | |
| (+) Senior Appraised Value: | + | $0 | |
| (+) Non-Senior Appraised Value: | + | $518,435 | |
| | | -------------------------- | |
| (=) Total Appraised Value: | = | $518,435 | |
| (–) Senior Exemption Loss: | – | $0 | |
| (–) Exemption Loss: | – | $0 | |
| | | -------------------------- | |
| (=) Taxable Value: | = | $518,435 | |
Taxing Jurisdiction
| Owner: | SARAH R PETERSON | | |
| % Ownership: | 100.0000000000% | | |
| Total Value: | $518,435 | | |
| Tax Area: | 0441 - 1-46F4E4H2C1L1P2 |
| CE | COUNTY CURRENT EXPENSE | 0.9034619479 | $518,435 | $518,435 | $468.39 | | |
| CNTYDD | DEVELOPMENTAL DISABILITIES | 0.0052121823 | $518,435 | $518,435 | $2.70 | | |
| CNTYVET | VETERANS RELIEF | 0.0052777810 | $518,435 | $518,435 | $2.74 | | |
| MENTAL | MENTAL HEALTH | 0.0052121823 | $518,435 | $518,435 | $2.70 | | |
| ROADS | COUNTY ROADS | 0.7415066410 | $518,435 | $518,435 | $384.42 | | |
| ROADSCU | COUNTY ROADS TO CUR EXP | 0.0000000000 | $518,435 | $518,435 | $0.00 | | |
| HOSP2CASH | HOSP DIST #2 GENERAL | 0.0536075306 | $518,435 | $518,435 | $27.79 | | |
| SCH46MO | SCHOOL DIST #46 EP & O | 0.6890207067 | $518,435 | $518,435 | $357.21 | | |
| CEM1 | CEMETERY DIST #1 GENERAL | 0.0107168292 | $518,435 | $518,435 | $5.56 | | |
| CONSERVE | CONSERVATION FUTURES | 0.0275621078 | $518,435 | $518,435 | $14.29 | | |
| EMS4 | FIRE DIST #4 EMS | 0.4644216158 | $518,435 | $518,435 | $240.77 | | |
| FD4 | FIRE DIST #4 GENERAL | 1.3939598390 | $518,435 | $518,435 | $722.68 | | |
| FD4BOND | FIRE DIST #4 BOND 2019 | 0.2748466981 | $518,435 | $518,435 | $142.49 | | |
| LIB1 | LIBRARY DIST #1 GENERAL | 0.2868827388 | $518,435 | $518,435 | $148.73 | | |
| PORTPT | PORT OF PT GENERAL | 0.1134941229 | $518,435 | $518,435 | $58.84 | | |
| PORTPTIDD | PORT OF PT IDD 2019 | 0.2577346692 | $518,435 | $518,435 | $133.62 | | |
| PUD1 | PUD #1 GENERAL | 0.0597888892 | $518,435 | $518,435 | $31.00 | | |
| STATE | STATE SCHOOL PART 1 | 1.4940692947 | $518,435 | $518,435 | $774.58 | | |
| STATE2 | STATE SCHOOL PART 2 | 0.8050170049 | $518,435 | $518,435 | $417.35 | | |
| | Total Tax Rate: | 7.5917927814 | | | | | |
| | | | | Taxes w/Current Exemptions: | $3,935.86 | | |
| | | | | Taxes w/o Exemptions: | $3,935.86 | | |
Improvement / Building
| Improvement #1: | Residential Bldg | State Code: | 11 | 1550.0 sqft | Value: | $403,435 |
| Bathrooms (#): | 1 (FULL) | Bedrooms (#): | 2 | | Exterior Wall: | LOG | Fireplace: | WD ST-GOOD | | Floor Construction: | FRAME | Foundation: | CONPR | | Heating/Cooling: | ELBB | Roof Cover: | METAL |
|
| | Type | Description | Class CD | Sub Class CD | Year Built | Area |
| | MA | Main Area | 4 | 1S | 1986 | 1550.0 |
| | HWPOR | House Wood Porch | 4 | * | 1986 | 128.0 |
| | CARPTN | Carport W/O Floor | 4 | * | 1986 | 360.0 |
| | SHED | Shed (Table Not Dep) | 4 | * | 1986 | 192.0 |
| | GDET | Detached Garage | 4 | * | 1986 | 400.0 |
Sketch
Property Image
Land
| 1 | 1285-1145L | Avg+ to Good Water View Lots (Div 1, 2, 3) | 0.0000 | 0.00 | 0.00 | 0.00 | 1.00 | $115,000 | $0 |
Roll Value History
| 2026 | N/A | N/A | N/A | N/A | N/A |
| 2025 | $403,435 | $115,000 | $0 | $518,435 | $518,435 |
| 2024 | $386,625 | $105,000 | $0 | $491,625 | $491,625 |
| 2023 | $369,816 | $95,000 | $0 | $464,816 | $464,816 |
| 2022 | $336,196 | $90,000 | $0 | $426,196 | $426,196 |
Deed and Sales History
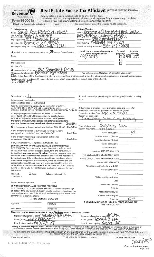
| 1 | 05/05/2025 | QCD | Quit Claim Deed | SARAH PETERSON | SARAH R PETERSON | | | | 144234 | |
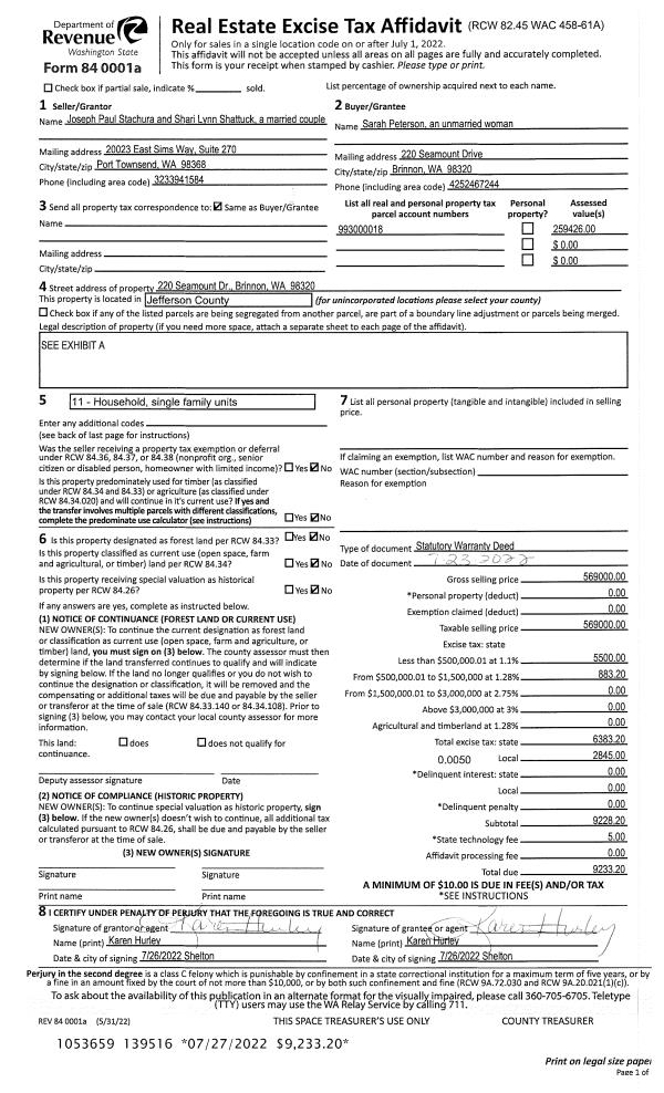
| 2 | 07/23/2022 | SWD | Statutory Warranty Deed | JOSEPH STACHURA & SHARI SHATTUCK | SARAH PETERSON | | | $569,000.00 | 139516 | |
| 3 | 05/20/2019 | SWD | Statutory Warranty Deed | ROSEANN DAY | JOSEPH STACHURA & SHARI SHATTUCK | | | $249,000.00 | 132391 | |
| 4 | 08/03/2015 | SWD | Statutory Warranty Deed | ALFRED W NYDEGGER | ROSEANN DAY | | | $168,000.00 | 123722 | |
Payout Agreement
| No payout information available.. |