Property
Account |
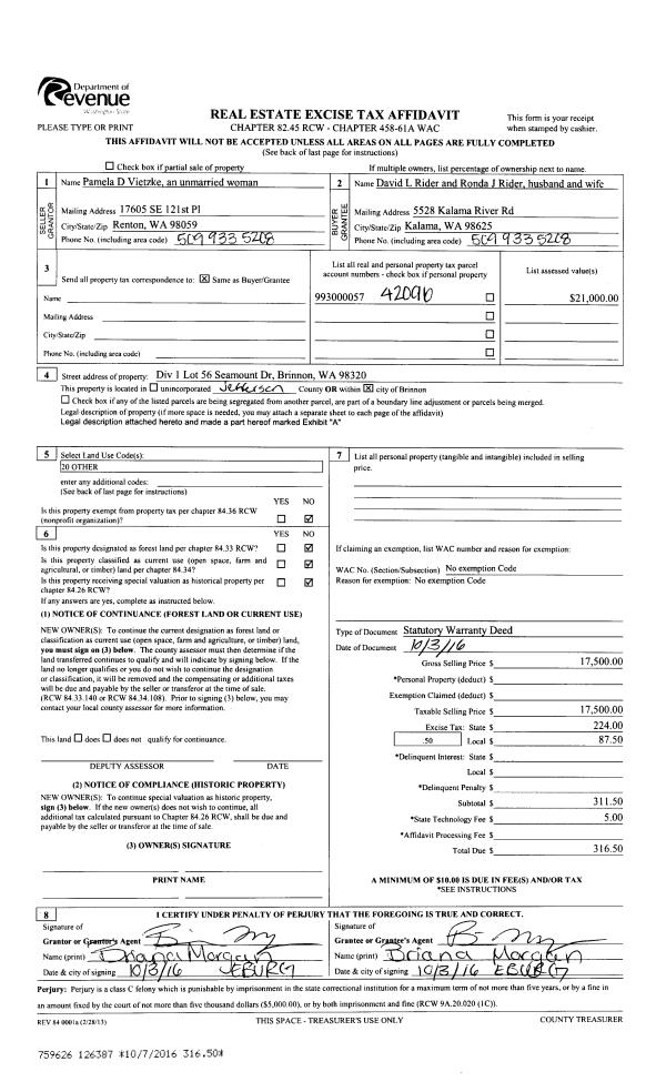
| Property ID: | 42096 | Abbreviated Legal Description: | SEAMOUNT ESTATES DIV 1 LOT 56 |
| Parcel # / Geo ID: | 993000057 | Agent Code: | |
| Type: | Real | | |
| Tax Area: | 0441 - 1-46F4E4H2C1L1P2 | Land Use Code | 91 |
| Open Space: | N | DFL | N |
| Historic Property: | N | Remodel Property: | N |
| Multi-Family Redevelopment: | N | | |
| Township: | 25N | Section: | 30 |
| Range: | 2W |
Location |
| Address: | | Mapsco: | 029/002 |
| Neighborhood: | SEAMOUNT ESTATES DIVISIONS 1 - 4 & DUPPENTHALER SHORT PLAT | Map ID: | |
| Neighborhood CD: | 1285 |
Owner |
| Name: | DAVID L & RONDA J RIDER | Owner ID: | 96221 |
| Mailing Address: | 5528 KALAMA RIVER RD KALAMA, WA 98625-9317 | % Ownership: | 100.0000000000% |
| | | Exemptions: | |
Pay Tax Due
Select the appropriate checkbox next to the year to be paid. Multiple years may be selected.
*Convenience Fee not included
Taxes and Assessment Details
Property Tax Information as of
03/11/2026
Click on "Statement Details" to expand or collapse a tax statement.
* Please enter a valid date ** Please enter a valid date *
Statement Details |
| 2026 | 31259 | STATE - STATE LEVY (SCHOOL) | $69.40 | $69.40 | $0.00 | $0.00 | $0.00 | $138.80 |
| 2026 | 31259 | COUNTY - COUNTY LEVIES (CE, DD, VET, MH) | $27.76 | $27.73 | $0.00 | $0.00 | $0.00 | $55.49 |
| 2026 | 31259 | CONSERVE - CONSERVATION FUTURES | $0.83 | $0.83 | $0.00 | $0.00 | $0.00 | $1.66 |
| 2026 | 31259 | COROADS - COUNTY ROADS (ROADS, DIV TO CE) | $22.39 | $22.38 | $0.00 | $0.00 | $0.00 | $44.77 |
| 2026 | 31259 | PORTPT - PORT DISTRICT | $11.21 | $11.20 | $0.00 | $0.00 | $0.00 | $22.41 |
| 2026 | 31259 | PUD1 - PUD #1 | $1.81 | $1.80 | $0.00 | $0.00 | $0.00 | $3.61 |
| 2026 | 31259 | LIB1 - LIBRARY DIST #1 | $8.66 | $8.66 | $0.00 | $0.00 | $0.00 | $17.32 |
| 2026 | 31259 | HD2 - HOSP DIST #2 | $1.62 | $1.62 | $0.00 | $0.00 | $0.00 | $3.24 |
| 2026 | 31259 | SD46 - SCHOOL DIST #46 | $20.80 | $20.80 | $0.00 | $0.00 | $0.00 | $41.60 |
| 2026 | 31259 | FD4 - FIRE DISTRICT #4 | $50.38 | $50.37 | $0.00 | $0.00 | $0.00 | $100.75 |
| 2026 | 31259 | EMS4 - FIRE DIST #4 EMS | $14.02 | $14.02 | $0.00 | $0.00 | $0.00 | $28.04 |
| 2026 | 31259 | CEM1 - CEMETERY DIST #1 | $0.33 | $0.32 | $0.00 | $0.00 | $0.00 | $0.65 |
| 2026 | 31259 | FP - DNR Forest Fire Protection Assmt | $8.50 | $8.50 | $0.00 | $0.00 | $0.00 | $17.00 |
| 2026 | 31259 | FPLCA - DNR Landowner Contingency Assmt | $3.00 | $3.00 | $0.00 | $0.00 | $0.00 | $6.00 |
| 2026 | 31259 | JCCD - JC Conservation District | $2.53 | $2.53 | $0.00 | $0.00 | $0.00 | $5.06 |
| 2026 | 31259 | NWA - Noxious Weed Assessment | $2.98 | $2.97 | $0.00 | $0.00 | $0.00 | $5.95 |
| 2026 | 31259 | WAT - Clean Water District | $13.00 | $13.00 | $0.00 | $0.00 | $0.00 | $26.00 |
| 2026 | 31259 | FP ADMIN - FP ADMIN | $0.50 | $0.00 | $0.00 | $0.00 | $0.00 | $0.50 |
| 2026 | 31259 | TOTAL: | $259.72 | $259.13 | $0.00 | $0.00 | $0.00 | $518.85 |
|
| 2026 | 31259 | $259.72 | $259.13 | $0.00 | $0.00 | $0.00 | $518.85 |
Statement Details |
| 2025 | 31331 | STATE - STATE LEVY (SCHOOL) | $66.10 | $66.09 | $0.00 | $0.00 | $132.19 | $0.00 |
| 2025 | 31331 | COUNTY - COUNTY LEVIES (CE, DD, VET, MH) | $26.00 | $25.98 | $0.00 | $0.00 | $51.98 | $0.00 |
| 2025 | 31331 | CONSERVE - CONSERVATION FUTURES | $0.78 | $0.78 | $0.00 | $0.00 | $1.56 | $0.00 |
| 2025 | 31331 | COROADS - COUNTY ROADS (ROADS, DIV TO CE) | $20.83 | $20.82 | $0.00 | $0.00 | $41.65 | $0.00 |
| 2025 | 31331 | PORTPT - PORT DISTRICT | $10.61 | $10.60 | $0.00 | $0.00 | $21.21 | $0.00 |
| 2025 | 31331 | PUD1 - PUD #1 | $1.70 | $1.70 | $0.00 | $0.00 | $3.40 | $0.00 |
| 2025 | 31331 | LIB1 - LIBRARY DIST #1 | $8.06 | $8.05 | $0.00 | $0.00 | $16.11 | $0.00 |
| 2025 | 31331 | HD2 - HOSP DIST #2 | $1.52 | $1.51 | $0.00 | $0.00 | $3.03 | $0.00 |
| 2025 | 31331 | SD46 - SCHOOL DIST #46 | $17.47 | $17.47 | $0.00 | $0.00 | $34.94 | $0.00 |
| 2025 | 31331 | FD4 - FIRE DISTRICT #4 | $48.42 | $48.41 | $0.00 | $0.00 | $96.83 | $0.00 |
| 2025 | 31331 | EMS4 - FIRE DIST #4 EMS | $13.44 | $13.43 | $0.00 | $0.00 | $26.87 | $0.00 |
| 2025 | 31331 | CEM1 - CEMETERY DIST #1 | $0.31 | $0.31 | $0.00 | $0.00 | $0.62 | $0.00 |
| 2025 | 31331 | FP - DNR Forest Fire Protection Assmt | $8.50 | $8.50 | $0.00 | $0.00 | $17.00 | $0.00 |
| 2025 | 31331 | FPLCA - DNR Landowner Contingency Assmt | $3.00 | $3.00 | $0.00 | $0.00 | $6.00 | $0.00 |
| 2025 | 31331 | JCCD - JC Conservation District | $2.53 | $2.53 | $0.00 | $0.00 | $5.06 | $0.00 |
| 2025 | 31331 | NWA - Noxious Weed Assessment | $2.15 | $2.15 | $0.00 | $0.00 | $4.30 | $0.00 |
| 2025 | 31331 | WAT - Clean Water District | $13.00 | $13.00 | $0.00 | $0.00 | $26.00 | $0.00 |
| 2025 | 31331 | FP ADMIN - FP ADMIN | $0.50 | $0.00 | $0.00 | $0.00 | $0.50 | $0.00 |
| 2025 | 31331 | TOTAL: | $244.92 | $244.33 | $0.00 | $0.00 | $489.25 | $0.00 |
|
| 2025 | 31331 | $244.92 | $244.33 | $0.00 | $0.00 | $489.25 | $0.00 |
Statement Details |
| 2024 | 31390 | STATE - STATE LEVY (SCHOOL) | $60.74 | $60.73 | $0.00 | $0.00 | $121.47 | $0.00 |
| 2024 | 31390 | COUNTY - COUNTY LEVIES (CE, DD, VET, MH) | $26.00 | $25.97 | $0.00 | $0.00 | $51.97 | $0.00 |
| 2024 | 31390 | CONSERVE - CONSERVATION FUTURES | $0.78 | $0.78 | $0.00 | $0.00 | $1.56 | $0.00 |
| 2024 | 31390 | COROADS - COUNTY ROADS (ROADS, DIV TO CE) | $20.91 | $20.91 | $0.00 | $0.00 | $41.82 | $0.00 |
| 2024 | 31390 | PORTPT - PORT DISTRICT | $10.74 | $10.73 | $0.00 | $0.00 | $21.47 | $0.00 |
| 2024 | 31390 | PUD1 - PUD #1 | $1.71 | $1.70 | $0.00 | $0.00 | $3.41 | $0.00 |
| 2024 | 31390 | LIB1 - LIBRARY DIST #1 | $8.09 | $8.09 | $0.00 | $0.00 | $16.18 | $0.00 |
| 2024 | 31390 | HD2 - HOSP DIST #2 | $1.52 | $1.51 | $0.00 | $0.00 | $3.03 | $0.00 |
| 2024 | 31390 | SD46 - SCHOOL DIST #46 | $18.23 | $18.23 | $0.00 | $0.00 | $36.46 | $0.00 |
| 2024 | 31390 | FD4 - FIRE DISTRICT #4 | $47.10 | $47.09 | $0.00 | $0.00 | $94.19 | $0.00 |
| 2024 | 31390 | EMS4 - FIRE DIST #4 EMS | $13.13 | $13.12 | $0.00 | $0.00 | $26.25 | $0.00 |
| 2024 | 31390 | CEM1 - CEMETERY DIST #1 | $0.31 | $0.30 | $0.00 | $0.00 | $0.61 | $0.00 |
| 2024 | 31390 | FP - DNR Forest Fire Protection Assmt | $8.50 | $8.50 | $0.00 | $0.00 | $17.00 | $0.00 |
| 2024 | 31390 | FPLCA - DNR Landowner Contingency Assmt | $3.00 | $3.00 | $0.00 | $0.00 | $6.00 | $0.00 |
| 2024 | 31390 | JCCD - JC Conservation District | $2.53 | $2.53 | $0.00 | $0.00 | $5.06 | $0.00 |
| 2024 | 31390 | NWA - Noxious Weed Assessment | $2.15 | $2.15 | $0.00 | $0.00 | $4.30 | $0.00 |
| 2024 | 31390 | WAT - Clean Water District | $12.50 | $12.50 | $0.00 | $0.00 | $25.00 | $0.00 |
| 2024 | 31390 | FP ADMIN - FP ADMIN | $0.50 | $0.00 | $0.00 | $0.00 | $0.50 | $0.00 |
| 2024 | 31390 | TOTAL: | $238.44 | $237.84 | $0.00 | $0.00 | $476.28 | $0.00 |
|
| 2024 | 31390 | $238.44 | $237.84 | $0.00 | $0.00 | $476.28 | $0.00 |
Statement Details |
| 2023 | 31432 | STATE - STATE LEVY (SCHOOL) | $61.80 | $61.79 | $0.00 | $0.00 | $123.59 | $0.00 |
| 2023 | 31432 | COUNTY - COUNTY LEVIES (CE, DD, VET, MH) | $26.99 | $26.95 | $0.00 | $0.00 | $53.94 | $0.00 |
| 2023 | 31432 | CONSERVE - CONSERVATION FUTURES | $0.81 | $0.81 | $0.00 | $0.00 | $1.62 | $0.00 |
| 2023 | 31432 | COROADS - COUNTY ROADS (ROADS, DIV TO CE) | $21.83 | $21.81 | $0.00 | $0.00 | $43.64 | $0.00 |
| 2023 | 31432 | PORTPT - PORT DISTRICT | $11.36 | $11.36 | $0.00 | $0.00 | $22.72 | $0.00 |
| 2023 | 31432 | PUD1 - PUD #1 | $1.79 | $1.78 | $0.00 | $0.00 | $3.57 | $0.00 |
| 2023 | 31432 | LIB1 - LIBRARY DIST #1 | $8.44 | $8.44 | $0.00 | $0.00 | $16.88 | $0.00 |
| 2023 | 31432 | HD2 - HOSP DIST #2 | $1.58 | $1.57 | $0.00 | $0.00 | $3.15 | $0.00 |
| 2023 | 31432 | SD46 - SCHOOL DIST #46 | $20.17 | $20.17 | $0.00 | $0.00 | $40.34 | $0.00 |
| 2023 | 31432 | FD4 - FIRE DISTRICT #4 | $33.55 | $33.53 | $0.00 | $0.00 | $67.08 | $0.00 |
| 2023 | 31432 | EMS4 - FIRE DIST #4 EMS | $9.54 | $9.54 | $0.00 | $0.00 | $19.08 | $0.00 |
| 2023 | 31432 | CEM1 - CEMETERY DIST #1 | $0.34 | $0.33 | $0.00 | $0.00 | $0.67 | $0.00 |
| 2023 | 31432 | FP - DNR Forest Fire Protection Assmt | $8.50 | $8.50 | $0.00 | $0.00 | $17.00 | $0.00 |
| 2023 | 31432 | FPLCA - DNR Landowner Contingency Assmt | $3.00 | $3.00 | $0.00 | $0.00 | $6.00 | $0.00 |
| 2023 | 31432 | JCCD - JC Conservation District | $2.53 | $2.53 | $0.00 | $0.00 | $5.06 | $0.00 |
| 2023 | 31432 | NWA - Noxious Weed Assessment | $2.15 | $2.15 | $0.00 | $0.00 | $4.30 | $0.00 |
| 2023 | 31432 | WAT - Clean Water District | $12.00 | $12.00 | $0.00 | $0.00 | $24.00 | $0.00 |
| 2023 | 31432 | FP ADMIN - FP ADMIN | $0.50 | $0.00 | $0.00 | $0.00 | $0.50 | $0.00 |
| 2023 | 31432 | TOTAL: | $226.88 | $226.26 | $0.00 | $0.00 | $453.14 | $0.00 |
|
| 2023 | 31432 | $226.88 | $226.26 | $0.00 | $0.00 | $453.14 | $0.00 |
Values
| (+) Improvement Homesite Value: | + | $0 | |
| (+) Improvement Non-Homesite Value: | + | $0 | |
| (+) Land Homesite Value: | + | $0 | |
| (+) Land Non-Homesite Value: | + | $60,375 | |
| (+) Curr Use (HS): | + | $0 | $0 |
| (+) Curr Use (NHS): | + | $0 | $0 |
| | | -------------------------- | |
| (=) Market Value: | = | $60,375 | |
| (–) Productivity Loss: | – | $0 | |
| | | -------------------------- | |
| (=) Subtotal: | = | $60,375 | |
| (+) Senior Appraised Value: | + | $0 | |
| (+) Non-Senior Appraised Value: | + | $60,375 | |
| | | -------------------------- | |
| (=) Total Appraised Value: | = | $60,375 | |
| (–) Senior Exemption Loss: | – | $0 | |
| (–) Exemption Loss: | – | $0 | |
| | | -------------------------- | |
| (=) Taxable Value: | = | $60,375 | |
Taxing Jurisdiction
| Owner: | DAVID L & RONDA J RIDER | | |
| % Ownership: | 100.0000000000% | | |
| Total Value: | $60,375 | | |
| Tax Area: | 0441 - 1-46F4E4H2C1L1P2 |
| CE | COUNTY CURRENT EXPENSE | 0.9034619479 | $60,375 | $60,375 | $54.55 | | |
| CNTYDD | DEVELOPMENTAL DISABILITIES | 0.0052121823 | $60,375 | $60,375 | $0.31 | | |
| CNTYVET | VETERANS RELIEF | 0.0052777810 | $60,375 | $60,375 | $0.32 | | |
| MENTAL | MENTAL HEALTH | 0.0052121823 | $60,375 | $60,375 | $0.31 | | |
| ROADS | COUNTY ROADS | 0.7415066410 | $60,375 | $60,375 | $44.77 | | |
| ROADSCU | COUNTY ROADS TO CUR EXP | 0.0000000000 | $60,375 | $60,375 | $0.00 | | |
| HOSP2CASH | HOSP DIST #2 GENERAL | 0.0536075306 | $60,375 | $60,375 | $3.24 | | |
| SCH46MO | SCHOOL DIST #46 EP & O | 0.6890207067 | $60,375 | $60,375 | $41.60 | | |
| CEM1 | CEMETERY DIST #1 GENERAL | 0.0107168292 | $60,375 | $60,375 | $0.65 | | |
| CONSERVE | CONSERVATION FUTURES | 0.0275621078 | $60,375 | $60,375 | $1.66 | | |
| EMS4 | FIRE DIST #4 EMS | 0.4644216158 | $60,375 | $60,375 | $28.04 | | |
| FD4 | FIRE DIST #4 GENERAL | 1.3939598390 | $60,375 | $60,375 | $84.16 | | |
| FD4BOND | FIRE DIST #4 BOND 2019 | 0.2748466981 | $60,375 | $60,375 | $16.59 | | |
| LIB1 | LIBRARY DIST #1 GENERAL | 0.2868827388 | $60,375 | $60,375 | $17.32 | | |
| PORTPT | PORT OF PT GENERAL | 0.1134941229 | $60,375 | $60,375 | $6.85 | | |
| PORTPTIDD | PORT OF PT IDD 2019 | 0.2577346692 | $60,375 | $60,375 | $15.56 | | |
| PUD1 | PUD #1 GENERAL | 0.0597888892 | $60,375 | $60,375 | $3.61 | | |
| STATE | STATE SCHOOL PART 1 | 1.4940692947 | $60,375 | $60,375 | $90.20 | | |
| STATE2 | STATE SCHOOL PART 2 | 0.8050170049 | $60,375 | $60,375 | $48.60 | | |
| | Total Tax Rate: | 7.5917927814 | | | | | |
| | | | | Taxes w/Current Exemptions: | $458.34 | | |
| | | | | Taxes w/o Exemptions: | $458.34 | | |
Improvement / Building
Sketch
| No sketches available for this property. |
Property Image
Land
| 1 | 1285-1145L | | 0.0000 | 0.00 | 0.00 | 0.00 | 1.00 | $60,375 | $0 |
Roll Value History
| 2026 | N/A | N/A | N/A | N/A | N/A |
| 2025 | $0 | $60,375 | $0 | $60,375 | $60,375 |
| 2024 | $0 | $55,125 | $0 | $55,125 | $55,125 |
| 2023 | $0 | $52,500 | $0 | $52,500 | $52,500 |
| 2022 | $0 | $52,500 | $0 | $52,500 | $52,500 |
Deed and Sales History
| 1 | 10/03/2016 | SWD | Statutory Warranty Deed | GERALD VIETZKE | DAVID L & RONDA J RIDER | | | $17,500.00 | 126387 | |
| 2 | 12/12/2005 | SWD | Statutory Warranty Deed | REIMER, ROBERT C & JACK R | VIETZKE, GERALD & PAMELA | 0 | 0 | $20,000.00 | 105577 | 0 |
| 3 | 02/02/2004 | QCD | Quit Claim Deed | NIEDERHAUSER, BETTY R | REIMER, ROBERT/JACK | 0 | 0 | $0.00 | 99529 | 0 |
Payout Agreement
| No payout information available.. |