Property
Account |
| Property ID: | 42140 | Abbreviated Legal Description: | SEAMOUNT ESTATES DIV 2 LOT 24 |
| Parcel # / Geo ID: | 993200024 | Agent Code: | |
| Type: | Real | | |
| Tax Area: | 0441 - 1-46F4E4H2C1L1P2 | Land Use Code | 18 |
| Open Space: | N | DFL | N |
| Historic Property: | N | Remodel Property: | N |
| Multi-Family Redevelopment: | N | | |
| Township: | 25N | Section: | 29 |
| Range: | 2W |
Location |
| Address: | 140 KING DR BRINNON, WA 98320 | Mapsco: | 029/043 |
| Neighborhood: | SEAMOUNT ESTATES DIVISIONS 1 - 4 & DUPPENTHALER SHORT PLAT | Map ID: | |
| Neighborhood CD: | 1285 |
Owner |
| Name: | KAREN A HERMAN | Owner ID: | 98533 |
| Mailing Address: | 1823 N BALTIMORE ST TACOMA, WA 98400-2823 | % Ownership: | 100.0000000000% |
| | | Exemptions: | |
Pay Tax Due
Select the appropriate checkbox next to the year to be paid. Multiple years may be selected.
*Convenience Fee not included
Taxes and Assessment Details
Property Tax Information as of
03/10/2026
Click on "Statement Details" to expand or collapse a tax statement.
* Please enter a valid date ** Please enter a valid date *
Statement Details |
| 2026 | 31303 | STATE - STATE LEVY (SCHOOL) | $105.76 | $105.75 | $0.00 | $0.00 | $0.00 | $211.51 |
| 2026 | 31303 | COUNTY - COUNTY LEVIES (CE, DD, VET, MH) | $42.29 | $42.28 | $0.00 | $0.00 | $0.00 | $84.57 |
| 2026 | 31303 | CONSERVE - CONSERVATION FUTURES | $1.27 | $1.27 | $0.00 | $0.00 | $0.00 | $2.54 |
| 2026 | 31303 | COROADS - COUNTY ROADS (ROADS, DIV TO CE) | $34.11 | $34.11 | $0.00 | $0.00 | $0.00 | $68.22 |
| 2026 | 31303 | PORTPT - PORT DISTRICT | $17.08 | $17.07 | $0.00 | $0.00 | $0.00 | $34.15 |
| 2026 | 31303 | PUD1 - PUD #1 | $2.75 | $2.75 | $0.00 | $0.00 | $0.00 | $5.50 |
| 2026 | 31303 | LIB1 - LIBRARY DIST #1 | $13.20 | $13.19 | $0.00 | $0.00 | $0.00 | $26.39 |
| 2026 | 31303 | HD2 - HOSP DIST #2 | $2.47 | $2.46 | $0.00 | $0.00 | $0.00 | $4.93 |
| 2026 | 31303 | SD46 - SCHOOL DIST #46 | $31.70 | $31.69 | $0.00 | $0.00 | $0.00 | $63.39 |
| 2026 | 31303 | FD4 - FIRE DISTRICT #4 | $76.77 | $76.76 | $0.00 | $0.00 | $0.00 | $153.53 |
| 2026 | 31303 | EMS4 - FIRE DIST #4 EMS | $21.37 | $21.36 | $0.00 | $0.00 | $0.00 | $42.73 |
| 2026 | 31303 | CEM1 - CEMETERY DIST #1 | $0.50 | $0.49 | $0.00 | $0.00 | $0.00 | $0.99 |
| 2026 | 31303 | JCCD - JC Conservation District | $2.53 | $2.53 | $0.00 | $0.00 | $0.00 | $5.06 |
| 2026 | 31303 | NWA - Noxious Weed Assessment | $2.98 | $2.97 | $0.00 | $0.00 | $0.00 | $5.95 |
| 2026 | 31303 | OSS - On Site Septic | $23.10 | $23.10 | $0.00 | $0.00 | $0.00 | $46.20 |
| 2026 | 31303 | WAT - Clean Water District | $13.00 | $13.00 | $0.00 | $0.00 | $0.00 | $26.00 |
| 2026 | 31303 | TOTAL: | $390.88 | $390.78 | $0.00 | $0.00 | $0.00 | $781.66 |
|
| 2026 | 31303 | $390.88 | $390.78 | $0.00 | $0.00 | $0.00 | $781.66 |
Statement Details |
| 2025 | 31375 | STATE - STATE LEVY (SCHOOL) | $100.72 | $100.71 | $0.00 | $0.00 | $201.43 | $0.00 |
| 2025 | 31375 | COUNTY - COUNTY LEVIES (CE, DD, VET, MH) | $39.62 | $39.59 | $0.00 | $0.00 | $79.21 | $0.00 |
| 2025 | 31375 | CONSERVE - CONSERVATION FUTURES | $1.19 | $1.19 | $0.00 | $0.00 | $2.38 | $0.00 |
| 2025 | 31375 | COROADS - COUNTY ROADS (ROADS, DIV TO CE) | $31.73 | $31.73 | $0.00 | $0.00 | $63.46 | $0.00 |
| 2025 | 31375 | PORTPT - PORT DISTRICT | $16.16 | $16.16 | $0.00 | $0.00 | $32.32 | $0.00 |
| 2025 | 31375 | PUD1 - PUD #1 | $2.59 | $2.59 | $0.00 | $0.00 | $5.18 | $0.00 |
| 2025 | 31375 | LIB1 - LIBRARY DIST #1 | $12.28 | $12.27 | $0.00 | $0.00 | $24.55 | $0.00 |
| 2025 | 31375 | HD2 - HOSP DIST #2 | $2.31 | $2.31 | $0.00 | $0.00 | $4.62 | $0.00 |
| 2025 | 31375 | SD46 - SCHOOL DIST #46 | $26.62 | $26.62 | $0.00 | $0.00 | $53.24 | $0.00 |
| 2025 | 31375 | FD4 - FIRE DISTRICT #4 | $73.78 | $73.77 | $0.00 | $0.00 | $147.55 | $0.00 |
| 2025 | 31375 | EMS4 - FIRE DIST #4 EMS | $20.47 | $20.47 | $0.00 | $0.00 | $40.94 | $0.00 |
| 2025 | 31375 | CEM1 - CEMETERY DIST #1 | $0.48 | $0.47 | $0.00 | $0.00 | $0.95 | $0.00 |
| 2025 | 31375 | JCCD - JC Conservation District | $2.55 | $2.55 | $0.00 | $0.00 | $5.10 | $0.00 |
| 2025 | 31375 | NWA - Noxious Weed Assessment | $2.15 | $2.15 | $0.00 | $0.00 | $4.30 | $0.00 |
| 2025 | 31375 | OSS - On Site Septic | $21.50 | $21.50 | $0.00 | $0.00 | $43.00 | $0.00 |
| 2025 | 31375 | WAT - Clean Water District | $13.00 | $13.00 | $0.00 | $0.00 | $26.00 | $0.00 |
| 2025 | 31375 | TOTAL: | $367.15 | $367.08 | $0.00 | $0.00 | $734.23 | $0.00 |
|
| 2025 | 31375 | $367.15 | $367.08 | $0.00 | $0.00 | $734.23 | $0.00 |
Statement Details |
| 2024 | 31434 | STATE - STATE LEVY (SCHOOL) | $86.76 | $86.76 | $0.00 | $0.00 | $173.52 | $0.00 |
| 2024 | 31434 | COUNTY - COUNTY LEVIES (CE, DD, VET, MH) | $37.13 | $37.12 | $0.00 | $0.00 | $74.25 | $0.00 |
| 2024 | 31434 | CONSERVE - CONSERVATION FUTURES | $1.12 | $1.11 | $0.00 | $0.00 | $2.23 | $0.00 |
| 2024 | 31434 | COROADS - COUNTY ROADS (ROADS, DIV TO CE) | $29.88 | $29.87 | $0.00 | $0.00 | $59.75 | $0.00 |
| 2024 | 31434 | PORTPT - PORT DISTRICT | $15.34 | $15.33 | $0.00 | $0.00 | $30.67 | $0.00 |
| 2024 | 31434 | PUD1 - PUD #1 | $2.44 | $2.44 | $0.00 | $0.00 | $4.88 | $0.00 |
| 2024 | 31434 | LIB1 - LIBRARY DIST #1 | $11.56 | $11.56 | $0.00 | $0.00 | $23.12 | $0.00 |
| 2024 | 31434 | HD2 - HOSP DIST #2 | $2.17 | $2.16 | $0.00 | $0.00 | $4.33 | $0.00 |
| 2024 | 31434 | SD46 - SCHOOL DIST #46 | $26.05 | $26.04 | $0.00 | $0.00 | $52.09 | $0.00 |
| 2024 | 31434 | FD4 - FIRE DISTRICT #4 | $67.28 | $67.28 | $0.00 | $0.00 | $134.56 | $0.00 |
| 2024 | 31434 | EMS4 - FIRE DIST #4 EMS | $18.75 | $18.75 | $0.00 | $0.00 | $37.50 | $0.00 |
| 2024 | 31434 | CEM1 - CEMETERY DIST #1 | $0.44 | $0.44 | $0.00 | $0.00 | $0.88 | $0.00 |
| 2024 | 31434 | JCCD - JC Conservation District | $2.55 | $2.55 | $0.00 | $0.00 | $5.10 | $0.00 |
| 2024 | 31434 | NWA - Noxious Weed Assessment | $2.15 | $2.15 | $0.00 | $0.00 | $4.30 | $0.00 |
| 2024 | 31434 | OSS - On Site Septic | $21.00 | $21.00 | $0.00 | $0.00 | $42.00 | $0.00 |
| 2024 | 31434 | WAT - Clean Water District | $12.50 | $12.50 | $0.00 | $0.00 | $25.00 | $0.00 |
| 2024 | 31434 | TOTAL: | $337.12 | $337.06 | $0.00 | $0.00 | $674.18 | $0.00 |
|
| 2024 | 31434 | $337.12 | $337.06 | $0.00 | $0.00 | $674.18 | $0.00 |
Statement Details |
| 2023 | 31476 | STATE - STATE LEVY (SCHOOL) | $64.74 | $64.74 | $0.00 | $0.00 | $129.48 | $0.00 |
| 2023 | 31476 | COUNTY - COUNTY LEVIES (CE, DD, VET, MH) | $28.25 | $28.24 | $0.00 | $0.00 | $56.49 | $0.00 |
| 2023 | 31476 | CONSERVE - CONSERVATION FUTURES | $0.85 | $0.84 | $0.00 | $0.00 | $1.69 | $0.00 |
| 2023 | 31476 | COROADS - COUNTY ROADS (ROADS, DIV TO CE) | $22.87 | $22.85 | $0.00 | $0.00 | $45.72 | $0.00 |
| 2023 | 31476 | PORTPT - PORT DISTRICT | $11.90 | $11.90 | $0.00 | $0.00 | $23.80 | $0.00 |
| 2023 | 31476 | PUD1 - PUD #1 | $1.88 | $1.87 | $0.00 | $0.00 | $3.75 | $0.00 |
| 2023 | 31476 | LIB1 - LIBRARY DIST #1 | $8.85 | $8.84 | $0.00 | $0.00 | $17.69 | $0.00 |
| 2023 | 31476 | HD2 - HOSP DIST #2 | $1.65 | $1.64 | $0.00 | $0.00 | $3.29 | $0.00 |
| 2023 | 31476 | SD46 - SCHOOL DIST #46 | $21.13 | $21.13 | $0.00 | $0.00 | $42.26 | $0.00 |
| 2023 | 31476 | FD4 - FIRE DISTRICT #4 | $35.14 | $35.13 | $0.00 | $0.00 | $70.27 | $0.00 |
| 2023 | 31476 | EMS4 - FIRE DIST #4 EMS | $9.99 | $9.99 | $0.00 | $0.00 | $19.98 | $0.00 |
| 2023 | 31476 | CEM1 - CEMETERY DIST #1 | $0.36 | $0.35 | $0.00 | $0.00 | $0.71 | $0.00 |
| 2023 | 31476 | JCCD - JC Conservation District | $2.55 | $2.55 | $0.00 | $0.00 | $5.10 | $0.00 |
| 2023 | 31476 | NWA - Noxious Weed Assessment | $2.15 | $2.15 | $0.00 | $0.00 | $4.30 | $0.00 |
| 2023 | 31476 | OSS - On Site Septic | $20.50 | $20.50 | $0.00 | $0.00 | $41.00 | $0.00 |
| 2023 | 31476 | WAT - Clean Water District | $12.00 | $12.00 | $0.00 | $0.00 | $24.00 | $0.00 |
| 2023 | 31476 | TOTAL: | $244.81 | $244.72 | $0.00 | $0.00 | $489.53 | $0.00 |
|
| 2023 | 31476 | $244.81 | $244.72 | $0.00 | $0.00 | $489.53 | $0.00 |
Values
| (+) Improvement Homesite Value: | + | $0 | |
| (+) Improvement Non-Homesite Value: | + | $0 | |
| (+) Land Homesite Value: | + | $0 | |
| (+) Land Non-Homesite Value: | + | $92,000 | |
| (+) Curr Use (HS): | + | $0 | $0 |
| (+) Curr Use (NHS): | + | $0 | $0 |
| | | -------------------------- | |
| (=) Market Value: | = | $92,000 | |
| (–) Productivity Loss: | – | $0 | |
| | | -------------------------- | |
| (=) Subtotal: | = | $92,000 | |
| (+) Senior Appraised Value: | + | $0 | |
| (+) Non-Senior Appraised Value: | + | $92,000 | |
| | | -------------------------- | |
| (=) Total Appraised Value: | = | $92,000 | |
| (–) Senior Exemption Loss: | – | $0 | |
| (–) Exemption Loss: | – | $0 | |
| | | -------------------------- | |
| (=) Taxable Value: | = | $92,000 | |
Taxing Jurisdiction
| Owner: | KAREN A HERMAN | | |
| % Ownership: | 100.0000000000% | | |
| Total Value: | $92,000 | | |
| Tax Area: | 0441 - 1-46F4E4H2C1L1P2 |
| CE | COUNTY CURRENT EXPENSE | 0.9034619479 | $92,000 | $92,000 | $83.12 | | |
| CNTYDD | DEVELOPMENTAL DISABILITIES | 0.0052121823 | $92,000 | $92,000 | $0.48 | | |
| CNTYVET | VETERANS RELIEF | 0.0052777810 | $92,000 | $92,000 | $0.49 | | |
| MENTAL | MENTAL HEALTH | 0.0052121823 | $92,000 | $92,000 | $0.48 | | |
| ROADS | COUNTY ROADS | 0.7415066410 | $92,000 | $92,000 | $68.22 | | |
| ROADSCU | COUNTY ROADS TO CUR EXP | 0.0000000000 | $92,000 | $92,000 | $0.00 | | |
| HOSP2CASH | HOSP DIST #2 GENERAL | 0.0536075306 | $92,000 | $92,000 | $4.93 | | |
| SCH46MO | SCHOOL DIST #46 EP & O | 0.6890207067 | $92,000 | $92,000 | $63.39 | | |
| CEM1 | CEMETERY DIST #1 GENERAL | 0.0107168292 | $92,000 | $92,000 | $0.99 | | |
| CONSERVE | CONSERVATION FUTURES | 0.0275621078 | $92,000 | $92,000 | $2.54 | | |
| EMS4 | FIRE DIST #4 EMS | 0.4644216158 | $92,000 | $92,000 | $42.73 | | |
| FD4 | FIRE DIST #4 GENERAL | 1.3939598390 | $92,000 | $92,000 | $128.24 | | |
| FD4BOND | FIRE DIST #4 BOND 2019 | 0.2748466981 | $92,000 | $92,000 | $25.29 | | |
| LIB1 | LIBRARY DIST #1 GENERAL | 0.2868827388 | $92,000 | $92,000 | $26.39 | | |
| PORTPT | PORT OF PT GENERAL | 0.1134941229 | $92,000 | $92,000 | $10.44 | | |
| PORTPTIDD | PORT OF PT IDD 2019 | 0.2577346692 | $92,000 | $92,000 | $23.71 | | |
| PUD1 | PUD #1 GENERAL | 0.0597888892 | $92,000 | $92,000 | $5.50 | | |
| STATE | STATE SCHOOL PART 1 | 1.4940692947 | $92,000 | $92,000 | $137.45 | | |
| STATE2 | STATE SCHOOL PART 2 | 0.8050170049 | $92,000 | $92,000 | $74.06 | | |
| | Total Tax Rate: | 7.5917927814 | | | | | |
| | | | | Taxes w/Current Exemptions: | $698.45 | | |
| | | | | Taxes w/o Exemptions: | $698.45 | | |
Improvement / Building
Sketch
| No sketches available for this property. |
Property Image
Land
| 1 | 1285-1185L | | 0.0000 | 0.00 | 0.00 | 0.00 | 1.00 | $92,000 | $0 |
Roll Value History
| 2026 | N/A | N/A | N/A | N/A | N/A |
| 2025 | $0 | $92,000 | $0 | $92,000 | $92,000 |
| 2024 | $0 | $84,000 | $0 | $84,000 | $84,000 |
| 2023 | $0 | $75,000 | $0 | $75,000 | $75,000 |
| 2022 | $0 | $55,000 | $0 | $55,000 | $55,000 |
Deed and Sales History
| 1 | 03/31/2018 | QCD | Quit Claim Deed | | | | | | 129853 | |
| 2 | 03/22/2018 | PRD | Personal Representatives Deed | ARDYCE BAFUS | KATHERINE C COLE | | | | 129852 | |
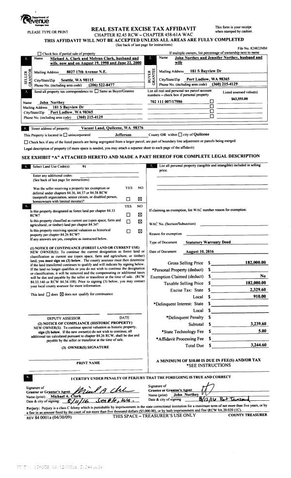
| 3 | 09/16/2016 | MH | Mobile Home | | | | | | 126260 | |
| 4 | 09/16/2016 | MISC | MISC | | | | | | 0 | |
Payout Agreement
| No payout information available.. |