Property
Account |
| Property ID: | 42202 | Abbreviated Legal Description: | SEAMOUNT ESTATES DIV 4 LOT 26 |
| Parcel # / Geo ID: | 993500026 | Agent Code: | |
| Type: | Real | | |
| Tax Area: | 0441 - 1-46F4E4H2C1L1P2 | Land Use Code | 11 |
| Open Space: | N | DFL | N |
| Historic Property: | N | Remodel Property: | N |
| Multi-Family Redevelopment: | N | | |
| Township: | 25N | Section: | 31 |
| Range: | 2W |
Location |
| Address: | 141 SEAMOUNT DR BRINNON, WA 98320 | Mapsco: | 030/049 |
| Neighborhood: | SEAMOUNT ESTATES DIVISIONS 1 - 4 & DUPPENTHALER SHORT PLAT | Map ID: | |
| Neighborhood CD: | 1285 |
Owner |
| Name: | AUSTIN & KELLY KNIERIM | Owner ID: | 111922 |
| Mailing Address: | 141 SEAMOUNT DR BRINNON, WA 98320-9613 | % Ownership: | 100.0000000000% |
| | | Exemptions: | |
Pay Tax Due
Select the appropriate checkbox next to the year to be paid. Multiple years may be selected.
*Convenience Fee not included
Taxes and Assessment Details
Property Tax Information as of
03/11/2026
Click on "Statement Details" to expand or collapse a tax statement.
* Please enter a valid date ** Please enter a valid date *
Statement Details |
| 2026 | 31365 | STATE - STATE LEVY (SCHOOL) | $365.04 | $365.02 | $0.00 | $0.00 | $0.00 | $730.06 |
| 2026 | 31365 | COUNTY - COUNTY LEVIES (CE, DD, VET, MH) | $145.95 | $145.94 | $0.00 | $0.00 | $0.00 | $291.89 |
| 2026 | 31365 | CONSERVE - CONSERVATION FUTURES | $4.38 | $4.37 | $0.00 | $0.00 | $0.00 | $8.75 |
| 2026 | 31365 | COROADS - COUNTY ROADS (ROADS, DIV TO CE) | $117.73 | $117.73 | $0.00 | $0.00 | $0.00 | $235.46 |
| 2026 | 31365 | PORTPT - PORT DISTRICT | $58.94 | $58.94 | $0.00 | $0.00 | $0.00 | $117.88 |
| 2026 | 31365 | PUD1 - PUD #1 | $9.50 | $9.49 | $0.00 | $0.00 | $0.00 | $18.99 |
| 2026 | 31365 | LIB1 - LIBRARY DIST #1 | $45.55 | $45.55 | $0.00 | $0.00 | $0.00 | $91.10 |
| 2026 | 31365 | HD2 - HOSP DIST #2 | $8.51 | $8.51 | $0.00 | $0.00 | $0.00 | $17.02 |
| 2026 | 31365 | SD46 - SCHOOL DIST #46 | $109.40 | $109.39 | $0.00 | $0.00 | $0.00 | $218.79 |
| 2026 | 31365 | FD4 - FIRE DISTRICT #4 | $264.96 | $264.96 | $0.00 | $0.00 | $0.00 | $529.92 |
| 2026 | 31365 | EMS4 - FIRE DIST #4 EMS | $73.74 | $73.73 | $0.00 | $0.00 | $0.00 | $147.47 |
| 2026 | 31365 | CEM1 - CEMETERY DIST #1 | $1.70 | $1.70 | $0.00 | $0.00 | $0.00 | $3.40 |
| 2026 | 31365 | FP - DNR Forest Fire Protection Assmt | $8.50 | $8.50 | $0.00 | $0.00 | $0.00 | $17.00 |
| 2026 | 31365 | FPLCA - DNR Landowner Contingency Assmt | $3.00 | $3.00 | $0.00 | $0.00 | $0.00 | $6.00 |
| 2026 | 31365 | JCCD - JC Conservation District | $2.55 | $2.55 | $0.00 | $0.00 | $0.00 | $5.10 |
| 2026 | 31365 | NWA - Noxious Weed Assessment | $2.98 | $2.97 | $0.00 | $0.00 | $0.00 | $5.95 |
| 2026 | 31365 | OSS - On Site Septic | $23.10 | $23.10 | $0.00 | $0.00 | $0.00 | $46.20 |
| 2026 | 31365 | WAT - Clean Water District | $13.00 | $13.00 | $0.00 | $0.00 | $0.00 | $26.00 |
| 2026 | 31365 | FP ADMIN - FP ADMIN | $0.50 | $0.00 | $0.00 | $0.00 | $0.00 | $0.50 |
| 2026 | 31365 | TOTAL: | $1259.03 | $1258.45 | $0.00 | $0.00 | $0.00 | $2517.48 |
|
| 2026 | 31365 | $1259.03 | $1258.45 | $0.00 | $0.00 | $0.00 | $2517.48 |
Statement Details |
| 2025 | 31437 | STATE - STATE LEVY (SCHOOL) | $255.33 | $255.33 | $0.00 | $0.00 | $510.66 | $0.00 |
| 2025 | 31437 | COUNTY - COUNTY LEVIES (CE, DD, VET, MH) | $100.42 | $100.40 | $0.00 | $0.00 | $200.82 | $0.00 |
| 2025 | 31437 | CONSERVE - CONSERVATION FUTURES | $3.01 | $3.01 | $0.00 | $0.00 | $6.02 | $0.00 |
| 2025 | 31437 | COROADS - COUNTY ROADS (ROADS, DIV TO CE) | $80.44 | $80.44 | $0.00 | $0.00 | $160.88 | $0.00 |
| 2025 | 31437 | PORTPT - PORT DISTRICT | $40.98 | $40.97 | $0.00 | $0.00 | $81.95 | $0.00 |
| 2025 | 31437 | PUD1 - PUD #1 | $6.57 | $6.57 | $0.00 | $0.00 | $13.14 | $0.00 |
| 2025 | 31437 | LIB1 - LIBRARY DIST #1 | $31.12 | $31.12 | $0.00 | $0.00 | $62.24 | $0.00 |
| 2025 | 31437 | HD2 - HOSP DIST #2 | $5.86 | $5.86 | $0.00 | $0.00 | $11.72 | $0.00 |
| 2025 | 31437 | SD46 - SCHOOL DIST #46 | $67.49 | $67.48 | $0.00 | $0.00 | $134.97 | $0.00 |
| 2025 | 31437 | FD4 - FIRE DISTRICT #4 | $187.04 | $187.02 | $0.00 | $0.00 | $374.06 | $0.00 |
| 2025 | 31437 | EMS4 - FIRE DIST #4 EMS | $51.89 | $51.89 | $0.00 | $0.00 | $103.78 | $0.00 |
| 2025 | 31437 | CEM1 - CEMETERY DIST #1 | $1.20 | $1.20 | $0.00 | $0.00 | $2.40 | $0.00 |
| 2025 | 31437 | FP - DNR Forest Fire Protection Assmt | $8.50 | $8.50 | $0.00 | $0.00 | $17.00 | $0.00 |
| 2025 | 31437 | FPLCA - DNR Landowner Contingency Assmt | $3.00 | $3.00 | $0.00 | $0.00 | $6.00 | $0.00 |
| 2025 | 31437 | JCCD - JC Conservation District | $2.55 | $2.55 | $0.00 | $0.00 | $5.10 | $0.00 |
| 2025 | 31437 | NWA - Noxious Weed Assessment | $2.15 | $2.15 | $0.00 | $0.00 | $4.30 | $0.00 |
| 2025 | 31437 | OSS - On Site Septic | $21.50 | $21.50 | $0.00 | $0.00 | $43.00 | $0.00 |
| 2025 | 31437 | WAT - Clean Water District | $13.00 | $13.00 | $0.00 | $0.00 | $26.00 | $0.00 |
| 2025 | 31437 | FP ADMIN - FP ADMIN | $0.50 | $0.00 | $0.00 | $0.00 | $0.50 | $0.00 |
| 2025 | 31437 | TOTAL: | $882.55 | $881.99 | $0.00 | $0.00 | $1764.54 | $0.00 |
|
| 2025 | 31437 | $882.55 | $881.99 | $0.00 | $0.00 | $1764.54 | $0.00 |
Statement Details |
| 2024 | 31496 | STATE - STATE LEVY (SCHOOL) | $280.64 | $280.63 | $0.00 | $0.00 | $561.27 | $0.00 |
| 2024 | 31496 | COUNTY - COUNTY LEVIES (CE, DD, VET, MH) | $120.10 | $120.08 | $0.00 | $0.00 | $240.18 | $0.00 |
| 2024 | 31496 | CONSERVE - CONSERVATION FUTURES | $3.60 | $3.60 | $0.00 | $0.00 | $7.20 | $0.00 |
| 2024 | 31496 | COROADS - COUNTY ROADS (ROADS, DIV TO CE) | $96.64 | $96.62 | $0.00 | $0.00 | $193.26 | $0.00 |
| 2024 | 31496 | PORTPT - PORT DISTRICT | $49.61 | $49.60 | $0.00 | $0.00 | $99.21 | $0.00 |
| 2024 | 31496 | PUD1 - PUD #1 | $7.89 | $7.89 | $0.00 | $0.00 | $15.78 | $0.00 |
| 2024 | 31496 | LIB1 - LIBRARY DIST #1 | $37.39 | $37.38 | $0.00 | $0.00 | $74.77 | $0.00 |
| 2024 | 31496 | HD2 - HOSP DIST #2 | $7.01 | $7.00 | $0.00 | $0.00 | $14.01 | $0.00 |
| 2024 | 31496 | SD46 - SCHOOL DIST #46 | $84.25 | $84.24 | $0.00 | $0.00 | $168.49 | $0.00 |
| 2024 | 31496 | FD4 - FIRE DISTRICT #4 | $217.64 | $217.62 | $0.00 | $0.00 | $435.26 | $0.00 |
| 2024 | 31496 | EMS4 - FIRE DIST #4 EMS | $60.65 | $60.65 | $0.00 | $0.00 | $121.30 | $0.00 |
| 2024 | 31496 | CEM1 - CEMETERY DIST #1 | $1.42 | $1.42 | $0.00 | $0.00 | $2.84 | $0.00 |
| 2024 | 31496 | FP - DNR Forest Fire Protection Assmt | $8.50 | $8.50 | $0.00 | $0.00 | $17.00 | $0.00 |
| 2024 | 31496 | FPLCA - DNR Landowner Contingency Assmt | $3.00 | $3.00 | $0.00 | $0.00 | $6.00 | $0.00 |
| 2024 | 31496 | JCCD - JC Conservation District | $2.55 | $2.55 | $0.00 | $0.00 | $5.10 | $0.00 |
| 2024 | 31496 | NWA - Noxious Weed Assessment | $2.15 | $2.15 | $0.00 | $0.00 | $4.30 | $0.00 |
| 2024 | 31496 | OSS - On Site Septic | $21.00 | $21.00 | $0.00 | $0.00 | $42.00 | $0.00 |
| 2024 | 31496 | WAT - Clean Water District | $12.50 | $12.50 | $0.00 | $0.00 | $25.00 | $0.00 |
| 2024 | 31496 | FP ADMIN - FP ADMIN | $0.50 | $0.00 | $0.00 | $0.00 | $0.50 | $0.00 |
| 2024 | 31496 | TOTAL: | $1017.04 | $1016.43 | $0.00 | $0.00 | $2033.47 | $0.00 |
|
| 2024 | 31496 | $1017.04 | $1016.43 | $0.00 | $0.00 | $2033.47 | $0.00 |
Statement Details |
| 2023 | 31538 | STATE - STATE LEVY (SCHOOL) | $262.76 | $262.74 | $0.00 | $0.00 | $525.50 | $0.00 |
| 2023 | 31538 | COUNTY - COUNTY LEVIES (CE, DD, VET, MH) | $114.66 | $114.65 | $0.00 | $0.00 | $229.31 | $0.00 |
| 2023 | 31538 | CONSERVE - CONSERVATION FUTURES | $3.44 | $3.44 | $0.00 | $0.00 | $6.88 | $0.00 |
| 2023 | 31538 | COROADS - COUNTY ROADS (ROADS, DIV TO CE) | $92.77 | $92.76 | $0.00 | $0.00 | $185.53 | $0.00 |
| 2023 | 31538 | PORTPT - PORT DISTRICT | $48.30 | $48.29 | $0.00 | $0.00 | $96.59 | $0.00 |
| 2023 | 31538 | PUD1 - PUD #1 | $7.60 | $7.60 | $0.00 | $0.00 | $15.20 | $0.00 |
| 2023 | 31538 | LIB1 - LIBRARY DIST #1 | $35.89 | $35.89 | $0.00 | $0.00 | $71.78 | $0.00 |
| 2023 | 31538 | HD2 - HOSP DIST #2 | $6.69 | $6.69 | $0.00 | $0.00 | $13.38 | $0.00 |
| 2023 | 31538 | SD46 - SCHOOL DIST #46 | $85.76 | $85.76 | $0.00 | $0.00 | $171.52 | $0.00 |
| 2023 | 31538 | FD4 - FIRE DISTRICT #4 | $142.61 | $142.59 | $0.00 | $0.00 | $285.20 | $0.00 |
| 2023 | 31538 | EMS4 - FIRE DIST #4 EMS | $40.56 | $40.55 | $0.00 | $0.00 | $81.11 | $0.00 |
| 2023 | 31538 | CEM1 - CEMETERY DIST #1 | $1.44 | $1.43 | $0.00 | $0.00 | $2.87 | $0.00 |
| 2023 | 31538 | FP - DNR Forest Fire Protection Assmt | $8.50 | $8.50 | $0.00 | $0.00 | $17.00 | $0.00 |
| 2023 | 31538 | FPLCA - DNR Landowner Contingency Assmt | $3.00 | $3.00 | $0.00 | $0.00 | $6.00 | $0.00 |
| 2023 | 31538 | JCCD - JC Conservation District | $2.55 | $2.55 | $0.00 | $0.00 | $5.10 | $0.00 |
| 2023 | 31538 | NWA - Noxious Weed Assessment | $2.15 | $2.15 | $0.00 | $0.00 | $4.30 | $0.00 |
| 2023 | 31538 | OSS - On Site Septic | $20.50 | $20.50 | $0.00 | $0.00 | $41.00 | $0.00 |
| 2023 | 31538 | WAT - Clean Water District | $12.00 | $12.00 | $0.00 | $0.00 | $24.00 | $0.00 |
| 2023 | 31538 | FP ADMIN - FP ADMIN | $0.50 | $0.00 | $0.00 | $0.00 | $0.50 | $0.00 |
| 2023 | 31538 | TOTAL: | $891.68 | $891.09 | $0.00 | $0.00 | $1782.77 | $0.00 |
|
| 2023 | 31538 | $891.68 | $891.09 | $0.00 | $0.00 | $1782.77 | $0.00 |
Values
| (+) Improvement Homesite Value: | + | $0 | |
| (+) Improvement Non-Homesite Value: | + | $202,542 | |
| (+) Land Homesite Value: | + | $0 | |
| (+) Land Non-Homesite Value: | + | $115,000 | |
| (+) Curr Use (HS): | + | $0 | $0 |
| (+) Curr Use (NHS): | + | $0 | $0 |
| | | -------------------------- | |
| (=) Market Value: | = | $317,542 | |
| (–) Productivity Loss: | – | $0 | |
| | | -------------------------- | |
| (=) Subtotal: | = | $317,542 | |
| (+) Senior Appraised Value: | + | $0 | |
| (+) Non-Senior Appraised Value: | + | $317,542 | |
| | | -------------------------- | |
| (=) Total Appraised Value: | = | $317,542 | |
| (–) Senior Exemption Loss: | – | $0 | |
| (–) Exemption Loss: | – | $0 | |
| | | -------------------------- | |
| (=) Taxable Value: | = | $317,542 | |
Taxing Jurisdiction
| Owner: | AUSTIN & KELLY KNIERIM | | |
| % Ownership: | 100.0000000000% | | |
| Total Value: | $317,542 | | |
| Tax Area: | 0441 - 1-46F4E4H2C1L1P2 |
| CE | COUNTY CURRENT EXPENSE | 0.9034619479 | $317,542 | $317,542 | $286.89 | | |
| CNTYDD | DEVELOPMENTAL DISABILITIES | 0.0052121823 | $317,542 | $317,542 | $1.66 | | |
| CNTYVET | VETERANS RELIEF | 0.0052777810 | $317,542 | $317,542 | $1.68 | | |
| MENTAL | MENTAL HEALTH | 0.0052121823 | $317,542 | $317,542 | $1.66 | | |
| ROADS | COUNTY ROADS | 0.7415066410 | $317,542 | $317,542 | $235.46 | | |
| ROADSCU | COUNTY ROADS TO CUR EXP | 0.0000000000 | $317,542 | $317,542 | $0.00 | | |
| HOSP2CASH | HOSP DIST #2 GENERAL | 0.0536075306 | $317,542 | $317,542 | $17.02 | | |
| SCH46MO | SCHOOL DIST #46 EP & O | 0.6890207067 | $317,542 | $317,542 | $218.79 | | |
| CEM1 | CEMETERY DIST #1 GENERAL | 0.0107168292 | $317,542 | $317,542 | $3.40 | | |
| CONSERVE | CONSERVATION FUTURES | 0.0275621078 | $317,542 | $317,542 | $8.75 | | |
| EMS4 | FIRE DIST #4 EMS | 0.4644216158 | $317,542 | $317,542 | $147.47 | | |
| FD4 | FIRE DIST #4 GENERAL | 1.3939598390 | $317,542 | $317,542 | $442.64 | | |
| FD4BOND | FIRE DIST #4 BOND 2019 | 0.2748466981 | $317,542 | $317,542 | $87.28 | | |
| LIB1 | LIBRARY DIST #1 GENERAL | 0.2868827388 | $317,542 | $317,542 | $91.10 | | |
| PORTPT | PORT OF PT GENERAL | 0.1134941229 | $317,542 | $317,542 | $36.04 | | |
| PORTPTIDD | PORT OF PT IDD 2019 | 0.2577346692 | $317,542 | $317,542 | $81.84 | | |
| PUD1 | PUD #1 GENERAL | 0.0597888892 | $317,542 | $317,542 | $18.99 | | |
| STATE | STATE SCHOOL PART 1 | 1.4940692947 | $317,542 | $317,542 | $474.43 | | |
| STATE2 | STATE SCHOOL PART 2 | 0.8050170049 | $317,542 | $317,542 | $255.63 | | |
| | Total Tax Rate: | 7.5917927814 | | | | | |
| | | | | Taxes w/Current Exemptions: | $2,410.73 | | |
| | | | | Taxes w/o Exemptions: | $2,410.73 | | |
Improvement / Building
| Improvement #1: | Residential Bldg | State Code: | 11 | 1208.0 sqft | Value: | $202,542 |
| Bathrooms (#): | 1 (FULL) | Bedrooms (#): | 2 | | Exterior Wall: | PL/T1 | Fireplace: | WD ST-AVG | | Floor Construction: | FRAME | Foundation: | CONPR | | Heating/Cooling: | ELBB | Roof Cover: | COMP |
|
| | Type | Description | Class CD | Sub Class CD | Year Built | Area |
| | MA | Main Area | 3 | 1S | 1981 | 1208.0 |
| | HDECK | House Deck | 3 | * | 1981 | 736.0 |
| | GDET | Detached Garage | 3 | 1S | 1981 | 768.0 |
Sketch
Property Image
Land
| 1 | 1285-1145L | | 0.0000 | 0.00 | 0.00 | 0.00 | 1.00 | $115,000 | $0 |
Roll Value History
| 2026 | N/A | N/A | N/A | N/A | N/A |
| 2025 | $202,542 | $115,000 | $0 | $317,542 | $317,542 |
| 2024 | $127,901 | $85,050 | $0 | $212,951 | $212,951 |
| 2023 | $158,095 | $84,500 | $0 | $242,595 | $242,595 |
| 2022 | $143,723 | $79,500 | $0 | $223,223 | $223,223 |
Deed and Sales History
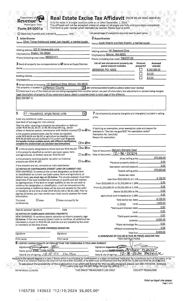
| 1 | 12/18/2024 | SWD | Statutory Warranty Deed | EFRAIN T ANDRES | AUSTIN & KELLY KNIERIM | | | $375,000.00 | 143653 | |
| 2 | 09/22/2023 | SWD | Statutory Warranty Deed | KAREN C & JAMES K ROLAND | EFRAIN T ANDRES | | | $200,000.00 | 141658 | |
| 3 | 04/08/2023 | LOP | Lack of Probate | KENNETH L NELSON | KAREN C & JAMES K ROLAND | | | | 0 | 661472 |
| 4 | 08/07/2018 | QCD | Quit Claim Deed | THERESA NELSON | KENNETH L NELSON | | | | 130822 | |
Payout Agreement
| No payout information available.. |