| 1 | 01/12/2026 | QCD | Quit Claim Deed | ERIC L & BARBARA B EFFMANN | EFFMANN LIVING TRUST | | | | 145503 | |
| 2 | 01/29/2026 | QCD | Quit Claim Deed | ERIC L & BARBARA B EFFMANN | EFFMANN LIVING TRUST | | | | 145567 | |
| 3 | 12/22/2017 | QCD | Quit Claim Deed | ROBERT C & KAREN J M WAMSTAD | ERIC L & BARBARA B EFFMANN | | | | 129273 | |
| 4 | 10/12/2017 | BLA | Boundary Line Adjustment | | ERIC L & BARBARA B EFFMANN | | | | 129154 | |
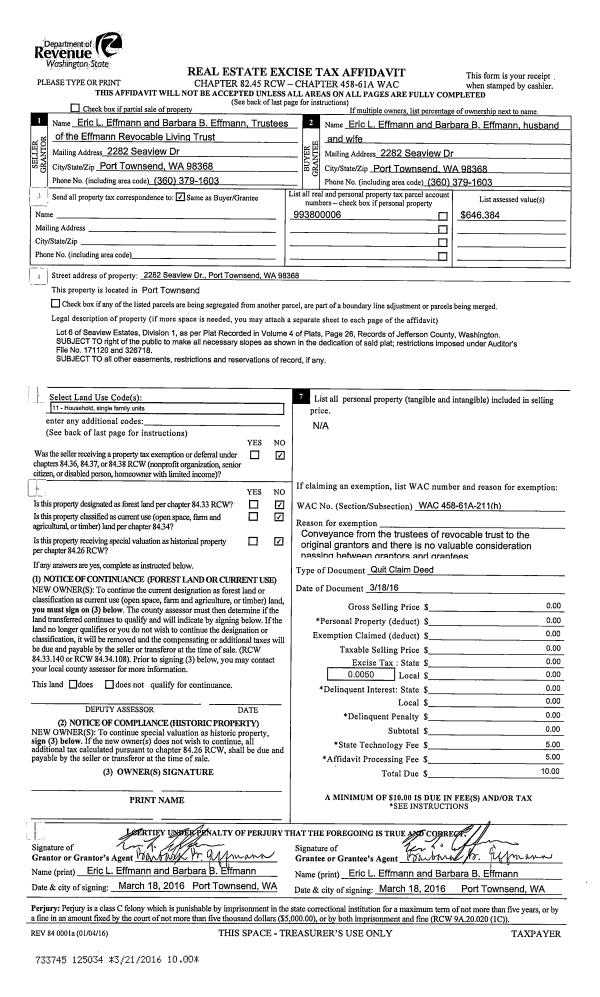
| 5 | 03/18/2016 | QCD | Quit Claim Deed | ERIC L & BARBARA B EFFMANN | ERIC L & BARBARA B EFFMANN | | | | 125034 | |
| 6 | 03/02/2006 | SWD | Statutory Warranty Deed | EFFMANN, ERIC L/BARBARA B | EFFMANN, ERIC L/BARBARA B | 0 | 0 | $0.00 | 106170 | 0 |
| 7 | 05/17/2002 | SWD | Statutory Warranty Deed | GLEN F BAGLEY TRUSTEE | ERIC L & BARBARA EFFMANN | 0 | 0 | $400,000.00 | 94690 | 0 |
| 8 | 03/23/1998 | QCD | Quit Claim Deed | BAGLEY, GLEN F/PEGGI J | BAGLEY, GLEN & PEGGI/TRUST | 0 | 0 | $0.00 | 84058 | 0 |
| 9 | 02/17/1998 | SWD | Statutory Warranty Deed | GOMES, WAYNE/KATHRYN M | BAGLEY, GLEN F/PEGGY J | 0 | 0 | $342,500.00 | 83849 | 0 |
| 10 | 12/09/1994 | SWD | Statutory Warranty Deed | KASSEBAUM, LOELLA | GOMES, WAYNE/KATHRYN M | 0 | 0 | $200,000.00 | 75829 | 0 |