Property
Account |
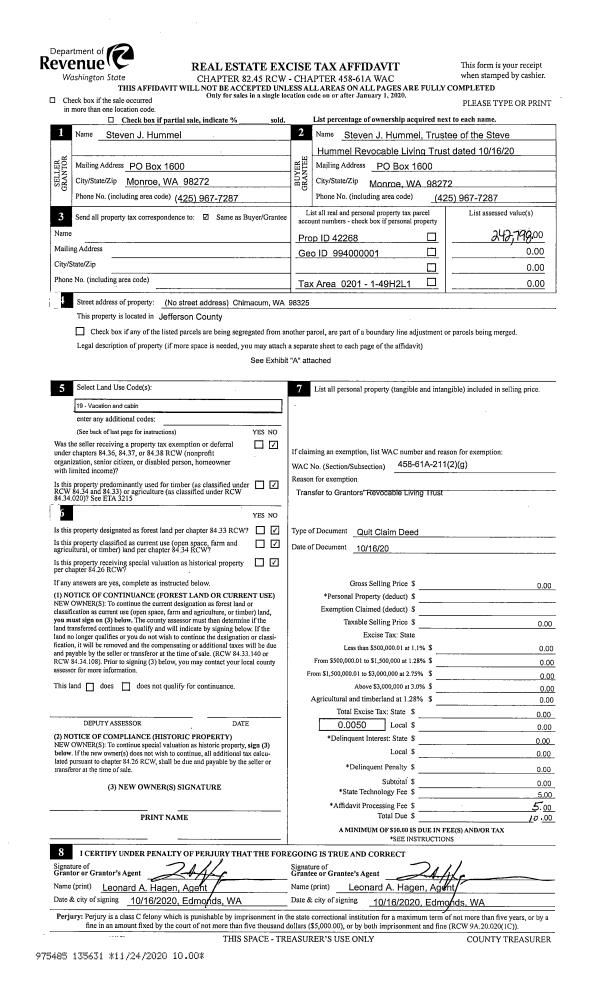
| Property ID: | 42268 | Abbreviated Legal Description: | SEVEN SISTERS BEACH 1 & TL TAX U 0.91 CH SUBJ/REST COV AFN 539409 |
| Parcel # / Geo ID: | 994000001 | Agent Code: | |
| Type: | Real | | |
| Tax Area: | 0201 - 1-49H2L1 | Land Use Code | 19 |
| Open Space: | N | DFL | N |
| Historic Property: | N | Remodel Property: | N |
| Multi-Family Redevelopment: | N | | |
| Township: | 28N | Section: | 36 |
| Range: | 1E |
Location |
| Address: | 0 CHIMACUM, WA 98325 | Mapsco: | 119/001 |
| Neighborhood: | HOOD HEAD: S36 T28N R1E, SEVEN SISTERS BCH, ODIN NELSON SP | Map ID: | |
| Neighborhood CD: | 3372 |
Owner |
| Name: | STEVE HUMMEL REVOCABLE LIVING TRUST | Owner ID: | 103753 |
| Mailing Address: | STEVEN J HUMMEL TRUSTEE PO BOX 1600 MONROE, WA 98272-4600 | % Ownership: | 100.0000000000% |
| | | Exemptions: | |
Pay Tax Due
Select the appropriate checkbox next to the year to be paid. Multiple years may be selected.
*Convenience Fee not included
Taxes and Assessment Details
Property Tax Information as of
03/11/2026
Click on "Statement Details" to expand or collapse a tax statement.
* Please enter a valid date ** Please enter a valid date *
Statement Details |
| 2026 | 31429 | STATE - STATE LEVY (SCHOOL) | $362.84 | $362.82 | $0.00 | $0.00 | $0.00 | $725.66 |
| 2026 | 31429 | COUNTY - COUNTY LEVIES (CE, DD, VET, MH) | $145.08 | $145.05 | $0.00 | $0.00 | $0.00 | $290.13 |
| 2026 | 31429 | CONSERVE - CONSERVATION FUTURES | $4.35 | $4.35 | $0.00 | $0.00 | $0.00 | $8.70 |
| 2026 | 31429 | COROADS - COUNTY ROADS (ROADS, DIV TO CE) | $117.02 | $117.02 | $0.00 | $0.00 | $0.00 | $234.04 |
| 2026 | 31429 | PORTPT - PORT DISTRICT | $58.59 | $58.58 | $0.00 | $0.00 | $0.00 | $117.17 |
| 2026 | 31429 | PUD1 - PUD #1 | $9.44 | $9.43 | $0.00 | $0.00 | $0.00 | $18.87 |
| 2026 | 31429 | LIB1 - LIBRARY DIST #1 | $45.28 | $45.27 | $0.00 | $0.00 | $0.00 | $90.55 |
| 2026 | 31429 | HD2 - HOSP DIST #2 | $8.46 | $8.46 | $0.00 | $0.00 | $0.00 | $16.92 |
| 2026 | 31429 | SD49 - SCHOOL DIST #49 | $199.73 | $199.72 | $0.00 | $0.00 | $0.00 | $399.45 |
| 2026 | 31429 | JCCD - JC Conservation District | $2.55 | $2.55 | $0.00 | $0.00 | $0.00 | $5.10 |
| 2026 | 31429 | NWA - Noxious Weed Assessment | $2.98 | $2.97 | $0.00 | $0.00 | $0.00 | $5.95 |
| 2026 | 31429 | OSS - On Site Septic | $23.10 | $23.10 | $0.00 | $0.00 | $0.00 | $46.20 |
| 2026 | 31429 | WAT - Clean Water District | $13.00 | $13.00 | $0.00 | $0.00 | $0.00 | $26.00 |
| 2026 | 31429 | TOTAL: | $992.42 | $992.32 | $0.00 | $0.00 | $0.00 | $1984.74 |
|
| 2026 | 31429 | $992.42 | $992.32 | $0.00 | $0.00 | $0.00 | $1984.74 |
Statement Details |
| 2025 | 31501 | STATE - STATE LEVY (SCHOOL) | $378.45 | $378.44 | $0.00 | $0.00 | $756.89 | $0.00 |
| 2025 | 31501 | COUNTY - COUNTY LEVIES (CE, DD, VET, MH) | $148.83 | $148.81 | $0.00 | $0.00 | $297.64 | $0.00 |
| 2025 | 31501 | CONSERVE - CONSERVATION FUTURES | $4.47 | $4.46 | $0.00 | $0.00 | $8.93 | $0.00 |
| 2025 | 31501 | COROADS - COUNTY ROADS (ROADS, DIV TO CE) | $119.24 | $119.22 | $0.00 | $0.00 | $238.46 | $0.00 |
| 2025 | 31501 | PORTPT - PORT DISTRICT | $60.73 | $60.72 | $0.00 | $0.00 | $121.45 | $0.00 |
| 2025 | 31501 | PUD1 - PUD #1 | $9.74 | $9.74 | $0.00 | $0.00 | $19.48 | $0.00 |
| 2025 | 31501 | LIB1 - LIBRARY DIST #1 | $46.13 | $46.13 | $0.00 | $0.00 | $92.26 | $0.00 |
| 2025 | 31501 | HD2 - HOSP DIST #2 | $8.69 | $8.68 | $0.00 | $0.00 | $17.37 | $0.00 |
| 2025 | 31501 | SD49 - SCHOOL DIST #49 | $202.82 | $202.82 | $0.00 | $0.00 | $405.64 | $0.00 |
| 2025 | 31501 | JCCD - JC Conservation District | $2.55 | $2.55 | $0.00 | $0.00 | $5.10 | $0.00 |
| 2025 | 31501 | NWA - Noxious Weed Assessment | $2.15 | $2.15 | $0.00 | $0.00 | $4.30 | $0.00 |
| 2025 | 31501 | OSS - On Site Septic | $21.50 | $21.50 | $0.00 | $0.00 | $43.00 | $0.00 |
| 2025 | 31501 | WAT - Clean Water District | $13.00 | $13.00 | $0.00 | $0.00 | $26.00 | $0.00 |
| 2025 | 31501 | TOTAL: | $1018.30 | $1018.22 | $0.00 | $0.00 | $2036.52 | $0.00 |
|
| 2025 | 31501 | $1018.30 | $1018.22 | $0.00 | $0.00 | $2036.52 | $0.00 |
Statement Details |
| 2024 | 31560 | STATE - STATE LEVY (SCHOOL) | $365.12 | $365.12 | $0.00 | $0.00 | $730.24 | $0.00 |
| 2024 | 31560 | COUNTY - COUNTY LEVIES (CE, DD, VET, MH) | $156.24 | $156.23 | $0.00 | $0.00 | $312.47 | $0.00 |
| 2024 | 31560 | CONSERVE - CONSERVATION FUTURES | $4.69 | $4.68 | $0.00 | $0.00 | $9.37 | $0.00 |
| 2024 | 31560 | COROADS - COUNTY ROADS (ROADS, DIV TO CE) | $125.72 | $125.72 | $0.00 | $0.00 | $251.44 | $0.00 |
| 2024 | 31560 | PORTPT - PORT DISTRICT | $64.53 | $64.53 | $0.00 | $0.00 | $129.06 | $0.00 |
| 2024 | 31560 | PUD1 - PUD #1 | $10.26 | $10.26 | $0.00 | $0.00 | $20.52 | $0.00 |
| 2024 | 31560 | LIB1 - LIBRARY DIST #1 | $48.64 | $48.64 | $0.00 | $0.00 | $97.28 | $0.00 |
| 2024 | 31560 | HD2 - HOSP DIST #2 | $9.12 | $9.11 | $0.00 | $0.00 | $18.23 | $0.00 |
| 2024 | 31560 | SD49 - SCHOOL DIST #49 | $163.05 | $163.04 | $0.00 | $0.00 | $326.09 | $0.00 |
| 2024 | 31560 | JCCD - JC Conservation District | $2.55 | $2.55 | $0.00 | $0.00 | $5.10 | $0.00 |
| 2024 | 31560 | NWA - Noxious Weed Assessment | $2.15 | $2.15 | $0.00 | $0.00 | $4.30 | $0.00 |
| 2024 | 31560 | OSS - On Site Septic | $21.00 | $21.00 | $0.00 | $0.00 | $42.00 | $0.00 |
| 2024 | 31560 | WAT - Clean Water District | $12.50 | $12.50 | $0.00 | $0.00 | $25.00 | $0.00 |
| 2024 | 31560 | TOTAL: | $985.57 | $985.53 | $0.00 | $0.00 | $1971.10 | $0.00 |
|
| 2024 | 31560 | $985.57 | $985.53 | $0.00 | $0.00 | $1971.10 | $0.00 |
Statement Details |
| 2023 | 31602 | STATE - STATE LEVY (SCHOOL) | $429.00 | $428.98 | $0.00 | $0.00 | $857.98 | $0.00 |
| 2023 | 31602 | COUNTY - COUNTY LEVIES (CE, DD, VET, MH) | $187.22 | $187.19 | $0.00 | $0.00 | $374.41 | $0.00 |
| 2023 | 31602 | CONSERVE - CONSERVATION FUTURES | $5.62 | $5.61 | $0.00 | $0.00 | $11.23 | $0.00 |
| 2023 | 31602 | COROADS - COUNTY ROADS (ROADS, DIV TO CE) | $151.46 | $151.45 | $0.00 | $0.00 | $302.91 | $0.00 |
| 2023 | 31602 | PORTPT - PORT DISTRICT | $78.87 | $78.85 | $0.00 | $0.00 | $157.72 | $0.00 |
| 2023 | 31602 | PUD1 - PUD #1 | $12.41 | $12.41 | $0.00 | $0.00 | $24.82 | $0.00 |
| 2023 | 31602 | LIB1 - LIBRARY DIST #1 | $58.60 | $58.60 | $0.00 | $0.00 | $117.20 | $0.00 |
| 2023 | 31602 | HD2 - HOSP DIST #2 | $10.93 | $10.92 | $0.00 | $0.00 | $21.85 | $0.00 |
| 2023 | 31602 | SD49 - SCHOOL DIST #49 | $200.54 | $200.52 | $0.00 | $0.00 | $401.06 | $0.00 |
| 2023 | 31602 | JCCD - JC Conservation District | $2.55 | $2.55 | $0.00 | $0.00 | $5.10 | $0.00 |
| 2023 | 31602 | NWA - Noxious Weed Assessment | $2.15 | $2.15 | $0.00 | $0.00 | $4.30 | $0.00 |
| 2023 | 31602 | OSS - On Site Septic | $20.50 | $20.50 | $0.00 | $0.00 | $41.00 | $0.00 |
| 2023 | 31602 | WAT - Clean Water District | $12.00 | $12.00 | $0.00 | $0.00 | $24.00 | $0.00 |
| 2023 | 31602 | TOTAL: | $1171.85 | $1171.73 | $0.00 | $0.00 | $2343.58 | $0.00 |
|
| 2023 | 31602 | $1171.85 | $1171.73 | $0.00 | $0.00 | $2343.58 | $0.00 |
Values
| (+) Improvement Homesite Value: | + | $0 | |
| (+) Improvement Non-Homesite Value: | + | $244,130 | |
| (+) Land Homesite Value: | + | $0 | |
| (+) Land Non-Homesite Value: | + | $71,500 | |
| (+) Curr Use (HS): | + | $0 | $0 |
| (+) Curr Use (NHS): | + | $0 | $0 |
| | | -------------------------- | |
| (=) Market Value: | = | $315,630 | |
| (–) Productivity Loss: | – | $0 | |
| | | -------------------------- | |
| (=) Subtotal: | = | $315,630 | |
| (+) Senior Appraised Value: | + | $0 | |
| (+) Non-Senior Appraised Value: | + | $315,630 | |
| | | -------------------------- | |
| (=) Total Appraised Value: | = | $315,630 | |
| (–) Senior Exemption Loss: | – | $0 | |
| (–) Exemption Loss: | – | $0 | |
| | | -------------------------- | |
| (=) Taxable Value: | = | $315,630 | |
Taxing Jurisdiction
| Owner: | STEVE HUMMEL REVOCABLE LIVING TRUST | | |
| % Ownership: | 100.0000000000% | | |
| Total Value: | $315,630 | | |
| Tax Area: | 0201 - 1-49H2L1 |
| CE | COUNTY CURRENT EXPENSE | 0.9034619479 | $315,630 | $315,630 | $285.16 | | |
| CNTYDD | DEVELOPMENTAL DISABILITIES | 0.0052121823 | $315,630 | $315,630 | $1.65 | | |
| CNTYVET | VETERANS RELIEF | 0.0052777810 | $315,630 | $315,630 | $1.67 | | |
| MENTAL | MENTAL HEALTH | 0.0052121823 | $315,630 | $315,630 | $1.65 | | |
| ROADS | COUNTY ROADS | 0.7415066410 | $315,630 | $315,630 | $234.04 | | |
| ROADSCU | COUNTY ROADS TO CUR EXP | 0.0000000000 | $315,630 | $315,630 | $0.00 | | |
| HOSP2CASH | HOSP DIST #2 GENERAL | 0.0536075306 | $315,630 | $315,630 | $16.92 | | |
| SCH49CP | SCHOOL DIST #49 CAP PROJ | 0.6279093905 | $315,630 | $315,630 | $198.19 | | |
| SCH49MO | SCHOOL DIST #49 EP & O | 0.6376483602 | $315,630 | $315,630 | $201.26 | | |
| CONSERVE | CONSERVATION FUTURES | 0.0275621078 | $315,630 | $315,630 | $8.70 | | |
| LIB1 | LIBRARY DIST #1 GENERAL | 0.2868827388 | $315,630 | $315,630 | $90.55 | | |
| PORTPT | PORT OF PT GENERAL | 0.1134941229 | $315,630 | $315,630 | $35.82 | | |
| PORTPTIDD | PORT OF PT IDD 2019 | 0.2577346692 | $315,630 | $315,630 | $81.35 | | |
| PUD1 | PUD #1 GENERAL | 0.0597888892 | $315,630 | $315,630 | $18.87 | | |
| STATE | STATE SCHOOL PART 1 | 1.4940692947 | $315,630 | $315,630 | $471.57 | | |
| STATE2 | STATE SCHOOL PART 2 | 0.8050170049 | $315,630 | $315,630 | $254.09 | | |
| | Total Tax Rate: | 6.0243848433 | | | | | |
| | | | | Taxes w/Current Exemptions: | $1,901.49 | | |
| | | | | Taxes w/o Exemptions: | $1,901.49 | | |
Improvement / Building
| Improvement #1: | Residential Bldg | State Code: | 19 | 1632.0 sqft | Value: | $244,130 |
| Bathrooms (#): | 2 (FULL) | Bedrooms (#): | 1 | | Exterior Wall: | SI/ST | Fireplace: | WD ST-GOOD | | Floor Construction: | FRAME | Foundation: | CONPR | | Heating/Cooling: | WD/NO | Inside Verify: | NO | | Roof Cover: | METAL |   |   |
|
| | Type | Description | Class CD | Sub Class CD | Year Built | Area |
| | MA | Main Area | 3+ | 15SF | 2010 | 864.0 |
| | MA2 | Second Floor Main Area | 3+ | 15SF | 2010 | 768.0 |
| | HWPOR | House Wood Porch | 3 | * | 2010 | 432.0 |
| | HBAL | House Balcony | 3 | * | 2010 | 96.0 |
| | HDECK | House Deck | 3 | * | 2010 | 406.0 |
| | HENCL | House Enclosure | 3 | * | 2010 | 64.0 |
| | OTHER | Other | * | * | 2010 | 0.0 |
| | BSMTU | House basement unfinished | 3 | * | 2010 | 768.0 |
| | PATIO | House Patio | 3 | * | 2010 | 96.0 |
| | SHED | Shed (Table Not Dep) | 3 | * | 2010 | 187.0 |
| | SHED | Shed (Table Not Dep) | 3 | * | 2010 | 136.0 |
| | SHED | Shed (Table Not Dep) | 3 | * | 2010 | 100.0 |
| | OTHER | Other | 5 | C2S | 2010 | 0.0 |
Sketch
Property Image
Land
| 1 | 9301F | | 0.0000 | 0.00 | 0.00 | 0.00 | 0.00 | $1,500 | $0 |
| 2 | 3372-7115L | | 0.0000 | 0.00 | 0.00 | 0.00 | 1.00 | $50,000 | $0 |
| 3 | 9811 | | 0.0000 | 0.00 | 0.00 | 0.00 | 1.00 | $20,000 | $0 |
Roll Value History
| 2026 | N/A | N/A | N/A | N/A | N/A |
| 2025 | $244,130 | $71,500 | $0 | $315,630 | $315,630 |
| 2024 | $244,130 | $71,500 | $0 | $315,630 | $315,630 |
| 2023 | $244,130 | $71,500 | $0 | $315,630 | $315,630 |
| 2022 | $292,956 | $71,500 | $0 | $364,456 | $364,456 |
Deed and Sales History
| 1 | 10/16/2020 | QCD | Quit Claim Deed | STEVE HUMMEL | STEVE HUMMEL REVOCABLE LIVING TRUST | | | | 135631 | |
| 2 | 12/17/2002 | QCD | Quit Claim Deed | HUMMEL, LAMONICA | HUMMEL STEVEN J | 0 | 0 | $0.00 | 96796 | 0 |
Payout Agreement
| No payout information available.. |