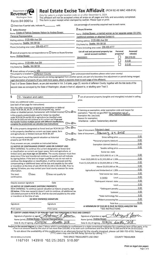
Property
Account |
| Property ID: | 42270 | Abbreviated Legal Description: | SEVEN SISTERS BEACH 3 & TL TAX N (S60') 0.91 CH |
| Parcel # / Geo ID: | 994000003 | Agent Code: | |
| Type: | Real | | |
| Tax Area: | 0201 - 1-49H2L1 | Land Use Code | 19 |
| Open Space: | N | DFL | N |
| Historic Property: | N | Remodel Property: | N |
| Multi-Family Redevelopment: | N | | |
| Township: | 28N | Section: | 25 |
| Range: | 1E |
Location |
| Address: | | Mapsco: | 119/003 |
| Neighborhood: | HOOD HEAD: S36 T28N R1E, SEVEN SISTERS BCH, ODIN NELSON SP | Map ID: | |
| Neighborhood CD: | 3372 |
Owner |
| Name: | ANDREA BOWEN | Owner ID: | 112179 |
| Mailing Address: | BARRY C NELSON CYNTHIA G NELSON 5129 46TH AVE SW SEATTLE, WA 98136-1111 | % Ownership: | 100.0000000000% |
| | | Exemptions: | |
Pay Tax Due
Select the appropriate checkbox next to the year to be paid. Multiple years may be selected.
*Convenience Fee not included
Taxes and Assessment Details
Property Tax Information as of
03/10/2026
Click on "Statement Details" to expand or collapse a tax statement.
* Please enter a valid date ** Please enter a valid date *
Statement Details |
| 2026 | 31431 | STATE - STATE LEVY (SCHOOL) | $74.63 | $74.62 | $0.00 | $0.00 | $0.00 | $149.25 |
| 2026 | 31431 | COUNTY - COUNTY LEVIES (CE, DD, VET, MH) | $29.84 | $29.83 | $0.00 | $0.00 | $0.00 | $59.67 |
| 2026 | 31431 | CONSERVE - CONSERVATION FUTURES | $0.90 | $0.89 | $0.00 | $0.00 | $0.00 | $1.79 |
| 2026 | 31431 | COROADS - COUNTY ROADS (ROADS, DIV TO CE) | $24.07 | $24.07 | $0.00 | $0.00 | $0.00 | $48.14 |
| 2026 | 31431 | PORTPT - PORT DISTRICT | $12.06 | $12.04 | $0.00 | $0.00 | $0.00 | $24.10 |
| 2026 | 31431 | PUD1 - PUD #1 | $1.94 | $1.94 | $0.00 | $0.00 | $0.00 | $3.88 |
| 2026 | 31431 | LIB1 - LIBRARY DIST #1 | $9.31 | $9.31 | $0.00 | $0.00 | $0.00 | $18.62 |
| 2026 | 31431 | HD2 - HOSP DIST #2 | $1.74 | $1.74 | $0.00 | $0.00 | $0.00 | $3.48 |
| 2026 | 31431 | SD49 - SCHOOL DIST #49 | $41.08 | $41.07 | $0.00 | $0.00 | $0.00 | $82.15 |
| 2026 | 31431 | FP - DNR Forest Fire Protection Assmt | $8.50 | $8.50 | $0.00 | $0.00 | $0.00 | $17.00 |
| 2026 | 31431 | FPLCA - DNR Landowner Contingency Assmt | $3.00 | $3.00 | $0.00 | $0.00 | $0.00 | $6.00 |
| 2026 | 31431 | JCCD - JC Conservation District | $2.55 | $2.55 | $0.00 | $0.00 | $0.00 | $5.10 |
| 2026 | 31431 | NWA - Noxious Weed Assessment | $2.98 | $2.97 | $0.00 | $0.00 | $0.00 | $5.95 |
| 2026 | 31431 | WAT - Clean Water District | $13.00 | $13.00 | $0.00 | $0.00 | $0.00 | $26.00 |
| 2026 | 31431 | FP ADMIN - FP ADMIN | $0.50 | $0.00 | $0.00 | $0.00 | $0.00 | $0.50 |
| 2026 | 31431 | TOTAL: | $226.10 | $225.53 | $0.00 | $0.00 | $0.00 | $451.63 |
|
| 2026 | 31431 | $226.10 | $225.53 | $0.00 | $0.00 | $0.00 | $451.63 |
Statement Details |
| 2025 | 31503 | STATE - STATE LEVY (SCHOOL) | $77.84 | $77.83 | $0.00 | $0.00 | $155.67 | $0.00 |
| 2025 | 31503 | COUNTY - COUNTY LEVIES (CE, DD, VET, MH) | $30.63 | $30.59 | $0.00 | $0.00 | $61.22 | $0.00 |
| 2025 | 31503 | CONSERVE - CONSERVATION FUTURES | $0.92 | $0.92 | $0.00 | $0.00 | $1.84 | $0.00 |
| 2025 | 31503 | COROADS - COUNTY ROADS (ROADS, DIV TO CE) | $24.53 | $24.52 | $0.00 | $0.00 | $49.05 | $0.00 |
| 2025 | 31503 | PORTPT - PORT DISTRICT | $12.49 | $12.49 | $0.00 | $0.00 | $24.98 | $0.00 |
| 2025 | 31503 | PUD1 - PUD #1 | $2.01 | $2.00 | $0.00 | $0.00 | $4.01 | $0.00 |
| 2025 | 31503 | LIB1 - LIBRARY DIST #1 | $9.49 | $9.49 | $0.00 | $0.00 | $18.98 | $0.00 |
| 2025 | 31503 | HD2 - HOSP DIST #2 | $1.79 | $1.78 | $0.00 | $0.00 | $3.57 | $0.00 |
| 2025 | 31503 | SD49 - SCHOOL DIST #49 | $41.72 | $41.71 | $0.00 | $0.00 | $83.43 | $0.00 |
| 2025 | 31503 | FP - DNR Forest Fire Protection Assmt | $8.50 | $8.50 | $0.00 | $0.00 | $17.00 | $0.00 |
| 2025 | 31503 | FPLCA - DNR Landowner Contingency Assmt | $3.00 | $3.00 | $0.00 | $0.00 | $6.00 | $0.00 |
| 2025 | 31503 | JCCD - JC Conservation District | $2.55 | $2.55 | $0.00 | $0.00 | $5.10 | $0.00 |
| 2025 | 31503 | NWA - Noxious Weed Assessment | $2.15 | $2.15 | $0.00 | $0.00 | $4.30 | $0.00 |
| 2025 | 31503 | WAT - Clean Water District | $13.00 | $13.00 | $0.00 | $0.00 | $26.00 | $0.00 |
| 2025 | 31503 | FP ADMIN - FP ADMIN | $0.50 | $0.00 | $0.00 | $0.00 | $0.50 | $0.00 |
| 2025 | 31503 | TOTAL: | $231.12 | $230.53 | $0.00 | $0.00 | $461.65 | $0.00 |
|
| 2025 | 31503 | $231.12 | $230.53 | $0.00 | $0.00 | $461.65 | $0.00 |
Statement Details |
| 2024 | 31562 | STATE - STATE LEVY (SCHOOL) | $75.10 | $75.10 | $0.00 | $0.00 | $150.20 | $0.00 |
| 2024 | 31562 | COUNTY - COUNTY LEVIES (CE, DD, VET, MH) | $32.14 | $32.13 | $0.00 | $0.00 | $64.27 | $0.00 |
| 2024 | 31562 | CONSERVE - CONSERVATION FUTURES | $0.97 | $0.96 | $0.00 | $0.00 | $1.93 | $0.00 |
| 2024 | 31562 | COROADS - COUNTY ROADS (ROADS, DIV TO CE) | $25.87 | $25.85 | $0.00 | $0.00 | $51.72 | $0.00 |
| 2024 | 31562 | PORTPT - PORT DISTRICT | $13.28 | $13.27 | $0.00 | $0.00 | $26.55 | $0.00 |
| 2024 | 31562 | PUD1 - PUD #1 | $2.11 | $2.11 | $0.00 | $0.00 | $4.22 | $0.00 |
| 2024 | 31562 | LIB1 - LIBRARY DIST #1 | $10.01 | $10.00 | $0.00 | $0.00 | $20.01 | $0.00 |
| 2024 | 31562 | HD2 - HOSP DIST #2 | $1.88 | $1.87 | $0.00 | $0.00 | $3.75 | $0.00 |
| 2024 | 31562 | SD49 - SCHOOL DIST #49 | $33.54 | $33.53 | $0.00 | $0.00 | $67.07 | $0.00 |
| 2024 | 31562 | FP - DNR Forest Fire Protection Assmt | $8.50 | $8.50 | $0.00 | $0.00 | $17.00 | $0.00 |
| 2024 | 31562 | FPLCA - DNR Landowner Contingency Assmt | $3.00 | $3.00 | $0.00 | $0.00 | $6.00 | $0.00 |
| 2024 | 31562 | JCCD - JC Conservation District | $2.55 | $2.55 | $0.00 | $0.00 | $5.10 | $0.00 |
| 2024 | 31562 | NWA - Noxious Weed Assessment | $2.15 | $2.15 | $0.00 | $0.00 | $4.30 | $0.00 |
| 2024 | 31562 | WAT - Clean Water District | $12.50 | $12.50 | $0.00 | $0.00 | $25.00 | $0.00 |
| 2024 | 31562 | FP ADMIN - FP ADMIN | $0.50 | $0.00 | $0.00 | $0.00 | $0.50 | $0.00 |
| 2024 | 31562 | TOTAL: | $224.10 | $223.52 | $0.00 | $0.00 | $447.62 | $0.00 |
|
| 2024 | 31562 | $224.10 | $223.52 | $0.00 | $0.00 | $447.62 | $0.00 |
Statement Details |
| 2023 | 31604 | STATE - STATE LEVY (SCHOOL) | $79.58 | $79.57 | $0.00 | $0.00 | $159.15 | $0.00 |
| 2023 | 31604 | COUNTY - COUNTY LEVIES (CE, DD, VET, MH) | $34.73 | $34.71 | $0.00 | $0.00 | $69.44 | $0.00 |
| 2023 | 31604 | CONSERVE - CONSERVATION FUTURES | $1.04 | $1.04 | $0.00 | $0.00 | $2.08 | $0.00 |
| 2023 | 31604 | COROADS - COUNTY ROADS (ROADS, DIV TO CE) | $28.10 | $28.09 | $0.00 | $0.00 | $56.19 | $0.00 |
| 2023 | 31604 | PORTPT - PORT DISTRICT | $14.63 | $14.62 | $0.00 | $0.00 | $29.25 | $0.00 |
| 2023 | 31604 | PUD1 - PUD #1 | $2.30 | $2.30 | $0.00 | $0.00 | $4.60 | $0.00 |
| 2023 | 31604 | LIB1 - LIBRARY DIST #1 | $10.87 | $10.87 | $0.00 | $0.00 | $21.74 | $0.00 |
| 2023 | 31604 | HD2 - HOSP DIST #2 | $2.03 | $2.02 | $0.00 | $0.00 | $4.05 | $0.00 |
| 2023 | 31604 | SD49 - SCHOOL DIST #49 | $37.20 | $37.19 | $0.00 | $0.00 | $74.39 | $0.00 |
| 2023 | 31604 | FP - DNR Forest Fire Protection Assmt | $8.50 | $8.50 | $0.00 | $0.00 | $17.00 | $0.00 |
| 2023 | 31604 | FPLCA - DNR Landowner Contingency Assmt | $3.00 | $3.00 | $0.00 | $0.00 | $6.00 | $0.00 |
| 2023 | 31604 | JCCD - JC Conservation District | $2.55 | $2.55 | $0.00 | $0.00 | $5.10 | $0.00 |
| 2023 | 31604 | NWA - Noxious Weed Assessment | $2.15 | $2.15 | $0.00 | $0.00 | $4.30 | $0.00 |
| 2023 | 31604 | WAT - Clean Water District | $12.00 | $12.00 | $0.00 | $0.00 | $24.00 | $0.00 |
| 2023 | 31604 | FP ADMIN - FP ADMIN | $0.50 | $0.00 | $0.00 | $0.00 | $0.50 | $0.00 |
| 2023 | 31604 | TOTAL: | $239.18 | $238.61 | $0.00 | $0.00 | $477.79 | $0.00 |
|
| 2023 | 31604 | $239.18 | $238.61 | $0.00 | $0.00 | $477.79 | $0.00 |
Values
| (+) Improvement Homesite Value: | + | $0 | |
| (+) Improvement Non-Homesite Value: | + | $13,418 | |
| (+) Land Homesite Value: | + | $0 | |
| (+) Land Non-Homesite Value: | + | $51,500 | |
| (+) Curr Use (HS): | + | $0 | $0 |
| (+) Curr Use (NHS): | + | $0 | $0 |
| | | -------------------------- | |
| (=) Market Value: | = | $64,918 | |
| (–) Productivity Loss: | – | $0 | |
| | | -------------------------- | |
| (=) Subtotal: | = | $64,918 | |
| (+) Senior Appraised Value: | + | $0 | |
| (+) Non-Senior Appraised Value: | + | $64,918 | |
| | | -------------------------- | |
| (=) Total Appraised Value: | = | $64,918 | |
| (–) Senior Exemption Loss: | – | $0 | |
| (–) Exemption Loss: | – | $0 | |
| | | -------------------------- | |
| (=) Taxable Value: | = | $64,918 | |
Taxing Jurisdiction
| Owner: | ANDREA BOWEN | | |
| % Ownership: | 100.0000000000% | | |
| Total Value: | $64,918 | | |
| Tax Area: | 0201 - 1-49H2L1 |
| CE | COUNTY CURRENT EXPENSE | 0.9034619479 | $64,918 | $64,918 | $58.65 | | |
| CNTYDD | DEVELOPMENTAL DISABILITIES | 0.0052121823 | $64,918 | $64,918 | $0.34 | | |
| CNTYVET | VETERANS RELIEF | 0.0052777810 | $64,918 | $64,918 | $0.34 | | |
| MENTAL | MENTAL HEALTH | 0.0052121823 | $64,918 | $64,918 | $0.34 | | |
| ROADS | COUNTY ROADS | 0.7415066410 | $64,918 | $64,918 | $48.14 | | |
| ROADSCU | COUNTY ROADS TO CUR EXP | 0.0000000000 | $64,918 | $64,918 | $0.00 | | |
| HOSP2CASH | HOSP DIST #2 GENERAL | 0.0536075306 | $64,918 | $64,918 | $3.48 | | |
| SCH49CP | SCHOOL DIST #49 CAP PROJ | 0.6279093905 | $64,918 | $64,918 | $40.76 | | |
| SCH49MO | SCHOOL DIST #49 EP & O | 0.6376483602 | $64,918 | $64,918 | $41.39 | | |
| CONSERVE | CONSERVATION FUTURES | 0.0275621078 | $64,918 | $64,918 | $1.79 | | |
| LIB1 | LIBRARY DIST #1 GENERAL | 0.2868827388 | $64,918 | $64,918 | $18.62 | | |
| PORTPT | PORT OF PT GENERAL | 0.1134941229 | $64,918 | $64,918 | $7.37 | | |
| PORTPTIDD | PORT OF PT IDD 2019 | 0.2577346692 | $64,918 | $64,918 | $16.73 | | |
| PUD1 | PUD #1 GENERAL | 0.0597888892 | $64,918 | $64,918 | $3.88 | | |
| STATE | STATE SCHOOL PART 1 | 1.4940692947 | $64,918 | $64,918 | $96.99 | | |
| STATE2 | STATE SCHOOL PART 2 | 0.8050170049 | $64,918 | $64,918 | $52.26 | | |
| | Total Tax Rate: | 6.0243848433 | | | | | |
| | | | | Taxes w/Current Exemptions: | $391.08 | | |
| | | | | Taxes w/o Exemptions: | $391.08 | | |
Improvement / Building
| Improvement #1: | Residential Bldg | State Code: | 19 | 671.0 sqft | Value: | $13,418 |
| Exterior Wall: | LOG | Fireplace: | WD ST-GOOD | | Foundation: | PO&BL | Heating/Cooling: | WD/NO | | Inside Verify: | NO | Interior Finish: | FIN | | Roof Cover: | METAL |   |   |
|
| | Type | Description | Class CD | Sub Class CD | Year Built | Area |
| | MA | Main Area | 3+ | C1S | 1940 | 671.0 |
| | CWPOR | Cabin Wood Porch | 3 | * | 1940 | 150.0 |
| | SHED | Shed (Table Not Dep) | 5 | * | 1940 | 112.0 |
Sketch
Property Image
Land
| 1 | 9301F | | 0.0000 | 0.00 | 0.00 | 0.00 | 0.00 | $1,500 | $0 |
| 2 | 3372-7115L | | 0.0000 | 0.00 | 0.00 | 0.00 | 1.00 | $50,000 | $0 |
Roll Value History
| 2026 | N/A | N/A | N/A | N/A | N/A |
| 2025 | $13,418 | $51,500 | $0 | $64,918 | $64,918 |
| 2024 | $13,418 | $51,500 | $0 | $64,918 | $64,918 |
| 2023 | $13,418 | $51,500 | $0 | $64,918 | $64,918 |
| 2022 | $16,102 | $51,500 | $0 | $67,602 | $67,602 |
Deed and Sales History
| 1 | 02/24/2025 | ADM | Administrator Deed | PATRICIA NELSON | ANDREA BOWEN | | | | 143910 | |
| 2 | 03/07/2000 | QCD | Quit Claim Deed | NELSON, RUSSELL P | NELSON, PATRICIA S | 0 | 0 | $0.00 | 89113 | 0 |
Payout Agreement
| No payout information available.. |